👉 Niższe ceny + karta allegro 200 zł! 🔥

Koniec oferty za:

0dni

00godz.

00min.

00sek.

Sprawdź

Dom prefabrykowany Parterowy 100B

HFX1044

Dodaj

Dodano!

Porównaj

Dodano!

Drukuj

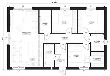
Rzut parteru

Powierzchnia (m²)
Tooltip
Powierzchnia pomieszczenia
to ta, z której faktycznie możesz korzystać – skosy i niskie części poddasza są liczone częściowo lub wcale.
  1. 100% dla wysokości powyżej 2,2 m,
  2. 50% dla wysokości 1,4–2,2 m,
  3. nie liczymy poniżej 1,4 m.

Powierzchnia podłogi
Liczymy po obrysie pomieszczenia, bez względu na jego wysokość/skosy. Jeśli nie ma skosów to powierzchnia podłogi i pomieszczenia jest taka sama.
pomieszczenia i podłogi
podłogi
1. Wiatrołap
5,56
2. Korytarz
8,82
3. Pomieszczenie gospodarcze
4,48
4. Kuchnia
8,05
5. Pokój dzienny
26,23
6. Łazienka
5,49
7. Pokój
11,44
8. Pokój
12,23
9. Łazienka
4,38
10. Garderoba
3,91
11. Pokój
10,04
Razem
100,63
100,63

Pow. użytkowa

100,63 m²

Pow. zabudowy

121,64 m²

Pokoje

3

Łazienki i WC

2

Garaż

0

Kąt dachu

35°

Min. szer. i dł. działki:

23,95 m x 16,72 m

Technologia

Prefabrykat betonowy

więcej

Cena
Tooltip

8% VAT dla klienta
indywidualnego, 23% VAT dla
firmy. Cena za metr wyliczana
na podstawie powierzchni netto
lub powierzchni użytkowej.

Brutto
Netto
Cena
Tooltip

8% VAT dla klienta
indywidualnego, 23% VAT dla
firmy. Cena za metr wyliczana
na podstawie powierzchni netto
lub powierzchni użytkowej.

Brutto
Netto
Stan deweloperski
Tooltip

Szczegóły zakresu podstawowego znajdziesz
w opisie.

449 000 zł

4 462 zł/m²

Skonfiguruj dom

Skonfiguruj dom

Fundamenty

od 76 150 zł

Źródło ciepła

od 32 950 zł

Wolne terminy!
Umów wizytę w
domu pokazowym
  • Jak wygląda proces budowy?
  • Ile trwa budowa i jakie terminy są dostępne?
  • Jak się mieszka w takim domu!
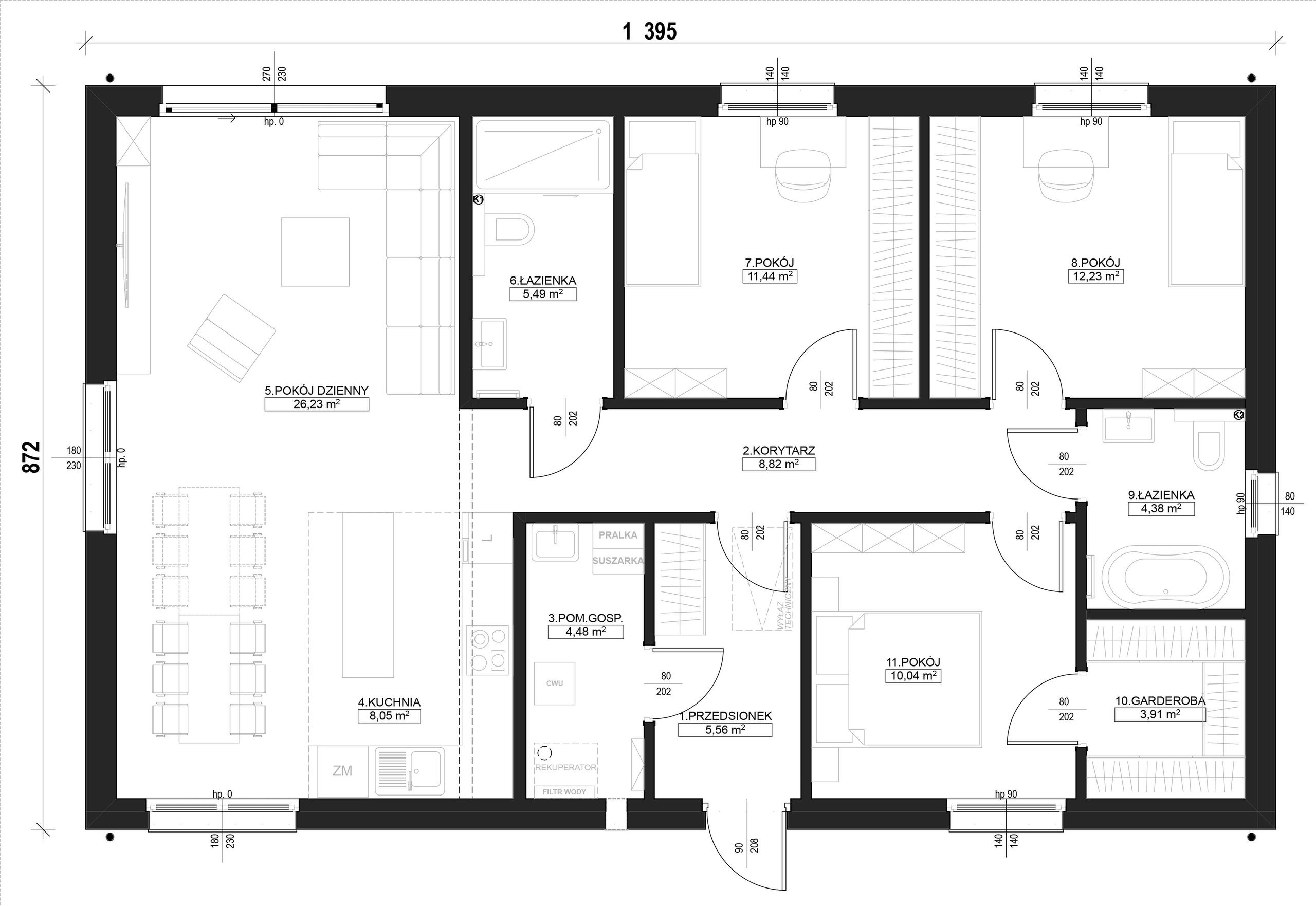
RZUTY

Rozmieszczenie
pomieszczeń

Parter - 100,63 m²

Parter projektu Dom prefabrykowany Parterowy 100B
Powierzchnia (m²)
Tooltip
Powierzchnia pomieszczenia
to ta, z której faktycznie możesz korzystać – skosy i niskie części poddasza są liczone częściowo lub wcale.
  1. 100% dla wysokości powyżej 2,2 m,
  2. 50% dla wysokości 1,4–2,2 m,
  3. nie liczymy poniżej 1,4 m.

Powierzchnia podłogi
Liczymy po obrysie pomieszczenia, bez względu na jego wysokość/skosy. Jeśli nie ma skosów to powierzchnia podłogi i pomieszczenia jest taka sama.
pomieszczenia i podłogi
podłogi
1. Wiatrołap
5,56
2. Korytarz
8,82
3. Pomieszczenie gospodarcze
4,48
4. Kuchnia
8,05
5. Pokój dzienny
26,23
6. Łazienka
5,49
7. Pokój
11,44
8. Pokój
12,23
9. Łazienka
4,38
10. Garderoba
3,91
11. Pokój
10,04
Razem
100,63
100,63

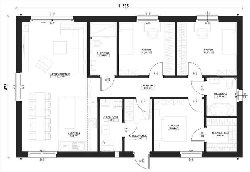
Podoba Ci się dom, ale chciałbyś dokonać pewnych zmian?

  • Możesz zmienić kolor i materiał elewacji
  • Możesz zmienić funkcję i układ pomieszczeń
Konsultant

Skontaktuj się z nami - przygotujemy bezpłatną ofertę dla Ciebie

71 718 89 70

pon.-pt. 08:00 - 19:00

Analiza działki

Czy ten dom pasuje na Twoją działkę? Chętnie to sprawdzimy!

  • Czy wybrany dom zmieści się na Twojej działce?
  • Czy spełnia parametry wg MPZT lub WZ?
TECHNOLOGIA I KONSTRUKCJA

Prefabrykat betonowy - solidny i trwały

Nowoczesna technologia prefabrykacji betonowej

Technologia znana od lat 70. XX wieku, w ostatnich dekadach przeszła ogromną transformację. Współczesne prefabrykaty betonowe wyróżniają się wytrzymałością, precyzją wykonania oraz doskonałymi parametrami izolacyjnymi i akustycznymi.

Do produkcji prefabrykatów wykorzystuje się wysokiej  klasy beton. Proces wytwarzania żelbetowych ścian trwa ok. 3 miesięcy. Ściany w fabryce uzyskują swoją pełną wytrzymałość i trafiają na plac budowy gotowe do montażu – gładkie, dobrze spasowane, z otworami na instalacje.
 

Dom prefabrykowany Parterowy 100B - HFX1044
Błyskawiczna budowa domu na Twojej działce

Prefabrykacja sprawia, że większość prac zostaje wykonana jeszcze zanim konstrukcja przyjedzie na plac budowy. Po przewiezieniu na działkę inwestora, ściany mocowane są do płyty fundamentowej i łączone ze sobą za pomocą specjalnych elementów, tworząc stabilną konstrukcję.

W zależności od projektu wykonuje się tradycyjną, drewnianą więźbę dachową (strop typu filigran) lub stosuje się prefabrykowane wiązary (strop na wiązarach). Dach przykrywa blachodachówka lub dachówka.

Montaż konstrukcji na działce trwa 2-3 dni, a stan deweloperski można osiągnąć nawet w 6 miesięcy od uzyskania pozwolenia na budowę. 
 

Dom prefabrykowany Parterowy 100B - HFX1044
Wytrzymałość i precyzja

Prefabrykaty nie tylko skracają czas budowy do kilku dni, ale także eliminują wady tradycyjnej budowy. Prace na działce można wykonywać praktycznie przez cały rok - bez przestojów i przerw technologicznych.

Ściany prefabrykowane są gładkie i nie wymagają nakładania tynków, a brak łączeń wyklucza występowanie spękań. Ściany są przygotowane do rozprowadzenia instalacji zgodnie z projektem – bez dodatkowego bruzdowania.

Monolityczna konstrukcja zapewnia stabilność i ekstremalną wytrzymałość budynku.

Dom prefabrykowany Parterowy 100B - HFX1044
Komfort akustyczny

Dom prefabrykowany w technologii betonowej to cicha i komfortowa przestrzeń do życia. Beton, ze względu na dużą masę, posiada doskonałe parametry izolacji akustycznej. Skuteczniej izoluje od dźwięków powietrznych niż technologie murowane o podobnej grubości.

O komfort akustyczny wewnątrz domu dbają dodatkowo okna 3-szybowe 5-komorowe oraz stropy wykonane w technologii zespolonej (Filigran).

Dom prefabrykowany Parterowy 100B - HFX1044
Energooszędność

Zmniejszenie zużycia energii to jedna z podstawowych cech nowoczesnego budownictwa, realizowanego zgodnie z wymogami WT 2021.

Ściany domu ocieplane są warstwą styropianu 20 cm i zabezpieczają go przed ubytkami cieplnymi – współczynnik przenikania ciepła ścian wynosi U=0,16 W/(m*K ), gdy wymagany przez WT2021 to U ≤ 0,20 W/(m²*K). Do ocieplenia poddasza stosuje się metodę natryskową pianą PUR.
 

Dom prefabrykowany Parterowy 100B - HFX1044
Dane techniczne

Specyfikacja

Powierzchnie i wymiary Powierzchnie i wymiary

Powierzchnia użytkowa
Tooltip
Suma powierzchni wszystkich pomieszczeń mieszkalnych, pomniejszona o pow. garażu, kotłowni, strychu, piwnicy. Jest liczona w 100% dla pomieszczeń o wysokości powyżej 2,2 m, w 50% dla pomieszczeń o wys. 2,2-1,4 m i niewliczana dla niższych niż 1,4 m.

100,63 m²

Powierzchnia zabudowy
Tooltip
Powierzchnia zajmowana przez część na- oraz nadziemną budynku liczona, jako rzut pionowy budynku na działkę.

121,64 m²

Kąt nachylenia dachu
Tooltip
Nachylenie połaci dachu głównego podawane w stopniach. Uwaga! W niektórych projektach występuje więcej niż jedno nachylenie dachu.

35°

Wysokość budynku
Tooltip
Wysokość liczona od części budynku położonej najniżej przy powierzchni terenu do najwyższego punktu dachu (kalenicy) z wyłączeniem kominów.

6,44 m

Szerokość elewacji

13,95 m

Długość elewacji

8,72 m

Min. szerokość działki
Tooltip
Najmniejsza możliwa szerokość działki niezbędna do wybudowania wybranego domu. Składa się z szerokości elewacji domu powiększonej z obu stron o 3 m dla ściany bez otworów drzwiowych/okiennych lub 4 m, dla ściany z otworami.

23,95 m

Min. długość działki
Tooltip
Najmniejsza możliwa długość działki niezbędna do wybudowania wybranego domu. Składa się z długości elewacji domu powiększonej z obu stron o 3 m dla ściany bez otworów drzwiowych/okiennych lub 4 m, dla ściany z otworami.

16,72 m

Energooszczędność Energooszczędność

Ogrzewanie

Ogrzewanie podłogowe wodne LUB ogrzewanie elektryczne – kable grzewcze oraz zasobnik CWU 150l LUB ogrzewanie podłogowe wodne.

Wentylacja

Wentylacja mechaniczna z odzyskiem ciepła (rekuperacja).

Technologia i materiały Technologia i materiały

Ściany zewnętrzne

Ściany zewnętrzne: 15 cm żelbet + 20 cm styropian – U ściany 0,16 W/(m•K ).

Ściany wewnętrzne

Ściany wewnętrzne 12 cm żelbet.

Konstrukcja dachu

Więźba dachowa z wiązarów.

Pokrycie dachu

Dach pokryty blachodachówką.

DOMY GOTOWE

Zbuduj swój dom w 3 prostych krokach

Wybierasz dom,
przygotowujemy ofertę

Konfigurujemy i tworzymy dla Ciebie bezpłatną ofertę. Pomagamy w weryfikacji działki.

Podpisujesz umowę, rusza produkcja

Podpisujesz umowę z naszym partnerem na produkcję i montaż Twojego domu. Nie martwisz się o terminy i znasz koszty budowy.

Ciesz się swoim domem

W zależności od wybranej technologii budowy, Producent albo przywiezie gotowe elementy na Twoją działkę, albo – w przypadku metody murowanej - rozpocznie proces budowy domu od podstaw. Tobie pozostaną już tylko wewnętrzne prace wykończeniowe.

Dom w 3 krokach

NIE CZEKAJ DŁUŻEJ!

Pomożemy Ci zrealizować marzenie o domu - nawet w 3 miesiące!

Ikona zadzwoń

Zadzwoń

71 71 88 970

pon.-pt. 8:00-19:00

Zadzwoń teraz
Ikona list

Napisz do nas:

domygotowe@extradom.pl
lub
Wolne terminy!

Zobacz na żywo nasz gotowy dom!

Zanim podejmiesz decyzję, spotkaj się z nami na budowie i zobacz, jak realizowana jest taka inwestycja. Dzięki temu:

  • Dowiesz się, jak wygląda budowa i efekt finalny.
  • Skonsultujesz swoje pomysły z naszym ekspertem

Zobacz podobne domy gotowe

1

/

3

Zdjęcie Bergen 90
Bergen 90
Dodano!
Dodano!
Pow. użytkowa
90,83 m²
Pow. zabudowy
112,47 m²
Pokoje
3
409 000 zł 4 503 zł/m²
Zdjęcie Dom prefabrykowany Parterowy 100A
Pow. użytkowa
100,55 m²
Pow. zabudowy
121,64 m²
Pokoje
4
449 000 zł 4 465 zł/m²
Zdjęcie Dom prefabrykowany FastHome 100
Pow. użytkowa
99,59 m²
Pow. zabudowy
124,32 m²
Pokoje
3
479 000 zł 4 810 zł/m²
Zdjęcie Dom keramzytowy Atrakcyjna Stodoła wariant 2
Pow. użytkowa
99,22 m²
Pow. zabudowy
119,97 m²
Pokoje
3
494 900 zł 4 988 zł/m²
Zdjęcie Dom szkieletowy Spruce Smart 112
Pow. użytkowa
102,60 m²
Pow. zabudowy
84 m²
Pokoje
3
550 500 zł 5 365 zł/m²
Zdjęcie Dom prefabrykowany P.9
Dom prefabrykowany P.9
Dodano!
Dodano!
Pow. użytkowa
97,80 m²
Pow. zabudowy
72,25 m²
Pokoje
4
555 900 zł 5 684 zł/m²
Zdjęcie Dom prefabrykowany E.3
Dom prefabrykowany E.3
Dodano!
Dodano!
Pow. użytkowa
97,13 m²
Pow. zabudowy
117 m²
Pokoje
3
496 033 zł 5 107 zł/m²
Zdjęcie Dom prefabrykowany DH127
Dom prefabrykowany DH127
Dodano!
Dodano!
Pow. użytkowa
104,71 m²
Pow. zabudowy
127,27 m²
Pokoje
3
602 100 zł 5 750 zł/m²
Zdjęcie Dom keramzytowy Essenzia 110G
Pow. użytkowa
95,83 m²
Pow. zabudowy
141,68 m²
Pokoje
2
495 720 zł 5 173 zł/m²
Zdjęcie Dom szkieletowy Green Smart 120
Pow. użytkowa
105,59 m²
Pow. zabudowy
95,24 m²
Pokoje
5
586 400 zł 5 554 zł/m²
Zdjęcie Dom szkieletowy Prime Smart 120
Pow. użytkowa
95,36 m²
Pow. zabudowy
124 m²
Pokoje
3
507 946 zł 5 263 zł/m²
Zdjęcie Dom prefabrykowany DEX106
Dom prefabrykowany DEX106
Dodano!
Dodano!
Pow. użytkowa
106 m²
Pow. zabudowy
133,92 m²
Pokoje
3
732 950 zł 6 915 zł/m²

Graficzne opracowanie rzutów poglądowych widocznych na karcie projektu zostało wykonane przez Extradom.pl. Prezentowane przez Extradom.pl wizualizacje wykonane zostały przez autora projektu i należy poczytywać je jedynie za przykład i propozycję wykończenia, wizję architektoniczną autora projektu. Ostateczne wykończenie budynku może nastąpić na wiele sposobów. Szczegółowe rozwiązania zastosowane w oferowanej dokumentacji - w tym również ilość, lokalizacje i wygląd okien, drzwi, kominów - mogą w niewielkim stopniu różnić się od prezentowanej wizualizacji budynku.

Extradom.pl Spółka z ograniczoną odpowiedzialnością z siedzibą przy ul. Jaworskiej 13, 53-612 Wrocław, wpisana do rejestru przedsiębiorców Krajowego Rejestru Sądowego przez Sąd Rejonowy dla Wrocławia-Fabrycznej we Wrocławiu, VI Wydział Gospodarczy Krajowego Rejestru Sądowego do pod numerem KRS 0000648746, numer NIP 895-17-18-333, o kapitale zakładowym 708 150,00 zł uprzejmie informuje, iż poprzez serwis Extradom.pl umożliwia m.in. zapoznanie się przez konsumentów z ofertą handlową Partnerów Extradom.pl, którzy stosują metody budowy domów przy wykorzystaniu różnego rodzaju technologie prefabrykacji bądź modułowe (tzw. „Gotowe domy”).

Extradom.pl nie prowadzi jednakże sprzedaży ani nie oferuje usług polegających na doradztwie finansowym, prawnym ani podatkowym w zakresie inwestycji realizowanych w technologiach tzw. „Gotowych domów”. Informacje prezentowane w serwisie Extradom.pl dotyczące Partnerów Extradom.pl oferujących realizację inwestycji w technologiach „Gotowych domów” lub podobnych mają charakter informacyjny i reklamowy.

Prezentowane w serwisie Extradom.pl informacje dotyczące stosowanych przez Partnerów metod budowy domów w technologii prefabrykacji bądź modułowej pochodzą od Partnerów Extradom.pl.

Extradom.pl sp. z o.o. jedynie umożliwia nawiązanie kontaktu przez Użytkownika z Partnerem Extradom.pl stosującym tego rodzaju technologie budowy domów i nie jest stroną umowy o roboty budowlane zawieranej przez Użytkownika Extradom.pl z Partnerem Extradom.pl.

Zadzwoń i poproś
o bezpłatną wycenę

71 718 89 70
REKLAMA
Zamknij