👉 Niższe ceny + karta allegro 200 zł! 🔥

Koniec oferty za:

00godz.

00min.

00sek.

Sprawdź

Dom szkieletowy Green Smart 120

HHT1027

Dodaj

Dodano!

Porównaj

Dodano!

Drukuj

Rzut parteru

Powierzchnia (m²)
Tooltip
Powierzchnia pomieszczenia
to ta, z której faktycznie możesz korzystać – skosy i niskie części poddasza są liczone częściowo lub wcale.
  1. 100% dla wysokości powyżej 2,2 m,
  2. 50% dla wysokości 1,4–2,2 m,
  3. nie liczymy poniżej 1,4 m.

Powierzchnia podłogi
Liczymy po obrysie pomieszczenia, bez względu na jego wysokość/skosy. Jeśli nie ma skosów to powierzchnia podłogi i pomieszczenia jest taka sama.
pomieszczenia i podłogi
podłogi
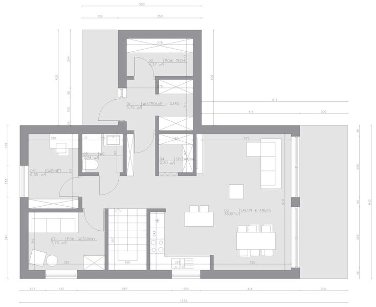
1. Wiatrołap + garderoba
5,75
2. Spiżarnia
2,30
3. Pokój dzienny + kuchnia + jadalnia
36
4. Pokój
7,33
5. Pokój
6,55
6. Łazienka
2,74
7. Pomieszczenie gospodarcze
4,37
Razem
65,04
65,04
Powierzchnia (m²)
Tooltip
Powierzchnia pomieszczenia
to ta, z której faktycznie możesz korzystać – skosy i niskie części poddasza są liczone częściowo lub wcale.
  1. 100% dla wysokości powyżej 2,2 m,
  2. 50% dla wysokości 1,4–2,2 m,
  3. nie liczymy poniżej 1,4 m.

Powierzchnia podłogi
Liczymy po obrysie pomieszczenia, bez względu na jego wysokość/skosy. Jeśli nie ma skosów to powierzchnia podłogi i pomieszczenia jest taka sama.
pomieszczenia i podłogi
podłogi
1. Korytarz
7,55
2. Pokój
18,21
3. Łazienka
3,95
4. Garderoba
2,35
5. Pokój
9,58
6. Pokój
9,58
7. Łazienka
3,71
Razem
54,93
54,93

Pow. użytkowa

105,59 m²

Pow. zabudowy

95,24 m²

Pokoje

5

Łazienki i WC

3

Garaż

0

Kąt dachu

40°

Min. szer. i dł. działki:

18,42 m x 19,72 m

Technologia

Szkielet drewniany

więcej

Cena
Tooltip

8% VAT dla klienta
indywidualnego, 23% VAT dla
firmy. Cena za metr wyliczana
na podstawie powierzchni netto
lub powierzchni użytkowej.

Brutto
Netto
Cena
Tooltip

8% VAT dla klienta
indywidualnego, 23% VAT dla
firmy. Cena za metr wyliczana
na podstawie powierzchni netto
lub powierzchni użytkowej.

Brutto
Netto
Stan deweloperski
Tooltip

Szczegóły zakresu podstawowego znajdziesz
w opisie.

586 400 zł

5 554 zł/m²

Skonfiguruj dom

Skonfiguruj dom

Fundamenty

od 91 346 zł

Źródło ciepła

od 10 454 zł

Fotowoltaika

od 38 126 zł

Wolne terminy!
Umów wizytę w
domu pokazowym
  • Jak wygląda proces budowy?
  • Ile trwa budowa i jakie terminy są dostępne?
  • Jak się mieszka w takim domu!
RZUTY

Rozmieszczenie
pomieszczeń

Parter - 65,04 m²

Wymiary wewnętrzne

Powierzchnie pomieszczeń

Oznaczenia na rzutach

Lodówka

Suszarka

Zmywarka

Suszarka nad pralką

Kuchenka

Pralka

Piekarnik

Szafa

Kocioł

Pompa ciepła

Kominek

Rekuperacja

Szerokość stolarki
Wysokość stolarki

Legenda Zobacz oznaczenia użyte na rzutach

Powierzchnia (m²)
Tooltip
Powierzchnia pomieszczenia
to ta, z której faktycznie możesz korzystać – skosy i niskie części poddasza są liczone częściowo lub wcale.
  1. 100% dla wysokości powyżej 2,2 m,
  2. 50% dla wysokości 1,4–2,2 m,
  3. nie liczymy poniżej 1,4 m.

Powierzchnia podłogi
Liczymy po obrysie pomieszczenia, bez względu na jego wysokość/skosy. Jeśli nie ma skosów to powierzchnia podłogi i pomieszczenia jest taka sama.
pomieszczenia i podłogi
podłogi
1. Wiatrołap + garderoba
5,75
2. Spiżarnia
2,30
3. Pokój dzienny + kuchnia + jadalnia
36
4. Pokój
7,33
5. Pokój
6,55
6. Łazienka
2,74
7. Pomieszczenie gospodarcze
4,37
Razem
65,04
65,04

Oznaczenia na rzutach

Lodówka

Suszarka

Zmywarka

Suszarka nad pralką

Kuchenka

Pralka

Piekarnik

Szafa

Kocioł

Pompa ciepła

Kominek

Rekuperacja

Szerokość stolarki
Wysokość stolarki

Legenda Zobacz oznaczenia użyte na rzutach

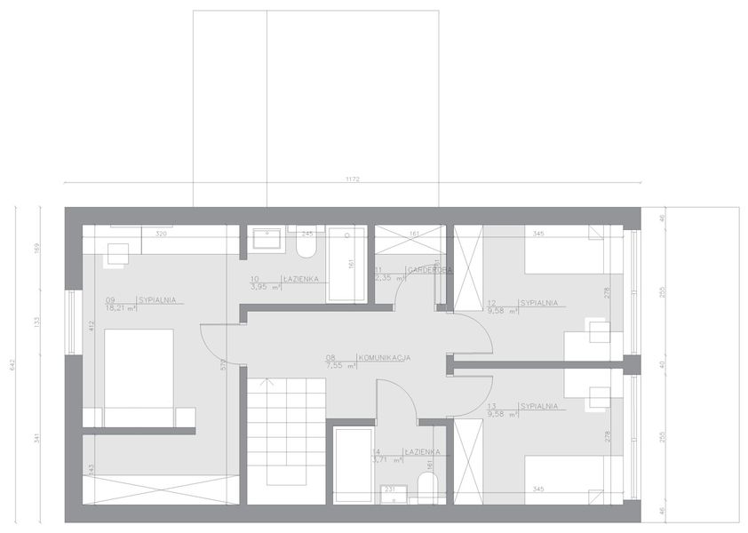
Poddasze - 54,93 m²

Wymiary wewnętrzne

Powierzchnie pomieszczeń

Oznaczenia na rzutach

Lodówka

Suszarka

Zmywarka

Suszarka nad pralką

Kuchenka

Pralka

Piekarnik

Szafa

Kocioł

Pompa ciepła

Kominek

Rekuperacja

Szerokość stolarki
Wysokość stolarki

Legenda Zobacz oznaczenia użyte na rzutach

Powierzchnia (m²)
Tooltip
Powierzchnia pomieszczenia
to ta, z której faktycznie możesz korzystać – skosy i niskie części poddasza są liczone częściowo lub wcale.
  1. 100% dla wysokości powyżej 2,2 m,
  2. 50% dla wysokości 1,4–2,2 m,
  3. nie liczymy poniżej 1,4 m.

Powierzchnia podłogi
Liczymy po obrysie pomieszczenia, bez względu na jego wysokość/skosy. Jeśli nie ma skosów to powierzchnia podłogi i pomieszczenia jest taka sama.
pomieszczenia i podłogi
podłogi
1. Korytarz
7,55
2. Pokój
18,21
3. Łazienka
3,95
4. Garderoba
2,35
5. Pokój
9,58
6. Pokój
9,58
7. Łazienka
3,71
Razem
54,93
54,93

Oznaczenia na rzutach

Lodówka

Suszarka

Zmywarka

Suszarka nad pralką

Kuchenka

Pralka

Piekarnik

Szafa

Kocioł

Pompa ciepła

Kominek

Rekuperacja

Szerokość stolarki
Wysokość stolarki

Legenda Zobacz oznaczenia użyte na rzutach

Podoba Ci się dom, ale chciałbyś dokonać pewnych zmian?

  • Możesz zmienić kolor i materiał elewacji
  • Możesz zmienić funkcję i układ pomieszczeń
Konsultant

Skontaktuj się z nami - przygotujemy bezpłatną ofertę dla Ciebie

71 718 89 70

pon.-pt. 08:00 - 19:00

PODSTAWOWE INFORMACJE

Całoroczny dom szkieletowy

icon
Szkielet drewniany
icon
5 lat rękojmi
icon
Realizacja w 30 dni
icon
Z poddaszem użytkowym
ARCHITEKTURA
Dom jeszcze bliżej natury

Dom szkieletowy Green Smart 120 to nie tylko ekologiczny dom z naturalnych materiałów - ten projekt pozwala by natura wkradła się do wnętrza przez duże przeszklenia w ścianach szczytowych. Zielony kolor elewacji podkreśla bliskość z naturalnym otoczeniem.

Bryła domu Green Smart 120 powstałą w nowoczesnym stylu skandynawskim z bezokapowym dachem i gankiem z boku domu.

Przestrzeń tego domu z poddaszem użytkowym posłuży 4-osobowej rodzinie, która potrzebuje miejsca do pracy, wypoczynku i swoich pasji. Do dyspozycji mieszkańców jest prawie 120 m2 powierzchni.

Dom szkieletowy Green Smart 120 - HHT1027
ZAKRES REALIZACJI
Stan deweloperski

Gotowy dom to opcja dla tych, którzy cenią sobie czas i wygodę. Otrzymujesz dom w stanie deweloperskim, aby szybciej zająć się wykończeniem i urządzeniem zgodnie z Twoimi potrzebami.

Zakres realizacji:

  • ściany zewnętrzne wykonane z drewna konstrukcyjnego C-24 importowanego ze Skandynawii,
  • konstrukcja ścian działowych,
  • strop drewniany,
  • ocieplenie ścian i sufitu,
  • zamknięcie ścian i sufitu płytami g-k,
  • elewacja zewnętrzna budynku,
  • konstrukcja dachu z pokryciem papą,
  • pełne deskowanie konstrukcji dachu płytą OSB o grubości 15 mm,
  • przestrzeń wentylacyjna w postaci kontrłaty,
  • wiatroizolacja,
  • pakiet obróbek blacharskich,
  • energooszczędna stolarka okienna 3-szybową, 6-komorową,
  • parapety zewnętrzne,
  • nadproża okienne,
  • drzwi zewnętrzne stalowe antywłamaniowe w kolorze grafitowym,
  • kominy wentylacyjne,
  • instalacja wod-kan i elektryczna,
  • montaż domu na działce.
Dom szkieletowy Green Smart 120 - HHT1027
ZAPYTAJ DORADCĘ
Dodatkowe możliwości

Sprawdź dodatkowe rozwiązania, usługi i zmiany, o które możesz poszerzyć zakres realizacji:

  • wykonanie fundamentów,
  • ogrzewanie elektryczne podłogowe,
  • klimatyzacja jako źródło ogrzewania,
  • zmiana wykończenia elewacji,
  • zmiana pokrycia dachu.

Szczegóły oferty skonsultuj z doradcą.
 

Dom szkieletowy Green Smart 120 - HHT1027
Dom szkieletowy Green Smart 120 - HHT1027

Duże przeszklenia

Dom szkieletowy Green Smart 120 - HHT1027

Master bedroom

Dom szkieletowy Green Smart 120 - HHT1027

Gabinet

WNĘTRZE
Celebruj czas dla rodziny i czas dla siebie

Wnętrze domu Green Smart 120 dzieli się na część dzienną na parterze i nocną na poddaszu, gdzie zaplanowano 3 sypialnie, w tym master bedroom, wspólną łazienkę i dodatkową garderobę.

Serce domu stanowi jasny salon z otwartą, narożną kuchnią, jadalnią przy tarasie i spiżarnią blisko kuchni. Wnętrze doświetlają panoramiczne okna tarasowe, przez które rozciąga się widok na ogród.

W ganku wydzielono pomieszczenie techniczne i wygodną garderobę. Od frontu zaprojektowano gabinet i pokój gościnny - łatwo dostępne od wejścia, bez wkraczania do strefy prywatnej domowników.

Dom szkieletowy Green Smart 120 - HHT1027
Dom szkieletowy Green Smart 120 - HHT1027

4 pokoje

Dom szkieletowy Green Smart 120 - HHT1027

3 łazienki

Dom szkieletowy Green Smart 120 - HHT1027

Spiżarnia

CAŁOROCZNY DOM SZKIELETOWY
Jaki będzie Twój nowy dom?

Dom Green Smart 120 wykonany w technologii szkieletu drewnianego to ekologiczne rozwiązanie na lata, do całorocznego zamieszkania. Poznaj jego zalety:

  • Lekka konstrukcja: mniejsza waga całej konstrukcji to niższe koszty fundamentów i transportu.
  • Trwałość i bezpieczeństwo: szkielet powstaje z certyfikowanego drewna konstrukcyjnego C-24, które jest niepalne i odporne na działanie na czynników atmosferycznych.
  • Szybkość budowy: montaż domu szkieletowego jest szybki i niezależny od warunków zewnętrznych, co pozwala na szybsze wprowadzenie się.
  • Ekologia: drewno to naturalny materiał, co czyni domy szkieletowe bardziej przyjaznymi dla środowiska.
  • Komfort przez cały rok: doskonała izolacja konstrukcji zapewnia komfort zamieszkania zarówno latem, jak i zimą.

Więcej

Dom szkieletowy Green Smart 120 - HHT1027

Analiza działki

Czy ten dom pasuje na Twoją działkę? Chętnie to sprawdzimy!

  • Czy wybrany dom zmieści się na Twojej działce?
  • Czy spełnia parametry wg MPZT lub WZ?
ZOBACZ TECHNOLOGIĘ NA WŁASNE OCZY
Odwiedź dom pokazowy!

Zobacz dom Mezzanine Smart 35 i Mezzanine Smart 50! Przekonaj się na własne oczy:

  • jak wygląda proces budowy takiego domu 
  • ile trwa budowa i jakie terminy są dostępne
  • jak mieszka się w takim domu! 

Zapisz się na DRZWI OTWARTE! Skontaktuj się z nami - podamy Ci najbliższy termin i wpiszemy Cię na listę uczestników. Napisz wiadomość na adres e-mail: domygotowe@extradom.pl lub zadzwoń: 71 715 20 69. Do zobaczenia pod Warszawą!

Zobacz na YouTube, jak powstają domy w technologii szkieletu drewnianego

Dom szkieletowy Green Smart 120 - HHT1027
KONSTRUKCJA I TECHNOLOGIA

Całoroczne domy w szkielecie drewnianym

Nowoczesne domy z drewna

Budownictwo szkieletowe z roku na rok zyskuje na popularności ze względu na szybkość realizacji i niższe koszty budowy. Współczesna technologia szkieletu drewnianego to idealne rozwiązanie dla osób marzących o energooszczędnym i ekologicznym domu całorocznym w 3 miesiące.

Lekka szkieletowa konstrukcja, wykonana z gotowych, precyzyjnie wykonanych drewnianych elementów, w połączeniu z materiałami izolacyjnymi o wysokich parametrach, zapewnia komfort cieplny przez cały rok.

Dom szkieletowy Green Smart 120 - HHT1027
Materiał

Do budowy stosuje się wysokiej jakości drewno konstrukcyjne C-24 ze Skandynawii. Certyfikowane, czterostronnie strugane i komorowo suszone, zapewnia wyjątkową wytrzymałość i stabilność konstrukcji.

Drewno o wilgotności 15-18% gwarantuje odporność na warunki atmosferyczne bez potrzeby dodatkowej impregnacji.

Co więcej, charakteryzuje się wyjątkową odpornością na działanie ognia – w razie pożaru jego powierzchnia ulega zwęgleniu, co ogranicza rozprzestrzenianie się ognia i wysokiej temperatury na resztę budynku.

Dom szkieletowy Green Smart 120 - HHT1027
Szybka budowa domu

Gotowe elementy szkieletu domu są przytwierdzane do fundamentu (najczęściej płyty fundamentowej) przy użyciu specjalnych kotew oraz łączone ze sobą za pomocą hartowanych wkrętów, tworząc jednolitą konstrukcję obejmująca ściany, strop oraz więźbę dachową.

Dach pokryty jest papą lub blachą na rąbek.

W pełnej wersji domu wykonuje się wszystkie niezbędne instalacje: wodną, elektryczną oraz C.O.

Dom szkieletowy Green Smart 120 - HHT1027
Ściany

Ściany zewnętrzne składają się z kilku warstw:

  • elewacji wykonanej przy użyciu deski elewacyjnej,
  • przestrzeni wentylacyjnej w postaci kontrłaty,
  • wiatroizolacji (membrany paroprzepuszczalnej),
  • właściwej konstrukcji z drewna C-24 wypełnionej wełną mineralną 20-25 cm odporną na ogień,
  • płyt zamykających ścianę od strony wnętrza domu.

Ściany wewnętrzne również opierają się na konstrukcji drewnianej, izolowane są wełną mineralną i wykończone płytami drewnianymi i gipsowo-kartonowymi.

Dom szkieletowy Green Smart 120 - HHT1027
Ekologia i energooszczędność

Domy w technologii szkieletowej drewnianej to rozwiązanie zarówno energooszczędne, jak i ekologiczne.

Stosowane współcześnie materiał i rozwiązania technologiczne zapewniają doskonałą termoizolację, co minimalizuje straty ciepła i zmniejsza zapotrzebowanie na energię.

Drewno jako materiał odnawialny jest znacznie bardziej przyjazny dla środowiska. Budynki szkieletowe drewniane mają mniejszy ślad węglowy niż tradycyjne konstrukcje, a prefabrykacja elementów ogranicza ilość odpadów i zużycie energii.

Dom szkieletowy Green Smart 120 - HHT1027
Dane techniczne

Specyfikacja

Powierzchnie i wymiary Powierzchnie i wymiary

Powierzchnia użytkowa
Tooltip
Suma powierzchni wszystkich pomieszczeń mieszkalnych, pomniejszona o pow. garażu, kotłowni, strychu, piwnicy. Jest liczona w 100% dla pomieszczeń o wysokości powyżej 2,2 m, w 50% dla pomieszczeń o wys. 2,2-1,4 m i niewliczana dla niższych niż 1,4 m.

105,59 m²

Wysokość ściany kolankowej
Tooltip
Wysokość ściany podpierającej dach. Jej wysokość wpływa na powierzchnię użytkową kondygnacji, na której się znajduje.

1,30 m

Powierzchnia zabudowy
Tooltip
Powierzchnia zajmowana przez część na- oraz nadziemną budynku liczona, jako rzut pionowy budynku na działkę.

95,24 m²

Powierzchnia całkowita
Tooltip
Całkowita powierzchnia wszystkich kondygnacji budynku łącznie z elementami nośnymi, takimi jak ściany zewnętrzne (z ociepleniem), słupy, tarasy, itp.

120,37 m²

Powierzchnia dachu

98,92 m²

Kąt nachylenia dachu
Tooltip
Nachylenie połaci dachu głównego podawane w stopniach. Uwaga! W niektórych projektach występuje więcej niż jedno nachylenie dachu.

40°

Wysokość budynku
Tooltip
Wysokość liczona od części budynku położonej najniżej przy powierzchni terenu do najwyższego punktu dachu (kalenicy) z wyłączeniem kominów.

7,17 m

Szerokość elewacji

10,42 m

Długość elewacji

11,72 m

Min. szerokość działki
Tooltip
Najmniejsza możliwa szerokość działki niezbędna do wybudowania wybranego domu. Składa się z szerokości elewacji domu powiększonej z obu stron o 3 m dla ściany bez otworów drzwiowych/okiennych lub 4 m, dla ściany z otworami.

18,42 m

Min. długość działki
Tooltip
Najmniejsza możliwa długość działki niezbędna do wybudowania wybranego domu. Składa się z długości elewacji domu powiększonej z obu stron o 3 m dla ściany bez otworów drzwiowych/okiennych lub 4 m, dla ściany z otworami.

19,72 m

Energooszczędność Energooszczędność

Ep
Tooltip
Energia pierwotna określa ilość energii nieodnawialnej potrzebnej w ciągu roku do ogrzewania czy też ogrzania wody użytkowej z uwzględnieniem kosztów produkcji i transportu surowców energetycznych.

69,80 kWh/(m²rok)

Ek
Tooltip
Energia końcowa określa zapotrzebowanie budynku na energię niezbędną do uzyskania założonych parametrów, jak np. temperatura wewnątrz budynku.

53,30 kWh/(m²rok)

Ogrzewanie

po stronie klienta lub opcja dodatkowo płatna: klimatyzacja, maty grzewcze

Wentylacja

grawitacyjna

Technologia i materiały Technologia i materiały

Posadowienie budynku

po stronie klienta lub opcja dodatkowo płatna: płyta fundamentowa

Ściany zewnętrzne

drewno konstrukcyjne C24, wełna mineralna 20cm-25cm, deska elewacyjna

Ściany wewnętrzne

konstrukcja drewniana, wełna mineralna, płyty GK

Konstrukcja dachu

więźba dachowa drewno C24

Pokrycie dachu

blacha na rąbek

Elewacja

drewniana

Instalacje dodatkowe w
standardzie

po stronie klienta lub opcja dodatkowo płatna: fotowoltaika

DOMY GOTOWE

Zbuduj swój dom w 3 prostych krokach

Wybierasz dom,
przygotowujemy ofertę

Konfigurujemy i tworzymy dla Ciebie bezpłatną ofertę. Pomagamy w weryfikacji działki.

Podpisujesz umowę, rusza produkcja

Podpisujesz umowę z naszym partnerem na produkcję i montaż Twojego domu. Nie martwisz się o terminy i znasz koszty budowy.

Ciesz się swoim domem

W zależności od wybranej technologii budowy, Producent albo przywiezie gotowe elementy na Twoją działkę, albo – w przypadku metody murowanej - rozpocznie proces budowy domu od podstaw. Tobie pozostaną już tylko wewnętrzne prace wykończeniowe.

Dom w 3 krokach

NIE CZEKAJ DŁUŻEJ!

Pomożemy Ci zrealizować marzenie o domu - nawet w 3 miesiące!

Ikona zadzwoń

Zadzwoń

71 71 88 970

pon.-pt. 8:00-19:00

Zadzwoń teraz
Ikona list

Napisz do nas:

domygotowe@extradom.pl
lub
Wolne terminy!

Zobacz na żywo nasz gotowy dom!

Zanim podejmiesz decyzję, spotkaj się z nami na budowie i zobacz, jak realizowana jest taka inwestycja. Dzięki temu:

  • Dowiesz się, jak wygląda budowa i efekt finalny.
  • Skonsultujesz swoje pomysły z naszym ekspertem

Zobacz podobne domy gotowe

1

/

3

Zdjęcie Dom prefabrykowany DEX106
Dom prefabrykowany DEX106
Dodano!
Dodano!
Pow. użytkowa
106 m²
Pow. zabudowy
133,92 m²
Pokoje
3
732 950 zł 6 915 zł/m²
Zdjęcie Dom prefabrykowany DH127
Dom prefabrykowany DH127
Dodano!
Dodano!
Pow. użytkowa
104,71 m²
Pow. zabudowy
127,27 m²
Pokoje
3
602 100 zł 5 750 zł/m²
Zdjęcie Dom keramzytowy Essenzia 110
Pow. użytkowa
107 m²
Pow. zabudowy
130 m²
Pokoje
3
474 120 zł 4 431 zł/m²
Zdjęcie Dom prefabrykowany E.1
Dom prefabrykowany E.1
Dodano!
Dodano!
Pow. użytkowa
107,27 m²
Pow. zabudowy
128,25 m²
Pokoje
3
535 695 zł 4 994 zł/m²
Zdjęcie Dom prefabrykowany P.8
Dom prefabrykowany P.8
Dodano!
Dodano!
Pow. użytkowa
108,05 m²
Pow. zabudowy
169 m²
Pokoje
4
624 000 zł 5 775 zł/m²
Zdjęcie Dom keramzytowy Atrakcyjna Stodoła AS132G
Pow. użytkowa
108,09 m²
Pow. zabudowy
159,65 m²
Pokoje
3
635 500 zł 4 814 zł/m²
Zdjęcie Dom szkieletowy Spruce Smart 112
Pow. użytkowa
102,60 m²
Pow. zabudowy
84 m²
Pokoje
3
550 500 zł 5 365 zł/m²
Zdjęcie Dom keramzytowy Atrakcyjna Stodoła AS110
Pow. użytkowa
109,71 m²
Pow. zabudowy
128,09 m²
Pokoje
4
532 520 zł 4 854 zł/m²
Zdjęcie Dom szkieletowy Functional Smart 110
Pow. użytkowa
110,12 m²
Pow. zabudowy
144 m²
Pokoje
3
525 337 zł 4 771 zł/m²
Zdjęcie Dom keramzytowy EP1
Dom keramzytowy EP1
Dodano!
Dodano!
Pow. użytkowa
110,58 m²
Pow. zabudowy
131,86 m²
Pokoje
3
473 700 zł 4 284 zł/m²
Zdjęcie Dom prefabrykowany Parterowy 110A
Pow. użytkowa
110,71 m²
Pow. zabudowy
133,40 m²
Pokoje
3
465 000 zł 4 200 zł/m²
Zdjęcie Dom prefabrykowany Parterowy 100D
Pow. użytkowa
100,44 m²
Pow. zabudowy
122,08 m²
Pokoje
3
439 000 zł 4 371 zł/m²

Graficzne opracowanie rzutów poglądowych widocznych na karcie projektu zostało wykonane przez Extradom.pl. Prezentowane przez Extradom.pl wizualizacje wykonane zostały przez autora projektu i należy poczytywać je jedynie za przykład i propozycję wykończenia, wizję architektoniczną autora projektu. Ostateczne wykończenie budynku może nastąpić na wiele sposobów. Szczegółowe rozwiązania zastosowane w oferowanej dokumentacji - w tym również ilość, lokalizacje i wygląd okien, drzwi, kominów - mogą w niewielkim stopniu różnić się od prezentowanej wizualizacji budynku.

Extradom.pl Spółka z ograniczoną odpowiedzialnością z siedzibą przy ul. Jaworskiej 13, 53-612 Wrocław, wpisana do rejestru przedsiębiorców Krajowego Rejestru Sądowego przez Sąd Rejonowy dla Wrocławia-Fabrycznej we Wrocławiu, VI Wydział Gospodarczy Krajowego Rejestru Sądowego do pod numerem KRS 0000648746, numer NIP 895-17-18-333, o kapitale zakładowym 708 150,00 zł uprzejmie informuje, iż poprzez serwis Extradom.pl umożliwia m.in. zapoznanie się przez konsumentów z ofertą handlową Partnerów Extradom.pl, którzy stosują metody budowy domów przy wykorzystaniu różnego rodzaju technologie prefabrykacji bądź modułowe (tzw. „Gotowe domy”).

Extradom.pl nie prowadzi jednakże sprzedaży ani nie oferuje usług polegających na doradztwie finansowym, prawnym ani podatkowym w zakresie inwestycji realizowanych w technologiach tzw. „Gotowych domów”. Informacje prezentowane w serwisie Extradom.pl dotyczące Partnerów Extradom.pl oferujących realizację inwestycji w technologiach „Gotowych domów” lub podobnych mają charakter informacyjny i reklamowy.

Prezentowane w serwisie Extradom.pl informacje dotyczące stosowanych przez Partnerów metod budowy domów w technologii prefabrykacji bądź modułowej pochodzą od Partnerów Extradom.pl.

Extradom.pl sp. z o.o. jedynie umożliwia nawiązanie kontaktu przez Użytkownika z Partnerem Extradom.pl stosującym tego rodzaju technologie budowy domów i nie jest stroną umowy o roboty budowlane zawieranej przez Użytkownika Extradom.pl z Partnerem Extradom.pl.

Zadzwoń i poproś
o bezpłatną wycenę

71 718 89 70
REKLAMA
Zamknij