👉 Wiosenne rabaty + karta allegro 200 zł! 🔥

Koniec oferty za:

0dni

00godz.

00min.

00sek.

Sprawdź

Projekt stajni S23 Stajnia dla koni - 9 boksów SLN1381

Dodano!
Dodano!

Warstwy

Warstwy

Rzut parteru

Powierzchnia (m²)
Tooltip
Powierzchnia pomieszczenia
to ta, z której faktycznie możesz korzystać – skosy i niskie części poddasza są liczone częściowo lub wcale.
  1. 100% dla wysokości powyżej 2,2 m,
  2. 50% dla wysokości 1,4–2,2 m,
  3. nie liczymy poniżej 1,4 m.

Powierzchnia podłogi
Liczymy po obrysie pomieszczenia, bez względu na jego wysokość/skosy. Jeśli nie ma skosów to powierzchnia podłogi i pomieszczenia jest taka sama.
pomieszczenia i podłogi
podłogi
1. Korytarz
25,48
2. Korytarz
37,41
3. Korytarz
17,14
4. Boks
12
5. Boks
12
6. Boks
12
7. Myjnia dla koni
12,11
8. Solarium
12,15
9. Paszalnia
11,79
10. Boks dla klaczy
16
11. Skład słomy
12
12. Skład siana
12
13. Izolatka dla koni
12
14. Boks dla ogiera
12
15. Boks dla klaczy
16
16. Siodlarnia
11,79
17. Korytarz
5,90
18. Szatnia
10,40
19. Łazienka
3,20
20. Boks
12
21. Boks
12
22. Boks
12
23. Wiatrołap
2,12
24. Łazienka
3,38
25. Pokój dzienny + kuchnia
22,45
Razem
327,32
327,32
26. Wiata
41,28
Powierzchnia (m²)
Tooltip
Powierzchnia pomieszczenia
to ta, z której faktycznie możesz korzystać – skosy i niskie części poddasza są liczone częściowo lub wcale.
  1. 100% dla wysokości powyżej 2,2 m,
  2. 50% dla wysokości 1,4–2,2 m,
  3. nie liczymy poniżej 1,4 m.

Powierzchnia podłogi
Liczymy po obrysie pomieszczenia, bez względu na jego wysokość/skosy. Jeśli nie ma skosów to powierzchnia podłogi i pomieszczenia jest taka sama.
pomieszczenia i podłogi
podłogi
1. Pokój
14,01
2. Pomieszczenie gospodarcze
0,33
Razem
14,34
14,34

    Usytuowanie na działce

    Czy ten projekt pasuje na
    Twoją działkę?

    Chętnie to sprawdzimy!

    Dowiedz się:

    • czy zmieści się na niej wybrany przez Ciebie dom
    • jakie parametry musi spełniać dom według miejscowego planu zagospodarowania lub warunków zabudowy (np. kąt nachylenia i typ dachu, liczba kondygnacji itp.
    • jakie inne projekty pasują na Twoją działkę – znajdziemy je dla Ciebie!

Pow. użytkowa

341,66 m²

Pokoje

1

Łazienki i WC

2

Garaż

0

Min. szer. i dł. działki

28,2 x 37,58 m

Kąt dachu

30°

Konstrukcja

Murowana
więcej

S23 Stajnia dla koni - 9 boksów - SLN1381

ikona 341,66 m²
Powierzchnia użytkowa
ikona1
Pokoje (bez salonu)
ikona 2
Łazienki (z toaletami)
ikona 0
Liczba stanowisk garażowych
(z wiatą garażową)
ikona
Konstrukcja: Murowana

Cena projektu:

3 300 zł

Gwarancja najniższej ceny Gwarancja najniższej ceny Tooltip

Wydłużony czas realizacji Tooltip

100 dni na wymianę, 30 dni na zwrot

Darmowa dostawa - kurier, paczkomaty

Bezpłatne pozwolenie na zmiany

Dokumentacja zgodna z WT2021

Pokaż więcej (2)
Konsultant Masz pytania?
Zadzwoń
71 715 20 60

pon.-pt. 8-21, sob. 9-17

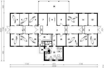
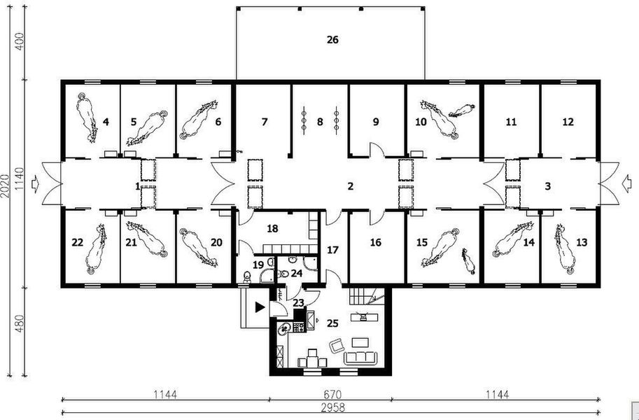
Parter - 327,32 m²

Parter projektu S23 Stajnia dla koni - 9 boksów

Zapytaj, co możesz zmienić

Powierzchnia (m²)
Tooltip
Powierzchnia pomieszczenia
to ta, z której faktycznie możesz korzystać – skosy i niskie części poddasza są liczone częściowo lub wcale.
  1. 100% dla wysokości powyżej 2,2 m,
  2. 50% dla wysokości 1,4–2,2 m,
  3. nie liczymy poniżej 1,4 m.

Powierzchnia podłogi
Liczymy po obrysie pomieszczenia, bez względu na jego wysokość/skosy. Jeśli nie ma skosów to powierzchnia podłogi i pomieszczenia jest taka sama.
pomieszczenia i podłogi
podłogi
1. Korytarz
25,48
2. Korytarz
37,41
3. Korytarz
17,14
4. Boks
12
5. Boks
12
6. Boks
12
7. Myjnia dla koni
12,11
8. Solarium
12,15
9. Paszalnia
11,79
10. Boks dla klaczy
16
11. Skład słomy
12
12. Skład siana
12
13. Izolatka dla koni
12
14. Boks dla ogiera
12
15. Boks dla klaczy
16
16. Siodlarnia
11,79
17. Korytarz
5,90
18. Szatnia
10,40
19. Łazienka
3,20
20. Boks
12
21. Boks
12
22. Boks
12
23. Wiatrołap
2,12
24. Łazienka
3,38
25. Pokój dzienny + kuchnia
22,45
Razem
327,32
327,32
26. Wiata
41,28

Natychmiast, otrzymasz PDF-y
z rzutami wszystkich kondygnacji

Poddasze - 14,34 m²

Poddasze projektu S23 Stajnia dla koni - 9 boksów

Zapytaj, co możesz zmienić

Powierzchnia (m²)
Tooltip
Powierzchnia pomieszczenia
to ta, z której faktycznie możesz korzystać – skosy i niskie części poddasza są liczone częściowo lub wcale.
  1. 100% dla wysokości powyżej 2,2 m,
  2. 50% dla wysokości 1,4–2,2 m,
  3. nie liczymy poniżej 1,4 m.

Powierzchnia podłogi
Liczymy po obrysie pomieszczenia, bez względu na jego wysokość/skosy. Jeśli nie ma skosów to powierzchnia podłogi i pomieszczenia jest taka sama.
pomieszczenia i podłogi
podłogi
1. Pokój
14,01
2. Pomieszczenie gospodarcze
0,33
Razem
14,34
14,34

Natychmiast, otrzymasz PDF-y
z rzutami wszystkich kondygnacji

Zamów rysunki szczegółowe

Zapoznaj się ze szczegółowymi rysunkami rzutów kondygnacji w PDF dla tego projektu.

Podobne projekty (1)

Zdjęcie 1 projektu S23A Stajnia dla koni - 9 boksów SLN1396
341,66 m²
1
2
0

3 300 zł

Dane techniczne projektu

Powierzchnie i wymiary Powierzchnie i wymiary

Powierzchnia użytkowa
Tooltip
Suma powierzchni wszystkich pomieszczeń mieszkalnych, pomniejszona o pow. garażu, kotłowni, strychu, piwnicy. Jest liczona w 100% dla pomieszczeń o wysokości powyżej 2,2 m, w 50% dla pomieszczeń o wys. 2,2-1,4 m i niewliczana dla niższych niż 1,4 m.

341,66 m²

Powierzchnia zabudowy
Tooltip
Powierzchnia zajmowana przez część na- oraz nadziemną budynku liczona, jako rzut pionowy budynku na działkę.

369,37 m²

Powierzchnia całkowita
Tooltip
Całkowita powierzchnia wszystkich kondygnacji budynku łącznie z elementami nośnymi, takimi jak ściany zewnętrzne (z ociepleniem), słupy, tarasy, itp.

401,53 m²

Kubatura brutto
Tooltip
Zazwyczaj jest to suma kubatur (objętości) wszystkich pomieszczeń budynku, liczonych po zewnętrznym obrysie murów (z ociepleniem).

1 945 m³

Kąt nachylenia dachu
Tooltip
Nachylenie połaci dachu głównego podawane w stopniach. Uwaga! W niektórych projektach występuje więcej niż jedno nachylenie dachu.

30°

Wysokość budynku
Tooltip
Wysokość liczona od części budynku położonej najniżej przy powierzchni terenu do najwyższego punktu dachu (kalenicy) z wyłączeniem kominów.

6,92 m

Szerokość elewacji

29,58 m

Długość elewacji

20,20 m

Min. szerokość działki
Tooltip
Najmniejsza możliwa szerokość działki niezbędna do wybudowania wybranego domu. Składa się z szerokości elewacji domu powiększonej z obu stron o 3 m dla ściany bez otworów drzwiowych/okiennych lub 4 m, dla ściany z otworami.

28,20 m

Min. długość działki
Tooltip
Najmniejsza możliwa długość działki niezbędna do wybudowania wybranego domu. Składa się z długości elewacji domu powiększonej z obu stron o 3 m dla ściany bez otworów drzwiowych/okiennych lub 4 m, dla ściany z otworami.

37,58 m

Technologia i konstrukcja Technologia i konstrukcja

Konstrukcja

Murowana

Opis szczegółowy

Technologia tradycyjna : - szerokość komunikacji : 2,8m - wymiary boksów: 3,0m x 3,5m, 4m x 4m - wymiary wrot drewnianych 2,5m x 2,5m - ściany zewnętrzne murowane grubości 25 cm. część mieszkalna 30cm + 10cm styropian - ściany wewnętrzne działowe murowane grubości 12 cm. - wszystkie ściany wykonane z pustaków ceramicznych "POROTHERM". - dach wielospadowy o kącie 30, 40, 15° - dach pokryty dachówką ceramiczną. - konstrukcja więźby dachowej drewniana, płatwiowo-kleszczowa - projekt dosiada kominek - w łazience zastosowano przepływowy podgrzewacz wody umywalkowo natryskowy.

Reklama
Okna i drzwi tarasowe

Nowoczesne okna PVC i aluminiowe WIŚNIOWSKI – doskonała izolacja, elegancki design i niezrównana trwałość.

Wiśniowski
Sprawdź parametry!
Okna dachowe

Oferujemy bezpłatne konsultacje w zakresie wszystkich rozwiązań VELUX. Wyceny, porady dotyczące doboru okien i rolet zewnętrznych - sprawdź!

Velux
Sprawdź szczegóły
Płytki ceramiczne i gresy

Od małych formatów po wielkoformatowe gresy. Marmur, beton, drewno, kamień, lastryko czy cegiełki zamówisz wygodnie online z szybką dostawą.

Ceramzet
Sprawdź ofertę
Elewacja

Kup przez internet wszystkie materiały potrzebne do wykonania elewacji: styropian, płyty PIR, XPS, kleje, tynki. Najlepsze marki w super cenach z dostawą pod dom.

Hurtownia styropianu
Sprawdź ofertę!
Drzwi

Ciepłe drzwi WIŚNIOWSKI z kontrolą dostępu. Szeroka gama wzorów i kolorów.

Wiśniowski
Wybierz najlepsze
Bramy garażowe

Automatyczne bramy garażowe segmentowe i uchylne WIŚNIOWSKI na wymiar i z systemem smart home w standardzie.

Wiśniowski
Sprawdź ofertę!
Armatura i ceramika łazienkowa

Topowi producenci. Baterie łazienkowe, zestawy natynkowe i podtynkowe, umywalki, wanny, miski WC oraz kabiny zamówisz kompleksowo online.

Ceramzet II
Dowiedz się więcej
Rekuperacja

Alnor - kompletny system rekuperacji. Dobierz idealne rozwiązanie dla Twojego domu!

Alnor
Dobierz rekuperator
Dach

Producent stalowych pokryć dachowych i systemów elewacyjnych. Precyzja wykonania, trwałość na lata i szybki montaż doceniany przez dekarzy. Postaw na solidny dach Budmat.

Budmat
Sprawdź ofertę
Ogrodzenie

Nowoczesne stalowe ogrodzenia Budmat - estetyka, bezpieczeństwo i trwałość na lata. Systemowe rozwiązania na wymiar, dopasowane do każdego domu.

Budmat
Sprawdź ofertę

Dodatki do projektu

Dodatki możesz zamówić w koszyku lub telefonicznie u naszego Doradcy.

Ikona

Bestseller

Kosztorys

450 zł

Ikona

Bestseller

Dodatkowy egzemplarz projektu

350 zł

Ikona

Bestseller

Elektroniczna wersja projektu

600 zł

Opis projektu stajni
S23 Stajnia dla koni - 9 boksów

Ogromna stajnia dla osób pragnących zająć się profesjonalna hodowlą koni, którą będzie się rozwijać. W tym niesamowitym projekcie przewidziano także część mieszkalną. Sama stajnia została podzielona niejako na cztery części. Idąc szeroką komunikacją od lewej strony, miniemy sześć obszernych boksów (każdy o powierzchni 12m2), rozmieszonych przy północnej i południowej ścianie budynku. W środkowej części projektu przewidziano najwięcej różnorodnych pomieszczeń pomocniczych. Przy północnej ścianie budynku mamy myjnię dla koni, solarium oraz paszalnię. Po przeciwnej stronie natomiast, w częsci należącej do stajni, mamy przebieralnię z łazienką, siodlarnię oraz komunikację, prowadzącą do umieszczonej w uroczym wykuszu, częęci mieszkalnej, gdzie jest obszerna łazienka i pokój z aneksem kuchennym. Istnieje dodatkowe wejście przewidziane tylko i wyłącznie dla tej części budynku. Trzecia część stajni będzie służyła przede wszystkim rozwijaniu hodowli. Ustawiono tutaj naprzeciwko siebie dwa odrębne boksy dla klaczy, spełniające wszelkie wymogi przestrzenne potrzebne w takim wypadku, boks dla ogiera i wydzielono izolatkę. Oprócz tych pomieszczeń są jeszcze składy: słomy i siana. Wszystkie pomieszczenia w budynku są połączone szeroką komunikacją poprowadzoną od wschodu ku zachodowi budynku. Jest to niezwykły projekt, wymagający sporych nakładów finansowych przeznaczony dla osób, które są zdecydowane zająć się profesjonalnie hodowlą koni i są gotowe zainwestować w to przedsięwzięcie duże nakłady finansowe. Może zyski okażą się wyższe, niż inwestycja? Może ten projekt umożliwi Ci realizację marzeń? Część mieszkalna, przebieralnia oraz siodlarnia ogrzewana. Czynnik grzewczy z wkładu kominkowego rozprowadzony jest do rozdzielacza i dalej do grzejników.
Czytaj więcej

Informacje dodatkowe

Projekt nie spełnia norm związanych z Eurokodami. Zapytaj Doradcę o dostępność projektu w wersji dostosowanej do Eurokodów. Projekt stanowi aktualną i pełną dokumentację zawierającą część architektoniczno - budowlaną, konstrukcyjną wykonawczą, instalacji wewnętrznych, elektrycznych i teletechnicznych, charakterystykę energetyczną oraz uprawnienia projektantów. Dokumentacja zabezpieczona jest specjalną plombą, której usunięcie uniemożliwi jej zwrot. Zapraszamy do zamówienia przed zakupem rysunków szczegółowych projektu oraz analizy posiadanej działki w celu upewnienia się, że wybrany projekt domu idealnie na nią pasuje. Wymiana rozplombowanego projektu podlega opłacie manipulacyjnej w wysokości 100 zł. O szczegóły dopytaj w Centrum Obsługi Klienta.

Czytaj więcej

Polecani producenci

Kompletne systemy rekuperacji

tło producenta

Alnor

Dowiedz się więcej

Prefabrykowane konstrukcje dachowe

tło producenta

WIĄZAR POLSKA

Zobacz więcej

Sprawdź nową generację okien GREENVIEW

tło producenta

FAKRO

Sprawdź nową generację okien GREENVIEW

Styropian, tynki, farby, kleje

tło producenta

Termo Organika

Poznaj super jakość

Okna, drzwi, osłony przeciwsłoneczne

tło producenta

Aluprof

Sprawdź ofertę
Zobacz więcej

Społeczność projektu stajni
S23 Stajnia dla koni - 9 boksów w budowie

Dołącz do społeczności osób, które budują ten dom lub są zainteresowane jego budową.

  • Oglądaj zdjęcia z budowy
  • Zadawaj pytania
  • Wymieniaj się doświadczeniami

Opinie o projekcie stajni S23 Stajnia dla koni - 9 boksów

Ocena

Ten projekt nie ma jeszcze opinii, bądź pierwszy!

Dodaj opinię

ASYSTENT WYBORU PROJEKTU

Szukasz idealnego projektu? Znajdziemy go dla Ciebie!

Doradca na podstawie Twoich wskazówek przygotuje spersonalizowaną listę projektów

Graficzne opracowanie rzutów poglądowych widocznych na karcie projektu zostało wykonane przez Extradom.pl. Prezentowane przez Extradom.pl wizualizacje wykonane zostały przez autora projektu i należy poczytywać je jedynie za przykład i propozycję wykończenia, wizję architektoniczną autora projektu. Ostateczne wykończenie budynku może nastąpić na wiele sposobów. Szczegółowe rozwiązania zastosowane w oferowanej dokumentacji - w tym również ilość, lokalizacje i wygląd okien, drzwi, kominów - mogą w niewielkim stopniu różnić się od prezentowanej wizualizacji budynku.

REKLAMA
Zamknij