👉 Rozgrzewające rabaty! 🔥

Projekt domu WM21 Podcieniowy GDB1036

Dodano!
Dodano!

Warstwy

Warstwy

Rzut parteru

Powierzchnia (m²)
Tooltip
Powierzchnia pomieszczenia
to ta, z której faktycznie możesz korzystać – skosy i niskie części poddasza są liczone częściowo lub wcale.
  1. 100% dla wysokości powyżej 2,2 m,
  2. 50% dla wysokości 1,4–2,2 m,
  3. nie liczymy poniżej 1,4 m.

Powierzchnia podłogi (wartość w nawiasie)
Liczymy po całym obrysie pomieszczenia, bez względu na jego wysokość.
110,38
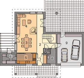
1. Wiatrołap
4,56
2. Korytarz
12,17
3. Jadalnia
16,59
4. Pokój dzienny
22,62
5. Kuchnia
9,22
6. Spiżarnia
5,81
7. Wc
1,73
8. Pomieszczenie gospodarcze
5,29
9. Garaż dwustanowiskowy
32,39
Powierzchnia (m²)
Tooltip
Powierzchnia pomieszczenia
to ta, z której faktycznie możesz korzystać – skosy i niskie części poddasza są liczone częściowo lub wcale.
  1. 100% dla wysokości powyżej 2,2 m,
  2. 50% dla wysokości 1,4–2,2 m,
  3. nie liczymy poniżej 1,4 m.

Powierzchnia podłogi (wartość w nawiasie)
Liczymy po całym obrysie pomieszczenia, bez względu na jego wysokość.
(91,39)
62,33
11. Korytarz
5,26
12. Pokój
(22,39)
14,92
13. Pokój
(16,81)
11,48
14. Pokój
(14,02)
9,58
15. Pokój
(17,76)
11,89
16. Łazienka
(7,72)
4,22
17. Pomieszczenie gospodarcze
(7,43)
4,98

    Usytuowanie na działce

    Czy ten projekt pasuje na
    Twoją działkę?

    Chętnie to sprawdzimy!

    Dowiedz się:

    • czy zmieści się na niej wybrany przez Ciebie dom
    • jakie parametry musi spełniać dom według miejscowego planu zagospodarowania lub warunków zabudowy (np. kąt nachylenia i typ dachu, liczba kondygnacji itp.
    • jakie inne projekty pasują na Twoją działkę – znajdziemy je dla Ciebie!

Pow. użytkowa

172,71 m²

Pokoje

4

Łazienki i WC

2

Garaż

2

Min. szer. i dł. działki

23,6 x 21,20 m

Kąt dachu

40°
więcej

WM21 Podcieniowy - GDB1036

ikona 172,71 m²
Powierzchnia użytkowa
ikona4
Pokoje (bez salonu)
ikona 2
Łazienki (z toaletami)
ikona 2
Liczba stanowisk garażowych
(z wiatą garażową)

Projekt został
wycofany z oferty

W razie pytań prosimy o kontakt
z Centrum Obsługi Klienta
Konsultant Masz pytania?
Zadzwoń
71 715 20 02

pon.-pt. 8-21, sob. 9-17

Parter - 110,38 m²

Parter projektu WM21 Podcieniowy

Zapytaj, co możesz zmienić

Powierzchnia (m²)
Tooltip
Powierzchnia pomieszczenia
to ta, z której faktycznie możesz korzystać – skosy i niskie części poddasza są liczone częściowo lub wcale.
  1. 100% dla wysokości powyżej 2,2 m,
  2. 50% dla wysokości 1,4–2,2 m,
  3. nie liczymy poniżej 1,4 m.

Powierzchnia podłogi (wartość w nawiasie)
Liczymy po całym obrysie pomieszczenia, bez względu na jego wysokość.
(110,38)
110,38
1. Wiatrołap
4,56
2. Korytarz
12,17
3. Jadalnia
16,59
4. Pokój dzienny
22,62
5. Kuchnia
9,22
6. Spiżarnia
5,81
7. Wc
1,73
8. Pomieszczenie gospodarcze
5,29
9. Garaż dwustanowiskowy
32,39

Piętro 1 - 62,33 m²

Piętro 1 projektu WM21 Podcieniowy

Zapytaj, co możesz zmienić

Powierzchnia (m²)
Tooltip
Powierzchnia pomieszczenia
to ta, z której faktycznie możesz korzystać – skosy i niskie części poddasza są liczone częściowo lub wcale.
  1. 100% dla wysokości powyżej 2,2 m,
  2. 50% dla wysokości 1,4–2,2 m,
  3. nie liczymy poniżej 1,4 m.

Powierzchnia podłogi (wartość w nawiasie)
Liczymy po całym obrysie pomieszczenia, bez względu na jego wysokość.
(91,39)
62,33
11. Korytarz
5,26
12. Pokój
(22,39)
14,92
13. Pokój
(16,81)
11,48
14. Pokój
(14,02)
9,58
15. Pokój
(17,76)
11,89
16. Łazienka
(7,72)
4,22
17. Pomieszczenie gospodarcze
(7,43)
4,98

Podobne projekty (7422)

Zobacz wszystkie
NIŻSZA CENA ✂️
Zdjęcie 1 projektu Salsa WAH1726
Salsa
Dodano!
Dodano!
158,62 m²
5
3
2

5 720 zł

7 150 zł

Tooltip

Cena regularna

5 362 zł najniższa cena
Tooltip

Najniższa cena z 30 dni
przed obniżką

NIŻSZA CENA ✂️
Zdjęcie 1 projektu Denar BSA2207
Denar
Dodano!
Dodano!
160,40 m²
4
3
1

5 099 zł

5 449 zł

Tooltip

Cena regularna

4 949 zł najniższa cena
Tooltip

Najniższa cena z 30 dni
przed obniżką

NIŻSZA CENA ✂️
Zdjęcie 1 projektu Rufus BBI1018
Rufus
Dodano!
Dodano!
183,70 m²
3
3
0

6 500 zł

6 800 zł

Tooltip

Cena regularna

6 350 zł najniższa cena
Tooltip

Najniższa cena z 30 dni
przed obniżką

NIŻSZA CENA ✂️
Zdjęcie 1 projektu Aleksandria Tura (1329) KRD2457
Aleksandria Tura (1329)
Dodano!
Dodano!
149,60 m²
5
3
0

4 540 zł

4 890 zł

Tooltip

Cena regularna

4 340 zł najniższa cena
Tooltip

Najniższa cena z 30 dni
przed obniżką

Zdjęcie 1 projektu Porto BBE1043
Porto
Dodano!
Dodano!
170,10 m²
5
2
2

4 500 zł

NIŻSZA CENA ✂️
Zdjęcie 1 projektu Tytus BSA2317
Tytus
Dodano!
Dodano!
143,49 m²
3
2
1

5 899 zł

6 249 zł

Tooltip

Cena regularna

5 749 zł najniższa cena
Tooltip

Najniższa cena z 30 dni
przed obniżką

NIŻSZA CENA ✂️
Zdjęcie 1 projektu BS-07 wariant 1 dwulokalowy JGC1205
BS-07 wariant 1 dwulokalowy
Dodano!
Dodano!
154,10 m²
7
4
0

4 630 zł

4 730 zł

Tooltip

Cena regularna

4 530 zł najniższa cena
Tooltip

Najniższa cena z 30 dni
przed obniżką

NIŻSZA CENA ✂️
Zdjęcie 1 projektu BW-37 wariant 2 z lokalem JGC1147
BW-37 wariant 2 z lokalem
Dodano!
Dodano!
185,20 m²
3
4
0

4 630 zł

4 730 zł

Tooltip

Cena regularna

4 530 zł najniższa cena
Tooltip

Najniższa cena z 30 dni
przed obniżką

Elewacje

Frontowa
Tylna
Lewa
Prawa

Usytuowanie na działce

Czy ten projekt pasuje na
Twoją działkę?

Chętnie to sprawdzimy!

Czy ten projekt pasuje na
Twoją działkę?

Chętnie to sprawdzimy!

Dowiedz się:

  • czy zmieści się na niej wybrany przez Ciebie dom
  • jakie parametry musi spełniać dom według miejscowego planu zagospodarowania lub warunków zabudowy (np. kąt nachylenia i typ dachu, liczba kondygnacji itp.
  • jakie inne projekty pasują na Twoją działkę – znajdziemy je dla Ciebie!
Autor: Wm

Dane techniczne projektu

Powierzchnie i wymiary Powierzchnie i wymiary

Powierzchnia użytkowa
Tooltip
Suma powierzchni wszystkich pomieszczeń mieszkalnych, pomniejszona o pow. garażu, kotłowni, strychu, piwnicy. Jest liczona w 100% dla pomieszczeń o wysokości powyżej 2,2 m, w 50% dla pomieszczeń o wys. 2,2-1,4 m i niewliczana dla niższych niż 1,4 m.

172,71 m²

Powierzchnia zabudowy
Tooltip
Powierzchnia zajmowana przez część na- oraz nadziemną budynku liczona, jako rzut pionowy budynku na działkę.

166,40 m²

Kąt nachylenia dachu
Tooltip
Nachylenie połaci dachu głównego podawane w stopniach. Uwaga! W niektórych projektach występuje więcej niż jedno nachylenie dachu.

40°

Wysokość budynku
Tooltip
Wysokość liczona od części budynku położonej najniżej przy powierzchni terenu do najwyższego punktu dachu (kalenicy) z wyłączeniem kominów.

7,89 m

Min. szerokość działki
Tooltip
Najmniejsza możliwa szerokość działki niezbędna do wybudowania wybranego domu. Składa się z szerokości elewacji domu powiększonej z obu stron o 3 m dla ściany bez otworów drzwiowych/okiennych lub 4 m, dla ściany z otworami.

23,60 m

Min. długość działki
Tooltip
Najmniejsza możliwa długość działki niezbędna do wybudowania wybranego domu. Składa się z długości elewacji domu powiększonej z obu stron o 3 m dla ściany bez otworów drzwiowych/okiennych lub 4 m, dla ściany z otworami.

21,20 m

Energooszczędność Energooszczędność

Oze Czym jest OZE (Odnawialne Źródło Energii)?
Warunki techniczne

Projekt zgody z WT 2021

Technologia i konstrukcja Technologia i konstrukcja

Opis szczegółowy

Projekt domu WM21 Podcieniowy został wyróżniony w Ogólnopolskim Konkursie Architektonicznym SARP nr 920 pt "Kształtowanie tożsamości kulturowej współczesnej zabudowy Kaszub i Kociewia" w grudniu 2001 roku. Dom WM21 Podcieniowy ma dwa podcienia: szeroki podcień frontowy i narożny podcień od strony ogrodu. Podcień ogrodowy jest właściwie rodzajem otwartego pokoju ogrodowego z szerokim tarasem. Dom ma prostą konstrukcję szkieletową ze słupami dźwigającymi dwuspadowy dach. Zastosowany materiał budowlany podkreśla zasadę kompozycji budynku: cokół i tarasy podcieni wykonane są z kamienia, bo co ciężkie leży na ziemi. ściany parteru są wymurowane i obłożone klinkierem lub są otynkowane na biało. Szkielet konstrukcyjny złożony ze słupów i belek pozostaje szaro - betonowy, co podkreśla prostotę koncepcji. Dom choć nowoczesny ma tradycyjne proporcje i jednoznaczną zgodność wyglądu każdego jego elementu z właściwościami materiału i konstrukcji. Układ funkcjonalny wnętrza tworzą dwie przecinające się „drogi życia” domu. Pierwsza to biegnie od sieni przy podcieniu frontowym, obok jadalni, schodów na górę, salonu z kominkiem i prowadzi do podcienia ogrodowego. Druga droga wiedzie od garażu, obok kotłowni i toalety do kuchni. Drogi te przecinają się przy schodach na poddasze i obok centralnego miejsca domu, jakie zajmuje stół w jadalni i kominek. Specjalne wejście gospodarcze do ogrodu znajduje się przy kuchni. Meble ogrodowe i grilla lepiej przechowywać w garażu, do którego można wejść z tarasu. Na poddaszu znajdują się sypialnie, garderoby i łazienki. Można je inaczej wydzielić ścianami działowymi. Podcienia sprawiają, że dom wtapia się w przestrzeń otoczenia zarówno od frontu jak i od ogrodu. Od frontu podcień zaprasza do wejścia, a od ogrodu sprawia, że można przebywać na zewnątrz domu, mieć bliski kontakt z ogrodem i jednocześnie znajdować się pod ochroną dachu i w zacisznym intymnym zaułku. Nic się nie stanie pozostawionej tu książce, a imprezy można prowadzić bez zmoczenia nagłym deszczem. Chociaż, siedząc w fotelu bujanym, z podcienia frontowego można prowadzić sąsiedzkie życie towarzyskie. Dom podcieniowy jest jednym z charakterystycznych typów tradycyjnej architektury naszego regionu europy. Prezentowany projekt jest propozycją zbudowania jego współczesnej formy łączącej walory funkcjonalnego mieszkania z tradycyjna bryłą z podcieniami. Dom powinien być lokalizowany na działce tak, by wejście było z kierunków wschodnich, północnych i zachodnich. Wejście do domu od południa jest niekorzystne. Projekt Domu WM21 to projekt o wyjątkowych możliwościach. w dalszej części strony znajdują się warianty rozbudowy: O skrzydło z apartamentami (pod wynajem, dla letników) o usługi (sklep, biuro, pracownię) lub dla drugiego pokolenia. Projekt wymaga indywidualnego opracowania. Szczegółowe informacje pod nr tel. (58)34.56.926 lub via email office@wm.com.pl

Reklama
Okna i drzwi tarasowe

Nowoczesne okna PVC i aluminiowe WIŚNIOWSKI – doskonała izolacja, elegancki design i niezrównana trwałość.

Wiśniowski
Sprawdź parametry!
Okna dachowe

Oferujemy bezpłatne konsultacje w zakresie wszystkich rozwiązań VELUX. Wyceny, porady dotyczące doboru okien i rolet zewnętrznych - sprawdź!

Velux
Sprawdź szczegóły
Dach

Producent stalowych pokryć dachowych i elewacyjnych - 40 lat doświadczenia. Zbuduj solidny dach z nami!

Blachy Pruszyński
Sprawdź szczegóły
Płytki ceramiczne i gresy

Od małych formatów po wielkoformatowe gresy. Marmur, beton, drewno, kamień, lastryko czy cegiełki zamówisz wygodnie online z szybką dostawą.

Ceramzet
Sprawdź ofertę
Drzwi

Ciepłe drzwi WIŚNIOWSKI z kontrolą dostępu. Szeroka gama wzorów i kolorów.

Wiśniowski
Wybierz najlepsze
Bramy garażowe

Automatyczne bramy garażowe segmentowe i uchylne WIŚNIOWSKI na wymiar i z systemem smart home w standardzie.

Wiśniowski
Sprawdź ofertę!
Armatura i ceramika łazienkowa

Topowi producenci. Baterie łazienkowe, zestawy natynkowe i podtynkowe, umywalki, wanny, miski WC oraz kabiny zamówisz kompleksowo online.

Ceramzet II
Dowiedz się więcej
Rekuperacja

Alnor - kompletny system rekuperacji. Dobierz idealne rozwiązanie dla Twojego domu!

Alnor
Dobierz rekuperator
Gruntowe pompy ciepła

Przeprowadzimy kompletną instalację najbardziej oszczędnego źródła ciepła w Twoim nowym domu - gruntowej pompy ciepła. Od dokumentacji, pozwoleń, po odwierty i instalację.

Geothermal Solutions
Dowiedz się więcej

Gotowe domy modułowe (113)

Zobacz wszystkie
Stan deweloperski nawet w 6 miesięcy Gwarancja stałej ceny
Zdjęcie 1 projektu Dom prefabrykowany P.6 HPK1005
Pow. użytkowa
176,69 m²
Pokoje
4
916 600 zł 5 188 zł/m²
Zdjęcie 1 projektu Dom szkieletowy Viking Smart 220 HHT1032
Pow. użytkowa
163,86 m²
Pokoje
4
1 095 606 zł 6 686 zł/m²
Zdjęcie 1 projektu Dom prefabrykowany P.4 bez okapu HPK1003
Pow. użytkowa
162,18 m²
Pokoje
4
701 000 zł 4 322 zł/m²
Zdjęcie 1 projektu Dom prefabrykowany P.4 z okapem HPK1014
Pow. użytkowa
162,18 m²
Pokoje
5
710 500 zł 4 381 zł/m²
Zdjęcie 1 projektu Dom prefabrykowany Stodoła 180B HFX1028
Pow. użytkowa
185,90 m²
Pokoje
5
659 000 zł 3 545 zł/m²
Zdjęcie 1 projektu Dom prefabrykowany P.2 HPK1001
Pow. użytkowa
159,18 m²
Pokoje
5
832 200 zł 5 228 zł/m²
Zdjęcie 1 projektu Dom prefabrykowany Stodoła 180C HFX1029
Pow. użytkowa
186,60 m²
Pokoje
5
659 000 zł 3 532 zł/m²
Zdjęcie 1 projektu Dom prefabrykowany Stodoła 180A HFX1027
Pow. użytkowa
186,60 m²
Pokoje
5
659 000 zł 3 532 zł/m²

Opis projektu domu
WM21 Podcieniowy

Projekt domu WM21 Podcieniowy został wyróżniony w Ogólnopolskim Konkursie Architektonicznym SARP nr 920 pt "Kształtowanie tożsamości kulturowej współczesnej zabudowy Kaszub i Kociewia" w grudniu 2001 roku. Dom WM21 Podcieniowy ma dwa podcienia: szeroki podcień frontowy i narożny podcień od strony ogrodu. Podcień ogrodowy jest właściwie rodzajem otwartego pokoju ogrodowego z szerokim tarasem. Dom ma prostą konstrukcję szkieletową ze słupami dźwigającymi dwuspadowy dach. Zastosowany materiał budowlany podkreśla zasadę kompozycji budynku: cokół i tarasy podcieni wykonane są z kamienia, bo co ciężkie leży na ziemi. ściany parteru są wymurowane i obłożone klinkierem lub są otynkowane na biało. Szkielet konstrukcyjny złożony ze słupów i belek pozostaje szaro - betonowy, co podkreśla prostotę koncepcji. Dom choć nowoczesny ma tradycyjne proporcje i jednoznaczną zgodność wyglądu każdego jego elementu z właściwościami materiału i konstrukcji. Układ funkcjonalny wnętrza tworzą dwie przecinające się „drogi życia” domu. Pierwsza to biegnie od sieni przy podcieniu frontowym, obok jadalni, schodów na górę, salonu z kominkiem i prowadzi do podcienia ogrodowego. Druga droga wiedzie od garażu, obok kotłowni i toalety do kuchni. Drogi te przecinają się przy schodach na poddasze i obok centralnego miejsca domu, jakie zajmuje stół w jadalni i kominek. Specjalne wejście gospodarcze do ogrodu znajduje się przy kuchni. Meble ogrodowe i grilla lepiej przechowywać w garażu, do którego można wejść z tarasu. Na poddaszu znajdują się sypialnie, garderoby i łazienki. Można je inaczej wydzielić ścianami działowymi. Podcienia sprawiają, że dom wtapia się w przestrzeń otoczenia zarówno od frontu jak i od ogrodu. Od frontu podcień zaprasza do wejścia, a od ogrodu sprawia, że można przebywać na zewnątrz domu, mieć bliski kontakt z ogrodem i jednocześnie znajdować się pod ochroną dachu i w zacisznym intymnym zaułku. Nic się nie stanie pozostawionej tu książce, a imprezy można prowadzić bez zmoczenia nagłym deszczem. Chociaż, siedząc w fotelu bujanym, z podcienia frontowego można prowadzić sąsiedzkie życie towarzyskie. Dom podcieniowy jest jednym z charakterystycznych typów tradycyjnej architektury naszego regionu europy. Prezentowany projekt jest propozycją zbudowania jego współczesnej formy łączącej walory funkcjonalnego mieszkania z tradycyjna bryłą z podcieniami. Dom powinien być lokalizowany na działce tak, by wejście było z kierunków wschodnich, północnych i zachodnich. Wejście do domu od południa jest niekorzystne. Projekt Domu WM21 to projekt o wyjątkowych możliwościach. w dalszej części strony znajdują się warianty rozbudowy: O skrzydło z apartamentami (pod wynajem, dla letników) o usługi (sklep, biuro, pracownię) lub dla drugiego pokolenia. Projekt wymaga indywidualnego opracowania. Szczegółowe informacje pod nr tel. (58)34.56.926 lub via email office@wm.com.pl
Czytaj więcej

Polecani producenci

Prefabrykowane konstrukcje dachowe

tło producenta

WIĄZAR POLSKA

Zobacz więcej

Sprawdź nową generację okien GREENVIEW

tło producenta

FAKRO

Sprawdź nową generację okien GREENVIEW

Styropian, tynki, farby, kleje

tło producenta

Termo Organika

Poznaj super jakość

Okna, drzwi, osłony przeciwsłoneczne

tło producenta

Aluprof

Sprawdź ofertę

Kompletne systemy rekuperacji

tło producenta

Alnor

Dowiedz się więcej

Sprawdź nowy system DACHRYNNA

tło producenta

Galeco

Sprawdź ofertę
Zobacz więcej

Społeczność projektu domu
WM21 Podcieniowy w budowie

Dołącz do społeczności osób, które budują ten dom lub są zainteresowane jego budową.

  • Oglądaj zdjęcia z budowy
  • Zadawaj pytania
  • Wymieniaj się doświadczeniami

Opinie o projekcie domu WM21 Podcieniowy

Ocena

Ten projekt nie ma jeszcze opinii, bądź pierwszy!

Dodaj opinię

ASYSTENT WYBORU PROJEKTU

Szukasz idealnego projektu? Znajdziemy go dla Ciebie!

Doradca na podstawie Twoich wskazówek przygotuje spersonalizowaną listę projektów

Graficzne opracowanie rzutów poglądowych widocznych na karcie projektu zostało wykonane przez Extradom.pl. Prezentowane przez Extradom.pl wizualizacje wykonane zostały przez autora projektu i należy poczytywać je jedynie za przykład i propozycję wykończenia, wizję architektoniczną autora projektu. Ostateczne wykończenie budynku może nastąpić na wiele sposobów. Szczegółowe rozwiązania zastosowane w oferowanej dokumentacji - w tym również ilość, lokalizacje i wygląd okien, drzwi, kominów - mogą w niewielkim stopniu różnić się od prezentowanej wizualizacji budynku.

REKLAMA
Zamknij