Projekty nawet 500 zł taniej ❄️

Koniec oferty za:

0dni

00godz.

00min.

00sek.

Sprawdź

Projekt domu WB-3388 KRA3504

Dodano!
Dodano!

Warstwy

Warstwy

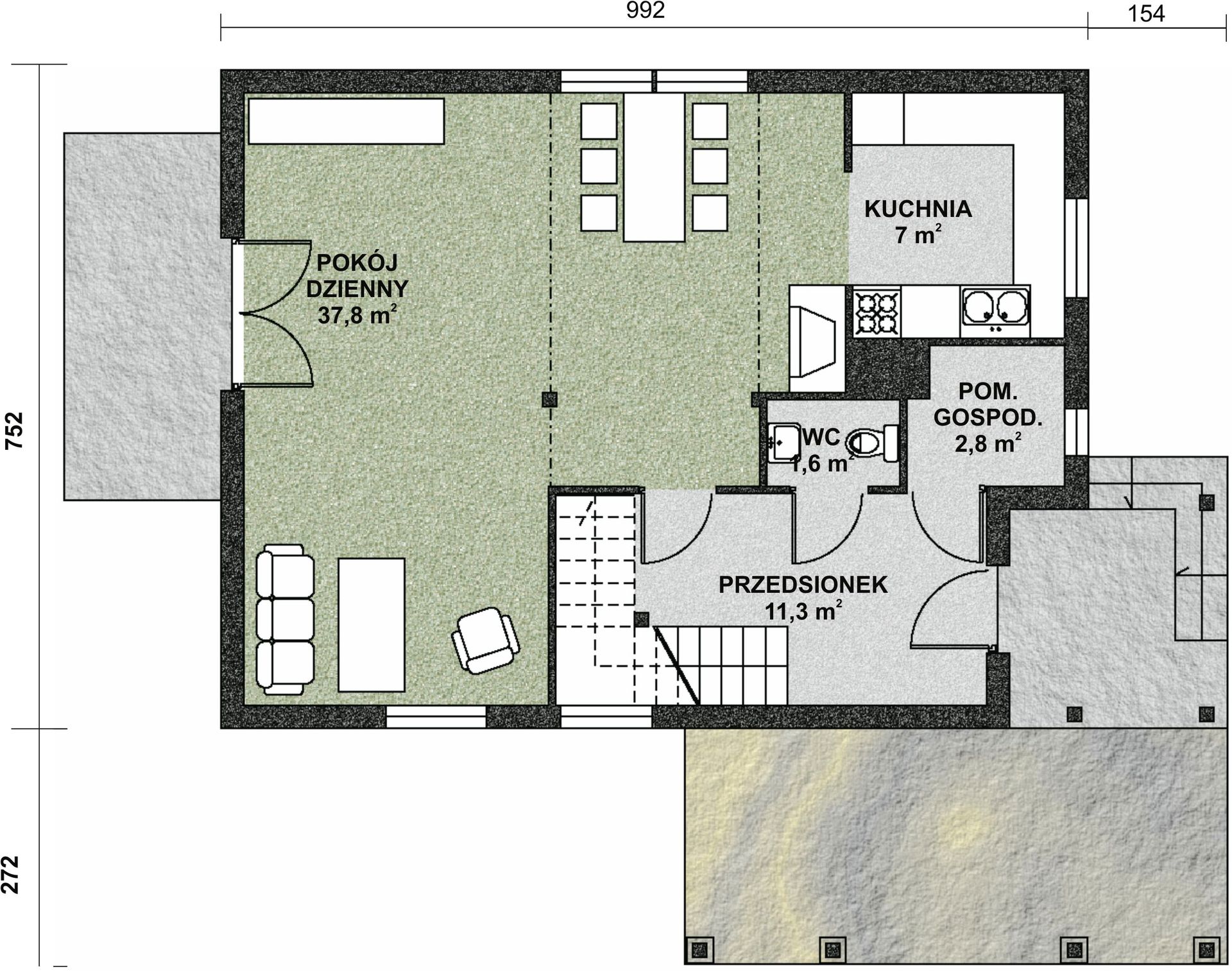
Rzut parteru

Powierzchnia (m²)
Tooltip
Powierzchnia pomieszczenia
to ta, z której faktycznie możesz korzystać – skosy i niskie części poddasza są liczone częściowo lub wcale.
  1. 100% dla wysokości powyżej 2,2 m,
  2. 50% dla wysokości 1,4–2,2 m,
  3. nie liczymy poniżej 1,4 m.

Powierzchnia podłogi
Liczymy po obrysie pomieszczenia, bez względu na jego wysokość/skosy. Jeśli nie ma skosów to powierzchnia podłogi i pomieszczenia jest taka sama.
pomieszczenia i podłogi
podłogi
1. Wiatrołap
11,30
2. Pomieszczenie gospodarcze
2,80
3. Wc
1,60
4. Pokój dzienny
37,80
5. Kuchnia
7
Razem
60,50
60,50
Powierzchnia (m²)
Tooltip
Powierzchnia pomieszczenia
to ta, z której faktycznie możesz korzystać – skosy i niskie części poddasza są liczone częściowo lub wcale.
  1. 100% dla wysokości powyżej 2,2 m,
  2. 50% dla wysokości 1,4–2,2 m,
  3. nie liczymy poniżej 1,4 m.

Powierzchnia podłogi
Liczymy po obrysie pomieszczenia, bez względu na jego wysokość/skosy. Jeśli nie ma skosów to powierzchnia podłogi i pomieszczenia jest taka sama.
pomieszczenia
podłogi
1. Hall
6
6
2. Pokój
6,50
12
3. Pokój
10
15,70
4. Pokój
10
16
5. Łazienka
5,70
8,80
Razem
38,20
58,50

    Usytuowanie na działce

    Czy ten projekt pasuje na
    Twoją działkę?

    Chętnie to sprawdzimy!

    Dowiedz się:

    • czy zmieści się na niej wybrany przez Ciebie dom
    • jakie parametry musi spełniać dom według miejscowego planu zagospodarowania lub warunków zabudowy (np. kąt nachylenia i typ dachu, liczba kondygnacji itp.
    • jakie inne projekty pasują na Twoją działkę – znajdziemy je dla Ciebie!

Pow. użytkowa

98,70 m²

Pokoje

3

Łazienki i WC

2

Garaż

0

Kąt dachu

45°

Konstrukcja

Szkieletowa
więcej

WB-3388 - KRA3504

ikona 98,70 m²
Powierzchnia użytkowa
ikona3
Pokoje (bez salonu)
ikona 2
Łazienki (z toaletami)
ikona 0
Liczba stanowisk garażowych
(z wiatą garażową)
ikona
Konstrukcja: Szkieletowa

Projekt został
wycofany z oferty

W razie pytań prosimy o kontakt
z Centrum Obsługi Klienta
Konsultant Masz pytania?
Zadzwoń
71 715 20 60

pon.-pt. 8-21, sob. 9-17

Szukasz wykonawcy godnego zaufania?
Zleć budowę w Extradom.pl!

  • Z góry znasz koszt budowy domu
  • Dom odbierasz zgodnie z ustalonym harmonogramem - nawet w 6 miesięcy
  • Zabezpiecza Cię jedna kompleksowa umowa z jednym wykonawcą
  • Otrzymujesz nawet 30-letnią gwarancję na konstrukcję domu
  • Oszczędzasz swój czas dzięki pewnej i kompletnej usłudze
Cena brutto stanu
deweloperskiego od
Tooltip
Cena brutto stanu deweloperskiego od 4 629 do 5 979 zł/m2.
Cena jest uzależniona m.in. od lokalizacji, wybranej technologii, kubatury budynku, skomplikowania projektu i ewentualnych zmian, na które zdecyduje się inwestor.
Cena za m2 powierzchni netto, czyli wszystkich pomieszczeń mierzonych na wysokości podłogi.
4 629 zł/m2
Dowiedz się więcej
Konsultant Masz pytania?
Zadzwoń
71 715 20 70

pon.-pt. 8-19

Parter - 60,50 m²

Parter projektu WB-3388

Zapytaj, co możesz zmienić

Powierzchnia (m²)
Tooltip
Powierzchnia pomieszczenia
to ta, z której faktycznie możesz korzystać – skosy i niskie części poddasza są liczone częściowo lub wcale.
  1. 100% dla wysokości powyżej 2,2 m,
  2. 50% dla wysokości 1,4–2,2 m,
  3. nie liczymy poniżej 1,4 m.

Powierzchnia podłogi
Liczymy po obrysie pomieszczenia, bez względu na jego wysokość/skosy. Jeśli nie ma skosów to powierzchnia podłogi i pomieszczenia jest taka sama.
pomieszczenia i podłogi
podłogi
1. Wiatrołap
11,30
2. Pomieszczenie gospodarcze
2,80
3. Wc
1,60
4. Pokój dzienny
37,80
5. Kuchnia
7
Razem
60,50
60,50

Poddasze - 38,20 m²

Poddasze projektu WB-3388

Zapytaj, co możesz zmienić

Powierzchnia (m²)
Tooltip
Powierzchnia pomieszczenia
to ta, z której faktycznie możesz korzystać – skosy i niskie części poddasza są liczone częściowo lub wcale.
  1. 100% dla wysokości powyżej 2,2 m,
  2. 50% dla wysokości 1,4–2,2 m,
  3. nie liczymy poniżej 1,4 m.

Powierzchnia podłogi
Liczymy po obrysie pomieszczenia, bez względu na jego wysokość/skosy. Jeśli nie ma skosów to powierzchnia podłogi i pomieszczenia jest taka sama.
pomieszczenia
podłogi
1. Hall
6
6
2. Pokój
6,50
12
3. Pokój
10
15,70
4. Pokój
10
16
5. Łazienka
5,70
8,80
Razem
38,20
58,50

Podobne projekty (5196)

Zobacz wszystkie
NIŻSZA CENA❄️
Zdjęcie 1 projektu Na swoim WAH1674
Na swoim
Dodano!
Dodano!
91,41 m²
3
2
1

3 752 zł

4 690 zł

Tooltip

Cena regularna

3 517 zł najniższa cena
Tooltip

Najniższa cena z 30 dni
przed obniżką

NIŻSZA CENA❄️
Zdjęcie 1 projektu Weranda dr-s BSA2229
Weranda dr-s
Dodano!
Dodano!
111,38 m²
3
2
1

5 249 zł

5 749 zł

Tooltip

Cena regularna

5 249 zł najniższa cena
Tooltip

Najniższa cena z 30 dni
przed obniżką

NIŻSZA CENA❄️
Zdjęcie 1 projektu Ara 128 (1916) KRD3059
Ara 128 (1916)
Dodano!
Dodano!
99,50 m²
4
2
1

3 840 zł

4 190 zł

Tooltip

Cena regularna

3 640 zł najniższa cena
Tooltip

Najniższa cena z 30 dni
przed obniżką

NIŻSZA CENA❄️
Zdjęcie 1 projektu Weranda 3 BSA2246
Weranda 3
Dodano!
Dodano!
110,58 m²
3
2
1

5 249 zł

5 749 zł

Tooltip

Cena regularna

5 249 zł najniższa cena
Tooltip

Najniższa cena z 30 dni
przed obniżką

Nowość
Zdjęcie 1 projektu Kompaktowy 03A KZB1028
Kompaktowy 03A
Dodano!
Dodano!
115,09 m²
3
2
1

4 300 zł

Nowość
Zdjęcie 1 projektu Dopasowany 04 KZB1050
Dopasowany 04
Dodano!
Dodano!
81,28 m²
3
1
1

3 800 zł

NIŻSZA CENA❄️
Zdjęcie 1 projektu N-151 PZB1009
N-151
Dodano!
Dodano!
83,01 m²
2
1
0

8 322 zł

8 760 zł

Tooltip

Cena regularna

5 382 zł najniższa cena
Tooltip

Najniższa cena z 30 dni
przed obniżką

NIŻSZA CENA❄️
Zdjęcie 1 projektu Wisełka WAH1266
Wisełka
Dodano!
Dodano!
84,91 m²
3
2
1

4 552 zł

5 690 zł

Tooltip

Cena regularna

4 267 zł najniższa cena
Tooltip

Najniższa cena z 30 dni
przed obniżką

Projekt z budową

Budowa Projekt z budową

Zbuduj ten dom z naszym Partnerem - wygodnie, szybko i bezpiecznie

Projekt z budową to:

  • gwarancja niezmiennego kosztu budowy

  • krótki czas realizacji - dom gotowy nawet w 6 miesięcy

  • wieloletnia gwarancja na konstrukcję domu

Elewacje

Frontowa
Tylna
Lewa
Prawa

Przekroje

Przekrój pionowy

Usytuowanie na działce

Czy ten projekt pasuje na
Twoją działkę?

Chętnie to sprawdzimy!

Czy ten projekt pasuje na
Twoją działkę?

Chętnie to sprawdzimy!

Dowiedz się:

  • czy zmieści się na niej wybrany przez Ciebie dom
  • jakie parametry musi spełniać dom według miejscowego planu zagospodarowania lub warunków zabudowy (np. kąt nachylenia i typ dachu, liczba kondygnacji itp.
  • jakie inne projekty pasują na Twoją działkę – znajdziemy je dla Ciebie!
Autor: Agrobisp

Dane techniczne projektu

Powierzchnie i wymiary Powierzchnie i wymiary

Powierzchnia użytkowa
Tooltip
Suma powierzchni wszystkich pomieszczeń mieszkalnych, pomniejszona o pow. garażu, kotłowni, strychu, piwnicy. Jest liczona w 100% dla pomieszczeń o wysokości powyżej 2,2 m, w 50% dla pomieszczeń o wys. 2,2-1,4 m i niewliczana dla niższych niż 1,4 m.

98,70 m²

Powierzchnia zabudowy
Tooltip
Powierzchnia zajmowana przez część na- oraz nadziemną budynku liczona, jako rzut pionowy budynku na działkę.

101,60 m²

Kąt nachylenia dachu
Tooltip
Nachylenie połaci dachu głównego podawane w stopniach. Uwaga! W niektórych projektach występuje więcej niż jedno nachylenie dachu.

45°

Wysokość budynku
Tooltip
Wysokość liczona od części budynku położonej najniżej przy powierzchni terenu do najwyższego punktu dachu (kalenicy) z wyłączeniem kominów.

7,80 m

Min. szerokość działki
Tooltip
Najmniejsza możliwa szerokość działki niezbędna do wybudowania wybranego domu. Składa się z szerokości elewacji domu powiększonej z obu stron o 3 m dla ściany bez otworów drzwiowych/okiennych lub 4 m, dla ściany z otworami.

18,66 m

Energooszczędność Energooszczędność

Oze Czym jest OZE (Odnawialne Źródło Energii)?
Ogrzewanie główne

Elektryczne - szczegóły

Interesuje Cię inne źródło ogrzewania? Wyślij zapytanie lub zadzwoń do doradcy

Warunki techniczne

Projekt zgody z WT 2021

Technologia i konstrukcja Technologia i konstrukcja

Konstrukcja

Szkieletowa

PROJEKT Z BUDOWĄ Istnieje możliwość zaadaptowania tego projektu do technologii prefabrykowanej/modułowej i budowy nawet w 6 miesięcy ze stałym kosztem budowy

Dowiedz się więcej »
Opis szczegółowy

Ściany zewnętrzne: gr. 26 cm drewniane, szkieletowe ocieplone wełną mineralną. Strop: drewniany. Schody: drewniane. Dach: czterospadowy o nachyleniu 45 stopni i 36 stopni, więźba krokwiowo-jętkowa, krycie dachówką. Poziom kalenicy: 7,8 m od terenu. Dodatkowe informacje: ogrzewanie elektryczne.

Strop

Drewniany

Reklama
Okna i drzwi tarasowe

Nowoczesne okna PVC i aluminiowe WIŚNIOWSKI – doskonała izolacja, elegancki design i niezrównana trwałość.

Wiśniowski
Sprawdź parametry!
Okna dachowe

Oferujemy bezpłatne konsultacje w zakresie wszystkich rozwiązań VELUX. Wyceny, porady dotyczące doboru okien i rolet zewnętrznych - sprawdź!

Velux
Sprawdź szczegóły
Płytki ceramiczne i gresy

Od małych formatów po wielkoformatowe gresy. Marmur, beton, drewno, kamień, lastryko czy cegiełki zamówisz wygodnie online z szybką dostawą.

Ceramzet
Sprawdź ofertę
Drzwi

Ciepłe drzwi WIŚNIOWSKI z kontrolą dostępu. Szeroka gama wzorów i kolorów.

Wiśniowski
Wybierz najlepsze
Bramy garażowe

Automatyczne bramy garażowe segmentowe i uchylne WIŚNIOWSKI na wymiar i z systemem smart home w standardzie.

Wiśniowski
Sprawdź ofertę!
Armatura i ceramika łazienkowa

Topowi producenci. Baterie łazienkowe, zestawy natynkowe i podtynkowe, umywalki, wanny, miski WC oraz kabiny zamówisz kompleksowo online.

Ceramzet II
Dowiedz się więcej
Rekuperacja

Alnor - kompletny system rekuperacji. Dobierz idealne rozwiązanie dla Twojego domu!

Alnor
Dobierz rekuperator
Gruntowe pompy ciepła

Przeprowadzimy kompletną instalację najbardziej oszczędnego źródła ciepła w Twoim nowym domu - gruntowej pompy ciepła. Od dokumentacji, pozwoleń, po odwierty i instalację.

Geothermal Solutions
Dowiedz się więcej

Gotowe domy modułowe (114)

Zobacz wszystkie
Stan deweloperski nawet w 6 miesięcy Gwarancja stałej ceny
Zdjęcie 1 projektu Dom keramzytowy Atrakcyjna Stodoła wariant 2 HAK1000
Pow. użytkowa
98,47 m²
Pokoje
3
471 100 zł 4 784 zł/m²
Zdjęcie 1 projektu Dom prefabrykowany P.9 HPK1008
Pow. użytkowa
97,80 m²
Pokoje
4
545 800 zł 5 581 zł/m²
Zdjęcie 1 projektu Dom prefabrykowany Parterowy 100B HFX1010
Pow. użytkowa
100,01 m²
Pokoje
3
439 000 zł 4 390 zł/m²
Zdjęcie 1 projektu ExtraBetonowy 3 HPK1019
Gotowy extraBetonowy 3
Dodano!
Dodano!
Pow. użytkowa
97,13 m²
Pokoje
3
491 826 zł 5 064 zł/m²
Zdjęcie 1 projektu Dom prefabrykowany Parterowy 100E HFX1012
Pow. użytkowa
100,28 m²
Pokoje
4
439 000 zł 4 378 zł/m²
Zdjęcie 1 projektu Dom prefabrykowany Parterowy 100D HFX1011
Pow. użytkowa
100,44 m²
Pokoje
3
439 000 zł 4 371 zł/m²
Zdjęcie 1 projektu Dom prefabrykowany Piętrowy 95C HFX1020
Pow. użytkowa
96,20 m²
Pokoje
3
469 000 zł 4 875 zł/m²
Zdjęcie 1 projektu Dom prefabrykowany Piętrowy 95B HFX1019
Pow. użytkowa
96,20 m²
Pokoje
3
469 000 zł 4 875 zł/m²

Opis projektu domu
WB-3388

Projekt domu WB-3388 to idealna propozycja dla osób posiadających średniej szerokości działkę. Dom cechuje się prostą bryłą, więc będzie się dobrze prezentował niezależnie od otoczenia. W tym projekcie kalenica skierowana jest prostopadle do drogi, co jest bardzo istotne, gdy wymagają tego warunki zabudowy. Kierowany jest do Inwestorów posiadających działkę pozwalającą na realizację projektu w zabudowie wolnostojącej. Konstrukcja budynku zwieńczona jest dachem czterospadowym, który należy do najsolidniejszych konstrukcji dachowych. Charakterystycznym elementem jest także uwzględnione w jego konstrukcji tzw. wole oko. Projekt WB-3388 to dom parterowy z poddaszem użytkowym, co sprawia, że strefa dzienna i nocna są od siebie wyraźnie oddzielone. Warto zwrócić uwagę na przestronną część dzienną. Dzięki zamknięciu kuchni na salon, zapachy przygotowywanych potraw nie są wyczuwalne w części wypoczynkowej. Usytuowany w salonie kominek nie tylko świetnie się prezentuje, ale także zapewni przyjemne ciepło w chłodniejsze dni. Atutami projektu jest uwzględniona na dole, osobna ubikacja dla gości oraz przestronna i w pełni komfortowa łazienka przewidziana na wyższej kondygnacji. Część nocną tworzą trzy sypialnie, które dobrze sprawdzą się w przypadku 2-4 osobowej rodziny. Przestrzeń można wykorzystać także jako pokój dla gości lub gabinet. Oprócz tego, w domu znajduje się również pomieszczenie gospodarcze, które można wykorzystać zgodnie z własnymi potrzebami. Wspólne grillowanie i rodzinne posiłki umili uwzględniony w projekcie taras. Projekt został wykonany w technologii szkieletu drewnianego, co wiąże się z krótkim czasem budowy. Jego wygląd zewnętrzny uwydatnia cechy charakterystyczne dla stylu tradycyjnego, dlatego będzie prezentować się doskonale niezależnie od okolicy.
Czytaj więcej

Polecani producenci

Prefabrykowane konstrukcje dachowe

tło producenta

WIĄZAR POLSKA

Zobacz więcej

Sprawdź nową generację okien GREENVIEW

tło producenta

FAKRO

Sprawdź nową generację okien GREENVIEW

Styropian, tynki, farby, kleje

tło producenta

Termo Organika

Poznaj super jakość

Okna, drzwi, osłony przeciwsłoneczne

tło producenta

Aluprof

Sprawdź ofertę

Kompletne systemy rekuperacji

tło producenta

Alnor

Dowiedz się więcej

Sprawdź nowy system DACHRYNNA

tło producenta

Galeco

Sprawdź ofertę
Zobacz więcej

Społeczność projektu domu
WB-3388 w budowie

Dołącz do społeczności osób, które budują ten dom lub są zainteresowane jego budową.

  • Oglądaj zdjęcia z budowy
  • Zadawaj pytania
  • Wymieniaj się doświadczeniami

Opinie o projekcie domu WB-3388

5

Na podstawie 1 recenzji

Wspaniały!
100%
Bardzo dobry
0%
Średni
0%
Słaby
0%
Bardzo słaby
0%

Wywiady mieszkańców domu WB-3388

Zdjęcie profilowe użytkownika Jacek3504 Jacek3504

Szukaliśmy letniskowego projektu do zrealizowania na działce położonej w górach, więc zależało nam, aby wygląd budynku wkomponował się w to otoczenie. Projekt domu WB-3388 KRA3504 nie tylko odpowiada górskiemu stylowi, ale jest również funkcjonalny. Oprócz tego, iż spędzamy w nim urlopy, to także wynajmujemy na potrzeby turystów. Na dole znajduje się dość duży salon połączony z kuchnią oraz całe zaplecze techniczne. Na piętrze mamy zaś 3 sypialnie i przestronną łazienkę. Wszystkie te pomieszczenia sprawiają, że dom jest wygodny w użytkowaniu nawet dla większej rodziny.Z realizacją projektu nie mieliśmy najmniejszych problemów, gdyż ten dom buduje się dosyć łatwo. Ze względu na wysokie położenie działki, większość materiałów musiało być wnoszone na górę ręcznie i to również nie stanowiło dla nas trudności. Zdecydowaliśmy się na zmianę technologii budowy i w naszym przypadku drewniana konstrukcja została zastąpiona bloczkami Suporex. Wszystkie inne parametry zostały zachowane, więc budynek nie stracił pierwotnego wyglądu.Całą bryłę ociepliliśmy 10cm warstwą styropianu i dom bardzo dobrze trzyma temperaturę wewnątrz. Właściwie ogrzewamy jedynie kominkiem z rozprowadzeniem ciepła, gdyż doskonale się sprawdza. Nawet przy 20 stopniowych mrozach nie ma potrzeby włączania wspomagającego kotła elektrycznego i we wszystkich pomieszczeniach jest naprawdę ciepło.W projekcie domu WB-3388 KRA3504 architekt nie uwzględnił wiatrołapu, a ze względu na usytuowanie naszego domu w górach (gdzie jak wiadomo wieją silne wiatry) postanowiliśmy go doprojektować. W tym celu wydzieliliśmy w przedsionku małe pomieszczenie o powierzchni 4m2 i wstawiliśmy tam dodatkowe drzwi.Mimo iż dom jest całoroczny, nie mieszkamy w nim na stałe, a jedynie przyjeżdżamy w wolnym czasie. Jesteśmy rodziną 4-osobową i taki metraż użytkujemy z pełnym komfortem. Większa ilość osób również nie stanowi problemu. Często wynajmujemy domek turystom i na ogół odwiedza nas 6-8 osób. Nikt nie skarży się na brak miejsca czy intymności. Poddasze pozwala na wygodny nocleg, a gdy pogoda nie sprzyja, wszyscy mogą zasiąść w dużym salonie i razem spędzić miły czas przy kominku.Jesteśmy naprawdę zadowoleni z wyboru projektu domu WB-3388 KRA3504. To funkcjonalny i prosty w realizacji dom. Pod wiatą, którą my wykorzystujemy do składania drewna, spokojnie można wstawić samochód. Układ pomieszczeń wewnątrz jest bardzo praktyczny, a cała bryła pięknie prezentuje się na tle górskiego krajobrazu. Śmiało polecam innym ten projekt. Pozdrawiam.

Zdjęcie profilowe użytkownika Krzysztof8 Krzysztof8

Wybierając projekt szukaliśmy budynku, który pierwotnie miał nam służyć jako domek letniskowy. Projekt domu parterowego z poddaszem użytkowym WB-3388 KRA3504 po prostu nam się spodobał, więc zdecydowaliśmy się na jego zakup. W trakcie zaszły u nas jednak pewne zmiany i musieliśmy zastosować w nim kilka zmian, tak aby pełnił on rolę budynku całorocznego.Podczas realizacji nie mieliśmy na szczęście żadnych problemów i właściwie przeprowadziliśmy się szybciej niż było to planowane. Postanowiliśmy nie zmieniać przewidzianej technologi budowy. Zgodnie z wytycznymi całość została wykonana z drewnianych belek, aczkolwiek widziałem w okolicy kilka takich samych domów zrobionych w wersji murowanej.Aby dostosować projekt domu WB-3388 KRA3504 do pełnienia funkcji budynku całorocznego, musieliśmy rozprowadzić w nim centralne ogrzewanie. Jako domek letniskowy miał tylko kominek, jednak my zdecydowaliśmy się na instalację dwufunkcyjnego piecyka gazowego, który z powodzeniem ogrzewa wszystkie pomieszczenia. W kuchni wstawiliśmy jeszcze jedno okno, a wejście na taras zostało powiększone. Zmieniliśmy lokalizację klatki schodowej i przenieśliśmy ją do salonu. Musze przyznać, iż prezentuje się to bardzo dobrze, a dodatkowo na poddaszu jest cieplej, gdyż chłodniejsze powietrze z przedpokoju nie dostaje się do górnych pomieszczeń. Oprócz tych zmian postanowiliśmy jeszcze doprojektować piwnicę.Jesteśmy 4-osobową rodziną i przy tym metrażu miejsca wystarczy dla każdego. Na chwilę obecną żałuję jednak, iż nie wydzieliliśmy w salonie miejsca na dodatkowy pokój na parterze. Nie ukrywam, iż bardzo by się nam przydał, ponieważ mamy z żoną małe dzieci. Gdy kładziemy któreś z nich spać, a ono się przebudza musimy biec do niego po schodach na górę, co jest nieco uciążliwe. Myślę, że naprawdę warto rozważyć to rozwiązanie, gdyż salon jest bardzo duży i bez problemu można wydzielić część jego powierzchni na zrobienie 10m2 pokoju.Dom wybudowany według projektu WB-3388 KRA3504 jest funkcjonalny i ciepły, a jego metraż odpowiada potrzebom naszej rodziny. Mieszkamy w nim już przeszło 4 lata i wszystko jest w porządku, chociaż teraz wybrałbym pewnie budynek parterowy. Pozdrawiam.

Zdjęcie profilowe użytkownika kajotka kajotka

Wybraliśmy projekt domu WB-3388® KRA3504, ponieważ spodobał nam się jego wygląd zewnętrzny, a układ pomieszczeń wydał nam się funkcjonalny. Zależało nam na szybkiej realizacji tego domu, co nam się udało. Budowa przebiegł bardzo sprawnie i nie mieliśmy tutaj żadnych kłopotów i opóźnień. Projekt domu WB-3388® KRA3504 był czytelny i przejrzysty. Jedyna wada jaką teraz widzimy, to ścianka kolankowa jest zdecydowanie za niska, teraz na pewno bym ją podniósł o jakieś 50cm. Choć nawet 25cm zrobiłoby już wielką różnicę. Mamy ogrzewanie kominkowe (powietrzne ogrzewanie) i awaryjnie elektryczne. Eksploatacja całego domu jest bardzo korzystna. Zdecydowaliśmy się wprowadzić kilka zmian. Przede wszystkim zrobiliśmy piwnicę, bez której chyba byśmy się nie obyli. Poprzez tą zmianę, parter się zaczyna jakiś 1,20m ponad terenem. Od strony południowej zrobiliśmy taras ziemny. Na północy mamy wejście domu, a część dzienna jest od południa, więc jest bardzo jasno w ciągu dnia. Układ pomieszczeń jest praktyczny i funkcjonalny, ale brakuje nam wiatrołapu. Dlatego teraz mamy zawieszoną kotarę, aby ten chłód był mniejszy. Dom przygotowaliśmy na cztery osoby i przy tej ilości osób sprawdza się znakomicie. Natomiast, gdy odwiedzają nas goście, to w salonie mamy odpowiednią ilość miejsca, aby ich przyjąć. Realizacja została zakończona w bardzo krótkim czasie, dlatego jestem bardzo zadowolony. Projekt domu parterowego z poddaszem użytkowym WB-3388® KRA3504 był trafnym wyborem. Polecam i pozdrawiam.

ASYSTENT WYBORU PROJEKTU

Szukasz idealnego projektu? Znajdziemy go dla Ciebie!

Doradca na podstawie Twoich wskazówek przygotuje spersonalizowaną listę projektów

Graficzne opracowanie rzutów poglądowych widocznych na karcie projektu zostało wykonane przez Extradom.pl. Prezentowane przez Extradom.pl wizualizacje wykonane zostały przez autora projektu i należy poczytywać je jedynie za przykład i propozycję wykończenia, wizję architektoniczną autora projektu. Ostateczne wykończenie budynku może nastąpić na wiele sposobów. Szczegółowe rozwiązania zastosowane w oferowanej dokumentacji - w tym również ilość, lokalizacje i wygląd okien, drzwi, kominów - mogą w niewielkim stopniu różnić się od prezentowanej wizualizacji budynku.

Extradom.pl Spółka z ograniczoną odpowiedzialnością z siedzibą przy ul. Jaworskiej 13, 53-612 Wrocław, wpisana do rejestru przedsiębiorców Krajowego Rejestru Sądowego przez Sąd Rejonowy dla Wrocławia-Fabrycznej we Wrocławiu, VI Wydział Gospodarczy Krajowego Rejestru Sądowego do pod numerem KRS 0000648746, numer NIP 895-17-18-333, o kapitale zakładowym 708 150,00 zł uprzejmie informuje, iż poprzez serwis Extradom.pl umożliwia m.in. zapoznanie się przez konsumentów z ofertą handlową Partnerów Extradom.pl, którzy stosują metody budowy domów przy wykorzystaniu różnego rodzaju technologie prefabrykacji bądź modułowe (tzw. „Gotowe domy”).

Extradom.pl nie prowadzi jednakże sprzedaży ani nie oferuje usług polegających na doradztwie finansowym, prawnym ani podatkowym w zakresie inwestycji realizowanych w technologiach tzw. „Gotowych domów”. Informacje prezentowane w serwisie Extradom.pl dotyczące Partnerów Extradom.pl oferujących realizację inwestycji w technologiach „Gotowych domów” lub podobnych mają charakter informacyjny i reklamowy.

Prezentowane w serwisie Extradom.pl informacje dotyczące stosowanych przez Partnerów metod budowy domów w technologii prefabrykacji bądź modułowej pochodzą od Partnerów Extradom.pl.

Extradom.pl sp. z o.o. jedynie umożliwia nawiązanie kontaktu przez Użytkownika z Partnerem Extradom.pl stosującym tego rodzaju technologie budowy domów i nie jest stroną umowy o roboty budowlane zawieranej przez Użytkownika Extradom.pl z Partnerem Extradom.pl.

REKLAMA
Zamknij