👉 Złap prezent 🎁

Koniec oferty za:

0dni

00godz.

00min.

00sek.

Sprawdź

Projekt domu W23-M1 PKA1019

Dodano!
Dodano!

Warstwy

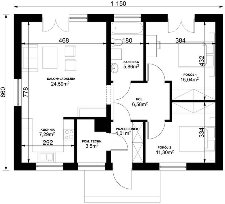
Rzut parteru

Powierzchnia (m²)
Tooltip
Powierzchnia pomieszczenia
to ta, z której faktycznie możesz korzystać – skosy i niskie części poddasza są liczone częściowo lub wcale.
  1. 100% dla wysokości powyżej 2,2 m,
  2. 50% dla wysokości 1,4–2,2 m,
  3. nie liczymy poniżej 1,4 m.

Powierzchnia podłogi
Liczymy po obrysie pomieszczenia, bez względu na jego wysokość/skosy. Jeśli nie ma skosów to powierzchnia podłogi i pomieszczenia jest taka sama.
pomieszczenia i podłogi
podłogi
1. Wiatrołap
4,01
2. Pokój
11,30
3. Pokój
15,04
4. Hall
6,58
5. Łazienka
5,86
6. Pokój dzienny + jadalnia
24,59
7. Kuchnia
7,29
8. Kotłownia
3,50
Razem
78,17
78,17

    Usytuowanie na działce

    Czy ten projekt pasuje na
    Twoją działkę?

    Chętnie to sprawdzimy!

    Dowiedz się:

    • czy zmieści się na niej wybrany przez Ciebie dom
    • jakie parametry musi spełniać dom według miejscowego planu zagospodarowania lub warunków zabudowy (np. kąt nachylenia i typ dachu, liczba kondygnacji itp.
    • jakie inne projekty pasują na Twoją działkę – znajdziemy je dla Ciebie!

Pow. użytkowa

74,67 m²

Pokoje

2

Łazienki i WC

1

Garaż

0

Min. szer. i dł. działki

18,5 x 16,60 m

Kąt dachu

30°

Szacunkowy koszt SSZ

200 000 zł
Szacunkowy koszt budowy do stanu surowego zamkniętego (SSZ) metodą gospodarczą - większość prac wykonuje inwestor.

Konstrukcja

Murowana
więcej

W23-M1 - PKA1019

ikona 74,67 m²
Powierzchnia użytkowa
ikona2
Pokoje (bez salonu)
ikona 1
Łazienki (z toaletami)
ikona 0
Liczba stanowisk garażowych
(z wiatą garażową)
ikona
Konstrukcja: Murowana

Cena projektu:

4 399 zł

Gwarancja najniższej ceny Gwarancja najniższej ceny Tooltip

Projekt jest dostępny Tooltip

GRATIS 15% rabatu do LEROY MERLIN

GRATIS 16% rabatu w SELSEY

GRATIS Przydatne Extradodatki

GRATIS Poradnik Dach Solarny

100 dni na wymianę, 30 dni na zwrot

Darmowa dostawa - kurier, paczkomaty

Bezpłatne pozwolenie na zmiany

Dokumentacja zgodna z WT2021

Pokaż więcej (6)
Konsultant Masz pytania?
Zadzwoń
71 715 20 60

pon.-pt. 8-21, sob. 9-17

Szukasz wykonawcy godnego zaufania?
Zleć budowę w Extradom.pl!

  • Z góry znasz koszt budowy domu
  • Dom odbierasz zgodnie z ustalonym harmonogramem - nawet w 6 miesięcy
  • Zabezpiecza Cię jedna kompleksowa umowa z jednym wykonawcą
  • Otrzymujesz nawet 30-letnią gwarancję na konstrukcję domu
  • Oszczędzasz swój czas dzięki pewnej i kompletnej usłudze
Cena brutto stanu
deweloperskiego od
Tooltip
Cena brutto stanu deweloperskiego od 4 719 do 6 939 zł/m2.
Cena jest uzależniona m.in. od lokalizacji, wybranej technologii, kubatury budynku, skomplikowania projektu i ewentualnych zmian, na które zdecyduje się inwestor.
Cena za m2 powierzchni netto, czyli wszystkich pomieszczeń mierzonych na wysokości podłogi.
4 719 zł/m2
Dowiedz się więcej
Konsultant Masz pytania?
Zadzwoń
71 718 89 70

pon.-pt. 8-19

Parter - 78,17 m²

Parter projektu W23-M1

Zapytaj, co możesz zmienić

Powierzchnia (m²)
Tooltip
Powierzchnia pomieszczenia
to ta, z której faktycznie możesz korzystać – skosy i niskie części poddasza są liczone częściowo lub wcale.
  1. 100% dla wysokości powyżej 2,2 m,
  2. 50% dla wysokości 1,4–2,2 m,
  3. nie liczymy poniżej 1,4 m.

Powierzchnia podłogi
Liczymy po obrysie pomieszczenia, bez względu na jego wysokość/skosy. Jeśli nie ma skosów to powierzchnia podłogi i pomieszczenia jest taka sama.
pomieszczenia i podłogi
podłogi
1. Wiatrołap
4,01
2. Pokój
11,30
3. Pokój
15,04
4. Hall
6,58
5. Łazienka
5,86
6. Pokój dzienny + jadalnia
24,59
7. Kuchnia
7,29
8. Kotłownia
3,50
Razem
78,17
78,17

Natychmiast, otrzymasz PDF-y
z rzutami wszystkich kondygnacji

Zamów rysunki szczegółowe

Zapoznaj się ze szczegółowymi rysunkami rzutów kondygnacji w PDF dla tego projektu.

Podobne projekty (181)

Zobacz wszystkie
PREZENT 🎁
Zdjęcie 1 projektu Mirabelka 4 WOF1229
Mirabelka 4
Dodano!
Dodano!
72,48 m²
2
1
0

3 499 zł

PREZENT 🎁
Zdjęcie 1 projektu Dom w Zaciszu WBF1000
Dom w Zaciszu
Dodano!
Dodano!
65,39 m²
2
1
0

3 399 zł

PREZENT 🎁
Zdjęcie 1 projektu Tebe 5 WOE1182
Tebe 5
Dodano!
Dodano!
70 m²
3
1
0

3 699 zł

PREZENT 🎁
Zdjęcie 1 projektu Sensowny 2 WAH2033
Sensowny 2
Dodano!
Dodano!
71,18 m²
3
1
0

6 250 zł

PREZENT 🎁
Zdjęcie 1 projektu Zosia WAH1267
Zosia
Dodano!
Dodano!
70,48 m²
3
2
0

6 250 zł

PREZENT 🎁
Zdjęcie 1 projektu Nektarynka 2 WOF1253
Nektarynka 2
Dodano!
Dodano!
72,04 m²
2
1
0

3 799 zł

PREZENT 🎁
Zdjęcie 1 projektu Mirabelka 4 bis WOF1264
Mirabelka 4 bis
Dodano!
Dodano!
74,14 m²
2
1
0

3 699 zł

PREZENT 🎁
Zdjęcie 1 projektu Sezam WOF1026
Sezam
Dodano!
Dodano!
77,84 m²
3
1
0

3 699 zł

Metody i koszt budowy

Ten dom możesz budować metodą gospodarczą, systemem zleconym lub skorzystać z naszej oferty Projekt z Budową. Przy porównaniu weź pod uwagę nie tylko koszt, ale też różny zakres prac i standard wykonania.

Metoda gospodarcza

Najtańsza metoda - większość prac
budowlanych wykonuje inwestor

Stan surowy zamknięty (SSZ)

200 000 zł netto

Szacunkowy koszt materiałów na IV kwartał 2025
  • Prace ziemne i fundamenty

    39 000 zł
  • Konstrukcja, strop oraz dach

    132 000 zł
  • Stolarka okienna i drzwiowa

    29 000 zł
  • Instalacje

    nie obejmuje
  • Prace wykończeniowe

    nie obejmuje
  • Możesz budować etapami, pamiętając jednak o zmianie kosztów w czasie
  • Możesz rozpocząć budowę z częścią niezbędnych środków
  • Sam ustalasz harmonogram, koordynujesz budowę i zapewniasz materiały
Czy da się obniżyć koszty budowy?
Zobacz nasz film jak obniżyć koszt budowy

Projekt z Budową

Najszybsza i najwygodniejsza metoda -
całą budowę domu realizuje jedna firma

Stan deweloperski
Gwarancja stałego kosztu budowy

Gwarancja stałego
kosztu budowy

  • Prace ziemne i fundamenty
  • Konstrukcja, strop oraz dach
  • Stolarka okienna i drzwiowa
  • Instalacje  
    Tooltip

    Obejmuje wykonanie instalacji:

    • wodno-kanalizacyjnej
    • centralnego ogrzewania
    • gazowej
    • elektrycznej
  • Prace wykończeniowe  
    Tooltip

    Prace wykończeniowe obejmują:

    • sufity i ściany wewnętrzne
    • tynki i okładziny ścian wewnętrznych
    • wylewki i posadzkę
    • ocieplenie ścian zewnętrznych i elewację

Budowa
nawet w
6mies.

  • Kompleksowa umowa i znany z góry koszt budowy
  • Logistyka, organizacja budowy i zakupy po stronie firmy budowlanej
  • Formalności i dokumentacje po stronie firmy budowlanej
  • Różne technologie budowy dopasowane do projektu i budżetu
Szczegóły i dostępne technologie

Elewacje

Frontowa
Tylna
Lewa
Prawa

Przekroje

Przekrój pionowy
Autor: W23 Architekci

Dane techniczne projektu

Powierzchnie i wymiary Powierzchnie i wymiary

Powierzchnia użytkowa
Tooltip
Suma powierzchni wszystkich pomieszczeń mieszkalnych, pomniejszona o pow. garażu, kotłowni, strychu, piwnicy. Jest liczona w 100% dla pomieszczeń o wysokości powyżej 2,2 m, w 50% dla pomieszczeń o wys. 2,2-1,4 m i niewliczana dla niższych niż 1,4 m.

74,67 m²

Powierzchnia zabudowy
Tooltip
Powierzchnia zajmowana przez część na- oraz nadziemną budynku liczona, jako rzut pionowy budynku na działkę.

98,88 m²

Kąt nachylenia dachu
Tooltip
Nachylenie połaci dachu głównego podawane w stopniach. Uwaga! W niektórych projektach występuje więcej niż jedno nachylenie dachu.

30°

Wysokość budynku
Tooltip
Wysokość liczona od części budynku położonej najniżej przy powierzchni terenu do najwyższego punktu dachu (kalenicy) z wyłączeniem kominów.

5,42 m

Szerokość elewacji

11,50 m

Długość elewacji

8,60 m

Min. szerokość działki
Tooltip
Najmniejsza możliwa szerokość działki niezbędna do wybudowania wybranego domu. Składa się z szerokości elewacji domu powiększonej z obu stron o 3 m dla ściany bez otworów drzwiowych/okiennych lub 4 m, dla ściany z otworami.

18,50 m

Min. długość działki
Tooltip
Najmniejsza możliwa długość działki niezbędna do wybudowania wybranego domu. Składa się z długości elewacji domu powiększonej z obu stron o 3 m dla ściany bez otworów drzwiowych/okiennych lub 4 m, dla ściany z otworami.

16,60 m

Energooszczędność Energooszczędność

Oze Czym jest OZE (Odnawialne Źródło Energii)?
Ogrzewanie główne

Gazowe - szczegóły

Interesuje Cię inne źródło ogrzewania? Wyślij zapytanie lub zadzwoń do doradcy

Warunki techniczne

Projekt zgody z WT 2021

Technologia i konstrukcja Technologia i konstrukcja

Konstrukcja

Murowana

PROJEKT Z BUDOWĄ Istnieje możliwość zaadaptowania tego projektu do technologii prefabrykowanej/modułowej i budowy nawet w 6 miesięcy ze stałym kosztem budowy

Dowiedz się więcej »
Opis szczegółowy

Technologia tradycyjna, ławy i ściany fundamentowe betonowe, ściany murowane z pustaków z betonu komórkowego grubości 24 cm, ocieplony styropianem, Dach dwuspadowy o konstrukcji drewnianej wiązarowej, pokryty blachodachówką, tynk zewnętrzny. Wykończenie: Ściany zewnętrzne wykończone tynkiem silikonowym w kolorze jasnym. Cokół budynku wykonany tynkiem mozaikowym.

Reklama
Okna i drzwi tarasowe

Nowoczesne okna PVC i aluminiowe WIŚNIOWSKI – doskonała izolacja, elegancki design i niezrównana trwałość.

Wiśniowski
Sprawdź parametry!
Okna dachowe

Oferujemy bezpłatne konsultacje w zakresie wszystkich rozwiązań VELUX. Wyceny, porady dotyczące doboru okien i rolet zewnętrznych - sprawdź!

Velux
Sprawdź szczegóły
Płytki ceramiczne i gresy

Od małych formatów po wielkoformatowe gresy. Marmur, beton, drewno, kamień, lastryko czy cegiełki zamówisz wygodnie online z szybką dostawą.

Ceramzet
Sprawdź ofertę
Elewacja

Kup przez internet wszystkie materiały potrzebne do wykonania elewacji: styropian, płyty PIR, XPS, kleje, tynki. Najlepsze marki w super cenach z dostawą pod dom.

Hurtownia styropianu
Sprawdź ofertę!
Drzwi

Ciepłe drzwi WIŚNIOWSKI z kontrolą dostępu. Szeroka gama wzorów i kolorów.

Wiśniowski
Wybierz najlepsze
Bramy garażowe

Automatyczne bramy garażowe segmentowe i uchylne WIŚNIOWSKI na wymiar i z systemem smart home w standardzie.

Wiśniowski
Sprawdź ofertę!
Armatura i ceramika łazienkowa

Topowi producenci. Baterie łazienkowe, zestawy natynkowe i podtynkowe, umywalki, wanny, miski WC oraz kabiny zamówisz kompleksowo online.

Ceramzet II
Dowiedz się więcej
Rekuperacja

Alnor - kompletny system rekuperacji. Dobierz idealne rozwiązanie dla Twojego domu!

Alnor
Dobierz rekuperator
Dach

Producent stalowych pokryć dachowych i systemów elewacyjnych. Precyzja wykonania, trwałość na lata i szybki montaż doceniany przez dekarzy. Postaw na solidny dach Budmat.

Budmat
Sprawdź ofertę
Ogrodzenie

Nowoczesne stalowe ogrodzenia Budmat - estetyka, bezpieczeństwo i trwałość na lata. Systemowe rozwiązania na wymiar, dopasowane do każdego domu.

Budmat
Sprawdź ofertę

Gotowe domy - najszybszy sposób na dom (124)

Zobacz wszystkie
  • Stan deweloperski nawet w 6 miesięcy
  • Gwarancja stałej ceny
Skonfiguruj dom
Zdjęcie 1 projektu Bergen 70 HUS1004
72,05 m²
3
Stan deweloperski brutto
369 000 zł 5 121 zł/m²
Zdjęcie 1 projektu Dom szkieletowy Solo Smart 100 HHT1034
74,64 m²
2
Stan deweloperski brutto
362 383 zł 4 855 zł/m²
Zdjęcie 1 projektu Dom prefabrykowany DH70-3 HDH1003
74,60 m²
3
Stan deweloperski brutto
581 742 zł 7 798 zł/m²
Zdjęcie 1 projektu Dom szkieletowy Space Smart 90 HHT1021
74 m²
3
Stan deweloperski brutto
379 527 zł 5 129 zł/m²
Zdjęcie 1 projektu Dom szkieletowy One Step Smart 90 HHT1019
73,45 m²
2
Stan deweloperski brutto
428 600 zł 5 318 zł/m²
Zdjęcie 1 projektu Dom keramzytowy Fiore 76 HRK1003
75,95 m²
3
Stan deweloperski brutto
344 520 zł 4 536 zł/m²
Zdjęcie 1 projektu Dom prefabrykowany DEX76 HDX1000
76 m²
2
Stan deweloperski brutto
570 587 zł 7 508 zł/m²
Zdjęcie 1 projektu Dom szkieletowy Edge Smart 90 HHT1025
71,68 m²
3
Stan deweloperski brutto
452 995 zł 6 320 zł/m²

Opis projektu domu
W23-M1

DomProjekt domu W23-M1

Projekt W23-M1 to urokliwy, parterowy dom w tradycyjnym stylu, idealny dla pary lub rodziny 2+1. Prosta bryła zwieńczona dwuspadowym dachem kryje w sobie przemyślany i niezwykle funkcjonalny układ pomieszczeń, oferując wszystko, co potrzebne do komfortowego życia na kompaktowej powierzchni.

WyróżnieniaCo wyróżnia ten dom?

  • Otwarta strefa dzienna z kominkiem – przestronny salon połączony z jadalnią i kuchnią tworzy serce domu, a centralnie umieszczony kominek dodaje wnętrzu ciepła i przytulnego charakteru.
  • Bezpośrednie wyjście na taras – z salonu można swobodnie wyjść na zewnątrz, co pozwala cieszyć się bliskością ogrodu i płynnie łączy strefę wypoczynkową z naturą.
  • Funkcjonalny podział na strefy – pomimo niewielkiej powierzchni, dom oferuje wyraźny podział na część dzienną, ogólnodostępną, oraz prywatną sypialnię, co zapewnia komfort i intymność wszystkim domownikom.
  • Ekonomiczna i sprawdzona konstrukcja – klasyczna bryła i dwuspadowy dach to gwarancja niższych kosztów budowy oraz bezproblemowej eksploatacji przez wiele lat.

ArchitekturaArchitektura i wygląd

Projekt W23-M1 charakteryzuje się prostą, zwartą bryłą na planie prostokąta, przykrytą klasycznym dwuspadowym dachem z tradycyjnym okapem. To ponadczasowe i ekonomiczne rozwiązanie, które doskonale wpisze się w każde otoczenie. Elewacja utrzymana w tradycyjnym stylu emanuje spokojem i harmonią. Duże przeszklenie w salonie prowadzące na taras pięknie doświetla wnętrze i otwiera dom na otaczający go ogród.

WnętrzeWnętrze i układ funkcjonalny

Dom oferuje 74,67 m² starannie zaplanowanej powierzchni użytkowej, na której rozmieszczono 2 pokoje i jedną komfortową łazienkę. Układ został zaprojektowany z myślą o maksymalnej wygodzie na jednej kondygnacji.

Parter – strefa dzienna

Po przekroczeniu progu wita nas praktyczny wiatrołap, z którego przechodzimy do centralnie zlokalizowanego hallu. To on stanowi komunikacyjne centrum domu, prowadząc do wszystkich kluczowych pomieszczeń. Sercem projektu jest otwarta strefa dzienna, w skład której wchodzi ustawny salon z miejscem na kominek, jadalnia oraz funkcjonalna kuchnia. To idealna przestrzeń do wspólnego spędzania czasu, a duże drzwi tarasowe naturalnie przedłużają ją o strefę wypoczynku na świeżym powietrzu. W drugiej części domu zaprojektowano strefę prywatną, oferującą komfortową sypialnię oraz dużą łazienkę. Uzupełnieniem programu funkcjonalnego jest kotłownia, dostępna z hallu.

Czytaj więcej

Polecani producenci

Kompletne systemy rekuperacji

tło producenta

Alnor

Dowiedz się więcej

Prefabrykowane konstrukcje dachowe

tło producenta

WIĄZAR POLSKA

Zobacz więcej

Sprawdź nową generację okien GREENVIEW

tło producenta

FAKRO

Sprawdź nową generację okien GREENVIEW

Styropian, tynki, farby, kleje

tło producenta

Termo Organika

Poznaj super jakość

Okna, drzwi, osłony przeciwsłoneczne

tło producenta

Aluprof

Sprawdź ofertę
Zobacz więcej

Społeczność projektu domu
W23-M1 w budowie

Dołącz do społeczności osób, które budują ten dom lub są zainteresowane jego budową.

  • Oglądaj zdjęcia z budowy
  • Zadawaj pytania
  • Wymieniaj się doświadczeniami

Opinie o projekcie domu W23-M1

Ocena

Ten projekt nie ma jeszcze opinii, bądź pierwszy!

Dodaj opinię

ASYSTENT WYBORU PROJEKTU

Szukasz idealnego projektu? Znajdziemy go dla Ciebie!

Doradca na podstawie Twoich wskazówek przygotuje spersonalizowaną listę projektów

Graficzne opracowanie rzutów poglądowych widocznych na karcie projektu zostało wykonane przez Extradom.pl. Prezentowane przez Extradom.pl wizualizacje wykonane zostały przez autora projektu i należy poczytywać je jedynie za przykład i propozycję wykończenia, wizję architektoniczną autora projektu. Ostateczne wykończenie budynku może nastąpić na wiele sposobów. Szczegółowe rozwiązania zastosowane w oferowanej dokumentacji - w tym również ilość, lokalizacje i wygląd okien, drzwi, kominów - mogą w niewielkim stopniu różnić się od prezentowanej wizualizacji budynku.

Extradom.pl Spółka z ograniczoną odpowiedzialnością z siedzibą przy ul. Jaworskiej 13, 53-612 Wrocław, wpisana do rejestru przedsiębiorców Krajowego Rejestru Sądowego przez Sąd Rejonowy dla Wrocławia-Fabrycznej we Wrocławiu, VI Wydział Gospodarczy Krajowego Rejestru Sądowego do pod numerem KRS 0000648746, numer NIP 895-17-18-333, o kapitale zakładowym 708 150,00 zł uprzejmie informuje, iż poprzez serwis Extradom.pl umożliwia m.in. zapoznanie się przez konsumentów z ofertą handlową Partnerów Extradom.pl, którzy stosują metody budowy domów przy wykorzystaniu różnego rodzaju technologie prefabrykacji bądź modułowe (tzw. „Gotowe domy”).

Extradom.pl nie prowadzi jednakże sprzedaży ani nie oferuje usług polegających na doradztwie finansowym, prawnym ani podatkowym w zakresie inwestycji realizowanych w technologiach tzw. „Gotowych domów”. Informacje prezentowane w serwisie Extradom.pl dotyczące Partnerów Extradom.pl oferujących realizację inwestycji w technologiach „Gotowych domów” lub podobnych mają charakter informacyjny i reklamowy.

Prezentowane w serwisie Extradom.pl informacje dotyczące stosowanych przez Partnerów metod budowy domów w technologii prefabrykacji bądź modułowej pochodzą od Partnerów Extradom.pl.

Extradom.pl sp. z o.o. jedynie umożliwia nawiązanie kontaktu przez Użytkownika z Partnerem Extradom.pl stosującym tego rodzaju technologie budowy domów i nie jest stroną umowy o roboty budowlane zawieranej przez Użytkownika Extradom.pl z Partnerem Extradom.pl.

REKLAMA
Zamknij