👉 Projekty w extracenach! ✂️

Koniec oferty za:

00godz.

00min.

00sek.

Sprawdź

Projekt domu Temerin II DCP313a WOB1582

Dodano!
Dodano!

Warstwy

Warstwy

Rzut parteru

Powierzchnia (m²)
Tooltip
Powierzchnia pomieszczenia
to ta, z której faktycznie możesz korzystać – skosy i niskie części poddasza są liczone częściowo lub wcale.
  1. 100% dla wysokości powyżej 2,2 m,
  2. 50% dla wysokości 1,4–2,2 m,
  3. nie liczymy poniżej 1,4 m.

Powierzchnia podłogi
Liczymy po obrysie pomieszczenia, bez względu na jego wysokość/skosy. Jeśli nie ma skosów to powierzchnia podłogi i pomieszczenia jest taka sama.
pomieszczenia
podłogi
1. Wiatrołap
4,70
4,70
2. Korytarz
3,81
3,81
3. Spiżarnia
2,12
4,22
4. Kuchnia
9,22
9,22
5. Pokój dzienny
29,14
29,14
6. Pokój
13,71
13,71
7. Łazienka
2,38
2,38
8. Pomieszczenie gospodarcze
5,05
5,05
9. Kotłownia
9,17
9,17
10. Garaż dwustanowiskowy
33,73
33,73
11. Korytarz
14,43
14,43
Razem
127,46
129,56
12. Taras
29,41
Powierzchnia (m²)
Tooltip
Powierzchnia pomieszczenia
to ta, z której faktycznie możesz korzystać – skosy i niskie części poddasza są liczone częściowo lub wcale.
  1. 100% dla wysokości powyżej 2,2 m,
  2. 50% dla wysokości 1,4–2,2 m,
  3. nie liczymy poniżej 1,4 m.

Powierzchnia podłogi
Liczymy po obrysie pomieszczenia, bez względu na jego wysokość/skosy. Jeśli nie ma skosów to powierzchnia podłogi i pomieszczenia jest taka sama.
pomieszczenia
podłogi
1. Schody
4,12
4,12
2. Korytarz
6,71
6,71
3. Pokój
13,34
13,34
4. Pokój
15,18
15,18
5. Łazienka
3,55
3,55
6. Pokój
19,47
19,47
7. Łazienka
9,73
9,73
8. Strych
8,09
18,93
9. Pomieszczenie gospodarcze
4,54
10,39
Razem
84,73
101,42

    Usytuowanie na działce

    Czy ten projekt pasuje na
    Twoją działkę?

    Chętnie to sprawdzimy!

    Dowiedz się:

    • czy zmieści się na niej wybrany przez Ciebie dom
    • jakie parametry musi spełniać dom według miejscowego planu zagospodarowania lub warunków zabudowy (np. kąt nachylenia i typ dachu, liczba kondygnacji itp.
    • jakie inne projekty pasują na Twoją działkę – znajdziemy je dla Ciebie!

Pow. użytkowa

146,77 m²

Pokoje

4

Łazienki i WC

3

Garaż

2

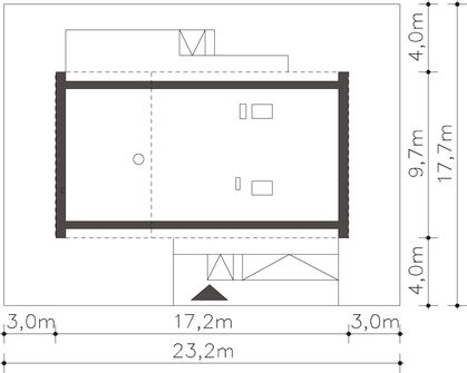
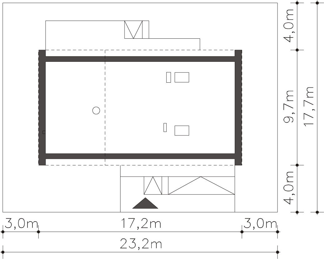
Min. szer. i dł. działki

23,2 x 17,70 m

Kąt dachu

20°

Szacunkowy koszt SSZ

373 000 zł
Szacunkowy koszt budowy do stanu surowego zamkniętego (SSZ) metodą gospodarczą - większość prac wykonuje inwestor.

Konstrukcja

Murowana
więcej

Temerin II DCP313a - WOB1582

ikona 146,77 m²
Powierzchnia użytkowa
ikona4
Pokoje (bez salonu)
ikona 3
Łazienki (z toaletami)
ikona 2
Liczba stanowisk garażowych
(z wiatą garażową)
ikona
Konstrukcja: Murowana

Cena projektu:

5 570 zł

Gwarancja najniższej ceny Gwarancja najniższej ceny Tooltip

Wydłużony czas realizacji Tooltip

GRATIS 10% rabatu do LEROY MERLIN

GRATIS 16% rabatu w SELSEY

GRATIS Przydatne Extradodatki

GRATIS Poradnik Dach Solarny

100 dni na wymianę, 30 dni na zwrot

Darmowa dostawa - kurier, paczkomaty

Bezpłatne pozwolenie na zmiany

Dokumentacja zgodna z WT2021

Pokaż więcej (6)
Konsultant Masz pytania?
Zadzwoń
71 715 20 60

pon.-pt. 8-21, sob. 9-17

Szukasz wykonawcy godnego zaufania?
Zleć budowę w Extradom.pl!

  • Z góry znasz koszt budowy domu
  • Dom odbierasz zgodnie z ustalonym harmonogramem - nawet w 6 miesięcy
  • Zabezpiecza Cię jedna kompleksowa umowa z jednym wykonawcą
  • Otrzymujesz nawet 30-letnią gwarancję na konstrukcję domu
  • Oszczędzasz swój czas dzięki pewnej i kompletnej usłudze
Cena brutto stanu
deweloperskiego od
Tooltip
Cena brutto stanu deweloperskiego od 4 209 do 5 379 zł/m2.
Cena jest uzależniona m.in. od lokalizacji, wybranej technologii, kubatury budynku, skomplikowania projektu i ewentualnych zmian, na które zdecyduje się inwestor.
Cena za m2 powierzchni netto, czyli wszystkich pomieszczeń mierzonych na wysokości podłogi.
4 209 zł/m2
Dowiedz się więcej
Konsultant Masz pytania?
Zadzwoń
71 715 20 70

pon.-pt. 8-19

Parter - 127,46 m²

Parter projektu Temerin II DCP313a

Zapytaj, co możesz zmienić

Powierzchnia (m²)
Tooltip
Powierzchnia pomieszczenia
to ta, z której faktycznie możesz korzystać – skosy i niskie części poddasza są liczone częściowo lub wcale.
  1. 100% dla wysokości powyżej 2,2 m,
  2. 50% dla wysokości 1,4–2,2 m,
  3. nie liczymy poniżej 1,4 m.

Powierzchnia podłogi
Liczymy po obrysie pomieszczenia, bez względu na jego wysokość/skosy. Jeśli nie ma skosów to powierzchnia podłogi i pomieszczenia jest taka sama.
pomieszczenia
podłogi
1. Wiatrołap
4,70
4,70
2. Korytarz
3,81
3,81
3. Spiżarnia
2,12
4,22
4. Kuchnia
9,22
9,22
5. Pokój dzienny
29,14
29,14
6. Pokój
13,71
13,71
7. Łazienka
2,38
2,38
8. Pomieszczenie gospodarcze
5,05
5,05
9. Kotłownia
9,17
9,17
10. Garaż dwustanowiskowy
33,73
33,73
11. Korytarz
14,43
14,43
Razem
127,46
129,56
12. Taras
29,41

Natychmiast, otrzymasz PDF-y
z rzutami wszystkich kondygnacji

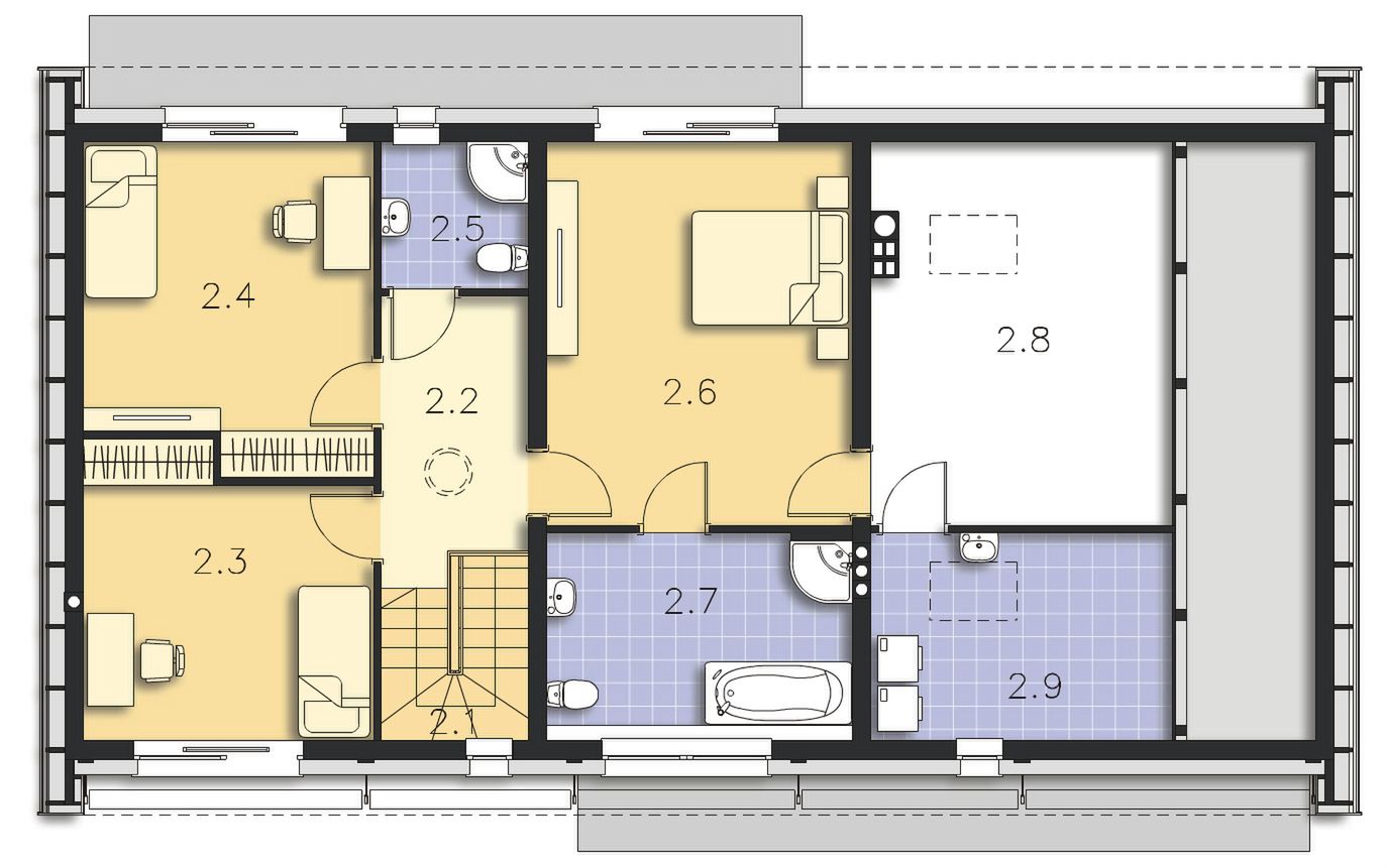
Poddasze - 84,73 m²

Poddasze projektu Temerin II DCP313a

Zapytaj, co możesz zmienić

Powierzchnia (m²)
Tooltip
Powierzchnia pomieszczenia
to ta, z której faktycznie możesz korzystać – skosy i niskie części poddasza są liczone częściowo lub wcale.
  1. 100% dla wysokości powyżej 2,2 m,
  2. 50% dla wysokości 1,4–2,2 m,
  3. nie liczymy poniżej 1,4 m.

Powierzchnia podłogi
Liczymy po obrysie pomieszczenia, bez względu na jego wysokość/skosy. Jeśli nie ma skosów to powierzchnia podłogi i pomieszczenia jest taka sama.
pomieszczenia
podłogi
1. Schody
4,12
4,12
2. Korytarz
6,71
6,71
3. Pokój
13,34
13,34
4. Pokój
15,18
15,18
5. Łazienka
3,55
3,55
6. Pokój
19,47
19,47
7. Łazienka
9,73
9,73
8. Strych
8,09
18,93
9. Pomieszczenie gospodarcze
4,54
10,39
Razem
84,73
101,42

Natychmiast, otrzymasz PDF-y
z rzutami wszystkich kondygnacji

Zamów rysunki szczegółowe

Zapoznaj się ze szczegółowymi rysunkami rzutów kondygnacji w PDF dla tego projektu.

Warianty projektu (1)

Projekt domu Temerin DCP313
Temerin DCP313
114,69 m²

5 170 zł

Podobne projekty (543)

Zobacz wszystkie
EXTRACENA
Nowość
Zdjęcie 1 projektu Dom na zgrabnej 3 WAH2155
Dom na zgrabnej 3
Dodano!
Dodano!
135,27 m²
4
3
2

5 592 zł

6 990 zł

Tooltip

Cena regularna

5 285 zł najniższa cena
Tooltip

Najniższa cena z 30 dni
przed obniżką

EXTRACENA
Nowość
Zdjęcie 1 projektu Dom na zgrabnej WAH2152
Dom na zgrabnej
Dodano!
Dodano!
134,23 m²
3
3
2

5 352 zł

6 690 zł

Tooltip

Cena regularna

5 048 zł najniższa cena
Tooltip

Najniższa cena z 30 dni
przed obniżką

EXTRACENA
Nowość
Zdjęcie 1 projektu Dom na zgrabnej 4 WAH2153
Dom na zgrabnej 4
Dodano!
Dodano!
134,23 m²
3
3
2

5 592 zł

6 990 zł

Tooltip

Cena regularna

5 352 zł najniższa cena
Tooltip

Najniższa cena z 30 dni
przed obniżką

EXTRACENA
Nowość
Zdjęcie 1 projektu Dom na zgrabnej 5 WAH2159
Dom na zgrabnej 5
Dodano!
Dodano!
134,25 m²
4
3
2

5 432 zł

6 790 zł

Tooltip

Cena regularna

5 192 zł najniższa cena
Tooltip

Najniższa cena z 30 dni
przed obniżką

EXTRACENA
Zdjęcie 1 projektu Wolta BSA2153
Wolta
Dodano!
Dodano!
158,28 m²
4
2
2

5 749 zł

6 149 zł

Tooltip

Cena regularna

5 349 zł najniższa cena
Tooltip

Najniższa cena z 30 dni
przed obniżką

EXTRACENA
Zdjęcie 1 projektu Pogodny BSA2203
Pogodny
Dodano!
Dodano!
137,62 m²
4
3
1

5 449 zł

5 849 zł

Tooltip

Cena regularna

5 049 zł najniższa cena
Tooltip

Najniższa cena z 30 dni
przed obniżką

EXTRACENA
Zdjęcie 1 projektu Dostrzegalny D71 WWB1080
Dostrzegalny D71
Dodano!
Dodano!
136,30 m²
4
2
2

4 999 zł

5 249 zł

Tooltip

Cena regularna

4 749 zł najniższa cena
Tooltip

Najniższa cena z 30 dni
przed obniżką

EXTRACENA
Zdjęcie 1 projektu AJR 09 A2 a WOJ1029
AJR 09 A2 a
Dodano!
Dodano!
156,50 m²
5
3
2

4 570 zł

4 900 zł

Tooltip

Cena regularna

4 600 zł najniższa cena
Tooltip

Najniższa cena z 30 dni
przed obniżką

Metody i koszt budowy

Ten dom możesz budować metodą gospodarczą, systemem zleconym lub skorzystać z naszej oferty Projekt z Budową. Przy porównaniu weź pod uwagę nie tylko koszt, ale też różny zakres prac i standard wykonania.

Metoda gospodarcza

Najtańsza metoda - większość prac
budowlanych wykonuje inwestor

Stan surowy zamknięty (SSZ)

373 000 zł netto

Szacunkowy koszt materiałów na IV kwartał 2025
  • Prace ziemne i fundamenty

    59 000 zł
  • Konstrukcja, strop oraz dach

    259 000 zł
  • Stolarka okienna i drzwiowa

    55 000 zł
  • Instalacje

    nie obejmuje
  • Prace wykończeniowe

    nie obejmuje
  • Możesz budować etapami, pamiętając jednak o zmianie kosztów w czasie
  • Możesz rozpocząć budowę z częścią niezbędnych środków
  • Sam ustalasz harmonogram, koordynujesz budowę i zapewniasz materiały
Czy da się obniżyć koszty budowy?
Zobacz nasz film jak obniżyć koszt budowy

Projekt z Budową

Najszybsza i najwygodniejsza metoda -
całą budowę domu realizuje jedna firma

Stan deweloperski
Gwarancja stałego kosztu budowy

Gwarancja stałego
kosztu budowy

  • Prace ziemne i fundamenty
  • Konstrukcja, strop oraz dach
  • Stolarka okienna i drzwiowa
  • Instalacje  
    Tooltip

    Obejmuje wykonanie instalacji:

    • wodno-kanalizacyjnej
    • centralnego ogrzewania
    • gazowej
    • elektrycznej
  • Prace wykończeniowe  
    Tooltip

    Prace wykończeniowe obejmują:

    • sufity i ściany wewnętrzne
    • tynki i okładziny ścian wewnętrznych
    • wylewki i posadzkę
    • ocieplenie ścian zewnętrznych i elewację

Budowa
nawet w
6mies.

  • Kompleksowa umowa i znany z góry koszt budowy
  • Logistyka, organizacja budowy i zakupy po stronie firmy budowlanej
  • Formalności i dokumentacje po stronie firmy budowlanej
  • Różne technologie budowy dopasowane do projektu i budżetu
Szczegóły i dostępne technologie

Elewacje

Frontowa
Tylna
Lewa
Prawa

Przekroje

Przekrój pionowy

Usytuowanie na działce

Czy ten projekt pasuje na
Twoją działkę?

Chętnie to sprawdzimy!

Czy ten projekt pasuje na
Twoją działkę?

Chętnie to sprawdzimy!

Dowiedz się:

  • czy zmieści się na niej wybrany przez Ciebie dom
  • jakie parametry musi spełniać dom według miejscowego planu zagospodarowania lub warunków zabudowy (np. kąt nachylenia i typ dachu, liczba kondygnacji itp.
  • jakie inne projekty pasują na Twoją działkę – znajdziemy je dla Ciebie!
Autor: Lipińscy Domy Biuro Projektowe

Dane techniczne projektu

Powierzchnie i wymiary Powierzchnie i wymiary

Powierzchnia użytkowa
Tooltip
Suma powierzchni wszystkich pomieszczeń mieszkalnych, pomniejszona o pow. garażu, kotłowni, strychu, piwnicy. Jest liczona w 100% dla pomieszczeń o wysokości powyżej 2,2 m, w 50% dla pomieszczeń o wys. 2,2-1,4 m i niewliczana dla niższych niż 1,4 m.

146,77 m²

Powierzchnia zabudowy
Tooltip
Powierzchnia zajmowana przez część na- oraz nadziemną budynku liczona, jako rzut pionowy budynku na działkę.

148,87 m²

Powierzchnia netto
Tooltip
Powierzchna wszystkich pomieszczeń w budynku mierzona na wysokości podłogi.

216,55 m²

Kubatura brutto
Tooltip
Zazwyczaj jest to suma kubatur (objętości) wszystkich pomieszczeń budynku, liczonych po zewnętrznym obrysie murów (z ociepleniem).

917 m³

Kąt nachylenia dachu
Tooltip
Nachylenie połaci dachu głównego podawane w stopniach. Uwaga! W niektórych projektach występuje więcej niż jedno nachylenie dachu.

20°

Wysokość budynku
Tooltip
Wysokość liczona od części budynku położonej najniżej przy powierzchni terenu do najwyższego punktu dachu (kalenicy) z wyłączeniem kominów.

7,88 m

Szerokość elewacji

17,20 m

Długość elewacji

9,70 m

Min. szerokość działki
Tooltip
Najmniejsza możliwa szerokość działki niezbędna do wybudowania wybranego domu. Składa się z szerokości elewacji domu powiększonej z obu stron o 3 m dla ściany bez otworów drzwiowych/okiennych lub 4 m, dla ściany z otworami.

23,20 m

Min. długość działki
Tooltip
Najmniejsza możliwa długość działki niezbędna do wybudowania wybranego domu. Składa się z długości elewacji domu powiększonej z obu stron o 3 m dla ściany bez otworów drzwiowych/okiennych lub 4 m, dla ściany z otworami.

17,70 m

Energooszczędność Energooszczędność

Oze Czym jest OZE (Odnawialne Źródło Energii)?
Euco
Tooltip
Energia użytkowa potrzebna do ogrzewania i wentylacji. Im parametr jest niższy tym budynek bardziej energooszczędny.

27,74 kWh/(m²rok)

Ogrzewanie główne

Gazowe - szczegóły

Interesuje Cię inne źródło ogrzewania? Wyślij zapytanie lub zadzwoń do doradcy

Wentylacja

Mechaniczna nawiewno-wywiewna z rekuperacją - szczegóły

Warunki techniczne

Projekt zgody z WT 2021

Technologia i konstrukcja Technologia i konstrukcja

Konstrukcja

Murowana

PROJEKT Z BUDOWĄ Istnieje możliwość zaadaptowania tego projektu do technologii prefabrykowanej/modułowej i budowy nawet w 6 miesięcy ze stałym kosztem budowy

Dowiedz się więcej »
Opis szczegółowy

Fundamenty - rozwiązanie o podwyższonej izolacji termicznej. Ściany zewnętrzne - Bloczek silikatowy 24 cm + styropian 20 cm. Strop - gęstożebrowy. Dach - tradycyjna więźba ciesielska. Ogrzewanie - c.o. grzejnikowe + c.w.u. - kocioł gazowy. Wentylacja - rekuperacja.

Strop

Gęstożebrowy

Reklama
Okna i drzwi tarasowe

Nowoczesne okna PVC i aluminiowe WIŚNIOWSKI – doskonała izolacja, elegancki design i niezrównana trwałość.

Wiśniowski
Sprawdź parametry!
Okna dachowe

Oferujemy bezpłatne konsultacje w zakresie wszystkich rozwiązań VELUX. Wyceny, porady dotyczące doboru okien i rolet zewnętrznych - sprawdź!

Velux
Sprawdź szczegóły
Płytki ceramiczne i gresy

Od małych formatów po wielkoformatowe gresy. Marmur, beton, drewno, kamień, lastryko czy cegiełki zamówisz wygodnie online z szybką dostawą.

Ceramzet
Sprawdź ofertę
Drzwi

Ciepłe drzwi WIŚNIOWSKI z kontrolą dostępu. Szeroka gama wzorów i kolorów.

Wiśniowski
Wybierz najlepsze
Bramy garażowe

Automatyczne bramy garażowe segmentowe i uchylne WIŚNIOWSKI na wymiar i z systemem smart home w standardzie.

Wiśniowski
Sprawdź ofertę!
Armatura i ceramika łazienkowa

Topowi producenci. Baterie łazienkowe, zestawy natynkowe i podtynkowe, umywalki, wanny, miski WC oraz kabiny zamówisz kompleksowo online.

Ceramzet II
Dowiedz się więcej
Rekuperacja

Alnor - kompletny system rekuperacji. Dobierz idealne rozwiązanie dla Twojego domu!

Alnor
Dobierz rekuperator
Dach

Producent stalowych pokryć dachowych i systemów elewacyjnych. Precyzja wykonania, trwałość na lata i szybki montaż doceniany przez dekarzy. Postaw na solidny dach Budmat.

Budmat
Sprawdź ofertę
Ogrodzenie

Nowoczesne stalowe ogrodzenia Budmat - estetyka, bezpieczeństwo i trwałość na lata. Systemowe rozwiązania na wymiar, dopasowane do każdego domu.

Budmat
Sprawdź ofertę

Gotowe domy modułowe (118)

Zobacz wszystkie
Stan deweloperski nawet w 6 miesięcy Gwarancja stałej ceny
Zdjęcie 1 projektu Dom szkieletowy Open Sky 195 HHT1029
Pow. użytkowa
145,04 m²
Pokoje
4
940 300 zł 6 483 zł/m²
Zdjęcie 1 projektu Dom prefabrykowany Stodoła 150B HFX1025
Pow. użytkowa
151,30 m²
Pokoje
4
589 000 zł 3 893 zł/m²
Zdjęcie 1 projektu Dom prefabrykowany Stodoła 150A HFX1024
Pow. użytkowa
152,20 m²
Pokoje
5
589 000 zł 3 870 zł/m²
Zdjęcie 1 projektu Dom prefabrykowany Stodoła 150C HFX1026
Pow. użytkowa
152,90 m²
Pokoje
5
589 000 zł 3 852 zł/m²
Zdjęcie 1 projektu Dom prefabrykowany P.1 z okapem HPK1000
Pow. użytkowa
139,44 m²
Pokoje
3
721 000 zł 5 171 zł/m²
Zdjęcie 1 projektu Dom prefabrykowany P.1 bez okapu HPK1012
Pow. użytkowa
139,44 m²
Pokoje
3
699 800 zł 5 019 zł/m²
Zdjęcie 1 projektu Dom prefabrykowany P.5 HPK1004
Pow. użytkowa
138,67 m²
Pokoje
5
772 700 zł 5 572 zł/m²
Zdjęcie 1 projektu Dom prefabrykowany DEX136 HDX1002
Pow. użytkowa
136 m²
Pokoje
4
895 700 zł 6 586 zł/m²

Opis projektu domu
Temerin II DCP313a

Projekt domu Temerin II DCP313a jest opcją cieszącego się popularnością projektu Temerin DCP313. W przeciwieństwie do bazowej wersji projekt ma większą powierzchnię. Projekt domu Temerin II DCP313a odpowiedni do zrealizowania na średniej szerokości działkę. Dom posiada prostą bryłę, co znacznie ułatwia późniejszą aranżację wnętrza. W tym projekcie kalenica usytuowana jest prostopadle do drogi, co jest bardzo istotne, gdy wymaga tego plan zagospodarowania przestrzennego. Kierowany jest do Inwestorów posiadających działkę pozwalającą na realizację projektu w zabudowie wolnostojącej. W projekcie zaproponowano garaż dwustanowiskowy w bryle budynku. Jest to również ciekawa propozycja dla osób szukających domu z dachem dwuspadowym, który jest prosty i ekonomiczny w realizacji. Projekt Temerin II DCP313a to dom parterowy z poddaszem użytkowym, dzięki czemu możemy cieszyć się sporym metrażem nawet na stosunkowo niedużej działce. Warto zwrócić uwagę na przestronną część dzienną. Tworzy ją między innymi kuchnia, która będzie idealnym rozwiązaniem zarówno dla tradycyjnych, jak i nowoczesnych gospodyń domowych. Zwolenników praktycznych rozwiązań niewątpliwie ucieszy fakt, iż przewidziano także miejsce na spiżarkę. Projekt uwzględnia jedną łazienkę na parterze i dwie na poddaszu. Cztery sypialnie doskonale sprawdzą się w przypadku 4-6 osobowej rodziny. Przestrzeń można wykorzystać także jako pokój dla gości lub gabinet. Oprócz tego, w domu znajduje się również pomieszczenie gospodarcze, które można wykorzystać zgodnie z własnymi potrzebami. Ciągłość pomiędzy wnętrzem domu a ogrodem zapewnia atrakcyjny taras. Budynek został zaprojektowany w technologii murowanej. W jego bryle widoczne są rozwiązania nawiązujące do stylu nowoczesnego, co jest idealnym rozwiązaniem dla osób ceniących najnowsze rozwiązania.
Czytaj więcej

Polecani producenci

Kompletne systemy rekuperacji

tło producenta

Alnor

Dowiedz się więcej

Prefabrykowane konstrukcje dachowe

tło producenta

WIĄZAR POLSKA

Zobacz więcej

Sprawdź nową generację okien GREENVIEW

tło producenta

FAKRO

Sprawdź nową generację okien GREENVIEW

Styropian, tynki, farby, kleje

tło producenta

Termo Organika

Poznaj super jakość

Okna, drzwi, osłony przeciwsłoneczne

tło producenta

Aluprof

Sprawdź ofertę
Zobacz więcej

Społeczność projektu domu
Temerin II DCP313a w budowie

Dołącz do społeczności osób, które budują ten dom lub są zainteresowane jego budową.

  • Oglądaj zdjęcia z budowy
  • Zadawaj pytania
  • Wymieniaj się doświadczeniami

Opinie o projekcie domu Temerin II DCP313a

Ocena

Ten projekt nie ma jeszcze opinii, bądź pierwszy!

Dodaj opinię

ASYSTENT WYBORU PROJEKTU

Szukasz idealnego projektu? Znajdziemy go dla Ciebie!

Doradca na podstawie Twoich wskazówek przygotuje spersonalizowaną listę projektów

Graficzne opracowanie rzutów poglądowych widocznych na karcie projektu zostało wykonane przez Extradom.pl. Prezentowane przez Extradom.pl wizualizacje wykonane zostały przez autora projektu i należy poczytywać je jedynie za przykład i propozycję wykończenia, wizję architektoniczną autora projektu. Ostateczne wykończenie budynku może nastąpić na wiele sposobów. Szczegółowe rozwiązania zastosowane w oferowanej dokumentacji - w tym również ilość, lokalizacje i wygląd okien, drzwi, kominów - mogą w niewielkim stopniu różnić się od prezentowanej wizualizacji budynku.

Extradom.pl Spółka z ograniczoną odpowiedzialnością z siedzibą przy ul. Jaworskiej 13, 53-612 Wrocław, wpisana do rejestru przedsiębiorców Krajowego Rejestru Sądowego przez Sąd Rejonowy dla Wrocławia-Fabrycznej we Wrocławiu, VI Wydział Gospodarczy Krajowego Rejestru Sądowego do pod numerem KRS 0000648746, numer NIP 895-17-18-333, o kapitale zakładowym 708 150,00 zł uprzejmie informuje, iż poprzez serwis Extradom.pl umożliwia m.in. zapoznanie się przez konsumentów z ofertą handlową Partnerów Extradom.pl, którzy stosują metody budowy domów przy wykorzystaniu różnego rodzaju technologie prefabrykacji bądź modułowe (tzw. „Gotowe domy”).

Extradom.pl nie prowadzi jednakże sprzedaży ani nie oferuje usług polegających na doradztwie finansowym, prawnym ani podatkowym w zakresie inwestycji realizowanych w technologiach tzw. „Gotowych domów”. Informacje prezentowane w serwisie Extradom.pl dotyczące Partnerów Extradom.pl oferujących realizację inwestycji w technologiach „Gotowych domów” lub podobnych mają charakter informacyjny i reklamowy.

Prezentowane w serwisie Extradom.pl informacje dotyczące stosowanych przez Partnerów metod budowy domów w technologii prefabrykacji bądź modułowej pochodzą od Partnerów Extradom.pl.

Extradom.pl sp. z o.o. jedynie umożliwia nawiązanie kontaktu przez Użytkownika z Partnerem Extradom.pl stosującym tego rodzaju technologie budowy domów i nie jest stroną umowy o roboty budowlane zawieranej przez Użytkownika Extradom.pl z Partnerem Extradom.pl.

REKLAMA
Zamknij