Projekty nawet 500 zł taniej ❄️

Koniec oferty za:

00godz.

00min.

00sek.

Sprawdź

Projekt domu T47_25 WAF1025

Dodano!
Dodano!

Warstwy

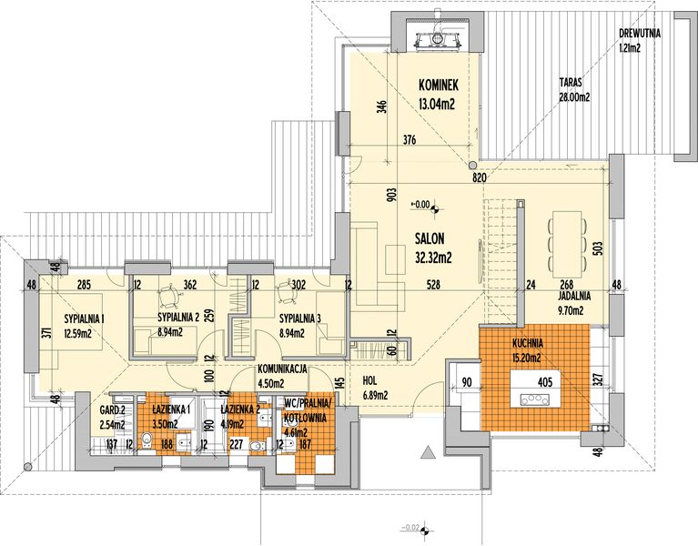
Rzut parteru

Powierzchnia (m²)
Tooltip
Powierzchnia pomieszczenia
to ta, z której faktycznie możesz korzystać – skosy i niskie części poddasza są liczone częściowo lub wcale.
  1. 100% dla wysokości powyżej 2,2 m,
  2. 50% dla wysokości 1,4–2,2 m,
  3. nie liczymy poniżej 1,4 m.

Powierzchnia podłogi
Liczymy po obrysie pomieszczenia, bez względu na jego wysokość/skosy. Jeśli nie ma skosów to powierzchnia podłogi i pomieszczenia jest taka sama.
pomieszczenia
podłogi
1. Hall
6,89
6,89
2. Korytarz
4,50
4,50
3. Kotłownia
4,61
4,61
4. Łazienka
4,19
4,19
5. Łazienka
3,50
3,50
6. Garderoba
2,54
2,54
7. Pokój
12,59
12,59
8. Pokój
8,94
8,94
9. Pokój
8,94
8,94
10. Pokój dzienny
32,32
32,32
11. Pokój
13,04
13,04
12. Jadalnia
9,70
9,70
13. Kuchnia
15,20
15,20
15. Drewutnia
1,21
Razem
126,96
128,17
14. Taras
28

    Usytuowanie na działce

    Czy ten projekt pasuje na
    Twoją działkę?

    Chętnie to sprawdzimy!

    Dowiedz się:

    • czy zmieści się na niej wybrany przez Ciebie dom
    • jakie parametry musi spełniać dom według miejscowego planu zagospodarowania lub warunków zabudowy (np. kąt nachylenia i typ dachu, liczba kondygnacji itp.
    • jakie inne projekty pasują na Twoją działkę – znajdziemy je dla Ciebie!

Pow. użytkowa

126,96 m²

Pokoje

4

Łazienki i WC

2

Garaż

0

Min. szer. i dł. działki

27,01 x 23,21 m

Kąt dachu

25°
więcej

T47_25 - WAF1025

ikona 126,96 m²
Powierzchnia użytkowa
ikona4
Pokoje (bez salonu)
ikona 2
Łazienki (z toaletami)
ikona 0
Liczba stanowisk garażowych
(z wiatą garażową)

Projekt został
wycofany z oferty

W razie pytań prosimy o kontakt
z Centrum Obsługi Klienta
Konsultant Masz pytania?
Zadzwoń
71 715 20 60

pon.-pt. 8-21, sob. 9-17

Parter - 126,96 m²

Parter projektu T47_25

Zapytaj, co możesz zmienić

Powierzchnia (m²)
Tooltip
Powierzchnia pomieszczenia
to ta, z której faktycznie możesz korzystać – skosy i niskie części poddasza są liczone częściowo lub wcale.
  1. 100% dla wysokości powyżej 2,2 m,
  2. 50% dla wysokości 1,4–2,2 m,
  3. nie liczymy poniżej 1,4 m.

Powierzchnia podłogi
Liczymy po obrysie pomieszczenia, bez względu na jego wysokość/skosy. Jeśli nie ma skosów to powierzchnia podłogi i pomieszczenia jest taka sama.
pomieszczenia
podłogi
1. Hall
6,89
6,89
2. Korytarz
4,50
4,50
3. Kotłownia
4,61
4,61
4. Łazienka
4,19
4,19
5. Łazienka
3,50
3,50
6. Garderoba
2,54
2,54
7. Pokój
12,59
12,59
8. Pokój
8,94
8,94
9. Pokój
8,94
8,94
10. Pokój dzienny
32,32
32,32
11. Pokój
13,04
13,04
12. Jadalnia
9,70
9,70
13. Kuchnia
15,20
15,20
15. Drewutnia
1,21
Razem
126,96
128,17
14. Taras
28

Podobne projekty (6532)

Zobacz wszystkie
NIŻSZA CENA❄️
Zdjęcie 1 projektu Sej-pro 055 energo ELW1034
Sej-pro 055 energo
Dodano!
Dodano!
119,77 m²
3
3
2

5 197 zł

5 497 zł

Tooltip

Cena regularna

4 897 zł najniższa cena
Tooltip

Najniższa cena z 30 dni
przed obniżką

NIŻSZA CENA❄️
Zdjęcie 1 projektu PióroArchitekci – 19 KZN1008
PióroArchitekci – 19
Dodano!
Dodano!
132,50 m²
4
2
0

4 000 zł

4 300 zł

Tooltip

Cena regularna

3 900 zł najniższa cena
Tooltip

Najniższa cena z 30 dni
przed obniżką

Zdjęcie 1 projektu Gustowny 02a KZB1037
Gustowny 02a
Dodano!
Dodano!
151,49 m²
3
3
2

4 600 zł

NIŻSZA CENA❄️
Zdjęcie 1 projektu Wąski 2 WAH2054
Wąski 2
Dodano!
Dodano!
123,72 m²
4
2
0

4 872 zł

6 090 zł

Tooltip

Cena regularna

4 567 zł najniższa cena
Tooltip

Najniższa cena z 30 dni
przed obniżką

NIŻSZA CENA❄️
Zdjęcie 1 projektu Wspaniały WAH2020
Wspaniały
Dodano!
Dodano!
101,12 m²
3
2
1

4 472 zł

5 590 zł

Tooltip

Cena regularna

4 192 zł najniższa cena
Tooltip

Najniższa cena z 30 dni
przed obniżką

NIŻSZA CENA❄️
Zdjęcie 1 projektu EG-91 wariant I WWB1121
EG-91 wariant I
Dodano!
Dodano!
108,29 m²
3
2
2

4 449 zł

4 699 zł

Tooltip

Cena regularna

4 299 zł najniższa cena
Tooltip

Najniższa cena z 30 dni
przed obniżką

NIŻSZA CENA❄️
Zdjęcie 1 projektu Dom przy Kwiatowej 3 KRK1605
Dom przy Kwiatowej 3
Dodano!
Dodano!
120 m²
4
2
2

3 490 zł

3 990 zł

Tooltip

Cena regularna

3 390 zł najniższa cena
Tooltip

Najniższa cena z 30 dni
przed obniżką

Zdjęcie 1 projektu Dwie bryły 04 KZB1036
Dwie bryły 04
Dodano!
Dodano!
120,78 m²
3
2
1

4 600 zł

Elewacje

Frontowa
Tylna
Lewa
Prawa

Przekroje

Przekrój pionowy

Usytuowanie na działce

Czy ten projekt pasuje na
Twoją działkę?

Chętnie to sprawdzimy!

Czy ten projekt pasuje na
Twoją działkę?

Chętnie to sprawdzimy!

Dowiedz się:

  • czy zmieści się na niej wybrany przez Ciebie dom
  • jakie parametry musi spełniać dom według miejscowego planu zagospodarowania lub warunków zabudowy (np. kąt nachylenia i typ dachu, liczba kondygnacji itp.
  • jakie inne projekty pasują na Twoją działkę – znajdziemy je dla Ciebie!
Autor: NUX

Dane techniczne projektu

Powierzchnie i wymiary Powierzchnie i wymiary

Powierzchnia użytkowa
Tooltip
Suma powierzchni wszystkich pomieszczeń mieszkalnych, pomniejszona o pow. garażu, kotłowni, strychu, piwnicy. Jest liczona w 100% dla pomieszczeń o wysokości powyżej 2,2 m, w 50% dla pomieszczeń o wys. 2,2-1,4 m i niewliczana dla niższych niż 1,4 m.

126,96 m²

Powierzchnia zabudowy
Tooltip
Powierzchnia zajmowana przez część na- oraz nadziemną budynku liczona, jako rzut pionowy budynku na działkę.

204,71 m²

Powierzchnia dachu

273 m²

Kąt nachylenia dachu
Tooltip
Nachylenie połaci dachu głównego podawane w stopniach. Uwaga! W niektórych projektach występuje więcej niż jedno nachylenie dachu.

25°

Wysokość budynku
Tooltip
Wysokość liczona od części budynku położonej najniżej przy powierzchni terenu do najwyższego punktu dachu (kalenicy) z wyłączeniem kominów.

6,35 m

Min. szerokość działki
Tooltip
Najmniejsza możliwa szerokość działki niezbędna do wybudowania wybranego domu. Składa się z szerokości elewacji domu powiększonej z obu stron o 3 m dla ściany bez otworów drzwiowych/okiennych lub 4 m, dla ściany z otworami.

27,01 m

Min. długość działki
Tooltip
Najmniejsza możliwa długość działki niezbędna do wybudowania wybranego domu. Składa się z długości elewacji domu powiększonej z obu stron o 3 m dla ściany bez otworów drzwiowych/okiennych lub 4 m, dla ściany z otworami.

23,21 m

Energooszczędność Energooszczędność

Oze Czym jest OZE (Odnawialne Źródło Energii)?
Warunki techniczne

Projekt zgody z WT 2021

Gotowe domy modułowe (114)

Zobacz wszystkie
Stan deweloperski nawet w 6 miesięcy Gwarancja stałej ceny
Zdjęcie 1 projektu Dom prefabrykowany Piętrowy 130A HFX1021
Pow. użytkowa
130,40 m²
Pokoje
4
539 000 zł 4 133 zł/m²
Zdjęcie 1 projektu Dom prefabrykowany P.11 HPK1011
Pow. użytkowa
122,88 m²
Pokoje
3
681 300 zł 5 544 zł/m²
Zdjęcie 1 projektu Dom prefabrykowany Parterowy 120B HFX1016
Pow. użytkowa
122,36 m²
Pokoje
3
489 000 zł 3 996 zł/m²
Zdjęcie 1 projektu Dom prefabrykowany Piętrowy 130B HFX1022
Pow. użytkowa
131,60 m²
Pokoje
5
539 000 zł 4 096 zł/m²
Zdjęcie 1 projektu Dom szkieletowy Twin Smart 170 HHT1031
Pow. użytkowa
121,95 m²
Pokoje
5
1 650 700 zł 13 536 zł/m²
Zdjęcie 1 projektu Dom prefabrykowany Piętrowy 130C HFX1023
Pow. użytkowa
132 m²
Pokoje
4
539 000 zł 4 083 zł/m²
Zdjęcie 1 projektu Dom prefabrykowany P.3 z okapem HPK1013
Pow. użytkowa
121,46 m²
Pokoje
5
600 100 zł 4 941 zł/m²
Zdjęcie 1 projektu Dom prefabrykowany P.3 bez okapu HPK1002
Pow. użytkowa
121,46 m²
Pokoje
5
594 000 zł 4 890 zł/m²

Opis projektu domu
T47_25

Projekt domu T47_25 odpowiedni do zrealizowania na średniej szerokości działkę. Dom cechuje się bryłą w kształcie litery L, co sprawia, że oryginalnie się prezentuje. Projekt należy do kategorii domów z kalenicą skierowaną równolegle do drogi, co jest istotne ze względu na wymagania określone w planie zagospodarowania przestrzennego. Jest przeznaczony do zabudowy wolnostojącej. Konstrukcja budynku zwieńczona jest dachem wielospadowym, który ciekawie się prezentuje. Projekt T47_25 to dom parterowy, dzięki czemu poruszanie się po nim jest bardzo wygodne. Warto zwrócić uwagę na przestronną część dzienną. Kuchnia zamknięta daje nieograniczone możliwości aranżacyjne, gdyż jej styl nie musi dorównywać stylowi salonu. Uwzględnione miejsce w kuchni na wyspę z pewnością przypadnie do gustu zwolennikom nowoczesnych i funkcjonalnych rozwiązań. Strefę dzienną tworzy salon oraz jadalnia, co z pewnością zadowoli zwolenników funkcjonalnych rozwiązań. Autor projektu przewidział w nim dwie łazienki o optymalnych wymiarach. Część nocną tworzą cztery sypialnie, które dobrze sprawdzą się w przypadku 4-6 osobowej rodziny. Przestrzeń można wykorzystać także jako pokój dla gości lub gabinet. Niewątpliwą zaletą projektu jest przewidziana w nim funkcjonalna garderoba. Taras przy domu sprzyja spędzaniu czasu na świeżym powietrzu. W jego bryle widoczne są rozwiązania nawiązujące do stylu nowoczesnego, co jest idealnym rozwiązaniem dla osób ceniących najnowsze rozwiązania.
Czytaj więcej

Polecani producenci

Prefabrykowane konstrukcje dachowe

tło producenta

WIĄZAR POLSKA

Zobacz więcej

Sprawdź nową generację okien GREENVIEW

tło producenta

FAKRO

Sprawdź nową generację okien GREENVIEW

Styropian, tynki, farby, kleje

tło producenta

Termo Organika

Poznaj super jakość

Okna, drzwi, osłony przeciwsłoneczne

tło producenta

Aluprof

Sprawdź ofertę

Kompletne systemy rekuperacji

tło producenta

Alnor

Dowiedz się więcej

Sprawdź nowy system DACHRYNNA

tło producenta

Galeco

Sprawdź ofertę
Zobacz więcej

Społeczność projektu domu
T47_25 w budowie

Dołącz do społeczności osób, które budują ten dom lub są zainteresowane jego budową.

  • Oglądaj zdjęcia z budowy
  • Zadawaj pytania
  • Wymieniaj się doświadczeniami

Opinie o projekcie domu T47_25

Ocena

Ten projekt nie ma jeszcze opinii, bądź pierwszy!

Dodaj opinię

ASYSTENT WYBORU PROJEKTU

Szukasz idealnego projektu? Znajdziemy go dla Ciebie!

Doradca na podstawie Twoich wskazówek przygotuje spersonalizowaną listę projektów

Graficzne opracowanie rzutów poglądowych widocznych na karcie projektu zostało wykonane przez Extradom.pl. Prezentowane przez Extradom.pl wizualizacje wykonane zostały przez autora projektu i należy poczytywać je jedynie za przykład i propozycję wykończenia, wizję architektoniczną autora projektu. Ostateczne wykończenie budynku może nastąpić na wiele sposobów. Szczegółowe rozwiązania zastosowane w oferowanej dokumentacji - w tym również ilość, lokalizacje i wygląd okien, drzwi, kominów - mogą w niewielkim stopniu różnić się od prezentowanej wizualizacji budynku.

REKLAMA
Zamknij