👉 Rozgrzewające rabaty! 🔥

Projekt domu T-Squar WAF1034

Dodano!
Dodano!

Warstwy

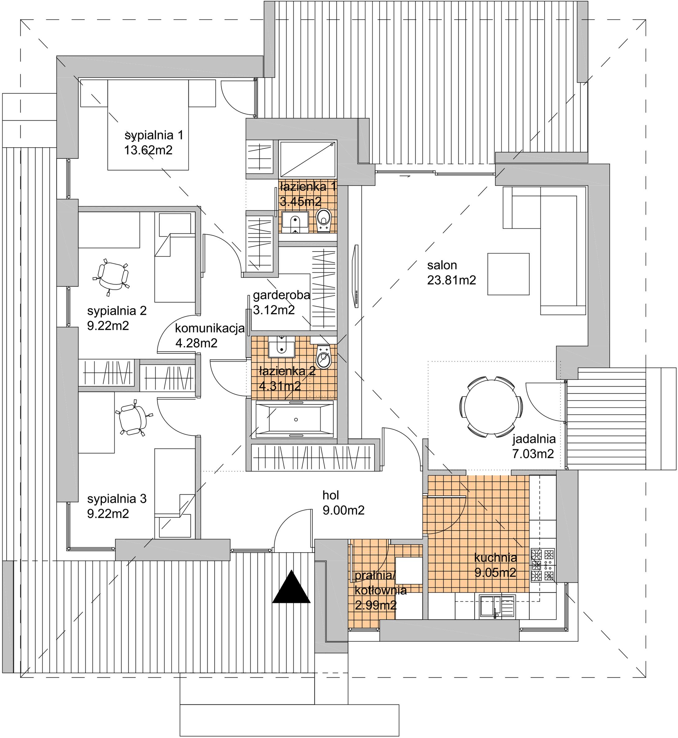
Rzut parteru

Powierzchnia (m²)
Tooltip
Powierzchnia pomieszczenia
to ta, z której faktycznie możesz korzystać – skosy i niskie części poddasza są liczone częściowo lub wcale.
  1. 100% dla wysokości powyżej 2,2 m,
  2. 50% dla wysokości 1,4–2,2 m,
  3. nie liczymy poniżej 1,4 m.

Powierzchnia podłogi (wartość w nawiasie)
Liczymy po całym obrysie pomieszczenia, bez względu na jego wysokość.
99,10
1. Hall
9
2. Pokój
9,22
3. Pokój
9,22
4. Pokój
13,62
5. Łazienka
3,45
6. Garderoba
3,12
7. Korytarz
4,28
8. Łazienka
4,31
9. Pokój dzienny
23,81
10. Jadalnia
7,03
11. Kuchnia
9,05
12. Kotłownia
2,99

    Usytuowanie na działce

    Czy ten projekt pasuje na
    Twoją działkę?

    Chętnie to sprawdzimy!

    Dowiedz się:

    • czy zmieści się na niej wybrany przez Ciebie dom
    • jakie parametry musi spełniać dom według miejscowego planu zagospodarowania lub warunków zabudowy (np. kąt nachylenia i typ dachu, liczba kondygnacji itp.
    • jakie inne projekty pasują na Twoją działkę – znajdziemy je dla Ciebie!

Pow. użytkowa

99,10 m²

Pokoje

3

Łazienki i WC

2

Garaż

0

Min. szer. i dł. działki

19,54 x 21,95 m

Kąt dachu

25°

Konstrukcja

Murowana
więcej

T-Squar - WAF1034

ikona 99,10 m²
Powierzchnia użytkowa
ikona3
Pokoje (bez salonu)
ikona 2
Łazienki (z toaletami)
ikona 0
Liczba stanowisk garażowych
(z wiatą garażową)
ikona
Konstrukcja: Murowana

Projekt został
wycofany z oferty

W razie pytań prosimy o kontakt
z Centrum Obsługi Klienta
Konsultant Masz pytania?
Zadzwoń
71 715 20 02

pon.-pt. 8-21, sob. 9-17

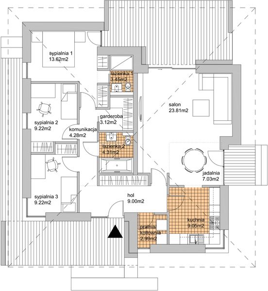
Parter - 99,10 m²

Parter projektu T-Squar

Zapytaj, co możesz zmienić

Powierzchnia (m²)
Tooltip
Powierzchnia pomieszczenia
to ta, z której faktycznie możesz korzystać – skosy i niskie części poddasza są liczone częściowo lub wcale.
  1. 100% dla wysokości powyżej 2,2 m,
  2. 50% dla wysokości 1,4–2,2 m,
  3. nie liczymy poniżej 1,4 m.

Powierzchnia podłogi (wartość w nawiasie)
Liczymy po całym obrysie pomieszczenia, bez względu na jego wysokość.
(99,10)
99,10
1. Hall
9
2. Pokój
9,22
3. Pokój
9,22
4. Pokój
13,62
5. Łazienka
3,45
6. Garderoba
3,12
7. Korytarz
4,28
8. Łazienka
4,31
9. Pokój dzienny
23,81
10. Jadalnia
7,03
11. Kuchnia
9,05
12. Kotłownia
2,99

Podobne projekty (6313)

Zobacz wszystkie
Zdjęcie 1 projektu TK83 WBE1001
TK83
Dodano!
Dodano!
104,13 m²
3
2
0

3 950 zł

NIŻSZA CENA ✂️
Zdjęcie 1 projektu Dom przy Bukowej 39 KRK1638
Dom przy Bukowej 39
Dodano!
Dodano!
82,16 m²
2
2
0

3 790 zł

4 290 zł

Tooltip

Cena regularna

3 690 zł najniższa cena
Tooltip

Najniższa cena z 30 dni
przed obniżką

Zdjęcie 1 projektu House 13 WRG1017
House 13
Dodano!
Dodano!
92,88 m²
3
1
0

5 190 zł

NIŻSZA CENA ✂️
Zdjęcie 1 projektu Dom przy Bukowej 38 KRK1637
Dom przy Bukowej 38
Dodano!
Dodano!
96,23 m²
3
2
0

3 690 zł

4 190 zł

Tooltip

Cena regularna

3 590 zł najniższa cena
Tooltip

Najniższa cena z 30 dni
przed obniżką

Nowość
Zdjęcie 1 projektu Gustowny 03 KZB1042
Gustowny 03
Dodano!
Dodano!
111,50 m²
3
2
0

4 300 zł

NIŻSZA CENA ✂️
Zdjęcie 1 projektu Dom przy Pastelowej 28 KRK1669
Dom przy Pastelowej 28
Dodano!
Dodano!
88,45 m²
2
2
0

3 290 zł

3 790 zł

Tooltip

Cena regularna

3 190 zł najniższa cena
Tooltip

Najniższa cena z 30 dni
przed obniżką

NIŻSZA CENA ✂️
Zdjęcie 1 projektu Tebe energo WOE1201
Tebe energo
Dodano!
Dodano!
81,35 m²
3
1
0

3 899 zł

3 999 zł

Tooltip

Cena regularna

3 799 zł najniższa cena
Tooltip

Najniższa cena z 30 dni
przed obniżką

NIŻSZA CENA ✂️
Zdjęcie 1 projektu Borówka 5 dr-S BSA2078
Borówka 5 dr-S
Dodano!
Dodano!
110,80 m²
3
2
0

4 399 zł

4 749 zł

Tooltip

Cena regularna

4 249 zł najniższa cena
Tooltip

Najniższa cena z 30 dni
przed obniżką

Elewacje

Frontowa
Tylna
Lewa
Prawa

Przekroje

Przekrój pionowy

Usytuowanie na działce

Czy ten projekt pasuje na
Twoją działkę?

Chętnie to sprawdzimy!

Czy ten projekt pasuje na
Twoją działkę?

Chętnie to sprawdzimy!

Dowiedz się:

  • czy zmieści się na niej wybrany przez Ciebie dom
  • jakie parametry musi spełniać dom według miejscowego planu zagospodarowania lub warunków zabudowy (np. kąt nachylenia i typ dachu, liczba kondygnacji itp.
  • jakie inne projekty pasują na Twoją działkę – znajdziemy je dla Ciebie!
Autor: NUX

Dane techniczne projektu

Powierzchnie i wymiary Powierzchnie i wymiary

Powierzchnia użytkowa
Tooltip
Suma powierzchni wszystkich pomieszczeń mieszkalnych, pomniejszona o pow. garażu, kotłowni, strychu, piwnicy. Jest liczona w 100% dla pomieszczeń o wysokości powyżej 2,2 m, w 50% dla pomieszczeń o wys. 2,2-1,4 m i niewliczana dla niższych niż 1,4 m.

99,10 m²

Powierzchnia zabudowy
Tooltip
Powierzchnia zajmowana przez część na- oraz nadziemną budynku liczona, jako rzut pionowy budynku na działkę.

128,61 m²

Powierzchnia dachu

221 m²

Kąt nachylenia dachu
Tooltip
Nachylenie połaci dachu głównego podawane w stopniach. Uwaga! W niektórych projektach występuje więcej niż jedno nachylenie dachu.

25°

Wysokość budynku
Tooltip
Wysokość liczona od części budynku położonej najniżej przy powierzchni terenu do najwyższego punktu dachu (kalenicy) z wyłączeniem kominów.

7,02 m

Min. szerokość działki
Tooltip
Najmniejsza możliwa szerokość działki niezbędna do wybudowania wybranego domu. Składa się z szerokości elewacji domu powiększonej z obu stron o 3 m dla ściany bez otworów drzwiowych/okiennych lub 4 m, dla ściany z otworami.

19,54 m

Min. długość działki
Tooltip
Najmniejsza możliwa długość działki niezbędna do wybudowania wybranego domu. Składa się z długości elewacji domu powiększonej z obu stron o 3 m dla ściany bez otworów drzwiowych/okiennych lub 4 m, dla ściany z otworami.

21,95 m

Energooszczędność Energooszczędność

Oze Czym jest OZE (Odnawialne Źródło Energii)?
Warunki techniczne

Projekt zgody z WT 2021

Technologia i konstrukcja Technologia i konstrukcja

Konstrukcja

Murowana

Opis szczegółowy

Ławy fundamentowe ze ścianami fundamentowymi: z bloczków betonowych. Ściany zewnętrzne: Ytong energo 48 cm (U=0,19). Ściany wewnętrzne: G-K 12 cm. Dach: blachodachówka lub dachówka ceramiczna. Elewacje: tynk akrylowy na fragmentach włóknowo - cementowe gr. 0,8 cm.

Reklama
Okna i drzwi tarasowe

Nowoczesne okna PVC i aluminiowe WIŚNIOWSKI – doskonała izolacja, elegancki design i niezrównana trwałość.

Wiśniowski
Sprawdź parametry!
Okna dachowe

Oferujemy bezpłatne konsultacje w zakresie wszystkich rozwiązań VELUX. Wyceny, porady dotyczące doboru okien i rolet zewnętrznych - sprawdź!

Velux
Sprawdź szczegóły
Dach

Producent stalowych pokryć dachowych i elewacyjnych - 40 lat doświadczenia. Zbuduj solidny dach z nami!

Blachy Pruszyński
Sprawdź szczegóły
Płytki ceramiczne i gresy

Od małych formatów po wielkoformatowe gresy. Marmur, beton, drewno, kamień, lastryko czy cegiełki zamówisz wygodnie online z szybką dostawą.

Ceramzet
Sprawdź ofertę
Drzwi

Ciepłe drzwi WIŚNIOWSKI z kontrolą dostępu. Szeroka gama wzorów i kolorów.

Wiśniowski
Wybierz najlepsze
Bramy garażowe

Automatyczne bramy garażowe segmentowe i uchylne WIŚNIOWSKI na wymiar i z systemem smart home w standardzie.

Wiśniowski
Sprawdź ofertę!
Armatura i ceramika łazienkowa

Topowi producenci. Baterie łazienkowe, zestawy natynkowe i podtynkowe, umywalki, wanny, miski WC oraz kabiny zamówisz kompleksowo online.

Ceramzet II
Dowiedz się więcej
Rekuperacja

Alnor - kompletny system rekuperacji. Dobierz idealne rozwiązanie dla Twojego domu!

Alnor
Dobierz rekuperator
Gruntowe pompy ciepła

Przeprowadzimy kompletną instalację najbardziej oszczędnego źródła ciepła w Twoim nowym domu - gruntowej pompy ciepła. Od dokumentacji, pozwoleń, po odwierty i instalację.

Geothermal Solutions
Dowiedz się więcej

Gotowe domy modułowe (113)

Zobacz wszystkie
Stan deweloperski nawet w 6 miesięcy Gwarancja stałej ceny
Zdjęcie 1 projektu Dom keramzytowy Atrakcyjna Stodoła wariant 2 HAK1000
Pow. użytkowa
98,47 m²
Pokoje
3
469 900 zł 4 772 zł/m²
Zdjęcie 1 projektu Dom prefabrykowany Parterowy 100B HFX1010
Pow. użytkowa
100,01 m²
Pokoje
3
439 000 zł 4 390 zł/m²
Zdjęcie 1 projektu Dom prefabrykowany Parterowy 100E HFX1012
Pow. użytkowa
100,28 m²
Pokoje
4
439 000 zł 4 378 zł/m²
Zdjęcie 1 projektu Dom prefabrykowany P.9 HPK1008
Pow. użytkowa
97,80 m²
Pokoje
4
545 800 zł 5 581 zł/m²
Zdjęcie 1 projektu Dom prefabrykowany Parterowy 100D HFX1011
Pow. użytkowa
100,44 m²
Pokoje
3
439 000 zł 4 371 zł/m²
Zdjęcie 1 projektu ExtraBetonowy 3 HPK1019
Gotowy extraBetonowy 3
Dodano!
Dodano!
Pow. użytkowa
97,13 m²
Pokoje
3
491 826 zł 5 064 zł/m²
Zdjęcie 1 projektu Dom prefabrykowany Piętrowy 95C HFX1020
Pow. użytkowa
96,20 m²
Pokoje
3
469 000 zł 4 875 zł/m²
Zdjęcie 1 projektu Dom prefabrykowany Piętrowy 95B HFX1019
Pow. użytkowa
96,20 m²
Pokoje
3
469 000 zł 4 875 zł/m²

Opis projektu domu
T-Squar

Niewielki dom parterowy z poddaszem do zagospodarowania z 3 sypialniami i 2 łazienkami dla 3-4 osobowej rodziny. Dom posiada czytelnie wydzielone strefy dzienne i nocne. Dom jest idealnie przystosowany dla urządzeń spełniających normy dla budynków energooszczędnych. Dom jest bardzo tani w realizacji.
Czytaj więcej

Polecani producenci

Prefabrykowane konstrukcje dachowe

tło producenta

WIĄZAR POLSKA

Zobacz więcej

Sprawdź nową generację okien GREENVIEW

tło producenta

FAKRO

Sprawdź nową generację okien GREENVIEW

Styropian, tynki, farby, kleje

tło producenta

Termo Organika

Poznaj super jakość

Okna, drzwi, osłony przeciwsłoneczne

tło producenta

Aluprof

Sprawdź ofertę

Kompletne systemy rekuperacji

tło producenta

Alnor

Dowiedz się więcej

Sprawdź nowy system DACHRYNNA

tło producenta

Galeco

Sprawdź ofertę
Zobacz więcej

Społeczność projektu domu
T-Squar w budowie

Dołącz do społeczności osób, które budują ten dom lub są zainteresowane jego budową.

  • Oglądaj zdjęcia z budowy
  • Zadawaj pytania
  • Wymieniaj się doświadczeniami

Opinie o projekcie domu T-Squar

Ocena

Ten projekt nie ma jeszcze opinii, bądź pierwszy!

Dodaj opinię

ASYSTENT WYBORU PROJEKTU

Szukasz idealnego projektu? Znajdziemy go dla Ciebie!

Doradca na podstawie Twoich wskazówek przygotuje spersonalizowaną listę projektów

Graficzne opracowanie rzutów poglądowych widocznych na karcie projektu zostało wykonane przez Extradom.pl. Prezentowane przez Extradom.pl wizualizacje wykonane zostały przez autora projektu i należy poczytywać je jedynie za przykład i propozycję wykończenia, wizję architektoniczną autora projektu. Ostateczne wykończenie budynku może nastąpić na wiele sposobów. Szczegółowe rozwiązania zastosowane w oferowanej dokumentacji - w tym również ilość, lokalizacje i wygląd okien, drzwi, kominów - mogą w niewielkim stopniu różnić się od prezentowanej wizualizacji budynku.

REKLAMA
Zamknij