👉 Odbierz prezent do projektu 🎁

Koniec oferty za:

0dni

00godz.

00min.

00sek.

Sprawdź

Projekt domu Sonata KSA1237

Dodano!
Dodano!

Warstwy

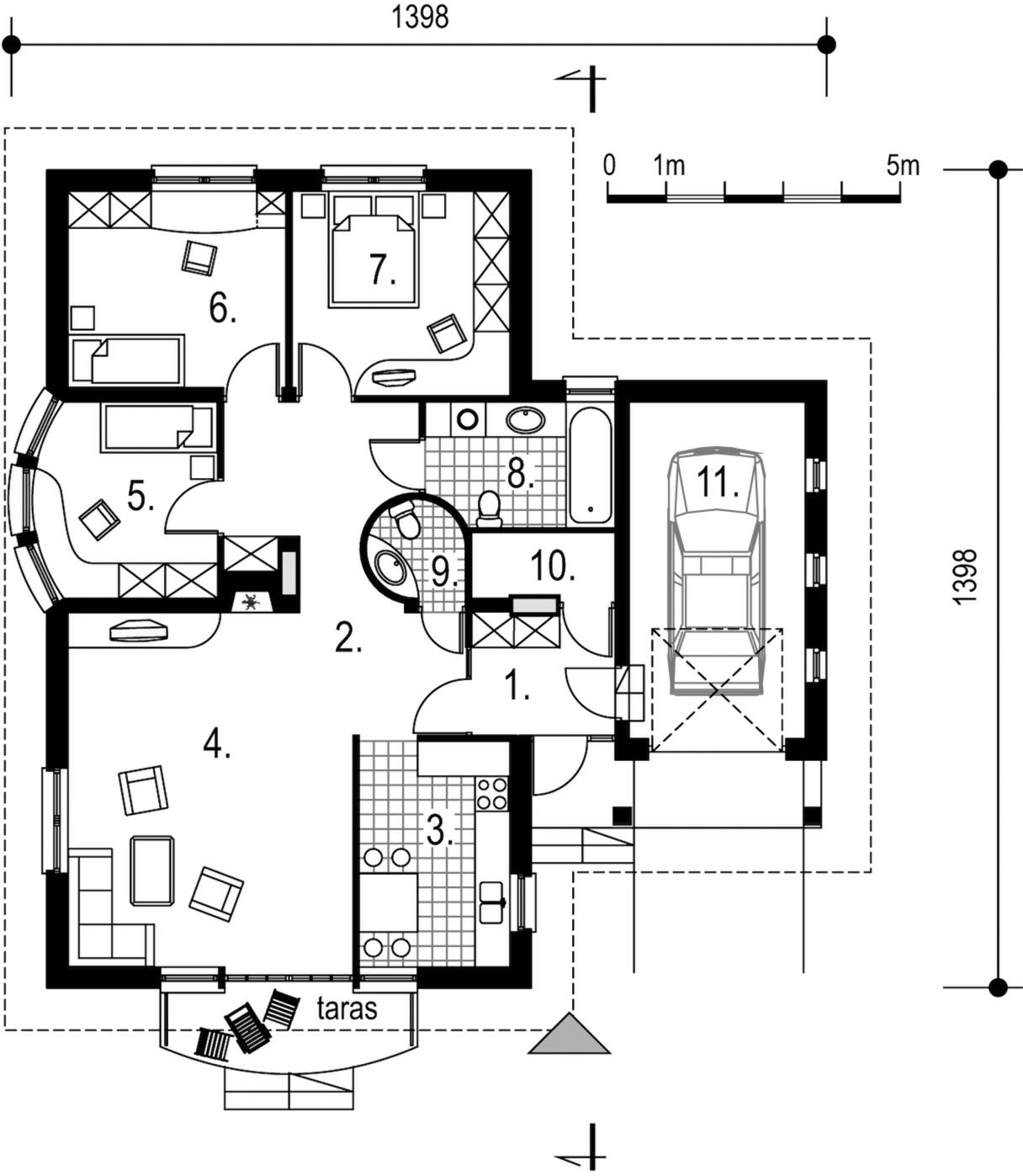
Rzut parteru

Powierzchnia (m²)
Tooltip
Powierzchnia pomieszczenia
to ta, z której faktycznie możesz korzystać – skosy i niskie części poddasza są liczone częściowo lub wcale.
  1. 100% dla wysokości powyżej 2,2 m,
  2. 50% dla wysokości 1,4–2,2 m,
  3. nie liczymy poniżej 1,4 m.

Powierzchnia podłogi
Liczymy po obrysie pomieszczenia, bez względu na jego wysokość/skosy. Jeśli nie ma skosów to powierzchnia podłogi i pomieszczenia jest taka sama.
pomieszczenia i podłogi
podłogi
1. Wiatrołap
4,30
2. Hall
16
3. Kuchnia
10
4. Pokój dzienny
28,20
5. Pokój
10
6. Pokój
12,50
7. Pokój
13
8. Łazienka
6,40
9. Wc
2,40
10. Pomieszczenie gospodarcze
3,20
11. Garaż jednostanowiskowy
17,60
Razem
123,60
123,60

    Usytuowanie na działce

    Czy ten projekt pasuje na
    Twoją działkę?

    Chętnie to sprawdzimy!

    Dowiedz się:

    • czy zmieści się na niej wybrany przez Ciebie dom
    • jakie parametry musi spełniać dom według miejscowego planu zagospodarowania lub warunków zabudowy (np. kąt nachylenia i typ dachu, liczba kondygnacji itp.
    • jakie inne projekty pasują na Twoją działkę – znajdziemy je dla Ciebie!

Pow. użytkowa

106 m²

Pokoje

3

Łazienki i WC

2

Garaż

1

Min. szer. i dł. działki

22 x 21 m

Kąt dachu

25°

Konstrukcja

Murowana
więcej

Sonata - KSA1237

ikona 106 m²
Powierzchnia użytkowa
ikona3
Pokoje (bez salonu)
ikona 2
Łazienki (z toaletami)
ikona 1
Liczba stanowisk garażowych
(z wiatą garażową)
ikona
Konstrukcja: Murowana

Projekt został
wycofany z oferty

W razie pytań prosimy o kontakt
z Centrum Obsługi Klienta
Konsultant Masz pytania?
Zadzwoń
71 715 20 60

pon.-pt. 8-21, sob. 9-17

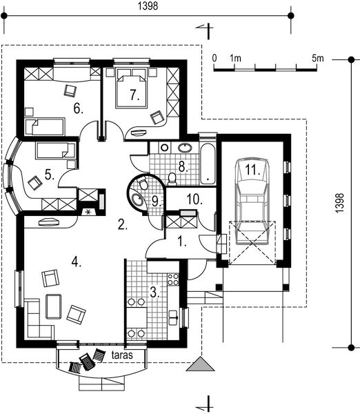
Parter - 123,60 m²

Parter projektu Sonata

Zapytaj, co możesz zmienić

Powierzchnia (m²)
Tooltip
Powierzchnia pomieszczenia
to ta, z której faktycznie możesz korzystać – skosy i niskie części poddasza są liczone częściowo lub wcale.
  1. 100% dla wysokości powyżej 2,2 m,
  2. 50% dla wysokości 1,4–2,2 m,
  3. nie liczymy poniżej 1,4 m.

Powierzchnia podłogi
Liczymy po obrysie pomieszczenia, bez względu na jego wysokość/skosy. Jeśli nie ma skosów to powierzchnia podłogi i pomieszczenia jest taka sama.
pomieszczenia i podłogi
podłogi
1. Wiatrołap
4,30
2. Hall
16
3. Kuchnia
10
4. Pokój dzienny
28,20
5. Pokój
10
6. Pokój
12,50
7. Pokój
13
8. Łazienka
6,40
9. Wc
2,40
10. Pomieszczenie gospodarcze
3,20
11. Garaż jednostanowiskowy
17,60
Razem
123,60
123,60

Podobne projekty (1719)

Zobacz wszystkie
PREZENT 🎁
Zdjęcie 1 projektu Dom przy Rubinowej 14 KRK1719
Dom przy Rubinowej 14
Dodano!
Dodano!
95 m²
3
2
0

3 990 zł

PREZENT 🎁
Nowość
Zdjęcie 1 projektu N-156 PZB1107
N-156
Dodano!
Dodano!
108,90 m²
3
2
0

6 480 zł

PREZENT 🎁
Zdjęcie 1 projektu Simple 3 WRD2439
Simple 3
Dodano!
Dodano!
103,60 m²
3
1
1

4 200 zł

PREZENT 🎁
Zdjęcie 1 projektu Mahoń 4 BSA2374
Mahoń 4
Dodano!
Dodano!
111,60 m²
3
1
1

5 349 zł

PREZENT 🎁
Zdjęcie 1 projektu Serenita WOF1261
Serenita
Dodano!
Dodano!
107,91 m²
4
2
0

4 299 zł

PREZENT 🎁
Zdjęcie 1 projektu Dom przy Przyjemnej 18 bis KRK1511
Dom przy Przyjemnej 18 bis
Dodano!
Dodano!
97,06 m²
3
1
1

4 190 zł

PREZENT 🎁
Zdjęcie 1 projektu Mikrus Sto (1942) KRD3076
Mikrus Sto (1942)
Dodano!
Dodano!
99,40 m²
3
2
1

3 352 zł

PREZENT 🎁
Zdjęcie 1 projektu Dom przy Pastelowej 26 KRK1667
Dom przy Pastelowej 26
Dodano!
Dodano!
108,67 m²
3
2
0

3 790 zł

Elewacje

Frontowa
Tylna
Lewa
Prawa

Przekroje

Przekrój pionowy

Usytuowanie na działce

Czy ten projekt pasuje na
Twoją działkę?

Chętnie to sprawdzimy!

Czy ten projekt pasuje na
Twoją działkę?

Chętnie to sprawdzimy!

Dowiedz się:

  • czy zmieści się na niej wybrany przez Ciebie dom
  • jakie parametry musi spełniać dom według miejscowego planu zagospodarowania lub warunków zabudowy (np. kąt nachylenia i typ dachu, liczba kondygnacji itp.
  • jakie inne projekty pasują na Twoją działkę – znajdziemy je dla Ciebie!
Autor: ArchTim

Dane techniczne projektu

Powierzchnie i wymiary Powierzchnie i wymiary

Powierzchnia użytkowa
Tooltip
Suma powierzchni wszystkich pomieszczeń mieszkalnych, pomniejszona o pow. garażu, kotłowni, strychu, piwnicy. Jest liczona w 100% dla pomieszczeń o wysokości powyżej 2,2 m, w 50% dla pomieszczeń o wys. 2,2-1,4 m i niewliczana dla niższych niż 1,4 m.

106 m²

Powierzchnia zabudowy
Tooltip
Powierzchnia zajmowana przez część na- oraz nadziemną budynku liczona, jako rzut pionowy budynku na działkę.

156,30 m²

Powierzchnia dachu

216 m²

Kąt nachylenia dachu
Tooltip
Nachylenie połaci dachu głównego podawane w stopniach. Uwaga! W niektórych projektach występuje więcej niż jedno nachylenie dachu.

25°

Wysokość budynku
Tooltip
Wysokość liczona od części budynku położonej najniżej przy powierzchni terenu do najwyższego punktu dachu (kalenicy) z wyłączeniem kominów.

5,75 m

Min. szerokość działki
Tooltip
Najmniejsza możliwa szerokość działki niezbędna do wybudowania wybranego domu. Składa się z szerokości elewacji domu powiększonej z obu stron o 3 m dla ściany bez otworów drzwiowych/okiennych lub 4 m, dla ściany z otworami.

22 m

Min. długość działki
Tooltip
Najmniejsza możliwa długość działki niezbędna do wybudowania wybranego domu. Składa się z długości elewacji domu powiększonej z obu stron o 3 m dla ściany bez otworów drzwiowych/okiennych lub 4 m, dla ściany z otworami.

21 m

Energooszczędność Energooszczędność

Oze Czym jest OZE (Odnawialne Źródło Energii)?
Warunki techniczne

Projekt zgody z WT 2021

Technologia i konstrukcja Technologia i konstrukcja

Konstrukcja

Murowana

Opis szczegółowy

Ściany zewnętrzne dwuwarstwowe: cegła SILKA + wełna mineralna + tynk. Ściany wewnętrzne: cegła SILKA i/lub płyty na ruszcie stalowym, wygłuszone wełną mineralną. Strop: drewniany. Więźba dachowa: drewniana. Poszycie dachu: dachówka cementowa. Stolarka: drewniana lub PCV. Instalacja centralnego ogrzewania: kocioł dwufunkcyjny + grzejniki.

Strop

Drewniany

Reklama
Okna i drzwi tarasowe

Nowoczesne okna PVC i aluminiowe WIŚNIOWSKI – doskonała izolacja, elegancki design i niezrównana trwałość.

Wiśniowski
Sprawdź parametry!
Okna dachowe

Oferujemy bezpłatne konsultacje w zakresie wszystkich rozwiązań VELUX. Wyceny, porady dotyczące doboru okien i rolet zewnętrznych - sprawdź!

Velux
Sprawdź szczegóły
Płytki ceramiczne i gresy

Od małych formatów po wielkoformatowe gresy. Marmur, beton, drewno, kamień, lastryko czy cegiełki zamówisz wygodnie online z szybką dostawą.

Ceramzet
Sprawdź ofertę
Drzwi

Ciepłe drzwi WIŚNIOWSKI z kontrolą dostępu. Szeroka gama wzorów i kolorów.

Wiśniowski
Wybierz najlepsze
Bramy garażowe

Automatyczne bramy garażowe segmentowe i uchylne WIŚNIOWSKI na wymiar i z systemem smart home w standardzie.

Wiśniowski
Sprawdź ofertę!
Armatura i ceramika łazienkowa

Topowi producenci. Baterie łazienkowe, zestawy natynkowe i podtynkowe, umywalki, wanny, miski WC oraz kabiny zamówisz kompleksowo online.

Ceramzet II
Dowiedz się więcej
Rekuperacja

Alnor - kompletny system rekuperacji. Dobierz idealne rozwiązanie dla Twojego domu!

Alnor
Dobierz rekuperator
Dach

Producent stalowych pokryć dachowych i systemów elewacyjnych. Precyzja wykonania, trwałość na lata i szybki montaż doceniany przez dekarzy. Postaw na solidny dach Budmat.

Budmat
Sprawdź ofertę
Ogrodzenie

Nowoczesne stalowe ogrodzenia Budmat - estetyka, bezpieczeństwo i trwałość na lata. Systemowe rozwiązania na wymiar, dopasowane do każdego domu.

Budmat
Sprawdź ofertę

Gotowe domy modułowe (117)

Zobacz wszystkie
Stan deweloperski nawet w 6 miesięcy Gwarancja stałej ceny
Zdjęcie 1 projektu Dom prefabrykowany DEX106 HDX1001
Pow. użytkowa
106 m²
Pokoje
3
732 950 zł 6 915 zł/m²
Zdjęcie 1 projektu Dom szkieletowy Green Smart 120 HHT1027
Pow. użytkowa
105,59 m²
Pokoje
5
586 400 zł 5 554 zł/m²
Zdjęcie 1 projektu Dom keramzytowy Essenzia 110 HRK1001
Pow. użytkowa
107 m²
Pokoje
3
474 120 zł 4 431 zł/m²
Zdjęcie 1 projektu Dom prefabrykowany E.1 HPK1017
Pow. użytkowa
107,27 m²
Pokoje
3
531 160 zł 4 952 zł/m²
Zdjęcie 1 projektu Dom prefabrykowany DH127U HDH1008
Pow. użytkowa
104,52 m²
Pokoje
3
552 420 zł 5 128 zł/m²
Zdjęcie 1 projektu Dom prefabrykowany P.8 HPK1007
Pow. użytkowa
108,05 m²
Pokoje
4
609 500 zł 5 641 zł/m²
Zdjęcie 1 projektu Dom keramzytowy Atrakcyjna Stodoła AS132G HAK1004
Pow. użytkowa
108,09 m²
Pokoje
3
635 500 zł 4 814 zł/m²
Zdjęcie 1 projektu Dom szkieletowy Spruce Smart 112 HHT1030
Pow. użytkowa
102,60 m²
Pokoje
3
550 500 zł 5 365 zł/m²

Opis projektu domu
Sonata

Projekt domu Sonata zaprojektowany z myślą o inwestorach posiadających średniej szerokości działkę. Bryła budynku posiada formę typową, przez co jest tani w budowie. Na uwagę zasługuje ozdobny wykusz, nadający konstrukcji dodatkowego uroku. W tym projekcie kalenica usytuowana jest prostopadle do drogi, co jest bardzo istotne, gdy wymaga tego plan zagospodarowania przestrzennego. Jest przeznaczony do zabudowy wolnostojącej. W projekcie przewidziano garaż jednostanowiskowy w linii budynku. Projekt jest idealną propozycją dla osób zainteresowanych domem z dachem kopertowym, który należy do najsolidniejszych konstrukcji dachowych. Wejście do budynku skierowane jest od południa, co jest istotnym rozwiązaniem dla osób, posiadających działkę z wjazdem od tej strony. Projekt Sonata to dom parterowy, co jest szczególnie bezpieczne w przypadku domowników w starszym wieku oraz osób niepełnosprawnych czy z małymi dziećmi. Autor projektu przewidział w nim ciekawie prezentującą się strefę dzienną. Doskonale przemyślane rozwiązania w kuchni dają wiele możliwości aranżacyjnych oraz ułatwią codzienne korzystanie. W domu znajduje się komfortowa łazienka oraz dodatkowa toaleta, co jest szczególnie przydatne podczas odwiedzin gości. W domu znajdują się trzy wygodne sypialnie, co sprawia iż jest on doskonałym wyborem dla 2-4 osobowej rodziny. Przestrzeń można wykorzystać także jako pokój dla gości lub gabinet. Na komfortowe użytkowanie domu ma również wpływ uwzględnione w nim pomieszczenie gospodarcze. Efektowny taras pozwala na kontakt z naturą bez zbytniego oddalania się od domowego zacisza. Projekt został wykonany w technologii murowanej, dzięki czemu podczas upałów dom utrzymuje przyjemny chłód. Jego wygląd nawiązuje do stylu tradycyjnego, dzięki czemu idealnie wpisze się w dowolny krajobraz.
Czytaj więcej

Polecani producenci

Prefabrykowane konstrukcje dachowe

tło producenta

WIĄZAR POLSKA

Zobacz więcej

Sprawdź nową generację okien GREENVIEW

tło producenta

FAKRO

Sprawdź nową generację okien GREENVIEW

Styropian, tynki, farby, kleje

tło producenta

Termo Organika

Poznaj super jakość

Okna, drzwi, osłony przeciwsłoneczne

tło producenta

Aluprof

Sprawdź ofertę
Zobacz więcej

Społeczność projektu domu
Sonata w budowie

Dołącz do społeczności osób, które budują ten dom lub są zainteresowane jego budową.

  • Oglądaj zdjęcia z budowy
  • Zadawaj pytania
  • Wymieniaj się doświadczeniami

Opinie o projekcie domu Sonata

Ocena

Ten projekt nie ma jeszcze opinii, bądź pierwszy!

Dodaj opinię

ASYSTENT WYBORU PROJEKTU

Szukasz idealnego projektu? Znajdziemy go dla Ciebie!

Doradca na podstawie Twoich wskazówek przygotuje spersonalizowaną listę projektów

Graficzne opracowanie rzutów poglądowych widocznych na karcie projektu zostało wykonane przez Extradom.pl. Prezentowane przez Extradom.pl wizualizacje wykonane zostały przez autora projektu i należy poczytywać je jedynie za przykład i propozycję wykończenia, wizję architektoniczną autora projektu. Ostateczne wykończenie budynku może nastąpić na wiele sposobów. Szczegółowe rozwiązania zastosowane w oferowanej dokumentacji - w tym również ilość, lokalizacje i wygląd okien, drzwi, kominów - mogą w niewielkim stopniu różnić się od prezentowanej wizualizacji budynku.

REKLAMA
Zamknij