Projekty nawet 500 zł taniej ❄️

Koniec oferty za:

00godz.

00min.

00sek.

Sprawdź

Projekt domu Pogodny 4 WAH1046

Dodano!
Dodano!

Warstwy

Warstwy

Rzut parteru

Powierzchnia (m²)
Tooltip
Powierzchnia pomieszczenia
to ta, z której faktycznie możesz korzystać – skosy i niskie części poddasza są liczone częściowo lub wcale.
  1. 100% dla wysokości powyżej 2,2 m,
  2. 50% dla wysokości 1,4–2,2 m,
  3. nie liczymy poniżej 1,4 m.

Powierzchnia podłogi
Liczymy po obrysie pomieszczenia, bez względu na jego wysokość/skosy. Jeśli nie ma skosów to powierzchnia podłogi i pomieszczenia jest taka sama.
pomieszczenia i podłogi
podłogi
1. Wiatrołap
2,78
2. Hall
11,35
3. Pokój dzienny + jadalnia
34,83
4. Kuchnia
10,16
5. Pokój dzienny + jadalnia
11,10
6. Pomieszczenie gospodarcze
2,71
7. Kotłownia
4,58
8. Łazienka
2,99
9. Garaż jednostanowiskowy
20,48
Razem
100,98
100,98
Powierzchnia (m²)
Tooltip
Powierzchnia pomieszczenia
to ta, z której faktycznie możesz korzystać – skosy i niskie części poddasza są liczone częściowo lub wcale.
  1. 100% dla wysokości powyżej 2,2 m,
  2. 50% dla wysokości 1,4–2,2 m,
  3. nie liczymy poniżej 1,4 m.

Powierzchnia podłogi
Liczymy po obrysie pomieszczenia, bez względu na jego wysokość/skosy. Jeśli nie ma skosów to powierzchnia podłogi i pomieszczenia jest taka sama.
pomieszczenia
podłogi
1. Pokój
13,12
16,02
2. Garderoba
1,40
2,33
3. Garderoba
2,39
2,39
4. Pokój
15,20
16,42
5. Hall
6,32
6,32
6. Garderoba
3,47
7,62
7. Łazienka
9,90
9,90
8. Pokój
13,19
15,65
Razem
64,99
76,65

    Usytuowanie na działce

    Czy ten projekt pasuje na
    Twoją działkę?

    Chętnie to sprawdzimy!

    Dowiedz się:

    • czy zmieści się na niej wybrany przez Ciebie dom
    • jakie parametry musi spełniać dom według miejscowego planu zagospodarowania lub warunków zabudowy (np. kąt nachylenia i typ dachu, liczba kondygnacji itp.
    • jakie inne projekty pasują na Twoją działkę – znajdziemy je dla Ciebie!

Pow. użytkowa

140,10 m²

Pokoje

3

Łazienki i WC

2

Garaż

1

Min. szer. i dł. działki

19,2 x 24,94 m

Kąt dachu

42°

Konstrukcja

Murowana
więcej

Pogodny 4 - WAH1046

ikona 140,10 m²
Powierzchnia użytkowa
ikona3
Pokoje (bez salonu)
ikona 2
Łazienki (z toaletami)
ikona 1
Liczba stanowisk garażowych
(z wiatą garażową)
ikona
Konstrukcja: Murowana

Projekt został
wycofany z oferty

W razie pytań prosimy o kontakt
z Centrum Obsługi Klienta
Konsultant Masz pytania?
Zadzwoń
71 715 20 60

pon.-pt. 8-21, sob. 9-17

Parter - 100,98 m²

Parter projektu Pogodny 4

Zapytaj, co możesz zmienić

Powierzchnia (m²)
Tooltip
Powierzchnia pomieszczenia
to ta, z której faktycznie możesz korzystać – skosy i niskie części poddasza są liczone częściowo lub wcale.
  1. 100% dla wysokości powyżej 2,2 m,
  2. 50% dla wysokości 1,4–2,2 m,
  3. nie liczymy poniżej 1,4 m.

Powierzchnia podłogi
Liczymy po obrysie pomieszczenia, bez względu na jego wysokość/skosy. Jeśli nie ma skosów to powierzchnia podłogi i pomieszczenia jest taka sama.
pomieszczenia i podłogi
podłogi
1. Wiatrołap
2,78
2. Hall
11,35
3. Pokój dzienny + jadalnia
34,83
4. Kuchnia
10,16
5. Pokój dzienny + jadalnia
11,10
6. Pomieszczenie gospodarcze
2,71
7. Kotłownia
4,58
8. Łazienka
2,99
9. Garaż jednostanowiskowy
20,48
Razem
100,98
100,98

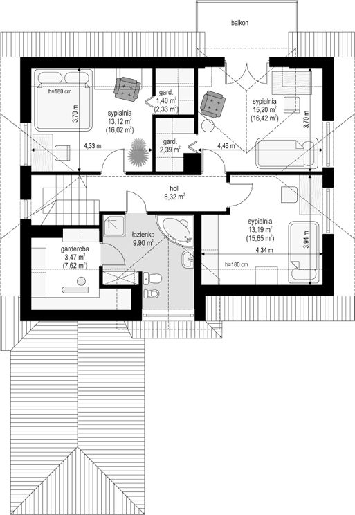
Poddasze - 64,99 m²

Poddasze projektu Pogodny 4

Zapytaj, co możesz zmienić

Powierzchnia (m²)
Tooltip
Powierzchnia pomieszczenia
to ta, z której faktycznie możesz korzystać – skosy i niskie części poddasza są liczone częściowo lub wcale.
  1. 100% dla wysokości powyżej 2,2 m,
  2. 50% dla wysokości 1,4–2,2 m,
  3. nie liczymy poniżej 1,4 m.

Powierzchnia podłogi
Liczymy po obrysie pomieszczenia, bez względu na jego wysokość/skosy. Jeśli nie ma skosów to powierzchnia podłogi i pomieszczenia jest taka sama.
pomieszczenia
podłogi
1. Pokój
13,12
16,02
2. Garderoba
1,40
2,33
3. Garderoba
2,39
2,39
4. Pokój
15,20
16,42
5. Hall
6,32
6,32
6. Garderoba
3,47
7,62
7. Łazienka
9,90
9,90
8. Pokój
13,19
15,65
Razem
64,99
76,65

Warianty projektu (12)

PROMOCJA
Projekt domu Pogodny drewniany
Pogodny drewniany
Dodano!
Dodano!
63,46 m²
3
1
0

3 728 zł

4 660 zł

Tooltip

Cena regularna

3 495 zł najniższa cena
Tooltip

Najniższa cena z 30 dni
przed obniżką

PROMOCJA
Projekt domu Pogodny drewniany wariant B
Pogodny drewniany wariant B
59,86 m²

3 728 zł

4 660 zł

Tooltip

Cena regularna

3 495 zł najniższa cena
Tooltip

Najniższa cena z 30 dni
przed obniżką

PROMOCJA
Projekt domu Pogodny drewniany wariant C
Pogodny drewniany wariant C
63,09 m²

3 728 zł

4 660 zł

Tooltip

Cena regularna

3 495 zł najniższa cena
Tooltip

Najniższa cena z 30 dni
przed obniżką

PROMOCJA
Projekt domu Pogodny drewniany wariant D
Pogodny drewniany wariant D
63,46 m²

3 728 zł

4 660 zł

Tooltip

Cena regularna

3 495 zł najniższa cena
Tooltip

Najniższa cena z 30 dni
przed obniżką

PROMOCJA
Projekt domu Pogodny drewniany wariant E
Pogodny drewniany wariant E
83,10 m²

3 728 zł

4 660 zł

Tooltip

Cena regularna

3 495 zł najniższa cena
Tooltip

Najniższa cena z 30 dni
przed obniżką

PROMOCJA
Projekt domu Pogodny drewniany wariant F
Pogodny drewniany wariant F
96,91 m²

3 728 zł

4 660 zł

Tooltip

Cena regularna

3 495 zł najniższa cena
Tooltip

Najniższa cena z 30 dni
przed obniżką

PROMOCJA
Projekt domu Pogodny drewniany wariant G
Pogodny drewniany wariant G
64,11 m²

3 728 zł

4 660 zł

Tooltip

Cena regularna

3 495 zł najniższa cena
Tooltip

Najniższa cena z 30 dni
przed obniżką

PROMOCJA
Projekt domu Pogodny drewniany wariant H
Pogodny drewniany wariant H
63,38 m²

3 728 zł

4 660 zł

Tooltip

Cena regularna

3 495 zł najniższa cena
Tooltip

Najniższa cena z 30 dni
przed obniżką

PROMOCJA
Projekt domu Pogodny drewniany wariant I
Pogodny drewniany wariant I
79,12 m²

3 728 zł

4 660 zł

Tooltip

Cena regularna

3 495 zł najniższa cena
Tooltip

Najniższa cena z 30 dni
przed obniżką

PROMOCJA
Projekt domu Pogodny drewniany wariant J
Pogodny drewniany wariant J
79,91 m²

3 728 zł

4 660 zł

Tooltip

Cena regularna

3 495 zł najniższa cena
Tooltip

Najniższa cena z 30 dni
przed obniżką

PROMOCJA
Projekt domu Pogodny drewniany wariant K
Pogodny drewniany wariant K
63,38 m²

3 728 zł

4 660 zł

Tooltip

Cena regularna

3 495 zł najniższa cena
Tooltip

Najniższa cena z 30 dni
przed obniżką

PROMOCJA
Projekt domu Pogodny drewniany wariant N
Pogodny drewniany wariant N
68,39 m²

3 728 zł

4 660 zł

Tooltip

Cena regularna

3 495 zł najniższa cena
Tooltip

Najniższa cena z 30 dni
przed obniżką

Podobne projekty (6854)

Zobacz wszystkie
NIŻSZA CENA❄️
Nowość
Zdjęcie 1 projektu APS 107 wariant 2 LUA1671
APS 107 wariant 2
Dodano!
Dodano!
118,80 m²
3
2
1

4 049 zł

4 599 zł

Tooltip

Cena regularna

3 999 zł najniższa cena
Tooltip

Najniższa cena z 30 dni
przed obniżką

NIŻSZA CENA❄️
Zdjęcie 1 projektu Dom przy Kolorowej 3 KRK1745
Dom przy Kolorowej 3
Dodano!
Dodano!
120 m²
3
2
1

3 790 zł

4 290 zł

Tooltip

Cena regularna

3 690 zł najniższa cena
Tooltip

Najniższa cena z 30 dni
przed obniżką

NIŻSZA CENA❄️
Zdjęcie 1 projektu Kosma G2 energo WRC2768
Kosma G2 energo
Dodano!
Dodano!
135,06 m²
4
2
2

4 720 zł

5 900 zł

Tooltip

Cena regularna

4 720 zł najniższa cena
Tooltip

Najniższa cena z 30 dni
przed obniżką

NIŻSZA CENA❄️
Zdjęcie 1 projektu Aspen BSA2391
Aspen
Dodano!
Dodano!
124,48 m²
6
4
2

6 949 zł

7 449 zł

Tooltip

Cena regularna

6 949 zł najniższa cena
Tooltip

Najniższa cena z 30 dni
przed obniżką

NIŻSZA CENA❄️
Zdjęcie 1 projektu Sybilla (1547) KRD2696
Sybilla (1547)
Dodano!
Dodano!
124,60 m²
4
2
1

4 740 zł

5 090 zł

Tooltip

Cena regularna

4 540 zł najniższa cena
Tooltip

Najniższa cena z 30 dni
przed obniżką

NIŻSZA CENA❄️
Zdjęcie 1 projektu Tetyda BSA2295
Tetyda
Dodano!
Dodano!
132,19 m²
4
2
2

5 449 zł

5 949 zł

Tooltip

Cena regularna

5 449 zł najniższa cena
Tooltip

Najniższa cena z 30 dni
przed obniżką

NIŻSZA CENA❄️
Zdjęcie 1 projektu Staś Lux (1007) KRD1912
Staś Lux (1007)
Dodano!
Dodano!
114,70 m²
4
2
1

4 540 zł

4 890 zł

Tooltip

Cena regularna

4 340 zł najniższa cena
Tooltip

Najniższa cena z 30 dni
przed obniżką

NIŻSZA CENA❄️
Zdjęcie 1 projektu Mateo Rex (1626) KRD2773
Mateo Rex (1626)
Dodano!
Dodano!
126 m²
4
2
1

4 540 zł

4 890 zł

Tooltip

Cena regularna

4 340 zł najniższa cena
Tooltip

Najniższa cena z 30 dni
przed obniżką

Elewacje

Frontowa
Tylna
Lewa
Prawa

Usytuowanie na działce

Czy ten projekt pasuje na
Twoją działkę?

Chętnie to sprawdzimy!

Czy ten projekt pasuje na
Twoją działkę?

Chętnie to sprawdzimy!

Dowiedz się:

  • czy zmieści się na niej wybrany przez Ciebie dom
  • jakie parametry musi spełniać dom według miejscowego planu zagospodarowania lub warunków zabudowy (np. kąt nachylenia i typ dachu, liczba kondygnacji itp.
  • jakie inne projekty pasują na Twoją działkę – znajdziemy je dla Ciebie!
Autor: MG Projekt

Dane techniczne projektu

Powierzchnie i wymiary Powierzchnie i wymiary

Powierzchnia użytkowa
Tooltip
Suma powierzchni wszystkich pomieszczeń mieszkalnych, pomniejszona o pow. garażu, kotłowni, strychu, piwnicy. Jest liczona w 100% dla pomieszczeń o wysokości powyżej 2,2 m, w 50% dla pomieszczeń o wys. 2,2-1,4 m i niewliczana dla niższych niż 1,4 m.

140,10 m²

Powierzchnia zabudowy
Tooltip
Powierzchnia zajmowana przez część na- oraz nadziemną budynku liczona, jako rzut pionowy budynku na działkę.

125,30 m²

Powierzchnia całkowita
Tooltip
Całkowita powierzchnia wszystkich kondygnacji budynku łącznie z elementami nośnymi, takimi jak ściany zewnętrzne (z ociepleniem), słupy, tarasy, itp.

184,95 m²

Kubatura brutto
Tooltip
Zazwyczaj jest to suma kubatur (objętości) wszystkich pomieszczeń budynku, liczonych po zewnętrznym obrysie murów (z ociepleniem).

516 m³

Powierzchnia dachu

243,50 m²

Kąt nachylenia dachu
Tooltip
Nachylenie połaci dachu głównego podawane w stopniach. Uwaga! W niektórych projektach występuje więcej niż jedno nachylenie dachu.

42°

Wysokość budynku
Tooltip
Wysokość liczona od części budynku położonej najniżej przy powierzchni terenu do najwyższego punktu dachu (kalenicy) z wyłączeniem kominów.

8,53 m

Szerokość elewacji

11,20 m

Długość elewacji

16 m

Min. szerokość działki
Tooltip
Najmniejsza możliwa szerokość działki niezbędna do wybudowania wybranego domu. Składa się z szerokości elewacji domu powiększonej z obu stron o 3 m dla ściany bez otworów drzwiowych/okiennych lub 4 m, dla ściany z otworami.

19,20 m

Min. długość działki
Tooltip
Najmniejsza możliwa długość działki niezbędna do wybudowania wybranego domu. Składa się z długości elewacji domu powiększonej z obu stron o 3 m dla ściany bez otworów drzwiowych/okiennych lub 4 m, dla ściany z otworami.

24,94 m

Energooszczędność Energooszczędność

Oze Czym jest OZE (Odnawialne Źródło Energii)?
Ep
Tooltip
Energia pierwotna określa ilość energii nieodnawialnej potrzebnej w ciągu roku do ogrzewania czy też ogrzania wody użytkowej z uwzględnieniem kosztów produkcji i transportu surowców energetycznych.

72,70 kWh/(m²rok)

Ek
Tooltip
Energia końcowa określa zapotrzebowanie budynku na energię niezbędną do uzyskania założonych parametrów, jak np. temperatura wewnątrz budynku.

89,50 kWh/(m²rok)

Euco
Tooltip
Energia użytkowa potrzebna do ogrzewania i wentylacji. Im parametr jest niższy tym budynek bardziej energooszczędny.

65,21 kWh/(m²rok)

Ogrzewanie główne

Gazowe - szczegóły

Interesuje Cię inne źródło ogrzewania? Wyślij zapytanie lub zadzwoń do doradcy

Warunki techniczne

Projekt zgody z WT 2021

Technologia i konstrukcja Technologia i konstrukcja

Konstrukcja

Murowana

Opis szczegółowy

Fundamenty: betonowe wylewane. Ściany zewnętrzne: bloczki z betonu komórkowego + styropian. Strop: Teriva. Elewacje: tynk cienkopowłokowy. Pokrycie dachu: dachówka ceramiczna lub blachodachówka. Nachylenie dachu: 42 stopnie.

Strop

Gęstożebrowy

Reklama
Okna i drzwi tarasowe

Nowoczesne okna PVC i aluminiowe WIŚNIOWSKI – doskonała izolacja, elegancki design i niezrównana trwałość.

Wiśniowski
Sprawdź parametry!
Okna dachowe

Oferujemy bezpłatne konsultacje w zakresie wszystkich rozwiązań VELUX. Wyceny, porady dotyczące doboru okien i rolet zewnętrznych - sprawdź!

Velux
Sprawdź szczegóły
Płytki ceramiczne i gresy

Od małych formatów po wielkoformatowe gresy. Marmur, beton, drewno, kamień, lastryko czy cegiełki zamówisz wygodnie online z szybką dostawą.

Ceramzet
Sprawdź ofertę
Drzwi

Ciepłe drzwi WIŚNIOWSKI z kontrolą dostępu. Szeroka gama wzorów i kolorów.

Wiśniowski
Wybierz najlepsze
Bramy garażowe

Automatyczne bramy garażowe segmentowe i uchylne WIŚNIOWSKI na wymiar i z systemem smart home w standardzie.

Wiśniowski
Sprawdź ofertę!
Armatura i ceramika łazienkowa

Topowi producenci. Baterie łazienkowe, zestawy natynkowe i podtynkowe, umywalki, wanny, miski WC oraz kabiny zamówisz kompleksowo online.

Ceramzet II
Dowiedz się więcej
Rekuperacja

Alnor - kompletny system rekuperacji. Dobierz idealne rozwiązanie dla Twojego domu!

Alnor
Dobierz rekuperator
Gruntowe pompy ciepła

Przeprowadzimy kompletną instalację najbardziej oszczędnego źródła ciepła w Twoim nowym domu - gruntowej pompy ciepła. Od dokumentacji, pozwoleń, po odwierty i instalację.

Geothermal Solutions
Dowiedz się więcej

Gotowe domy modułowe (114)

Zobacz wszystkie
Stan deweloperski nawet w 6 miesięcy Gwarancja stałej ceny
Zdjęcie 1 projektu Dom prefabrykowany P.1 z okapem HPK1000
Pow. użytkowa
139,44 m²
Pokoje
3
721 000 zł 5 171 zł/m²
Zdjęcie 1 projektu Dom prefabrykowany P.1 bez okapu HPK1012
Pow. użytkowa
139,44 m²
Pokoje
3
699 800 zł 5 019 zł/m²
Zdjęcie 1 projektu Dom prefabrykowany P.5 HPK1004
Pow. użytkowa
138,67 m²
Pokoje
5
772 700 zł 5 572 zł/m²
Zdjęcie 1 projektu Dom prefabrykowany DEX136 HDX1002
Pow. użytkowa
136 m²
Pokoje
4
845 000 zł 6 213 zł/m²
Zdjęcie 1 projektu Dom szkieletowy Open Sky 195 HHT1029
Pow. użytkowa
145,04 m²
Pokoje
4
940 300 zł 6 483 zł/m²
Zdjęcie 1 projektu Dom prefabrykowany Piętrowy 130C HFX1023
Pow. użytkowa
132 m²
Pokoje
4
539 000 zł 4 083 zł/m²
Zdjęcie 1 projektu Dom prefabrykowany Piętrowy 130B HFX1022
Pow. użytkowa
131,60 m²
Pokoje
5
539 000 zł 4 096 zł/m²
Zdjęcie 1 projektu Dom prefabrykowany Piętrowy 130A HFX1021
Pow. użytkowa
130,40 m²
Pokoje
4
539 000 zł 4 133 zł/m²

Opis projektu domu
Pogodny 4

Projekt domu Pogodny 4 został stworzony na wzór cieszącego się popularnością projektu Pogodny 3. W przeciwieństwie do podstawowej wersji projekt ma mniej pokoi, mniejszą powierzchnię. Projekt domu Pogodny 4 to idealna propozycja dla osób posiadających średniej szerokości działkę. Dom charakteryzuje się prostą bryłą, więc jego realizacja jest łatwa. Ciekawym elementem jest uwzględniony przez architekta ozdobny wykusz. W tym projekcie kalenica usytuowana jest równolegle do drogi, co jest bardzo istotne, gdy wymagają tego warunki zabudowy. Kierowany jest do Inwestorów posiadających działkę pozwalającą na realizację projektu w zabudowie wolnostojącej. W projekcie przewidziano garaż jednostanowiskowy wysunięty do przodu. Jest to również doskonała propozycja dla osób szukających domu z dachem naczółkowym, który się prezentuje. Projekt został zaplanowany z myślą o działkach z wjazdem od południowej strony. Projekt Pogodny 4 to dom parterowy z poddaszem użytkowym, co sprawia, że strefa dzienna i nocna są od siebie wyraźnie oddzielone. Zwolenników przestronnych przestrzeni z pewnością ucieszy przewidziana w projekcie część dzienna. Tworzy ją między innymi kuchnia, która będzie idealnym rozwiązaniem zarówno dla tradycyjnych, jak i nowoczesnych gospodyń domowych. W projekcie połączono jadalnię z salonem, dzięki czemu strefa dzienna staje się centrum rodzinnego życia. Ciekawym elementem jest z pewnością usytuowany w salonie kominek, który nada wnętrzu niepowtarzalny klimat. Większa rodzina z pewnością doceni fakt, iż na każdej kondygnacji znajduje się w pełni funkcjonalna łazienka. Strefa sypialniana składa się z trzech pokoi, co jest doskonałą opcją dla niedużej rodziny. Przestrzeń można wykorzystać także jako pokój dla gości lub gabinet. W projekcie nie mogło również zabraknąć miejsca na wyjątkowo przydatne pomieszczenie gospodarcze. Taras jest idealnym miejscem do organizowania rodzinnych spotkań i chwili relaksu. Warto także zwrócić uwagę na werandę, na której można spędzać przyjemnie czas nawet podczas nieciekawej pogody. Budynek został zaprojektowany w technologii murowanej. Jego wygląd zewnętrzny uwydatnia cechy charakterystyczne dla stylu tradycyjnego, dzięki czemu idealnie wpisze się w dowolny krajobraz.
Czytaj więcej

Polecani producenci

Prefabrykowane konstrukcje dachowe

tło producenta

WIĄZAR POLSKA

Zobacz więcej

Sprawdź nową generację okien GREENVIEW

tło producenta

FAKRO

Sprawdź nową generację okien GREENVIEW

Styropian, tynki, farby, kleje

tło producenta

Termo Organika

Poznaj super jakość

Okna, drzwi, osłony przeciwsłoneczne

tło producenta

Aluprof

Sprawdź ofertę

Kompletne systemy rekuperacji

tło producenta

Alnor

Dowiedz się więcej

Sprawdź nowy system DACHRYNNA

tło producenta

Galeco

Sprawdź ofertę
Zobacz więcej

Społeczność projektu domu
Pogodny 4 w budowie

Dołącz do społeczności osób, które budują ten dom lub są zainteresowane jego budową.

  • Oglądaj zdjęcia z budowy
  • Zadawaj pytania
  • Wymieniaj się doświadczeniami

Opinie o projekcie domu Pogodny 4

Ocena

Ten projekt nie ma jeszcze opinii, bądź pierwszy!

Dodaj opinię

ASYSTENT WYBORU PROJEKTU

Szukasz idealnego projektu? Znajdziemy go dla Ciebie!

Doradca na podstawie Twoich wskazówek przygotuje spersonalizowaną listę projektów

Graficzne opracowanie rzutów poglądowych widocznych na karcie projektu zostało wykonane przez Extradom.pl. Prezentowane przez Extradom.pl wizualizacje wykonane zostały przez autora projektu i należy poczytywać je jedynie za przykład i propozycję wykończenia, wizję architektoniczną autora projektu. Ostateczne wykończenie budynku może nastąpić na wiele sposobów. Szczegółowe rozwiązania zastosowane w oferowanej dokumentacji - w tym również ilość, lokalizacje i wygląd okien, drzwi, kominów - mogą w niewielkim stopniu różnić się od prezentowanej wizualizacji budynku.

REKLAMA
Zamknij