Projekty nawet 500 zł taniej ❄️

Koniec oferty za:

0dni

00godz.

00min.

00sek.

Sprawdź

Projekt domu Parterowy 9 BBH1039

Dodano!
Dodano!

Warstwy

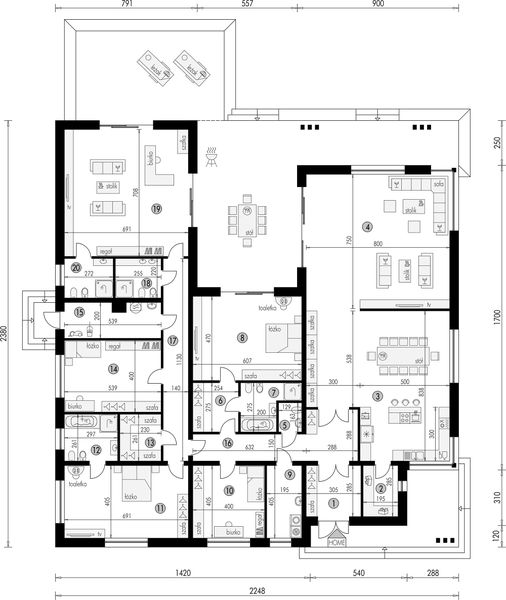
Rzut parteru

Powierzchnia (m²)
Tooltip
Powierzchnia pomieszczenia
to ta, z której faktycznie możesz korzystać – skosy i niskie części poddasza są liczone częściowo lub wcale.
  1. 100% dla wysokości powyżej 2,2 m,
  2. 50% dla wysokości 1,4–2,2 m,
  3. nie liczymy poniżej 1,4 m.

Powierzchnia podłogi
Liczymy po obrysie pomieszczenia, bez względu na jego wysokość/skosy. Jeśli nie ma skosów to powierzchnia podłogi i pomieszczenia jest taka sama.
pomieszczenia i podłogi
podłogi
1. Wiatrołap
8,50
2. Spiżarnia
5,40
3. Kuchnia + jadalnia
57,55
4. Pokój dzienny
60
5. Wc
2
6. Garderoba
6,85
7. Łazienka
6,75
8. Pokój
28,20
9. Pralnia
7,70
10. Pokój
15,95
11. Pokój
27,65
12. Łazienka
7,60
13. Garderoba
5,85
14. Pokój
21,30
15. Kotłownia
10,10
16. Hall
17,40
17. Hall
15,45
18. Łazienka
5,45
19. Pokój
48,50
20. Łazienka
5,85
Razem
364,05
364,05

    Usytuowanie na działce

    Czy ten projekt pasuje na
    Twoją działkę?

    Chętnie to sprawdzimy!

    Dowiedz się:

    • czy zmieści się na niej wybrany przez Ciebie dom
    • jakie parametry musi spełniać dom według miejscowego planu zagospodarowania lub warunków zabudowy (np. kąt nachylenia i typ dachu, liczba kondygnacji itp.
    • jakie inne projekty pasują na Twoją działkę – znajdziemy je dla Ciebie!

Pow. użytkowa

364,05 m²

Pokoje

5

Łazienki i WC

5

Garaż

0

Min. szer. i dł. działki

30,48 x 31,80 m

Kąt dachu

Szacunkowy koszt SSZ

1 075 000 zł
Szacunkowy koszt budowy do stanu surowego zamkniętego (SSZ) metodą gospodarczą - większość prac wykonuje inwestor.

Konstrukcja

Murowana
więcej

Parterowy 9 - BBH1039

ikona 364,05 m²
Powierzchnia użytkowa
ikona5
Pokoje (bez salonu)
ikona 5
Łazienki (z toaletami)
ikona 0
Liczba stanowisk garażowych
(z wiatą garażową)
ikona
Konstrukcja: Murowana

Promocja od 18.12.2025, koniec za:

0 dni

00 00 00

8 279 zł

Tooltip

Cena regularna obowiązywała od 15.12.2025 do 17.12.2025

Cena regularna: 8 999 zł
Najniższa cena z 30 dni przed obniżką: 8 279 zł
Gwarancja najniższej ceny Gwarancja najniższej ceny Tooltip

Wydłużony czas realizacji Tooltip

Projekt jest koncepcją

GRATIS 10% rabatu do LEROY MERLIN

GRATIS Przydatne Extradodatki

GRATIS Poradnik Dach Solarny

100 dni na wymianę, 30 dni na zwrot

Darmowa dostawa - kurier, paczkomaty

Bezpłatne pozwolenie na zmiany

Dokumentacja zgodna z WT2021

Pokaż więcej (5)
Konsultant Masz pytania?
Zadzwoń
71 715 20 60

pon.-pt. 8-21, sob. 9-17

Szukasz wykonawcy godnego zaufania?
Zleć budowę w Extradom.pl!

  • Z góry znasz koszt budowy domu
  • Dom odbierasz zgodnie z ustalonym harmonogramem - nawet w 6 miesięcy
  • Zabezpiecza Cię jedna kompleksowa umowa z jednym wykonawcą
  • Otrzymujesz nawet 30-letnią gwarancję na konstrukcję domu
  • Oszczędzasz swój czas dzięki pewnej i kompletnej usłudze
Cena brutto stanu
deweloperskiego od
Tooltip
Cena brutto stanu deweloperskiego od 4 109 do 4 999 zł/m2.
Cena jest uzależniona m.in. od lokalizacji, wybranej technologii, kubatury budynku, skomplikowania projektu i ewentualnych zmian, na które zdecyduje się inwestor.
Cena za m2 powierzchni netto, czyli wszystkich pomieszczeń mierzonych na wysokości podłogi.
4 109 zł/m2
Dowiedz się więcej
Konsultant Masz pytania?
Zadzwoń
71 715 20 70

pon.-pt. 8-19

Parter - 364,05 m²

Parter projektu Parterowy 9

Zapytaj, co możesz zmienić

Powierzchnia (m²)
Tooltip
Powierzchnia pomieszczenia
to ta, z której faktycznie możesz korzystać – skosy i niskie części poddasza są liczone częściowo lub wcale.
  1. 100% dla wysokości powyżej 2,2 m,
  2. 50% dla wysokości 1,4–2,2 m,
  3. nie liczymy poniżej 1,4 m.

Powierzchnia podłogi
Liczymy po obrysie pomieszczenia, bez względu na jego wysokość/skosy. Jeśli nie ma skosów to powierzchnia podłogi i pomieszczenia jest taka sama.
pomieszczenia i podłogi
podłogi
1. Wiatrołap
8,50
2. Spiżarnia
5,40
3. Kuchnia + jadalnia
57,55
4. Pokój dzienny
60
5. Wc
2
6. Garderoba
6,85
7. Łazienka
6,75
8. Pokój
28,20
9. Pralnia
7,70
10. Pokój
15,95
11. Pokój
27,65
12. Łazienka
7,60
13. Garderoba
5,85
14. Pokój
21,30
15. Kotłownia
10,10
16. Hall
17,40
17. Hall
15,45
18. Łazienka
5,45
19. Pokój
48,50
20. Łazienka
5,85
Razem
364,05
364,05

Warianty projektu (24)

PROMOCJA
Projekt domu Parterowy 27
Parterowy 27
Dodano!
Dodano!
51,90 m²
2
1
0

3 082 zł

3 350 zł

Tooltip

Cena regularna

3 082 zł najniższa cena
Tooltip

Najniższa cena z 30 dni
przed obniżką

PROMOCJA
Projekt domu Parterowy 5S
Parterowy 5S
Dodano!
Dodano!
110 m²
4
2
0

3 910 zł

4 250 zł

Tooltip

Cena regularna

3 910 zł najniższa cena
Tooltip

Najniższa cena z 30 dni
przed obniżką

PROMOCJA
Projekt domu Parterowy 27S
Parterowy 27S
Dodano!
Dodano!
51,90 m²
2
1
0

3 070 zł

3 338 zł

Tooltip

Cena regularna

3 070 zł najniższa cena
Tooltip

Najniższa cena z 30 dni
przed obniżką

PROMOCJA
Projekt domu Parterowy 28
Parterowy 28
Dodano!
Dodano!
51,40 m²
3
1
0

3 082 zł

3 350 zł

Tooltip

Cena regularna

3 082 zł najniższa cena
Tooltip

Najniższa cena z 30 dni
przed obniżką

PROMOCJA
Projekt domu Parterowy 10
Parterowy 10
Dodano!
Dodano!
76,65 m²
3
1
1

3 496 zł

3 800 zł

Tooltip

Cena regularna

3 496 zł najniższa cena
Tooltip

Najniższa cena z 30 dni
przed obniżką

PROMOCJA
Projekt domu Parterowy 21
Parterowy 21
Dodano!
Dodano!
51,90 m²
2
1
0

3 082 zł

3 350 zł

Tooltip

Cena regularna

3 082 zł najniższa cena
Tooltip

Najniższa cena z 30 dni
przed obniżką

PROMOCJA
Projekt domu Parterowy 20S
Parterowy 20S
Dodano!
Dodano!
49,30 m²
1
1
0

3 070 zł

3 338 zł

Tooltip

Cena regularna

3 070 zł najniższa cena
Tooltip

Najniższa cena z 30 dni
przed obniżką

PROMOCJA
Projekt domu Parterowy 21S
Parterowy 21S
Dodano!
Dodano!
51,90 m²
2
1
0

3 070 zł

3 338 zł

Tooltip

Cena regularna

3 070 zł najniższa cena
Tooltip

Najniższa cena z 30 dni
przed obniżką

PROMOCJA
Projekt domu Parterowy 1
Parterowy 1
Dodano!
Dodano!
161,65 m²
5
2
2

4 324 zł

4 700 zł

Tooltip

Cena regularna

4 324 zł najniższa cena
Tooltip

Najniższa cena z 30 dni
przed obniżką

PROMOCJA
Projekt domu Parterowy 20
Parterowy 20
Dodano!
Dodano!
49,30 m²
1
1
0

3 082 zł

3 350 zł

Tooltip

Cena regularna

3 082 zł najniższa cena
Tooltip

Najniższa cena z 30 dni
przed obniżką

PROMOCJA
Projekt domu Parterowy 28S
Parterowy 28S
Dodano!
Dodano!
51,40 m²
3
1
0

3 070 zł

3 338 zł

Tooltip

Cena regularna

3 070 zł najniższa cena
Tooltip

Najniższa cena z 30 dni
przed obniżką

PROMOCJA
Projekt domu Parterowy 3
Parterowy 3
Dodano!
Dodano!
145,15 m²
3
2
2

4 048 zł

4 400 zł

Tooltip

Cena regularna

4 048 zł najniższa cena
Tooltip

Najniższa cena z 30 dni
przed obniżką

PROMOCJA
Projekt domu Parterowy 7
Parterowy 7
Dodano!
Dodano!
152,40 m²
3
2
2

4 213 zł

4 580 zł

Tooltip

Cena regularna

4 213 zł najniższa cena
Tooltip

Najniższa cena z 30 dni
przed obniżką

PROMOCJA
Projekt domu Parterowy 14
Parterowy 14
Dodano!
Dodano!
64,35 m²
2
1
1

3 220 zł

3 500 zł

Tooltip

Cena regularna

3 220 zł najniższa cena
Tooltip

Najniższa cena z 30 dni
przed obniżką

PROMOCJA
Projekt domu Parterowy 6
Parterowy 6
Dodano!
Dodano!
104,95 m²
4
2
0

3 910 zł

4 250 zł

Tooltip

Cena regularna

3 910 zł najniższa cena
Tooltip

Najniższa cena z 30 dni
przed obniżką

PROMOCJA
Projekt domu Parterowy 4
Parterowy 4
Dodano!
Dodano!
144,65 m²
3
2
2

4 048 zł

4 400 zł

Tooltip

Cena regularna

4 048 zł najniższa cena
Tooltip

Najniższa cena z 30 dni
przed obniżką

PROMOCJA
Projekt domu Parterowy 13
Parterowy 13
Dodano!
Dodano!
64,35 m²
2
1
1

3 220 zł

3 500 zł

Tooltip

Cena regularna

3 220 zł najniższa cena
Tooltip

Najniższa cena z 30 dni
przed obniżką

PROMOCJA
Projekt domu Parterowy 5
Parterowy 5
Dodano!
Dodano!
107,20 m²
4
2
0

3 910 zł

4 250 zł

Tooltip

Cena regularna

3 910 zł najniższa cena
Tooltip

Najniższa cena z 30 dni
przed obniżką

PROMOCJA
Projekt domu Parterowy 8
Parterowy 8
Dodano!
Dodano!
154,75 m²
3
2
2

4 213 zł

4 580 zł

Tooltip

Cena regularna

4 213 zł najniższa cena
Tooltip

Najniższa cena z 30 dni
przed obniżką

PROMOCJA
Projekt domu Parterowy 12
Parterowy 12
Dodano!
Dodano!
64,35 m²
2
1
1

3 220 zł

3 500 zł

Tooltip

Cena regularna

3 220 zł najniższa cena
Tooltip

Najniższa cena z 30 dni
przed obniżką

PROMOCJA
Projekt domu Parterowy 11
Parterowy 11
Dodano!
Dodano!
64,35 m²
2
1
0

3 082 zł

3 350 zł

Tooltip

Cena regularna

3 082 zł najniższa cena
Tooltip

Najniższa cena z 30 dni
przed obniżką

PROMOCJA
Projekt domu Parterowy 15
Parterowy 15
Dodano!
Dodano!
64,35 m²
2
1
1

3 220 zł

3 500 zł

Tooltip

Cena regularna

3 220 zł najniższa cena
Tooltip

Najniższa cena z 30 dni
przed obniżką

PROMOCJA
Projekt domu Parterowy 16
Parterowy 16
Dodano!
Dodano!
64,35 m²
2
1
1

3 220 zł

3 500 zł

Tooltip

Cena regularna

3 220 zł najniższa cena
Tooltip

Najniższa cena z 30 dni
przed obniżką

PROMOCJA
Projekt domu Parterowy 2
Parterowy 2
Dodano!
Dodano!
158,95 m²
5
2
2

4 241 zł

4 610 zł

Tooltip

Cena regularna

4 241 zł najniższa cena
Tooltip

Najniższa cena z 30 dni
przed obniżką

Podobne projekty (15)

Zobacz wszystkie
NIŻSZA CENA❄️
Nowość
Zdjęcie 1 projektu N-244 PZB1098
N-244
Dodano!
Dodano!
201,80 m²
4
3
2

9 405 zł

9 900 zł

Tooltip

Cena regularna

9 900 zł najniższa cena
Tooltip

Najniższa cena z 30 dni
przed obniżką

Zdjęcie 1 projektu Dom Forma POZ1002
Dom Forma
Dodano!
Dodano!
282,63 m²
5
3
2

28 700 zł

Zdjęcie 1 projektu Dom Linea POZ1004
Dom Linea
Dodano!
Dodano!
198,42 m²
6
3
2

22 450 zł

NIŻSZA CENA❄️
Zdjęcie 1 projektu N-138 PZB1057
N-138
Dodano!
Dodano!
281,72 m²
4
2
3

10 374 zł

10 920 zł

Tooltip

Cena regularna

8 838 zł najniższa cena
Tooltip

Najniższa cena z 30 dni
przed obniżką

Zdjęcie 1 projektu D21-18B G2 WSA1017
D21-18B G2
Dodano!
Dodano!
189,02 m²
4
3
2

20 000 zł

Zdjęcie 1 projektu Dom z patio 1 WAW1145
Dom z patio 1
Dodano!
Dodano!
192,80 m²
4
3
2

9 890 zł

NIŻSZA CENA❄️
Zdjęcie 1 projektu Willa atrium WAH1274
Willa atrium
Dodano!
Dodano!
257 m²
5
3
3

9 560 zł

11 950 zł

Tooltip

Cena regularna

8 962 zł najniższa cena
Tooltip

Najniższa cena z 30 dni
przed obniżką

NIŻSZA CENA❄️
Zdjęcie 1 projektu HomeKoncept 88 KRX1147
HomeKoncept 88
Dodano!
Dodano!
242,15 m²
4
2
2

11 490 zł

11 990 zł

Tooltip

Cena regularna

10 191 zł najniższa cena
Tooltip

Najniższa cena z 30 dni
przed obniżką

Metody i koszt budowy

Ten dom możesz budować metodą gospodarczą, systemem zleconym lub skorzystać z naszej oferty Projekt z Budową. Przy porównaniu weź pod uwagę nie tylko koszt, ale też różny zakres prac i standard wykonania.

Metoda gospodarcza

Najtańsza metoda - większość prac
budowlanych wykonuje inwestor

Stan surowy zamknięty (SSZ)

1 075 000 zł netto

Szacunkowy koszt materiałów na III kwartał 2025
  • Prace ziemne i fundamenty

    213 000 zł
  • Konstrukcja, strop oraz dach

    642 000 zł
  • Stolarka okienna i drzwiowa

    220 000 zł
  • Instalacje

    nie obejmuje
  • Prace wykończeniowe

    nie obejmuje
  • Możesz budować etapami, pamiętając jednak o zmianie kosztów w czasie
  • Możesz rozpocząć budowę z częścią niezbędnych środków
  • Sam ustalasz harmonogram, koordynujesz budowę i zapewniasz materiały
Czy da się obniżyć koszty budowy?
Zobacz nasz film jak obniżyć koszt budowy

Projekt z Budową

Najszybsza i najwygodniejsza metoda -
całą budowę domu realizuje jedna firma

Stan deweloperski
Gwarancja stałego kosztu budowy

Gwarancja stałego
kosztu budowy

  • Prace ziemne i fundamenty
  • Konstrukcja, strop oraz dach
  • Stolarka okienna i drzwiowa
  • Instalacje  
    Tooltip

    Obejmuje wykonanie instalacji:

    • wodno-kanalizacyjnej
    • centralnego ogrzewania
    • gazowej
    • elektrycznej
  • Prace wykończeniowe  
    Tooltip

    Prace wykończeniowe obejmują:

    • sufity i ściany wewnętrzne
    • tynki i okładziny ścian wewnętrznych
    • wylewki i posadzkę
    • ocieplenie ścian zewnętrznych i elewację

Budowa
nawet w
6mies.

  • Kompleksowa umowa i znany z góry koszt budowy
  • Logistyka, organizacja budowy i zakupy po stronie firmy budowlanej
  • Formalności i dokumentacje po stronie firmy budowlanej
  • Różne technologie budowy dopasowane do projektu i budżetu
Szczegóły i dostępne technologie

Elewacje

Frontowa
Tylna
Lewa
Prawa

Przekroje

Przekrój pionowy

Usytuowanie na działce

Czy ten projekt pasuje na
Twoją działkę?

Chętnie to sprawdzimy!

Czy ten projekt pasuje na
Twoją działkę?

Chętnie to sprawdzimy!

Dowiedz się:

  • czy zmieści się na niej wybrany przez Ciebie dom
  • jakie parametry musi spełniać dom według miejscowego planu zagospodarowania lub warunków zabudowy (np. kąt nachylenia i typ dachu, liczba kondygnacji itp.
  • jakie inne projekty pasują na Twoją działkę – znajdziemy je dla Ciebie!
Autor: MyProjektujemy Tomasz Kurzydem

Dane techniczne projektu

Powierzchnie i wymiary Powierzchnie i wymiary

Powierzchnia użytkowa
Tooltip
Suma powierzchni wszystkich pomieszczeń mieszkalnych, pomniejszona o pow. garażu, kotłowni, strychu, piwnicy. Jest liczona w 100% dla pomieszczeń o wysokości powyżej 2,2 m, w 50% dla pomieszczeń o wys. 2,2-1,4 m i niewliczana dla niższych niż 1,4 m.

364,05 m²

Powierzchnia zabudowy
Tooltip
Powierzchnia zajmowana przez część na- oraz nadziemną budynku liczona, jako rzut pionowy budynku na działkę.

535 m²

Powierzchnia całkowita
Tooltip
Całkowita powierzchnia wszystkich kondygnacji budynku łącznie z elementami nośnymi, takimi jak ściany zewnętrzne (z ociepleniem), słupy, tarasy, itp.

441,80 m²

Kubatura brutto
Tooltip
Zazwyczaj jest to suma kubatur (objętości) wszystkich pomieszczeń budynku, liczonych po zewnętrznym obrysie murów (z ociepleniem).

2 001,60 m³

Kąt nachylenia dachu
Tooltip
Nachylenie połaci dachu głównego podawane w stopniach. Uwaga! W niektórych projektach występuje więcej niż jedno nachylenie dachu.

Wysokość budynku
Tooltip
Wysokość liczona od części budynku położonej najniżej przy powierzchni terenu do najwyższego punktu dachu (kalenicy) z wyłączeniem kominów.

4,73 m

Szerokość elewacji

22,48 m

Długość elewacji

23,80 m

Min. szerokość działki
Tooltip
Najmniejsza możliwa szerokość działki niezbędna do wybudowania wybranego domu. Składa się z szerokości elewacji domu powiększonej z obu stron o 3 m dla ściany bez otworów drzwiowych/okiennych lub 4 m, dla ściany z otworami.

30,48 m

Min. długość działki
Tooltip
Najmniejsza możliwa długość działki niezbędna do wybudowania wybranego domu. Składa się z długości elewacji domu powiększonej z obu stron o 3 m dla ściany bez otworów drzwiowych/okiennych lub 4 m, dla ściany z otworami.

31,80 m

Energooszczędność Energooszczędność

Oze Czym jest OZE (Odnawialne Źródło Energii)?
Ep
Tooltip
Energia pierwotna określa ilość energii nieodnawialnej potrzebnej w ciągu roku do ogrzewania czy też ogrzania wody użytkowej z uwzględnieniem kosztów produkcji i transportu surowców energetycznych.

69 kWh/(m²rok)

Ogrzewanie główne

Gazowe - szczegóły

Interesuje Cię inne źródło ogrzewania? Wyślij zapytanie lub zadzwoń do doradcy

Wentylacja

Mechaniczna nawiewno-wywiewna z rekuperacją - szczegóły

Warunki techniczne

Projekt zgody z WT 2021

Technologia i konstrukcja Technologia i konstrukcja

Konstrukcja

Murowana

PROJEKT Z BUDOWĄ Istnieje możliwość zaadaptowania tego projektu do technologii prefabrykowanej/modułowej i budowy nawet w 6 miesięcy ze stałym kosztem budowy

Dowiedz się więcej »
Opis szczegółowy

Posadowienie budynku: ława fundamentowa. Ściany zewnętrzne: pustak ceramiczny 25 cm + styropian 25 cm. Ściany wewnętrzne: pustak ceramiczny 12 cm. Strop nad parterem: gęstożebrowy. Pokrycie dachu: papa. Elewacja: tynk

Strop

Gęstożebrowy

Reklama
Okna i drzwi tarasowe

Nowoczesne okna PVC i aluminiowe WIŚNIOWSKI – doskonała izolacja, elegancki design i niezrównana trwałość.

Wiśniowski
Sprawdź parametry!
Okna dachowe

Oferujemy bezpłatne konsultacje w zakresie wszystkich rozwiązań VELUX. Wyceny, porady dotyczące doboru okien i rolet zewnętrznych - sprawdź!

Velux
Sprawdź szczegóły
Płytki ceramiczne i gresy

Od małych formatów po wielkoformatowe gresy. Marmur, beton, drewno, kamień, lastryko czy cegiełki zamówisz wygodnie online z szybką dostawą.

Ceramzet
Sprawdź ofertę
Drzwi

Ciepłe drzwi WIŚNIOWSKI z kontrolą dostępu. Szeroka gama wzorów i kolorów.

Wiśniowski
Wybierz najlepsze
Bramy garażowe

Automatyczne bramy garażowe segmentowe i uchylne WIŚNIOWSKI na wymiar i z systemem smart home w standardzie.

Wiśniowski
Sprawdź ofertę!
Armatura i ceramika łazienkowa

Topowi producenci. Baterie łazienkowe, zestawy natynkowe i podtynkowe, umywalki, wanny, miski WC oraz kabiny zamówisz kompleksowo online.

Ceramzet II
Dowiedz się więcej
Rekuperacja

Alnor - kompletny system rekuperacji. Dobierz idealne rozwiązanie dla Twojego domu!

Alnor
Dobierz rekuperator
Gruntowe pompy ciepła

Przeprowadzimy kompletną instalację najbardziej oszczędnego źródła ciepła w Twoim nowym domu - gruntowej pompy ciepła. Od dokumentacji, pozwoleń, po odwierty i instalację.

Geothermal Solutions
Dowiedz się więcej

Gotowe domy modułowe (114)

Zobacz wszystkie
Stan deweloperski nawet w 6 miesięcy Gwarancja stałej ceny
Zdjęcie 1 projektu Dom prefabrykowany P.11 bliźniak HPK1016
Pow. użytkowa
245,76 m²
Pokoje
3
1 362 600 zł 5 544 zł/m²
Zdjęcie 1 projektu Dom prefabrykowany P.12 z okapem HPK1021
Pow. użytkowa
190,98 m²
Pokoje
5
887 600 zł 4 648 zł/m²
Zdjęcie 1 projektu Dom prefabrykowany P.12 bez okapu HPK1020
Pow. użytkowa
190,98 m²
Pokoje
5
858 100 zł 4 493 zł/m²
Zdjęcie 1 projektu Dom prefabrykowany Stodoła 180C HFX1029
Pow. użytkowa
186,60 m²
Pokoje
5
659 000 zł 3 532 zł/m²
Zdjęcie 1 projektu Dom prefabrykowany Stodoła 180A HFX1027
Pow. użytkowa
186,60 m²
Pokoje
5
659 000 zł 3 532 zł/m²
Zdjęcie 1 projektu Dom prefabrykowany Stodoła 180B HFX1028
Pow. użytkowa
185,90 m²
Pokoje
5
659 000 zł 3 545 zł/m²
Zdjęcie 1 projektu Dom prefabrykowany P.6 HPK1005
Pow. użytkowa
176,69 m²
Pokoje
4
916 600 zł 5 188 zł/m²
Zdjęcie 1 projektu Dom szkieletowy Viking Smart 220 HHT1032
Pow. użytkowa
163,86 m²
Pokoje
4
1 095 606 zł 6 686 zł/m²

Opis projektu domu
Parterowy 9

Budynek mieszkalny jednorodzinny, wolnostojący, parterowy
Czytaj więcej

Polecani producenci

Prefabrykowane konstrukcje dachowe

tło producenta

WIĄZAR POLSKA

Zobacz więcej

Sprawdź nową generację okien GREENVIEW

tło producenta

FAKRO

Sprawdź nową generację okien GREENVIEW

Styropian, tynki, farby, kleje

tło producenta

Termo Organika

Poznaj super jakość

Okna, drzwi, osłony przeciwsłoneczne

tło producenta

Aluprof

Sprawdź ofertę

Kompletne systemy rekuperacji

tło producenta

Alnor

Dowiedz się więcej

Sprawdź nowy system DACHRYNNA

tło producenta

Galeco

Sprawdź ofertę
Zobacz więcej

Społeczność projektu domu
Parterowy 9 w budowie

Dołącz do społeczności osób, które budują ten dom lub są zainteresowane jego budową.

  • Oglądaj zdjęcia z budowy
  • Zadawaj pytania
  • Wymieniaj się doświadczeniami

Opinie o projekcie domu Parterowy 9

Ocena

Ten projekt nie ma jeszcze opinii, bądź pierwszy!

Dodaj opinię

ASYSTENT WYBORU PROJEKTU

Szukasz idealnego projektu? Znajdziemy go dla Ciebie!

Doradca na podstawie Twoich wskazówek przygotuje spersonalizowaną listę projektów

Graficzne opracowanie rzutów poglądowych widocznych na karcie projektu zostało wykonane przez Extradom.pl. Prezentowane przez Extradom.pl wizualizacje wykonane zostały przez autora projektu i należy poczytywać je jedynie za przykład i propozycję wykończenia, wizję architektoniczną autora projektu. Ostateczne wykończenie budynku może nastąpić na wiele sposobów. Szczegółowe rozwiązania zastosowane w oferowanej dokumentacji - w tym również ilość, lokalizacje i wygląd okien, drzwi, kominów - mogą w niewielkim stopniu różnić się od prezentowanej wizualizacji budynku.

Extradom.pl Spółka z ograniczoną odpowiedzialnością z siedzibą przy ul. Jaworskiej 13, 53-612 Wrocław, wpisana do rejestru przedsiębiorców Krajowego Rejestru Sądowego przez Sąd Rejonowy dla Wrocławia-Fabrycznej we Wrocławiu, VI Wydział Gospodarczy Krajowego Rejestru Sądowego do pod numerem KRS 0000648746, numer NIP 895-17-18-333, o kapitale zakładowym 708 150,00 zł uprzejmie informuje, iż poprzez serwis Extradom.pl umożliwia m.in. zapoznanie się przez konsumentów z ofertą handlową Partnerów Extradom.pl, którzy stosują metody budowy domów przy wykorzystaniu różnego rodzaju technologie prefabrykacji bądź modułowe (tzw. „Gotowe domy”).

Extradom.pl nie prowadzi jednakże sprzedaży ani nie oferuje usług polegających na doradztwie finansowym, prawnym ani podatkowym w zakresie inwestycji realizowanych w technologiach tzw. „Gotowych domów”. Informacje prezentowane w serwisie Extradom.pl dotyczące Partnerów Extradom.pl oferujących realizację inwestycji w technologiach „Gotowych domów” lub podobnych mają charakter informacyjny i reklamowy.

Prezentowane w serwisie Extradom.pl informacje dotyczące stosowanych przez Partnerów metod budowy domów w technologii prefabrykacji bądź modułowej pochodzą od Partnerów Extradom.pl.

Extradom.pl sp. z o.o. jedynie umożliwia nawiązanie kontaktu przez Użytkownika z Partnerem Extradom.pl stosującym tego rodzaju technologie budowy domów i nie jest stroną umowy o roboty budowlane zawieranej przez Użytkownika Extradom.pl z Partnerem Extradom.pl.

REKLAMA
Zamknij