Projekty nawet 500 zł taniej ❄️

Koniec oferty za:

00godz.

00min.

00sek.

Sprawdź

Projekt domu New House 27 KRZ1013

Dodano!
Dodano!

Warstwy

Warstwy

Rzut parteru

Powierzchnia (m²)
Tooltip
Powierzchnia pomieszczenia
to ta, z której faktycznie możesz korzystać – skosy i niskie części poddasza są liczone częściowo lub wcale.
  1. 100% dla wysokości powyżej 2,2 m,
  2. 50% dla wysokości 1,4–2,2 m,
  3. nie liczymy poniżej 1,4 m.

Powierzchnia podłogi
Liczymy po obrysie pomieszczenia, bez względu na jego wysokość/skosy. Jeśli nie ma skosów to powierzchnia podłogi i pomieszczenia jest taka sama.
pomieszczenia i podłogi
podłogi
1. Wiatrołap
3,86
2. Garderoba
4
3. Pokój
12
4. Hall
19,50
5. Pokój dzienny + jadalnia
43,46
6. Kuchnia
15,05
7. Spiżarnia
3,56
8. Łazienka
4,24
9. Kotłownia
6,56
10. Pokój
5,10
11. Garaż dwustanowiskowy
35,40
Razem
152,73
152,73
12. Taras
66,36
Powierzchnia (m²)
Tooltip
Powierzchnia pomieszczenia
to ta, z której faktycznie możesz korzystać – skosy i niskie części poddasza są liczone częściowo lub wcale.
  1. 100% dla wysokości powyżej 2,2 m,
  2. 50% dla wysokości 1,4–2,2 m,
  3. nie liczymy poniżej 1,4 m.

Powierzchnia podłogi
Liczymy po obrysie pomieszczenia, bez względu na jego wysokość/skosy. Jeśli nie ma skosów to powierzchnia podłogi i pomieszczenia jest taka sama.
pomieszczenia i podłogi
podłogi
1. Korytarz
15,42
2. Pokój
13,89
3. Pokój
13,98
4. Pokój
17,43
5. Pokój
15,88
6. Garderoba
6,33
7. Łazienka
8,46
8. Pomieszczenie gospodarcze
5,23
Razem
96,62
96,62
9. Taras
107,20

    Usytuowanie na działce

    Czy ten projekt pasuje na
    Twoją działkę?

    Chętnie to sprawdzimy!

    Dowiedz się:

    • czy zmieści się na niej wybrany przez Ciebie dom
    • jakie parametry musi spełniać dom według miejscowego planu zagospodarowania lub warunków zabudowy (np. kąt nachylenia i typ dachu, liczba kondygnacji itp.
    • jakie inne projekty pasują na Twoją działkę – znajdziemy je dla Ciebie!

Pow. użytkowa

213,95 m²

Pokoje

6

Łazienki i WC

2

Garaż

2

Min. szer. i dł. działki

28,4 x 20,95 m

Konstrukcja

Murowana
więcej

New House 27 - KRZ1013

ikona 213,95 m²
Powierzchnia użytkowa
ikona6
Pokoje (bez salonu)
ikona 2
Łazienki (z toaletami)
ikona 2
Liczba stanowisk garażowych
(z wiatą garażową)
ikona
Konstrukcja: Murowana

Projekt został
wycofany z oferty

W razie pytań prosimy o kontakt
z Centrum Obsługi Klienta
Konsultant Masz pytania?
Zadzwoń
71 715 20 60

pon.-pt. 8-21, sob. 9-17

Parter - 152,73 m²

Parter projektu New House 27

Zapytaj, co możesz zmienić

Powierzchnia (m²)
Tooltip
Powierzchnia pomieszczenia
to ta, z której faktycznie możesz korzystać – skosy i niskie części poddasza są liczone częściowo lub wcale.
  1. 100% dla wysokości powyżej 2,2 m,
  2. 50% dla wysokości 1,4–2,2 m,
  3. nie liczymy poniżej 1,4 m.

Powierzchnia podłogi
Liczymy po obrysie pomieszczenia, bez względu na jego wysokość/skosy. Jeśli nie ma skosów to powierzchnia podłogi i pomieszczenia jest taka sama.
pomieszczenia i podłogi
podłogi
1. Wiatrołap
3,86
2. Garderoba
4
3. Pokój
12
4. Hall
19,50
5. Pokój dzienny + jadalnia
43,46
6. Kuchnia
15,05
7. Spiżarnia
3,56
8. Łazienka
4,24
9. Kotłownia
6,56
10. Pokój
5,10
11. Garaż dwustanowiskowy
35,40
Razem
152,73
152,73
12. Taras
66,36

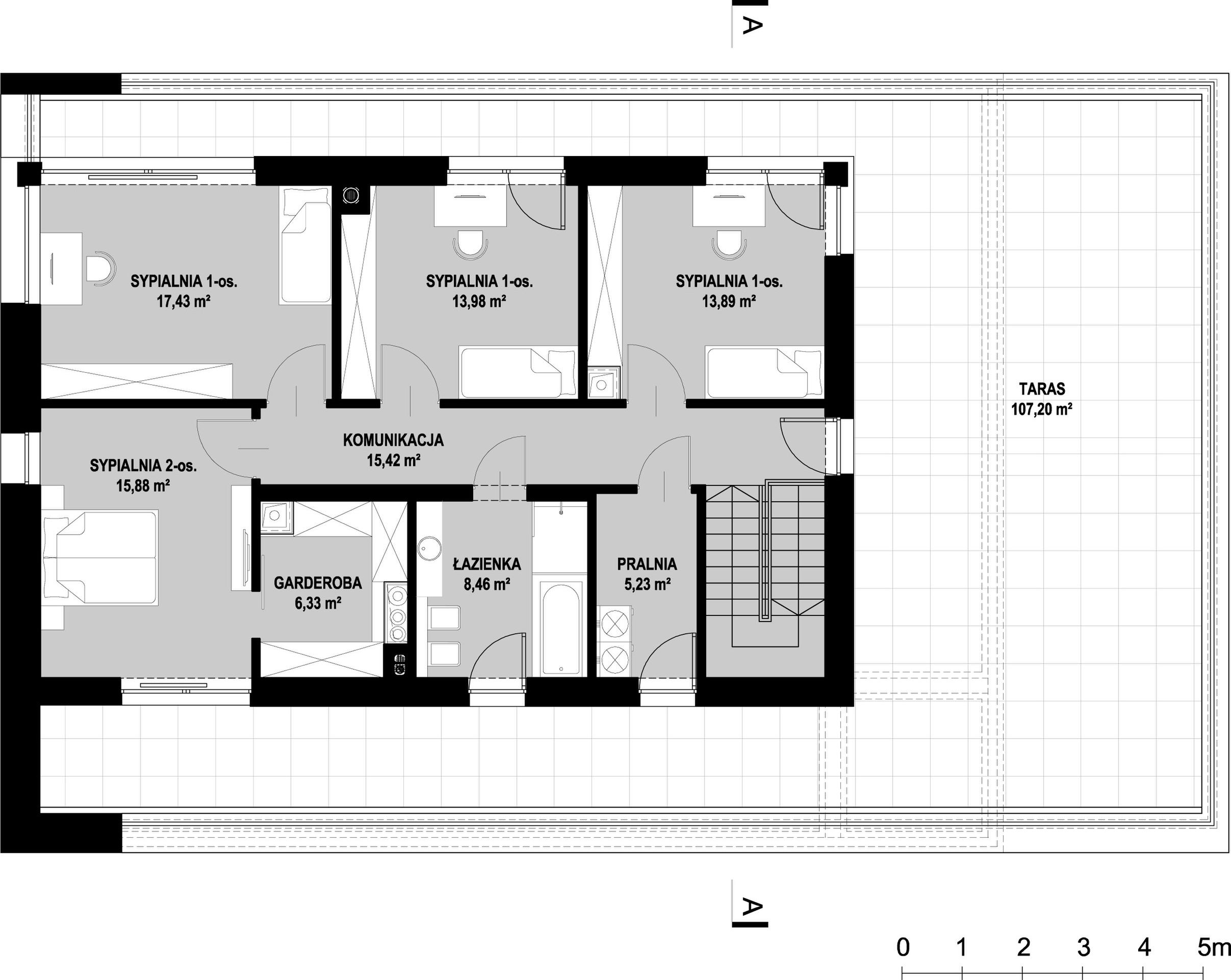
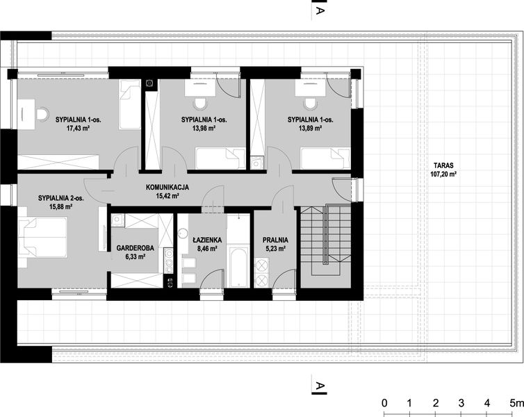
Piętro 1 - 96,62 m²

Piętro 1 projektu New House 27

Zapytaj, co możesz zmienić

Powierzchnia (m²)
Tooltip
Powierzchnia pomieszczenia
to ta, z której faktycznie możesz korzystać – skosy i niskie części poddasza są liczone częściowo lub wcale.
  1. 100% dla wysokości powyżej 2,2 m,
  2. 50% dla wysokości 1,4–2,2 m,
  3. nie liczymy poniżej 1,4 m.

Powierzchnia podłogi
Liczymy po obrysie pomieszczenia, bez względu na jego wysokość/skosy. Jeśli nie ma skosów to powierzchnia podłogi i pomieszczenia jest taka sama.
pomieszczenia i podłogi
podłogi
1. Korytarz
15,42
2. Pokój
13,89
3. Pokój
13,98
4. Pokój
17,43
5. Pokój
15,88
6. Garderoba
6,33
7. Łazienka
8,46
8. Pomieszczenie gospodarcze
5,23
Razem
96,62
96,62
9. Taras
107,20

Podobne projekty (4365)

Zobacz wszystkie
NIŻSZA CENA❄️
Zdjęcie 1 projektu Willa Floryda 8 WAH2142
Willa Floryda 8
Dodano!
Dodano!
212,34 m²
5
4
2

10 600 zł

13 250 zł

Tooltip

Cena regularna

9 937 zł najniższa cena
Tooltip

Najniższa cena z 30 dni
przed obniżką

NIŻSZA CENA❄️
Nowość
Zdjęcie 1 projektu HomeKoncept 128 KRX1297
HomeKoncept 128
Dodano!
Dodano!
239,14 m²
5
3
2

11 990 zł

12 490 zł

Tooltip

Cena regularna

12 490 zł najniższa cena
Tooltip

Najniższa cena z 30 dni
przed obniżką

Zdjęcie 1 projektu House x25 WRG1100
House x25
Dodano!
Dodano!
190,34 m²
4
3
3

7 990 zł

NIŻSZA CENA❄️
Zdjęcie 1 projektu Dom z widokiem 3 F WAH1849
Dom z widokiem 3 F
Dodano!
Dodano!
195,05 m²
4
2
2

7 560 zł

9 450 zł

Tooltip

Cena regularna

7 087 zł najniższa cena
Tooltip

Najniższa cena z 30 dni
przed obniżką

Zdjęcie 1 projektu Domidea 102 2G WAC1097
Domidea 102 2G
Dodano!
Dodano!
222,84 m²
5
3
2

8 610 zł

Zdjęcie 1 projektu Dom Symetra POZ1011
Dom Symetra
Dodano!
Dodano!
244,40 m²
5
3
2

27 400 zł

Zdjęcie 1 projektu Dom Linea POZ1004
Dom Linea
Dodano!
Dodano!
198,42 m²
6
3
2

22 450 zł

Zdjęcie 1 projektu D21-18B G2 WSA1017
D21-18B G2
Dodano!
Dodano!
189,02 m²
4
3
2

20 000 zł

Elewacje

Frontowa
Tylna
Lewa
Prawa

Przekroje

Przekrój pionowy

Usytuowanie na działce

Czy ten projekt pasuje na
Twoją działkę?

Chętnie to sprawdzimy!

Czy ten projekt pasuje na
Twoją działkę?

Chętnie to sprawdzimy!

Dowiedz się:

  • czy zmieści się na niej wybrany przez Ciebie dom
  • jakie parametry musi spełniać dom według miejscowego planu zagospodarowania lub warunków zabudowy (np. kąt nachylenia i typ dachu, liczba kondygnacji itp.
  • jakie inne projekty pasują na Twoją działkę – znajdziemy je dla Ciebie!
Autor: Modern House

Dane techniczne projektu

Powierzchnie i wymiary Powierzchnie i wymiary

Powierzchnia użytkowa
Tooltip
Suma powierzchni wszystkich pomieszczeń mieszkalnych, pomniejszona o pow. garażu, kotłowni, strychu, piwnicy. Jest liczona w 100% dla pomieszczeń o wysokości powyżej 2,2 m, w 50% dla pomieszczeń o wys. 2,2-1,4 m i niewliczana dla niższych niż 1,4 m.

213,95 m²

Powierzchnia zabudowy
Tooltip
Powierzchnia zajmowana przez część na- oraz nadziemną budynku liczona, jako rzut pionowy budynku na działkę.

264,18 m²

Wysokość budynku
Tooltip
Wysokość liczona od części budynku położonej najniżej przy powierzchni terenu do najwyższego punktu dachu (kalenicy) z wyłączeniem kominów.

7,06 m

Min. szerokość działki
Tooltip
Najmniejsza możliwa szerokość działki niezbędna do wybudowania wybranego domu. Składa się z szerokości elewacji domu powiększonej z obu stron o 3 m dla ściany bez otworów drzwiowych/okiennych lub 4 m, dla ściany z otworami.

28,40 m

Min. długość działki
Tooltip
Najmniejsza możliwa długość działki niezbędna do wybudowania wybranego domu. Składa się z długości elewacji domu powiększonej z obu stron o 3 m dla ściany bez otworów drzwiowych/okiennych lub 4 m, dla ściany z otworami.

20,95 m

Energooszczędność Energooszczędność

Oze Czym jest OZE (Odnawialne Źródło Energii)?
Warunki techniczne

Projekt zgody z WT 2021

Technologia i konstrukcja Technologia i konstrukcja

Konstrukcja

Murowana

Opis szczegółowy

Fundamenty: tradycyjne ławy fundamentowe żelbetowe. Ściany zewn.: dwuwarstwowe – pustak ceramiczny lub bloczek silikatowy 25 cm + styropian 20 cm/wełna mineralna 18 cm. Ściany wewn.: murowane. Strop: żelbetowy wylewany na mokro. Dach: stropodach żelbetowy. Elewacje: tynki silikonowe, drewno. Ogrzewanie: gazowe – piec kondensacyjny. Ogrzewanie podłogowe w wiatrołapie, komunikacji, salonie, jadalni, kuchni, łazienkach, garderobach, i pralni. Tradycyjne grzejniki w gabinecie, sypialniach, garażu i kotłowni. Wentylacja: mechaniczna z rekuperacją.

Strop

Żelbetowy

Reklama
Okna i drzwi tarasowe

Nowoczesne okna PVC i aluminiowe WIŚNIOWSKI – doskonała izolacja, elegancki design i niezrównana trwałość.

Wiśniowski
Sprawdź parametry!
Okna dachowe

Oferujemy bezpłatne konsultacje w zakresie wszystkich rozwiązań VELUX. Wyceny, porady dotyczące doboru okien i rolet zewnętrznych - sprawdź!

Velux
Sprawdź szczegóły
Płytki ceramiczne i gresy

Od małych formatów po wielkoformatowe gresy. Marmur, beton, drewno, kamień, lastryko czy cegiełki zamówisz wygodnie online z szybką dostawą.

Ceramzet
Sprawdź ofertę
Drzwi

Ciepłe drzwi WIŚNIOWSKI z kontrolą dostępu. Szeroka gama wzorów i kolorów.

Wiśniowski
Wybierz najlepsze
Bramy garażowe

Automatyczne bramy garażowe segmentowe i uchylne WIŚNIOWSKI na wymiar i z systemem smart home w standardzie.

Wiśniowski
Sprawdź ofertę!
Armatura i ceramika łazienkowa

Topowi producenci. Baterie łazienkowe, zestawy natynkowe i podtynkowe, umywalki, wanny, miski WC oraz kabiny zamówisz kompleksowo online.

Ceramzet II
Dowiedz się więcej
Rekuperacja

Alnor - kompletny system rekuperacji. Dobierz idealne rozwiązanie dla Twojego domu!

Alnor
Dobierz rekuperator
Gruntowe pompy ciepła

Przeprowadzimy kompletną instalację najbardziej oszczędnego źródła ciepła w Twoim nowym domu - gruntowej pompy ciepła. Od dokumentacji, pozwoleń, po odwierty i instalację.

Geothermal Solutions
Dowiedz się więcej

Gotowe domy modułowe (114)

Zobacz wszystkie
Stan deweloperski nawet w 6 miesięcy Gwarancja stałej ceny
Zdjęcie 1 projektu Dom prefabrykowany P.12 z okapem HPK1021
Pow. użytkowa
190,98 m²
Pokoje
5
887 600 zł 4 648 zł/m²
Zdjęcie 1 projektu Dom prefabrykowany P.12 bez okapu HPK1020
Pow. użytkowa
190,98 m²
Pokoje
5
858 100 zł 4 493 zł/m²
Zdjęcie 1 projektu Dom prefabrykowany Stodoła 180C HFX1029
Pow. użytkowa
186,60 m²
Pokoje
5
659 000 zł 3 532 zł/m²
Zdjęcie 1 projektu Dom prefabrykowany Stodoła 180A HFX1027
Pow. użytkowa
186,60 m²
Pokoje
5
659 000 zł 3 532 zł/m²
Zdjęcie 1 projektu Dom prefabrykowany Stodoła 180B HFX1028
Pow. użytkowa
185,90 m²
Pokoje
5
659 000 zł 3 545 zł/m²
Zdjęcie 1 projektu Dom prefabrykowany P.11 bliźniak HPK1016
Pow. użytkowa
245,76 m²
Pokoje
3
1 362 600 zł 5 544 zł/m²
Zdjęcie 1 projektu Dom prefabrykowany P.6 HPK1005
Pow. użytkowa
176,69 m²
Pokoje
4
916 600 zł 5 188 zł/m²
Zdjęcie 1 projektu Dom szkieletowy Viking Smart 220 HHT1032
Pow. użytkowa
163,86 m²
Pokoje
4
1 095 606 zł 6 686 zł/m²

Opis projektu domu
New House 27

New House 27 to budynek jednorodzinny dwukondygnacyjny (parter i piętro) o nowoczesnej formie, z przestronnym i przemyślanym wnętrzem, stworzony z myślą o 4-5 osobowej rodzinie. Nowoczesność rozwiązań funkcjonalnych pozwoliła na wprowadzenie bogatego programu użytkowego, dającego poczucie przestrzeni i komfortu. Budynek podzielony jest na dwie strefy funkcjonalne: dzienną (parter) i nocną (piętro). W części dziennej znajduje się przestronny salon z jadalnią oraz połączona z nimi wygodna kuchnia z pojemną spiżarnią. Część ścian pokoju dziennego została przeszklona zapewniając, nie tylko stały dostęp naturalnego światła, ale także wzbogacając pomieszczenie widokiem na ogród. Należy tutaj wspomnieć również o efektownym, dostępnym z części dziennej tarasie (częściowo zadaszonym), który z pewnością w sezonie letnim, stanie się "zielonym salonem" - wymarzonym miejscem odpoczynku czy spotkań w gronie rodziny i przyjaciół. Na parterze zaprojektowano również gabinet z dostępem na taras. Gabinet znajduje się w pobliżu łazienki dzięki czemu może wspaniale sprawdzać się również jako pokój dla naszych gości. W strefie nocnej (na piętrze) zaprojektowano 4 komfortowe sypialnie, dużą łazienkę oraz pralnię. Garderoba 2 osobowa posiada swoją przestronną garderobę. Dodatkowo zaprojektowano duży taras dostępny z wszystkich sypialni, komunikacji, pralni i łazienki. Przy wejściu do domu zaplanowano wiatrołap i garderobę, idealne miejsce na okrycia wierzchnie i obuwie, z której przechodzi się do obszernego, dwustanowiskowego garażu. Dodatkowo zaprojektowano również, dostępne z zewnątrz pomieszczenie gospodarcze, w którym miejsce znajdą z pewnością wszelkie narzędzia ogrodnicze. Projekt domu New House 27 charakteryzuje się nowoczesnością rozwiązań architektonicznych, zarówno w zakresie formy budynku jak i rozwiązań funkcjonalno-użytkowych. Uwzględnia wykorzystanie nowych technologii i rozwiązań mających na celu uzyskane wysokiej energooszczędności budynku przy możliwie niskich kosztach budowy i późniejszej eksploatacji budynku. Materiały użyte w projekcie charakteryzują się bardzo dobrą jakością i trwałością oraz umożliwiają dowolne kształtowanie formy budynku spełniając przy tym wysokie parametry techniczne oraz walory estetyczne.
Czytaj więcej

Polecani producenci

Prefabrykowane konstrukcje dachowe

tło producenta

WIĄZAR POLSKA

Zobacz więcej

Sprawdź nową generację okien GREENVIEW

tło producenta

FAKRO

Sprawdź nową generację okien GREENVIEW

Styropian, tynki, farby, kleje

tło producenta

Termo Organika

Poznaj super jakość

Okna, drzwi, osłony przeciwsłoneczne

tło producenta

Aluprof

Sprawdź ofertę

Kompletne systemy rekuperacji

tło producenta

Alnor

Dowiedz się więcej

Sprawdź nowy system DACHRYNNA

tło producenta

Galeco

Sprawdź ofertę
Zobacz więcej

Społeczność projektu domu
New House 27 w budowie

Dołącz do społeczności osób, które budują ten dom lub są zainteresowane jego budową.

  • Oglądaj zdjęcia z budowy
  • Zadawaj pytania
  • Wymieniaj się doświadczeniami

Opinie o projekcie domu New House 27

5

Na podstawie 2 recenzji

Wspaniały!
100%
Bardzo dobry
0%
Średni
0%
Słaby
0%
Bardzo słaby
0%

Opinie niezweryfikowane zakupem

Dodaj opinię
teppa
13.01.2020 r.
Świetny!

ASYSTENT WYBORU PROJEKTU

Szukasz idealnego projektu? Znajdziemy go dla Ciebie!

Doradca na podstawie Twoich wskazówek przygotuje spersonalizowaną listę projektów

Graficzne opracowanie rzutów poglądowych widocznych na karcie projektu zostało wykonane przez Extradom.pl. Prezentowane przez Extradom.pl wizualizacje wykonane zostały przez autora projektu i należy poczytywać je jedynie za przykład i propozycję wykończenia, wizję architektoniczną autora projektu. Ostateczne wykończenie budynku może nastąpić na wiele sposobów. Szczegółowe rozwiązania zastosowane w oferowanej dokumentacji - w tym również ilość, lokalizacje i wygląd okien, drzwi, kominów - mogą w niewielkim stopniu różnić się od prezentowanej wizualizacji budynku.

REKLAMA
Zamknij