Projekty nawet 500 zł taniej ❄️

Koniec oferty za:

0dni

00godz.

00min.

00sek.

Sprawdź

Projekt domu MINOS 2 WRW1154

Dodano!
Dodano!

Warstwy

Warstwy

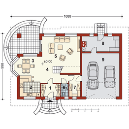
Rzut parteru

Powierzchnia (m²)
Tooltip
Powierzchnia pomieszczenia
to ta, z której faktycznie możesz korzystać – skosy i niskie części poddasza są liczone częściowo lub wcale.
  1. 100% dla wysokości powyżej 2,2 m,
  2. 50% dla wysokości 1,4–2,2 m,
  3. nie liczymy poniżej 1,4 m.

Powierzchnia podłogi
Liczymy po obrysie pomieszczenia, bez względu na jego wysokość/skosy. Jeśli nie ma skosów to powierzchnia podłogi i pomieszczenia jest taka sama.
pomieszczenia i podłogi
podłogi
1. Wiatrołap
5,64
2. Kuchnia
9,96
3. Jadalnia
11,43
4. Hall
12,89
5. Pokój dzienny
26,85
6. Wc
2,07
7. Pom. gospodarcze
5,56
8. Kotłownia
12,77
9. Garaż
37,45
Razem
124,62
124,62
Powierzchnia (m²)
Tooltip
Powierzchnia pomieszczenia
to ta, z której faktycznie możesz korzystać – skosy i niskie części poddasza są liczone częściowo lub wcale.
  1. 100% dla wysokości powyżej 2,2 m,
  2. 50% dla wysokości 1,4–2,2 m,
  3. nie liczymy poniżej 1,4 m.

Powierzchnia podłogi
Liczymy po obrysie pomieszczenia, bez względu na jego wysokość/skosy. Jeśli nie ma skosów to powierzchnia podłogi i pomieszczenia jest taka sama.
pomieszczenia i podłogi
podłogi
1. Hall
13,92
2. Pokój
12,91
3. Garderoba
2,31
4. Pokój
12,69
5. Łazienka
10,67
6. Pralnia
4,91
7. Garderoba
6,96
8. Łazienka
4,87
9. Garderoba
2,88
10. Pokój
13,81
Razem
85,93
85,93

    Usytuowanie na działce

    Czy ten projekt pasuje na
    Twoją działkę?

    Chętnie to sprawdzimy!

    Dowiedz się:

    • czy zmieści się na niej wybrany przez Ciebie dom
    • jakie parametry musi spełniać dom według miejscowego planu zagospodarowania lub warunków zabudowy (np. kąt nachylenia i typ dachu, liczba kondygnacji itp.
    • jakie inne projekty pasują na Twoją działkę – znajdziemy je dla Ciebie!

Pokoje

3

Łazienki i WC

3

Garaż

0
więcej

MINOS 2 - WRW1154

ikona3
Pokoje (bez salonu)
ikona 3
Łazienki (z toaletami)
ikona 0
Liczba stanowisk garażowych
(z wiatą garażową)

Projekt został
wycofany z oferty

W razie pytań prosimy o kontakt
z Centrum Obsługi Klienta
Konsultant Masz pytania?
Zadzwoń
71 715 20 60

pon.-pt. 8-21, sob. 9-17

Parter - 124,62 m²

Parter projektu MINOS 2

Zapytaj, co możesz zmienić

Powierzchnia (m²)
Tooltip
Powierzchnia pomieszczenia
to ta, z której faktycznie możesz korzystać – skosy i niskie części poddasza są liczone częściowo lub wcale.
  1. 100% dla wysokości powyżej 2,2 m,
  2. 50% dla wysokości 1,4–2,2 m,
  3. nie liczymy poniżej 1,4 m.

Powierzchnia podłogi
Liczymy po obrysie pomieszczenia, bez względu na jego wysokość/skosy. Jeśli nie ma skosów to powierzchnia podłogi i pomieszczenia jest taka sama.
pomieszczenia i podłogi
podłogi
1. Wiatrołap
5,64
2. Kuchnia
9,96
3. Jadalnia
11,43
4. Hall
12,89
5. Pokój dzienny
26,85
6. Wc
2,07
7. Pom. gospodarcze
5,56
8. Kotłownia
12,77
9. Garaż
37,45
Razem
124,62
124,62

Poddasze - 85,93 m²

Poddasze projektu MINOS 2

Zapytaj, co możesz zmienić

Powierzchnia (m²)
Tooltip
Powierzchnia pomieszczenia
to ta, z której faktycznie możesz korzystać – skosy i niskie części poddasza są liczone częściowo lub wcale.
  1. 100% dla wysokości powyżej 2,2 m,
  2. 50% dla wysokości 1,4–2,2 m,
  3. nie liczymy poniżej 1,4 m.

Powierzchnia podłogi
Liczymy po obrysie pomieszczenia, bez względu na jego wysokość/skosy. Jeśli nie ma skosów to powierzchnia podłogi i pomieszczenia jest taka sama.
pomieszczenia i podłogi
podłogi
1. Hall
13,92
2. Pokój
12,91
3. Garderoba
2,31
4. Pokój
12,69
5. Łazienka
10,67
6. Pralnia
4,91
7. Garderoba
6,96
8. Łazienka
4,87
9. Garderoba
2,88
10. Pokój
13,81
Razem
85,93
85,93

Podobne projekty (9774)

Zobacz wszystkie
NIŻSZA CENA❄️
Zdjęcie 1 projektu N-111 PZB1004
N-111
Dodano!
Dodano!
114,80 m²
3
2
0

7 781 zł

8 190 zł

Tooltip

Cena regularna

5 751 zł najniższa cena
Tooltip

Najniższa cena z 30 dni
przed obniżką

Zdjęcie 1 projektu Dom Archis POZ1000
Dom Archis
Dodano!
Dodano!
390,80 m²
5
3
2

29 900 zł

NIŻSZA CENA❄️
Zdjęcie 1 projektu N-213 PZB1088
N-213
Dodano!
Dodano!
186,37 m²
3
3
2

11 353 zł

11 950 zł

Tooltip

Cena regularna

10 755 zł najniższa cena
Tooltip

Najniższa cena z 30 dni
przed obniżką

NIŻSZA CENA❄️
Zdjęcie 1 projektu HomeKoncept 73 KRX1091
HomeKoncept 73
Dodano!
Dodano!
174,27 m²
4
3
2

8 090 zł

8 590 zł

Tooltip

Cena regularna

7 301 zł najniższa cena
Tooltip

Najniższa cena z 30 dni
przed obniżką

Zdjęcie 1 projektu House 09 WRG1074
House 09
Dodano!
Dodano!
126,13 m²
3
2
0

5 690 zł

Zdjęcie 1 projektu House 05 WRG1067
House 05
Dodano!
Dodano!
104,61 m²
3
2
0

5 190 zł

NIŻSZA CENA❄️
Zdjęcie 1 projektu Dom przy Czekoladowej KRK1731
Dom przy Czekoladowej
Dodano!
Dodano!
100 m²
3
2
0

4 490 zł

4 990 zł

Tooltip

Cena regularna

4 390 zł najniższa cena
Tooltip

Najniższa cena z 30 dni
przed obniżką

NIŻSZA CENA❄️
Zdjęcie 1 projektu Qubik WAH2112
Qubik
Dodano!
Dodano!
159,81 m²
4
3
2

6 072 zł

7 590 zł

Tooltip

Cena regularna

5 692 zł najniższa cena
Tooltip

Najniższa cena z 30 dni
przed obniżką

Elewacje

Frontowa
Tylna
Lewa
Prawa

Usytuowanie na działce

Czy ten projekt pasuje na
Twoją działkę?

Chętnie to sprawdzimy!

Czy ten projekt pasuje na
Twoją działkę?

Chętnie to sprawdzimy!

Dowiedz się:

  • czy zmieści się na niej wybrany przez Ciebie dom
  • jakie parametry musi spełniać dom według miejscowego planu zagospodarowania lub warunków zabudowy (np. kąt nachylenia i typ dachu, liczba kondygnacji itp.
  • jakie inne projekty pasują na Twoją działkę – znajdziemy je dla Ciebie!
Autor: Domena

Dane techniczne projektu

Powierzchnie i wymiary Powierzchnie i wymiary

Energooszczędność Energooszczędność

Oze Czym jest OZE (Odnawialne Źródło Energii)?
Warunki techniczne

Projekt zgody z WT 2021

Opis projektu domu
MINOS 2

To urokliwy dom jednorodzinny, w którym 4-osobowa rodzina znajdzie spokój i wygodę. Parter projektu to otwarta przestrzeń wraz z funkcjonalnymi pomieszczeniami, które podniosą komfort domowników. Sercem domu jest salon w centralnej części parteru. Niepowtarzalny klimat tworzy przytulny kącik przy kominku. Ciekawą propozycją są również schody w salonie, które można wykorzystać jako element dekoracyjny lub oddzielić od pomieszczeń ścianką działową. Powierzchnia wiatrołapu, pozwoli na zagospodarowanie jej dodatkowymi szafami pod zabudowę. Jadalnię zaprojektowano w pobliskim sąsiedztwie z otwartą kuchnią. To praktyczne rozwiązanie zarówno dla biesiadników jak i Gospodyni domu. Na poddaszu domownicy mogą odpoczywać w trzech wygodnych sypialniach. Oddzielna łazienka oraz garderoba stworzy w sypialni gospodarzy charakter dodatkowej prywatności i swobody.
Czytaj więcej

Polecani producenci

Prefabrykowane konstrukcje dachowe

tło producenta

WIĄZAR POLSKA

Zobacz więcej

Sprawdź nową generację okien GREENVIEW

tło producenta

FAKRO

Sprawdź nową generację okien GREENVIEW

Styropian, tynki, farby, kleje

tło producenta

Termo Organika

Poznaj super jakość

Okna, drzwi, osłony przeciwsłoneczne

tło producenta

Aluprof

Sprawdź ofertę

Kompletne systemy rekuperacji

tło producenta

Alnor

Dowiedz się więcej

Sprawdź nowy system DACHRYNNA

tło producenta

Galeco

Sprawdź ofertę
Zobacz więcej

Społeczność projektu domu
MINOS 2 w budowie

Dołącz do społeczności osób, które budują ten dom lub są zainteresowane jego budową.

  • Oglądaj zdjęcia z budowy
  • Zadawaj pytania
  • Wymieniaj się doświadczeniami

Opinie o projekcie domu MINOS 2

Ocena

Ten projekt nie ma jeszcze opinii, bądź pierwszy!

Dodaj opinię

ASYSTENT WYBORU PROJEKTU

Szukasz idealnego projektu? Znajdziemy go dla Ciebie!

Doradca na podstawie Twoich wskazówek przygotuje spersonalizowaną listę projektów

Graficzne opracowanie rzutów poglądowych widocznych na karcie projektu zostało wykonane przez Extradom.pl. Prezentowane przez Extradom.pl wizualizacje wykonane zostały przez autora projektu i należy poczytywać je jedynie za przykład i propozycję wykończenia, wizję architektoniczną autora projektu. Ostateczne wykończenie budynku może nastąpić na wiele sposobów. Szczegółowe rozwiązania zastosowane w oferowanej dokumentacji - w tym również ilość, lokalizacje i wygląd okien, drzwi, kominów - mogą w niewielkim stopniu różnić się od prezentowanej wizualizacji budynku.

REKLAMA
Zamknij