👉 Niższe ceny + karta allegro 200 zł! 🔥

Koniec oferty za:

0dni

00godz.

00min.

00sek.

Sprawdź

Projekt domu Milicz ab dw KRP1822

Zapisz Dodano!
Porównaj Dodano!
ikona Pobierz i drukuj
Dodaj opinię

Warstwy

Warstwy

Rzut parteru

Powierzchnia (m²)
Tooltip
Powierzchnia pomieszczenia
to ta, z której faktycznie możesz korzystać – skosy i niskie części poddasza są liczone częściowo lub wcale.
  1. 100% dla wysokości powyżej 2,2 m,
  2. 50% dla wysokości 1,4–2,2 m,
  3. nie liczymy poniżej 1,4 m.

Powierzchnia podłogi
Liczymy po obrysie pomieszczenia, bez względu na jego wysokość/skosy. Jeśli nie ma skosów to powierzchnia podłogi i pomieszczenia jest taka sama.
pomieszczenia i podłogi
podłogi
1. Wiatrołap
4,82
2. Pokój dzienny + kuchnia
35,02
3. Pokój
9,15
4. Korytarz
4,17
5. Łazienka
6,57
6. Garaż jednostanowiskowy
19,53
7. Kotłownia
6,82
Razem
86,08
86,08
Powierzchnia (m²)
Tooltip
Powierzchnia pomieszczenia
to ta, z której faktycznie możesz korzystać – skosy i niskie części poddasza są liczone częściowo lub wcale.
  1. 100% dla wysokości powyżej 2,2 m,
  2. 50% dla wysokości 1,4–2,2 m,
  3. nie liczymy poniżej 1,4 m.

Powierzchnia podłogi
Liczymy po obrysie pomieszczenia, bez względu na jego wysokość/skosy. Jeśli nie ma skosów to powierzchnia podłogi i pomieszczenia jest taka sama.
pomieszczenia
podłogi
1. Korytarz
8,67
13,85
2. Pokój
8,68
12,76
3. Pokój
8,07
11,69
4. Pokój
6,42
6,76
5. Pokój
7
10,67
6. Łazienka
3,56
7,08
7. Pokój
14,72
26,27
Razem
57,12
89,08

    Usytuowanie na działce

    Czy ten projekt pasuje na
    Twoją działkę?

    Chętnie to sprawdzimy!

    Dowiedz się:

    • czy zmieści się na niej wybrany przez Ciebie dom
    • jakie parametry musi spełniać dom według miejscowego planu zagospodarowania lub warunków zabudowy (np. kąt nachylenia i typ dachu, liczba kondygnacji itp.
    • jakie inne projekty pasują na Twoją działkę – znajdziemy je dla Ciebie!

Pow. użytkowa

116,94 m²

Pokoje

6

Łazienki i WC

2

Garaż

1

Kąt dachu

42°

Wysokość budynku

8,29 m

Powierzchnia zabudowy

109,65 m²

Min. szer. i dł. działki

34,74 x 18,20 m

Konstrukcja

ikona
Z bali

Pokaż więcej parametrów

Zapisz Dodano!
Porównaj Dodano!
ikona Pobierz i drukuj

Milicz ab dw - KRP1822

ikona 116,94 m²
Powierzchnia użytkowa
ikona6
Pokoje (bez salonu)
ikona 2
Łazienki (z toaletami)
ikona 1
Liczba stanowisk garażowych
(z wiatą garażową)
ikona
Konstrukcja: Z bali

Projekt został
wycofany z oferty

W razie pytań prosimy o kontakt
z Centrum Obsługi Klienta
Konsultant
71 715 20 60

pon.-pt. 8-21, sob. 9-17

Parter - 86,08 m²

Projekt domu Milicz ab dw - rzut parteru, dom liczy 6 pokoje, 2 łazienki i wc

Zapytaj, co możesz zmienić

Powierzchnia (m²)
Tooltip
Powierzchnia pomieszczenia
to ta, z której faktycznie możesz korzystać – skosy i niskie części poddasza są liczone częściowo lub wcale.
  1. 100% dla wysokości powyżej 2,2 m,
  2. 50% dla wysokości 1,4–2,2 m,
  3. nie liczymy poniżej 1,4 m.

Powierzchnia podłogi
Liczymy po obrysie pomieszczenia, bez względu na jego wysokość/skosy. Jeśli nie ma skosów to powierzchnia podłogi i pomieszczenia jest taka sama.
pomieszczenia i podłogi
podłogi
1. Wiatrołap
4,82
2. Pokój dzienny + kuchnia
35,02
3. Pokój
9,15
4. Korytarz
4,17
5. Łazienka
6,57
6. Garaż jednostanowiskowy
19,53
7. Kotłownia
6,82
Razem
86,08
86,08

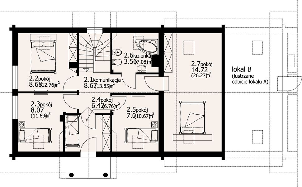
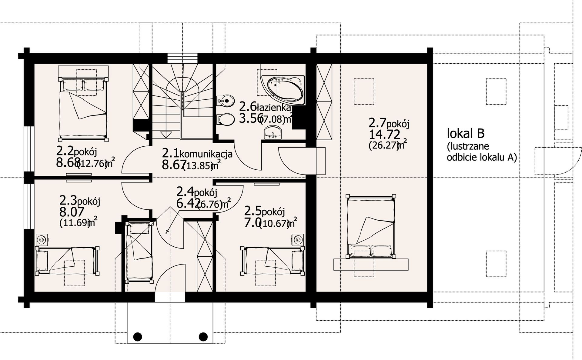
Poddasze - 57,12 m²

Projekt domu Milicz ab dw - rzut poddasza, dom liczy 6 pokoje, 2 łazienki i wc

Zapytaj, co możesz zmienić

Powierzchnia (m²)
Tooltip
Powierzchnia pomieszczenia
to ta, z której faktycznie możesz korzystać – skosy i niskie części poddasza są liczone częściowo lub wcale.
  1. 100% dla wysokości powyżej 2,2 m,
  2. 50% dla wysokości 1,4–2,2 m,
  3. nie liczymy poniżej 1,4 m.

Powierzchnia podłogi
Liczymy po obrysie pomieszczenia, bez względu na jego wysokość/skosy. Jeśli nie ma skosów to powierzchnia podłogi i pomieszczenia jest taka sama.
pomieszczenia
podłogi
1. Korytarz
8,67
13,85
2. Pokój
8,68
12,76
3. Pokój
8,07
11,69
4. Pokój
6,42
6,76
5. Pokój
7
10,67
6. Łazienka
3,56
7,08
7. Pokój
14,72
26,27
Razem
57,12
89,08

Warianty projektu (23)

PROMOCJA
Projekt domu Milicz 53m
Milicz 53m
Dodano!
Dodano!
217,34 m²
7
2
0

6 480 zł

6 780 zł

Tooltip

Cena regularna

6 480 zł najniższa cena
Tooltip

Najniższa cena z 30 dni
przed obniżką

PROMOCJA
Projekt domu Milicz 49 dw PC
Milicz 49 dw PC
Dodano!
Dodano!
128,20 m²
6
2
1

6 580 zł

6 880 zł

Tooltip

Cena regularna

6 580 zł najniższa cena
Tooltip

Najniższa cena z 30 dni
przed obniżką

PROMOCJA
Projekt domu Milicz dw
Milicz dw
Dodano!
Dodano!
132,43 m²
6
2
1

6 180 zł

6 480 zł

Tooltip

Cena regularna

6 180 zł najniższa cena
Tooltip

Najniższa cena z 30 dni
przed obniżką

PROMOCJA
Projekt domu Milicz 39 dw
Milicz 39 dw
Dodano!
Dodano!
122,28 m²
6
2
1

6 180 zł

6 480 zł

Tooltip

Cena regularna

6 180 zł najniższa cena
Tooltip

Najniższa cena z 30 dni
przed obniżką

PROMOCJA
Projekt domu Milicz mały dw
Milicz mały dw
Dodano!
Dodano!
115,52 m²
5
2
1

5 880 zł

6 180 zł

Tooltip

Cena regularna

5 880 zł najniższa cena
Tooltip

Najniższa cena z 30 dni
przed obniżką

PROMOCJA
Projekt domu Milicz 55 dws
Milicz 55 dws
Dodano!
Dodano!
139,19 m²
6
2
1

6 080 zł

6 380 zł

Tooltip

Cena regularna

6 080 zł najniższa cena
Tooltip

Najniższa cena z 30 dni
przed obniżką

PROMOCJA
Projekt domu Milicz m12
Milicz m12
Dodano!
Dodano!
130 m²
4
2
1

5 880 zł

6 180 zł

Tooltip

Cena regularna

5 880 zł najniższa cena
Tooltip

Najniższa cena z 30 dni
przed obniżką

PROMOCJA
Projekt domu Milicz mały dws
Milicz mały dws
Dodano!
Dodano!
125,76 m²
5
2
1

5 880 zł

6 180 zł

Tooltip

Cena regularna

5 880 zł najniższa cena
Tooltip

Najniższa cena z 30 dni
przed obniżką

PROMOCJA
Projekt domu Milicz dw 13
Milicz dw 13
Dodano!
Dodano!
148,39 m²
6
2
1

6 380 zł

6 580 zł

Tooltip

Cena regularna

6 280 zł najniższa cena
Tooltip

Najniższa cena z 30 dni
przed obniżką

PROMOCJA
Projekt domu Milicz dw 8
Milicz dw 8
Dodano!
Dodano!
106,78 m²
3
2
1

6 080 zł

6 380 zł

Tooltip

Cena regularna

6 080 zł najniższa cena
Tooltip

Najniższa cena z 30 dni
przed obniżką

PROMOCJA
Projekt domu Milicz 12 dws
Milicz 12 dws
Dodano!
Dodano!
147,27 m²
5
2
1

6 180 zł

6 480 zł

Tooltip

Cena regularna

6 180 zł najniższa cena
Tooltip

Najniższa cena z 30 dni
przed obniżką

PROMOCJA
Projekt domu Milicz dw 77
Milicz dw 77
Dodano!
Dodano!
189,28 m²
5
3
1

6 680 zł

6 980 zł

Tooltip

Cena regularna

6 680 zł najniższa cena
Tooltip

Najniższa cena z 30 dni
przed obniżką

PROMOCJA
Projekt domu Milicz 23 dw
Milicz 23 dw
Dodano!
Dodano!
143,29 m²
6
2
1

6 180 zł

6 480 zł

Tooltip

Cena regularna

6 180 zł najniższa cena
Tooltip

Najniższa cena z 30 dni
przed obniżką

PROMOCJA
Projekt domu Milicz 51 dws
Milicz 51 dws
Dodano!
Dodano!
139,70 m²
6
2
1

5 780 zł

6 080 zł

Tooltip

Cena regularna

5 780 zł najniższa cena
Tooltip

Najniższa cena z 30 dni
przed obniżką

PROMOCJA
Projekt domu Milicz 22 dw
Milicz 22 dw
Dodano!
Dodano!
126,15 m²
5
2
1

6 280 zł

6 580 zł

Tooltip

Cena regularna

6 280 zł najniższa cena
Tooltip

Najniższa cena z 30 dni
przed obniżką

PROMOCJA
Projekt domu Milicz dw 7
Milicz dw 7
Dodano!
Dodano!
188,02 m²
5
3
1

6 680 zł

6 980 zł

Tooltip

Cena regularna

6 680 zł najniższa cena
Tooltip

Najniższa cena z 30 dni
przed obniżką

PROMOCJA
Projekt domu Milicz dw 79
Milicz dw 79
Dodano!
Dodano!
192,40 m²
5
3
1

6 980 zł

7 280 zł

Tooltip

Cena regularna

6 980 zł najniższa cena
Tooltip

Najniższa cena z 30 dni
przed obniżką

PROMOCJA
Projekt domu Milicz 33 dw
Milicz 33 dw
Dodano!
Dodano!
116,02 m²
5
2
2

6 180 zł

6 480 zł

Tooltip

Cena regularna

6 180 zł najniższa cena
Tooltip

Najniższa cena z 30 dni
przed obniżką

PROMOCJA
Projekt domu Milicz 53 dws
Milicz 53 dws
Dodano!
Dodano!
145,33 m²
6
2
1

5 780 zł

6 080 zł

Tooltip

Cena regularna

5 780 zł najniższa cena
Tooltip

Najniższa cena z 30 dni
przed obniżką

PROMOCJA
Projekt domu Milicz 16 dw
Milicz 16 dw
Dodano!
Dodano!
199,41 m²
4
2
2

6 680 zł

6 980 zł

Tooltip

Cena regularna

6 680 zł najniższa cena
Tooltip

Najniższa cena z 30 dni
przed obniżką

PROMOCJA
Projekt domu Milicz 17 dw
Milicz 17 dw
Dodano!
Dodano!
120,14 m²
4
2
2

6 380 zł

6 680 zł

Tooltip

Cena regularna

6 380 zł najniższa cena
Tooltip

Najniższa cena z 30 dni
przed obniżką

PROMOCJA
Projekt domu Milicz dw 29
Milicz dw 29
Dodano!
Dodano!
166,20 m²
4
2
1

6 780 zł

6 980 zł

Tooltip

Cena regularna

6 680 zł najniższa cena
Tooltip

Najniższa cena z 30 dni
przed obniżką

PROMOCJA
Projekt domu Milicz 59 dw pcr
Milicz 59 dw pcr
Dodano!
Dodano!
118,82 m²
3
2
1

6 380 zł

6 680 zł

Tooltip

Cena regularna

6 380 zł najniższa cena
Tooltip

Najniższa cena z 30 dni
przed obniżką

Podobne projekty (2058)

Zobacz wszystkie
PROMOCJA
Nowość
Zdjęcie 1 projektu Przyjemny 8 WAH2178
Przyjemny 8
Dodano!
Dodano!
113,36 m²
5
2
1

4 360 zł

5 450 zł

Tooltip

Cena regularna

4 360 zł najniższa cena
Tooltip

Najniższa cena z 30 dni
przed obniżką

Nowość
Zdjęcie 1 projektu Surażkowo 4 BSE1288
Surażkowo 4
Dodano!
Dodano!
126,89 m²
4
2
0

5 500 zł

PROMOCJA
Zdjęcie 1 projektu BW-27 wariant 4 JGC1252
BW-27 wariant 4
Dodano!
Dodano!
123 m²
4
2
0

3 770 zł

3 870 zł

Tooltip

Cena regularna

3 770 zł najniższa cena
Tooltip

Najniższa cena z 30 dni
przed obniżką

PROMOCJA
Zdjęcie 1 projektu Dom na Sosnowej WBF1002
Dom na Sosnowej
Dodano!
Dodano!
113,08 m²
4
2
1

3 899 zł

4 399 zł

Tooltip

Cena regularna

3 899 zł najniższa cena
Tooltip

Najniższa cena z 30 dni
przed obniżką

PROMOCJA
Zdjęcie 1 projektu Surażkowo 3 BSE1281
Surażkowo 3
Dodano!
Dodano!
119,56 m²
4
2
0

4 680 zł

5 200 zł

Tooltip

Cena regularna

4 940 zł najniższa cena
Tooltip

Najniższa cena z 30 dni
przed obniżką

PROMOCJA
Zdjęcie 1 projektu Na swoim 2 WAH1673
Na swoim 2
Dodano!
Dodano!
112,42 m²
4
2
0

4 312 zł

5 390 zł

Tooltip

Cena regularna

4 312 zł najniższa cena
Tooltip

Najniższa cena z 30 dni
przed obniżką

PROMOCJA
Zdjęcie 1 projektu Anatol (1632) KRD2777
Anatol (1632)
Dodano!
Dodano!
119,10 m²
5
2
1

4 140 zł

4 490 zł

Tooltip

Cena regularna

4 140 zł najniższa cena
Tooltip

Najniższa cena z 30 dni
przed obniżką

PROMOCJA
Zdjęcie 1 projektu Surażkowo 2 BSE1276
Surażkowo 2
Dodano!
Dodano!
119,56 m²
4
2
0

4 680 zł

5 200 zł

Tooltip

Cena regularna

4 940 zł najniższa cena
Tooltip

Najniższa cena z 30 dni
przed obniżką

Elewacje

Frontowa
Tylna
Lewa
Prawa

Przekroje

Przekrój pionowy

Usytuowanie na działce

Czy ten projekt pasuje na
Twoją działkę?

Chętnie to sprawdzimy!

Czy ten projekt pasuje na
Twoją działkę?

Chętnie to sprawdzimy!

Dowiedz się:

  • czy zmieści się na niej wybrany przez Ciebie dom
  • jakie parametry musi spełniać dom według miejscowego planu zagospodarowania lub warunków zabudowy (np. kąt nachylenia i typ dachu, liczba kondygnacji itp.
  • jakie inne projekty pasują na Twoją działkę – znajdziemy je dla Ciebie!
Autor: Dom-Projekt

Dane techniczne projektu

Powierzchnie i wymiary Powierzchnie i wymiary

Powierzchnia użytkowa
Tooltip
Suma powierzchni wszystkich pomieszczeń mieszkalnych, pomniejszona o pow. garażu, kotłowni, strychu, piwnicy. Jest liczona w 100% dla pomieszczeń o wysokości powyżej 2,2 m, w 50% dla pomieszczeń o wys. 2,2-1,4 m i niewliczana dla niższych niż 1,4 m.

116,94 m²

Wysokość ściany kolankowej
Tooltip
Wysokość ściany podpierającej dach. Jej wysokość wpływa na powierzchnię użytkową kondygnacji, na której się znajduje.

0,75 m

Powierzchnia zabudowy
Tooltip
Powierzchnia zajmowana przez część na- oraz nadziemną budynku liczona, jako rzut pionowy budynku na działkę.

109,65 m²

Powierzchnia netto
Tooltip
Powierzchna wszystkich pomieszczeń w budynku mierzona na wysokości podłogi.

175,18 m²

Kubatura brutto
Tooltip
Zazwyczaj jest to suma kubatur (objętości) wszystkich pomieszczeń budynku, liczonych po zewnętrznym obrysie murów (z ociepleniem).

561 m³

Powierzchnia dachu

208 m²

Kąt nachylenia dachu
Tooltip
Nachylenie połaci dachu głównego podawane w stopniach. Uwaga! W niektórych projektach występuje więcej niż jedno nachylenie dachu.

42°

Wysokość budynku
Tooltip
Wysokość liczona od części budynku położonej najniżej przy powierzchni terenu do najwyższego punktu dachu (kalenicy) z wyłączeniem kominów.

8,29 m

Min. szerokość działki
Tooltip
Najmniejsza możliwa szerokość działki niezbędna do wybudowania wybranego domu. Składa się z szerokości elewacji domu powiększonej z obu stron o 3 m dla ściany bez otworów drzwiowych/okiennych lub 4 m, dla ściany z otworami.

34,74 m

Min. długość działki
Tooltip
Najmniejsza możliwa długość działki niezbędna do wybudowania wybranego domu. Składa się z długości elewacji domu powiększonej z obu stron o 3 m dla ściany bez otworów drzwiowych/okiennych lub 4 m, dla ściany z otworami.

18,20 m

Energooszczędność Energooszczędność

Oze Czym jest OZE (Odnawialne Źródło Energii)?
Warunki techniczne

Projekt zgody z WT 2021

Technologia i konstrukcja Technologia i konstrukcja

Konstrukcja

Z bali

Opis szczegółowy

Wysokość ścianki kolankowej: 0.75 m. Strop: drewniany. Pokrycie dachu: dachówka gontopodobna Gerard Corona. Ściany zewnętrzne: płazy drewniane + wełna mineralna + deska. Ściany wewnętrzne: płazy drewniane. Typ ogrzewania: kocioł gazowy lub kocioł na paliwo stałe.

Strop

Drewniany

Reklama
Okna i drzwi tarasowe

Nowoczesne okna PVC i aluminiowe WIŚNIOWSKI – doskonała izolacja, elegancki design i niezrównana trwałość.

Wiśniowski
Sprawdź parametry!
Okna dachowe

Oferujemy bezpłatne konsultacje w zakresie wszystkich rozwiązań VELUX. Wyceny, porady dotyczące doboru okien i rolet zewnętrznych - sprawdź!

Velux
Sprawdź szczegóły
Okna i drzwi tarasowe

Systemy drzwi i okien z myślą o nowoczesnej architekturze i dużych przeszkleniach tarasowych.

Drutex
Sprawdź ofertę!
Pompa ciepła

Wybierz pompę ciepła, która pasuje do Twojego domu. Niezależnie od tego, czy ustawienie wewnątrz czy na zewnątrz, pompy ciepła STIEBEL ELTRON dopasują się do każdej przestrzeni.

Stiebel
Dobierz pompę ciepła
Drzwi

Idealne połączenie sztuki z technologią! Nowoczesne i energooszczędne drzwi wyróżniają się doskonałym połączeniem funkcjonalności, wysokiej estetyki wykonania oraz unikalnego stylu.

Drutex
Zobacz więcej
Drzwi

Ciepłe drzwi WIŚNIOWSKI z kontrolą dostępu. Szeroka gama wzorów i kolorów.

Wiśniowski
Wybierz najlepsze
Bramy garażowe

Automatyczne bramy garażowe segmentowe i uchylne WIŚNIOWSKI na wymiar i z systemem smart home w standardzie.

Wiśniowski
Sprawdź ofertę!
Rekuperacja

Alnor - kompletny system rekuperacji. Dobierz idealne rozwiązanie dla Twojego domu!

Alnor
Dobierz rekuperator
Dach

Producent stalowych pokryć dachowych i systemów elewacyjnych. Precyzja wykonania, trwałość na lata i szybki montaż doceniany przez dekarzy. Postaw na solidny dach Budmat.

Budmat
Sprawdź ofertę
Ogrodzenie

Nowoczesne stalowe ogrodzenia Budmat - estetyka, bezpieczeństwo i trwałość na lata. Systemowe rozwiązania na wymiar, dopasowane do każdego domu.

Budmat
Sprawdź ofertę

Gotowe domy - najszybszy sposób na dom (115)

Zobacz wszystkie
  • Stan deweloperski nawet w 6 miesięcy
  • Gwarancja stałej ceny
Skonfiguruj dom
Zdjęcie 1 projektu Bergen 110 HUS1001
110,80 m²
3
Stan deweloperski brutto
469 000 zł 4 233 zł/m²
Zdjęcie 1 projektu Dom szkieletowy Creative Smart 160 HHT1023
118,35 m²
4
Stan deweloperski brutto
780 019 zł 6 591 zł/m²
Zdjęcie 1 projektu Dom prefabrykowany P.13 z dachem płaskim bez garażu HPK1022
115,39 m²
3
Stan deweloperski brutto
627 300 zł 5 436 zł/m²
Zdjęcie 1 projektu Dom prefabrykowany P.13 z dachem kopertowym bez garażu HPK1024
115,39 m²
3
Stan deweloperski brutto
627 300 zł 5 436 zł/m²
Zdjęcie 1 projektu Dom prefabrykowany P.13 z dachem płaskim z garażem HPK1023
115,39 m²
3
Stan deweloperski brutto
743 500 zł 6 443 zł/m²
Zdjęcie 1 projektu Dom prefabrykowany P.13 z dachem kopertowym z garażem HPK1025
115,39 m²
3
Stan deweloperski brutto
743 500 zł 6 443 zł/m²
Zdjęcie 1 projektu Dom prefabrykowany P.14 HPK1026
118,94 m²
3
Stan deweloperski brutto
707 200 zł 5 933 zł/m²
Zdjęcie 1 projektu Dom modułowy Soul HMD1001
118,94 m²
4
Stan deweloperski brutto
518 000 zł 3 654 zł/m²

Opis projektu domu
Milicz ab dw

Projekt domu Milicz ab dw został stworzony na wzór popularnego projektu Milicz 9s. W przeciwieństwie do podstawowej wersji projekt ma więcej pokoi, większą powierzchnię, piwnicy. Projekt domu Milicz ab dw to idealna propozycja dla osób posiadających szeroką działkę, co pozwala na dowolne jego usytuowanie względem stron świata. Dom posiada typową bryłę, więc jego realizacja nie pochłonie zbyt wielu środków finansowych. W tym projekcie kalenica usytuowana jest równolegle do drogi, co jest bardzo istotne, gdy wymagają tego warunki zabudowy. Projekt został stworzony z myślą o działkach pozwalających na usytuowanie domu w zabudowie bliźniaczej. W projekcie zaproponowano garaż jednostanowiskowy w bryle budynku. Jest to również ciekawa propozycja dla osób szukających domu z dachem dwuspadowym, i wykonanie więźby oraz jej pokrycie jest ekonomiczne i nie zajmuje wiele czasu. Projekt Milicz ab dw to dom parterowy z poddaszem użytkowym, dzięki czemu mamy możliwość zagospodarowania większej powierzchni. Zwolenników przestronnych przestrzeni z pewnością ucieszy przewidziana w projekcie część dzienna. Tworzy ją między innymi kuchnia, która dzięki funkcjonalnym rozwiązaniom zapewni wygodę użytkowania przez długie lata. W projekcie uwzględniono dwie komfortowe łazienki- jedna znajduje się na parterze, druga na poddaszu. W domu znajduje się sześć wygodnych sypialni, co sprawia iż jest on doskonałym wyborem dla 5-8 osobowej rodziny. Przestrzeń można wykorzystać także jako pokój dla gości lub gabinet. Taras daje możliwość kontaktu z przyrodą i sprzyja wypoczynkowi. W jego bryle widoczne są rozwiązania nawiązujące do stylu tradycyjnego, dlatego będzie prezentować się doskonale niezależnie od okolicy.
Czytaj więcej

Polecani producenci

Kompletne systemy rekuperacji

tło producenta

Alnor

Dowiedz się więcej

Dachy modułowe ze stali

tło producenta

Budmat

Poznaj szczegóły oferty

Prefabrykowane konstrukcje dachowe

tło producenta

WIĄZAR POLSKA

Zobacz więcej
Zobacz więcej

Społeczność projektu domu
Milicz ab dw w budowie

Dołącz do społeczności osób, które budują ten dom lub są zainteresowane jego budową.

  • Oglądaj zdjęcia z budowy
  • Zadawaj pytania
  • Wymieniaj się doświadczeniami

Opinie o projekcie domu
Milicz ab dw

Opinie niezweryfikowane

Bądź pierwszy!
Ten projekt nie ma jeszcze opinii, bądź pierwszy!

ikona Dodaj opinię o projekcie

ASYSTENT WYBORU PROJEKTU

Szukasz idealnego projektu? Znajdziemy go dla Ciebie!

Doradca na podstawie Twoich wskazówek przygotuje spersonalizowaną listę projektów

Graficzne opracowanie rzutów poglądowych widocznych na karcie projektu zostało wykonane przez Extradom.pl. Prezentowane przez Extradom.pl wizualizacje wykonane zostały przez autora projektu i należy poczytywać je jedynie za przykład i propozycję wykończenia, wizję architektoniczną autora projektu. Ostateczne wykończenie budynku może nastąpić na wiele sposobów. Szczegółowe rozwiązania zastosowane w oferowanej dokumentacji - w tym również ilość, lokalizacje i wygląd okien, drzwi, kominów - mogą w niewielkim stopniu różnić się od prezentowanej wizualizacji budynku.

REKLAMA
Zamknij