👉 Odbierz prezent 🎁

Koniec oferty za:

00godz.

00min.

00sek.

Sprawdź

Projekt domu LK&1713 LKP1060

Zapisz Dodano!
Porównaj Dodano!
ikona Pobierz i drukuj

Warstwy

Warstwy

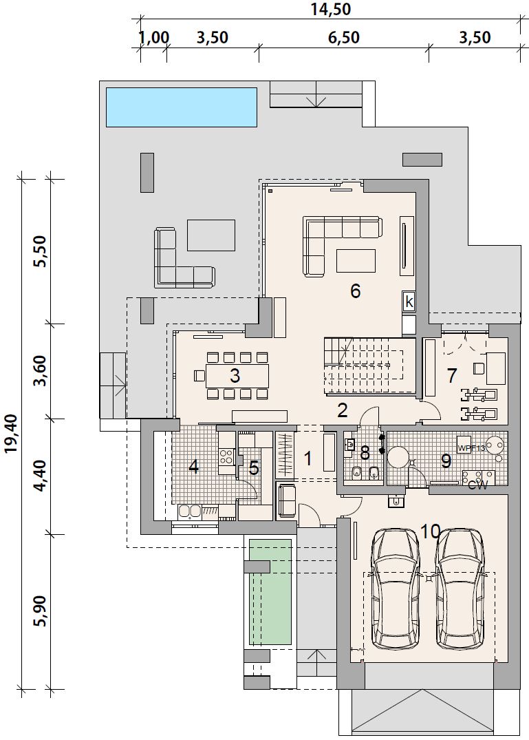
Rzut parteru

Powierzchnia (m²)
Tooltip
Powierzchnia pomieszczenia
to ta, z której faktycznie możesz korzystać – skosy i niskie części poddasza są liczone częściowo lub wcale.
  1. 100% dla wysokości powyżej 2,2 m,
  2. 50% dla wysokości 1,4–2,2 m,
  3. nie liczymy poniżej 1,4 m.

Powierzchnia podłogi
Liczymy po obrysie pomieszczenia, bez względu na jego wysokość/skosy. Jeśli nie ma skosów to powierzchnia podłogi i pomieszczenia jest taka sama.
pomieszczenia i podłogi
podłogi
1. Wiatrołap
7,94
2. Korytarz
7,34
3. Jadalnia
14,97
4. Kuchnia
10,66
5. Spiżarnia
4,38
6. Pokój dzienny
29,69
7. Pokój
10,89
8. Wc
3,15
9. Kotłownia
9,43
10. Garaż dwustanowiskowy
38,54
Razem
136,99
136,99
Powierzchnia (m²)
Tooltip
Powierzchnia pomieszczenia
to ta, z której faktycznie możesz korzystać – skosy i niskie części poddasza są liczone częściowo lub wcale.
  1. 100% dla wysokości powyżej 2,2 m,
  2. 50% dla wysokości 1,4–2,2 m,
  3. nie liczymy poniżej 1,4 m.

Powierzchnia podłogi
Liczymy po obrysie pomieszczenia, bez względu na jego wysokość/skosy. Jeśli nie ma skosów to powierzchnia podłogi i pomieszczenia jest taka sama.
pomieszczenia i podłogi
podłogi
1. Korytarz
9,12
2. Pokój
14,51
3. Pokój
16,28
4. Garderoba
6,76
5. Łazienka
10
6. Pralnia
5,72
7. Łazienka
8,35
8. Sauna
3,20
9. Pokój
10,19
10. Garderoba
3,07
Razem
87,20
87,20

    Usytuowanie na działce

    Czy ten projekt pasuje na
    Twoją działkę?

    Chętnie to sprawdzimy!

    Dowiedz się:

    • czy zmieści się na niej wybrany przez Ciebie dom
    • jakie parametry musi spełniać dom według miejscowego planu zagospodarowania lub warunków zabudowy (np. kąt nachylenia i typ dachu, liczba kondygnacji itp.
    • jakie inne projekty pasują na Twoją działkę – znajdziemy je dla Ciebie!

Pow. użytkowa

185,65 m²

Pokoje

4

Łazienki i WC

3

Garaż

2

Min. szer. i dł. działki

21 x 26,90 m

Kąt dachu

30°

Szacunkowy koszt SSZ

565 000 zł
Szacunkowy koszt budowy do stanu surowego zamkniętego (SSZ) metodą gospodarczą - większość prac wykonuje inwestor.

Konstrukcja

Murowana
więcej
Zapisz Dodano!
Porównaj Dodano!
ikona Pobierz i drukuj

LK&1713 - LKP1060

ikona 185,65 m²
Powierzchnia użytkowa
ikona4
Pokoje (bez salonu)
ikona 3
Łazienki (z toaletami)
ikona 2
Liczba stanowisk garażowych
(z wiatą garażową)
ikona
Konstrukcja: Murowana

Promocja

od 20.04.2026 do 29.04.2026

6 300 zł

9 000 zł - cena regularna
Tooltip

Cena regularna obowiązywała od 20.04.2026 do 20.04.2026

6 300 zł - najniższa cena z 30 dni przed obniżką

Projekt jest dostępny

Gwarancja najniższej ceny
ikona
Darmowa dostawa
Paczkomaty, kurier
ikona
100 dni na wymianę,
20 dni na zwrot
ikona Zyskaj najwięcej! Extradodatki GRATIS:

15% rabatu do LEROY MERLIN

10% rabatu w CASTORAMIE

16% rabatu w SELSEY

Pakiet Formalności 2026

Przydatne Extradodatki

Poradnik Dach Solarny

ikona Co zawiera projekt?
  • Projekt zgodny z WT2021
  • Bezpłatne pozwolenie na zmiany
  • Charakterystyka energetyczna
Konsultant
71 715 20 60

pon.-pt. 8-21, sob. 9-17

Parter - 136,99 m²

Parter projektu LK&1713

Zapytaj, co możesz zmienić

Powierzchnia (m²)
Tooltip
Powierzchnia pomieszczenia
to ta, z której faktycznie możesz korzystać – skosy i niskie części poddasza są liczone częściowo lub wcale.
  1. 100% dla wysokości powyżej 2,2 m,
  2. 50% dla wysokości 1,4–2,2 m,
  3. nie liczymy poniżej 1,4 m.

Powierzchnia podłogi
Liczymy po obrysie pomieszczenia, bez względu na jego wysokość/skosy. Jeśli nie ma skosów to powierzchnia podłogi i pomieszczenia jest taka sama.
pomieszczenia i podłogi
podłogi
1. Wiatrołap
7,94
2. Korytarz
7,34
3. Jadalnia
14,97
4. Kuchnia
10,66
5. Spiżarnia
4,38
6. Pokój dzienny
29,69
7. Pokój
10,89
8. Wc
3,15
9. Kotłownia
9,43
10. Garaż dwustanowiskowy
38,54
Razem
136,99
136,99

Piętro 1 - 87,20 m²

Piętro 1 projektu LK&1713

Zapytaj, co możesz zmienić

Powierzchnia (m²)
Tooltip
Powierzchnia pomieszczenia
to ta, z której faktycznie możesz korzystać – skosy i niskie części poddasza są liczone częściowo lub wcale.
  1. 100% dla wysokości powyżej 2,2 m,
  2. 50% dla wysokości 1,4–2,2 m,
  3. nie liczymy poniżej 1,4 m.

Powierzchnia podłogi
Liczymy po obrysie pomieszczenia, bez względu na jego wysokość/skosy. Jeśli nie ma skosów to powierzchnia podłogi i pomieszczenia jest taka sama.
pomieszczenia i podłogi
podłogi
1. Korytarz
9,12
2. Pokój
14,51
3. Pokój
16,28
4. Garderoba
6,76
5. Łazienka
10
6. Pralnia
5,72
7. Łazienka
8,35
8. Sauna
3,20
9. Pokój
10,19
10. Garderoba
3,07
Razem
87,20
87,20

Podobne projekty (39)

Zobacz wszystkie
PROMOCJA
Nowość
Zdjęcie 1 projektu LK&1841 LKP1016
LK&1841
Dodano!
Dodano!
196,19 m²
4
3
2

7 308 zł

10 440 zł

Tooltip

Cena regularna

10 440 zł najniższa cena
Tooltip

Najniższa cena z 30 dni
przed obniżką

PREZENT 🎁
Zdjęcie 1 projektu Kubiczny D30 wariant I WWC1010
Kubiczny D30 wariant I
Dodano!
Dodano!
150,52 m²
4
3
2

5 699 zł

PREZENT 🎁
Zdjęcie 1 projektu Dom z widokiem 3 F WAH1849
Dom z widokiem 3 F
Dodano!
Dodano!
195,05 m²
4
2
2

9 800 zł

PREZENT 🎁
Zdjęcie 1 projektu Willa Floryda 6 WAH2111
Willa Floryda 6
Dodano!
Dodano!
190,67 m²
4
3
2

13 090 zł

PREZENT 🎁
Zdjęcie 1 projektu Przestronny D40 wariant I WWC1030
Przestronny D40 wariant I
Dodano!
Dodano!
155,72 m²
4
3
2

5 699 zł

PREZENT 🎁
Zdjęcie 1 projektu Carmen Magdalena lux WRD2694
Carmen Magdalena lux
Dodano!
Dodano!
187,70 m²
5
3
2

6 800 zł

PREZENT 🎁
Zdjęcie 1 projektu Domidea 104d 2G WAC1094
Domidea 104d 2G
Dodano!
Dodano!
173,99 m²
4
3
2

7 749 zł

PREZENT 🎁
Zdjęcie 1 projektu Cyprys 10 BSA2396
Cyprys 10
Dodano!
Dodano!
165,85 m²
4
2
2

6 149 zł

Nowy aktualny

Szacunkowy koszt budowy

Stan surowy zamknięty

Koszt aktualny na I kwartał 2026

565 000 zł netto

Prace ziemne i fundamenty

83 000 zł

Kompletna konstrukcja,
strop oraz dach

325 000 zł

Stolarka okienna i drzwiowa

157 000 zł

Czy da się obniżyć koszty budowy?
Czy da się obniżyć koszty budowy?

Oczywiście. Wyceniaj materiały budowlane w kilku miejsach (skorzystaj z gotowego zestawienia materiałów), szukaj promocji, negocjuj. Zobacz nasz film jak obniżyć koszt budowy.

Usytuowanie na działce

Czy ten projekt pasuje na
Twoją działkę?

Chętnie to sprawdzimy!

Czy ten projekt pasuje na
Twoją działkę?

Chętnie to sprawdzimy!

Dowiedz się:

  • czy zmieści się na niej wybrany przez Ciebie dom
  • jakie parametry musi spełniać dom według miejscowego planu zagospodarowania lub warunków zabudowy (np. kąt nachylenia i typ dachu, liczba kondygnacji itp.
  • jakie inne projekty pasują na Twoją działkę – znajdziemy je dla Ciebie!
Autor: Leszek Kalandyk LK&Projekt

Dane techniczne projektu

Powierzchnie i wymiary Powierzchnie i wymiary

Powierzchnia użytkowa
Tooltip
Suma powierzchni wszystkich pomieszczeń mieszkalnych, pomniejszona o pow. garażu, kotłowni, strychu, piwnicy. Jest liczona w 100% dla pomieszczeń o wysokości powyżej 2,2 m, w 50% dla pomieszczeń o wys. 2,2-1,4 m i niewliczana dla niższych niż 1,4 m.

185,65 m²

Powierzchnia zabudowy
Tooltip
Powierzchnia zajmowana przez część na- oraz nadziemną budynku liczona, jako rzut pionowy budynku na działkę.

207,03 m²

Powierzchnia całkowita
Tooltip
Całkowita powierzchnia wszystkich kondygnacji budynku łącznie z elementami nośnymi, takimi jak ściany zewnętrzne (z ociepleniem), słupy, tarasy, itp.

320,27 m²

Kubatura netto
Tooltip
Zazwyczaj jest to suma kubatur (objętości) pomieszczeń budynku, bez strychu, liczonych po zewnętrznym obrysie murów (z ociepleniem).

643,26 m³

Kubatura brutto
Tooltip
Zazwyczaj jest to suma kubatur (objętości) wszystkich pomieszczeń budynku, liczonych po zewnętrznym obrysie murów (z ociepleniem).

1 340 m³

Powierzchnia dachu

196,09 m²

Kąt nachylenia dachu
Tooltip
Nachylenie połaci dachu głównego podawane w stopniach. Uwaga! W niektórych projektach występuje więcej niż jedno nachylenie dachu.

30°

Wysokość budynku
Tooltip
Wysokość liczona od części budynku położonej najniżej przy powierzchni terenu do najwyższego punktu dachu (kalenicy) z wyłączeniem kominów.

9 m

Szerokość elewacji

14,50 m

Długość elewacji

19,40 m

Min. szerokość działki
Tooltip
Najmniejsza możliwa szerokość działki niezbędna do wybudowania wybranego domu. Składa się z szerokości elewacji domu powiększonej z obu stron o 3 m dla ściany bez otworów drzwiowych/okiennych lub 4 m, dla ściany z otworami.

21 m

Min. długość działki
Tooltip
Najmniejsza możliwa długość działki niezbędna do wybudowania wybranego domu. Składa się z długości elewacji domu powiększonej z obu stron o 3 m dla ściany bez otworów drzwiowych/okiennych lub 4 m, dla ściany z otworami.

26,90 m

Energooszczędność Energooszczędność

Oze Czym jest OZE (Odnawialne Źródło Energii)?
Ep
Tooltip
Energia pierwotna określa ilość energii nieodnawialnej potrzebnej w ciągu roku do ogrzewania czy też ogrzania wody użytkowej z uwzględnieniem kosztów produkcji i transportu surowców energetycznych.

93,83 kWh/(m²rok)

Wentylacja

Mechaniczna nawiewno-wywiewna z rekuperacją - szczegóły

Instalacje w projekcie

Ogrzewanie podłogowe (na całej powierzchni domu lub w jej części, szczegóły u doradcy)

Warunki techniczne

Projekt zgody z WT 2021

Technologia i konstrukcja Technologia i konstrukcja

Konstrukcja

Murowana

Opis szczegółowy

Płyta fundamentowa żelbetowa. Ściany zewnętrzne: żelbetowe. Ściany wewnętrzne: pustak ceramiczny Porotherm 25 DryFix firmy Wienerberger o gr. 25cm, Porotherm 11,5 DryFix firmy Wienerberger o gr. 11,5 cm. Stropy żelbetowy, monolityczny. Konstrukcja dachu: dach drewniany, czterospadowy. Pokrycie dachu: dachówka płaska Orea 9 firmy Wienerberger. Okna i drzwi: aluminiowe firmy Aluprof. Sposób ogrzewania: ogrzewanie podłogowe. Wentylacja: mechaniczna z rekuperacją.

Strop

Żelbetowy

Reklama
Okna i drzwi tarasowe

Nowoczesne okna PVC i aluminiowe WIŚNIOWSKI – doskonała izolacja, elegancki design i niezrównana trwałość.

Wiśniowski
Sprawdź parametry!
Okna dachowe

Oferujemy bezpłatne konsultacje w zakresie wszystkich rozwiązań VELUX. Wyceny, porady dotyczące doboru okien i rolet zewnętrznych - sprawdź!

Velux
Sprawdź szczegóły
Pompa ciepła

Wybierz pompę ciepła, która pasuje do Twojego domu. Niezależnie od tego, czy ustawienie wewnątrz czy na zewnątrz, pompy ciepła STIEBEL ELTRON dopasują się do każdej przestrzeni.

Stiebel
Dobierz pompę ciepła
Drzwi

Ciepłe drzwi WIŚNIOWSKI z kontrolą dostępu. Szeroka gama wzorów i kolorów.

Wiśniowski
Wybierz najlepsze
Bramy garażowe

Automatyczne bramy garażowe segmentowe i uchylne WIŚNIOWSKI na wymiar i z systemem smart home w standardzie.

Wiśniowski
Sprawdź ofertę!
Rekuperacja

Alnor - kompletny system rekuperacji. Dobierz idealne rozwiązanie dla Twojego domu!

Alnor
Dobierz rekuperator
Dach

Producent stalowych pokryć dachowych i systemów elewacyjnych. Precyzja wykonania, trwałość na lata i szybki montaż doceniany przez dekarzy. Postaw na solidny dach Budmat.

Budmat
Sprawdź ofertę
Ogrodzenie

Nowoczesne stalowe ogrodzenia Budmat - estetyka, bezpieczeństwo i trwałość na lata. Systemowe rozwiązania na wymiar, dopasowane do każdego domu.

Budmat
Sprawdź ofertę

Gotowe domy - najszybszy sposób na dom (115)

Zobacz wszystkie
  • Stan deweloperski nawet w 6 miesięcy
  • Gwarancja stałej ceny
Skonfiguruj dom
Zdjęcie 1 projektu Bergen 130 HUS1002
130,40 m²
4
Stan deweloperski brutto
499 000 zł 3 827 zł/m²
Zdjęcie 1 projektu Dom prefabrykowany P.12 z okapem HPK1021
190,98 m²
5
Stan deweloperski brutto
916 500 zł 4 799 zł/m²
Zdjęcie 1 projektu Dom prefabrykowany P.12 bez okapu HPK1020
190,98 m²
5
Stan deweloperski brutto
886 500 zł 4 642 zł/m²
Zdjęcie 1 projektu Dom prefabrykowany P.6 HPK1005
176,69 m²
4
Stan deweloperski brutto
972 700 zł 5 505 zł/m²
Zdjęcie 1 projektu Dom szkieletowy Viking Smart 220 HHT1032
163,86 m²
4
Stan deweloperski brutto
1 095 606 zł 6 686 zł/m²
Zdjęcie 1 projektu Dom prefabrykowany DH174 HDH1009
162,97 m²
4
Stan deweloperski brutto
1 026 000 zł 6 296 zł/m²
Zdjęcie 1 projektu Dom prefabrykowany P.4 bez okapu HPK1003
162,18 m²
5
Stan deweloperski brutto
723 500 zł 4 461 zł/m²
Zdjęcie 1 projektu Dom prefabrykowany P.4 z okapem HPK1014
162,18 m²
5
Stan deweloperski brutto
739 600 zł 4 560 zł/m²

Opis projektu domu
LK&1713

Projekt domu piętrowego LK&1713 z obszernym garażem, z dachem kopertowym, z tarasem
Czytaj więcej

Informacje dodatkowe

Projekt stanowi aktualną i pełną dokumentację zawierającą część architektoniczno - budowlaną, konstrukcyjną wykonawczą, instalacji wewnętrznych, elektrycznych i teletechnicznych, charakterystykę energetyczną oraz uprawnienia projektantów. Dokumentacja zabezpieczona jest specjalną plombą, której usunięcie uniemożliwi jej zwrot. Zapraszamy do zamówienia analizy posiadanej działki w celu upewnienia się, że wybrany projekt domu idealnie na nią pasuje.

Czytaj więcej

Polecani producenci

Kompletne systemy rekuperacji

tło producenta

Alnor

Dowiedz się więcej

Dachy modułowe ze stali

tło producenta

Budmat

Poznaj szczegóły oferty

Prefabrykowane konstrukcje dachowe

tło producenta

WIĄZAR POLSKA

Zobacz więcej

Sprawdź nową generację okien GREENVIEW

tło producenta

FAKRO

Sprawdź nową generację okien GREENVIEW

Styropian, tynki, farby, kleje

tło producenta

Termo Organika

Poznaj super jakość

Okna, drzwi, osłony przeciwsłoneczne

tło producenta

Aluprof

Sprawdź ofertę
Zobacz więcej

Społeczność projektu domu
LK&1713 w budowie

Dołącz do społeczności osób, które budują ten dom lub są zainteresowane jego budową.

  • Oglądaj zdjęcia z budowy
  • Zadawaj pytania
  • Wymieniaj się doświadczeniami

Opinie o projekcie domu LK&1713

Ocena

Ten projekt nie ma jeszcze opinii, bądź pierwszy!

Dodaj opinię

ASYSTENT WYBORU PROJEKTU

Szukasz idealnego projektu? Znajdziemy go dla Ciebie!

Doradca na podstawie Twoich wskazówek przygotuje spersonalizowaną listę projektów

Graficzne opracowanie rzutów poglądowych widocznych na karcie projektu zostało wykonane przez Extradom.pl. Prezentowane przez Extradom.pl wizualizacje wykonane zostały przez autora projektu i należy poczytywać je jedynie za przykład i propozycję wykończenia, wizję architektoniczną autora projektu. Ostateczne wykończenie budynku może nastąpić na wiele sposobów. Szczegółowe rozwiązania zastosowane w oferowanej dokumentacji - w tym również ilość, lokalizacje i wygląd okien, drzwi, kominów - mogą w niewielkim stopniu różnić się od prezentowanej wizualizacji budynku.

REKLAMA
Zamknij