👉 Niższe ceny + karta allegro 200 zł! 🔥

Koniec oferty za:

0dni

00godz.

00min.

00sek.

Sprawdź

Projekt domu letniskowego G254 - Budynek rekreacji indywidualnej PRA1277

Zapisz Dodano!
Porównaj Dodano!
ikona Pobierz i drukuj
Dodaj opinię

Warstwy

Rzut parteru

Powierzchnia (m²)
Tooltip
Powierzchnia pomieszczenia
to ta, z której faktycznie możesz korzystać – skosy i niskie części poddasza są liczone częściowo lub wcale.
  1. 100% dla wysokości powyżej 2,2 m,
  2. 50% dla wysokości 1,4–2,2 m,
  3. nie liczymy poniżej 1,4 m.

Powierzchnia podłogi
Liczymy po obrysie pomieszczenia, bez względu na jego wysokość/skosy. Jeśli nie ma skosów to powierzchnia podłogi i pomieszczenia jest taka sama.
pomieszczenia i podłogi
podłogi
1. Wiatrołap
2,85
2. Łazienka
3,25
3. Pokój
7,25
4. Pokój dzienny
9,20
5. Kuchnia
3,16
Razem
25,71
25,71

    Usytuowanie na działce

    Czy ten projekt pasuje na
    Twoją działkę?

    Chętnie to sprawdzimy!

    Dowiedz się:

    • czy zmieści się na niej wybrany przez Ciebie dom
    • jakie parametry musi spełniać dom według miejscowego planu zagospodarowania lub warunków zabudowy (np. kąt nachylenia i typ dachu, liczba kondygnacji itp.
    • jakie inne projekty pasują na Twoją działkę – znajdziemy je dla Ciebie!

Pow. użytkowa

25,71 m²

Pokoje

1

Łazienki i WC

1

Garaż

0

Kąt dachu

Wysokość budynku

3,55 m

Powierzchnia zabudowy

34,92 m²

Min. szer. i dł. działki

15,75 x 13 m

Konstrukcja

ikona
Murowana

Szukasz wykonawcy godnego zaufania?
Zleć budowę w Extradom.pl!

Sprawdź ofertę

Pokaż więcej parametrów

Zapisz Dodano!
Porównaj Dodano!
ikona Pobierz i drukuj

G254 - Budynek rekreacji indywidualnej - PRA1277

ikona 25,71 m²
Powierzchnia użytkowa
ikona1
Pokoje (bez salonu)
ikona 1
Łazienki (z toaletami)
ikona 0
Liczba stanowisk garażowych
(z wiatą garażową)
ikona
Konstrukcja: Murowana

2 550 zł

Wydłużony czas realizacji

Gwarancja najniższej ceny
ikona
Darmowa dostawa
Paczkomaty, kurier
ikona
100 dni na wymianę,
30 dni na zwrot
ikona Co zawiera projekt?
  • Projekt zgodny z WT2021
  • Bezpłatne pozwolenie na zmiany
  • Charakterystyka energetyczna
Konsultant
71 715 20 60

pon.-pt. 8-21, sob. 9-17

Szukasz wykonawcy godnego zaufania?
Zleć budowę w Extradom.pl!

  • Z góry znasz koszt budowy domu
  • Dom odbierasz zgodnie z ustalonym harmonogramem - nawet w 6 miesięcy
  • Zabezpiecza Cię jedna kompleksowa umowa z jednym wykonawcą
  • Otrzymujesz nawet 30-letnią gwarancję na konstrukcję domu
  • Oszczędzasz swój czas dzięki pewnej i kompletnej usłudze
  • Odbiór techniczny GRATIS - Gwarantujemy najwyższą jakość
Cena brutto stanu
deweloperskiego od
Tooltip
Cena brutto stanu deweloperskiego od 4 719 do 6 939 zł/m2.
Cena jest uzależniona m.in. od lokalizacji, wybranej technologii, kubatury budynku, skomplikowania projektu i ewentualnych zmian, na które zdecyduje się inwestor.
Cena za m2 powierzchni netto, czyli wszystkich pomieszczeń mierzonych na wysokości podłogi.
4 719 zł/m2
Dowiedz się więcej
Konsultant Masz pytania?
Zadzwoń
71 715 20 09

pon.-pt. 8-19

Parter - 25,71 m²

Projekt domu letniskowego G254 - Budynek rekreacji indywidualnej - rzut parteru, dom liczy 1 pokoje, 1 łazienki i wc

Zapytaj, co możesz zmienić

Powierzchnia (m²)
Tooltip
Powierzchnia pomieszczenia
to ta, z której faktycznie możesz korzystać – skosy i niskie części poddasza są liczone częściowo lub wcale.
  1. 100% dla wysokości powyżej 2,2 m,
  2. 50% dla wysokości 1,4–2,2 m,
  3. nie liczymy poniżej 1,4 m.

Powierzchnia podłogi
Liczymy po obrysie pomieszczenia, bez względu na jego wysokość/skosy. Jeśli nie ma skosów to powierzchnia podłogi i pomieszczenia jest taka sama.
pomieszczenia i podłogi
podłogi
1. Wiatrołap
2,85
2. Łazienka
3,25
3. Pokój
7,25
4. Pokój dzienny
9,20
5. Kuchnia
3,16
Razem
25,71
25,71
Projekt z budową

Budowa Projekt z budową

Zbuduj ten dom z naszym Partnerem - wygodnie, szybko i bezpiecznie

Projekt z budową to:

  • gwarancja niezmiennego kosztu budowy

  • krótki czas realizacji - dom gotowy nawet w 6 miesięcy

  • wieloletnia gwarancja na konstrukcję domu

Elewacje

Frontowa
Tylna
Lewa
Prawa

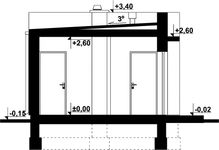
Przekroje

Przekrój pionowy
Autor: Kup Projekt

Dane techniczne projektu

Powierzchnie i wymiary Powierzchnie i wymiary

Powierzchnia użytkowa
Tooltip
Suma powierzchni wszystkich pomieszczeń mieszkalnych, pomniejszona o pow. garażu, kotłowni, strychu, piwnicy. Jest liczona w 100% dla pomieszczeń o wysokości powyżej 2,2 m, w 50% dla pomieszczeń o wys. 2,2-1,4 m i niewliczana dla niższych niż 1,4 m.

25,71 m²

Powierzchnia zabudowy
Tooltip
Powierzchnia zajmowana przez część na- oraz nadziemną budynku liczona, jako rzut pionowy budynku na działkę.

34,92 m²

Kubatura brutto
Tooltip
Zazwyczaj jest to suma kubatur (objętości) wszystkich pomieszczeń budynku, liczonych po zewnętrznym obrysie murów (z ociepleniem).

110,10 m³

Kąt nachylenia dachu
Tooltip
Nachylenie połaci dachu głównego podawane w stopniach. Uwaga! W niektórych projektach występuje więcej niż jedno nachylenie dachu.

Wysokość budynku
Tooltip
Wysokość liczona od części budynku położonej najniżej przy powierzchni terenu do najwyższego punktu dachu (kalenicy) z wyłączeniem kominów.

3,55 m

Min. szerokość działki
Tooltip
Najmniejsza możliwa szerokość działki niezbędna do wybudowania wybranego domu. Składa się z szerokości elewacji domu powiększonej z obu stron o 3 m dla ściany bez otworów drzwiowych/okiennych lub 4 m, dla ściany z otworami.

15,75 m

Min. długość działki
Tooltip
Najmniejsza możliwa długość działki niezbędna do wybudowania wybranego domu. Składa się z długości elewacji domu powiększonej z obu stron o 3 m dla ściany bez otworów drzwiowych/okiennych lub 4 m, dla ściany z otworami.

13 m

Technologia i konstrukcja Technologia i konstrukcja

Konstrukcja

Murowana

PROJEKT Z BUDOWĄ Istnieje możliwość zaadaptowania tego projektu do technologii prefabrykowanej/modułowej i budowy nawet w 6 miesięcy ze stałym kosztem budowy

Dowiedz się więcej »
Opis szczegółowy

Budynek wykonany w technologii tradycyjnej. Ściany warstwowe grubości 34cm, murowane z bloczków z betonu komórkowego grubości 24cm, ocieplone styropianem grubości 10cm. Ściany wewnętrzne z betonu komórkowego grubości 12cm. Komin systemowy firmy SCHIEDEL. Więźba dachowa jednospadowa, drewniana, pokryta blachą trapezową.

Reklama
Okna i drzwi tarasowe

Nowoczesne okna PVC i aluminiowe WIŚNIOWSKI – doskonała izolacja, elegancki design i niezrównana trwałość.

Wiśniowski
Sprawdź parametry!
Okna dachowe

Oferujemy bezpłatne konsultacje w zakresie wszystkich rozwiązań VELUX. Wyceny, porady dotyczące doboru okien i rolet zewnętrznych - sprawdź!

Velux
Sprawdź szczegóły
Okna i drzwi tarasowe

Systemy drzwi i okien z myślą o nowoczesnej architekturze i dużych przeszkleniach tarasowych.

Drutex
Sprawdź ofertę!
Pompa ciepła

Wybierz pompę ciepła, która pasuje do Twojego domu. Niezależnie od tego, czy ustawienie wewnątrz czy na zewnątrz, pompy ciepła STIEBEL ELTRON dopasują się do każdej przestrzeni.

Stiebel
Dobierz pompę ciepła
Drzwi

Idealne połączenie sztuki z technologią! Nowoczesne i energooszczędne drzwi wyróżniają się doskonałym połączeniem funkcjonalności, wysokiej estetyki wykonania oraz unikalnego stylu.

Drutex
Zobacz więcej
Drzwi

Ciepłe drzwi WIŚNIOWSKI z kontrolą dostępu. Szeroka gama wzorów i kolorów.

Wiśniowski
Wybierz najlepsze
Bramy garażowe

Automatyczne bramy garażowe segmentowe i uchylne WIŚNIOWSKI na wymiar i z systemem smart home w standardzie.

Wiśniowski
Sprawdź ofertę!
Rekuperacja

Alnor - kompletny system rekuperacji. Dobierz idealne rozwiązanie dla Twojego domu!

Alnor
Dobierz rekuperator
Dach

Producent stalowych pokryć dachowych i systemów elewacyjnych. Precyzja wykonania, trwałość na lata i szybki montaż doceniany przez dekarzy. Postaw na solidny dach Budmat.

Budmat
Sprawdź ofertę
Ogrodzenie

Nowoczesne stalowe ogrodzenia Budmat - estetyka, bezpieczeństwo i trwałość na lata. Systemowe rozwiązania na wymiar, dopasowane do każdego domu.

Budmat
Sprawdź ofertę

Gotowe domy - najszybszy sposób na dom (115)

Zobacz wszystkie
  • Stan deweloperski nawet w 6 miesięcy
  • Gwarancja stałej ceny
Skonfiguruj dom
Zdjęcie 1 projektu Bergen 70 HUS1004
72,05 m²
3
Stan deweloperski brutto
389 000 zł 5 399 zł/m²
Zdjęcie 1 projektu Dom mobilny Tiny House HTH1001
13,20 m²
0
Stan deweloperski brutto
260 000 zł 19 697 zł/m²
Zdjęcie 1 projektu Dom mobilny Model Mazuria Economy HTH1000
39 m²
2
Stan deweloperski brutto
240 000 zł 6 154 zł/m²
Zdjęcie 1 projektu Dom mobilny Model Mazuria Standard HTH1002
39 m²
2
Stan deweloperski brutto
290 000 zł 7 436 zł/m²
Zdjęcie 1 projektu Dom mobilny Model Mazuria Premium HTH1003
39 m²
2
Stan deweloperski brutto
320 000 zł 8 205 zł/m²
Zdjęcie 1 projektu Dom prefabrykowany DH44 HDH1000
39,12 m²
0
Stan deweloperski brutto
378 108 zł 9 665 zł/m²
Zdjęcie 1 projektu Dom mobilny MoonWave HLL1000
41,15 m²
2
Stan deweloperski brutto
305 750 zł 7 430 zł/m²
Zdjęcie 1 projektu Dom mobilny StarPoint HLL1001
41,69 m²
1
Stan deweloperski brutto
365 750 zł 8 792 zł/m²

Opis projektu domu letniskowego
G254 - Budynek rekreacji indywidualnej

Projekt budynku letniskowego, parterowego, niepodpiwniczonego, z pokojem wypoczynkowym, aneksem kuchennym, pokojem sypialnym i łazienką. Do projektu dołączone jest zestawienie: stali, więźby dachowej oraz stolarki drzwiowej, jak również bezpłatna zgoda na dokonanie zmian.
Czytaj więcej

Informacje dodatkowe

Dokumentacja projektowa jest zabezpieczona plombą, której usunięcie uniemożliwi zwrot oraz wymianę projektu. Przed zakupem zachęcamy do zapoznania się z rysunkami szczegółowymi do projektu.

Czytaj więcej

Polecani producenci

Kompletne systemy rekuperacji

tło producenta

Alnor

Dowiedz się więcej

Dachy modułowe ze stali

tło producenta

Budmat

Poznaj szczegóły oferty

Prefabrykowane konstrukcje dachowe

tło producenta

WIĄZAR POLSKA

Zobacz więcej
Zobacz więcej

Społeczność projektu domu letniskowego
G254 - Budynek rekreacji indywidualnej w budowie

Dołącz do społeczności osób, które budują ten dom lub są zainteresowane jego budową.

  • Oglądaj zdjęcia z budowy
  • Zadawaj pytania
  • Wymieniaj się doświadczeniami

Opinie o projekcie domu letniskowego
G254 - Budynek rekreacji indywidualnej

Opinie niezweryfikowane

Bądź pierwszy!
Ten projekt nie ma jeszcze opinii, bądź pierwszy!

ikona Dodaj opinię o projekcie

ASYSTENT WYBORU PROJEKTU

Szukasz idealnego projektu? Znajdziemy go dla Ciebie!

Doradca na podstawie Twoich wskazówek przygotuje spersonalizowaną listę projektów

Graficzne opracowanie rzutów poglądowych widocznych na karcie projektu zostało wykonane przez Extradom.pl. Prezentowane przez Extradom.pl wizualizacje wykonane zostały przez autora projektu i należy poczytywać je jedynie za przykład i propozycję wykończenia, wizję architektoniczną autora projektu. Ostateczne wykończenie budynku może nastąpić na wiele sposobów. Szczegółowe rozwiązania zastosowane w oferowanej dokumentacji - w tym również ilość, lokalizacje i wygląd okien, drzwi, kominów - mogą w niewielkim stopniu różnić się od prezentowanej wizualizacji budynku.

Extradom.pl Spółka z ograniczoną odpowiedzialnością z siedzibą przy ul. Jaworskiej 13, 53-612 Wrocław, wpisana do rejestru przedsiębiorców Krajowego Rejestru Sądowego przez Sąd Rejonowy dla Wrocławia-Fabrycznej we Wrocławiu, VI Wydział Gospodarczy Krajowego Rejestru Sądowego do pod numerem KRS 0000648746, numer NIP 895-17-18-333, o kapitale zakładowym 708 150,00 zł uprzejmie informuje, iż poprzez serwis Extradom.pl umożliwia m.in. zapoznanie się przez konsumentów z ofertą handlową Partnerów Extradom.pl, którzy stosują metody budowy domów przy wykorzystaniu różnego rodzaju technologie prefabrykacji bądź modułowe (tzw. „Gotowe domy”).

Extradom.pl nie prowadzi jednakże sprzedaży ani nie oferuje usług polegających na doradztwie finansowym, prawnym ani podatkowym w zakresie inwestycji realizowanych w technologiach tzw. „Gotowych domów”. Informacje prezentowane w serwisie Extradom.pl dotyczące Partnerów Extradom.pl oferujących realizację inwestycji w technologiach „Gotowych domów” lub podobnych mają charakter informacyjny i reklamowy.

Prezentowane w serwisie Extradom.pl informacje dotyczące stosowanych przez Partnerów metod budowy domów w technologii prefabrykacji bądź modułowej pochodzą od Partnerów Extradom.pl.

Extradom.pl sp. z o.o. jedynie umożliwia nawiązanie kontaktu przez Użytkownika z Partnerem Extradom.pl stosującym tego rodzaju technologie budowy domów i nie jest stroną umowy o roboty budowlane zawieranej przez Użytkownika Extradom.pl z Partnerem Extradom.pl.

REKLAMA
Zamknij