Projekty nawet 500 zł taniej ❄️

Koniec oferty za:

00godz.

00min.

00sek.

Sprawdź

Projekt domu Kalipso 2 dwulokalowy L+LL WRD3041

Dodano!
Dodano!

Warstwy

Warstwy

Rzut parteru

Powierzchnia (m²)
Tooltip
Powierzchnia pomieszczenia
to ta, z której faktycznie możesz korzystać – skosy i niskie części poddasza są liczone częściowo lub wcale.
  1. 100% dla wysokości powyżej 2,2 m,
  2. 50% dla wysokości 1,4–2,2 m,
  3. nie liczymy poniżej 1,4 m.

Powierzchnia podłogi
Liczymy po obrysie pomieszczenia, bez względu na jego wysokość/skosy. Jeśli nie ma skosów to powierzchnia podłogi i pomieszczenia jest taka sama.
pomieszczenia i podłogi
podłogi
1. Wiatrołap
5,70
2. Pomieszczenie gospodarcze
3,60
3. Wc
1,40
4. Korytarz
2,30
5. Pokój dzienny + jadalnia + kuchnia
29,40
6. Garaż jednostanowiskowy
17,30
7. Wiatrołap
5,70
8. Pomieszczenie gospodarcze
3,60
9. Wc
1,40
10. Korytarz
2,30
11. Pokój dzienny + jadalnia + kuchnia
29,40
12. Garaż jednostanowiskowy
17,30
Razem
119,40
119,40
Powierzchnia (m²)
Tooltip
Powierzchnia pomieszczenia
to ta, z której faktycznie możesz korzystać – skosy i niskie części poddasza są liczone częściowo lub wcale.
  1. 100% dla wysokości powyżej 2,2 m,
  2. 50% dla wysokości 1,4–2,2 m,
  3. nie liczymy poniżej 1,4 m.

Powierzchnia podłogi
Liczymy po obrysie pomieszczenia, bez względu na jego wysokość/skosy. Jeśli nie ma skosów to powierzchnia podłogi i pomieszczenia jest taka sama.
pomieszczenia i podłogi
podłogi
1. Korytarz
4,60
2. Pokój
12,20
3. Pokój
14,20
4. Pokój
9,70
5. Pokój
10
6. Łazienka
6
7. Korytarz
4,60
8. Pokój
12,20
9. Pokój
14,20
10. Pokój
9,70
11. Pokój
10
12. Łazienka
6
Razem
113,40
113,40

    Usytuowanie na działce

    Czy ten projekt pasuje na
    Twoją działkę?

    Chętnie to sprawdzimy!

    Dowiedz się:

    • czy zmieści się na niej wybrany przez Ciebie dom
    • jakie parametry musi spełniać dom według miejscowego planu zagospodarowania lub warunków zabudowy (np. kąt nachylenia i typ dachu, liczba kondygnacji itp.
    • jakie inne projekty pasują na Twoją działkę – znajdziemy je dla Ciebie!

Pow. użytkowa

198,20 m²

Pokoje

8

Łazienki i WC

4

Garaż

2

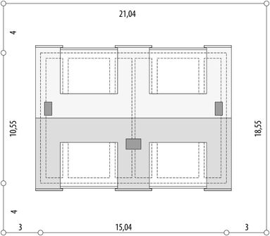
Min. szer. i dł. działki

21,04 x 18,55 m

Kąt dachu

35°

Konstrukcja

Murowana
więcej

Kalipso 2 dwulokalowy L+LL - WRD3041

ikona 198,20 m²
Powierzchnia użytkowa
ikona8
Pokoje (bez salonu)
ikona 4
Łazienki (z toaletami)
ikona 2
Liczba stanowisk garażowych
(z wiatą garażową)
ikona
Konstrukcja: Murowana

Projekt został
wycofany z oferty

W razie pytań prosimy o kontakt
z Centrum Obsługi Klienta
Konsultant Masz pytania?
Zadzwoń
71 715 20 60

pon.-pt. 8-21, sob. 9-17

Szukasz wykonawcy godnego zaufania?
Zleć budowę w Extradom.pl!

  • Z góry znasz koszt budowy domu
  • Dom odbierasz zgodnie z ustalonym harmonogramem - nawet w 6 miesięcy
  • Zabezpiecza Cię jedna kompleksowa umowa z jednym wykonawcą
  • Otrzymujesz nawet 30-letnią gwarancję na konstrukcję domu
  • Oszczędzasz swój czas dzięki pewnej i kompletnej usłudze
Cena brutto stanu
deweloperskiego od
Tooltip
Cena brutto stanu deweloperskiego od 4 309 do 5 479 zł/m2.
Cena jest uzależniona m.in. od lokalizacji, wybranej technologii, kubatury budynku, skomplikowania projektu i ewentualnych zmian, na które zdecyduje się inwestor.
Cena za m2 powierzchni netto, czyli wszystkich pomieszczeń mierzonych na wysokości podłogi.
4 309 zł/m2
Dowiedz się więcej
Konsultant Masz pytania?
Zadzwoń
71 715 20 70

pon.-pt. 8-19

Parter - 119,40 m²

Parter projektu Kalipso 2 dwulokalowy L+LL

Zapytaj, co możesz zmienić

Powierzchnia (m²)
Tooltip
Powierzchnia pomieszczenia
to ta, z której faktycznie możesz korzystać – skosy i niskie części poddasza są liczone częściowo lub wcale.
  1. 100% dla wysokości powyżej 2,2 m,
  2. 50% dla wysokości 1,4–2,2 m,
  3. nie liczymy poniżej 1,4 m.

Powierzchnia podłogi
Liczymy po obrysie pomieszczenia, bez względu na jego wysokość/skosy. Jeśli nie ma skosów to powierzchnia podłogi i pomieszczenia jest taka sama.
pomieszczenia i podłogi
podłogi
1. Wiatrołap
5,70
2. Pomieszczenie gospodarcze
3,60
3. Wc
1,40
4. Korytarz
2,30
5. Pokój dzienny + jadalnia + kuchnia
29,40
6. Garaż jednostanowiskowy
17,30
7. Wiatrołap
5,70
8. Pomieszczenie gospodarcze
3,60
9. Wc
1,40
10. Korytarz
2,30
11. Pokój dzienny + jadalnia + kuchnia
29,40
12. Garaż jednostanowiskowy
17,30
Razem
119,40
119,40

Poddasze - 113,40 m²

Poddasze projektu Kalipso 2 dwulokalowy L+LL

Zapytaj, co możesz zmienić

Powierzchnia (m²)
Tooltip
Powierzchnia pomieszczenia
to ta, z której faktycznie możesz korzystać – skosy i niskie części poddasza są liczone częściowo lub wcale.
  1. 100% dla wysokości powyżej 2,2 m,
  2. 50% dla wysokości 1,4–2,2 m,
  3. nie liczymy poniżej 1,4 m.

Powierzchnia podłogi
Liczymy po obrysie pomieszczenia, bez względu na jego wysokość/skosy. Jeśli nie ma skosów to powierzchnia podłogi i pomieszczenia jest taka sama.
pomieszczenia i podłogi
podłogi
1. Korytarz
4,60
2. Pokój
12,20
3. Pokój
14,20
4. Pokój
9,70
5. Pokój
10
6. Łazienka
6
7. Korytarz
4,60
8. Pokój
12,20
9. Pokój
14,20
10. Pokój
9,70
11. Pokój
10
12. Łazienka
6
Razem
113,40
113,40

Warianty projektu (20)

Projekt domu Kalipso 5 - dwulokalowy PLP
Kalipso 5 - dwulokalowy PLP
Dodano!
Dodano!
101,10 m²
4
2
1

8 550 zł

Projekt domu Kalipso 5 - segment lewy
Kalipso 5 - segment lewy
Dodano!
Dodano!
101,10 m²
4
2
1

4 275 zł

Projekt domu Kalipso 5
Kalipso 5
Dodano!
Dodano!
118,30 m²
4
2
1

3 950 zł

Projekt domu Kalipso 5 - bliźniak PLP
Kalipso 5 - bliźniak PLP
Dodano!
Dodano!
101,10 m²
4
2
1

8 550 zł

Projekt domu Kalipso 2 - dwulokalowy PLP
Kalipso 2 - dwulokalowy PLP
Dodano!
Dodano!
98,80 m²
4
2
1

7 410 zł

Projekt domu Kalipso 1 - segment lewy
Kalipso 1 - segment lewy
Dodano!
Dodano!
94,20 m²
4
2
1

3 563 zł

Projekt domu Kalipso 1 - bliźniak LLL
Kalipso 1 - bliźniak LLL
Dodano!
Dodano!
94,20 m²
4
2
1

7 126 zł

Projekt domu Kalipso 1 - dwulokalowy LLL
Kalipso 1 - dwulokalowy LLL
Dodano!
Dodano!
94,20 m²
4
2
1

7 126 zł

Projekt domu Kalipso 2 - segment lewy
Kalipso 2 - segment lewy
Dodano!
Dodano!
98,80 m²
4
2
1

3 705 zł

Projekt domu Kalipso 1
Kalipso 1
Dodano!
Dodano!
94,20 m²
4
2
1

3 750 zł

Projekt domu Kalipso 2
Kalipso 2
Dodano!
Dodano!
98,80 m²
4
2
1

3 900 zł

Projekt domu Kalipso 4
Kalipso 4
Dodano!
Dodano!
96,50 m²
4
2
1

4 000 zł

Projekt domu Kalipso 4 - dwulokalowy LLL
Kalipso 4 - dwulokalowy LLL
Dodano!
Dodano!
96,50 m²
4
2
1

7 600 zł

Projekt domu Kalipso 4 - segment lewy
Kalipso 4 - segment lewy
Dodano!
Dodano!
96,50 m²
4
2
1

3 800 zł

Projekt domu Kalipso 3 - bliźniak LLL
Kalipso 3 - bliźniak LLL
Dodano!
Dodano!
101,10 m²
4
2
1

8 550 zł

Projekt domu Kalipso 4 - bliźniak LLL
Kalipso 4 - bliźniak LLL
Dodano!
Dodano!
96,50 m²
4
2
1

7 600 zł

Projekt domu Kalipso 3 - segment lewy
Kalipso 3 - segment lewy
Dodano!
Dodano!
101,10 m²
4
2
1

4 275 zł

Projekt domu Kalipso 3 - dwulokalowy PLP
Kalipso 3 - dwulokalowy PLP
Dodano!
Dodano!
101,10 m²
4
2
1

8 550 zł

Projekt domu Kalipso 2 - bliźniak PLP
Kalipso 2 - bliźniak PLP
Dodano!
Dodano!
98,80 m²
4
2
1

7 410 zł

Projekt domu Kalipso 3
Kalipso 3
Dodano!
Dodano!
101,10 m²
4
2
1

3 950 zł

Podobne projekty (6508)

Zobacz wszystkie
NIŻSZA CENA❄️
Zdjęcie 1 projektu BS-56 dwulokalowy JGC1218
BS-56 dwulokalowy
Dodano!
Dodano!
165,60 m²
5
3
0

4 630 zł

4 730 zł

Tooltip

Cena regularna

4 530 zł najniższa cena
Tooltip

Najniższa cena z 30 dni
przed obniżką

NIŻSZA CENA❄️
Zdjęcie 1 projektu BS-56 wariant 1, dwulokalowy JGC1219
194,70 m²
7
4
0

4 630 zł

4 730 zł

Tooltip

Cena regularna

4 530 zł najniższa cena
Tooltip

Najniższa cena z 30 dni
przed obniżką

NIŻSZA CENA❄️
Zdjęcie 1 projektu APS 254 wariant 2 dwulokalowy LUA1545
214,60 m²
6
4
2

6 209 zł

6 999 zł

Tooltip

Cena regularna

6 159 zł najniższa cena
Tooltip

Najniższa cena z 30 dni
przed obniżką

NIŻSZA CENA❄️
Zdjęcie 1 projektu APS 254 dwulokalowy LUA1287
APS 254 dwulokalowy
Dodano!
Dodano!
198,20 m²
6
4
2

6 209 zł

6 999 zł

Tooltip

Cena regularna

6 159 zł najniższa cena
Tooltip

Najniższa cena z 30 dni
przed obniżką

NIŻSZA CENA❄️
Zdjęcie 1 projektu JB59 GDA1045
JB59
Dodano!
Dodano!
170,62 m²
6
4
2

8 179 zł

8 610 zł

Tooltip

Cena regularna

7 749 zł najniższa cena
Tooltip

Najniższa cena z 30 dni
przed obniżką

NIŻSZA CENA❄️
Zdjęcie 1 projektu Emma Duolit (1716) KRD2860
Emma Duolit (1716)
Dodano!
Dodano!
183,40 m²
6
4
2

6 773 zł

7 123 zł

Tooltip

Cena regularna

6 573 zł najniższa cena
Tooltip

Najniższa cena z 30 dni
przed obniżką

NIŻSZA CENA❄️
Zdjęcie 1 projektu Lila Duolit (1638) KRD2798
Lila Duolit (1638)
Dodano!
Dodano!
190,30 m²
4
2
1

7 113 zł

7 463 zł

Tooltip

Cena regularna

6 913 zł najniższa cena
Tooltip

Najniższa cena z 30 dni
przed obniżką

NIŻSZA CENA❄️
Zdjęcie 1 projektu Alodia (1529) KRD2689
Alodia (1529)
Dodano!
Dodano!
158,10 m²
5
3
2

3 940 zł

4 290 zł

Tooltip

Cena regularna

3 740 zł najniższa cena
Tooltip

Najniższa cena z 30 dni
przed obniżką

Projekt z budową

Budowa Projekt z budową

Zbuduj ten dom z naszym Partnerem - wygodnie, szybko i bezpiecznie

Projekt z budową to:

  • gwarancja niezmiennego kosztu budowy

  • krótki czas realizacji - dom gotowy nawet w 6 miesięcy

  • wieloletnia gwarancja na konstrukcję domu

Usytuowanie na działce

Czy ten projekt pasuje na
Twoją działkę?

Chętnie to sprawdzimy!

Czy ten projekt pasuje na
Twoją działkę?

Chętnie to sprawdzimy!

Dowiedz się:

  • czy zmieści się na niej wybrany przez Ciebie dom
  • jakie parametry musi spełniać dom według miejscowego planu zagospodarowania lub warunków zabudowy (np. kąt nachylenia i typ dachu, liczba kondygnacji itp.
  • jakie inne projekty pasują na Twoją działkę – znajdziemy je dla Ciebie!
Autor: Horyzont Pracownia Projektowa

Dane techniczne projektu

Powierzchnie i wymiary Powierzchnie i wymiary

Powierzchnia użytkowa
Tooltip
Suma powierzchni wszystkich pomieszczeń mieszkalnych, pomniejszona o pow. garażu, kotłowni, strychu, piwnicy. Jest liczona w 100% dla pomieszczeń o wysokości powyżej 2,2 m, w 50% dla pomieszczeń o wys. 2,2-1,4 m i niewliczana dla niższych niż 1,4 m.

198,20 m²

Wysokość ściany kolankowej
Tooltip
Wysokość ściany podpierającej dach. Jej wysokość wpływa na powierzchnię użytkową kondygnacji, na której się znajduje.

1,37 m

Powierzchnia zabudowy
Tooltip
Powierzchnia zajmowana przez część na- oraz nadziemną budynku liczona, jako rzut pionowy budynku na działkę.

158,60 m²

Kąt nachylenia dachu
Tooltip
Nachylenie połaci dachu głównego podawane w stopniach. Uwaga! W niektórych projektach występuje więcej niż jedno nachylenie dachu.

35°

Wysokość budynku
Tooltip
Wysokość liczona od części budynku położonej najniżej przy powierzchni terenu do najwyższego punktu dachu (kalenicy) z wyłączeniem kominów.

8,65 m

Szerokość elewacji

15,04 m

Długość elewacji

10,55 m

Min. szerokość działki
Tooltip
Najmniejsza możliwa szerokość działki niezbędna do wybudowania wybranego domu. Składa się z szerokości elewacji domu powiększonej z obu stron o 3 m dla ściany bez otworów drzwiowych/okiennych lub 4 m, dla ściany z otworami.

21,04 m

Min. długość działki
Tooltip
Najmniejsza możliwa długość działki niezbędna do wybudowania wybranego domu. Składa się z długości elewacji domu powiększonej z obu stron o 3 m dla ściany bez otworów drzwiowych/okiennych lub 4 m, dla ściany z otworami.

18,55 m

Energooszczędność Energooszczędność

Oze Czym jest OZE (Odnawialne Źródło Energii)?
Warunki techniczne

Projekt zgody z WT 2021

Technologia i konstrukcja Technologia i konstrukcja

Konstrukcja

Murowana

PROJEKT Z BUDOWĄ Istnieje możliwość zaadaptowania tego projektu do technologii prefabrykowanej/modułowej i budowy nawet w 6 miesięcy ze stałym kosztem budowy

Dowiedz się więcej »
Opis szczegółowy

Strop: gęstożebrowy Teriva I. Ściany zewnętrzne: gazobeton 24cm + styropian 20cm. Pokrycie dachowe: dachówka ceramiczna.

Strop

Gęstożebrowy

Reklama
Okna i drzwi tarasowe

Nowoczesne okna PVC i aluminiowe WIŚNIOWSKI – doskonała izolacja, elegancki design i niezrównana trwałość.

Wiśniowski
Sprawdź parametry!
Okna dachowe

Oferujemy bezpłatne konsultacje w zakresie wszystkich rozwiązań VELUX. Wyceny, porady dotyczące doboru okien i rolet zewnętrznych - sprawdź!

Velux
Sprawdź szczegóły
Płytki ceramiczne i gresy

Od małych formatów po wielkoformatowe gresy. Marmur, beton, drewno, kamień, lastryko czy cegiełki zamówisz wygodnie online z szybką dostawą.

Ceramzet
Sprawdź ofertę
Drzwi

Ciepłe drzwi WIŚNIOWSKI z kontrolą dostępu. Szeroka gama wzorów i kolorów.

Wiśniowski
Wybierz najlepsze
Bramy garażowe

Automatyczne bramy garażowe segmentowe i uchylne WIŚNIOWSKI na wymiar i z systemem smart home w standardzie.

Wiśniowski
Sprawdź ofertę!
Armatura i ceramika łazienkowa

Topowi producenci. Baterie łazienkowe, zestawy natynkowe i podtynkowe, umywalki, wanny, miski WC oraz kabiny zamówisz kompleksowo online.

Ceramzet II
Dowiedz się więcej
Rekuperacja

Alnor - kompletny system rekuperacji. Dobierz idealne rozwiązanie dla Twojego domu!

Alnor
Dobierz rekuperator
Gruntowe pompy ciepła

Przeprowadzimy kompletną instalację najbardziej oszczędnego źródła ciepła w Twoim nowym domu - gruntowej pompy ciepła. Od dokumentacji, pozwoleń, po odwierty i instalację.

Geothermal Solutions
Dowiedz się więcej

Gotowe domy modułowe (114)

Zobacz wszystkie
Stan deweloperski nawet w 6 miesięcy Gwarancja stałej ceny
Zdjęcie 1 projektu Dom prefabrykowany P.12 z okapem HPK1021
Pow. użytkowa
190,98 m²
Pokoje
5
887 600 zł 4 648 zł/m²
Zdjęcie 1 projektu Dom prefabrykowany P.12 bez okapu HPK1020
Pow. użytkowa
190,98 m²
Pokoje
5
858 100 zł 4 493 zł/m²
Zdjęcie 1 projektu Dom prefabrykowany Stodoła 180C HFX1029
Pow. użytkowa
186,60 m²
Pokoje
5
659 000 zł 3 532 zł/m²
Zdjęcie 1 projektu Dom prefabrykowany Stodoła 180A HFX1027
Pow. użytkowa
186,60 m²
Pokoje
5
659 000 zł 3 532 zł/m²
Zdjęcie 1 projektu Dom prefabrykowany Stodoła 180B HFX1028
Pow. użytkowa
185,90 m²
Pokoje
5
659 000 zł 3 545 zł/m²
Zdjęcie 1 projektu Dom prefabrykowany P.6 HPK1005
Pow. użytkowa
176,69 m²
Pokoje
4
916 600 zł 5 188 zł/m²
Zdjęcie 1 projektu Dom szkieletowy Viking Smart 220 HHT1032
Pow. użytkowa
163,86 m²
Pokoje
4
1 095 606 zł 6 686 zł/m²
Zdjęcie 1 projektu Dom prefabrykowany DH174 HDH1009
Pow. użytkowa
162,97 m²
Pokoje
4
1 026 000 zł 5 796 zł/m²

Opis projektu domu
Kalipso 2 dwulokalowy L+LL

W niewielkiej szerokości budynku, na parterze mieści się: garaż i oddzielne pomieszczenie gospodarcze - kotłownia.
Czytaj więcej

Polecani producenci

Prefabrykowane konstrukcje dachowe

tło producenta

WIĄZAR POLSKA

Zobacz więcej

Sprawdź nową generację okien GREENVIEW

tło producenta

FAKRO

Sprawdź nową generację okien GREENVIEW

Styropian, tynki, farby, kleje

tło producenta

Termo Organika

Poznaj super jakość

Okna, drzwi, osłony przeciwsłoneczne

tło producenta

Aluprof

Sprawdź ofertę

Kompletne systemy rekuperacji

tło producenta

Alnor

Dowiedz się więcej

Sprawdź nowy system DACHRYNNA

tło producenta

Galeco

Sprawdź ofertę
Zobacz więcej

Społeczność projektu domu
Kalipso 2 dwulokalowy L+LL w budowie

Dołącz do społeczności osób, które budują ten dom lub są zainteresowane jego budową.

  • Oglądaj zdjęcia z budowy
  • Zadawaj pytania
  • Wymieniaj się doświadczeniami

Opinie o projekcie domu Kalipso 2 dwulokalowy L+LL

Ocena

Ten projekt nie ma jeszcze opinii, bądź pierwszy!

Dodaj opinię

ASYSTENT WYBORU PROJEKTU

Szukasz idealnego projektu? Znajdziemy go dla Ciebie!

Doradca na podstawie Twoich wskazówek przygotuje spersonalizowaną listę projektów

Graficzne opracowanie rzutów poglądowych widocznych na karcie projektu zostało wykonane przez Extradom.pl. Prezentowane przez Extradom.pl wizualizacje wykonane zostały przez autora projektu i należy poczytywać je jedynie za przykład i propozycję wykończenia, wizję architektoniczną autora projektu. Ostateczne wykończenie budynku może nastąpić na wiele sposobów. Szczegółowe rozwiązania zastosowane w oferowanej dokumentacji - w tym również ilość, lokalizacje i wygląd okien, drzwi, kominów - mogą w niewielkim stopniu różnić się od prezentowanej wizualizacji budynku.

Extradom.pl Spółka z ograniczoną odpowiedzialnością z siedzibą przy ul. Jaworskiej 13, 53-612 Wrocław, wpisana do rejestru przedsiębiorców Krajowego Rejestru Sądowego przez Sąd Rejonowy dla Wrocławia-Fabrycznej we Wrocławiu, VI Wydział Gospodarczy Krajowego Rejestru Sądowego do pod numerem KRS 0000648746, numer NIP 895-17-18-333, o kapitale zakładowym 708 150,00 zł uprzejmie informuje, iż poprzez serwis Extradom.pl umożliwia m.in. zapoznanie się przez konsumentów z ofertą handlową Partnerów Extradom.pl, którzy stosują metody budowy domów przy wykorzystaniu różnego rodzaju technologie prefabrykacji bądź modułowe (tzw. „Gotowe domy”).

Extradom.pl nie prowadzi jednakże sprzedaży ani nie oferuje usług polegających na doradztwie finansowym, prawnym ani podatkowym w zakresie inwestycji realizowanych w technologiach tzw. „Gotowych domów”. Informacje prezentowane w serwisie Extradom.pl dotyczące Partnerów Extradom.pl oferujących realizację inwestycji w technologiach „Gotowych domów” lub podobnych mają charakter informacyjny i reklamowy.

Prezentowane w serwisie Extradom.pl informacje dotyczące stosowanych przez Partnerów metod budowy domów w technologii prefabrykacji bądź modułowej pochodzą od Partnerów Extradom.pl.

Extradom.pl sp. z o.o. jedynie umożliwia nawiązanie kontaktu przez Użytkownika z Partnerem Extradom.pl stosującym tego rodzaju technologie budowy domów i nie jest stroną umowy o roboty budowlane zawieranej przez Użytkownika Extradom.pl z Partnerem Extradom.pl.

REKLAMA
Zamknij