Projekty nawet 500 zł taniej ❄️

Koniec oferty za:

00godz.

00min.

00sek.

Sprawdź

Projekt domu Judyta WRC1519

Dodano!
Dodano!

Warstwy

Warstwy

Rzut parteru

Powierzchnia (m²)
Tooltip
Powierzchnia pomieszczenia
to ta, z której faktycznie możesz korzystać – skosy i niskie części poddasza są liczone częściowo lub wcale.
  1. 100% dla wysokości powyżej 2,2 m,
  2. 50% dla wysokości 1,4–2,2 m,
  3. nie liczymy poniżej 1,4 m.

Powierzchnia podłogi
Liczymy po obrysie pomieszczenia, bez względu na jego wysokość/skosy. Jeśli nie ma skosów to powierzchnia podłogi i pomieszczenia jest taka sama.
pomieszczenia i podłogi
podłogi
1. Wiatrołap
3,80
2. Hol
12,50
3. Kuchnia z jadalnią
18,80
4. Spiżarnia
2,40
5. Pokój dzienny
31,40
6. Gabinet
9,30
7. Łazienka
2,90
8. Kotłownia
7,10
9. Garaż
25,70
Razem
113,90
113,90
Powierzchnia (m²)
Tooltip
Powierzchnia pomieszczenia
to ta, z której faktycznie możesz korzystać – skosy i niskie części poddasza są liczone częściowo lub wcale.
  1. 100% dla wysokości powyżej 2,2 m,
  2. 50% dla wysokości 1,4–2,2 m,
  3. nie liczymy poniżej 1,4 m.

Powierzchnia podłogi
Liczymy po obrysie pomieszczenia, bez względu na jego wysokość/skosy. Jeśli nie ma skosów to powierzchnia podłogi i pomieszczenia jest taka sama.
pomieszczenia i podłogi
podłogi
1. Hol
16,70
2. Sypialnia
22
3. Garderoba
5,30
4. Pokój
14,80
5. Garderoba
5,30
6. Pokój
14,80
7. Łazienka
7,70
8. Strych
12,60
Razem
99,20
99,20

    Usytuowanie na działce

    Czy ten projekt pasuje na
    Twoją działkę?

    Chętnie to sprawdzimy!

    Dowiedz się:

    • czy zmieści się na niej wybrany przez Ciebie dom
    • jakie parametry musi spełniać dom według miejscowego planu zagospodarowania lub warunków zabudowy (np. kąt nachylenia i typ dachu, liczba kondygnacji itp.
    • jakie inne projekty pasują na Twoją działkę – znajdziemy je dla Ciebie!

Pokoje

2

Łazienki i WC

2

Garaż

0
więcej

Judyta - WRC1519

ikona2
Pokoje (bez salonu)
ikona 2
Łazienki (z toaletami)
ikona 0
Liczba stanowisk garażowych
(z wiatą garażową)

Projekt został
wycofany z oferty

W razie pytań prosimy o kontakt
z Centrum Obsługi Klienta
Konsultant Masz pytania?
Zadzwoń
71 715 20 60

pon.-pt. 8-21, sob. 9-17

Parter - 113,90 m²

Parter projektu Judyta

Zapytaj, co możesz zmienić

Powierzchnia (m²)
Tooltip
Powierzchnia pomieszczenia
to ta, z której faktycznie możesz korzystać – skosy i niskie części poddasza są liczone częściowo lub wcale.
  1. 100% dla wysokości powyżej 2,2 m,
  2. 50% dla wysokości 1,4–2,2 m,
  3. nie liczymy poniżej 1,4 m.

Powierzchnia podłogi
Liczymy po obrysie pomieszczenia, bez względu na jego wysokość/skosy. Jeśli nie ma skosów to powierzchnia podłogi i pomieszczenia jest taka sama.
pomieszczenia i podłogi
podłogi
1. Wiatrołap
3,80
2. Hol
12,50
3. Kuchnia z jadalnią
18,80
4. Spiżarnia
2,40
5. Pokój dzienny
31,40
6. Gabinet
9,30
7. Łazienka
2,90
8. Kotłownia
7,10
9. Garaż
25,70
Razem
113,90
113,90

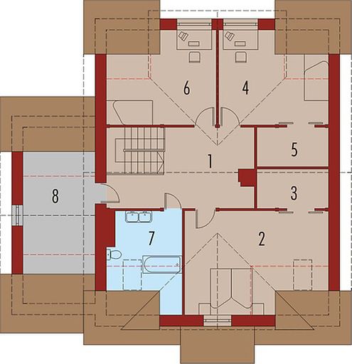
Poddasze - 99,20 m²

Poddasze projektu Judyta

Zapytaj, co możesz zmienić

Powierzchnia (m²)
Tooltip
Powierzchnia pomieszczenia
to ta, z której faktycznie możesz korzystać – skosy i niskie części poddasza są liczone częściowo lub wcale.
  1. 100% dla wysokości powyżej 2,2 m,
  2. 50% dla wysokości 1,4–2,2 m,
  3. nie liczymy poniżej 1,4 m.

Powierzchnia podłogi
Liczymy po obrysie pomieszczenia, bez względu na jego wysokość/skosy. Jeśli nie ma skosów to powierzchnia podłogi i pomieszczenia jest taka sama.
pomieszczenia i podłogi
podłogi
1. Hol
16,70
2. Sypialnia
22
3. Garderoba
5,30
4. Pokój
14,80
5. Garderoba
5,30
6. Pokój
14,80
7. Łazienka
7,70
8. Strych
12,60
Razem
99,20
99,20

Podobne projekty (9774)

Zobacz wszystkie
NIŻSZA CENA❄️
Zdjęcie 1 projektu Wyszukany D64 wariant II WWB1091
Wyszukany D64 wariant II
Dodano!
Dodano!
197,08 m²
5
3
2

5 449 zł

5 699 zł

Tooltip

Cena regularna

5 299 zł najniższa cena
Tooltip

Najniższa cena z 30 dni
przed obniżką

NIŻSZA CENA❄️
Nowość
Zdjęcie 1 projektu N-243 PZB1097
N-243
Dodano!
Dodano!
388,30 m²
5
5
3

13 110 zł

13 800 zł

Tooltip

Cena regularna

13 800 zł najniższa cena
Tooltip

Najniższa cena z 30 dni
przed obniżką

NIŻSZA CENA❄️
Zdjęcie 1 projektu HomeKoncept 122 G2 KRX1282
HomeKoncept 122 G2
Dodano!
Dodano!
107,62 m²
3
2
2

6 290 zł

6 790 zł

Tooltip

Cena regularna

5 771 zł najniższa cena
Tooltip

Najniższa cena z 30 dni
przed obniżką

Zdjęcie 1 projektu Dom Symetra POZ1011
Dom Symetra
Dodano!
Dodano!
244,40 m²
5
3
2

27 400 zł

NIŻSZA CENA❄️
Zdjęcie 1 projektu HomeKoncept 58 KRX1074
HomeKoncept 58
Dodano!
Dodano!
141,68 m²
3
2
2

6 990 zł

7 490 zł

Tooltip

Cena regularna

6 366 zł najniższa cena
Tooltip

Najniższa cena z 30 dni
przed obniżką

NIŻSZA CENA❄️
Zdjęcie 1 projektu HomeKoncept 122 G1 KRX1274
HomeKoncept 122 G1
Dodano!
Dodano!
103,15 m²
3
2
1

6 090 zł

6 590 zł

Tooltip

Cena regularna

5 601 zł najniższa cena
Tooltip

Najniższa cena z 30 dni
przed obniżką

Zdjęcie 1 projektu D21-18B G2 WSA1017
D21-18B G2
Dodano!
Dodano!
189,02 m²
4
3
2

20 000 zł

NIŻSZA CENA❄️
Zdjęcie 1 projektu HomeKoncept 112 G2 KRX1258
HomeKoncept 112 G2
Dodano!
Dodano!
162,53 m²
3
3
2

7 890 zł

8 390 zł

Tooltip

Cena regularna

7 131 zł najniższa cena
Tooltip

Najniższa cena z 30 dni
przed obniżką

Elewacje

Frontowa
Tylna
Lewa
Prawa

Usytuowanie na działce

Czy ten projekt pasuje na
Twoją działkę?

Chętnie to sprawdzimy!

Czy ten projekt pasuje na
Twoją działkę?

Chętnie to sprawdzimy!

Dowiedz się:

  • czy zmieści się na niej wybrany przez Ciebie dom
  • jakie parametry musi spełniać dom według miejscowego planu zagospodarowania lub warunków zabudowy (np. kąt nachylenia i typ dachu, liczba kondygnacji itp.
  • jakie inne projekty pasują na Twoją działkę – znajdziemy je dla Ciebie!
Autor: Pracownia Projektowa ARCHIPELAG

Dane techniczne projektu

Powierzchnie i wymiary Powierzchnie i wymiary

Energooszczędność Energooszczędność

Oze Czym jest OZE (Odnawialne Źródło Energii)?
Warunki techniczne

Projekt zgody z WT 2021

Opis projektu domu
Judyta

Dom piętrowy niepodpiwniczony przeznaczony dla 4-5 osobowej rodziny. Dom posiada nie ogrzewany strych (pom. nr 3 na piętrze) który można zaadoptować na dodatkowy pokój. Garaż w budynku zaprojektowano dłuższy niż standardowo aby można było wydzielić w nim pomieszczenie gospodarcze. Dostępne wersje
Czytaj więcej

Polecani producenci

Prefabrykowane konstrukcje dachowe

tło producenta

WIĄZAR POLSKA

Zobacz więcej

Sprawdź nową generację okien GREENVIEW

tło producenta

FAKRO

Sprawdź nową generację okien GREENVIEW

Styropian, tynki, farby, kleje

tło producenta

Termo Organika

Poznaj super jakość

Okna, drzwi, osłony przeciwsłoneczne

tło producenta

Aluprof

Sprawdź ofertę

Kompletne systemy rekuperacji

tło producenta

Alnor

Dowiedz się więcej

Sprawdź nowy system DACHRYNNA

tło producenta

Galeco

Sprawdź ofertę
Zobacz więcej

Społeczność projektu domu
Judyta w budowie

Dołącz do społeczności osób, które budują ten dom lub są zainteresowane jego budową.

  • Oglądaj zdjęcia z budowy
  • Zadawaj pytania
  • Wymieniaj się doświadczeniami

Opinie o projekcie domu Judyta

Ocena

Ten projekt nie ma jeszcze opinii, bądź pierwszy!

Dodaj opinię

ASYSTENT WYBORU PROJEKTU

Szukasz idealnego projektu? Znajdziemy go dla Ciebie!

Doradca na podstawie Twoich wskazówek przygotuje spersonalizowaną listę projektów

Graficzne opracowanie rzutów poglądowych widocznych na karcie projektu zostało wykonane przez Extradom.pl. Prezentowane przez Extradom.pl wizualizacje wykonane zostały przez autora projektu i należy poczytywać je jedynie za przykład i propozycję wykończenia, wizję architektoniczną autora projektu. Ostateczne wykończenie budynku może nastąpić na wiele sposobów. Szczegółowe rozwiązania zastosowane w oferowanej dokumentacji - w tym również ilość, lokalizacje i wygląd okien, drzwi, kominów - mogą w niewielkim stopniu różnić się od prezentowanej wizualizacji budynku.

REKLAMA
Zamknij