👉 Niższe ceny + karta allegro 200 zł! 🔥

Koniec oferty za:

0dni

00godz.

00min.

00sek.

Sprawdź

Projekt domu Jaskółka WRX1012

Zapisz Dodano!
Porównaj Dodano!
ikona Pobierz i drukuj
Dodaj opinię

Warstwy

Warstwy

Rzut parteru

Powierzchnia (m²)
Tooltip
Powierzchnia pomieszczenia
to ta, z której faktycznie możesz korzystać – skosy i niskie części poddasza są liczone częściowo lub wcale.
  1. 100% dla wysokości powyżej 2,2 m,
  2. 50% dla wysokości 1,4–2,2 m,
  3. nie liczymy poniżej 1,4 m.

Powierzchnia podłogi
Liczymy po obrysie pomieszczenia, bez względu na jego wysokość/skosy. Jeśli nie ma skosów to powierzchnia podłogi i pomieszczenia jest taka sama.
pomieszczenia i podłogi
podłogi
1. Wiatrołap
2,68
2. Hall
12,49
3. Kuchnia
12,42
4. Spiżarnia
1,97
5. Łazienka
5,78
6. Pokój dzienny
27,42
7. Pokój
9,37
8. Kotłownia
7,50
9. Garaż jednostanowiskowy
21,92
Razem
101,55
101,55
Powierzchnia (m²)
Tooltip
Powierzchnia pomieszczenia
to ta, z której faktycznie możesz korzystać – skosy i niskie części poddasza są liczone częściowo lub wcale.
  1. 100% dla wysokości powyżej 2,2 m,
  2. 50% dla wysokości 1,4–2,2 m,
  3. nie liczymy poniżej 1,4 m.

Powierzchnia podłogi
Liczymy po obrysie pomieszczenia, bez względu na jego wysokość/skosy. Jeśli nie ma skosów to powierzchnia podłogi i pomieszczenia jest taka sama.
pomieszczenia i podłogi
podłogi
1. Hall
6,40
2. Pokój
13,13
3. Pokój
11,37
4. Pokój
9,48
5. Pokój
16,18
6. Łazienka
4,49
7. Garderoba
3,82
Razem
64,87
64,87

    Usytuowanie na działce

    Czy ten projekt pasuje na
    Twoją działkę?

    Chętnie to sprawdzimy!

    Dowiedz się:

    • czy zmieści się na niej wybrany przez Ciebie dom
    • jakie parametry musi spełniać dom według miejscowego planu zagospodarowania lub warunków zabudowy (np. kąt nachylenia i typ dachu, liczba kondygnacji itp.
    • jakie inne projekty pasują na Twoją działkę – znajdziemy je dla Ciebie!

Pow. użytkowa

133,20 m²

Pokoje

5

Łazienki i WC

2

Garaż

1

Kąt dachu

35°

Wysokość budynku

8,30 m

Powierzchnia zabudowy

132,10 m²

Min. szer. i dł. działki

17,8 x 25,50 m

Konstrukcja

ikona
Murowana

Pokaż więcej parametrów

Zapisz Dodano!
Porównaj Dodano!
ikona Pobierz i drukuj

Jaskółka - WRX1012

ikona 133,20 m²
Powierzchnia użytkowa
ikona5
Pokoje (bez salonu)
ikona 2
Łazienki (z toaletami)
ikona 1
Liczba stanowisk garażowych
(z wiatą garażową)
ikona
Konstrukcja: Murowana

Projekt został
wycofany z oferty

W razie pytań prosimy o kontakt
z Centrum Obsługi Klienta
Konsultant
71 715 20 60

pon.-pt. 8-21, sob. 9-17

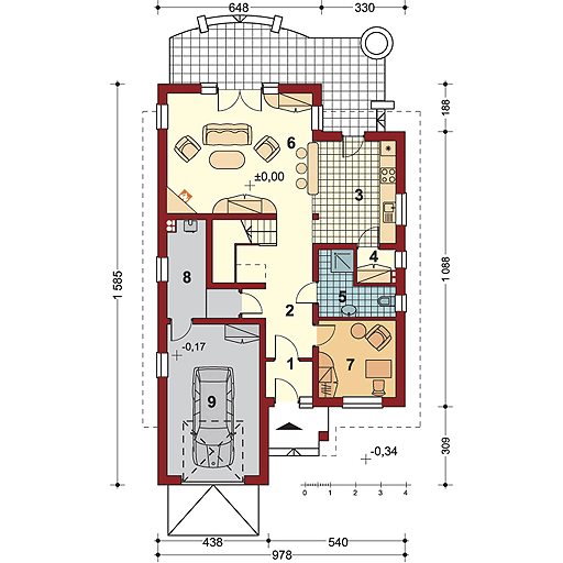
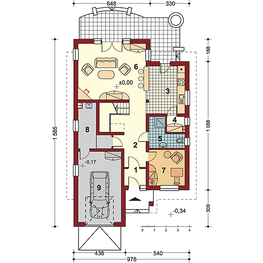
Parter - 101,55 m²

Projekt domu Jaskółka - rzut parteru, dom liczy 5 pokoje, 2 łazienki i wc

Zapytaj, co możesz zmienić

Powierzchnia (m²)
Tooltip
Powierzchnia pomieszczenia
to ta, z której faktycznie możesz korzystać – skosy i niskie części poddasza są liczone częściowo lub wcale.
  1. 100% dla wysokości powyżej 2,2 m,
  2. 50% dla wysokości 1,4–2,2 m,
  3. nie liczymy poniżej 1,4 m.

Powierzchnia podłogi
Liczymy po obrysie pomieszczenia, bez względu na jego wysokość/skosy. Jeśli nie ma skosów to powierzchnia podłogi i pomieszczenia jest taka sama.
pomieszczenia i podłogi
podłogi
1. Wiatrołap
2,68
2. Hall
12,49
3. Kuchnia
12,42
4. Spiżarnia
1,97
5. Łazienka
5,78
6. Pokój dzienny
27,42
7. Pokój
9,37
8. Kotłownia
7,50
9. Garaż jednostanowiskowy
21,92
Razem
101,55
101,55

Poddasze - 64,87 m²

Projekt domu Jaskółka - rzut poddasza, dom liczy 5 pokoje, 2 łazienki i wc

Zapytaj, co możesz zmienić

Powierzchnia (m²)
Tooltip
Powierzchnia pomieszczenia
to ta, z której faktycznie możesz korzystać – skosy i niskie części poddasza są liczone częściowo lub wcale.
  1. 100% dla wysokości powyżej 2,2 m,
  2. 50% dla wysokości 1,4–2,2 m,
  3. nie liczymy poniżej 1,4 m.

Powierzchnia podłogi
Liczymy po obrysie pomieszczenia, bez względu na jego wysokość/skosy. Jeśli nie ma skosów to powierzchnia podłogi i pomieszczenia jest taka sama.
pomieszczenia i podłogi
podłogi
1. Hall
6,40
2. Pokój
13,13
3. Pokój
11,37
4. Pokój
9,48
5. Pokój
16,18
6. Łazienka
4,49
7. Garderoba
3,82
Razem
64,87
64,87

Podobne projekty (2132)

Zobacz wszystkie
PROMOCJA
Zdjęcie 1 projektu APS 184 NEW LUA1393
APS 184 NEW
Dodano!
Dodano!
132,20 m²
4
2
1

4 149 zł

4 699 zł

Tooltip

Cena regularna

3 949 zł najniższa cena
Tooltip

Najniższa cena z 30 dni
przed obniżką

PROMOCJA
Zdjęcie 1 projektu Domidea 60 dG WAC1028
Domidea 60 dG
Dodano!
Dodano!
125,43 m²
4
3
1

5 604 zł

5 904 zł

Tooltip

Cena regularna

5 604 zł najniższa cena
Tooltip

Najniższa cena z 30 dni
przed obniżką

PROMOCJA
Zdjęcie 1 projektu Domidea 50 d40 w4 WAC1010
Domidea 50 d40 w4
Dodano!
Dodano!
126,70 m²
4
3
1

5 604 zł

5 904 zł

Tooltip

Cena regularna

5 604 zł najniższa cena
Tooltip

Najniższa cena z 30 dni
przed obniżką

PROMOCJA
Zdjęcie 1 projektu APS 289 LUA1386
APS 289
Dodano!
Dodano!
125,70 m²
4
2
1

4 699 zł

5 399 zł

Tooltip

Cena regularna

4 649 zł najniższa cena
Tooltip

Najniższa cena z 30 dni
przed obniżką

PROMOCJA
Zdjęcie 1 projektu Vincent 4 WOF1271
Vincent 4
Dodano!
Dodano!
120 m²
4
2
1

4 899 zł

5 099 zł

Tooltip

Cena regularna

4 899 zł najniższa cena
Tooltip

Najniższa cena z 30 dni
przed obniżką

PROMOCJA
Zdjęcie 1 projektu Domidea 50 d40 w2 WAC1009
Domidea 50 d40 w2
Dodano!
Dodano!
122,60 m²
4
3
1

5 604 zł

5 904 zł

Tooltip

Cena regularna

5 604 zł najniższa cena
Tooltip

Najniższa cena z 30 dni
przed obniżką

PROMOCJA
Zdjęcie 1 projektu NewHouse 755 G2 w1 KRZ1107
NewHouse 755 G2 w1
Dodano!
Dodano!
123,43 m²
4
2
2

5 490 zł

5 990 zł

Tooltip

Cena regularna

5 990 zł najniższa cena
Tooltip

Najniższa cena z 30 dni
przed obniżką

PROMOCJA
Zdjęcie 1 projektu Party WAH1344
Party
Dodano!
Dodano!
137,78 m²
4
3
2

5 400 zł

6 750 zł

Tooltip

Cena regularna

5 400 zł najniższa cena
Tooltip

Najniższa cena z 30 dni
przed obniżką

Elewacje

Frontowa
Tylna
Lewa
Prawa

Przekroje

Przekrój pionowy

Usytuowanie na działce

Czy ten projekt pasuje na
Twoją działkę?

Chętnie to sprawdzimy!

Czy ten projekt pasuje na
Twoją działkę?

Chętnie to sprawdzimy!

Dowiedz się:

  • czy zmieści się na niej wybrany przez Ciebie dom
  • jakie parametry musi spełniać dom według miejscowego planu zagospodarowania lub warunków zabudowy (np. kąt nachylenia i typ dachu, liczba kondygnacji itp.
  • jakie inne projekty pasują na Twoją działkę – znajdziemy je dla Ciebie!
Autor: Dom na 5tkę

Dane techniczne projektu

Powierzchnie i wymiary Powierzchnie i wymiary

Powierzchnia użytkowa
Tooltip
Suma powierzchni wszystkich pomieszczeń mieszkalnych, pomniejszona o pow. garażu, kotłowni, strychu, piwnicy. Jest liczona w 100% dla pomieszczeń o wysokości powyżej 2,2 m, w 50% dla pomieszczeń o wys. 2,2-1,4 m i niewliczana dla niższych niż 1,4 m.

133,20 m²

Powierzchnia zabudowy
Tooltip
Powierzchnia zajmowana przez część na- oraz nadziemną budynku liczona, jako rzut pionowy budynku na działkę.

132,10 m²

Powierzchnia dachu

193 m²

Kąt nachylenia dachu
Tooltip
Nachylenie połaci dachu głównego podawane w stopniach. Uwaga! W niektórych projektach występuje więcej niż jedno nachylenie dachu.

35°

Wysokość budynku
Tooltip
Wysokość liczona od części budynku położonej najniżej przy powierzchni terenu do najwyższego punktu dachu (kalenicy) z wyłączeniem kominów.

8,30 m

Min. szerokość działki
Tooltip
Najmniejsza możliwa szerokość działki niezbędna do wybudowania wybranego domu. Składa się z szerokości elewacji domu powiększonej z obu stron o 3 m dla ściany bez otworów drzwiowych/okiennych lub 4 m, dla ściany z otworami.

17,80 m

Min. długość działki
Tooltip
Najmniejsza możliwa długość działki niezbędna do wybudowania wybranego domu. Składa się z długości elewacji domu powiększonej z obu stron o 3 m dla ściany bez otworów drzwiowych/okiennych lub 4 m, dla ściany z otworami.

25,50 m

Energooszczędność Energooszczędność

Oze Czym jest OZE (Odnawialne Źródło Energii)?
Warunki techniczne

Projekt zgody z WT 2021

Technologia i konstrukcja Technologia i konstrukcja

Konstrukcja

Murowana

Opis szczegółowy

Fundamenty betonowe. Ściany zewnętrzne warstwowe z bloczków z betonu komórkowego + docieplenie (styropian). Ściany wewnętrzne nośne z bloczków z betonu komórkowego, działowe z bloczków z betonu komórkowego lub lekkie ścianki z płyt G-K. Strop gęstożebrowy. Elewacje: tynk strukturalny (akrylowy, mineralny), płytki klinkierowe lub kamień cięty. Pokrycie dachu dachówką ceramiczną lub cementową lub każde lżejsze.

Strop

Gęstożebrowy

Reklama
Okna i drzwi tarasowe

Nowoczesne okna PVC i aluminiowe WIŚNIOWSKI – doskonała izolacja, elegancki design i niezrównana trwałość.

Wiśniowski
Sprawdź parametry!
Okna dachowe

Oferujemy bezpłatne konsultacje w zakresie wszystkich rozwiązań VELUX. Wyceny, porady dotyczące doboru okien i rolet zewnętrznych - sprawdź!

Velux
Sprawdź szczegóły
Okna i drzwi tarasowe

Systemy drzwi i okien z myślą o nowoczesnej architekturze i dużych przeszkleniach tarasowych.

Drutex
Sprawdź ofertę!
Pompa ciepła

Wybierz pompę ciepła, która pasuje do Twojego domu. Niezależnie od tego, czy ustawienie wewnątrz czy na zewnątrz, pompy ciepła STIEBEL ELTRON dopasują się do każdej przestrzeni.

Stiebel
Dobierz pompę ciepła
Drzwi

Idealne połączenie sztuki z technologią! Nowoczesne i energooszczędne drzwi wyróżniają się doskonałym połączeniem funkcjonalności, wysokiej estetyki wykonania oraz unikalnego stylu.

Drutex
Zobacz więcej
Drzwi

Ciepłe drzwi WIŚNIOWSKI z kontrolą dostępu. Szeroka gama wzorów i kolorów.

Wiśniowski
Wybierz najlepsze
Bramy garażowe

Automatyczne bramy garażowe segmentowe i uchylne WIŚNIOWSKI na wymiar i z systemem smart home w standardzie.

Wiśniowski
Sprawdź ofertę!
Rekuperacja

Alnor - kompletny system rekuperacji. Dobierz idealne rozwiązanie dla Twojego domu!

Alnor
Dobierz rekuperator
Dach

Producent stalowych pokryć dachowych i systemów elewacyjnych. Precyzja wykonania, trwałość na lata i szybki montaż doceniany przez dekarzy. Postaw na solidny dach Budmat.

Budmat
Sprawdź ofertę
Ogrodzenie

Nowoczesne stalowe ogrodzenia Budmat - estetyka, bezpieczeństwo i trwałość na lata. Systemowe rozwiązania na wymiar, dopasowane do każdego domu.

Budmat
Sprawdź ofertę

Gotowe domy - najszybszy sposób na dom (115)

Zobacz wszystkie
  • Stan deweloperski nawet w 6 miesięcy
  • Gwarancja stałej ceny
Skonfiguruj dom
Zdjęcie 1 projektu Bergen 130 HUS1002
130,40 m²
4
Stan deweloperski brutto
529 000 zł 4 057 zł/m²
Zdjęcie 1 projektu Dom prefabrykowany Stodoła 130A HFX1037
133,03 m²
4
Stan deweloperski brutto
575 000 zł 4 322 zł/m²
Zdjęcie 1 projektu Dom prefabrykowany Stodoła 130B HFX1040
132,68 m²
5
Stan deweloperski brutto
575 000 zł 4 334 zł/m²
Zdjęcie 1 projektu Dom prefabrykowany FastHome 130A HFX1032
131,73 m²
4
Stan deweloperski brutto
590 000 zł 4 479 zł/m²
Zdjęcie 1 projektu Dom prefabrykowany FastHome 130B HFX1034
131,14 m²
4
Stan deweloperski brutto
599 000 zł 4 568 zł/m²
Zdjęcie 1 projektu Dom prefabrykowany DEX136 HDX1002
136 m²
4
Stan deweloperski brutto
895 700 zł 6 586 zł/m²
Zdjęcie 1 projektu Dom prefabrykowany P.5 HPK1004
138,67 m²
5
Stan deweloperski brutto
787 200 zł 5 677 zł/m²
Zdjęcie 1 projektu Dom prefabrykowany P.1 z okapem HPK1000
139,44 m²
3
Stan deweloperski brutto
734 000 zł 5 264 zł/m²

Opis projektu domu
Jaskółka

Projekt domu Jaskółka to ciekawa propozycja dla osób posiadających średniej szerokości działkę. Bryła budynku posiada formę prostą, przez co jest tani w budowie. W tym projekcie kalenica skierowana jest równolegle do drogi, co jest istotne ze względu na wymagania określone w planie zagospodarowania przestrzennego. Jest przeznaczony do zabudowy wolnostojącej. W projekcie uwzględniono garaż jednostanowiskowy wysunięty do przodu. Konstrukcja domu zwieńczona jest dachem dwuspadowym, i wykonanie więźby oraz jej pokrycie jest ekonomiczne i nie zajmuje wiele czasu. Projekt Jaskółka to dom parterowy z poddaszem użytkowym, co sprawia, że metraż powierzchni użytkowej nie jest ograniczony wielkością działki. Warto zwrócić uwagę na przestronną część dzienną. W domu uwzględniono kuchnię otwartą, co jest nowoczesnym i praktycznym rozwiązaniem. Dodatkowo, znajdujący się w kuchni stół umożliwia integrację z resztą domowników. Zwolenników praktycznych rozwiązań niewątpliwie ucieszy fakt, iż przewidziano także miejsce na spiżarkę. Dodatkowo w salonie przewidziano kominek, nadający wnętrzu niepowtarzalny klimat. W projekcie uwzględniono dwie komfortowe łazienki- jedna znajduje się na parterze, druga na poddaszu. Sześć sypialni doskonale sprawdzi się w przypadku 5-8 osobowej rodziny. Przestrzeń można wykorzystać także jako pokój dla gości lub gabinet. Rodzinne spotkania w słonecznie dni uprzyjemni przewidziany przy domu taras. Projekt został wykonany w technologii murowanej, dzięki czemu podczas upałów dom utrzymuje przyjemny chłód. Jaskółka zadowoli Inwestorów ceniących cechy stylu tradycyjnego, dlatego będzie prezentować się doskonale niezależnie od okolicy.
Czytaj więcej

Polecani producenci

Kompletne systemy rekuperacji

tło producenta

Alnor

Dowiedz się więcej

Dachy modułowe ze stali

tło producenta

Budmat

Poznaj szczegóły oferty

Prefabrykowane konstrukcje dachowe

tło producenta

WIĄZAR POLSKA

Zobacz więcej
Zobacz więcej

Społeczność projektu domu
Jaskółka w budowie

Dołącz do społeczności osób, które budują ten dom lub są zainteresowane jego budową.

  • Oglądaj zdjęcia z budowy
  • Zadawaj pytania
  • Wymieniaj się doświadczeniami

Opinie o projekcie domu
Jaskółka

Opinie niezweryfikowane

Bądź pierwszy!
Ten projekt nie ma jeszcze opinii, bądź pierwszy!

ikona Dodaj opinię o projekcie

Wywiady mieszkańców domu Jaskółka

Zdjęcie profilowe użytkownika adam1606 adam1606

Projekt domu Jaskółka WRX1012 wybraliśmy, ponieważ spodobał nam się jego układ pomieszczeń, w którym było przewidziane wszystko to, na czym nam zależało. Dany projekt domu przedstawiał przede wszystkim budynek, który bez problemów będzie można ustawić na naszej działce. Nawet zdecydowałem się odsunąć dom 10m od drogi, aby spokojnie móc przed nim zaparkować samochód.Mamy piec na gaz, a także piec na węgiel i ostatniej zimy spaliłem tyko 2 tony węgla na ogrzanie domu. Dodatkowo jeszcze trochę drewna na rozpałkę i gazu na ogrzanie wody - ale to naprawdę nie były wysokie koszty. Oczywiście postanowiłem też położyć 15cm styropianu zamiast 12cm i zainwestować w okna trzyszybowe.Układ pomieszczeń w Jaskółka WRX1012 został dobrze rozwiązany. Na dole mamy całkiem spory salon, a dodatkowy pokój, póki co, pełni funkcję bawialni naszego dziecka. Na górze nad salonem mamy sypialnię. Jeden z pokoi zajmuje dziecko, a jeden na razie stoi pusty. Natomiast pokój przy łazience zniknął, dzięki czemu mamy większą łazienkę i dodatkową garderobę. Był to całkiem dobry pomysł - kolejna sypialnia nie była nam potrzebna, a duża łazienka robi świetne wrażenie i jest bardzo wygodna. Na stałe w domu mieszkają trzy osoby, ale myślę, że dla czterech osób będzie to optymalne rozwiązanie. Zmieniliśmy trochę układ okien w dom, co odrobinę poprawiło jeszcze i tak dobre doświetlenie wnętrze. Pozbyliśmy się okna na krótkiej ścianie w salonie przy kuchni i wstawiliśmy je na przeciwnej ścianie. Nie ma też okna w kotłowni - wentylacja poszła drzwiami, więc i to udało się rozwiązać. Dodatkowe okna połaciowe pojawiły się też w powiększonej łazience, a taras za naszą sypialnią zdecydowaliśmy się całkowicie zadaszyć. Zamiast drzwi tarasowych w kuchni mamy okno, dzięki temu kuchnia jest bardziej przestronna i bardziej ustawna.Z naszego wyboru jestem bardzo zadowolony. Projekt domu parterowego z garażem i poddaszem użytkowym Jaskółka WRX1012 jest bardzo dobrze przemyślany. Zastanawiam się jednak, czy potrzebna jest aż tak widoczna (o trzy stopnie) różnica poziomów na parterze i czy domek nie mógłby być o pół metra szerszy. Polecam i pozdrawiam.

Zdjęcie profilowe użytkownika Paweł1012 Paweł1012

Wraz z moją żoną zdecydowaliśmy się na projekt domu parterowego z poddaszem użytkowym Jaskółka WRX1012. Budynek spodobał nam się pod kątem wizualnym, a przewidziany w nim wewnętrzny układ odpowiadał naszym potrzebom.Podczas realizacji nie natknęliśmy się na żadne problemy, a współpracujący z nami fachowcy nie zgłaszali błędów w projekcie. Koszty budowy zależą od użytych materiałów oraz zatrudnionych specjalistów, dlatego też postanowiliśmy nie korzystać z usług tylko jednej firmy, a na własną rękę szukaliśmy osobnych wykonawców do poszczególnych prac. Myślę, że można sugerować się kwotą oszacowaną przez architekta, aczkolwiek aby się w niej zmieścić należy zastosować podobny system oraz poszukać tańszych zamienników zalecanych materiałów i elementów np. rekomendowane w projekcie bloczki Ytong zastąpiliśmy gazobetonem innego producenta.Ściany ociepliliśmy tradycyjnym styropianem o grubości 15 cm. W kotłowni zamontowaliśmy piec, w którym palimy węglem i drewnem. Koszty ogrzewania w naszym przypadku są dosyć korzystne, gdyż przez cały okres grzewczy wydajemy ok 3 tys. zł. na opał.Do projektu Jaskółka WRX1012 wprowadziliśmy zmianę i zrezygnowaliśmy z drzwi między korytarzem a kotłownią. Obecnie dostać się można do niej przechodząc przez garaż, a z kolei do niego zrobiliśmy bezpośrednie przejście z wiatrołapu. Nie wstawialiśmy jednego z dwóch pierwotnie przewidzianych okien połaciowych, a w kuchni zlikwidowaliśmy wyjście na taras. Jest ona otwarta na salon, a przeszklenia w strefie wypoczynkowej wychodzą na zachód i południe, więc jest tam naprawdę jasno. Z racji tego okno tarasowe w kuchni nie było nam potrzebne, a w dodatku zmniejszało ustawność tego pomieszczenia i teraz mamy więcej miejsca na szafki. Myślę, że warto również rozważyć powiększenie dolnej łazienki przyłączając do niej powierzchnię spiżarni.Metraż projektu domu Jaskółka WRX1012 idealnie sprawdza się przy naszej 4-osobowej rodzinie. Sądzę nawet, że 2 lub 3 dodatkowych domowników nie stanowiłoby problemu. Jesteśmy zadowoleni z naszej realizacji, a mojej żonie szczególnie podobają się uwzględnione przy sypialniach balkony. Pozdrawiam.

Zdjęcie profilowe użytkownika mili87 mili87

Nasz wybór padł na projekt domu Jaskółka WRX1012, ponieważ jego układ pomieszczeń najbardziej nam odpowiadał. Wszystko rozmieszczone jest bardzo praktycznie. Podoba mi się to, że przy stosunkowo niedużym metrażu dom posiada aż 5 sypialni. Chociaż przy wyborze najbardziej skupialiśmy się na wnętrzu domu, to muszę przyznać, iż jego wygląd zewnętrzny również przypadł nam do gustu. Podczas samej realizacji, nie mieliśmy żadnych komplikacji. Małym utrudnieniem było natomiast to, iż zawarte w projekcie opisy odnośnie materiałów nie były szczegółowe. Była podana ilość (np. 2 tony), ale bez dokładnej specyfikacji. Musieliśmy obliczyć wszystko na własną rękę. Na szczęście sam na co dzień zajmuję się budowlanką, więc nie było to dla mnie szczególnie kłopotliwe. Do budowy użyłem bloczków ceramicznych. Strop Teriva, czyli tak jak było w projekcie. Do pokrycia dachu użyłem blacho-dachówki. Projekt domu parterowego z poddaszem użytkowym Jaskółka WRX1012 jest niedrogi w budowie. Jeśli ktoś chociaż trochę zna się na budownictwie i poszuka tańszych materiałów, to okaże się, że koszty mogą być jeszcze mniejsze.W całym domu zastosowałem ogrzewanie podłogowe. Wiem z doświadczenia, że to naprawdę komfortowe i korzystne finansowo rozwiązanie. We wszystkich pomieszczeniach jest ciepło i przyjemnie. Całość ogrzewana jest dzięki piecowi na paliwo stałe, w którym palę ekogroszkiem. W pierwszym okresie zimowym po przeprowadzce zużyłem ok. 2,5 tony opału. Myślę, że to niedużo zważywszy na to, iż nowo powstałe domy potrzebują na początku większego ogrzania.Dość istotną zmianą, którą wprowadziłem do projektu było wyrównanie stropu. W pierwotnej wersji miał być 3 stopniowy uskok nad garażem. Teraz całe poddasze znajduje się na jednym poziomie. Okna i drzwi balkonowe są w naszym przypadku proste zamiast zaokrąglonych. Mam również w planie przedłużenie dachu nad balkonem z tyłu domu. Wpadłem na ten pomysł już po zakończonej realizacji, jednak myślę że nie będzie problemu z dobudowaniem połaci.Dom położony jest tak, że salon znajduje się po stronie wschodniej. Po zachodniej mamy wejście oraz garaż. Dzięki temu, iż okna w części dziennej wychodzą na wschód i południe, mamy tam dużo słońca praktycznie do wieczora.Obecnie w domu mieszkam z żoną i naszym dzieckiem. Sądzę, że przy tej ilości sypialni dwa razy większa rodzina żyłaby tam równie komfortowo.Najbardziej lubimy spędzać czas w salonie i kuchni, w której zmieniłem układ mebli na inny niż ukazywała wizualizacja. Jest to naprawdę bardzo funkcjonalne pomieszczenie, a spiżarka świetnie się sprawdza. Jesteśmy zadowoleni z wyboru projektu domu Jaskółka WRX1012 i z czystym sumieniem możemy polecić go innym. Pozdrawiam

Zdjęcie profilowe użytkownika karolciar karolciar

Ze względu na to, iż posiadamy bardzo wąską działkę, wybór projektu był w naszym przypadku mocno ograniczony. Największe znaczenie zwracaliśmy więc na wymiary budynku, a projekt Jaskółka WRX1012 był dla nas pod tym względem najlepszym wyborem. Dodatkowo układ okien pozwalał na całkowitą rezygnację z przeszkleń od jednej strony domu, a stosując to rozwiązanie mogliśmy usytuować go przy samej granicy działki bez żadnych konsekwencji. Teraz, po zakończeniu inwestycji widzę, że zakup tego projektu był świetną decyzją nie tylko z uwagi na format, ale także funkcjonalność.W trakcie budowy nie natrafiliśmy na żadne problemy i wszystko przebiegło zgodnie z planem. Projekt nabyliśmy w styczniu 2013 r., a w maju rozpoczęliśmy pierwsze prace. Po ok. 2,5 roku zakończyliśmy inwestycję i z początkiem 2016 r. dom był już gotowy do zamieszkania. Ściany wymurowaliśmy z ceramicznych pustaków Porotherm 25 cm, a następnie ociepliliśmy je 25 cm warstwą styropianu. Dach pokryliśmy dachówką marki Braas. Sądzę, że architekt poprawnie oszacował kosztorys i spokojnie można zmieścić się w sugerowanej kwocie.Projekt Jaskółka WRX1012 przewidywał garaż w bryle domu, jednak my postanowiliśmy z niego zrezygnować, gdyż obok mamy postawiony osobny, wolnostojący budynek z przeznaczeniem na wstawienie samochodu. Dodatkowo przenieśliśmy do niego kotłownię, a w jej pierwotnym miejscu wykonaliśmy pralnię. Powierzchnię garażu przeznaczyliśmy na zrobienie dużego pokoju rekreacyjnego. Łazienka na poddaszu wydawała nam się trochę mała, dlatego postanowiliśmy wykonać ją w miejscu jednego z pokoi, zaś tam gdzie znajdowała się pierwotnie obecnie mamy garderobę.Myślę, że oprócz zastosowanych modyfikacji, nie chciałabym już nic więcej zmieniać. Jedyne czego się nieco obawiamy to to, iż w przyszłości tarasy nad częścią mieszkalną mogą zacząć przeciekać. Co prawda, na początku myśleliśmy, aby przedłużyć daszki nad lukarnami, aczkolwiek ostatecznie zrezygnowaliśmy z tego pomysłu, aby zachować oryginalny wygląd budynku. Widziałam jednak inne realizacje tego projektu i z tego co zauważyłam część inwestorów decyduje się na takie rozwiązanie, więc można to rozważyć.Jestem naprawdę zadowolona z wyboru projektu domu parterowego z poddaszem użytkowym Jaskółka WRX1012. Sądzę, że jego zakup będzie również świetną decyzją dla innych inwestorów posiadających wąską działkę. Układ pomieszczeń został w nim bardzo dobrze zaplanowany, a goście odwiedzający nas po raz pierwszy zawsze są bardzo zaskoczeni pojemnością domu. Z zewnątrz, na pozór budynek wydaje się nieduży, jednak w środku jest naprawdę wiele pomieszczeń, tym bardziej, że po zastosowanych zmianach zamiast garażu mamy drugi salon. Obecnie mieszkamy w trzy osoby, jednak niebawem nasza rodzina się powiększy, gdyż spodziewamy się z mężem kolejnego domownika :-). Powierzchnia domu jest dla nas w pełni komfortowa. Myślę nawet, że taki metraż usatysfakcjonuje także 5-osobową rodzinę. Pozdrawiam.

ASYSTENT WYBORU PROJEKTU

Szukasz idealnego projektu? Znajdziemy go dla Ciebie!

Doradca na podstawie Twoich wskazówek przygotuje spersonalizowaną listę projektów

Graficzne opracowanie rzutów poglądowych widocznych na karcie projektu zostało wykonane przez Extradom.pl. Prezentowane przez Extradom.pl wizualizacje wykonane zostały przez autora projektu i należy poczytywać je jedynie za przykład i propozycję wykończenia, wizję architektoniczną autora projektu. Ostateczne wykończenie budynku może nastąpić na wiele sposobów. Szczegółowe rozwiązania zastosowane w oferowanej dokumentacji - w tym również ilość, lokalizacje i wygląd okien, drzwi, kominów - mogą w niewielkim stopniu różnić się od prezentowanej wizualizacji budynku.

REKLAMA
Zamknij