👉 Niższe ceny + karta allegro 200 zł! 🔥

Projekt domu Jaskółka 3 - murowany GDE1096

Dodano!
Dodano!

Warstwy

Warstwy

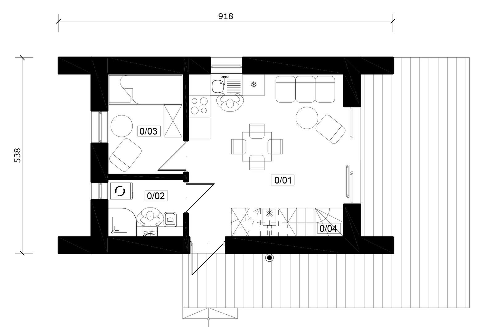
Rzut parteru

Powierzchnia (m²)
Tooltip
Powierzchnia pomieszczenia
to ta, z której faktycznie możesz korzystać – skosy i niskie części poddasza są liczone częściowo lub wcale.
  1. 100% dla wysokości powyżej 2,2 m,
  2. 50% dla wysokości 1,4–2,2 m,
  3. nie liczymy poniżej 1,4 m.

Powierzchnia podłogi
Liczymy po obrysie pomieszczenia, bez względu na jego wysokość/skosy. Jeśli nie ma skosów to powierzchnia podłogi i pomieszczenia jest taka sama.
pomieszczenia i podłogi
podłogi
1. Pokój dzienny + kuchnia + jadalnia
16,57
2. Łazienka
3,24
3. Pokój
5,69
4. Schody
2,42
Razem
27,92
27,92
Powierzchnia (m²)
Tooltip
Powierzchnia pomieszczenia
to ta, z której faktycznie możesz korzystać – skosy i niskie części poddasza są liczone częściowo lub wcale.
  1. 100% dla wysokości powyżej 2,2 m,
  2. 50% dla wysokości 1,4–2,2 m,
  3. nie liczymy poniżej 1,4 m.

Powierzchnia podłogi
Liczymy po obrysie pomieszczenia, bez względu na jego wysokość/skosy. Jeśli nie ma skosów to powierzchnia podłogi i pomieszczenia jest taka sama.
pomieszczenia
podłogi
1. Korytarz
9,58
11,20
2. Pokój
5,31
7,02
3. Pokój
5,31
7,02
Razem
20,20
25,24

    Usytuowanie na działce

    Czy ten projekt pasuje na
    Twoją działkę?

    Chętnie to sprawdzimy!

    Dowiedz się:

    • czy zmieści się na niej wybrany przez Ciebie dom
    • jakie parametry musi spełniać dom według miejscowego planu zagospodarowania lub warunków zabudowy (np. kąt nachylenia i typ dachu, liczba kondygnacji itp.
    • jakie inne projekty pasują na Twoją działkę – znajdziemy je dla Ciebie!

Pow. użytkowa

45,70 m²

Pokoje

3

Łazienki i WC

1

Garaż

0

Min. szer. i dł. działki

15,38 x 13,38 m

Kąt dachu

40°

Szacunkowy koszt SSZ

114 000 zł
Szacunkowy koszt budowy do stanu surowego zamkniętego (SSZ) metodą gospodarczą - większość prac wykonuje inwestor.

Konstrukcja

Murowana
więcej

Jaskółka 3 - murowany - GDE1096

ikona 45,70 m²
Powierzchnia użytkowa
ikona3
Pokoje (bez salonu)
ikona 1
Łazienki (z toaletami)
ikona 0
Liczba stanowisk garażowych
(z wiatą garażową)
ikona
Konstrukcja: Murowana

Promocja od 12.03.2026, koniec za:

0 dni

00 00 00

2 500 zł

Tooltip

Cena regularna obowiązywała od 05.03.2026 do 11.03.2026

Cena regularna: 2 600 zł
Najniższa cena z 30 dni przed obniżką: 2 500 zł
Gwarancja najniższej ceny Gwarancja najniższej ceny Tooltip

Wydłużony czas realizacji Tooltip

Projekt jest koncepcją

GRATIS 16% rabatu w SELSEY

GRATIS 15% rabatu do LEROY MERLIN

GRATIS Przydatne Extradodatki

GRATIS Poradnik Dach Solarny

100 dni na wymianę, 30 dni na zwrot

Darmowa dostawa - kurier, paczkomaty

Bezpłatne pozwolenie na zmiany

Dokumentacja zgodna z WT2021

Pokaż więcej (6)
Konsultant Masz pytania?
Zadzwoń
71 715 20 60

pon.-pt. 8-21, sob. 9-17

Szukasz wykonawcy godnego zaufania?
Zleć budowę w Extradom.pl!

  • Z góry znasz koszt budowy domu
  • Dom odbierasz zgodnie z ustalonym harmonogramem - nawet w 6 miesięcy
  • Zabezpiecza Cię jedna kompleksowa umowa z jednym wykonawcą
  • Otrzymujesz nawet 30-letnią gwarancję na konstrukcję domu
  • Oszczędzasz swój czas dzięki pewnej i kompletnej usłudze
Cena brutto stanu
deweloperskiego od
Tooltip
Cena brutto stanu deweloperskiego od 4 719 do 6 939 zł/m2.
Cena jest uzależniona m.in. od lokalizacji, wybranej technologii, kubatury budynku, skomplikowania projektu i ewentualnych zmian, na które zdecyduje się inwestor.
Cena za m2 powierzchni netto, czyli wszystkich pomieszczeń mierzonych na wysokości podłogi.
4 719 zł/m2
Dowiedz się więcej
Konsultant Masz pytania?
Zadzwoń
71 718 89 70

pon.-pt. 8-19

Parter - 27,92 m²

Parter projektu Jaskółka 3 - murowany

Zapytaj, co możesz zmienić

Powierzchnia (m²)
Tooltip
Powierzchnia pomieszczenia
to ta, z której faktycznie możesz korzystać – skosy i niskie części poddasza są liczone częściowo lub wcale.
  1. 100% dla wysokości powyżej 2,2 m,
  2. 50% dla wysokości 1,4–2,2 m,
  3. nie liczymy poniżej 1,4 m.

Powierzchnia podłogi
Liczymy po obrysie pomieszczenia, bez względu na jego wysokość/skosy. Jeśli nie ma skosów to powierzchnia podłogi i pomieszczenia jest taka sama.
pomieszczenia i podłogi
podłogi
1. Pokój dzienny + kuchnia + jadalnia
16,57
2. Łazienka
3,24
3. Pokój
5,69
4. Schody
2,42
Razem
27,92
27,92

Poddasze - 20,20 m²

Poddasze projektu Jaskółka 3 - murowany

Zapytaj, co możesz zmienić

Powierzchnia (m²)
Tooltip
Powierzchnia pomieszczenia
to ta, z której faktycznie możesz korzystać – skosy i niskie części poddasza są liczone częściowo lub wcale.
  1. 100% dla wysokości powyżej 2,2 m,
  2. 50% dla wysokości 1,4–2,2 m,
  3. nie liczymy poniżej 1,4 m.

Powierzchnia podłogi
Liczymy po obrysie pomieszczenia, bez względu na jego wysokość/skosy. Jeśli nie ma skosów to powierzchnia podłogi i pomieszczenia jest taka sama.
pomieszczenia
podłogi
1. Korytarz
9,58
11,20
2. Pokój
5,31
7,02
3. Pokój
5,31
7,02
Razem
20,20
25,24

Warianty projektu (12)

PROMOCJA
Projekt domu Jaskółka XL 5 - murowany
Jaskółka XL 5 - murowany
Dodano!
Dodano!
60,92 m²
3
2
0

3 350 zł

3 450 zł

Tooltip

Cena regularna

3 350 zł najniższa cena
Tooltip

Najniższa cena z 30 dni
przed obniżką

PROMOCJA
Projekt domu Jaskółka XL 4
Jaskółka XL 4
Dodano!
Dodano!
61,90 m²
4
2
0

3 350 zł

3 450 zł

Tooltip

Cena regularna

3 350 zł najniższa cena
Tooltip

Najniższa cena z 30 dni
przed obniżką

PROMOCJA
Projekt domu Jaskółka
Jaskółka
Dodano!
Dodano!
38,15 m²
1
1
0

2 500 zł

2 600 zł

Tooltip

Cena regularna

2 500 zł najniższa cena
Tooltip

Najniższa cena z 30 dni
przed obniżką

PROMOCJA
Projekt domu Jaskółka XL 4 - murowany
Jaskółka XL 4 - murowany
Dodano!
Dodano!
60,37 m²
4
2
0

3 350 zł

3 450 zł

Tooltip

Cena regularna

3 350 zł najniższa cena
Tooltip

Najniższa cena z 30 dni
przed obniżką

PROMOCJA
Projekt domu Jaskółka 5 - murowany
Jaskółka 5 - murowany
Dodano!
Dodano!
45 m²
3
2
0

2 500 zł

2 600 zł

Tooltip

Cena regularna

2 500 zł najniższa cena
Tooltip

Najniższa cena z 30 dni
przed obniżką

PROMOCJA
Projekt domu Jaskółka 4
Jaskółka 4
Dodano!
Dodano!
46,53 m²
3
3
0

2 500 zł

2 600 zł

Tooltip

Cena regularna

2 500 zł najniższa cena
Tooltip

Najniższa cena z 30 dni
przed obniżką

PROMOCJA
Projekt domu Jaskółka 5
Jaskółka 5
Dodano!
Dodano!
45,64 m²
3
2
0

2 500 zł

2 600 zł

Tooltip

Cena regularna

2 500 zł najniższa cena
Tooltip

Najniższa cena z 30 dni
przed obniżką

PROMOCJA
Projekt domu Jaskółka 3
Jaskółka 3
Dodano!
Dodano!
45,57 m²
3
1
0

2 500 zł

2 600 zł

Tooltip

Cena regularna

2 500 zł najniższa cena
Tooltip

Najniższa cena z 30 dni
przed obniżką

PROMOCJA
Projekt domu Jaskółka XL 3
Jaskółka XL 3
Dodano!
Dodano!
59,59 m²
3
2
0

3 350 zł

3 450 zł

Tooltip

Cena regularna

3 350 zł najniższa cena
Tooltip

Najniższa cena z 30 dni
przed obniżką

PROMOCJA
Projekt domu Jaskółka XL 2
Jaskółka XL 2
Dodano!
Dodano!
61,49 m²
3
2
0

3 350 zł

3 450 zł

Tooltip

Cena regularna

3 350 zł najniższa cena
Tooltip

Najniższa cena z 30 dni
przed obniżką

PROMOCJA
Projekt domu Jaskółka XL
Jaskółka XL
Dodano!
Dodano!
62,19 m²
2
2
0

3 150 zł

3 250 zł

Tooltip

Cena regularna

3 150 zł najniższa cena
Tooltip

Najniższa cena z 30 dni
przed obniżką

PROMOCJA
Projekt domu Jaskółka 2
Jaskółka 2
Dodano!
Dodano!
49,70 m²
2
2
0

2 500 zł

2 600 zł

Tooltip

Cena regularna

2 500 zł najniższa cena
Tooltip

Najniższa cena z 30 dni
przed obniżką

Podobne projekty (8)

NIŻSZA CENA 🔥
Zdjęcie 1 projektu Sosenka WAH1021
Sosenka
Dodano!
Dodano!
53,43 m²
2
1
0

4 392 zł

5 490 zł

Tooltip

Cena regularna

4 392 zł najniższa cena
Tooltip

Najniższa cena z 30 dni
przed obniżką

NIŻSZA CENA 🔥
Zdjęcie 1 projektu L-302 plus murowany SLU1031
L-302 plus murowany
Dodano!
Dodano!
47,29 m²
3
2
0

2 700 zł

3 000 zł

Tooltip

Cena regularna

2 700 zł najniższa cena
Tooltip

Najniższa cena z 30 dni
przed obniżką

NIŻSZA CENA 🔥
Zdjęcie 1 projektu Sosenka wariant E WAH1451
Sosenka wariant E
Dodano!
Dodano!
53,67 m²
2
1
0

4 392 zł

5 490 zł

Tooltip

Cena regularna

4 392 zł najniższa cena
Tooltip

Najniższa cena z 30 dni
przed obniżką

NIŻSZA CENA 🔥
Zdjęcie 1 projektu Sosenka wariant G WAH1452
Sosenka wariant G
Dodano!
Dodano!
45,87 m²
2
1
0

4 392 zł

5 490 zł

Tooltip

Cena regularna

4 392 zł najniższa cena
Tooltip

Najniższa cena z 30 dni
przed obniżką

NIŻSZA CENA 🔥
Zdjęcie 1 projektu Bari C dom mieszkalny, całoroczny SLN2633
40,36 m²
1
1
0

2 599 zł

2 899 zł

Tooltip

Cena regularna

2 599 zł najniższa cena
Tooltip

Najniższa cena z 30 dni
przed obniżką

NIŻSZA CENA 🔥
Zdjęcie 1 projektu L-56 Dom kresowa murowany BBD1076
L-56 Dom kresowa murowany
Dodano!
Dodano!
46,60 m²
2
2
0

3 499 zł

3 699 zł

Tooltip

Cena regularna

3 499 zł najniższa cena
Tooltip

Najniższa cena z 30 dni
przed obniżką

Zdjęcie 1 projektu Ka152 war.1 PKT1250
Ka152 war.1
Dodano!
Dodano!
41,41 m²
1
1
0

3 449 zł

Metody i koszt budowy

Ten dom możesz budować metodą gospodarczą, systemem zleconym lub skorzystać z naszej oferty Projekt z Budową. Przy porównaniu weź pod uwagę nie tylko koszt, ale też różny zakres prac i standard wykonania.

Metoda gospodarcza

Najtańsza metoda - większość prac
budowlanych wykonuje inwestor

Stan surowy zamknięty (SSZ)

114 000 zł netto

Szacunkowy koszt materiałów na IV kwartał 2025
  • Prace ziemne i fundamenty

    16 000 zł
  • Konstrukcja, strop oraz dach

    81 000 zł
  • Stolarka okienna i drzwiowa

    17 000 zł
  • Instalacje

    nie obejmuje
  • Prace wykończeniowe

    nie obejmuje
  • Możesz budować etapami, pamiętając jednak o zmianie kosztów w czasie
  • Możesz rozpocząć budowę z częścią niezbędnych środków
  • Sam ustalasz harmonogram, koordynujesz budowę i zapewniasz materiały
Czy da się obniżyć koszty budowy?
Zobacz nasz film jak obniżyć koszt budowy

Projekt z Budową

Najszybsza i najwygodniejsza metoda -
całą budowę domu realizuje jedna firma

Stan deweloperski
Gwarancja stałego kosztu budowy

Gwarancja stałego
kosztu budowy

  • Prace ziemne i fundamenty
  • Konstrukcja, strop oraz dach
  • Stolarka okienna i drzwiowa
  • Instalacje  
    Tooltip

    Obejmuje wykonanie instalacji:

    • wodno-kanalizacyjnej
    • centralnego ogrzewania
    • gazowej
    • elektrycznej
  • Prace wykończeniowe  
    Tooltip

    Prace wykończeniowe obejmują:

    • sufity i ściany wewnętrzne
    • tynki i okładziny ścian wewnętrznych
    • wylewki i posadzkę
    • ocieplenie ścian zewnętrznych i elewację

Budowa
nawet w
6mies.

  • Kompleksowa umowa i znany z góry koszt budowy
  • Logistyka, organizacja budowy i zakupy po stronie firmy budowlanej
  • Formalności i dokumentacje po stronie firmy budowlanej
  • Różne technologie budowy dopasowane do projektu i budżetu
Szczegóły i dostępne technologie

Dane techniczne projektu

Powierzchnie i wymiary Powierzchnie i wymiary

Powierzchnia użytkowa
Tooltip
Suma powierzchni wszystkich pomieszczeń mieszkalnych, pomniejszona o pow. garażu, kotłowni, strychu, piwnicy. Jest liczona w 100% dla pomieszczeń o wysokości powyżej 2,2 m, w 50% dla pomieszczeń o wys. 2,2-1,4 m i niewliczana dla niższych niż 1,4 m.

45,70 m²

Powierzchnia zabudowy
Tooltip
Powierzchnia zajmowana przez część na- oraz nadziemną budynku liczona, jako rzut pionowy budynku na działkę.

41,28 m²

Powierzchnia całkowita
Tooltip
Całkowita powierzchnia wszystkich kondygnacji budynku łącznie z elementami nośnymi, takimi jak ściany zewnętrzne (z ociepleniem), słupy, tarasy, itp.

109,70 m²

Powierzchnia netto
Tooltip
Powierzchna wszystkich pomieszczeń w budynku mierzona na wysokości podłogi.

48,12 m²

Kubatura netto
Tooltip
Zazwyczaj jest to suma kubatur (objętości) pomieszczeń budynku, bez strychu, liczonych po zewnętrznym obrysie murów (z ociepleniem).

150,30 m³

Kubatura brutto
Tooltip
Zazwyczaj jest to suma kubatur (objętości) wszystkich pomieszczeń budynku, liczonych po zewnętrznym obrysie murów (z ociepleniem).

225,90 m³

Powierzchnia dachu

64,90 m²

Kąt nachylenia dachu
Tooltip
Nachylenie połaci dachu głównego podawane w stopniach. Uwaga! W niektórych projektach występuje więcej niż jedno nachylenie dachu.

40°

Wysokość budynku
Tooltip
Wysokość liczona od części budynku położonej najniżej przy powierzchni terenu do najwyższego punktu dachu (kalenicy) z wyłączeniem kominów.

6,82 m

Szerokość elewacji

7,38 m

Długość elewacji

5,38 m

Min. szerokość działki
Tooltip
Najmniejsza możliwa szerokość działki niezbędna do wybudowania wybranego domu. Składa się z szerokości elewacji domu powiększonej z obu stron o 3 m dla ściany bez otworów drzwiowych/okiennych lub 4 m, dla ściany z otworami.

15,38 m

Min. długość działki
Tooltip
Najmniejsza możliwa długość działki niezbędna do wybudowania wybranego domu. Składa się z długości elewacji domu powiększonej z obu stron o 3 m dla ściany bez otworów drzwiowych/okiennych lub 4 m, dla ściany z otworami.

13,38 m

Energooszczędność Energooszczędność

Oze Czym jest OZE (Odnawialne Źródło Energii)?
Ogrzewanie główne

Elektryczne - szczegóły

Interesuje Cię inne źródło ogrzewania? Wyślij zapytanie lub zadzwoń do doradcy

Warunki techniczne

Projekt zgody z WT 2021

Technologia i konstrukcja Technologia i konstrukcja

Konstrukcja

Murowana

PROJEKT Z BUDOWĄ Istnieje możliwość zaadaptowania tego projektu do technologii prefabrykowanej/modułowej i budowy nawet w 6 miesięcy ze stałym kosztem budowy

Dowiedz się więcej »
Opis szczegółowy

Posadowienie budynku: ława fundamentowa; Ściany zewnętrzne: pustak 24 cm+styropian 20cm; Ściany wewnętrzne: pustak 12 cm; Strop nad parterem: żelbetowy; Konstrukcja dachu: Krewniana krokwiowa; Pokrycie dachu: blacha; Elewacja: tynk; deska;

Strop

Żelbetowy

Reklama
Okna i drzwi tarasowe

Nowoczesne okna PVC i aluminiowe WIŚNIOWSKI – doskonała izolacja, elegancki design i niezrównana trwałość.

Wiśniowski
Sprawdź parametry!
Okna dachowe

Oferujemy bezpłatne konsultacje w zakresie wszystkich rozwiązań VELUX. Wyceny, porady dotyczące doboru okien i rolet zewnętrznych - sprawdź!

Velux
Sprawdź szczegóły
Płytki ceramiczne i gresy

Od małych formatów po wielkoformatowe gresy. Marmur, beton, drewno, kamień, lastryko czy cegiełki zamówisz wygodnie online z szybką dostawą.

Ceramzet
Sprawdź ofertę
Elewacja

Kup przez internet wszystkie materiały potrzebne do wykonania elewacji: styropian, płyty PIR, XPS, kleje, tynki. Najlepsze marki w super cenach z dostawą pod dom.

Hurtownia styropianu
Sprawdź ofertę!
Drzwi

Ciepłe drzwi WIŚNIOWSKI z kontrolą dostępu. Szeroka gama wzorów i kolorów.

Wiśniowski
Wybierz najlepsze
Bramy garażowe

Automatyczne bramy garażowe segmentowe i uchylne WIŚNIOWSKI na wymiar i z systemem smart home w standardzie.

Wiśniowski
Sprawdź ofertę!
Armatura i ceramika łazienkowa

Topowi producenci. Baterie łazienkowe, zestawy natynkowe i podtynkowe, umywalki, wanny, miski WC oraz kabiny zamówisz kompleksowo online.

Ceramzet II
Dowiedz się więcej
Rekuperacja

Alnor - kompletny system rekuperacji. Dobierz idealne rozwiązanie dla Twojego domu!

Alnor
Dobierz rekuperator
Dach

Producent stalowych pokryć dachowych i systemów elewacyjnych. Precyzja wykonania, trwałość na lata i szybki montaż doceniany przez dekarzy. Postaw na solidny dach Budmat.

Budmat
Sprawdź ofertę
Ogrodzenie

Nowoczesne stalowe ogrodzenia Budmat - estetyka, bezpieczeństwo i trwałość na lata. Systemowe rozwiązania na wymiar, dopasowane do każdego domu.

Budmat
Sprawdź ofertę

Gotowe domy modułowe (118)

Zobacz wszystkie
Stan deweloperski nawet w 6 miesięcy Gwarancja stałej ceny
Zdjęcie 1 projektu Dom szkieletowy Mezzanine Smart 35 HHT1009
Pow. użytkowa
45 m²
Pokoje
1
242 750 zł 5 405 zł/m²
Zdjęcie 1 projektu Dom prefabrykowany DH55 HDH1002
Pow. użytkowa
47,30 m²
Pokoje
0
429 084 zł 9 072 zł/m²
Zdjęcie 1 projektu Dom szkieletowy Family Smart HHT1004
Pow. użytkowa
48,91 m²
Pokoje
3
269 400 zł 5 508 zł/m²
Zdjęcie 1 projektu Dom mobilny SunStone HLL1002
Gotowy dom mobilny SunStone
Dodano!
Dodano!
Pow. użytkowa
49,21 m²
Pokoje
2
335 500 zł 6 818 zł/m²
Zdjęcie 1 projektu Dom mobilny StarPoint HLL1001
Pow. użytkowa
41,69 m²
Pokoje
1
365 750 zł 8 792 zł/m²
Zdjęcie 1 projektu Dom mobilny MoonWave HLL1000
Gotowy dom mobilny MoonWave
Dodano!
Dodano!
Pow. użytkowa
41,15 m²
Pokoje
2
305 750 zł 7 430 zł/m²
Zdjęcie 1 projektu Dom prefabrykowany DH47-1 HDH1001
Pow. użytkowa
51,20 m²
Pokoje
2
408 672 zł 7 982 zł/m²
Zdjęcie 1 projektu Dom prefabrykowany DH44 HDH1000
Pow. użytkowa
39,12 m²
Pokoje
0
378 108 zł 9 665 zł/m²

Opis projektu domu
Jaskółka 3 - murowany

Projekt domu z poddaszem Jaskółka 3 - murowany z dachem dwuspadowym i tarasem.
Czytaj więcej

Polecani producenci

Kompletne systemy rekuperacji

tło producenta

Alnor

Dowiedz się więcej

Prefabrykowane konstrukcje dachowe

tło producenta

WIĄZAR POLSKA

Zobacz więcej

Sprawdź nową generację okien GREENVIEW

tło producenta

FAKRO

Sprawdź nową generację okien GREENVIEW

Styropian, tynki, farby, kleje

tło producenta

Termo Organika

Poznaj super jakość

Okna, drzwi, osłony przeciwsłoneczne

tło producenta

Aluprof

Sprawdź ofertę
Zobacz więcej

Społeczność projektu domu
Jaskółka 3 - murowany w budowie

Dołącz do społeczności osób, które budują ten dom lub są zainteresowane jego budową.

  • Oglądaj zdjęcia z budowy
  • Zadawaj pytania
  • Wymieniaj się doświadczeniami

Opinie o projekcie domu Jaskółka 3 - murowany

Ocena

Ten projekt nie ma jeszcze opinii, bądź pierwszy!

Dodaj opinię

ASYSTENT WYBORU PROJEKTU

Szukasz idealnego projektu? Znajdziemy go dla Ciebie!

Doradca na podstawie Twoich wskazówek przygotuje spersonalizowaną listę projektów

Graficzne opracowanie rzutów poglądowych widocznych na karcie projektu zostało wykonane przez Extradom.pl. Prezentowane przez Extradom.pl wizualizacje wykonane zostały przez autora projektu i należy poczytywać je jedynie za przykład i propozycję wykończenia, wizję architektoniczną autora projektu. Ostateczne wykończenie budynku może nastąpić na wiele sposobów. Szczegółowe rozwiązania zastosowane w oferowanej dokumentacji - w tym również ilość, lokalizacje i wygląd okien, drzwi, kominów - mogą w niewielkim stopniu różnić się od prezentowanej wizualizacji budynku.

Extradom.pl Spółka z ograniczoną odpowiedzialnością z siedzibą przy ul. Jaworskiej 13, 53-612 Wrocław, wpisana do rejestru przedsiębiorców Krajowego Rejestru Sądowego przez Sąd Rejonowy dla Wrocławia-Fabrycznej we Wrocławiu, VI Wydział Gospodarczy Krajowego Rejestru Sądowego do pod numerem KRS 0000648746, numer NIP 895-17-18-333, o kapitale zakładowym 708 150,00 zł uprzejmie informuje, iż poprzez serwis Extradom.pl umożliwia m.in. zapoznanie się przez konsumentów z ofertą handlową Partnerów Extradom.pl, którzy stosują metody budowy domów przy wykorzystaniu różnego rodzaju technologie prefabrykacji bądź modułowe (tzw. „Gotowe domy”).

Extradom.pl nie prowadzi jednakże sprzedaży ani nie oferuje usług polegających na doradztwie finansowym, prawnym ani podatkowym w zakresie inwestycji realizowanych w technologiach tzw. „Gotowych domów”. Informacje prezentowane w serwisie Extradom.pl dotyczące Partnerów Extradom.pl oferujących realizację inwestycji w technologiach „Gotowych domów” lub podobnych mają charakter informacyjny i reklamowy.

Prezentowane w serwisie Extradom.pl informacje dotyczące stosowanych przez Partnerów metod budowy domów w technologii prefabrykacji bądź modułowej pochodzą od Partnerów Extradom.pl.

Extradom.pl sp. z o.o. jedynie umożliwia nawiązanie kontaktu przez Użytkownika z Partnerem Extradom.pl stosującym tego rodzaju technologie budowy domów i nie jest stroną umowy o roboty budowlane zawieranej przez Użytkownika Extradom.pl z Partnerem Extradom.pl.

REKLAMA
Zamknij