Projekty nawet 500 zł taniej ❄️

Koniec oferty za:

0dni

00godz.

00min.

00sek.

Sprawdź

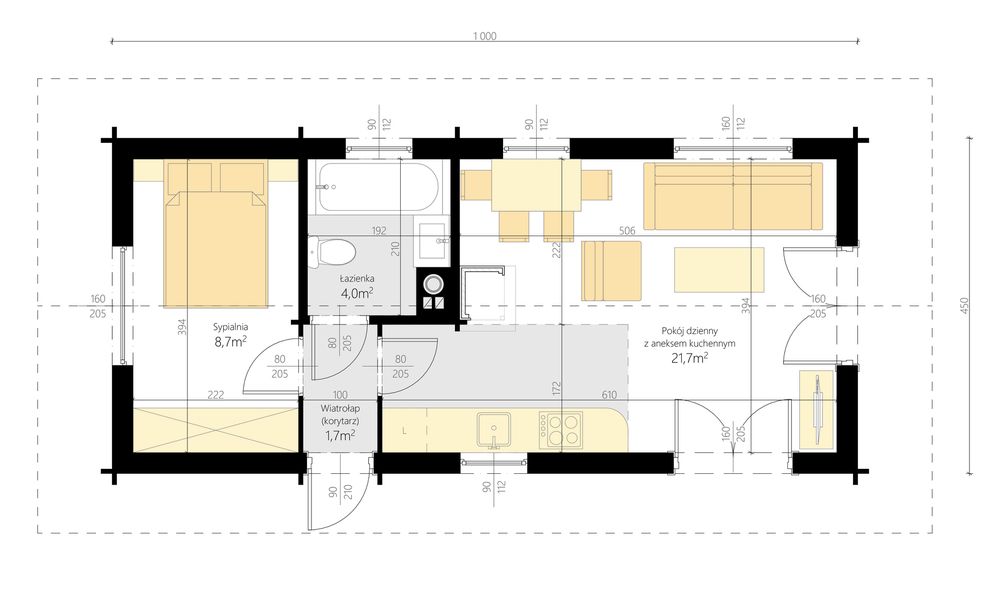
Projekt domu Iluzja III KDX1024

Dodano!
Dodano!

Warstwy

Rzut parteru

Powierzchnia (m²)
Tooltip
Powierzchnia pomieszczenia
to ta, z której faktycznie możesz korzystać – skosy i niskie części poddasza są liczone częściowo lub wcale.
  1. 100% dla wysokości powyżej 2,2 m,
  2. 50% dla wysokości 1,4–2,2 m,
  3. nie liczymy poniżej 1,4 m.

Powierzchnia podłogi
Liczymy po obrysie pomieszczenia, bez względu na jego wysokość/skosy. Jeśli nie ma skosów to powierzchnia podłogi i pomieszczenia jest taka sama.
pomieszczenia i podłogi
podłogi
1. Korytarz
1,70
2. Pokój
8,70
3. Łazienka
4
4. Pokój dzienny + kuchnia + jadalnia
21,70
Razem
36,10
36,10

    Usytuowanie na działce

    Czy ten projekt pasuje na
    Twoją działkę?

    Chętnie to sprawdzimy!

    Dowiedz się:

    • czy zmieści się na niej wybrany przez Ciebie dom
    • jakie parametry musi spełniać dom według miejscowego planu zagospodarowania lub warunków zabudowy (np. kąt nachylenia i typ dachu, liczba kondygnacji itp.
    • jakie inne projekty pasują na Twoją działkę – znajdziemy je dla Ciebie!

Pow. użytkowa

36,10 m²

Pokoje

1

Łazienki i WC

1

Garaż

0

Min. szer. i dł. działki

18 x 12,50 m

Kąt dachu

30°

Konstrukcja

Szkieletowa
więcej

Iluzja III - KDX1024

ikona 36,10 m²
Powierzchnia użytkowa
ikona1
Pokoje (bez salonu)
ikona 1
Łazienki (z toaletami)
ikona 0
Liczba stanowisk garażowych
(z wiatą garażową)
ikona
Konstrukcja: Szkieletowa

Promocja od 18.12.2025, koniec za:

0 dni

00 00 00

4 700 zł

Tooltip

Cena regularna obowiązywała od 15.12.2025 do 17.12.2025

Cena regularna: 5 200 zł
Najniższa cena z 30 dni przed obniżką: 4 500 zł
Gwarancja najniższej ceny Gwarancja najniższej ceny Tooltip

Wydłużony czas realizacji Tooltip

Projekt jest koncepcją

GRATIS 10% rabatu do LEROY MERLIN

GRATIS Przydatne Extradodatki

GRATIS Poradnik Dach Solarny

100 dni na wymianę, 30 dni na zwrot

Darmowa dostawa - kurier, paczkomaty

Bezpłatne pozwolenie na zmiany

Dokumentacja zgodna z WT2021

Pokaż więcej (5)
Konsultant Masz pytania?
Zadzwoń
71 715 20 60

pon.-pt. 8-21, sob. 9-17

Szukasz wykonawcy godnego zaufania?
Zleć budowę w Extradom.pl!

  • Z góry znasz koszt budowy domu
  • Dom odbierasz zgodnie z ustalonym harmonogramem - nawet w 6 miesięcy
  • Zabezpiecza Cię jedna kompleksowa umowa z jednym wykonawcą
  • Otrzymujesz nawet 30-letnią gwarancję na konstrukcję domu
  • Oszczędzasz swój czas dzięki pewnej i kompletnej usłudze
Cena brutto stanu
deweloperskiego od
Tooltip
Cena brutto stanu deweloperskiego od 4 719 do 6 939 zł/m2.
Cena jest uzależniona m.in. od lokalizacji, wybranej technologii, kubatury budynku, skomplikowania projektu i ewentualnych zmian, na które zdecyduje się inwestor.
Cena za m2 powierzchni netto, czyli wszystkich pomieszczeń mierzonych na wysokości podłogi.
4 719 zł/m2
Dowiedz się więcej
Konsultant Masz pytania?
Zadzwoń
71 715 20 70

pon.-pt. 8-19

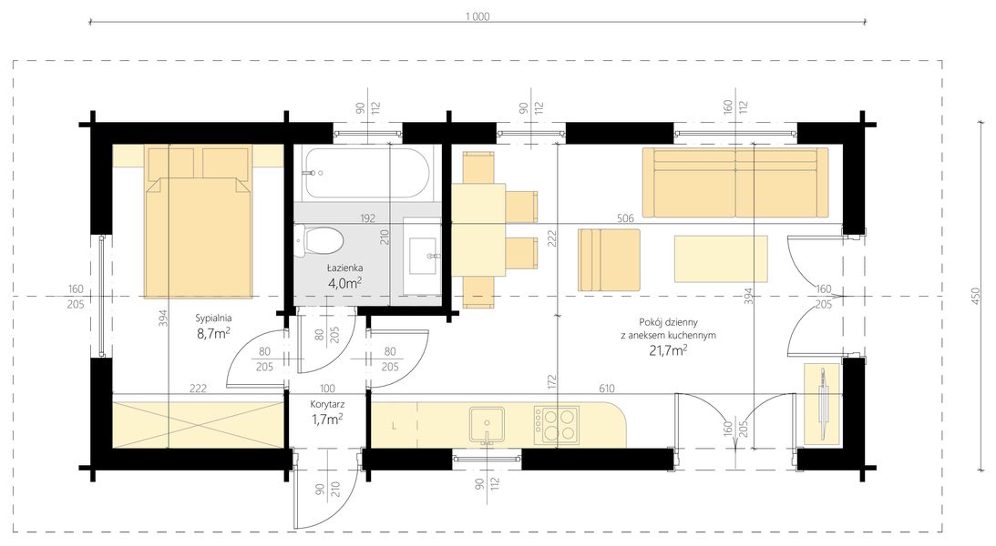
Parter - 36,10 m²

Parter projektu Iluzja III

Zapytaj, co możesz zmienić

Powierzchnia (m²)
Tooltip
Powierzchnia pomieszczenia
to ta, z której faktycznie możesz korzystać – skosy i niskie części poddasza są liczone częściowo lub wcale.
  1. 100% dla wysokości powyżej 2,2 m,
  2. 50% dla wysokości 1,4–2,2 m,
  3. nie liczymy poniżej 1,4 m.

Powierzchnia podłogi
Liczymy po obrysie pomieszczenia, bez względu na jego wysokość/skosy. Jeśli nie ma skosów to powierzchnia podłogi i pomieszczenia jest taka sama.
pomieszczenia i podłogi
podłogi
1. Korytarz
1,70
2. Pokój
8,70
3. Łazienka
4
4. Pokój dzienny + kuchnia + jadalnia
21,70
Razem
36,10
36,10

Podobne projekty (25)

Zobacz wszystkie
NIŻSZA CENA❄️
Zdjęcie 1 projektu L-239 SLU1050
L-239
Dodano!
Dodano!
50,82 m²
2
1
0

2 600 zł

2 900 zł

Tooltip

Cena regularna

2 500 zł najniższa cena
Tooltip

Najniższa cena z 30 dni
przed obniżką

NIŻSZA CENA❄️
Zdjęcie 1 projektu L-314 SLU1033
L-314
Dodano!
Dodano!
43,20 m²
1
1
0

2 400 zł

2 700 zł

Tooltip

Cena regularna

2 300 zł najniższa cena
Tooltip

Najniższa cena z 30 dni
przed obniżką

NIŻSZA CENA❄️
Nowość
Zdjęcie 1 projektu Solina GDE1078
Solina
Dodano!
Dodano!
38,01 m²
1
1
0

3 850 zł

3 950 zł

Tooltip

Cena regularna

3 750 zł najniższa cena
Tooltip

Najniższa cena z 30 dni
przed obniżką

NIŻSZA CENA❄️
Zdjęcie 1 projektu Jaskółka GDE1034
Jaskółka
Dodano!
Dodano!
38,15 m²
1
1
0

2 450 zł

2 550 zł

Tooltip

Cena regularna

2 350 zł najniższa cena
Tooltip

Najniższa cena z 30 dni
przed obniżką

NIŻSZA CENA❄️
Zdjęcie 1 projektu Awinion C dom mieszkalny, całoroczny szkielet drewniany SLN2657
46,59 m²
2
1
1

2 599 zł

2 899 zł

Tooltip

Cena regularna

2 399 zł najniższa cena
Tooltip

Najniższa cena z 30 dni
przed obniżką

NIŻSZA CENA❄️
Zdjęcie 1 projektu D103AD wersja drewniana WAI1487
D103AD wersja drewniana
Dodano!
Dodano!
44,86 m²
2
1
0

2 999 zł

3 349 zł

Tooltip

Cena regularna

2 629 zł najniższa cena
Tooltip

Najniższa cena z 30 dni
przed obniżką

NIŻSZA CENA❄️
Zdjęcie 1 projektu D326 - wersja drewniana WAI1464
D326 - wersja drewniana
Dodano!
Dodano!
52,48 m²
3
1
0

3 149 zł

3 499 zł

Tooltip

Cena regularna

2 749 zł najniższa cena
Tooltip

Najniższa cena z 30 dni
przed obniżką

NIŻSZA CENA❄️
Zdjęcie 1 projektu Toronto C szk. drew., dom mieszkalny, cał. ogrzewanie kominek z płaszczem wodnym SLN2684
48,64 m²
2
1
0

2 499 zł

2 799 zł

Tooltip

Cena regularna

2 299 zł najniższa cena
Tooltip

Najniższa cena z 30 dni
przed obniżką

Projekt z budową

Budowa Projekt z budową

Zbuduj ten dom z naszym Partnerem - wygodnie, szybko i bezpiecznie

Projekt z budową to:

  • gwarancja niezmiennego kosztu budowy

  • krótki czas realizacji - dom gotowy nawet w 6 miesięcy

  • wieloletnia gwarancja na konstrukcję domu

Elewacje

Frontowa
Tylna
Lewa
Prawa
Autor: Drewnex

Dane techniczne projektu

Powierzchnie i wymiary Powierzchnie i wymiary

Powierzchnia użytkowa
Tooltip
Suma powierzchni wszystkich pomieszczeń mieszkalnych, pomniejszona o pow. garażu, kotłowni, strychu, piwnicy. Jest liczona w 100% dla pomieszczeń o wysokości powyżej 2,2 m, w 50% dla pomieszczeń o wys. 2,2-1,4 m i niewliczana dla niższych niż 1,4 m.

36,10 m²

Powierzchnia zabudowy
Tooltip
Powierzchnia zajmowana przez część na- oraz nadziemną budynku liczona, jako rzut pionowy budynku na działkę.

45 m²

Kubatura netto
Tooltip
Zazwyczaj jest to suma kubatur (objętości) pomieszczeń budynku, bez strychu, liczonych po zewnętrznym obrysie murów (z ociepleniem).

128,06 m³

Kubatura brutto
Tooltip
Zazwyczaj jest to suma kubatur (objętości) wszystkich pomieszczeń budynku, liczonych po zewnętrznym obrysie murów (z ociepleniem).

182,20 m³

Powierzchnia dachu

80,97 m²

Kąt nachylenia dachu
Tooltip
Nachylenie połaci dachu głównego podawane w stopniach. Uwaga! W niektórych projektach występuje więcej niż jedno nachylenie dachu.

30°

Wysokość budynku
Tooltip
Wysokość liczona od części budynku położonej najniżej przy powierzchni terenu do najwyższego punktu dachu (kalenicy) z wyłączeniem kominów.

4,64 m

Szerokość elewacji

10 m

Długość elewacji

4,50 m

Min. szerokość działki
Tooltip
Najmniejsza możliwa szerokość działki niezbędna do wybudowania wybranego domu. Składa się z szerokości elewacji domu powiększonej z obu stron o 3 m dla ściany bez otworów drzwiowych/okiennych lub 4 m, dla ściany z otworami.

18 m

Min. długość działki
Tooltip
Najmniejsza możliwa długość działki niezbędna do wybudowania wybranego domu. Składa się z długości elewacji domu powiększonej z obu stron o 3 m dla ściany bez otworów drzwiowych/okiennych lub 4 m, dla ściany z otworami.

12,50 m

Energooszczędność Energooszczędność

Oze Czym jest OZE (Odnawialne Źródło Energii)?
Ogrzewanie główne

Elektryczne lub kominek (OZE) - szczegóły

Interesuje Cię inne źródło ogrzewania? Wyślij zapytanie lub zadzwoń do doradcy

Wentylacja

Grawitacyjna - szczegóły

Warunki techniczne

Projekt zgody z WT 2021

Technologia i konstrukcja Technologia i konstrukcja

Konstrukcja

Szkieletowa

PROJEKT Z BUDOWĄ Istnieje możliwość zaadaptowania tego projektu do technologii prefabrykowanej/modułowej i budowy nawet w 6 miesięcy ze stałym kosztem budowy

Dowiedz się więcej »
Opis szczegółowy

Posadowienie budynku: ława fundamentowa; Ściany zewnętrzne: z balika drewnianego (6cm) + szkieletowa z wełną izolacyjną 20cm; Ściany wewnętrzne: parter: balik drewniany (6cm) lub kosztrukcja szkieletowa z płytami g-k (6cm); piętro: konstrukcja szkieletowa 6cm; Strop nad parterem: drewniany; Konstrukcja dachu: drewniana, krokwiowo-jętkowa; Pokrycie dachu: blachodachówka; Elewacja: balik drewniany (6cm); Istnieje możliwość zamówienia projektu w wersji z kominkiem, poinformuj naszego Doradcę podczas składania zamówienia.

Strop

Drewniany

Reklama
Okna i drzwi tarasowe

Nowoczesne okna PVC i aluminiowe WIŚNIOWSKI – doskonała izolacja, elegancki design i niezrównana trwałość.

Wiśniowski
Sprawdź parametry!
Okna dachowe

Oferujemy bezpłatne konsultacje w zakresie wszystkich rozwiązań VELUX. Wyceny, porady dotyczące doboru okien i rolet zewnętrznych - sprawdź!

Velux
Sprawdź szczegóły
Płytki ceramiczne i gresy

Od małych formatów po wielkoformatowe gresy. Marmur, beton, drewno, kamień, lastryko czy cegiełki zamówisz wygodnie online z szybką dostawą.

Ceramzet
Sprawdź ofertę
Drzwi

Ciepłe drzwi WIŚNIOWSKI z kontrolą dostępu. Szeroka gama wzorów i kolorów.

Wiśniowski
Wybierz najlepsze
Bramy garażowe

Automatyczne bramy garażowe segmentowe i uchylne WIŚNIOWSKI na wymiar i z systemem smart home w standardzie.

Wiśniowski
Sprawdź ofertę!
Armatura i ceramika łazienkowa

Topowi producenci. Baterie łazienkowe, zestawy natynkowe i podtynkowe, umywalki, wanny, miski WC oraz kabiny zamówisz kompleksowo online.

Ceramzet II
Dowiedz się więcej
Rekuperacja

Alnor - kompletny system rekuperacji. Dobierz idealne rozwiązanie dla Twojego domu!

Alnor
Dobierz rekuperator
Gruntowe pompy ciepła

Przeprowadzimy kompletną instalację najbardziej oszczędnego źródła ciepła w Twoim nowym domu - gruntowej pompy ciepła. Od dokumentacji, pozwoleń, po odwierty i instalację.

Geothermal Solutions
Dowiedz się więcej

Gotowe domy modułowe (114)

Zobacz wszystkie
Stan deweloperski nawet w 6 miesięcy Gwarancja stałej ceny
Zdjęcie 1 projektu Dom mobilny Model Mazuria Economy HTH1000
Pow. użytkowa
39 m²
Pokoje
2
240 000 zł 6 154 zł/m²
Zdjęcie 1 projektu Dom mobilny Model Mazuria Standard HTH1002
Pow. użytkowa
39 m²
Pokoje
2
290 000 zł 7 436 zł/m²
Zdjęcie 1 projektu Dom mobilny Model Mazuria Premium HTH1003
Pow. użytkowa
39 m²
Pokoje
2
320 000 zł 8 205 zł/m²
Zdjęcie 1 projektu Dom prefabrykowany DH44 HDH1000
Pow. użytkowa
39,12 m²
Pokoje
0
302 400 zł 5 719 zł/m²
Zdjęcie 1 projektu Dom mobilny MoonWave HLL1000
Gotowy dom mobilny MoonWave
Dodano!
Dodano!
Pow. użytkowa
41,15 m²
Pokoje
2
305 750 zł 7 430 zł/m²
Zdjęcie 1 projektu Dom mobilny StarPoint HLL1001
Pow. użytkowa
41,69 m²
Pokoje
1
365 750 zł 8 792 zł/m²
Zdjęcie 1 projektu Dom szkieletowy Mezzanine Smart 35 HHT1009
Pow. użytkowa
45 m²
Pokoje
1
242 750 zł 5 405 zł/m²
Zdjęcie 1 projektu Dom prefabrykowany DH55 HDH1002
Pow. użytkowa
48,20 m²
Pokoje
0
332 640 zł 6 510 zł/m²

Opis projektu domu
Iluzja III

Projekt parterowego domu drewnianego o powierzchni zabudowy 45 m² to doskonała propozycja dla osób ceniących kompaktowe i funkcjonalne wnętrza. Przemyślany układ pomieszczeń zapewnia wygodę i komfort codziennego użytkowania. Z wiatrołapu prowadzi wejście do łazienki z prysznicem oraz do przytulnej sypialni z miejscem na duże łóżko i bezpośrednim wyjściem na taras. Główna przestrzeń to otwarta strefa dzienna, łącząca aneks kuchenny z salonem, w którym znajduje się kominek tworzący przytulną atmosferę. Duże przeszklenia otwierają wnętrze na otoczenie i prowadzą na przestronny taras – idealne miejsce do relaksu na świeżym powietrzu. Taki dom sprawdzi się zarówno jako całoroczna, jak i rekreacyjna przestrzeń do wypoczynku.
Czytaj więcej

Informacje dodatkowe

Istnieje możliwość zamówienia projektu w wersji z kominkiem, poinformuj naszego Doradcę podczas składania zamówienia.

Czytaj więcej

Polecani producenci

Prefabrykowane konstrukcje dachowe

tło producenta

WIĄZAR POLSKA

Zobacz więcej

Sprawdź nową generację okien GREENVIEW

tło producenta

FAKRO

Sprawdź nową generację okien GREENVIEW

Styropian, tynki, farby, kleje

tło producenta

Termo Organika

Poznaj super jakość

Okna, drzwi, osłony przeciwsłoneczne

tło producenta

Aluprof

Sprawdź ofertę

Kompletne systemy rekuperacji

tło producenta

Alnor

Dowiedz się więcej

Sprawdź nowy system DACHRYNNA

tło producenta

Galeco

Sprawdź ofertę
Zobacz więcej

Społeczność projektu domu
Iluzja III w budowie

Dołącz do społeczności osób, które budują ten dom lub są zainteresowane jego budową.

  • Oglądaj zdjęcia z budowy
  • Zadawaj pytania
  • Wymieniaj się doświadczeniami

Opinie o projekcie domu Iluzja III

Ocena

Ten projekt nie ma jeszcze opinii, bądź pierwszy!

Dodaj opinię

ASYSTENT WYBORU PROJEKTU

Szukasz idealnego projektu? Znajdziemy go dla Ciebie!

Doradca na podstawie Twoich wskazówek przygotuje spersonalizowaną listę projektów

Graficzne opracowanie rzutów poglądowych widocznych na karcie projektu zostało wykonane przez Extradom.pl. Prezentowane przez Extradom.pl wizualizacje wykonane zostały przez autora projektu i należy poczytywać je jedynie za przykład i propozycję wykończenia, wizję architektoniczną autora projektu. Ostateczne wykończenie budynku może nastąpić na wiele sposobów. Szczegółowe rozwiązania zastosowane w oferowanej dokumentacji - w tym również ilość, lokalizacje i wygląd okien, drzwi, kominów - mogą w niewielkim stopniu różnić się od prezentowanej wizualizacji budynku.

Extradom.pl Spółka z ograniczoną odpowiedzialnością z siedzibą przy ul. Jaworskiej 13, 53-612 Wrocław, wpisana do rejestru przedsiębiorców Krajowego Rejestru Sądowego przez Sąd Rejonowy dla Wrocławia-Fabrycznej we Wrocławiu, VI Wydział Gospodarczy Krajowego Rejestru Sądowego do pod numerem KRS 0000648746, numer NIP 895-17-18-333, o kapitale zakładowym 708 150,00 zł uprzejmie informuje, iż poprzez serwis Extradom.pl umożliwia m.in. zapoznanie się przez konsumentów z ofertą handlową Partnerów Extradom.pl, którzy stosują metody budowy domów przy wykorzystaniu różnego rodzaju technologie prefabrykacji bądź modułowe (tzw. „Gotowe domy”).

Extradom.pl nie prowadzi jednakże sprzedaży ani nie oferuje usług polegających na doradztwie finansowym, prawnym ani podatkowym w zakresie inwestycji realizowanych w technologiach tzw. „Gotowych domów”. Informacje prezentowane w serwisie Extradom.pl dotyczące Partnerów Extradom.pl oferujących realizację inwestycji w technologiach „Gotowych domów” lub podobnych mają charakter informacyjny i reklamowy.

Prezentowane w serwisie Extradom.pl informacje dotyczące stosowanych przez Partnerów metod budowy domów w technologii prefabrykacji bądź modułowej pochodzą od Partnerów Extradom.pl.

Extradom.pl sp. z o.o. jedynie umożliwia nawiązanie kontaktu przez Użytkownika z Partnerem Extradom.pl stosującym tego rodzaju technologie budowy domów i nie jest stroną umowy o roboty budowlane zawieranej przez Użytkownika Extradom.pl z Partnerem Extradom.pl.

REKLAMA
Zamknij