Projekty nawet 500 zł taniej ❄️

Koniec oferty za:

00godz.

00min.

00sek.

Sprawdź

Projekt domu House 04 WRG1015

Dodano!
Dodano!

Warstwy

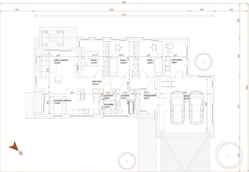
Rzut parteru

Powierzchnia (m²)
Tooltip
Powierzchnia pomieszczenia
to ta, z której faktycznie możesz korzystać – skosy i niskie części poddasza są liczone częściowo lub wcale.
  1. 100% dla wysokości powyżej 2,2 m,
  2. 50% dla wysokości 1,4–2,2 m,
  3. nie liczymy poniżej 1,4 m.

Powierzchnia podłogi
Liczymy po obrysie pomieszczenia, bez względu na jego wysokość/skosy. Jeśli nie ma skosów to powierzchnia podłogi i pomieszczenia jest taka sama.
pomieszczenia i podłogi
podłogi
1. Wiatrołap
6,03
2. Łazienka
6,12
3. Wc
2,20
4. Kuchnia + jadalnia
17,63
5. Spiżarnia
2,81
6. Pokój dzienny
20,82
7. Korytarz
10,81
8. Pokój
13,18
9. Pokój
12,64
10. Pokój
12,62
11. Kotłownia
9,85
12. Garaż dwustanowiskowy
36,24
Razem
150,95
150,95

    Usytuowanie na działce

    Czy ten projekt pasuje na
    Twoją działkę?

    Chętnie to sprawdzimy!

    Dowiedz się:

    • czy zmieści się na niej wybrany przez Ciebie dom
    • jakie parametry musi spełniać dom według miejscowego planu zagospodarowania lub warunków zabudowy (np. kąt nachylenia i typ dachu, liczba kondygnacji itp.
    • jakie inne projekty pasują na Twoją działkę – znajdziemy je dla Ciebie!

Pow. użytkowa

150,95 m²

Pokoje

3

Łazienki i WC

2

Garaż

2

Min. szer. i dł. działki

29,27 x 19,90 m

Kąt dachu

Konstrukcja

Murowana
więcej

House 04 - WRG1015

ikona 150,95 m²
Powierzchnia użytkowa
ikona3
Pokoje (bez salonu)
ikona 2
Łazienki (z toaletami)
ikona 2
Liczba stanowisk garażowych
(z wiatą garażową)
ikona
Konstrukcja: Murowana

Projekt został
wycofany z oferty

W razie pytań prosimy o kontakt
z Centrum Obsługi Klienta
Konsultant Masz pytania?
Zadzwoń
71 715 20 02

pon.-pt. 8-21, sob. 9-17

Szukasz wykonawcy godnego zaufania?
Zleć budowę w Extradom.pl!

  • Z góry znasz koszt budowy domu
  • Dom odbierasz zgodnie z ustalonym harmonogramem - nawet w 6 miesięcy
  • Zabezpiecza Cię jedna kompleksowa umowa z jednym wykonawcą
  • Otrzymujesz nawet 30-letnią gwarancję na konstrukcję domu
  • Oszczędzasz swój czas dzięki pewnej i kompletnej usłudze
Cena brutto stanu
deweloperskiego od
Tooltip
Cena brutto stanu deweloperskiego od 4 529 do 5 679 zł/m2.
Cena jest uzależniona m.in. od lokalizacji, wybranej technologii, kubatury budynku, skomplikowania projektu i ewentualnych zmian, na które zdecyduje się inwestor.
Cena za m2 powierzchni netto, czyli wszystkich pomieszczeń mierzonych na wysokości podłogi.
4 529 zł/m2
Dowiedz się więcej
Konsultant Masz pytania?
Zadzwoń
71 715 20 70

pon.-pt. 8-19

Parter - 150,95 m²

Parter projektu House 04

Zapytaj, co możesz zmienić

Powierzchnia (m²)
Tooltip
Powierzchnia pomieszczenia
to ta, z której faktycznie możesz korzystać – skosy i niskie części poddasza są liczone częściowo lub wcale.
  1. 100% dla wysokości powyżej 2,2 m,
  2. 50% dla wysokości 1,4–2,2 m,
  3. nie liczymy poniżej 1,4 m.

Powierzchnia podłogi
Liczymy po obrysie pomieszczenia, bez względu na jego wysokość/skosy. Jeśli nie ma skosów to powierzchnia podłogi i pomieszczenia jest taka sama.
pomieszczenia i podłogi
podłogi
1. Wiatrołap
6,03
2. Łazienka
6,12
3. Wc
2,20
4. Kuchnia + jadalnia
17,63
5. Spiżarnia
2,81
6. Pokój dzienny
20,82
7. Korytarz
10,81
8. Pokój
13,18
9. Pokój
12,64
10. Pokój
12,62
11. Kotłownia
9,85
12. Garaż dwustanowiskowy
36,24
Razem
150,95
150,95

Podobne projekty (6778)

Zobacz wszystkie
NIŻSZA CENA❄️
Zdjęcie 1 projektu Przejrzysty D27 WWB1025
Przejrzysty D27
Dodano!
Dodano!
129,99 m²
3
2
2

4 599 zł

4 899 zł

Tooltip

Cena regularna

4 399 zł najniższa cena
Tooltip

Najniższa cena z 30 dni
przed obniżką

NIŻSZA CENA❄️
Zdjęcie 1 projektu Domidea 2 FN WAC1022
Domidea 2 FN
Dodano!
Dodano!
120,91 m²
3
3
1

5 358 zł

5 658 zł

Tooltip

Cena regularna

5 358 zł najniższa cena
Tooltip

Najniższa cena z 30 dni
przed obniżką

NIŻSZA CENA❄️
Zdjęcie 1 projektu HomeKoncept 58 KRX1074
HomeKoncept 58
Dodano!
Dodano!
141,68 m²
3
2
2

6 990 zł

7 490 zł

Tooltip

Cena regularna

6 366 zł najniższa cena
Tooltip

Najniższa cena z 30 dni
przed obniżką

Zdjęcie 1 projektu NewHouse 702 w1 KRZ1083
NewHouse 702 w1
Dodano!
Dodano!
149,34 m²
3
3
2

5 990 zł

NIŻSZA CENA❄️
Zdjęcie 1 projektu Eksponowany D69 WWB1078
Eksponowany D69
Dodano!
Dodano!
133,92 m²
4
2
2

4 799 zł

5 049 zł

Tooltip

Cena regularna

4 649 zł najniższa cena
Tooltip

Najniższa cena z 30 dni
przed obniżką

Zdjęcie 1 projektu E-205a WAX1205
E-205a
Dodano!
Dodano!
125,60 m²
3
2
2

5 790 zł

NIŻSZA CENA❄️
Zdjęcie 1 projektu Otwarty D42 WWB1040
Otwarty D42
Dodano!
Dodano!
121,67 m²
3
2
2

4 599 zł

4 899 zł

Tooltip

Cena regularna

4 399 zł najniższa cena
Tooltip

Najniższa cena z 30 dni
przed obniżką

NIŻSZA CENA❄️
Zdjęcie 1 projektu Śmiały D58 WWB1062
Śmiały D58
Dodano!
Dodano!
152,95 m²
4
2
2

4 599 zł

4 849 zł

Tooltip

Cena regularna

4 449 zł najniższa cena
Tooltip

Najniższa cena z 30 dni
przed obniżką

Projekt z budową

Budowa Projekt z budową

Zbuduj ten dom z naszym Partnerem - wygodnie, szybko i bezpiecznie

Projekt z budową to:

  • gwarancja niezmiennego kosztu budowy

  • krótki czas realizacji - dom gotowy nawet w 6 miesięcy

  • wieloletnia gwarancja na konstrukcję domu

Elewacje

Frontowa
Tylna
Lewa
Prawa

Usytuowanie na działce

Czy ten projekt pasuje na
Twoją działkę?

Chętnie to sprawdzimy!

Czy ten projekt pasuje na
Twoją działkę?

Chętnie to sprawdzimy!

Dowiedz się:

  • czy zmieści się na niej wybrany przez Ciebie dom
  • jakie parametry musi spełniać dom według miejscowego planu zagospodarowania lub warunków zabudowy (np. kąt nachylenia i typ dachu, liczba kondygnacji itp.
  • jakie inne projekty pasują na Twoją działkę – znajdziemy je dla Ciebie!
Autor: Majchrzak Pracownia Projektowa sp. z o. o.

Dane techniczne projektu

Powierzchnie i wymiary Powierzchnie i wymiary

Powierzchnia użytkowa
Tooltip
Suma powierzchni wszystkich pomieszczeń mieszkalnych, pomniejszona o pow. garażu, kotłowni, strychu, piwnicy. Jest liczona w 100% dla pomieszczeń o wysokości powyżej 2,2 m, w 50% dla pomieszczeń o wys. 2,2-1,4 m i niewliczana dla niższych niż 1,4 m.

150,95 m²

Powierzchnia zabudowy
Tooltip
Powierzchnia zajmowana przez część na- oraz nadziemną budynku liczona, jako rzut pionowy budynku na działkę.

206,10 m²

Kąt nachylenia dachu
Tooltip
Nachylenie połaci dachu głównego podawane w stopniach. Uwaga! W niektórych projektach występuje więcej niż jedno nachylenie dachu.

Wysokość budynku
Tooltip
Wysokość liczona od części budynku położonej najniżej przy powierzchni terenu do najwyższego punktu dachu (kalenicy) z wyłączeniem kominów.

4,12 m

Szerokość elewacji

18,32 m

Długość elewacji

11,90 m

Min. szerokość działki
Tooltip
Najmniejsza możliwa szerokość działki niezbędna do wybudowania wybranego domu. Składa się z szerokości elewacji domu powiększonej z obu stron o 3 m dla ściany bez otworów drzwiowych/okiennych lub 4 m, dla ściany z otworami.

29,27 m

Min. długość działki
Tooltip
Najmniejsza możliwa długość działki niezbędna do wybudowania wybranego domu. Składa się z długości elewacji domu powiększonej z obu stron o 3 m dla ściany bez otworów drzwiowych/okiennych lub 4 m, dla ściany z otworami.

19,90 m

Energooszczędność Energooszczędność

Oze Czym jest OZE (Odnawialne Źródło Energii)?
Ogrzewanie główne

Pompa ciepła (OZE) - szczegóły

Interesuje Cię inne źródło ogrzewania? Wyślij zapytanie lub zadzwoń do doradcy

Wentylacja

Mechaniczna nawiewno-wywiewna z rekuperacją - szczegóły

Instalacje w projekcie

Ogrzewanie podłogowe (na całej powierzchni domu lub w jej części, szczegóły u doradcy)

Warunki techniczne

Projekt zgody z WT 2021

Technologia i konstrukcja Technologia i konstrukcja

Konstrukcja

Murowana

PROJEKT Z BUDOWĄ Istnieje możliwość zaadaptowania tego projektu do technologii prefabrykowanej/modułowej i budowy nawet w 6 miesięcy ze stałym kosztem budowy

Dowiedz się więcej »
Opis szczegółowy

Ściany: dwuwarstwowe: bloczek silikatowy + izolacja termiczna 20cm. Stropy: monolityczna płyta żelbetowa dach – konstrukcja stropodach pełny. Dach – pokrycie: membrana dachowa. Elewacje: płytka elewacyjna.

Strop

Żelbetowy

Reklama
Okna i drzwi tarasowe

Nowoczesne okna PVC i aluminiowe WIŚNIOWSKI – doskonała izolacja, elegancki design i niezrównana trwałość.

Wiśniowski
Sprawdź parametry!
Okna dachowe

Oferujemy bezpłatne konsultacje w zakresie wszystkich rozwiązań VELUX. Wyceny, porady dotyczące doboru okien i rolet zewnętrznych - sprawdź!

Velux
Sprawdź szczegóły
Płytki ceramiczne i gresy

Od małych formatów po wielkoformatowe gresy. Marmur, beton, drewno, kamień, lastryko czy cegiełki zamówisz wygodnie online z szybką dostawą.

Ceramzet
Sprawdź ofertę
Drzwi

Ciepłe drzwi WIŚNIOWSKI z kontrolą dostępu. Szeroka gama wzorów i kolorów.

Wiśniowski
Wybierz najlepsze
Bramy garażowe

Automatyczne bramy garażowe segmentowe i uchylne WIŚNIOWSKI na wymiar i z systemem smart home w standardzie.

Wiśniowski
Sprawdź ofertę!
Armatura i ceramika łazienkowa

Topowi producenci. Baterie łazienkowe, zestawy natynkowe i podtynkowe, umywalki, wanny, miski WC oraz kabiny zamówisz kompleksowo online.

Ceramzet II
Dowiedz się więcej
Rekuperacja

Alnor - kompletny system rekuperacji. Dobierz idealne rozwiązanie dla Twojego domu!

Alnor
Dobierz rekuperator
Gruntowe pompy ciepła

Przeprowadzimy kompletną instalację najbardziej oszczędnego źródła ciepła w Twoim nowym domu - gruntowej pompy ciepła. Od dokumentacji, pozwoleń, po odwierty i instalację.

Geothermal Solutions
Dowiedz się więcej

Gotowe domy modułowe (114)

Zobacz wszystkie
Stan deweloperski nawet w 6 miesięcy Gwarancja stałej ceny
Zdjęcie 1 projektu Dom prefabrykowany Stodoła 150B HFX1025
Pow. użytkowa
151,30 m²
Pokoje
4
589 000 zł 3 893 zł/m²
Zdjęcie 1 projektu Dom prefabrykowany Stodoła 150A HFX1024
Pow. użytkowa
152,20 m²
Pokoje
5
589 000 zł 3 870 zł/m²
Zdjęcie 1 projektu Dom prefabrykowany Stodoła 150C HFX1026
Pow. użytkowa
152,90 m²
Pokoje
5
589 000 zł 3 852 zł/m²
Zdjęcie 1 projektu Dom szkieletowy Open Sky 195 HHT1029
Pow. użytkowa
145,04 m²
Pokoje
4
940 300 zł 6 483 zł/m²
Zdjęcie 1 projektu Dom prefabrykowany P.2 HPK1001
Pow. użytkowa
159,18 m²
Pokoje
5
832 200 zł 5 228 zł/m²
Zdjęcie 1 projektu Dom prefabrykowany P.4 bez okapu HPK1003
Pow. użytkowa
162,18 m²
Pokoje
4
701 000 zł 4 322 zł/m²
Zdjęcie 1 projektu Dom prefabrykowany P.4 z okapem HPK1014
Pow. użytkowa
162,18 m²
Pokoje
5
710 500 zł 4 381 zł/m²
Zdjęcie 1 projektu Dom prefabrykowany P.1 z okapem HPK1000
Pow. użytkowa
139,44 m²
Pokoje
3
721 000 zł 5 171 zł/m²

Opis projektu domu
House 04

Projekt domu House 04 jest doskonałym rozwiązaniem dla osób posiadających średniej szerokości działkę. Dom cechuje się prostą bryłą, więc będzie się dobrze prezentował niezależnie od otoczenia. Dom został zaprojektowany z myślą o zabudowie wolnostojącej. W projekcie zaproponowano garaż dwustanowiskowy wysunięty do przodu. Jest to również doskonała propozycja dla osób szukających domu z dachem płaskim, który nadaje bryle nowoczesny wygląd. Projekt House 04 to dom parterowy, co jest szczególnie istotne w przypadku domowników w starszym wieku oraz osób niepełnosprawnych czy z małymi dziećmi. Zwolenników przestronnych przestrzeni z pewnością ucieszy przewidziana w projekcie część dzienna. Przewidziana w projekcie otwarta kuchnia to świetne rozwiązanie dla osób z małymi dziećmi - ich zabawę w salonie rodzice mogą nadzorować nawet podczas przygotowywania posiłków. W kuchni jest wyznaczone miejsce na wyspę, która jest idealnym miejscem dla amatorów gotowania, którzy cenią sobie funkcjonalność pomieszczenia i nowoczesne rozwiązania. Uwzględniona w projekcie spiżarka znacznie ułatwi zachowanie porządku. Usytuowany w salonie kominek nie tylko świetnie się prezentuje, ale także zapewni przyjemne ciepło w chłodniejsze dni. W domu przewidziano zarówno komfortową łazienkę, jak i osobną toaletę, co jest szczególnie przydatne przy większej liczbie domowników. Trzy komfortowe pokoje zaspokoją potrzeby 2-4 osobowej rodziny. Przestrzeń można wykorzystać także jako pokój dla gości lub gabinet. Wewnętrzny układ przewiduje miejsce na garderobę, dzięki której utrzymanie porządku w pokojach stanie się o wiele łatwiejsze. Wspólne grillowanie i rodzinne posiłki umili uwzględniony w projekcie taras. Zalecana przez architekta technologia murowana zapewnia trwałość i solidność konstrukcji. W jego bryle widoczne są rozwiązania nawiązujące do stylu nowoczesnego i pod względem wizualnym spełni nawet wysoko postawione oczekiwania.
Czytaj więcej

Informacje dodatkowe

Dokumentacja jest zabezpieczona specjalną plombą, której usunięcie uniemożliwi zwrot. W skład dokumentacji wchodzi niezaplombowany egzemplarz projektu technicznego architektury, służący do weryfikacji zgodności otrzymanego projektu z zamówieniem. Zapraszamy do zamówienia przed zakupem rysunków szczegółowych projektu oraz analizy posiadanej działki w celu upewnienia się, że wybrany projekt domu idealnie na nią pasuje.

Czytaj więcej

Polecani producenci

Prefabrykowane konstrukcje dachowe

tło producenta

WIĄZAR POLSKA

Zobacz więcej

Sprawdź nową generację okien GREENVIEW

tło producenta

FAKRO

Sprawdź nową generację okien GREENVIEW

Styropian, tynki, farby, kleje

tło producenta

Termo Organika

Poznaj super jakość

Okna, drzwi, osłony przeciwsłoneczne

tło producenta

Aluprof

Sprawdź ofertę

Kompletne systemy rekuperacji

tło producenta

Alnor

Dowiedz się więcej

Sprawdź nowy system DACHRYNNA

tło producenta

Galeco

Sprawdź ofertę
Zobacz więcej

Społeczność projektu domu
House 04 w budowie

Dołącz do społeczności osób, które budują ten dom lub są zainteresowane jego budową.

  • Oglądaj zdjęcia z budowy
  • Zadawaj pytania
  • Wymieniaj się doświadczeniami

Opinie o projekcie domu House 04

Ocena

Ten projekt nie ma jeszcze opinii, bądź pierwszy!

Dodaj opinię

Wywiady mieszkańców domu House 04

Zdjęcie profilowe użytkownika cientak cientak

Projekt domu parterowego House 04 WRG1015 bardzo przypadł nam do gustu, ponieważ podobają nam się takie minimalistyczne formy. Szukaliśmy też czegoś, co pasowałoby na naszą dość wąską i długą działkę. Ten budynek pasował na nią idealnie. Oprócz wyglądu zewnętrznego odpowiadał nam również układ pomieszczeń. Przed zakupem projektu pojechaliśmy do osoby, która zdecydowała się na jego realizację. Po obejrzeniu wybudowanego domu zdecydowaliśmy, że to będzie właśnie TEN. Nasz dom od początku do końca zbudowałem razem z moim bratem i ojcem. Mamy doświadczenie i wykształcenie w temacie budowlanki, więc nie było to dla nas żadnym problemem. Projekt był czytelny i też nie mieliśmy trudności z jego odczytem. Przyznam, że cała realizacja nie trwała krótko. Dużo czasu zajęło załatwianie pozwoleń i zamawianie materiałów. Poza tym szło to dość wolno, ponieważ wszystko robiliśmy bardzo, bardzo dokładnie. Staraliśmy się, aby każdy element domu był zrealizowany idealnie. Dwuwarstwowe ściany zostały postawione z betonu komórkowego, aby nie pękały, daliśmy przy nich dodatkowe zbrojenia. Przy kładzeniu dachu nie zastosowaliśmy się do wytycznych w projekcie, który przewidywał stropodach o odwróconym układzie warstw. Postawiliśmy na metodę tradycyjną : izolację styropianem i hydroizolację. Zamiast wentylacji grawitacyjnej zastosowaliśmy mechaniczną. Postanowiliśmy także zmienić wygląd elewacji na inny niż ten na wizualizacji. Budynek zyskał dzięki temu całkiem nowy charakter. We wszystkich pomieszczeniach mamy zainstalowany system ogrzewania podłogowego. Dom ogrzewamy gazem ziemnym, ponieważ mieliśmy możliwość jego podłączenia. Do projektu domu House 04 WRG1015 wprowadziłem kilka niewielkich poprawek. Bardzo dobrym pomysłem było pomniejszenie spiżarni na rzecz powiększenia toalety. Dzięki temu mogliśmy wstawić tam duży prysznic i zyskaliśmy drugą funkcjonalną łazienkę. Zrezygnowaliśmy z kominka, gdyż według mnie zajmowałby tylko miejsce w salonie, który i tak jest nieduży. Z racji tego, iż moja rodzina liczy 3 osoby nie potrzeba nam było tylu sypialni. Pokój sąsiadujący z kotłownią zagospodarowałem na garderobę Mamy świetnie rozmieszczony dom na działce. Salon i jadalnia znajdują się na południu, a kuchnia leży po stronie wschodniej. W pomieszczeniach jest naprawdę bardzo jasno. Okna, które zastosowałem są dobrej jakości, więc zyski energetyczne są bardzo duże. Można to zauważyć po tym jak nagrzewa się dom w słoneczny dzień w czasie zimy. Zyskujemy wtedy te kilka stopni. W upalne letnie dni może być to jednak nieco kłopotliwe. Póki co nie mam zamontowanych rolet wewnętrznych, ale kiedyś będę musiał o nich pomyśleć. Ciekawą sprawą jest to, że w związku z realizacją tego domu, otworzyliśmy nową dziedzinę biznesu w firmie remontowo-budowlanej mojego brata. Gdy wybieraliśmy okna nawiązaliśmy współpracę z firmą produkująca stolarkę otworową. Od tego czasu dodatkowo zajmujemy się handlem oknami. Osobom, które tak jak my zdecydują się na zbudowanie domu systemem gospodarczym, polecałbym znaleźć osobę, która zajmie się załatwianiem formalności, kupnem materiałów czy szukaniem dostawców. Ja musiałem robić to sam, a do tego murowałem, tynkowałem itp., więc realizacja zajęła nam nieco dłużej. Wybór projektu domu House 04 WRG1015 był naprawdę dobrą decyzją. Udało nam się wszystko to, co chcieliśmy uzyskać. Ten dom odpowiada nam zarówno wewnątrz, jak i z zewnątrz. Śmiało mogę polecić go innym. Pozdrawiam.

ASYSTENT WYBORU PROJEKTU

Szukasz idealnego projektu? Znajdziemy go dla Ciebie!

Doradca na podstawie Twoich wskazówek przygotuje spersonalizowaną listę projektów

Graficzne opracowanie rzutów poglądowych widocznych na karcie projektu zostało wykonane przez Extradom.pl. Prezentowane przez Extradom.pl wizualizacje wykonane zostały przez autora projektu i należy poczytywać je jedynie za przykład i propozycję wykończenia, wizję architektoniczną autora projektu. Ostateczne wykończenie budynku może nastąpić na wiele sposobów. Szczegółowe rozwiązania zastosowane w oferowanej dokumentacji - w tym również ilość, lokalizacje i wygląd okien, drzwi, kominów - mogą w niewielkim stopniu różnić się od prezentowanej wizualizacji budynku.

Extradom.pl Spółka z ograniczoną odpowiedzialnością z siedzibą przy ul. Jaworskiej 13, 53-612 Wrocław, wpisana do rejestru przedsiębiorców Krajowego Rejestru Sądowego przez Sąd Rejonowy dla Wrocławia-Fabrycznej we Wrocławiu, VI Wydział Gospodarczy Krajowego Rejestru Sądowego do pod numerem KRS 0000648746, numer NIP 895-17-18-333, o kapitale zakładowym 708 150,00 zł uprzejmie informuje, iż poprzez serwis Extradom.pl umożliwia m.in. zapoznanie się przez konsumentów z ofertą handlową Partnerów Extradom.pl, którzy stosują metody budowy domów przy wykorzystaniu różnego rodzaju technologie prefabrykacji bądź modułowe (tzw. „Gotowe domy”).

Extradom.pl nie prowadzi jednakże sprzedaży ani nie oferuje usług polegających na doradztwie finansowym, prawnym ani podatkowym w zakresie inwestycji realizowanych w technologiach tzw. „Gotowych domów”. Informacje prezentowane w serwisie Extradom.pl dotyczące Partnerów Extradom.pl oferujących realizację inwestycji w technologiach „Gotowych domów” lub podobnych mają charakter informacyjny i reklamowy.

Prezentowane w serwisie Extradom.pl informacje dotyczące stosowanych przez Partnerów metod budowy domów w technologii prefabrykacji bądź modułowej pochodzą od Partnerów Extradom.pl.

Extradom.pl sp. z o.o. jedynie umożliwia nawiązanie kontaktu przez Użytkownika z Partnerem Extradom.pl stosującym tego rodzaju technologie budowy domów i nie jest stroną umowy o roboty budowlane zawieranej przez Użytkownika Extradom.pl z Partnerem Extradom.pl.

REKLAMA
Zamknij