👉 Rozgrzewające rabaty! 🔥

Projekt domu Eris G2 C WRC2276

Dodano!
Dodano!

Warstwy

Rzut parteru

Powierzchnia (m²)
Tooltip
Powierzchnia pomieszczenia
to ta, z której faktycznie możesz korzystać – skosy i niskie części poddasza są liczone częściowo lub wcale.
  1. 100% dla wysokości powyżej 2,2 m,
  2. 50% dla wysokości 1,4–2,2 m,
  3. nie liczymy poniżej 1,4 m.

Powierzchnia podłogi (wartość w nawiasie)
Liczymy po całym obrysie pomieszczenia, bez względu na jego wysokość.
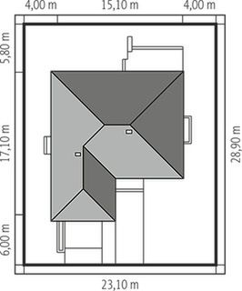
157,49
1. Wiatrołap
4,42
2. Hol
3,98
3. Kuchnia
10,66
4. Spiżarnia
2,07
5. Pokój dzienny, jadalnia
33,17
6. Łazienka
3,02
7. Korytarz
10,73
8. Sypialnia
15,36
9. Sypialnia
13,49
10. Sypialnia
10,55
11. Łazienka
6,91
12. Kotłownia
7,51
13. Garaż
35,62

    Usytuowanie na działce

    Czy ten projekt pasuje na
    Twoją działkę?

    Chętnie to sprawdzimy!

    Dowiedz się:

    • czy zmieści się na niej wybrany przez Ciebie dom
    • jakie parametry musi spełniać dom według miejscowego planu zagospodarowania lub warunków zabudowy (np. kąt nachylenia i typ dachu, liczba kondygnacji itp.
    • jakie inne projekty pasują na Twoją działkę – znajdziemy je dla Ciebie!

Pokoje

0

Łazienki i WC

2

Garaż

0
więcej

Eris G2 C - WRC2276

ikona0
Pokoje (bez salonu)
ikona 2
Łazienki (z toaletami)
ikona 0
Liczba stanowisk garażowych
(z wiatą garażową)

Projekt został
wycofany z oferty

W razie pytań prosimy o kontakt
z Centrum Obsługi Klienta
Konsultant Masz pytania?
Zadzwoń
71 715 20 60

pon.-pt. 8-21, sob. 9-17

Parter - 157,49 m²

Parter projektu Eris G2 C

Zapytaj, co możesz zmienić

Powierzchnia (m²)
Tooltip
Powierzchnia pomieszczenia
to ta, z której faktycznie możesz korzystać – skosy i niskie części poddasza są liczone częściowo lub wcale.
  1. 100% dla wysokości powyżej 2,2 m,
  2. 50% dla wysokości 1,4–2,2 m,
  3. nie liczymy poniżej 1,4 m.

Powierzchnia podłogi (wartość w nawiasie)
Liczymy po całym obrysie pomieszczenia, bez względu na jego wysokość.
(157,49)
157,49
1. Wiatrołap
4,42
2. Hol
3,98
3. Kuchnia
10,66
4. Spiżarnia
2,07
5. Pokój dzienny, jadalnia
33,17
6. Łazienka
3,02
7. Korytarz
10,73
8. Sypialnia
15,36
9. Sypialnia
13,49
10. Sypialnia
10,55
11. Łazienka
6,91
12. Kotłownia
7,51
13. Garaż
35,62

Warianty projektu (1)

PROMOCJA
Projekt domu Eris G2 (wersja B)
Eris G2 (wersja B)
Dodano!
Dodano!
114,36 m²
3
2
2

4 080 zł

5 100 zł

Tooltip

Cena regularna

4 080 zł najniższa cena
Tooltip

Najniższa cena z 30 dni
przed obniżką

Podobne projekty (9918)

Zobacz wszystkie
Nowość
Zdjęcie 1 projektu A-115 PZB1097
A-115
Dodano!
Dodano!
388,30 m²
5
5
3

13 800 zł

Zdjęcie 1 projektu HomeKoncept 122 G2 KRX1282
HomeKoncept 122 G2
Dodano!
Dodano!
107,62 m²
3
2
2

6 790 zł

Zdjęcie 1 projektu HomeKoncept 58 KRX1074
HomeKoncept 58
Dodano!
Dodano!
141,68 m²
3
2
2

7 490 zł

Zdjęcie 1 projektu NewHouse 702 w1 KRZ1083
NewHouse 702 w1
Dodano!
Dodano!
149,34 m²
3
3
2

5 990 zł

NIŻSZA CENA ✂️
Zdjęcie 1 projektu EX 2 soft WRC2720
EX 2 soft
Dodano!
Dodano!
124,39 m²
3
5
0

4 000 zł

5 000 zł

Tooltip

Cena regularna

4 000 zł najniższa cena
Tooltip

Najniższa cena z 30 dni
przed obniżką

Zdjęcie 1 projektu HomeKoncept 110 KRX1250
HomeKoncept 110
Dodano!
Dodano!
173,27 m²
4
3
2

8 490 zł

Zdjęcie 1 projektu Serengeti WRN1498
Serengeti
Dodano!
Dodano!
69,60 m²
2
1
0

3 495 zł

Zdjęcie 1 projektu E-205a WAX1205
E-205a
Dodano!
Dodano!
125,60 m²
3
2
2

5 790 zł

Elewacje

Frontowa
Tylna
Lewa
Prawa

Usytuowanie na działce

Czy ten projekt pasuje na
Twoją działkę?

Chętnie to sprawdzimy!

Czy ten projekt pasuje na
Twoją działkę?

Chętnie to sprawdzimy!

Dowiedz się:

  • czy zmieści się na niej wybrany przez Ciebie dom
  • jakie parametry musi spełniać dom według miejscowego planu zagospodarowania lub warunków zabudowy (np. kąt nachylenia i typ dachu, liczba kondygnacji itp.
  • jakie inne projekty pasują na Twoją działkę – znajdziemy je dla Ciebie!
Autor: Pracownia Projektowa ARCHIPELAG

Dane techniczne projektu

Powierzchnie i wymiary Powierzchnie i wymiary

Energooszczędność Energooszczędność

Oze Czym jest OZE (Odnawialne Źródło Energii)?
Warunki techniczne

Projekt zgody z WT 2021

Opis projektu domu
Eris G2 C

Dom parterowy, niepodpiwniczony, z garażem dwustanowiskowym, przeznaczony dla 3-4 osobowej rodziny. Strefę dzienną tworzy przestronna kuchnia ze spiżarnią, jadalnia połączona z pokojem dziennym oraz mała łazienka. Na parterze znajduje się również strefa nocna z trzema sypialniami i łazienką. W domu przewidziano miejsce na obszerne szafy oraz schowki. Duże pomieszczenie gospodarcze pełniące również rolę kotłowni,jest dostępne z domu, garażu oraz z zewnątrz budynku. Eris G2 (wersja C) to dom zaprojektowany z myślą o inwestorach, którzy cenią wygodę, przestrzeń i nowoczesne piękno. Na jednej kondygnacji udało się zaplanować dwie funkcjonalne strefy – aktywną dzienną oraz komfortową, wyciszoną, nocną. Dzięki elastycznemu układowi pomieszczeń, wnętrze z łatwością dopasuje się do potrzeb każdej rodziny. Dodatkową strefę wypoczynkową tworzy taras, który letnią porą przeobraża się w atrakcyjny salon na świeżym powietrzu. Istnieje możliwość: - podpiwniczenia budynku

Dostępne wersje:
– Eris G2 (wersja A) – z innym wykończeniem elewacji
– Eris G2 (wersja B) – z innym wykończeniem elewacji
– Odbicia lustrzane do wszystkich wersji
Czytaj więcej

Polecani producenci

Prefabrykowane konstrukcje dachowe

tło producenta

WIĄZAR POLSKA

Zobacz więcej

Sprawdź nową generację okien GREENVIEW

tło producenta

FAKRO

Sprawdź nową generację okien GREENVIEW

Styropian, tynki, farby, kleje

tło producenta

Termo Organika

Poznaj super jakość

Okna, drzwi, osłony przeciwsłoneczne

tło producenta

Aluprof

Sprawdź ofertę

Kompletne systemy rekuperacji

tło producenta

Alnor

Dowiedz się więcej

Sprawdź nowy system DACHRYNNA

tło producenta

Galeco

Sprawdź ofertę
Zobacz więcej

Społeczność projektu domu
Eris G2 C w budowie

Dołącz do społeczności osób, które budują ten dom lub są zainteresowane jego budową.

  • Oglądaj zdjęcia z budowy
  • Zadawaj pytania
  • Wymieniaj się doświadczeniami

Opinie o projekcie domu Eris G2 C

Ocena

Ten projekt nie ma jeszcze opinii, bądź pierwszy!

Dodaj opinię

ASYSTENT WYBORU PROJEKTU

Szukasz idealnego projektu? Znajdziemy go dla Ciebie!

Doradca na podstawie Twoich wskazówek przygotuje spersonalizowaną listę projektów

Graficzne opracowanie rzutów poglądowych widocznych na karcie projektu zostało wykonane przez Extradom.pl. Prezentowane przez Extradom.pl wizualizacje wykonane zostały przez autora projektu i należy poczytywać je jedynie za przykład i propozycję wykończenia, wizję architektoniczną autora projektu. Ostateczne wykończenie budynku może nastąpić na wiele sposobów. Szczegółowe rozwiązania zastosowane w oferowanej dokumentacji - w tym również ilość, lokalizacje i wygląd okien, drzwi, kominów - mogą w niewielkim stopniu różnić się od prezentowanej wizualizacji budynku.

REKLAMA
Zamknij