👉 Projekty w extracenach! ✂️

Koniec oferty za:

00godz.

00min.

00sek.

Sprawdź

Projekt domu Elegant WRN1187

Dodano!
Dodano!

Warstwy

Warstwy

Rzut parteru

Powierzchnia (m²)
Tooltip
Powierzchnia pomieszczenia
to ta, z której faktycznie możesz korzystać – skosy i niskie części poddasza są liczone częściowo lub wcale.
  1. 100% dla wysokości powyżej 2,2 m,
  2. 50% dla wysokości 1,4–2,2 m,
  3. nie liczymy poniżej 1,4 m.

Powierzchnia podłogi
Liczymy po obrysie pomieszczenia, bez względu na jego wysokość/skosy. Jeśli nie ma skosów to powierzchnia podłogi i pomieszczenia jest taka sama.
pomieszczenia i podłogi
podłogi
1. Wiatrołap
3,90
2. Pokój dzienny + kuchnia
30
3. Pokój
13
4. Hall
8,60
5. Spiżarnia
1,70
6. Łazienka
3,80
7. Pomieszczenie gospodarcze
6,20
8. Garaż jednostanowiskowy
19,30
Razem
86,50
86,50
Powierzchnia (m²)
Tooltip
Powierzchnia pomieszczenia
to ta, z której faktycznie możesz korzystać – skosy i niskie części poddasza są liczone częściowo lub wcale.
  1. 100% dla wysokości powyżej 2,2 m,
  2. 50% dla wysokości 1,4–2,2 m,
  3. nie liczymy poniżej 1,4 m.

Powierzchnia podłogi
Liczymy po obrysie pomieszczenia, bez względu na jego wysokość/skosy. Jeśli nie ma skosów to powierzchnia podłogi i pomieszczenia jest taka sama.
pomieszczenia
podłogi
9. Hall
4,80
4,80
10. Pokój
12,90
17,20
11. Pokój
8,60
11,90
12. Pokój
10,10
13,50
13. Garderoba
3,10
4,20
14. Łazienka
9,90
13,10
15. Strych
19,30
19,30
Razem
68,70
84

    Usytuowanie na działce

    Czy ten projekt pasuje na
    Twoją działkę?

    Chętnie to sprawdzimy!

    Dowiedz się:

    • czy zmieści się na niej wybrany przez Ciebie dom
    • jakie parametry musi spełniać dom według miejscowego planu zagospodarowania lub warunków zabudowy (np. kąt nachylenia i typ dachu, liczba kondygnacji itp.
    • jakie inne projekty pasują na Twoją działkę – znajdziemy je dla Ciebie!

Pow. użytkowa

116,60 m²

Pokoje

4

Łazienki i WC

2

Garaż

1

Min. szer. i dł. działki

20,8 x 16,70 m

Kąt dachu

40°

Szacunkowy koszt SSZ

294 000 zł
Szacunkowy koszt budowy do stanu surowego zamkniętego (SSZ) metodą gospodarczą - większość prac wykonuje inwestor.

Konstrukcja

Murowana
więcej

Elegant - WRN1187

ikona 116,60 m²
Powierzchnia użytkowa
ikona4
Pokoje (bez salonu)
ikona 2
Łazienki (z toaletami)
ikona 1
Liczba stanowisk garażowych
(z wiatą garażową)
ikona
Konstrukcja: Murowana

Cena projektu:

3 995 zł

Gwarancja najniższej ceny Gwarancja najniższej ceny Tooltip

Projekt jest dostępny Tooltip

GRATIS 10% rabatu do LEROY MERLIN

GRATIS 16% rabatu w SELSEY

GRATIS Przydatne Extradodatki

GRATIS Poradnik Dach Solarny

100 dni na wymianę, 30 dni na zwrot

Darmowa dostawa - kurier, paczkomaty

Bezpłatne pozwolenie na zmiany

Dokumentacja zgodna z WT2021

Pokaż więcej (6)
Konsultant Masz pytania?
Zadzwoń
71 715 20 60

pon.-pt. 8-21, sob. 9-17

Szukasz wykonawcy godnego zaufania?
Zleć budowę w Extradom.pl!

  • Z góry znasz koszt budowy domu
  • Dom odbierasz zgodnie z ustalonym harmonogramem - nawet w 6 miesięcy
  • Zabezpiecza Cię jedna kompleksowa umowa z jednym wykonawcą
  • Otrzymujesz nawet 30-letnią gwarancję na konstrukcję domu
  • Oszczędzasz swój czas dzięki pewnej i kompletnej usłudze
Cena brutto stanu
deweloperskiego od
Tooltip
Cena brutto stanu deweloperskiego od 4 529 do 5 829 zł/m2.
Cena jest uzależniona m.in. od lokalizacji, wybranej technologii, kubatury budynku, skomplikowania projektu i ewentualnych zmian, na które zdecyduje się inwestor.
Cena za m2 powierzchni netto, czyli wszystkich pomieszczeń mierzonych na wysokości podłogi.
4 529 zł/m2
Dowiedz się więcej
Konsultant Masz pytania?
Zadzwoń
71 715 20 70

pon.-pt. 8-19

Parter - 86,50 m²

Parter projektu Elegant

Zapytaj, co możesz zmienić

Powierzchnia (m²)
Tooltip
Powierzchnia pomieszczenia
to ta, z której faktycznie możesz korzystać – skosy i niskie części poddasza są liczone częściowo lub wcale.
  1. 100% dla wysokości powyżej 2,2 m,
  2. 50% dla wysokości 1,4–2,2 m,
  3. nie liczymy poniżej 1,4 m.

Powierzchnia podłogi
Liczymy po obrysie pomieszczenia, bez względu na jego wysokość/skosy. Jeśli nie ma skosów to powierzchnia podłogi i pomieszczenia jest taka sama.
pomieszczenia i podłogi
podłogi
1. Wiatrołap
3,90
2. Pokój dzienny + kuchnia
30
3. Pokój
13
4. Hall
8,60
5. Spiżarnia
1,70
6. Łazienka
3,80
7. Pomieszczenie gospodarcze
6,20
8. Garaż jednostanowiskowy
19,30
Razem
86,50
86,50

Natychmiast, otrzymasz PDF-y
z rzutami wszystkich kondygnacji

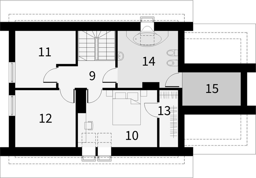
Poddasze - 68,70 m²

Poddasze projektu Elegant

Zapytaj, co możesz zmienić

Powierzchnia (m²)
Tooltip
Powierzchnia pomieszczenia
to ta, z której faktycznie możesz korzystać – skosy i niskie części poddasza są liczone częściowo lub wcale.
  1. 100% dla wysokości powyżej 2,2 m,
  2. 50% dla wysokości 1,4–2,2 m,
  3. nie liczymy poniżej 1,4 m.

Powierzchnia podłogi
Liczymy po obrysie pomieszczenia, bez względu na jego wysokość/skosy. Jeśli nie ma skosów to powierzchnia podłogi i pomieszczenia jest taka sama.
pomieszczenia
podłogi
9. Hall
4,80
4,80
10. Pokój
12,90
17,20
11. Pokój
8,60
11,90
12. Pokój
10,10
13,50
13. Garderoba
3,10
4,20
14. Łazienka
9,90
13,10
15. Strych
19,30
19,30
Razem
68,70
84

Natychmiast, otrzymasz PDF-y
z rzutami wszystkich kondygnacji

Zamów rysunki szczegółowe

Zapoznaj się ze szczegółowymi rysunkami rzutów kondygnacji w PDF dla tego projektu.

Warianty projektu (1)

Projekt domu Elegant 2G
Elegant 2G
Dodano!
Dodano!
116,60 m²
4
2
2

4 095 zł

Podobne projekty (845)

Zobacz wszystkie
EXTRACENA
Zdjęcie 1 projektu Domidea 58 G WAC1026
Domidea 58 G
Dodano!
Dodano!
104,48 m²
4
2
1

5 481 zł

5 781 zł

Tooltip

Cena regularna

5 235 zł najniższa cena
Tooltip

Najniższa cena z 30 dni
przed obniżką

EXTRACENA
Zdjęcie 1 projektu Dingo (1712) KRD2855
Dingo (1712)
Dodano!
Dodano!
106,40 m²
4
2
1

4 140 zł

4 490 zł

Tooltip

Cena regularna

4 140 zł najniższa cena
Tooltip

Najniższa cena z 30 dni
przed obniżką

EXTRACENA
Zdjęcie 1 projektu Jaskółka 1 z garażem WRL1050
Jaskółka 1 z garażem
Dodano!
Dodano!
119,70 m²
4
2
1

4 499 zł

4 999 zł

Tooltip

Cena regularna

4 299 zł najniższa cena
Tooltip

Najniższa cena z 30 dni
przed obniżką

EXTRACENA
Zdjęcie 1 projektu Jaskółka 2 z garażem WRL1052
Jaskółka 2 z garażem
Dodano!
Dodano!
119,60 m²
4
2
1

4 499 zł

4 999 zł

Tooltip

Cena regularna

4 299 zł najniższa cena
Tooltip

Najniższa cena z 30 dni
przed obniżką

EXTRACENA
Zdjęcie 1 projektu Jaskółka 4 z garażem WRL1056
Jaskółka 4 z garażem
Dodano!
Dodano!
121,70 m²
4
2
1

4 799 zł

5 299 zł

Tooltip

Cena regularna

4 499 zł najniższa cena
Tooltip

Najniższa cena z 30 dni
przed obniżką

EXTRACENA
Zdjęcie 1 projektu Zgrabny WAH1023
Zgrabny
Dodano!
Dodano!
112,10 m²
4
3
1

4 600 zł

5 750 zł

Tooltip

Cena regularna

4 360 zł najniższa cena
Tooltip

Najniższa cena z 30 dni
przed obniżką

EXTRACENA
Zdjęcie 1 projektu BW-03 wariant 9 JGC1206
BW-03 wariant 9
Dodano!
Dodano!
112,30 m²
4
2
1

3 770 zł

3 870 zł

Tooltip

Cena regularna

3 670 zł najniższa cena
Tooltip

Najniższa cena z 30 dni
przed obniżką

EXTRACENA
Zdjęcie 1 projektu Tamarillo 5 WOF1103
Tamarillo 5
Dodano!
Dodano!
115,96 m²
4
2
1

3 899 zł

4 099 zł

Tooltip

Cena regularna

3 799 zł najniższa cena
Tooltip

Najniższa cena z 30 dni
przed obniżką

Metody i koszt budowy

Ten dom możesz budować metodą gospodarczą, systemem zleconym lub skorzystać z naszej oferty Projekt z Budową. Przy porównaniu weź pod uwagę nie tylko koszt, ale też różny zakres prac i standard wykonania.

Metoda gospodarcza

Najtańsza metoda - większość prac
budowlanych wykonuje inwestor

Stan surowy zamknięty (SSZ)

294 000 zł netto

Szacunkowy koszt materiałów na IV kwartał 2025
  • Prace ziemne i fundamenty

    45 000 zł
  • Konstrukcja, strop oraz dach

    206 000 zł
  • Stolarka okienna i drzwiowa

    43 000 zł
  • Instalacje

    nie obejmuje
  • Prace wykończeniowe

    nie obejmuje
  • Możesz budować etapami, pamiętając jednak o zmianie kosztów w czasie
  • Możesz rozpocząć budowę z częścią niezbędnych środków
  • Sam ustalasz harmonogram, koordynujesz budowę i zapewniasz materiały
Czy da się obniżyć koszty budowy?
Zobacz nasz film jak obniżyć koszt budowy

Projekt z Budową

Najszybsza i najwygodniejsza metoda -
całą budowę domu realizuje jedna firma

Stan deweloperski
Gwarancja stałego kosztu budowy

Gwarancja stałego
kosztu budowy

  • Prace ziemne i fundamenty
  • Konstrukcja, strop oraz dach
  • Stolarka okienna i drzwiowa
  • Instalacje  
    Tooltip

    Obejmuje wykonanie instalacji:

    • wodno-kanalizacyjnej
    • centralnego ogrzewania
    • gazowej
    • elektrycznej
  • Prace wykończeniowe  
    Tooltip

    Prace wykończeniowe obejmują:

    • sufity i ściany wewnętrzne
    • tynki i okładziny ścian wewnętrznych
    • wylewki i posadzkę
    • ocieplenie ścian zewnętrznych i elewację

Budowa
nawet w
6mies.

  • Kompleksowa umowa i znany z góry koszt budowy
  • Logistyka, organizacja budowy i zakupy po stronie firmy budowlanej
  • Formalności i dokumentacje po stronie firmy budowlanej
  • Różne technologie budowy dopasowane do projektu i budżetu
Szczegóły i dostępne technologie
icon

Darmowe

Zestawienie materiałów budowlanych

Elewacje

Frontowa
Tylna
Lewa
Prawa

Usytuowanie na działce

Czy ten projekt pasuje na
Twoją działkę?

Chętnie to sprawdzimy!

Czy ten projekt pasuje na
Twoją działkę?

Chętnie to sprawdzimy!

Dowiedz się:

  • czy zmieści się na niej wybrany przez Ciebie dom
  • jakie parametry musi spełniać dom według miejscowego planu zagospodarowania lub warunków zabudowy (np. kąt nachylenia i typ dachu, liczba kondygnacji itp.
  • jakie inne projekty pasują na Twoją działkę – znajdziemy je dla Ciebie!
Autor: Krajobrazy

Dane techniczne projektu

Powierzchnie i wymiary Powierzchnie i wymiary

Powierzchnia użytkowa
Tooltip
Suma powierzchni wszystkich pomieszczeń mieszkalnych, pomniejszona o pow. garażu, kotłowni, strychu, piwnicy. Jest liczona w 100% dla pomieszczeń o wysokości powyżej 2,2 m, w 50% dla pomieszczeń o wys. 2,2-1,4 m i niewliczana dla niższych niż 1,4 m.

116,60 m²

Powierzchnia zabudowy
Tooltip
Powierzchnia zajmowana przez część na- oraz nadziemną budynku liczona, jako rzut pionowy budynku na działkę.

112,50 m²

Kubatura brutto
Tooltip
Zazwyczaj jest to suma kubatur (objętości) wszystkich pomieszczeń budynku, liczonych po zewnętrznym obrysie murów (z ociepleniem).

615 m³

Powierzchnia dachu

187 m²

Kąt nachylenia dachu
Tooltip
Nachylenie połaci dachu głównego podawane w stopniach. Uwaga! W niektórych projektach występuje więcej niż jedno nachylenie dachu.

40°

Wysokość budynku
Tooltip
Wysokość liczona od części budynku położonej najniżej przy powierzchni terenu do najwyższego punktu dachu (kalenicy) z wyłączeniem kominów.

8,13 m

Szerokość elewacji

13,80 m

Długość elewacji

8,70 m

Min. szerokość działki
Tooltip
Najmniejsza możliwa szerokość działki niezbędna do wybudowania wybranego domu. Składa się z szerokości elewacji domu powiększonej z obu stron o 3 m dla ściany bez otworów drzwiowych/okiennych lub 4 m, dla ściany z otworami.

20,80 m

Min. długość działki
Tooltip
Najmniejsza możliwa długość działki niezbędna do wybudowania wybranego domu. Składa się z długości elewacji domu powiększonej z obu stron o 3 m dla ściany bez otworów drzwiowych/okiennych lub 4 m, dla ściany z otworami.

16,70 m

Energooszczędność Energooszczędność

Oze Czym jest OZE (Odnawialne Źródło Energii)?
Ep
Tooltip
Energia pierwotna określa ilość energii nieodnawialnej potrzebnej w ciągu roku do ogrzewania czy też ogrzania wody użytkowej z uwzględnieniem kosztów produkcji i transportu surowców energetycznych.

62,02 kWh/(m²rok)

Ogrzewanie główne

Pompa ciepła (OZE) lub gazowe - do wyboru na etapie zamówienia

Interesuje Cię inne źródło ogrzewania? Wyślij zapytanie lub zadzwoń do doradcy

Wentylacja

Mechaniczna nawiewno-wywiewna z rekuperacją - szczegóły

Instalacje w projekcie

Ogrzewanie podłogowe (na całej powierzchni domu lub w jej części, szczegóły u doradcy)
Fotowoltaika (OZE)

Warunki techniczne

Projekt zgody z WT 2021

Technologia i konstrukcja Technologia i konstrukcja

Konstrukcja

Murowana

PROJEKT Z BUDOWĄ Istnieje możliwość zaadaptowania tego projektu do technologii prefabrykowanej/modułowej i budowy nawet w 6 miesięcy ze stałym kosztem budowy

Dowiedz się więcej »
Opis szczegółowy

Ściany z betonu komórkowego z warstwą styropianu, strop gęstożebrowy, więźba wykonana z drewna. Jako pokrycie przewidziano dowolną dachówkę betonową albo ceramiczną. Tynkowane elewacje obłożone częściowo płytkami kamiennymi albo ceramicznymi. Inne materiały do zastosowania po zmianach w trakcie adaptacji.

Strop

Gęstożebrowy

Reklama
Okna i drzwi tarasowe

Nowoczesne okna PVC i aluminiowe WIŚNIOWSKI – doskonała izolacja, elegancki design i niezrównana trwałość.

Wiśniowski
Sprawdź parametry!
Okna dachowe

Oferujemy bezpłatne konsultacje w zakresie wszystkich rozwiązań VELUX. Wyceny, porady dotyczące doboru okien i rolet zewnętrznych - sprawdź!

Velux
Sprawdź szczegóły
Płytki ceramiczne i gresy

Od małych formatów po wielkoformatowe gresy. Marmur, beton, drewno, kamień, lastryko czy cegiełki zamówisz wygodnie online z szybką dostawą.

Ceramzet
Sprawdź ofertę
Drzwi

Ciepłe drzwi WIŚNIOWSKI z kontrolą dostępu. Szeroka gama wzorów i kolorów.

Wiśniowski
Wybierz najlepsze
Bramy garażowe

Automatyczne bramy garażowe segmentowe i uchylne WIŚNIOWSKI na wymiar i z systemem smart home w standardzie.

Wiśniowski
Sprawdź ofertę!
Armatura i ceramika łazienkowa

Topowi producenci. Baterie łazienkowe, zestawy natynkowe i podtynkowe, umywalki, wanny, miski WC oraz kabiny zamówisz kompleksowo online.

Ceramzet II
Dowiedz się więcej
Rekuperacja

Alnor - kompletny system rekuperacji. Dobierz idealne rozwiązanie dla Twojego domu!

Alnor
Dobierz rekuperator
Dach

Producent stalowych pokryć dachowych i systemów elewacyjnych. Precyzja wykonania, trwałość na lata i szybki montaż doceniany przez dekarzy. Postaw na solidny dach Budmat.

Budmat
Sprawdź ofertę
Ogrodzenie

Nowoczesne stalowe ogrodzenia Budmat - estetyka, bezpieczeństwo i trwałość na lata. Systemowe rozwiązania na wymiar, dopasowane do każdego domu.

Budmat
Sprawdź ofertę

Gotowe domy modułowe (118)

Zobacz wszystkie
Stan deweloperski nawet w 6 miesięcy Gwarancja stałej ceny
Zdjęcie 1 projektu Dom prefabrykowany P.13 z dachem płaskim bez garażu HPK1022
Pow. użytkowa
115,39 m²
Pokoje
3
616 100 zł 5 339 zł/m²
Zdjęcie 1 projektu Dom prefabrykowany P.13 z dachem kopertowym bez garażu HPK1024
Pow. użytkowa
115,39 m²
Pokoje
3
616 100 zł 5 339 zł/m²
Zdjęcie 1 projektu Dom prefabrykowany P.13 z dachem płaskim z garażem HPK1023
Pow. użytkowa
115,39 m²
Pokoje
3
730 400 zł 6 330 zł/m²
Zdjęcie 1 projektu Dom prefabrykowany P.13 z dachem kopertowym z garażem HPK1025
Pow. użytkowa
115,39 m²
Pokoje
3
730 400 zł 6 330 zł/m²
Zdjęcie 1 projektu Dom szkieletowy Creative Smart 160 HHT1023
Pow. użytkowa
118,35 m²
Pokoje
4
780 019 zł 6 591 zł/m²
Zdjęcie 1 projektu Dom modułowy Harmony HMD1000
Pow. użytkowa
114,80 m²
Pokoje
4
512 000 zł 3 853 zł/m²
Zdjęcie 1 projektu Dom prefabrykowany P.14 HPK1026
Pow. użytkowa
118,94 m²
Pokoje
3
694 700 zł 5 829 zł/m²
Zdjęcie 1 projektu Dom modułowy Soul HMD1001
Gotowy dom modułowy Soul
Dodano!
Dodano!
Pow. użytkowa
118,94 m²
Pokoje
4
518 000 zł 3 654 zł/m²

Dodatki do projektu

Dodatki możesz zamówić w koszyku lub telefonicznie u naszego Doradcy.

Ikona

Bestseller

Dodatkowy egzemplarz projektu

998 zł

Opis projektu domu
Elegant

Projekt domu Elegant jest doskonałym rozwiązaniem dla osób posiadających średniej szerokości działkę. Bryła budynku posiada formę typową, więc jego realizacja jest łatwa. Projekt należy do kategorii domów z kalenicą usytuowaną równolegle do drogi, co jest istotne ze względu na wymagania określone w warunkach zabudowy. Dom został stworzony do zabudowy wolnostojącej. Projekt można usytuować na granicy działki, co daje możliwość na realizację w zabudowie bliźniaczej. Autor projektu przewidział garaż jednostanowiskowy w linii budynku. Bryła budynku przykryta jest dachem dwuspadowym, który jest prosty i ekonomiczny w realizacji. Projekt Elegant to dom parterowy z poddaszem użytkowym, dzięki czemu mamy możliwość zagospodarowania większej powierzchni. Autor projektu przewidział w nim ciekawie prezentującą się strefę dzienną. W domu uwzględniono kuchnię otwartą, co jest nowoczesnym i praktycznym rozwiązaniem. Zwolenników praktycznych rozwiązań niewątpliwie ucieszy fakt, iż przewidziano także miejsce na spiżarkę. Ciekawym elementem jest z pewnością usytuowany w salonie kominek, który nada wnętrzu niepowtarzalny klimat. Łazienka znajduje się zarówno na poddaszu jak i parterze, co jest szczególnie przydatne podczas odwiedzin gości. Potrzeby 4-6 osobowej rodziny spełnią przewidziane w projekcie cztery przestronne sypialnie. Przestrzeń można wykorzystać także jako pokój dla gości lub gabinet. W utrzymaniu porządku z pewnością pomoże nam przewidziane w projekcie pomieszczenie gospodarcze. Efektowny taras pozwala na kontakt z naturą bez zbytniego oddalania się od domowego zacisza. Projekt powstał z myślą o Inwestorach, którzy planują zbudować dom w technologii murowanej. Elegant nawiązuje do stylu tradycyjnego, co jest idealnym rozwiązaniem dla osób ceniących klasykę i prostotę.
Czytaj więcej

Polecani producenci

Kompletne systemy rekuperacji

tło producenta

Alnor

Dowiedz się więcej

Prefabrykowane konstrukcje dachowe

tło producenta

WIĄZAR POLSKA

Zobacz więcej

Sprawdź nową generację okien GREENVIEW

tło producenta

FAKRO

Sprawdź nową generację okien GREENVIEW

Styropian, tynki, farby, kleje

tło producenta

Termo Organika

Poznaj super jakość

Okna, drzwi, osłony przeciwsłoneczne

tło producenta

Aluprof

Sprawdź ofertę
Zobacz więcej

Społeczność projektu domu
Elegant w budowie

Dołącz do społeczności osób, które budują ten dom lub są zainteresowane jego budową.

  • Oglądaj zdjęcia z budowy
  • Zadawaj pytania
  • Wymieniaj się doświadczeniami

Opinie o projekcie domu Elegant

4

Na podstawie 1 recenzji

Wspaniały!
0%
Bardzo dobry
100%
Średni
0%
Słaby
0%
Bardzo słaby
0%

Wywiady mieszkańców domu Elegant

Zdjęcie profilowe użytkownika anizbi anizbi

Od początku zależało nam na domu o dwóch użytkowych kondygnacjach oraz uwzględnionym w jego bryle garażu, a spośród propozycji spełniających te kryteria najbardziej do gustu przypadł nam projekt domu Elegant WRN1187. Szczególnie spodobało nam się praktyczne wykorzystanie przestrzeni - hall i korytarze zajmują niewiele miejsca i tym samym nie ujmują powierzchni pomieszczeniom mieszkalnym.Nasza realizacja odbyła się szybko, sprawnie i bez żadnych problemów. Całą inwestycję łącznie w wykonaniem wszelkich prac wykończeniowych udało nam się zakończyć w niecały rok. Postanowiliśmy nieco zmienić zalecaną przez architekta technologię budowy i zamiast bloczków z betonu komórkowego 36 cm, do wymurowania ścian użyliśmy ceramicznych pustaków Porotherm 24 cm, a następnie ociepliliśmy je 15 cm warstwą styropianu. Konstrukcję stropu wykonaliśmy z płyt żerańskich. Dach ukazany na rysunkach projektu, pod względem wizualnym bardzo się nam spodobał, dlatego też postanowiliśmy wykonać go w ten sam sposób. Do tego celu użyliśmy płaskiej dachówki marki Braas.Koszty budowy w głównej mierze zależą od zastosowanych materiałów - przy użyciu powyższych cena inwestycji na etapie stanu surowego zamkniętego była w naszym przypadku wyższa niż podana w kosztorysie. Oszacowana kwota zgadzała się w kwestii wykonania fundamentów oraz wymurowania ścian i wyniosła ok. 110 tys. zł. Jednak z racji tego, iż zakupiona przez nas dachówka ze względu na wysoką jakość nie należy do najtańszych, a oprócz tego postanowiliśmy wstawić dwa dodatkowe okna połaciowe, cały dach kosztował już 60 tys. zł. Oprócz tego, wszystkie wstawione przez nas okna cechują się ciekawą okleiną i wraz z zamontowaniem zewnętrznych rolet elektrycznych wiązały się z kosztem ok. 20 tys. zł.Do projektu domu Elegant WRN1187 wprowadziliśmy pewne zmiany. Łazienka na parterze wydała nam się nieco za mała, dlatego też postanowiliśmy powiększyć ją kosztem połowy powierzchni kotłowni, wykonując ją w kształcie litery „L”. Tym samym znajdujące się w tym miejscu dwa małe okna zamieniliśmy na jedno większe, zaś nowo powstałą wnękę wykorzystaliśmy na zrobienie dużej kabiny prysznicowej typu walk-in. Inną zmianą na parterze była rezygnacja ze spiżarki na rzecz powiększenia kuchni. Na poddaszu architekt przewidział wykonanie dwóch drewnianych słupów podtrzymujących o wymiarach 140x140 cm, jednak przy tej szerokości wystawałyby one poza ścianki, dlatego też zamieniliśmy je na słupy stalowe o wym. 100x100 cm. Muszę przyznać, że był to naprawdę dobry pomysł i szczerze polecam go innym Inwestorom. Strop z płyt żerańskich wykonaliśmy nad całą powierzchnią domu, również nad garażem, co sprawiło iż jest on nieco wyższy niż oryginalnie i tym samym pomieszczenie nad nim znajduje się na tym samym poziomie, co pozostałe pokoje na poddaszu. Dodatkowo zarówno na strychu oraz nad klatką schodową wstawiliśmy okna połaciowe, co było świetnym posunięciem. Garaż poszerzyliśmy o 1 m, zaś bramę garażową o 20 cm. Zamiast betonowych schodów, wykonaliśmy je w drewnianej ażurowej konstrukcji, które w połączeniu ze znajdującymi się przy nich oknem nadają wnętrzu sporo uroku i sprawiają, że salon jest bardziej przestronny. Kolejną modyfikacją było połączenie dwóch mniejszych sypialni w jedną większą. Po zmianach, które zastosowaliśmy w projekcie domu parterowego z poddaszem użytkowym Elegant WRN1187 wnętrze naszego domu w pełni nam odpowiada. Pozdrawiam.

Zdjęcie profilowe użytkownika madzik555 madzik555

Zdecydowałam się na realizację projektu domu Elegant WRN1187, ponieważ spełniał wszystkie moje oczekiwania. Przewidziany w nim układ pomieszczeń wydał mi się niezwykle funkcjonalny - jest dokładnie taki na jakim mi zależało zarówno w kwestii praktyczności wnętrza, jak i usytuowania domu na działce względem wjazdu oraz sąsiadów.Cała budowa przebiegła wyjątkowo sprawnie. Dokumentacja techniczna została dobrze opracowana, a fachowcy ze wszystkim doskonale sobie poradzili. Jedynym nieco trudniejszym w wykonaniu elementem były schody, aczkolwiek je również udało się zrobić jak najbardziej poprawnie. Inwestycję zakończyliśmy w bardzo krótkim czasie. Pierwsze wbicie łopaty nastąpiło 15 października 2014 r. i już po dokładnie roku - 15 października 2015 r. - wprowadziliśmy się do w pełni wykończonego i w całości wyposażonego domu.Postanowiliśmy zmienić niektóre z zalecanych w projekcie materiałów. Zamiast gazobetonu, do postawienia budynku użyliśmy bloczków Silka, a strop Teriva zamieniliśmy na tradycyjnie lany betonem. Dach pokryliśmy dachówką marki Braas. Myślę, że architekt poprawnie oszacował kosztorys i sądzę, że gdybyśmy ściśle trzymali się polecanych przez niego produktów zmieścilibyśmy się w sugerowanej kwocie. W naszym przypadku cena inwestycji na etapie stanu surowego zamkniętego była od niej ok. 10 % wyższa, jednak jestem bardzo zadowolona z zastosowanych przez nas rozwiązań.Bloczki użyte do wymurowania ścian mają grubość 18 cm, a bryłę z zewnątrz ociepliliśmy 20 warstwą grafitowego styropianu. Przy takim murze budynek jest niezwykle ciepły i bardzo ekonomiczny. W kotłowni zainstalowaliśmy piec gazowy, jednakże odkąd mieszkamy (już 1,5 roku) kocioł nie był ani razu włączony w celu ogrzania domu. Nie było to potrzebne, ponieważ do tego służy nam usytuowany w salonie kominek o mocy 19kW, który doskonale się sprawdza. Podczas dużych mrozów, gdy temperatura na zewnątrz dochodzi do -10 - -15 °C przez całą dobę zużywamy jeden worek drewna, co w skali całego okresu grzewczego począwszy od września wiąże się z kosztem ok. 620-700 zł na pełny sezon.Rozmieszczenie wnętrza zaproponowane w projekcie domu Elegant WRN1187 od początku bardzo przypadło mi do gustu. Postanowiłam jednak nanieść do niego pewną małą zmianę, którą szczerze polecam innym Inwestorom. Mianowicie zrezygnowałam z pierwotnej garderoby w sypialni, dzięki czemu teraz jest bardziej przestronna. Oprócz tego wykonałam wnękę poprzez przyłączenie do pokoju części powierzchni łazienki przeznaczonej wcześniej na przestrzeń wejścia do pomieszczenia nad garażem. Tym samym obecnie znajduje się ono od strony sypialni, w łazience między nowopowstałym uskokiem a ścianą z oknem uzyskaliśmy doskonałe miejsce na wstawienie wanny. Metraż nad garażem przeznaczyliśmy na zrobienie dużej garderoby. To rozwiązanie pozwoliło dodatkowo na wcielenie innego, bardzo praktycznego pomysłu, czyli przeniesie wyłazu strychowego. Oryginalnie znajdował się przy klatce schodowej, co było dość ryzykowne. Wyłaz postanowiłam zrobić więc nad nieco schowanym przejściem do nowo uzyskanej garderoby. Nie widać go w sypialni, więc wszystko wygląda bardzo estetycznie.Oprócz tego zrezygnowałam ze spiżarki przy kuchni i nie zabudowałam schodów ścianą, tworząc pod nimi praktyczny schowek. Z racji instalacji pieca gazowego nie murowaliśmy kominów, a zamiast tego zastosowaliśmy gotowy system z wkładem kominowym. Ściankę kolankową na całej powierzchni bryły podnieśliśmy o 2 bloczki dzięki czemu poddasze zyskało na przestronności. Obecnie poradziłabym jednak zastosowanie 3 bloczków w części nad garażem, co znacznie zwiększy ustawność znajdującego tego pomieszczenia. Ponadto, zarówno w garażu jak i garderobie wstawiłam okno, zaś trzyskrzydłową witryne w salonie zmniejszyłam do rozmiarów dwuskrzydłowej. Tym samym, przy ścianie szczytowej uzyskałam więcej miejsca na wstawienie kanapy narożnikowej.Jestem bardzo zadowolona z wyboru projektu domu Elegant WRN1187. Dom od początku bardzo mi się podobał, a wprowadzenie kilku drobnych zmian w całości dopasowało go do wszystkich moich oczekiwań. Układ pomieszczeń został wyjątkowo funkcjonalnie przemyślany, a oprócz komfortowego wnętrza, budynek satysfakcjonuje mnie pod względem wizualnym. Elewację i pokrycie dachu wykonałam w kolorach czerni i szarościach, więc mimo niezwykle prostej bryły prezentuje się naprawdę nowocześnie. Pozdrawiam.

ASYSTENT WYBORU PROJEKTU

Szukasz idealnego projektu? Znajdziemy go dla Ciebie!

Doradca na podstawie Twoich wskazówek przygotuje spersonalizowaną listę projektów

Graficzne opracowanie rzutów poglądowych widocznych na karcie projektu zostało wykonane przez Extradom.pl. Prezentowane przez Extradom.pl wizualizacje wykonane zostały przez autora projektu i należy poczytywać je jedynie za przykład i propozycję wykończenia, wizję architektoniczną autora projektu. Ostateczne wykończenie budynku może nastąpić na wiele sposobów. Szczegółowe rozwiązania zastosowane w oferowanej dokumentacji - w tym również ilość, lokalizacje i wygląd okien, drzwi, kominów - mogą w niewielkim stopniu różnić się od prezentowanej wizualizacji budynku.

Extradom.pl Spółka z ograniczoną odpowiedzialnością z siedzibą przy ul. Jaworskiej 13, 53-612 Wrocław, wpisana do rejestru przedsiębiorców Krajowego Rejestru Sądowego przez Sąd Rejonowy dla Wrocławia-Fabrycznej we Wrocławiu, VI Wydział Gospodarczy Krajowego Rejestru Sądowego do pod numerem KRS 0000648746, numer NIP 895-17-18-333, o kapitale zakładowym 708 150,00 zł uprzejmie informuje, iż poprzez serwis Extradom.pl umożliwia m.in. zapoznanie się przez konsumentów z ofertą handlową Partnerów Extradom.pl, którzy stosują metody budowy domów przy wykorzystaniu różnego rodzaju technologie prefabrykacji bądź modułowe (tzw. „Gotowe domy”).

Extradom.pl nie prowadzi jednakże sprzedaży ani nie oferuje usług polegających na doradztwie finansowym, prawnym ani podatkowym w zakresie inwestycji realizowanych w technologiach tzw. „Gotowych domów”. Informacje prezentowane w serwisie Extradom.pl dotyczące Partnerów Extradom.pl oferujących realizację inwestycji w technologiach „Gotowych domów” lub podobnych mają charakter informacyjny i reklamowy.

Prezentowane w serwisie Extradom.pl informacje dotyczące stosowanych przez Partnerów metod budowy domów w technologii prefabrykacji bądź modułowej pochodzą od Partnerów Extradom.pl.

Extradom.pl sp. z o.o. jedynie umożliwia nawiązanie kontaktu przez Użytkownika z Partnerem Extradom.pl stosującym tego rodzaju technologie budowy domów i nie jest stroną umowy o roboty budowlane zawieranej przez Użytkownika Extradom.pl z Partnerem Extradom.pl.

REKLAMA
Zamknij