Projekty nawet 500 zł taniej ❄️

Koniec oferty za:

00godz.

00min.

00sek.

Sprawdź

Projekt domu Ekonomiczny 1B WAW1082

Dodano!
Dodano!

Warstwy

Warstwy

Rzut parteru

Powierzchnia (m²)
Tooltip
Powierzchnia pomieszczenia
to ta, z której faktycznie możesz korzystać – skosy i niskie części poddasza są liczone częściowo lub wcale.
  1. 100% dla wysokości powyżej 2,2 m,
  2. 50% dla wysokości 1,4–2,2 m,
  3. nie liczymy poniżej 1,4 m.

Powierzchnia podłogi
Liczymy po obrysie pomieszczenia, bez względu na jego wysokość/skosy. Jeśli nie ma skosów to powierzchnia podłogi i pomieszczenia jest taka sama.
pomieszczenia i podłogi
podłogi
1. Wiatrołap
4,10
2. Spiżarnia
1,40
3. Kuchnia
11,10
4. Pokój dzienny + jadalnia
25,10
5. Pokój
10,90
6. Pokój
14,20
7. Pokój
10,30
8. Korytarz
6,60
9. Łazienka
6,10
10. Łazienka
2,80
11. Kotłownia
3,70
Razem
96,30
96,30
Powierzchnia (m²)
Tooltip
Powierzchnia pomieszczenia
to ta, z której faktycznie możesz korzystać – skosy i niskie części poddasza są liczone częściowo lub wcale.
  1. 100% dla wysokości powyżej 2,2 m,
  2. 50% dla wysokości 1,4–2,2 m,
  3. nie liczymy poniżej 1,4 m.

Powierzchnia podłogi
Liczymy po obrysie pomieszczenia, bez względu na jego wysokość/skosy. Jeśli nie ma skosów to powierzchnia podłogi i pomieszczenia jest taka sama.
pomieszczenia
podłogi
1. Antresola
14,50
25,40
2. Antresola
7,40
13,40
Razem
21,90
38,80

    Usytuowanie na działce

    Czy ten projekt pasuje na
    Twoją działkę?

    Chętnie to sprawdzimy!

    Dowiedz się:

    • czy zmieści się na niej wybrany przez Ciebie dom
    • jakie parametry musi spełniać dom według miejscowego planu zagospodarowania lub warunków zabudowy (np. kąt nachylenia i typ dachu, liczba kondygnacji itp.
    • jakie inne projekty pasują na Twoją działkę – znajdziemy je dla Ciebie!

Pow. użytkowa

114,60 m²

Pokoje

3

Łazienki i WC

2

Garaż

0

Min. szer. i dł. działki

16,19 x 26,49 m

Kąt dachu

40°

Szacunkowy koszt SSZ

322 000 zł
Szacunkowy koszt budowy do stanu surowego zamkniętego (SSZ) metodą gospodarczą - większość prac wykonuje inwestor.

Konstrukcja

Murowana
więcej

Ekonomiczny 1B - WAW1082

ikona 114,60 m²
Powierzchnia użytkowa
ikona3
Pokoje (bez salonu)
ikona 2
Łazienki (z toaletami)
ikona 0
Liczba stanowisk garażowych
(z wiatą garażową)
ikona
Konstrukcja: Murowana

Cena projektu:

5 520 zł

Gwarancja najniższej ceny Gwarancja najniższej ceny Tooltip

Projekt jest dostępny Tooltip

GRATIS 10% rabatu do LEROY MERLIN

GRATIS Przydatne Extradodatki

GRATIS Poradnik Dach Solarny

100 dni na wymianę, 30 dni na zwrot

Darmowa dostawa - kurier, paczkomaty

Bezpłatne pozwolenie na zmiany

Dokumentacja zgodna z WT2021

Pokaż więcej (5)
Konsultant Masz pytania?
Zadzwoń
71 715 20 60

pon.-pt. 8-21, sob. 9-17

Szukasz wykonawcy godnego zaufania?
Zleć budowę w Extradom.pl!

  • Z góry znasz koszt budowy domu
  • Dom odbierasz zgodnie z ustalonym harmonogramem - nawet w 6 miesięcy
  • Zabezpiecza Cię jedna kompleksowa umowa z jednym wykonawcą
  • Otrzymujesz nawet 30-letnią gwarancję na konstrukcję domu
  • Oszczędzasz swój czas dzięki pewnej i kompletnej usłudze
Cena brutto stanu
deweloperskiego od
Tooltip
Cena brutto stanu deweloperskiego od 4 529 do 5 829 zł/m2.
Cena jest uzależniona m.in. od lokalizacji, wybranej technologii, kubatury budynku, skomplikowania projektu i ewentualnych zmian, na które zdecyduje się inwestor.
Cena za m2 powierzchni netto, czyli wszystkich pomieszczeń mierzonych na wysokości podłogi.
4 529 zł/m2
Dowiedz się więcej
Konsultant Masz pytania?
Zadzwoń
71 715 20 70

pon.-pt. 8-19

Parter - 96,30 m²

Parter projektu Ekonomiczny 1B

Zapytaj, co możesz zmienić

Powierzchnia (m²)
Tooltip
Powierzchnia pomieszczenia
to ta, z której faktycznie możesz korzystać – skosy i niskie części poddasza są liczone częściowo lub wcale.
  1. 100% dla wysokości powyżej 2,2 m,
  2. 50% dla wysokości 1,4–2,2 m,
  3. nie liczymy poniżej 1,4 m.

Powierzchnia podłogi
Liczymy po obrysie pomieszczenia, bez względu na jego wysokość/skosy. Jeśli nie ma skosów to powierzchnia podłogi i pomieszczenia jest taka sama.
pomieszczenia i podłogi
podłogi
1. Wiatrołap
4,10
2. Spiżarnia
1,40
3. Kuchnia
11,10
4. Pokój dzienny + jadalnia
25,10
5. Pokój
10,90
6. Pokój
14,20
7. Pokój
10,30
8. Korytarz
6,60
9. Łazienka
6,10
10. Łazienka
2,80
11. Kotłownia
3,70
Razem
96,30
96,30

Natychmiast, otrzymasz PDF-y
z rzutami wszystkich kondygnacji

Antresola - 21,90 m²

Antresola projektu Ekonomiczny 1B

Zapytaj, co możesz zmienić

Powierzchnia (m²)
Tooltip
Powierzchnia pomieszczenia
to ta, z której faktycznie możesz korzystać – skosy i niskie części poddasza są liczone częściowo lub wcale.
  1. 100% dla wysokości powyżej 2,2 m,
  2. 50% dla wysokości 1,4–2,2 m,
  3. nie liczymy poniżej 1,4 m.

Powierzchnia podłogi
Liczymy po obrysie pomieszczenia, bez względu na jego wysokość/skosy. Jeśli nie ma skosów to powierzchnia podłogi i pomieszczenia jest taka sama.
pomieszczenia
podłogi
1. Antresola
14,50
25,40
2. Antresola
7,40
13,40
Razem
21,90
38,80

Natychmiast, otrzymasz PDF-y
z rzutami wszystkich kondygnacji

Zamów rysunki szczegółowe

Zapoznaj się ze szczegółowymi rysunkami rzutów kondygnacji w PDF dla tego projektu.

Warianty projektu (15)

Projekt domu Ekonomiczny 1A
Ekonomiczny 1A
Dodano!
Dodano!
88,70 m²
3
1
0

5 290 zł

Projekt domu Ekonomiczny 2A
Ekonomiczny 2A
Dodano!
Dodano!
104,10 m²
4
2
0

5 520 zł

Projekt domu Ekonomiczny 4
Ekonomiczny 4
Dodano!
Dodano!
98,10 m²
3
2
2

5 980 zł

Projekt domu Ekonomiczny 5
Ekonomiczny 5
Dodano!
Dodano!
111,10 m²
4
2
0

5 520 zł

Projekt domu Ekonomiczny 5G
Ekonomiczny 5G
Dodano!
Dodano!
119,80 m²
4
2
2

6 440 zł

Projekt domu Ekonomiczny 4A
Ekonomiczny 4A
Dodano!
Dodano!
115,40 m²
3
2
2

5 980 zł

Projekt domu Ekonomiczny 2T
Ekonomiczny 2T
Dodano!
Dodano!
107,70 m²
4
2
0

5 520 zł

Projekt domu Ekonomiczny 2B
Ekonomiczny 2B
Dodano!
Dodano!
134,50 m²
4
2
0

5 750 zł

Projekt domu Ekonomiczny 4T
Ekonomiczny 4T
Dodano!
Dodano!
100,90 m²
3
2
0

5 520 zł

Projekt domu Ekonomiczny 6
Ekonomiczny 6
Dodano!
Dodano!
134,40 m²
3
2
0

5 750 zł

Projekt domu Ekonomiczny 2
Ekonomiczny 2
Dodano!
Dodano!
102,20 m²
4
2
0

5 520 zł

Projekt domu Ekonomiczny 1
Ekonomiczny 1
Dodano!
Dodano!
84,60 m²
2
1
0

5 290 zł

Projekt domu Ekonomiczny 3
Ekonomiczny 3
Dodano!
Dodano!
102,80 m²
4
2
0

5 520 zł

Projekt domu Garaż E1
Garaż E1
Dodano!
Dodano!
41,70 m²
0
0
2

1 380 zł

Projekt domu Ekonomiczny 2BG
Ekonomiczny 2BG
Dodano!
Dodano!
146,70 m²
4
2
2

6 440 zł

Podobne projekty (1115)

Zobacz wszystkie
NIŻSZA CENA❄️
Nowość
Zdjęcie 1 projektu Dom na Majowej Komfort + WBF1005
Dom na Majowej Komfort +
Dodano!
Dodano!
112,41 m²
3
2
0

3 699 zł

4 199 zł

Tooltip

Cena regularna

3 499 zł najniższa cena
Tooltip

Najniższa cena z 30 dni
przed obniżką

NIŻSZA CENA❄️
Zdjęcie 1 projektu Dom na Majowej WBF1003
Dom na Majowej
Dodano!
Dodano!
100 m²
3
2
0

3 499 zł

3 899 zł

Tooltip

Cena regularna

3 299 zł najniższa cena
Tooltip

Najniższa cena z 30 dni
przed obniżką

NIŻSZA CENA❄️
Zdjęcie 1 projektu HomeKoncept 144 KRX1281
HomeKoncept 144
Dodano!
Dodano!
111,67 m²
3
2
0

5 690 zł

6 190 zł

Tooltip

Cena regularna

5 261 zł najniższa cena
Tooltip

Najniższa cena z 30 dni
przed obniżką

Zdjęcie 1 projektu NewHouse 730 KRZ1113
NewHouse 730
Dodano!
Dodano!
121,21 m²
4
2
0

5 490 zł

Zdjęcie 1 projektu House 30.1 - murowany WRG1104
House 30.1 - murowany
Dodano!
Dodano!
95,23 m²
3
1
0

5 190 zł

Nowość
Zdjęcie 1 projektu N47-BG KKG1044
N47-BG
Dodano!
Dodano!
104,35 m²
3
2
0

5 200 zł

Zdjęcie 1 projektu D21-2A WSA1007
D21-2A
Dodano!
Dodano!
109,92 m²
3
2
0

6 000 zł

NIŻSZA CENA❄️
Zdjęcie 1 projektu HomeKoncept 81 KRX1142
HomeKoncept 81
Dodano!
Dodano!
103,37 m²
3
2
0

5 290 zł

5 790 zł

Tooltip

Cena regularna

4 921 zł najniższa cena
Tooltip

Najniższa cena z 30 dni
przed obniżką

Metody i koszt budowy

Ten dom możesz budować metodą gospodarczą, systemem zleconym lub skorzystać z naszej oferty Projekt z Budową. Przy porównaniu weź pod uwagę nie tylko koszt, ale też różny zakres prac i standard wykonania.

Metoda gospodarcza

Najtańsza metoda - większość prac
budowlanych wykonuje inwestor

Stan surowy zamknięty (SSZ)

322 000 zł netto

Szacunkowy koszt materiałów na III kwartał 2025
  • Prace ziemne i fundamenty

    54 000 zł
  • Konstrukcja, strop oraz dach

    202 000 zł
  • Stolarka okienna i drzwiowa

    66 000 zł
  • Instalacje

    nie obejmuje
  • Prace wykończeniowe

    nie obejmuje
  • Możesz budować etapami, pamiętając jednak o zmianie kosztów w czasie
  • Możesz rozpocząć budowę z częścią niezbędnych środków
  • Sam ustalasz harmonogram, koordynujesz budowę i zapewniasz materiały
Czy da się obniżyć koszty budowy?
Zobacz nasz film jak obniżyć koszt budowy

Projekt z Budową

Najszybsza i najwygodniejsza metoda -
całą budowę domu realizuje jedna firma

Stan deweloperski
Gwarancja stałego kosztu budowy

Gwarancja stałego
kosztu budowy

  • Prace ziemne i fundamenty
  • Konstrukcja, strop oraz dach
  • Stolarka okienna i drzwiowa
  • Instalacje  
    Tooltip

    Obejmuje wykonanie instalacji:

    • wodno-kanalizacyjnej
    • centralnego ogrzewania
    • gazowej
    • elektrycznej
  • Prace wykończeniowe  
    Tooltip

    Prace wykończeniowe obejmują:

    • sufity i ściany wewnętrzne
    • tynki i okładziny ścian wewnętrznych
    • wylewki i posadzkę
    • ocieplenie ścian zewnętrznych i elewację

Budowa
nawet w
6mies.

  • Kompleksowa umowa i znany z góry koszt budowy
  • Logistyka, organizacja budowy i zakupy po stronie firmy budowlanej
  • Formalności i dokumentacje po stronie firmy budowlanej
  • Różne technologie budowy dopasowane do projektu i budżetu
Szczegóły i dostępne technologie
icon

Polecamy

Kosztorys

Zawiera zestawienie wszystkich potrzebnych materiałów wraz z ich cenami, uwzględnia koszty sprzętu i transportu. Z kosztorysem:

  • poznasz całkowite koszty budowy
  • zaplanujesz prace na budowie
  • łatwiej ocenisz konkurencyjność ofert podwykonawców
  • otrzymasz dokument wymagany w procesie kredytowym

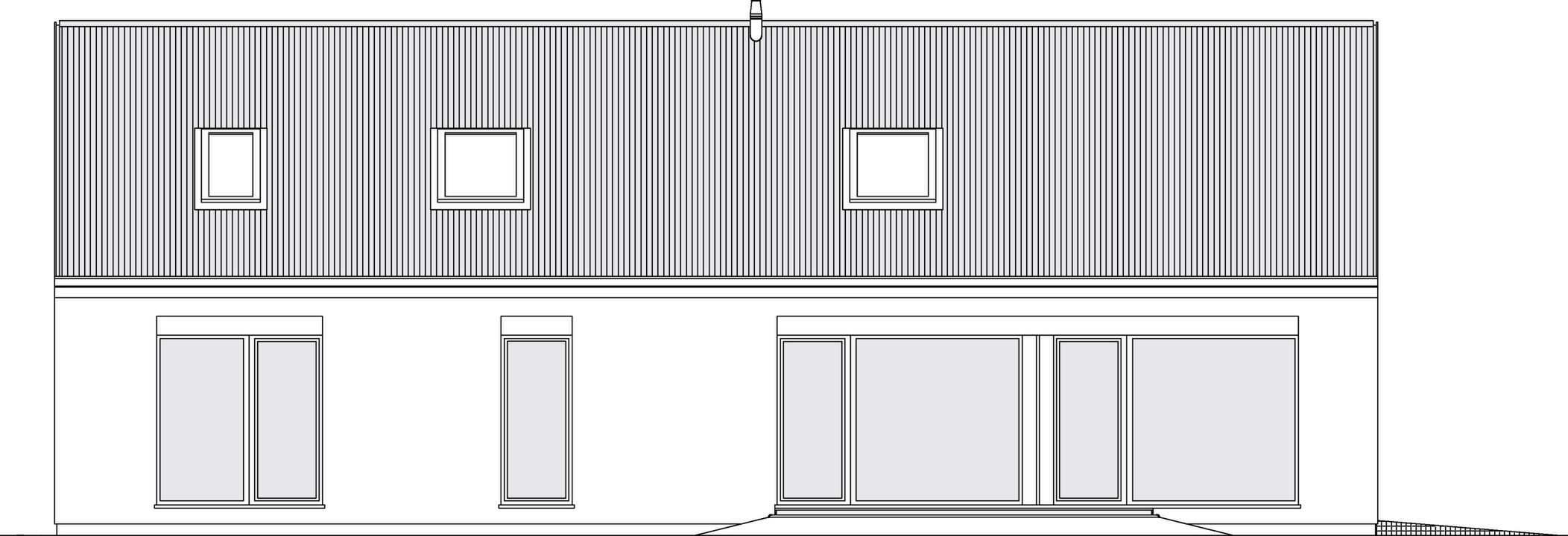
Elewacje

Frontowa
Tylna
Lewa
Prawa

Usytuowanie na działce

Czy ten projekt pasuje na
Twoją działkę?

Chętnie to sprawdzimy!

Czy ten projekt pasuje na
Twoją działkę?

Chętnie to sprawdzimy!

Dowiedz się:

  • czy zmieści się na niej wybrany przez Ciebie dom
  • jakie parametry musi spełniać dom według miejscowego planu zagospodarowania lub warunków zabudowy (np. kąt nachylenia i typ dachu, liczba kondygnacji itp.
  • jakie inne projekty pasują na Twoją działkę – znajdziemy je dla Ciebie!
Autor: Domy z Wizją

Dane techniczne projektu

Powierzchnie i wymiary Powierzchnie i wymiary

Powierzchnia użytkowa
Tooltip
Suma powierzchni wszystkich pomieszczeń mieszkalnych, pomniejszona o pow. garażu, kotłowni, strychu, piwnicy. Jest liczona w 100% dla pomieszczeń o wysokości powyżej 2,2 m, w 50% dla pomieszczeń o wys. 2,2-1,4 m i niewliczana dla niższych niż 1,4 m.

114,60 m²

Powierzchnia zabudowy
Tooltip
Powierzchnia zajmowana przez część na- oraz nadziemną budynku liczona, jako rzut pionowy budynku na działkę.

136,30 m²

Kubatura brutto
Tooltip
Zazwyczaj jest to suma kubatur (objętości) wszystkich pomieszczeń budynku, liczonych po zewnętrznym obrysie murów (z ociepleniem).

615,30 m³

Powierzchnia dachu

183 m²

Kąt nachylenia dachu
Tooltip
Nachylenie połaci dachu głównego podawane w stopniach. Uwaga! W niektórych projektach występuje więcej niż jedno nachylenie dachu.

40°

Wysokość budynku
Tooltip
Wysokość liczona od części budynku położonej najniżej przy powierzchni terenu do najwyższego punktu dachu (kalenicy) z wyłączeniem kominów.

6,81 m

Szerokość elewacji

8,19 m

Długość elewacji

17,49 m

Min. szerokość działki
Tooltip
Najmniejsza możliwa szerokość działki niezbędna do wybudowania wybranego domu. Składa się z szerokości elewacji domu powiększonej z obu stron o 3 m dla ściany bez otworów drzwiowych/okiennych lub 4 m, dla ściany z otworami.

16,19 m

Min. długość działki
Tooltip
Najmniejsza możliwa długość działki niezbędna do wybudowania wybranego domu. Składa się z długości elewacji domu powiększonej z obu stron o 3 m dla ściany bez otworów drzwiowych/okiennych lub 4 m, dla ściany z otworami.

26,49 m

Energooszczędność Energooszczędność

Oze Czym jest OZE (Odnawialne Źródło Energii)?
Ogrzewanie główne

Gazowe - szczegóły

Interesuje Cię inne źródło ogrzewania? Wyślij zapytanie lub zadzwoń do doradcy

Wentylacja

Mechaniczna nawiewno-wywiewna z rekuperacją - szczegóły

Warunki techniczne

Projekt zgody z WT 2021

Technologia i konstrukcja Technologia i konstrukcja

Konstrukcja

Murowana

PROJEKT Z BUDOWĄ Istnieje możliwość zaadaptowania tego projektu do technologii prefabrykowanej/modułowej i budowy nawet w 6 miesięcy ze stałym kosztem budowy

Dowiedz się więcej »
Opis szczegółowy

Konstrukcja: zgodna z normami EUROKOD. Fundamenty: tradycyjne ławy i stopy żelbetowe. Ściany: bloczek silikatowy + styropian na etapie adaptacji projektu istnieje możliwość zamiany bloczka silikatowego na inny materiał o podobnych parametrach wytrzymałosciowych, np. na pustak ceramiczny. Elewacja: tynk Stropy: żelbetowe wylewane na etapie adaptacji projektu istnieje możliwość zmiany technologii stropu na gęstożebrowy lub prefabrykowany. Schody: żelbetowe Dach: włóknowo-cementowa płyta falista konstrukcja więźby przewidziana pod pokrycie ciężkie dla I strefy wiatrowej i II strefy śniegowej.

Strop

Żelbetowy

Reklama
Okna i drzwi tarasowe

Nowoczesne okna PVC i aluminiowe WIŚNIOWSKI – doskonała izolacja, elegancki design i niezrównana trwałość.

Wiśniowski
Sprawdź parametry!
Okna dachowe

Oferujemy bezpłatne konsultacje w zakresie wszystkich rozwiązań VELUX. Wyceny, porady dotyczące doboru okien i rolet zewnętrznych - sprawdź!

Velux
Sprawdź szczegóły
Płytki ceramiczne i gresy

Od małych formatów po wielkoformatowe gresy. Marmur, beton, drewno, kamień, lastryko czy cegiełki zamówisz wygodnie online z szybką dostawą.

Ceramzet
Sprawdź ofertę
Drzwi

Ciepłe drzwi WIŚNIOWSKI z kontrolą dostępu. Szeroka gama wzorów i kolorów.

Wiśniowski
Wybierz najlepsze
Bramy garażowe

Automatyczne bramy garażowe segmentowe i uchylne WIŚNIOWSKI na wymiar i z systemem smart home w standardzie.

Wiśniowski
Sprawdź ofertę!
Armatura i ceramika łazienkowa

Topowi producenci. Baterie łazienkowe, zestawy natynkowe i podtynkowe, umywalki, wanny, miski WC oraz kabiny zamówisz kompleksowo online.

Ceramzet II
Dowiedz się więcej
Rekuperacja

Alnor - kompletny system rekuperacji. Dobierz idealne rozwiązanie dla Twojego domu!

Alnor
Dobierz rekuperator
Gruntowe pompy ciepła

Przeprowadzimy kompletną instalację najbardziej oszczędnego źródła ciepła w Twoim nowym domu - gruntowej pompy ciepła. Od dokumentacji, pozwoleń, po odwierty i instalację.

Geothermal Solutions
Dowiedz się więcej

Gotowe domy modułowe (114)

Zobacz wszystkie
Stan deweloperski nawet w 6 miesięcy Gwarancja stałej ceny
Zdjęcie 1 projektu Dom modułowy Harmony HMD1000
Pow. użytkowa
114,80 m²
Pokoje
4
512 000 zł 3 853 zł/m²
Zdjęcie 1 projektu Dom prefabrykowany P.13 z dachem płaskim bez garażu HPK1022
Pow. użytkowa
115,39 m²
Pokoje
3
616 100 zł 5 339 zł/m²
Zdjęcie 1 projektu Dom prefabrykowany P.13 z dachem kopertowym bez garażu HPK1024
Pow. użytkowa
115,39 m²
Pokoje
3
616 100 zł 5 339 zł/m²
Zdjęcie 1 projektu Dom prefabrykowany P.13 z dachem płaskim z garażem HPK1023
Pow. użytkowa
115,39 m²
Pokoje
3
730 400 zł 6 330 zł/m²
Zdjęcie 1 projektu Dom prefabrykowany P.13 z dachem kopertowym z garażem HPK1025
Pow. użytkowa
115,39 m²
Pokoje
3
730 400 zł 6 330 zł/m²
Zdjęcie 1 projektu Dom szkieletowy Forest Smart 120 HHT1017
Pow. użytkowa
113,18 m²
Pokoje
4
535 459 zł 4 730 zł/m²
Zdjęcie 1 projektu Dom prefabrykowany Parterowy 110C HFX1014
Pow. użytkowa
112,16 m²
Pokoje
4
465 000 zł 4 146 zł/m²
Zdjęcie 1 projektu Dom szkieletowy Moly Smart 112 HHT1028
Pow. użytkowa
112 m²
Pokoje
3
553 375 zł 4 941 zł/m²

Dodatki do projektu

Dodatki możesz zamówić w koszyku lub telefonicznie u naszego Doradcy.

Czym jest OZE (Odnawialne Źródło Energii)?

Ikona

Bestseller

Kosztorys

450 zł

Ikona

Bestseller

Oze

Powietrzna pompa ciepła + ogrzewanie podłogowe

900 zł

Ikona

Bestseller

Oze

Gruntowa pompa ciepła + ogrzewanie podłogowe

900 zł

Ikona

Inteligentny dom

450 zł

Ikona

Kominek z płaszczem wodnym

450 zł

Opis projektu domu
Ekonomiczny 1B

Budynek Ekonomiczny 1B został stworzony na wzór znanego projektu Ekonomiczny 1. W odróżnieniu od podstawowej wersji projekt ma większą powierzchnię. Projekt domu Ekonomiczny 1B to idealna propozycja dla osób posiadających średniej szerokości działkę. Dom charakteryzuje się prostą bryłą, więc jego realizacja nie pochłonie zbyt wielu środków finansowych. W tym projekcie kalenica skierowana jest prostopadle do drogi, co jest bardzo istotne, gdy wymaga tego plan zagospodarowania przestrzennego. Kierowany jest do Inwestorów posiadających działkę pozwalającą na realizację projektu w zabudowie wolnostojącej. Jest to również doskonała propozycja dla osób szukających domu z dachem dwuspadowym, który jest prosty i ekonomiczny w realizacji. Projekt Ekonomiczny 1B to dom parterowy, co jest szczególnie istotne w przypadku domowników w starszym wieku oraz osób niepełnosprawnych czy z małymi dziećmi. Sercem domu jest przestronna strefa dzienna, która sprzyja spędzaniu wspólnego czasu w gronie najbliższych. Tworzy ją między innymi funkcjonalna kuchnia, która spełni marzenie każdej gospodyni. Dodatkowo przewidziana spiżarnia to idealne miejsce na przechowywanie przetworów i zapasów żywności. Strefę dzienną tworzy także przestronny salon z jadalnią, dzięki czemu domownicy mogą wspólnie integrować się w jednym miejscu. Ciekawym elementem jest z pewnością usytuowany w salonie kominek, który nada wnętrzu niepowtarzalny klimat. Projekt uwzględnia dwie łazienki, co znacznie usprawni poranne przygotowania do wyjścia. Część nocną tworzą trzy sypialnie, które dobrze sprawdzą się w przypadku 2-4 osobowej rodziny. Przestrzeń można wykorzystać także jako pokój dla gości lub gabinet. Przewidziana w domu antresola nadaje wnętrzu nowoczesny charakter. Taras jest idealnym miejscem do organizowania rodzinnych spotkań i chwili relaksu. Projekt został wykonany w technologii murowanej, dzięki czemu podczas upałów dom utrzymuje przyjemny chłód. Ekonomiczny 1B zadowoli Inwestorów ceniących cechy stylu nowoczesnego i idealnie wpisze się w trendy nowo powstających osiedli.
Czytaj więcej

Informacje dodatkowe

Projekt stanowi aktualną i pełną dokumentację zawierającą część architektoniczno - budowlaną, konstrukcyjną wykonawczą, instalacji wewnętrznych, elektrycznych i teletechnicznych, charakterystykę energetyczną oraz uprawnienia projektantów. Dokumentacja zabezpieczona jest specjalną plombą, której usunięcie uniemożliwi jej zwrot oraz wymianę. Zapraszamy do zamówienia przed zakupem rysunków szczegółowych projektu oraz analizy posiadanej działki w celu upewnienia się, że wybrany projekt domu idealnie na nią pasuje.

Czytaj więcej

Polecani producenci

Prefabrykowane konstrukcje dachowe

tło producenta

WIĄZAR POLSKA

Zobacz więcej

Sprawdź nową generację okien GREENVIEW

tło producenta

FAKRO

Sprawdź nową generację okien GREENVIEW

Styropian, tynki, farby, kleje

tło producenta

Termo Organika

Poznaj super jakość

Okna, drzwi, osłony przeciwsłoneczne

tło producenta

Aluprof

Sprawdź ofertę

Kompletne systemy rekuperacji

tło producenta

Alnor

Dowiedz się więcej

Sprawdź nowy system DACHRYNNA

tło producenta

Galeco

Sprawdź ofertę
Zobacz więcej

Społeczność projektu domu
Ekonomiczny 1B w budowie

Dołącz do społeczności osób, które budują ten dom lub są zainteresowane jego budową.

  • Oglądaj zdjęcia z budowy
  • Zadawaj pytania
  • Wymieniaj się doświadczeniami

Opinie o projekcie domu Ekonomiczny 1B

Ocena

Ten projekt nie ma jeszcze opinii, bądź pierwszy!

Dodaj opinię

ASYSTENT WYBORU PROJEKTU

Szukasz idealnego projektu? Znajdziemy go dla Ciebie!

Doradca na podstawie Twoich wskazówek przygotuje spersonalizowaną listę projektów

Graficzne opracowanie rzutów poglądowych widocznych na karcie projektu zostało wykonane przez Extradom.pl. Prezentowane przez Extradom.pl wizualizacje wykonane zostały przez autora projektu i należy poczytywać je jedynie za przykład i propozycję wykończenia, wizję architektoniczną autora projektu. Ostateczne wykończenie budynku może nastąpić na wiele sposobów. Szczegółowe rozwiązania zastosowane w oferowanej dokumentacji - w tym również ilość, lokalizacje i wygląd okien, drzwi, kominów - mogą w niewielkim stopniu różnić się od prezentowanej wizualizacji budynku.

Extradom.pl Spółka z ograniczoną odpowiedzialnością z siedzibą przy ul. Jaworskiej 13, 53-612 Wrocław, wpisana do rejestru przedsiębiorców Krajowego Rejestru Sądowego przez Sąd Rejonowy dla Wrocławia-Fabrycznej we Wrocławiu, VI Wydział Gospodarczy Krajowego Rejestru Sądowego do pod numerem KRS 0000648746, numer NIP 895-17-18-333, o kapitale zakładowym 708 150,00 zł uprzejmie informuje, iż poprzez serwis Extradom.pl umożliwia m.in. zapoznanie się przez konsumentów z ofertą handlową Partnerów Extradom.pl, którzy stosują metody budowy domów przy wykorzystaniu różnego rodzaju technologie prefabrykacji bądź modułowe (tzw. „Gotowe domy”).

Extradom.pl nie prowadzi jednakże sprzedaży ani nie oferuje usług polegających na doradztwie finansowym, prawnym ani podatkowym w zakresie inwestycji realizowanych w technologiach tzw. „Gotowych domów”. Informacje prezentowane w serwisie Extradom.pl dotyczące Partnerów Extradom.pl oferujących realizację inwestycji w technologiach „Gotowych domów” lub podobnych mają charakter informacyjny i reklamowy.

Prezentowane w serwisie Extradom.pl informacje dotyczące stosowanych przez Partnerów metod budowy domów w technologii prefabrykacji bądź modułowej pochodzą od Partnerów Extradom.pl.

Extradom.pl sp. z o.o. jedynie umożliwia nawiązanie kontaktu przez Użytkownika z Partnerem Extradom.pl stosującym tego rodzaju technologie budowy domów i nie jest stroną umowy o roboty budowlane zawieranej przez Użytkownika Extradom.pl z Partnerem Extradom.pl.

REKLAMA
Zamknij