👉 Wiosenne rabaty + karta allegro 200 zł! 🔥

Koniec oferty za:

0dni

00godz.

00min.

00sek.

Sprawdź

Projekt domu E-232 WAX1140

Zapisz Dodano!
Porównaj Dodano!
ikona Pobierz i drukuj
Dodaj opinię

Warstwy

Warstwy

Rzut parteru

Powierzchnia (m²)
Tooltip
Powierzchnia pomieszczenia
to ta, z której faktycznie możesz korzystać – skosy i niskie części poddasza są liczone częściowo lub wcale.
  1. 100% dla wysokości powyżej 2,2 m,
  2. 50% dla wysokości 1,4–2,2 m,
  3. nie liczymy poniżej 1,4 m.

Powierzchnia podłogi
Liczymy po obrysie pomieszczenia, bez względu na jego wysokość/skosy. Jeśli nie ma skosów to powierzchnia podłogi i pomieszczenia jest taka sama.
pomieszczenia i podłogi
podłogi
1. Wiatrołap
4,40
2. Hall
16,63
3. Spiżarnia
2,38
4. Kotłownia
5,67
5. Kuchnia
9,96
6. Jadalnia
9,35
7. Pokój dzienny
34,61
8. Łazienka
5,29
9. Pokój
14,28
10. Pokój
14,70
11. Pokój
16,80
12. Wc
2,79
13. Korytarz
5,28
14. Garaż dwustanowiskowy
33,93
Razem
176,07
176,07
15. Taras
28,35
Powierzchnia (m²)
Tooltip
Powierzchnia pomieszczenia
to ta, z której faktycznie możesz korzystać – skosy i niskie części poddasza są liczone częściowo lub wcale.
  1. 100% dla wysokości powyżej 2,2 m,
  2. 50% dla wysokości 1,4–2,2 m,
  3. nie liczymy poniżej 1,4 m.

Powierzchnia podłogi
Liczymy po obrysie pomieszczenia, bez względu na jego wysokość/skosy. Jeśli nie ma skosów to powierzchnia podłogi i pomieszczenia jest taka sama.
pomieszczenia i podłogi
podłogi
1. Poddasze do adaptacji
97,58
Razem
97,58
97,58

    Usytuowanie na działce

    Czy ten projekt pasuje na
    Twoją działkę?

    Chętnie to sprawdzimy!

    Dowiedz się:

    • czy zmieści się na niej wybrany przez Ciebie dom
    • jakie parametry musi spełniać dom według miejscowego planu zagospodarowania lub warunków zabudowy (np. kąt nachylenia i typ dachu, liczba kondygnacji itp.
    • jakie inne projekty pasują na Twoją działkę – znajdziemy je dla Ciebie!

Pow. użytkowa

136,50 m²

Pokoje

3

Łazienki i WC

2

Garaż

2

Min. szer. i dł. działki

23,3 x 24,30 m

Kąt dachu

30°

Szacunkowy koszt SSZ

432 000 zł
Szacunkowy koszt budowy do stanu surowego zamkniętego (SSZ) metodą gospodarczą - większość prac wykonuje inwestor.

Konstrukcja

Murowana
więcej
Zapisz Dodano!
Porównaj Dodano!
ikona Pobierz i drukuj

E-232 - WAX1140

ikona 136,50 m²
Powierzchnia użytkowa
ikona3
Pokoje (bez salonu)
ikona 2
Łazienki (z toaletami)
ikona 2
Liczba stanowisk garażowych
(z wiatą garażową)
ikona
Konstrukcja: Murowana

6 890 zł

Projekt jest dostępny

Gwarancja najniższej ceny
ikona
Darmowa dostawa
Paczkomaty, kurier
ikona
100 dni na wymianę,
30 dni na zwrot
ikona Zyskaj najwięcej! Extradodatki GRATIS:

15% rabatu do LEROY MERLIN

10% rabatu w CASTORAMIE

16% rabatu w SELSEY

Pakiet Formalności 2026

Przydatne Extradodatki

Poradnik Dach Solarny

ikona Co zawiera projekt?
  • Projekt zgodny z WT2021
  • Bezpłatne pozwolenie na zmiany
  • Charakterystyka energetyczna
Konsultant
71 715 20 60

pon.-pt. 8-21, sob. 9-17

Szukasz wykonawcy godnego zaufania?
Zleć budowę w Extradom.pl!

  • Z góry znasz koszt budowy domu
  • Dom odbierasz zgodnie z ustalonym harmonogramem - nawet w 6 miesięcy
  • Zabezpiecza Cię jedna kompleksowa umowa z jednym wykonawcą
  • Otrzymujesz nawet 30-letnią gwarancję na konstrukcję domu
  • Oszczędzasz swój czas dzięki pewnej i kompletnej usłudze
  • Odbiór techniczny GRATIS - Gwarantujemy najwyższą jakość
Cena brutto stanu
deweloperskiego od
Tooltip
Cena brutto stanu deweloperskiego od 4 419 do 5 579 zł/m2.
Cena jest uzależniona m.in. od lokalizacji, wybranej technologii, kubatury budynku, skomplikowania projektu i ewentualnych zmian, na które zdecyduje się inwestor.
Cena za m2 powierzchni netto, czyli wszystkich pomieszczeń mierzonych na wysokości podłogi.
4 419 zł/m2
Dowiedz się więcej
Konsultant Masz pytania?
Zadzwoń
71 715 20 09

pon.-pt. 8-19

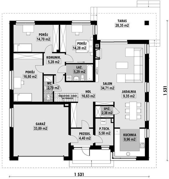
Parter - 176,07 m²

Parter projektu E-232

Zapytaj, co możesz zmienić

Powierzchnia (m²)
Tooltip
Powierzchnia pomieszczenia
to ta, z której faktycznie możesz korzystać – skosy i niskie części poddasza są liczone częściowo lub wcale.
  1. 100% dla wysokości powyżej 2,2 m,
  2. 50% dla wysokości 1,4–2,2 m,
  3. nie liczymy poniżej 1,4 m.

Powierzchnia podłogi
Liczymy po obrysie pomieszczenia, bez względu na jego wysokość/skosy. Jeśli nie ma skosów to powierzchnia podłogi i pomieszczenia jest taka sama.
pomieszczenia i podłogi
podłogi
1. Wiatrołap
4,40
2. Hall
16,63
3. Spiżarnia
2,38
4. Kotłownia
5,67
5. Kuchnia
9,96
6. Jadalnia
9,35
7. Pokój dzienny
34,61
8. Łazienka
5,29
9. Pokój
14,28
10. Pokój
14,70
11. Pokój
16,80
12. Wc
2,79
13. Korytarz
5,28
14. Garaż dwustanowiskowy
33,93
Razem
176,07
176,07
15. Taras
28,35

Natychmiast, otrzymasz PDF-y
z rzutami wszystkich kondygnacji

Poddasze - 97,58 m²

Poddasze projektu E-232

Zapytaj, co możesz zmienić

Powierzchnia (m²)
Tooltip
Powierzchnia pomieszczenia
to ta, z której faktycznie możesz korzystać – skosy i niskie części poddasza są liczone częściowo lub wcale.
  1. 100% dla wysokości powyżej 2,2 m,
  2. 50% dla wysokości 1,4–2,2 m,
  3. nie liczymy poniżej 1,4 m.

Powierzchnia podłogi
Liczymy po obrysie pomieszczenia, bez względu na jego wysokość/skosy. Jeśli nie ma skosów to powierzchnia podłogi i pomieszczenia jest taka sama.
pomieszczenia i podłogi
podłogi
1. Poddasze do adaptacji
97,58
Razem
97,58
97,58

Natychmiast, otrzymasz PDF-y
z rzutami wszystkich kondygnacji

Zamów rysunki szczegółowe

Zapoznaj się ze szczegółowymi rysunkami rzutów kondygnacji w PDF dla tego projektu.

Warianty projektu (9)

Projekt domu E-244
E-244
Dodano!
Dodano!
103,40 m²
2
2
2

6 290 zł

Projekt domu E-235
E-235
Dodano!
Dodano!
139,80 m²
4
2
2

6 690 zł

Projekt domu E-244b
E-244b
Dodano!
Dodano!
113,20 m²
4
2
2

6 490 zł

Projekt domu E-240
E-240
Dodano!
Dodano!
124,60 m²
3
2
1

6 390 zł

Projekt domu E-230
E-230
Dodano!
Dodano!
115,70 m²
3
2
2

6 290 zł

Projekt domu E-230a
E-230a
Dodano!
Dodano!
115,50 m²
3
2
2

6 290 zł

Projekt domu E-244a
E-244a
Dodano!
Dodano!
103,20 m²
3
2
2

6 290 zł

Projekt domu E-231a
E-231a
Dodano!
Dodano!
137,50 m²
3
2
2

6 690 zł

Projekt domu E-231
E-231
Dodano!
Dodano!
132,90 m²
3
2
2

6 790 zł

Podobne projekty (133)

Zobacz wszystkie
NIŻSZA CENA 🔥
Zdjęcie 1 projektu Domidea 3 WAC1105
Domidea 3
Dodano!
Dodano!
126,44 m²
3
3
2

5 850 zł

6 150 zł

Tooltip

Cena regularna

5 850 zł najniższa cena
Tooltip

Najniższa cena z 30 dni
przed obniżką

NIŻSZA CENA 🔥
Zdjęcie 1 projektu Domidea 3 w2 WAC1104
Domidea 3 w2
Dodano!
Dodano!
114,46 m²
3
3
2

5 235 zł

5 535 zł

Tooltip

Cena regularna

5 235 zł najniższa cena
Tooltip

Najniższa cena z 30 dni
przed obniżką

NIŻSZA CENA 🔥
Zdjęcie 1 projektu Domidea 3 w4 WAC1108
Domidea 3 w4
Dodano!
Dodano!
148,42 m²
4
3
2

5 973 zł

6 273 zł

Tooltip

Cena regularna

5 973 zł najniższa cena
Tooltip

Najniższa cena z 30 dni
przed obniżką

NIŻSZA CENA 🔥
Zdjęcie 1 projektu Określony D63 WWB1070
Określony D63
Dodano!
Dodano!
124,65 m²
3
2
2

4 699 zł

4 949 zł

Tooltip

Cena regularna

4 699 zł najniższa cena
Tooltip

Najniższa cena z 30 dni
przed obniżką

NIŻSZA CENA 🔥
Zdjęcie 1 projektu Doskonały WAH1722
Doskonały
Dodano!
Dodano!
137,95 m²
4
2
2

6 112 zł

7 640 zł

Tooltip

Cena regularna

6 112 zł najniższa cena
Tooltip

Najniższa cena z 30 dni
przed obniżką

NIŻSZA CENA 🔥
Zdjęcie 1 projektu APS 401 wariant 3 LUA1591
APS 401 wariant 3
Dodano!
Dodano!
134,37 m²
3
3
2

5 399 zł

5 899 zł

Tooltip

Cena regularna

5 149 zł najniższa cena
Tooltip

Najniższa cena z 30 dni
przed obniżką

NIŻSZA CENA 🔥
Zdjęcie 1 projektu Fabian 3 WOE1148
Fabian 3
Dodano!
Dodano!
148,80 m²
4
3
2

4 999 zł

5 099 zł

Tooltip

Cena regularna

4 699 zł najniższa cena
Tooltip

Najniższa cena z 30 dni
przed obniżką

NIŻSZA CENA 🔥
Zdjęcie 1 projektu Pewny D65 WWB1073
Pewny D65
Dodano!
Dodano!
137,80 m²
4
2
2

4 449 zł

4 699 zł

Tooltip

Cena regularna

4 399 zł najniższa cena
Tooltip

Najniższa cena z 30 dni
przed obniżką

Metody i koszt budowy

Ten dom możesz budować metodą gospodarczą, systemem zleconym lub skorzystać z naszej oferty Projekt z Budową. Przy porównaniu weź pod uwagę nie tylko koszt, ale też różny zakres prac i standard wykonania.

Metoda gospodarcza

Najtańsza metoda - większość prac
budowlanych wykonuje inwestor

Stan surowy zamknięty (SSZ)

432 000 zł netto

Szacunkowy koszt materiałów na I kwartał 2026
  • Prace ziemne i fundamenty

    94 000 zł
  • Konstrukcja, strop oraz dach

    275 000 zł
  • Stolarka okienna i drzwiowa

    63 000 zł
  • Instalacje

    nie obejmuje
  • Prace wykończeniowe

    nie obejmuje
  • Możesz budować etapami, pamiętając jednak o zmianie kosztów w czasie
  • Możesz rozpocząć budowę z częścią niezbędnych środków
  • Sam ustalasz harmonogram, koordynujesz budowę i zapewniasz materiały
Czy da się obniżyć koszty budowy?
Zobacz nasz film jak obniżyć koszt budowy

Projekt z Budową

Najszybsza i najwygodniejsza metoda -
całą budowę domu realizuje jedna firma

Stan deweloperski
Gwarancja stałego kosztu budowy

Gwarancja stałego
kosztu budowy

  • Prace ziemne i fundamenty
  • Konstrukcja, strop oraz dach
  • Stolarka okienna i drzwiowa
  • Instalacje  
    Tooltip

    Obejmuje wykonanie instalacji:

    • wodno-kanalizacyjnej
    • centralnego ogrzewania
    • gazowej
    • elektrycznej
  • Prace wykończeniowe  
    Tooltip

    Prace wykończeniowe obejmują:

    • sufity i ściany wewnętrzne
    • tynki i okładziny ścian wewnętrznych
    • wylewki i posadzkę
    • ocieplenie ścian zewnętrznych i elewację

Budowa
nawet w
6mies.

  • Kompleksowa umowa i znany z góry koszt budowy
  • Logistyka, organizacja budowy i zakupy po stronie firmy budowlanej
  • Formalności i dokumentacje po stronie firmy budowlanej
  • Różne technologie budowy dopasowane do projektu i budżetu
Szczegóły i dostępne technologie
icon

Polecamy

Kosztorys

Zawiera zestawienie wszystkich potrzebnych materiałów wraz z ich cenami, uwzględnia koszty sprzętu i transportu. Z kosztorysem:

  • poznasz całkowite koszty budowy
  • zaplanujesz prace na budowie
  • łatwiej ocenisz konkurencyjność ofert podwykonawców
  • otrzymasz dokument wymagany w procesie kredytowym

Elewacje

Frontowa
Tylna
Lewa
Prawa

Usytuowanie na działce

Czy ten projekt pasuje na
Twoją działkę?

Chętnie to sprawdzimy!

Czy ten projekt pasuje na
Twoją działkę?

Chętnie to sprawdzimy!

Dowiedz się:

  • czy zmieści się na niej wybrany przez Ciebie dom
  • jakie parametry musi spełniać dom według miejscowego planu zagospodarowania lub warunków zabudowy (np. kąt nachylenia i typ dachu, liczba kondygnacji itp.
  • jakie inne projekty pasują na Twoją działkę – znajdziemy je dla Ciebie!
Autor: E-domy

Dane techniczne projektu

Powierzchnie i wymiary Powierzchnie i wymiary

Powierzchnia użytkowa
Tooltip
Suma powierzchni wszystkich pomieszczeń mieszkalnych, pomniejszona o pow. garażu, kotłowni, strychu, piwnicy. Jest liczona w 100% dla pomieszczeń o wysokości powyżej 2,2 m, w 50% dla pomieszczeń o wys. 2,2-1,4 m i niewliczana dla niższych niż 1,4 m.

136,50 m²

Powierzchnia zabudowy
Tooltip
Powierzchnia zajmowana przez część na- oraz nadziemną budynku liczona, jako rzut pionowy budynku na działkę.

234,40 m²

Powierzchnia netto
Tooltip
Powierzchna wszystkich pomieszczeń w budynku mierzona na wysokości podłogi.

176,10 m²

Kubatura netto
Tooltip
Zazwyczaj jest to suma kubatur (objętości) pomieszczeń budynku, bez strychu, liczonych po zewnętrznym obrysie murów (z ociepleniem).

521,90 m³

Powierzchnia dachu

315 m²

Kąt nachylenia dachu
Tooltip
Nachylenie połaci dachu głównego podawane w stopniach. Uwaga! W niektórych projektach występuje więcej niż jedno nachylenie dachu.

30°

Wysokość budynku
Tooltip
Wysokość liczona od części budynku położonej najniżej przy powierzchni terenu do najwyższego punktu dachu (kalenicy) z wyłączeniem kominów.

8,60 m

Szerokość elewacji

15,31 m

Długość elewacji

15,31 m

Min. szerokość działki
Tooltip
Najmniejsza możliwa szerokość działki niezbędna do wybudowania wybranego domu. Składa się z szerokości elewacji domu powiększonej z obu stron o 3 m dla ściany bez otworów drzwiowych/okiennych lub 4 m, dla ściany z otworami.

23,30 m

Min. długość działki
Tooltip
Najmniejsza możliwa długość działki niezbędna do wybudowania wybranego domu. Składa się z długości elewacji domu powiększonej z obu stron o 3 m dla ściany bez otworów drzwiowych/okiennych lub 4 m, dla ściany z otworami.

24,30 m

Energooszczędność Energooszczędność

Oze Czym jest OZE (Odnawialne Źródło Energii)?
Ogrzewanie główne

Gazowe - szczegóły

Dodatkowo istnieje możliwość zamówienia projektu z

Aneks na paliwo stałe

Powietrzna pompa ciepła

Gruntowa pompa ciepła

Pakiet energooszczędny

Interesuje Cię inne źródło ogrzewania? Wyślij zapytanie lub zadzwoń do doradcy

Wentylacja

Mechaniczna nawiewno-wywiewna z rekuperacją - szczegóły

Warunki techniczne

Projekt zgody z WT 2021

Technologia i konstrukcja Technologia i konstrukcja

Konstrukcja

Murowana

PROJEKT Z BUDOWĄ Istnieje możliwość zaadaptowania tego projektu do technologii prefabrykowanej/modułowej i budowy nawet w 6 miesięcy ze stałym kosztem budowy

Dowiedz się więcej »
Opis szczegółowy

Ściany: 25cm ceramika + 18cm styropian. Strop: wylewany żelbetowy. Pokrycie dachowe: dachówka cementowa. Ocieplenie posadzki na gruncie: 20cm styropian. Ocieplenie dachu: 25-30cm wełna mineralna. Stolarka okienna: drewniana. Wykończenie zewnętrze: kamień, płytki klinkierowe lub drewno. Ogrzewanie: gazowe, grzejniki. Wentylacja: mechaniczna.

Strop

Żelbetowy

Reklama
Okna i drzwi tarasowe

Nowoczesne okna PVC i aluminiowe WIŚNIOWSKI – doskonała izolacja, elegancki design i niezrównana trwałość.

Wiśniowski
Sprawdź parametry!
Okna dachowe

Oferujemy bezpłatne konsultacje w zakresie wszystkich rozwiązań VELUX. Wyceny, porady dotyczące doboru okien i rolet zewnętrznych - sprawdź!

Velux
Sprawdź szczegóły
Pompa ciepła

Wybierz pompę ciepła, która pasuje do Twojego domu. Niezależnie od tego, czy ustawienie wewnątrz czy na zewnątrz, pompy ciepła STIEBEL ELTRON dopasują się do każdej przestrzeni.

Stiebel
Dobierz pompę ciepła
Drzwi

Ciepłe drzwi WIŚNIOWSKI z kontrolą dostępu. Szeroka gama wzorów i kolorów.

Wiśniowski
Wybierz najlepsze
Bramy garażowe

Automatyczne bramy garażowe segmentowe i uchylne WIŚNIOWSKI na wymiar i z systemem smart home w standardzie.

Wiśniowski
Sprawdź ofertę!
Rekuperacja

Alnor - kompletny system rekuperacji. Dobierz idealne rozwiązanie dla Twojego domu!

Alnor
Dobierz rekuperator
Dach

Producent stalowych pokryć dachowych i systemów elewacyjnych. Precyzja wykonania, trwałość na lata i szybki montaż doceniany przez dekarzy. Postaw na solidny dach Budmat.

Budmat
Sprawdź ofertę
Ogrodzenie

Nowoczesne stalowe ogrodzenia Budmat - estetyka, bezpieczeństwo i trwałość na lata. Systemowe rozwiązania na wymiar, dopasowane do każdego domu.

Budmat
Sprawdź ofertę

Gotowe domy - najszybszy sposób na dom (115)

Zobacz wszystkie
  • Stan deweloperski nawet w 6 miesięcy
  • Gwarancja stałej ceny
Skonfiguruj dom
Zdjęcie 1 projektu Bergen 130 HUS1002
130,40 m²
4
Stan deweloperski brutto
529 000 zł 4 057 zł/m²
Zdjęcie 1 projektu Dom prefabrykowany DEX136 HDX1002
136 m²
4
Stan deweloperski brutto
895 700 zł 6 586 zł/m²
Zdjęcie 1 projektu Dom prefabrykowany P.5 HPK1004
138,67 m²
5
Stan deweloperski brutto
787 200 zł 5 677 zł/m²
Zdjęcie 1 projektu Dom prefabrykowany P.1 z okapem HPK1000
139,44 m²
3
Stan deweloperski brutto
734 000 zł 5 264 zł/m²
Zdjęcie 1 projektu Dom prefabrykowany P.1 bez okapu HPK1012
139,44 m²
3
Stan deweloperski brutto
712 400 zł 5 109 zł/m²
Zdjęcie 1 projektu Dom prefabrykowany Stodoła 130A HFX1037
133,03 m²
4
Stan deweloperski brutto
575 000 zł 4 322 zł/m²
Zdjęcie 1 projektu Dom prefabrykowany Stodoła 130B HFX1040
132,68 m²
5
Stan deweloperski brutto
575 000 zł 4 334 zł/m²
Zdjęcie 1 projektu Dom prefabrykowany FastHome 130A HFX1032
131,73 m²
4
Stan deweloperski brutto
590 000 zł 4 479 zł/m²

Dodatki do projektu

Dodatki możesz zamówić w koszyku lub telefonicznie u naszego Doradcy.

Czym jest OZE (Odnawialne Źródło Energii)?

Ikona

Bestseller

Kosztorys

649 zł

Ikona

Bestseller

Dodatkowy egzemplarz projektu

649 zł

Ikona

Bestseller

Ogrzewanie podłogowe

549 zł

Ikona

Oze

Aneks na paliwo stałe

499 zł

Ikona

Oze

Powietrzna pompa ciepła

549 zł

Ikona

Oze

Gruntowa pompa ciepła

549 zł

Pokaż więcej (6)

Opis projektu domu
E-232

DomProjekt domu E-232

To komfortowy, parterowy dom w tradycyjnym stylu, idealny dla 3-4 osobowej rodziny. Zaprojektowany z myślą o przyszłości, oferuje ogromne poddasze do adaptacji, co pozwala na elastyczne dostosowanie przestrzeni do zmieniających się potrzeb. Wygodę codziennego użytkowania zapewnia dwustanowiskowy garaż wkomponowany w bryłę budynku.

WyróżnieniaCo wyróżnia ten dom?

  • Ogromne poddasze do adaptacji – Zyskujesz blisko 100 m² dodatkowej przestrzeni, którą możesz zaaranżować na sypialnie, gabinet czy strefę rekreacyjną w dogodnym dla siebie momencie.
  • Otwarta strefa dzienna z kominkiem – Połączenie salonu, jadalni i kuchni tworzy serce domu, idealne do spędzania czasu z rodziną, a kominek dodaje wnętrzu ciepła i przytulności.
  • Narożne okno w kuchni – Nowoczesne przeszklenie, które doskonale doświetla blat roboczy i otwiera widok na ogród, czyniąc gotowanie znacznie przyjemniejszym.
  • Praktyczna spiżarnia przy kuchni – Niezastąpione miejsce do przechowywania zapasów, które pomaga utrzymać porządek i sprawia, że wszystko, czego potrzebujesz, jest zawsze pod ręką.

ArchitekturaArchitektura i wygląd

Projekt E-232 to dom parterowy o klasycznej, zwartej bryle, przykryty eleganckim dachem namiotowym z tradycyjnym okapem. Harmonijna kompozycja i tradycyjny styl sprawiają, że budynek doskonale wpisze się w każde otoczenie. W bryłę domu zgrabnie wkomponowano dwustanowiskowy garaż, co tworzy spójną i funkcjonalną całość. Duże przeszklenia, w tym efektowne okno narożne, subtelnie przełamują klasyczną formę, wpuszczając do wnętrza mnóstwo naturalnego światła.

WnętrzeWnętrze i układ funkcjonalny

Dom oferuje 136,5 m² przemyślanej powierzchni użytkowej. W programie funkcjonalnym przewidziano łącznie 3 pokoje, łazienkę oraz dodatkowe WC, tworząc komfortową przestrzeń dla całej rodziny.

Parter – strefa dzienna

Centralnym punktem domu jest przestronna, otwarta strefa dzienna, w której płynnie łączą się salon, jadalnia oraz kuchnia. To idealne miejsce do wspólnego relaksu i spotkań w rodzinnym gronie, którego sercem jest nastrojowy kominek. Z salonu prowadzi bezpośrednie wyjście na taras, naturalnie powiększając strefę wypoczynku o przestrzeń ogrodu. Funkcjonalność kuchni podnosi narożne okno oraz bezpośredni dostęp do praktycznej spiżarni. Na parterze zlokalizowano również komfortowy pokój, który może pełnić funkcję sypialni lub gabinetu, a także ogólnodostępną łazienkę i osobne WC. Program uzupełnia kotłownia oraz duży, dwustanowiskowy garaż, dostępny z hallu.

Poddasze – strefa nocna

Ogromnym atutem projektu jest obszerne poddasze o powierzchni ponad 97 m², przeznaczone do późniejszej adaptacji. Ta otwarta przestrzeń daje właścicielom pełną swobodę aranżacji i możliwość stworzenia dodatkowych sypialni, pokoju rekreacyjnego, pracowni czy dowolnego innego pomieszczenia, idealnie dopasowanego do rosnących potrzeb rodziny. To rozwiązanie pozwala na rozłożenie inwestycji w czasie i wykończenie domu etapami.

Czytaj więcej

Informacje dodatkowe

Dokumentacja zabezpieczona jest specjalną plombą, której usunięcie uniemożliwi zwrot oraz wymianę projektu. Zapraszamy do zamówienia przed zakupem rysunków szczegółowych projektu oraz analizy posiadanej działki w celu upewnienia się, że wybrany projekt domu idealnie na nią pasuje. W dokumentacji znajduje się jeden egzemplarz projektu architektoniczno-budowlanego, służący do weryfikacji projektu po odbiorze zamówienia bez konieczności otwierania pełnej dokumentacji projektowej.

Czytaj więcej

Polecani producenci

Kompletne systemy rekuperacji

tło producenta

Alnor

Dowiedz się więcej

Dachy modułowe ze stali

tło producenta

Budmat

Poznaj szczegóły oferty

Prefabrykowane konstrukcje dachowe

tło producenta

WIĄZAR POLSKA

Zobacz więcej
Zobacz więcej

Społeczność projektu domu
E-232 w budowie

Dołącz do społeczności osób, które budują ten dom lub są zainteresowane jego budową.

  • Oglądaj zdjęcia z budowy
  • Zadawaj pytania
  • Wymieniaj się doświadczeniami

Opinie o projekcie domu
E-232

Opinie niezweryfikowane

Bądź pierwszy!
Ten projekt nie ma jeszcze opinii, bądź pierwszy!

ikona Dodaj opinię o projekcie

ASYSTENT WYBORU PROJEKTU

Szukasz idealnego projektu? Znajdziemy go dla Ciebie!

Doradca na podstawie Twoich wskazówek przygotuje spersonalizowaną listę projektów

Graficzne opracowanie rzutów poglądowych widocznych na karcie projektu zostało wykonane przez Extradom.pl. Prezentowane przez Extradom.pl wizualizacje wykonane zostały przez autora projektu i należy poczytywać je jedynie za przykład i propozycję wykończenia, wizję architektoniczną autora projektu. Ostateczne wykończenie budynku może nastąpić na wiele sposobów. Szczegółowe rozwiązania zastosowane w oferowanej dokumentacji - w tym również ilość, lokalizacje i wygląd okien, drzwi, kominów - mogą w niewielkim stopniu różnić się od prezentowanej wizualizacji budynku.

Extradom.pl Spółka z ograniczoną odpowiedzialnością z siedzibą przy ul. Jaworskiej 13, 53-612 Wrocław, wpisana do rejestru przedsiębiorców Krajowego Rejestru Sądowego przez Sąd Rejonowy dla Wrocławia-Fabrycznej we Wrocławiu, VI Wydział Gospodarczy Krajowego Rejestru Sądowego do pod numerem KRS 0000648746, numer NIP 895-17-18-333, o kapitale zakładowym 708 150,00 zł uprzejmie informuje, iż poprzez serwis Extradom.pl umożliwia m.in. zapoznanie się przez konsumentów z ofertą handlową Partnerów Extradom.pl, którzy stosują metody budowy domów przy wykorzystaniu różnego rodzaju technologie prefabrykacji bądź modułowe (tzw. „Gotowe domy”).

Extradom.pl nie prowadzi jednakże sprzedaży ani nie oferuje usług polegających na doradztwie finansowym, prawnym ani podatkowym w zakresie inwestycji realizowanych w technologiach tzw. „Gotowych domów”. Informacje prezentowane w serwisie Extradom.pl dotyczące Partnerów Extradom.pl oferujących realizację inwestycji w technologiach „Gotowych domów” lub podobnych mają charakter informacyjny i reklamowy.

Prezentowane w serwisie Extradom.pl informacje dotyczące stosowanych przez Partnerów metod budowy domów w technologii prefabrykacji bądź modułowej pochodzą od Partnerów Extradom.pl.

Extradom.pl sp. z o.o. jedynie umożliwia nawiązanie kontaktu przez Użytkownika z Partnerem Extradom.pl stosującym tego rodzaju technologie budowy domów i nie jest stroną umowy o roboty budowlane zawieranej przez Użytkownika Extradom.pl z Partnerem Extradom.pl.

REKLAMA
Zamknij