Projekty nawet 500 zł taniej ❄️

Koniec oferty za:

00godz.

00min.

00sek.

Sprawdź

Projekt domu Dukla 13gg KRP1657

Dodano!
Dodano!

Warstwy

Warstwy

Rzut parteru

Powierzchnia (m²)
Tooltip
Powierzchnia pomieszczenia
to ta, z której faktycznie możesz korzystać – skosy i niskie części poddasza są liczone częściowo lub wcale.
  1. 100% dla wysokości powyżej 2,2 m,
  2. 50% dla wysokości 1,4–2,2 m,
  3. nie liczymy poniżej 1,4 m.

Powierzchnia podłogi
Liczymy po obrysie pomieszczenia, bez względu na jego wysokość/skosy. Jeśli nie ma skosów to powierzchnia podłogi i pomieszczenia jest taka sama.
pomieszczenia i podłogi
podłogi
1. Wiatrołap
3,58
2. Korytarz
6,84
3. Łazienka
3,35
4. Kuchnia
11,10
5. Pokój dzienny
25,72
6. Pokój
11,25
7. Kotłownia
3,88
8. Garaż dwustanowiskowy
39,87
Razem
105,59
105,59
Powierzchnia (m²)
Tooltip
Powierzchnia pomieszczenia
to ta, z której faktycznie możesz korzystać – skosy i niskie części poddasza są liczone częściowo lub wcale.
  1. 100% dla wysokości powyżej 2,2 m,
  2. 50% dla wysokości 1,4–2,2 m,
  3. nie liczymy poniżej 1,4 m.

Powierzchnia podłogi
Liczymy po obrysie pomieszczenia, bez względu na jego wysokość/skosy. Jeśli nie ma skosów to powierzchnia podłogi i pomieszczenia jest taka sama.
pomieszczenia
podłogi
1. Korytarz
6,27
10,43
2. Pokój
11,34
13,25
3. Pokój
13,94
14,80
4. Garderoba
7,39
8,85
5. Pomieszczenie gospodarcze
10,81
13,03
6. Łazienka
7,65
8,07
7. Pokój
29,01
45,60
Razem
86,41
114,03

    Usytuowanie na działce

    Czy ten projekt pasuje na
    Twoją działkę?

    Chętnie to sprawdzimy!

    Dowiedz się:

    • czy zmieści się na niej wybrany przez Ciebie dom
    • jakie parametry musi spełniać dom według miejscowego planu zagospodarowania lub warunków zabudowy (np. kąt nachylenia i typ dachu, liczba kondygnacji itp.
    • jakie inne projekty pasują na Twoją działkę – znajdziemy je dla Ciebie!

Pow. użytkowa

130,05 m²

Pokoje

4

Łazienki i WC

2

Garaż

2

Min. szer. i dł. działki

24,4 x 17,35 m

Kąt dachu

43°

Konstrukcja

Murowana
więcej

Dukla 13gg - KRP1657

ikona 130,05 m²
Powierzchnia użytkowa
ikona4
Pokoje (bez salonu)
ikona 2
Łazienki (z toaletami)
ikona 2
Liczba stanowisk garażowych
(z wiatą garażową)
ikona
Konstrukcja: Murowana

Projekt został
wycofany z oferty

W razie pytań prosimy o kontakt
z Centrum Obsługi Klienta
Konsultant Masz pytania?
Zadzwoń
71 715 20 60

pon.-pt. 8-21, sob. 9-17

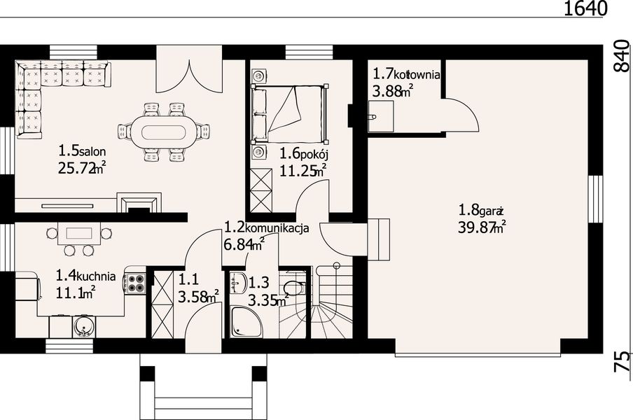
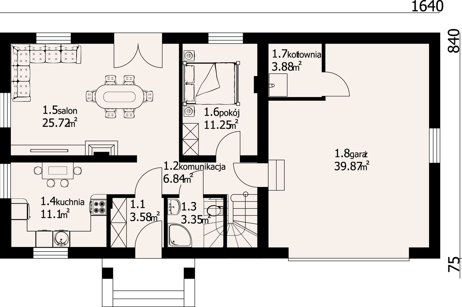
Parter - 105,59 m²

Parter projektu Dukla 13gg

Zapytaj, co możesz zmienić

Powierzchnia (m²)
Tooltip
Powierzchnia pomieszczenia
to ta, z której faktycznie możesz korzystać – skosy i niskie części poddasza są liczone częściowo lub wcale.
  1. 100% dla wysokości powyżej 2,2 m,
  2. 50% dla wysokości 1,4–2,2 m,
  3. nie liczymy poniżej 1,4 m.

Powierzchnia podłogi
Liczymy po obrysie pomieszczenia, bez względu na jego wysokość/skosy. Jeśli nie ma skosów to powierzchnia podłogi i pomieszczenia jest taka sama.
pomieszczenia i podłogi
podłogi
1. Wiatrołap
3,58
2. Korytarz
6,84
3. Łazienka
3,35
4. Kuchnia
11,10
5. Pokój dzienny
25,72
6. Pokój
11,25
7. Kotłownia
3,88
8. Garaż dwustanowiskowy
39,87
Razem
105,59
105,59

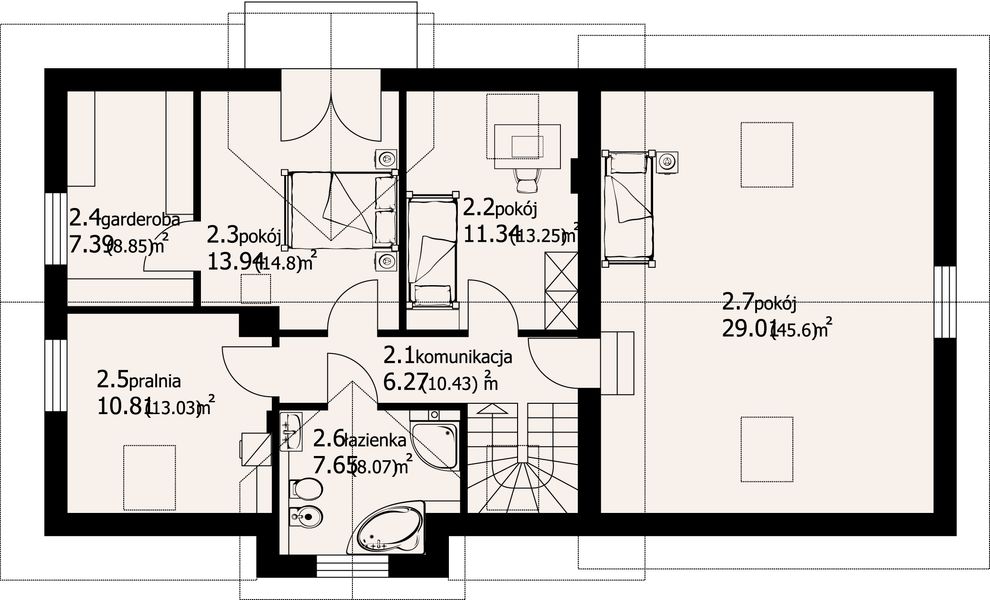
Poddasze - 86,41 m²

Poddasze projektu Dukla 13gg

Zapytaj, co możesz zmienić

Powierzchnia (m²)
Tooltip
Powierzchnia pomieszczenia
to ta, z której faktycznie możesz korzystać – skosy i niskie części poddasza są liczone częściowo lub wcale.
  1. 100% dla wysokości powyżej 2,2 m,
  2. 50% dla wysokości 1,4–2,2 m,
  3. nie liczymy poniżej 1,4 m.

Powierzchnia podłogi
Liczymy po obrysie pomieszczenia, bez względu na jego wysokość/skosy. Jeśli nie ma skosów to powierzchnia podłogi i pomieszczenia jest taka sama.
pomieszczenia
podłogi
1. Korytarz
6,27
10,43
2. Pokój
11,34
13,25
3. Pokój
13,94
14,80
4. Garderoba
7,39
8,85
5. Pomieszczenie gospodarcze
10,81
13,03
6. Łazienka
7,65
8,07
7. Pokój
29,01
45,60
Razem
86,41
114,03

Warianty projektu (2)

PROMOCJA
Projekt domu Dukla 19 gg
Dukla 19 gg
Dodano!
Dodano!
107,90 m²
4
2
2

4 999 zł

5 299 zł

Tooltip

Cena regularna

4 799 zł najniższa cena
Tooltip

Najniższa cena z 30 dni
przed obniżką

PROMOCJA
Projekt domu Dukla 11gg
Dukla 11gg
Dodano!
Dodano!
112,87 m²
5
2
2

4 999 zł

5 299 zł

Tooltip

Cena regularna

4 799 zł najniższa cena
Tooltip

Najniższa cena z 30 dni
przed obniżką

Podobne projekty (7339)

Zobacz wszystkie
Zdjęcie 1 projektu Nasza Stodoła S powiększona KRY1004
119,69 m²
4
3
1

5 500 zł

NIŻSZA CENA❄️
Zdjęcie 1 projektu Domidea 58 G WAC1026
Domidea 58 G
Dodano!
Dodano!
104,48 m²
4
2
1

5 235 zł

5 535 zł

Tooltip

Cena regularna

5 235 zł najniższa cena
Tooltip

Najniższa cena z 30 dni
przed obniżką

Zdjęcie 1 projektu Nasza Stodoła S powiększona wersja szkieletowa KRY1011
126,38 m²
4
3
1

5 500 zł

NIŻSZA CENA❄️
Zdjęcie 1 projektu Albatros WAH1506
Albatros
Dodano!
Dodano!
128,63 m²
4
3
1

4 784 zł

5 980 zł

Tooltip

Cena regularna

4 485 zł najniższa cena
Tooltip

Najniższa cena z 30 dni
przed obniżką

NIŻSZA CENA❄️
Zdjęcie 1 projektu Malutki 12 BSA2394
Malutki 12
Dodano!
Dodano!
109,74 m²
4
2
2

5 249 zł

5 749 zł

Tooltip

Cena regularna

5 249 zł najniższa cena
Tooltip

Najniższa cena z 30 dni
przed obniżką

Nowość
Zdjęcie 1 projektu Tyniec 03A KZB1027
Tyniec 03A
Dodano!
Dodano!
136,04 m²
5
3
2

4 700 zł

NIŻSZA CENA❄️
Zdjęcie 1 projektu Reksio X BSB1150
Reksio X
Dodano!
Dodano!
112,42 m²
4
2
1

4 712 zł

4 960 zł

Tooltip

Cena regularna

4 464 zł najniższa cena
Tooltip

Najniższa cena z 30 dni
przed obniżką

NIŻSZA CENA❄️
Zdjęcie 1 projektu Lajkonik (1565) KRD2714
Lajkonik (1565)
Dodano!
Dodano!
150,80 m²
5
2
0

4 540 zł

4 890 zł

Tooltip

Cena regularna

4 340 zł najniższa cena
Tooltip

Najniższa cena z 30 dni
przed obniżką

Elewacje

Frontowa
Tylna
Lewa
Prawa

Przekroje

Przekrój pionowy

Usytuowanie na działce

Czy ten projekt pasuje na
Twoją działkę?

Chętnie to sprawdzimy!

Czy ten projekt pasuje na
Twoją działkę?

Chętnie to sprawdzimy!

Dowiedz się:

  • czy zmieści się na niej wybrany przez Ciebie dom
  • jakie parametry musi spełniać dom według miejscowego planu zagospodarowania lub warunków zabudowy (np. kąt nachylenia i typ dachu, liczba kondygnacji itp.
  • jakie inne projekty pasują na Twoją działkę – znajdziemy je dla Ciebie!
Autor: Dom-Projekt

Dane techniczne projektu

Powierzchnie i wymiary Powierzchnie i wymiary

Powierzchnia użytkowa
Tooltip
Suma powierzchni wszystkich pomieszczeń mieszkalnych, pomniejszona o pow. garażu, kotłowni, strychu, piwnicy. Jest liczona w 100% dla pomieszczeń o wysokości powyżej 2,2 m, w 50% dla pomieszczeń o wys. 2,2-1,4 m i niewliczana dla niższych niż 1,4 m.

130,05 m²

Powierzchnia zabudowy
Tooltip
Powierzchnia zajmowana przez część na- oraz nadziemną budynku liczona, jako rzut pionowy budynku na działkę.

137,76 m²

Powierzchnia netto
Tooltip
Powierzchna wszystkich pomieszczeń w budynku mierzona na wysokości podłogi.

212,48 m²

Kubatura brutto
Tooltip
Zazwyczaj jest to suma kubatur (objętości) wszystkich pomieszczeń budynku, liczonych po zewnętrznym obrysie murów (z ociepleniem).

733,50 m³

Powierzchnia dachu

255,42 m²

Kąt nachylenia dachu
Tooltip
Nachylenie połaci dachu głównego podawane w stopniach. Uwaga! W niektórych projektach występuje więcej niż jedno nachylenie dachu.

43°

Wysokość budynku
Tooltip
Wysokość liczona od części budynku położonej najniżej przy powierzchni terenu do najwyższego punktu dachu (kalenicy) z wyłączeniem kominów.

8,84 m

Min. szerokość działki
Tooltip
Najmniejsza możliwa szerokość działki niezbędna do wybudowania wybranego domu. Składa się z szerokości elewacji domu powiększonej z obu stron o 3 m dla ściany bez otworów drzwiowych/okiennych lub 4 m, dla ściany z otworami.

24,40 m

Min. długość działki
Tooltip
Najmniejsza możliwa długość działki niezbędna do wybudowania wybranego domu. Składa się z długości elewacji domu powiększonej z obu stron o 3 m dla ściany bez otworów drzwiowych/okiennych lub 4 m, dla ściany z otworami.

17,35 m

Energooszczędność Energooszczędność

Oze Czym jest OZE (Odnawialne Źródło Energii)?
Warunki techniczne

Projekt zgody z WT 2021

Technologia i konstrukcja Technologia i konstrukcja

Konstrukcja

Murowana

Opis szczegółowy

Strop: płyta żelbetowa. Pokrycie dachu: dachówka ceramiczna. Ściany zewnętrzne: pustaki ceramiczne + styropian. Ściany wewnętrzne: pustaki ceramiczne. Typ ogrzewania: kocioł gazowy.

Strop

Żelbetowy

Reklama
Okna i drzwi tarasowe

Nowoczesne okna PVC i aluminiowe WIŚNIOWSKI – doskonała izolacja, elegancki design i niezrównana trwałość.

Wiśniowski
Sprawdź parametry!
Okna dachowe

Oferujemy bezpłatne konsultacje w zakresie wszystkich rozwiązań VELUX. Wyceny, porady dotyczące doboru okien i rolet zewnętrznych - sprawdź!

Velux
Sprawdź szczegóły
Płytki ceramiczne i gresy

Od małych formatów po wielkoformatowe gresy. Marmur, beton, drewno, kamień, lastryko czy cegiełki zamówisz wygodnie online z szybką dostawą.

Ceramzet
Sprawdź ofertę
Drzwi

Ciepłe drzwi WIŚNIOWSKI z kontrolą dostępu. Szeroka gama wzorów i kolorów.

Wiśniowski
Wybierz najlepsze
Bramy garażowe

Automatyczne bramy garażowe segmentowe i uchylne WIŚNIOWSKI na wymiar i z systemem smart home w standardzie.

Wiśniowski
Sprawdź ofertę!
Armatura i ceramika łazienkowa

Topowi producenci. Baterie łazienkowe, zestawy natynkowe i podtynkowe, umywalki, wanny, miski WC oraz kabiny zamówisz kompleksowo online.

Ceramzet II
Dowiedz się więcej
Rekuperacja

Alnor - kompletny system rekuperacji. Dobierz idealne rozwiązanie dla Twojego domu!

Alnor
Dobierz rekuperator
Gruntowe pompy ciepła

Przeprowadzimy kompletną instalację najbardziej oszczędnego źródła ciepła w Twoim nowym domu - gruntowej pompy ciepła. Od dokumentacji, pozwoleń, po odwierty i instalację.

Geothermal Solutions
Dowiedz się więcej

Gotowe domy modułowe (114)

Zobacz wszystkie
Stan deweloperski nawet w 6 miesięcy Gwarancja stałej ceny
Zdjęcie 1 projektu Dom prefabrykowany Piętrowy 130A HFX1021
Pow. użytkowa
130,40 m²
Pokoje
4
539 000 zł 4 133 zł/m²
Zdjęcie 1 projektu Dom prefabrykowany Piętrowy 130B HFX1022
Pow. użytkowa
131,60 m²
Pokoje
5
539 000 zł 4 096 zł/m²
Zdjęcie 1 projektu Dom prefabrykowany Piętrowy 130C HFX1023
Pow. użytkowa
132 m²
Pokoje
4
539 000 zł 4 083 zł/m²
Zdjęcie 1 projektu Dom prefabrykowany DEX136 HDX1002
Pow. użytkowa
136 m²
Pokoje
4
845 000 zł 6 213 zł/m²
Zdjęcie 1 projektu Dom prefabrykowany P.11 HPK1011
Pow. użytkowa
122,88 m²
Pokoje
3
681 300 zł 5 544 zł/m²
Zdjęcie 1 projektu Dom prefabrykowany Parterowy 120B HFX1016
Pow. użytkowa
122,36 m²
Pokoje
3
489 000 zł 3 996 zł/m²
Zdjęcie 1 projektu Dom szkieletowy Twin Smart 170 HHT1031
Pow. użytkowa
121,95 m²
Pokoje
5
1 650 700 zł 13 536 zł/m²
Zdjęcie 1 projektu Dom prefabrykowany P.3 z okapem HPK1013
Pow. użytkowa
121,46 m²
Pokoje
5
600 100 zł 4 941 zł/m²

Opis projektu domu
Dukla 13gg

Dom Dukla 13gg jest alternatywą popularnego projektu Dukla dw. W przeciwieństwie do bazowej wersji projekt ma większą powierzchnię, garaż. Projekt domu Dukla 13gg jest doskonałym rozwiązaniem dla osób posiadających średniej szerokości działkę. Dom posiada typową bryłę, więc będzie się dobrze prezentował niezależnie od otoczenia. Projekt należy do kategorii domów z kalenicą usytuowaną równolegle do drogi, co jest bardzo istotnie, gdy wymaga tego plan zagospodarowania przestrzennego. Dom został zaprojektowany do zabudowy wolnostojącej. Posiada garaż trzystanowiskowy w linii budynku. Jest to również doskonała propozycja dla osób szukających domu z dachem dwuspadowym, co pozwala na znaczne oszczędności. Projekt Dukla 13gg to dom parterowy z poddaszem użytkowym, co sprawia, że metraż powierzchni użytkowej nie jest ograniczony wielkością działki. Sercem domu jest przestronna strefa dzienna, która sprzyja spędzaniu wspólnego czasu w gronie najbliższych. Tworzy ją między innymi funkcjonalna kuchnia, którą każdy Inwestor swobodnie dostosuje do swoich potrzeb. W pełni funkcjonalną łazienkę przewidziano zarówno na parterze, jak i poddaszu, co jest świetnym rozwiązaniem dla większej ilości domowników. Strefa sypialniana składa się z czterech pokoi, co jest doskonałą opcją dla 4-6 osobowej rodziny. Przestrzeń można wykorzystać także jako pokój dla gości lub gabinet. Taras przy domu sprzyja spędzaniu czasu na świeżym powietrzu. Budynek został zaprojektowany w technologii murowanej. Dukla 13gg nawiązuje do stylu tradycyjnego, co jest idealnym rozwiązaniem dla osób ceniących klasykę i prostotę.
Czytaj więcej

Polecani producenci

Prefabrykowane konstrukcje dachowe

tło producenta

WIĄZAR POLSKA

Zobacz więcej

Sprawdź nową generację okien GREENVIEW

tło producenta

FAKRO

Sprawdź nową generację okien GREENVIEW

Styropian, tynki, farby, kleje

tło producenta

Termo Organika

Poznaj super jakość

Okna, drzwi, osłony przeciwsłoneczne

tło producenta

Aluprof

Sprawdź ofertę

Kompletne systemy rekuperacji

tło producenta

Alnor

Dowiedz się więcej

Sprawdź nowy system DACHRYNNA

tło producenta

Galeco

Sprawdź ofertę
Zobacz więcej

Społeczność projektu domu
Dukla 13gg w budowie

Dołącz do społeczności osób, które budują ten dom lub są zainteresowane jego budową.

  • Oglądaj zdjęcia z budowy
  • Zadawaj pytania
  • Wymieniaj się doświadczeniami

Opinie o projekcie domu Dukla 13gg

Ocena

Ten projekt nie ma jeszcze opinii, bądź pierwszy!

Dodaj opinię

ASYSTENT WYBORU PROJEKTU

Szukasz idealnego projektu? Znajdziemy go dla Ciebie!

Doradca na podstawie Twoich wskazówek przygotuje spersonalizowaną listę projektów

Graficzne opracowanie rzutów poglądowych widocznych na karcie projektu zostało wykonane przez Extradom.pl. Prezentowane przez Extradom.pl wizualizacje wykonane zostały przez autora projektu i należy poczytywać je jedynie za przykład i propozycję wykończenia, wizję architektoniczną autora projektu. Ostateczne wykończenie budynku może nastąpić na wiele sposobów. Szczegółowe rozwiązania zastosowane w oferowanej dokumentacji - w tym również ilość, lokalizacje i wygląd okien, drzwi, kominów - mogą w niewielkim stopniu różnić się od prezentowanej wizualizacji budynku.

REKLAMA
Zamknij