👉 Projekty w extracenach + karta allegro 200 zł! 🔥

Koniec oferty za:

00godz.

00min.

00sek.

Sprawdź

Projekt domu Domidea 4 N WAC1023

Zapisz Dodano!
Porównaj Dodano!
ikona Pobierz i drukuj

Warstwy

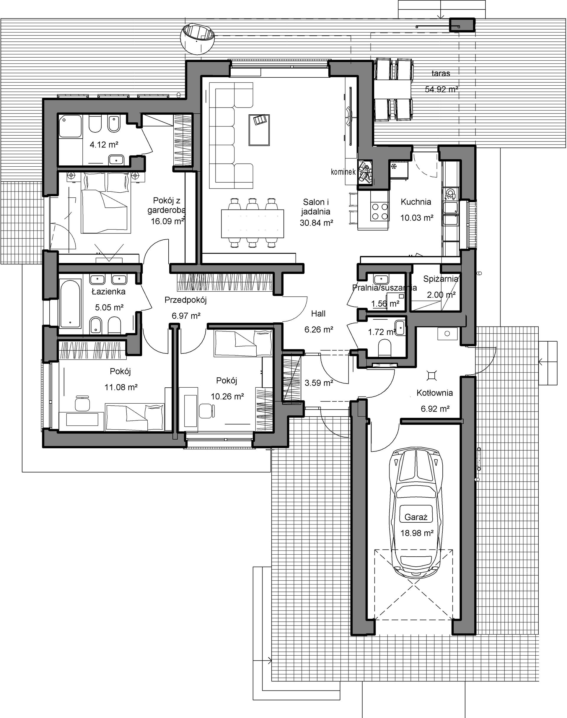
Rzut parteru

Powierzchnia (m²)
Tooltip
Powierzchnia pomieszczenia
to ta, z której faktycznie możesz korzystać – skosy i niskie części poddasza są liczone częściowo lub wcale.
  1. 100% dla wysokości powyżej 2,2 m,
  2. 50% dla wysokości 1,4–2,2 m,
  3. nie liczymy poniżej 1,4 m.

Powierzchnia podłogi
Liczymy po obrysie pomieszczenia, bez względu na jego wysokość/skosy. Jeśli nie ma skosów to powierzchnia podłogi i pomieszczenia jest taka sama.
pomieszczenia i podłogi
podłogi
1. Wiatrołap
3,59
2. Hall
6,26
3. Korytarz
6,97
4. Pokój
10,26
5. Pokój
11,08
6. Łazienka
5,05
7. Pokój
16,09
8. Łazienka
4,12
9. Pokój dzienny + jadalnia
30,84
10. Kuchnia
10,03
11. Spiżarnia
2
12. Pomieszczenie gospodarcze
1,56
13. Wc
1,72
14. Kotłownia
6,92
15. Garaż jednostanowiskowy
18,98
Razem
135,47
135,47

    Usytuowanie na działce

    Czy ten projekt pasuje na
    Twoją działkę?

    Chętnie to sprawdzimy!

    Dowiedz się:

    • czy zmieści się na niej wybrany przez Ciebie dom
    • jakie parametry musi spełniać dom według miejscowego planu zagospodarowania lub warunków zabudowy (np. kąt nachylenia i typ dachu, liczba kondygnacji itp.
    • jakie inne projekty pasują na Twoją działkę – znajdziemy je dla Ciebie!

Pow. użytkowa

109,56 m²

Pokoje

3

Łazienki i WC

3

Garaż

1

Min. szer. i dł. działki

21,8 x 26,40 m

Kąt dachu

Konstrukcja

Murowana
więcej

Domidea 4 N - WAC1023

ikona 109,56 m²
Powierzchnia użytkowa
ikona3
Pokoje (bez salonu)
ikona 3
Łazienki (z toaletami)
ikona 1
Liczba stanowisk garażowych
(z wiatą garażową)
ikona
Konstrukcja: Murowana

Projekt został
wycofany z oferty

W razie pytań prosimy o kontakt
z Centrum Obsługi Klienta
Konsultant
71 715 20 60

pon.-pt. 8-21, sob. 9-17

Parter - 135,47 m²

Parter projektu Domidea 4 N

Zapytaj, co możesz zmienić

Powierzchnia (m²)
Tooltip
Powierzchnia pomieszczenia
to ta, z której faktycznie możesz korzystać – skosy i niskie części poddasza są liczone częściowo lub wcale.
  1. 100% dla wysokości powyżej 2,2 m,
  2. 50% dla wysokości 1,4–2,2 m,
  3. nie liczymy poniżej 1,4 m.

Powierzchnia podłogi
Liczymy po obrysie pomieszczenia, bez względu na jego wysokość/skosy. Jeśli nie ma skosów to powierzchnia podłogi i pomieszczenia jest taka sama.
pomieszczenia i podłogi
podłogi
1. Wiatrołap
3,59
2. Hall
6,26
3. Korytarz
6,97
4. Pokój
10,26
5. Pokój
11,08
6. Łazienka
5,05
7. Pokój
16,09
8. Łazienka
4,12
9. Pokój dzienny + jadalnia
30,84
10. Kuchnia
10,03
11. Spiżarnia
2
12. Pomieszczenie gospodarcze
1,56
13. Wc
1,72
14. Kotłownia
6,92
15. Garaż jednostanowiskowy
18,98
Razem
135,47
135,47

Warianty projektu (8)

PROMOCJA
Projekt domu Domidea 2 FN
Domidea 2 FN
Dodano!
Dodano!
120,91 m²
3
3
1

5 604 zł

5 904 zł

Tooltip

Cena regularna

5 604 zł najniższa cena
Tooltip

Najniższa cena z 30 dni
przed obniżką

PROMOCJA
Projekt domu Domidea 2 dN
Domidea 2 dN
Dodano!
Dodano!
117,62 m²
3
3
1

5 604 zł

5 904 zł

Tooltip

Cena regularna

5 604 zł najniższa cena
Tooltip

Najniższa cena z 30 dni
przed obniżką

PROMOCJA
Projekt domu Domidea 2 d
Domidea 2 d
Dodano!
Dodano!
117,66 m²
3
3
1

5 604 zł

5 904 zł

Tooltip

Cena regularna

5 604 zł najniższa cena
Tooltip

Najniższa cena z 30 dni
przed obniżką

PROMOCJA
Projekt domu Domidea 2 dNN
Domidea 2 dNN
Dodano!
Dodano!
117,23 m²
3
3
1

5 604 zł

5 904 zł

Tooltip

Cena regularna

5 604 zł najniższa cena
Tooltip

Najniższa cena z 30 dni
przed obniżką

PROMOCJA
Projekt domu Domidea 2
Domidea 2
Dodano!
Dodano!
117,33 m²
3
3
1

5 604 zł

5 904 zł

Tooltip

Cena regularna

5 604 zł najniższa cena
Tooltip

Najniższa cena z 30 dni
przed obniżką

Projekt domu Domidea 4
Domidea 4
Dodano!
Dodano!
97,83 m²
3
2
0

5 904 zł

PROMOCJA
Projekt domu Domidea 6
Domidea 6
Dodano!
Dodano!
129,34 m²
3
3
2

5 604 zł

5 904 zł

Tooltip

Cena regularna

5 604 zł najniższa cena
Tooltip

Najniższa cena z 30 dni
przed obniżką

Projekt domu Domidea 7
Domidea 7
Dodano!
Dodano!
147 m²
4
3
2

5 904 zł

Podobne projekty (1736)

Zobacz wszystkie
NIŻSZA CENA 🔥
Zdjęcie 1 projektu Dom przy Rubinowej 10 KRK1711
Dom przy Rubinowej 10
Dodano!
Dodano!
107,76 m²
3
2
1

3 290 zł

3 790 zł

Tooltip

Cena regularna

3 290 zł najniższa cena
Tooltip

Najniższa cena z 30 dni
przed obniżką

NIŻSZA CENA 🔥
Nowość
Zdjęcie 1 projektu Mokka 20 plus s2 WOF1283
Mokka 20 plus s2
Dodano!
Dodano!
99,58 m²
3
2
2

3 999 zł

4 199 zł

Tooltip

Cena regularna

3 999 zł najniższa cena
Tooltip

Najniższa cena z 30 dni
przed obniżką

Zdjęcie 1 projektu Mini 4 modern energo WRC2765
Mini 4 modern energo
Dodano!
Dodano!
114,22 m²
3
2
0

5 200 zł

Zdjęcie 1 projektu HomeKoncept 75 B KRX1098
HomeKoncept 75 B
Dodano!
Dodano!
104,57 m²
3
2
1

9 490 zł

NIŻSZA CENA 🔥
Zdjęcie 1 projektu Anatol WAH1216
Anatol
Dodano!
Dodano!
103,04 m²
4
3
1

4 872 zł

6 090 zł

Tooltip

Cena regularna

4 872 zł najniższa cena
Tooltip

Najniższa cena z 30 dni
przed obniżką

NIŻSZA CENA 🔥
Zdjęcie 1 projektu Tamara modern WZ WOE1117
Tamara modern WZ
Dodano!
Dodano!
113,39 m²
3
2
1

4 199 zł

4 599 zł

Tooltip

Cena regularna

4 199 zł najniższa cena
Tooltip

Najniższa cena z 30 dni
przed obniżką

Zdjęcie 1 projektu HomeKoncept 122 G2 KRX1282
HomeKoncept 122 G2
Dodano!
Dodano!
107,62 m²
3
2
2

6 790 zł

NIŻSZA CENA 🔥
Zdjęcie 1 projektu Tamara modern WOE1110
Tamara modern
Dodano!
Dodano!
111,42 m²
3
2
1

4 199 zł

4 599 zł

Tooltip

Cena regularna

4 199 zł najniższa cena
Tooltip

Najniższa cena z 30 dni
przed obniżką

Elewacje

Frontowa
Tylna
Lewa
Prawa

Przekroje

Przekrój pionowy

Usytuowanie na działce

Czy ten projekt pasuje na
Twoją działkę?

Chętnie to sprawdzimy!

Czy ten projekt pasuje na
Twoją działkę?

Chętnie to sprawdzimy!

Dowiedz się:

  • czy zmieści się na niej wybrany przez Ciebie dom
  • jakie parametry musi spełniać dom według miejscowego planu zagospodarowania lub warunków zabudowy (np. kąt nachylenia i typ dachu, liczba kondygnacji itp.
  • jakie inne projekty pasują na Twoją działkę – znajdziemy je dla Ciebie!
Autor: Domidea SKA

Dane techniczne projektu

Powierzchnie i wymiary Powierzchnie i wymiary

Powierzchnia użytkowa
Tooltip
Suma powierzchni wszystkich pomieszczeń mieszkalnych, pomniejszona o pow. garażu, kotłowni, strychu, piwnicy. Jest liczona w 100% dla pomieszczeń o wysokości powyżej 2,2 m, w 50% dla pomieszczeń o wys. 2,2-1,4 m i niewliczana dla niższych niż 1,4 m.

109,56 m²

Powierzchnia zabudowy
Tooltip
Powierzchnia zajmowana przez część na- oraz nadziemną budynku liczona, jako rzut pionowy budynku na działkę.

172,31 m²

Powierzchnia dachu

185,78 m²

Kąt nachylenia dachu
Tooltip
Nachylenie połaci dachu głównego podawane w stopniach. Uwaga! W niektórych projektach występuje więcej niż jedno nachylenie dachu.

Wysokość budynku
Tooltip
Wysokość liczona od części budynku położonej najniżej przy powierzchni terenu do najwyższego punktu dachu (kalenicy) z wyłączeniem kominów.

5,10 m

Min. szerokość działki
Tooltip
Najmniejsza możliwa szerokość działki niezbędna do wybudowania wybranego domu. Składa się z szerokości elewacji domu powiększonej z obu stron o 3 m dla ściany bez otworów drzwiowych/okiennych lub 4 m, dla ściany z otworami.

21,80 m

Min. długość działki
Tooltip
Najmniejsza możliwa długość działki niezbędna do wybudowania wybranego domu. Składa się z długości elewacji domu powiększonej z obu stron o 3 m dla ściany bez otworów drzwiowych/okiennych lub 4 m, dla ściany z otworami.

26,40 m

Energooszczędność Energooszczędność

Oze Czym jest OZE (Odnawialne Źródło Energii)?
Ogrzewanie główne

Gazowe lub paliwo stałe (OZE) - do wyboru na etapie zamówienia

Interesuje Cię inne źródło ogrzewania? Wyślij zapytanie lub zadzwoń do doradcy

Wentylacja

Grawitacyjna - szczegóły

Warunki techniczne

Projekt zgody z WT 2021

Technologia i konstrukcja Technologia i konstrukcja

Konstrukcja

Murowana

Opis szczegółowy

Ściany zewnętrzne tradycyjne murowane dwuwarstwowe - pustak ceramiczny 25 cm i styropian. Strop gęstożebrowy. Dach: stropodach.

Strop

Gęstożebrowy

Reklama
Okna i drzwi tarasowe

Nowoczesne okna PVC i aluminiowe WIŚNIOWSKI – doskonała izolacja, elegancki design i niezrównana trwałość.

Wiśniowski
Sprawdź parametry!
Okna dachowe

Oferujemy bezpłatne konsultacje w zakresie wszystkich rozwiązań VELUX. Wyceny, porady dotyczące doboru okien i rolet zewnętrznych - sprawdź!

Velux
Sprawdź szczegóły
Pompa ciepła

Wybierz pompę ciepła, która pasuje do Twojego domu. Niezależnie od tego, czy ustawienie wewnątrz czy na zewnątrz, pompy ciepła STIEBEL ELTRON dopasują się do każdej przestrzeni.

Stiebel
Dobierz pompę ciepła
Płytki ceramiczne i gresy

Od małych formatów po wielkoformatowe gresy. Marmur, beton, drewno, kamień, lastryko czy cegiełki zamówisz wygodnie online z szybką dostawą.

Ceramzet
Sprawdź ofertę
Elewacja

Kup przez internet wszystkie materiały potrzebne do wykonania elewacji: styropian, płyty PIR, XPS, kleje, tynki. Najlepsze marki w super cenach z dostawą pod dom.

Hurtownia styropianu
Sprawdź ofertę!
Drzwi

Ciepłe drzwi WIŚNIOWSKI z kontrolą dostępu. Szeroka gama wzorów i kolorów.

Wiśniowski
Wybierz najlepsze
Bramy garażowe

Automatyczne bramy garażowe segmentowe i uchylne WIŚNIOWSKI na wymiar i z systemem smart home w standardzie.

Wiśniowski
Sprawdź ofertę!
Rekuperacja

Alnor - kompletny system rekuperacji. Dobierz idealne rozwiązanie dla Twojego domu!

Alnor
Dobierz rekuperator
Dach

Producent stalowych pokryć dachowych i systemów elewacyjnych. Precyzja wykonania, trwałość na lata i szybki montaż doceniany przez dekarzy. Postaw na solidny dach Budmat.

Budmat
Sprawdź ofertę
Ogrodzenie

Nowoczesne stalowe ogrodzenia Budmat - estetyka, bezpieczeństwo i trwałość na lata. Systemowe rozwiązania na wymiar, dopasowane do każdego domu.

Budmat
Sprawdź ofertę

Gotowe domy - najszybszy sposób na dom (115)

Zobacz wszystkie
  • Stan deweloperski nawet w 6 miesięcy
  • Gwarancja stałej ceny
Skonfiguruj dom
Zdjęcie 1 projektu Bergen 110 HUS1001
110,80 m²
3
Stan deweloperski brutto
449 000 zł 4 052 zł/m²
Zdjęcie 1 projektu Dom keramzytowy Atrakcyjna Stodoła AS110 HAK1005
109,71 m²
4
Stan deweloperski brutto
532 520 zł 4 854 zł/m²
Zdjęcie 1 projektu Dom szkieletowy Functional Smart 110 HHT1018
110,12 m²
3
Stan deweloperski brutto
525 337 zł 4 771 zł/m²
Zdjęcie 1 projektu Dom keramzytowy EP1 HAK1006
110,57 m²
3
Stan deweloperski brutto
473 700 zł 4 284 zł/m²
Zdjęcie 1 projektu Dom prefabrykowany Parterowy 110A HFX1009
110,71 m²
3
Stan deweloperski brutto
475 000 zł 4 290 zł/m²
Zdjęcie 1 projektu Dom keramzytowy Atrakcyjna Stodoła AS132G HAK1004
108,09 m²
3
Stan deweloperski brutto
635 500 zł 4 814 zł/m²
Zdjęcie 1 projektu Dom prefabrykowany P.8 HPK1007
108,05 m²
4
Stan deweloperski brutto
624 000 zł 5 775 zł/m²
Zdjęcie 1 projektu Dom prefabrykowany Parterowy 110B HFX1013
111,33 m²
4
Stan deweloperski brutto
475 000 zł 4 267 zł/m²

Opis projektu domu
Domidea 4 N

Projekt domu Domidea 4 N jest modyfikacją znanego projektu Domidea 2. W przeciwieństwie do bazowej wersji projekt ma mniejszą powierzchnię. Projekt domu Domidea 4 N jest doskonałym rozwiązaniem dla osób posiadających średniej szerokości działkę. Dom posiada typową bryłę, więc będzie się dobrze prezentował niezależnie od otoczenia. Projekt został stworzony z myślą o działkach pozwalających na usytuowanie domu w zabudowie wolnostojącej. W projekcie zaproponowano garaż jednostanowiskowy wysunięty do przodu. Jest to również doskonała propozycja dla osób szukających domu z dachem płaskim, dzięki czemu budynek nowocześnie się prezentuje. Projekt Domidea 4 N to dom parterowy, co sprawia, że komunikacja między pomieszczeniami jest bardzo wygodna. Zwolenników przestronnych przestrzeni z pewnością ucieszy przewidziana w projekcie część dzienna. Doskonale przemyślane rozwiązania w kuchni dają wiele możliwości aranżacyjnych oraz ułatwią codzienne korzystanie. Dodatkowo przydatnym pomieszczeniem jest pojemna spiżarka. W projekcie połączono jadalnię z salonem, dzięki czemu strefa dzienna staje się centrum rodzinnego życia. Usytuowany w salonie kominek sprawi, iż wnętrze stanie się bardziej przytulne. Strefa sypialniana składa się z trzech pokoi, co jest doskonałą opcją dla niedużej rodziny. Przestrzeń można wykorzystać także jako pokój dla gości lub gabinet. W domu nie zabrakło również miejsca na praktyczne zaplecze gospodarcze. Efektowny taras pozwala na kontakt z naturą bez zbytniego oddalania się od domowego zacisza. Dom zaprojektowano w technologii murowanej. W jego bryle widoczne są rozwiązania nawiązujące do stylu nowoczesnego, co jest idealnym rozwiązaniem dla osób ceniących najnowsze rozwiązania.
Czytaj więcej

Informacje dodatkowe

Uwaga! Powierzchnia użytkowa podana w dokumentacji projektowej może być mniejsza o ok. 3-4 mkw od podanej na stronie. Jest to związane wyłącznie ze zmianą sposobu liczenia pow. użytkowej. Wymiary budynku i jego forma nie ulegną zmianie. Zmiana dotyczy projektów dostosowanych do nowej formy dokumentacji 3+.

Czytaj więcej

Polecani producenci

Kompletne systemy rekuperacji

tło producenta

Alnor

Dowiedz się więcej

Dachy modułowe ze stali

tło producenta

Budmat

Poznaj szczegóły oferty

Prefabrykowane konstrukcje dachowe

tło producenta

WIĄZAR POLSKA

Zobacz więcej

Sprawdź nową generację okien GREENVIEW

tło producenta

FAKRO

Sprawdź nową generację okien GREENVIEW

Styropian, tynki, farby, kleje

tło producenta

Termo Organika

Poznaj super jakość

Okna, drzwi, osłony przeciwsłoneczne

tło producenta

Aluprof

Sprawdź ofertę
Zobacz więcej

Społeczność projektu domu
Domidea 4 N w budowie

Dołącz do społeczności osób, które budują ten dom lub są zainteresowane jego budową.

  • Oglądaj zdjęcia z budowy
  • Zadawaj pytania
  • Wymieniaj się doświadczeniami

Opinie o projekcie domu Domidea 4 N

Ocena

Ten projekt nie ma jeszcze opinii, bądź pierwszy!

Dodaj opinię

ASYSTENT WYBORU PROJEKTU

Szukasz idealnego projektu? Znajdziemy go dla Ciebie!

Doradca na podstawie Twoich wskazówek przygotuje spersonalizowaną listę projektów

Graficzne opracowanie rzutów poglądowych widocznych na karcie projektu zostało wykonane przez Extradom.pl. Prezentowane przez Extradom.pl wizualizacje wykonane zostały przez autora projektu i należy poczytywać je jedynie za przykład i propozycję wykończenia, wizję architektoniczną autora projektu. Ostateczne wykończenie budynku może nastąpić na wiele sposobów. Szczegółowe rozwiązania zastosowane w oferowanej dokumentacji - w tym również ilość, lokalizacje i wygląd okien, drzwi, kominów - mogą w niewielkim stopniu różnić się od prezentowanej wizualizacji budynku.

REKLAMA
Zamknij