Projekty nawet 500 zł taniej ❄️

Koniec oferty za:

00godz.

00min.

00sek.

Sprawdź

Projekt domu Dom przy Hiacyntowej KRK1140

Dodano!
Dodano!

Warstwy

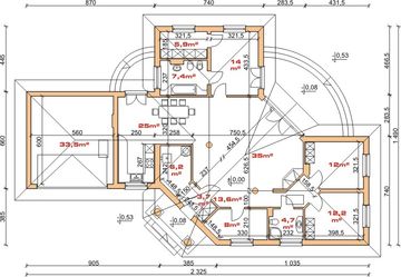
Rzut parteru

Powierzchnia (m²)
Tooltip
Powierzchnia pomieszczenia
to ta, z której faktycznie możesz korzystać – skosy i niskie części poddasza są liczone częściowo lub wcale.
  1. 100% dla wysokości powyżej 2,2 m,
  2. 50% dla wysokości 1,4–2,2 m,
  3. nie liczymy poniżej 1,4 m.

Powierzchnia podłogi
Liczymy po obrysie pomieszczenia, bez względu na jego wysokość/skosy. Jeśli nie ma skosów to powierzchnia podłogi i pomieszczenia jest taka sama.
pomieszczenia i podłogi
podłogi
1. Wiatrołap
3,70
2. Pomieszczenie gospodarcze
13,60
3. Kotłownia + pomieszczenie gospodarcze
6,20
4. Kuchnia + jadalnia
25
5. Łazienka
7,40
6. Garderoba
5,90
7. Pokój
14
8. Pokój dzienny
35
9. Pokój
12
10. Pokój
12,20
11. Łazienka
4,70
12. Pokój
8
13. Garaż dwustanowiskowy
33,50
Razem
181,20
181,20

    Usytuowanie na działce

    Czy ten projekt pasuje na
    Twoją działkę?

    Chętnie to sprawdzimy!

    Dowiedz się:

    • czy zmieści się na niej wybrany przez Ciebie dom
    • jakie parametry musi spełniać dom według miejscowego planu zagospodarowania lub warunków zabudowy (np. kąt nachylenia i typ dachu, liczba kondygnacji itp.
    • jakie inne projekty pasują na Twoją działkę – znajdziemy je dla Ciebie!

Pow. użytkowa

141,50 m²

Pokoje

4

Łazienki i WC

2

Garaż

2

Min. szer. i dł. działki

30,25 x 22,90 m

Kąt dachu

30°

Konstrukcja

Murowana
więcej

Dom przy Hiacyntowej - KRK1140

ikona 141,50 m²
Powierzchnia użytkowa
ikona4
Pokoje (bez salonu)
ikona 2
Łazienki (z toaletami)
ikona 2
Liczba stanowisk garażowych
(z wiatą garażową)
ikona
Konstrukcja: Murowana

Projekt został
wycofany z oferty

W razie pytań prosimy o kontakt
z Centrum Obsługi Klienta
Konsultant Masz pytania?
Zadzwoń
71 715 20 60

pon.-pt. 8-21, sob. 9-17

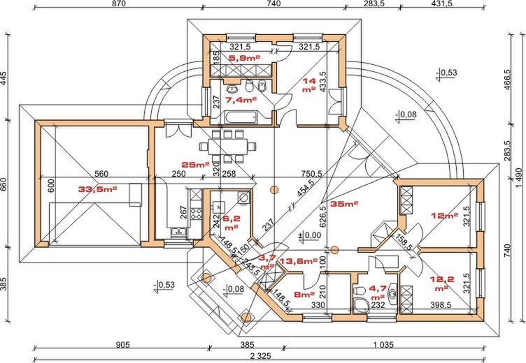
Parter - 181,20 m²

Parter projektu Dom przy Hiacyntowej

Zapytaj, co możesz zmienić

Powierzchnia (m²)
Tooltip
Powierzchnia pomieszczenia
to ta, z której faktycznie możesz korzystać – skosy i niskie części poddasza są liczone częściowo lub wcale.
  1. 100% dla wysokości powyżej 2,2 m,
  2. 50% dla wysokości 1,4–2,2 m,
  3. nie liczymy poniżej 1,4 m.

Powierzchnia podłogi
Liczymy po obrysie pomieszczenia, bez względu na jego wysokość/skosy. Jeśli nie ma skosów to powierzchnia podłogi i pomieszczenia jest taka sama.
pomieszczenia i podłogi
podłogi
1. Wiatrołap
3,70
2. Pomieszczenie gospodarcze
13,60
3. Kotłownia + pomieszczenie gospodarcze
6,20
4. Kuchnia + jadalnia
25
5. Łazienka
7,40
6. Garderoba
5,90
7. Pokój
14
8. Pokój dzienny
35
9. Pokój
12
10. Pokój
12,20
11. Łazienka
4,70
12. Pokój
8
13. Garaż dwustanowiskowy
33,50
Razem
181,20
181,20

Podobne projekty (6095)

Zobacz wszystkie
NIŻSZA CENA❄️
Zdjęcie 1 projektu Sej-pro 055 energo ELW1034
Sej-pro 055 energo
Dodano!
Dodano!
119,77 m²
3
3
2

5 197 zł

5 497 zł

Tooltip

Cena regularna

4 897 zł najniższa cena
Tooltip

Najniższa cena z 30 dni
przed obniżką

NIŻSZA CENA❄️
Zdjęcie 1 projektu PióroArchitekci – 19 KZN1008
PióroArchitekci – 19
Dodano!
Dodano!
132,50 m²
4
2
0

4 000 zł

4 300 zł

Tooltip

Cena regularna

3 900 zł najniższa cena
Tooltip

Najniższa cena z 30 dni
przed obniżką

NIŻSZA CENA❄️
Zdjęcie 1 projektu Eco 29 WOZ1030
Eco 29
Dodano!
Dodano!
113,09 m²
3
3
1

4 249 zł

4 449 zł

Tooltip

Cena regularna

4 149 zł najniższa cena
Tooltip

Najniższa cena z 30 dni
przed obniżką

Zdjęcie 1 projektu Gustowny 02a KZB1037
Gustowny 02a
Dodano!
Dodano!
151,49 m²
3
3
2

4 600 zł

NIŻSZA CENA❄️
Zdjęcie 1 projektu Dom przy Kwiatowej 3 KRK1605
Dom przy Kwiatowej 3
Dodano!
Dodano!
120 m²
4
2
2

3 490 zł

3 990 zł

Tooltip

Cena regularna

3 390 zł najniższa cena
Tooltip

Najniższa cena z 30 dni
przed obniżką

NIŻSZA CENA❄️
Zdjęcie 1 projektu Mokka 18 modern plus 2 WOF1258
Mokka 18 modern plus 2
Dodano!
Dodano!
140 m²
4
3
2

4 299 zł

4 499 zł

Tooltip

Cena regularna

4 199 zł najniższa cena
Tooltip

Najniższa cena z 30 dni
przed obniżką

Zdjęcie 1 projektu Dwie bryły 04 KZB1036
Dwie bryły 04
Dodano!
Dodano!
120,78 m²
3
2
1

4 600 zł

NIŻSZA CENA❄️
Zdjęcie 1 projektu Mokka 18 modern plus WOF1257
Mokka 18 modern plus
Dodano!
Dodano!
120 m²
4
2
2

4 099 zł

4 299 zł

Tooltip

Cena regularna

3 999 zł najniższa cena
Tooltip

Najniższa cena z 30 dni
przed obniżką

Elewacje

Frontowa
Tylna
Lewa
Prawa

Przekroje

Przekrój pionowy

Usytuowanie na działce

Czy ten projekt pasuje na
Twoją działkę?

Chętnie to sprawdzimy!

Czy ten projekt pasuje na
Twoją działkę?

Chętnie to sprawdzimy!

Dowiedz się:

  • czy zmieści się na niej wybrany przez Ciebie dom
  • jakie parametry musi spełniać dom według miejscowego planu zagospodarowania lub warunków zabudowy (np. kąt nachylenia i typ dachu, liczba kondygnacji itp.
  • jakie inne projekty pasują na Twoją działkę – znajdziemy je dla Ciebie!
Autor: GALERIADOMOW.PL

Dane techniczne projektu

Powierzchnie i wymiary Powierzchnie i wymiary

Powierzchnia użytkowa
Tooltip
Suma powierzchni wszystkich pomieszczeń mieszkalnych, pomniejszona o pow. garażu, kotłowni, strychu, piwnicy. Jest liczona w 100% dla pomieszczeń o wysokości powyżej 2,2 m, w 50% dla pomieszczeń o wys. 2,2-1,4 m i niewliczana dla niższych niż 1,4 m.

141,50 m²

Powierzchnia zabudowy
Tooltip
Powierzchnia zajmowana przez część na- oraz nadziemną budynku liczona, jako rzut pionowy budynku na działkę.

224 m²

Powierzchnia dachu

331 m²

Kąt nachylenia dachu
Tooltip
Nachylenie połaci dachu głównego podawane w stopniach. Uwaga! W niektórych projektach występuje więcej niż jedno nachylenie dachu.

30°

Wysokość budynku
Tooltip
Wysokość liczona od części budynku położonej najniżej przy powierzchni terenu do najwyższego punktu dachu (kalenicy) z wyłączeniem kominów.

6,20 m

Min. szerokość działki
Tooltip
Najmniejsza możliwa szerokość działki niezbędna do wybudowania wybranego domu. Składa się z szerokości elewacji domu powiększonej z obu stron o 3 m dla ściany bez otworów drzwiowych/okiennych lub 4 m, dla ściany z otworami.

30,25 m

Min. długość działki
Tooltip
Najmniejsza możliwa długość działki niezbędna do wybudowania wybranego domu. Składa się z długości elewacji domu powiększonej z obu stron o 3 m dla ściany bez otworów drzwiowych/okiennych lub 4 m, dla ściany z otworami.

22,90 m

Energooszczędność Energooszczędność

Oze Czym jest OZE (Odnawialne Źródło Energii)?
Warunki techniczne

Projekt zgody z WT 2021

Technologia i konstrukcja Technologia i konstrukcja

Konstrukcja

Murowana

Opis szczegółowy

Ściany zewnętrzne: bloczki betonu komórkowego 36,5cm. Ściany nośne: bloczki betonu komórkowego 24 cm. Strop: monolityczny żelbetowy. Dach: kąt nachylenia 30°, pokrycie - dachówka ceramiczna lub betonowa.

Strop

Żelbetowy

Reklama
Okna i drzwi tarasowe

Nowoczesne okna PVC i aluminiowe WIŚNIOWSKI – doskonała izolacja, elegancki design i niezrównana trwałość.

Wiśniowski
Sprawdź parametry!
Okna dachowe

Oferujemy bezpłatne konsultacje w zakresie wszystkich rozwiązań VELUX. Wyceny, porady dotyczące doboru okien i rolet zewnętrznych - sprawdź!

Velux
Sprawdź szczegóły
Płytki ceramiczne i gresy

Od małych formatów po wielkoformatowe gresy. Marmur, beton, drewno, kamień, lastryko czy cegiełki zamówisz wygodnie online z szybką dostawą.

Ceramzet
Sprawdź ofertę
Drzwi

Ciepłe drzwi WIŚNIOWSKI z kontrolą dostępu. Szeroka gama wzorów i kolorów.

Wiśniowski
Wybierz najlepsze
Bramy garażowe

Automatyczne bramy garażowe segmentowe i uchylne WIŚNIOWSKI na wymiar i z systemem smart home w standardzie.

Wiśniowski
Sprawdź ofertę!
Armatura i ceramika łazienkowa

Topowi producenci. Baterie łazienkowe, zestawy natynkowe i podtynkowe, umywalki, wanny, miski WC oraz kabiny zamówisz kompleksowo online.

Ceramzet II
Dowiedz się więcej
Rekuperacja

Alnor - kompletny system rekuperacji. Dobierz idealne rozwiązanie dla Twojego domu!

Alnor
Dobierz rekuperator
Gruntowe pompy ciepła

Przeprowadzimy kompletną instalację najbardziej oszczędnego źródła ciepła w Twoim nowym domu - gruntowej pompy ciepła. Od dokumentacji, pozwoleń, po odwierty i instalację.

Geothermal Solutions
Dowiedz się więcej

Gotowe domy modułowe (114)

Zobacz wszystkie
Stan deweloperski nawet w 6 miesięcy Gwarancja stałej ceny
Zdjęcie 1 projektu Dom prefabrykowany P.1 z okapem HPK1000
Pow. użytkowa
139,44 m²
Pokoje
3
721 000 zł 5 171 zł/m²
Zdjęcie 1 projektu Dom prefabrykowany P.1 bez okapu HPK1012
Pow. użytkowa
139,44 m²
Pokoje
3
699 800 zł 5 019 zł/m²
Zdjęcie 1 projektu Dom prefabrykowany P.5 HPK1004
Pow. użytkowa
138,67 m²
Pokoje
5
772 700 zł 5 572 zł/m²
Zdjęcie 1 projektu Dom szkieletowy Open Sky 195 HHT1029
Pow. użytkowa
145,04 m²
Pokoje
4
940 300 zł 6 483 zł/m²
Zdjęcie 1 projektu Dom prefabrykowany DEX136 HDX1002
Pow. użytkowa
136 m²
Pokoje
4
845 000 zł 6 213 zł/m²
Zdjęcie 1 projektu Dom prefabrykowany Piętrowy 130C HFX1023
Pow. użytkowa
132 m²
Pokoje
4
539 000 zł 4 083 zł/m²
Zdjęcie 1 projektu Dom prefabrykowany Stodoła 150B HFX1025
Pow. użytkowa
151,30 m²
Pokoje
4
589 000 zł 3 893 zł/m²
Zdjęcie 1 projektu Dom prefabrykowany Piętrowy 130B HFX1022
Pow. użytkowa
131,60 m²
Pokoje
5
539 000 zł 4 096 zł/m²

Opis projektu domu
Dom przy Hiacyntowej

Projekt domu Dom przy Hiacyntowej to ciekawa propozycja dla osób posiadających średniej szerokości działkę. Dom posiada bryłę w kształcie litery L, co sprawia, że oryginalnie się prezentuje. Projekt należy do kategorii domów z kalenicą skierowaną prostopadle do drogi, co jest bardzo istotne, gdy wymagają tego warunki zabudowy. Projekt został stworzony z myślą o działkach pozwalających na usytuowanie domu w zabudowie wolnostojącej. W projekcie zaplanowano garaż jednostanowiskowy w linii budynku. Jest to również doskonała propozycja dla osób szukających domu z dachem czterospadowym, który należy do najsolidniejszych konstrukcji dachowych. Projekt Dom przy Hiacyntowej to dom parterowy, co sprawia, że komunikacja między pomieszczeniami jest bardzo komfortowa. Zwolenników przestronnych przestrzeni z pewnością ucieszy przewidziana w projekcie część dzienna. Tworzy ją między innymi funkcjonalna kuchnia, którą każdy Inwestor swobodnie dostosuje do swoich potrzeb. W domu przewidziane są dwie w pełni funkcjonalne łazienki. Pięć komfortowych pokoi zaspokoi potrzeby 5-7 osobowej rodziny. Przestrzeń można wykorzystać także jako pokój dla gości lub gabinet. Lepszą organizację przestrzeni zapewnia przewidziana w domu garderoba. W domu nie zabrakło również miejsca na praktyczne zaplecze gospodarcze. Doskonałym miejscem do wypoczynku jest zaprojektowany przy domu taras. Projekt powstał z myślą o Inwestorach, którzy planują zbudować dom w technologii murowanej. W jego bryle widoczne są rozwiązania nawiązujące do stylu tradycyjnego, dzięki czemu idealnie wpisze się w dowolny krajobraz.
Czytaj więcej

Polecani producenci

Prefabrykowane konstrukcje dachowe

tło producenta

WIĄZAR POLSKA

Zobacz więcej

Sprawdź nową generację okien GREENVIEW

tło producenta

FAKRO

Sprawdź nową generację okien GREENVIEW

Styropian, tynki, farby, kleje

tło producenta

Termo Organika

Poznaj super jakość

Okna, drzwi, osłony przeciwsłoneczne

tło producenta

Aluprof

Sprawdź ofertę

Kompletne systemy rekuperacji

tło producenta

Alnor

Dowiedz się więcej

Sprawdź nowy system DACHRYNNA

tło producenta

Galeco

Sprawdź ofertę
Zobacz więcej

Społeczność projektu domu
Dom przy Hiacyntowej w budowie

Dołącz do społeczności osób, które budują ten dom lub są zainteresowane jego budową.

  • Oglądaj zdjęcia z budowy
  • Zadawaj pytania
  • Wymieniaj się doświadczeniami

Opinie o projekcie domu Dom przy Hiacyntowej

Ocena

Ten projekt nie ma jeszcze opinii, bądź pierwszy!

Dodaj opinię

Wywiady mieszkańców domu Dom przy Hiacyntowej

Zdjęcie profilowe użytkownika Mariola.R Mariola.R

Zdecydowaliśmy się na projekt domu Dom przy Hiacyntowej KRK1140, ponieważ od początku zależało nam na budynku parterowym, a ponadto jego wygląd zewnętrzny bardzo nam się spodobał. Układ pomieszczeń także przypadł nam do gustu, a szczególnie satysfakcjonowało mnie w nim oddzielenie sypialni małżeńskiej od pozostałych pokoi. To naprawdę ciekawe rozwiązanie, a w wielu innych projektach cała strefa nocna znajdowała się w jednej części domu.Zmieniliśmy nieco zalecaną technologię budowy rezygnując z żelbetowego stropu. Nie planowaliśmy adaptować poddasza na użytkowe, więc nie było potrzeby wylewać go betonem, tym bardziej, że takie rozwiązanie jest dosyć kosztowne. Wykonaliśmy więc drewniany strop pokryty płytami gipsowo-kartonowymi, a żeby móc zrobić to bez konsekwencji, jego konstrukcja została wzmocniona.Budynek ociepliliśmy styropianem 2x8 cm. Taka warstwa izolacyjna zapewnia utrzymanie ciepła wewnątrz domu w okresie zimowym oraz nienagrzewanie się ścian latem. Za naszą prośbą architekt adaptujący doprojektował nam piwnicę. Muszę przyznać, że był to naprawdę dobry pomysł, gdyż taka dodatkowa przestrzeń bardzo się przydaje. To właśnie tam zrobiliśmy kotłownię, w której zamontowaliśmy piec na ekogroszek. Takie rozwiązanie jest dość ekonomiczne, ponieważ przez okres 6 miesięcy, nawet gdy zima jest naprawdę mroźna, wystarcza nam ok. 4 ton opału. Rozprowadziliśmy również system nawiewu ciepłego powietrza z kominka do każdego pokoju i zainstalowaliśmy kolektory słoneczne.Projekt domu parterowego Dom przy Hiacyntowej KRK1140 nie przewidywał spiżarki, jednak mi udało się ją wygospodarować kosztem części aneksu kuchennego. Jest ona naprawdę duża i świetnie się sprawdza. Mieści się w niej sporo rzeczy, dlatego też nie potrzebuję w kuchni aż tak wiele miejsca. Dodatkowo w jej pobliżu zostało niewykorzystane miejsce w narożniku, więc postanowiłam je zagospodarować i zrobić tam saunę. Kolejną zmianą było powiększenie dwóch sąsiadujących ze sobą pokoi kosztem małego korytarza. Oprócz tego, zrezygnowałam z okna w garderobie oraz z drzwi tarasowych w sypialni. Z racji tego, iż piec został w naszym przypadku przeniesiony do piwnicy, w miejscu kotłowni mogliśmy zrobić osobną pralnię. Przy 5-osobowej rodzinie jest ona naprawdę przydatna.Jestem naprawdę zadowolona z rozwiązania, polegającego na rozmieszczeniu pokoi w różnych częściach domu. Bardzo mi na tym zależało, ponieważ mamy dwóch synów w wieku 15 oraz 18 lat. Brałam pod uwagę np. to że lubią głośno puścić muzykę, a dzięki takiemu układowi nie słyszymy jej z mężem przebywając w naszej sypialni. Mieszka nam się wygodnie, a ilość pomieszczeń jest dostosowana do naszych potrzeb. Jakiś czas temu przyszła na świat nasza córka, która również ma swój pokój, więc każdy z domowników ma w naszym nowym domu przestrzeń dla siebie.Cieszę się, iż zdecydowaliśmy się na projekt domu Dom przy Hiacyntowej KRK1140. Uważam, że taki parterowy budynek jest bardzo praktyczny, gdyż wszystkie potrzebne pomieszczenia są na jednej kondygnacji i nie musimy biegać po schodach. Cały budynek świetnie się prezentuje i wszystkim wokół bardzo się podoba. Jestem zadowolona, że udało mi się wprowadzić w nim swoje rozwiązania i jeszcze bardziej dostosować go do potrzeb naszej rodziny. Polecam i pozdrawiam.

Zdjęcie profilowe użytkownika majka3 majka3

Zdecydowaliśmy się na projekt domu Dom przy Hiacyntowej KRK1140, ponieważ jako jeden z niewielu posiadał 4 sypialnie oraz 2 osobne łazienki, a na tym szczególnie nam zależało. Ponadto, spodobało nam się to, iż wyjście na taras uwzględniono w nim nie tylko z salonu, ale również z pokoju sypialnego.Podczas realizacji mieliśmy kilka drobnych problemów, ale myślę, że przy tego typu inwestycjach nie da się ich w całości uniknąć. Tym bardziej, że nasz budynek ma dość nietypową formę, a większość domów jakie się teraz buduje ma proste ściany. W naszym przypadku fachowcy nie do końca dobrze wymierzyli ścianki działowe tworzące mały, ukośny korytarzyk i w efekcie jest on teraz trochę krzywy. Nie jest to dla nas jakiś ogromny kłopot, jednak warto zwrócić na to uwagę przy wykonywaniu tego elementu. Postanowiliśmy nie zmieniać zalecanej przez projektanta technologii budowy i cały nasz dom powstał przy użyciu bloczków z betonu komórkowego.We wszystkich czterech sypialniach zamontowaliśmy grzejniki, natomiast w kuchni, salonie, łazienkach i w korytarzach zastosowaliśmy tzw. „podłogówkę”. Do ogrzania pomieszczeń wykorzystujemy piecyk z podłączeniem do gazu ziemnego. W domu utrzymujemy temperaturę ok. 21 stopni i zimą rachunki za gaz wynoszą ok. 700-800zł miesięcznie, włączając w to oczywiście grzanie wody użytkowej.Projekt domu Dom przy Hiacyntowej KRK1140 przewidywał drzwi między wiatrołapem, a kotłownią. My jednak postanowiliśmy zrobić wejście do pomieszczenia gospodarczego od strony salonu. Dzięki temu mały hall zyskał na ustawności i oprócz szafy wnękowej mieliśmy możliwość wstawienia tam dużego wieszaka na ubrania. Mamy rozłożystą działkę, wiec mogliśmy pozwolić sobie na poszerzenie garażu oraz dobudowanie w nim małego wiatrołapu. Pozwoliło to na zrobienie bezpośredniego wejścia do tego pomieszczenia z części mieszkalnej, bez potrzeby wychodzenia na zewnątrz. Dodatkowo zrezygnowaliśmy z okna w większej łazience.Nieco żałuję, iż nie zdecydowałam się na poszerzenie kuchni. Na etapie adaptacji warto o tym pomyśleć, ponieważ jest ona jednak nieco za wąska. Ja niestety nie zauważyłam tego wcześniej, a teraz nie mogę już nic zmienić.Na chwilę obecną nie jesteśmy jeszcze liczną rodziną, gdyż póki co mamy z mężem jedną, małą córeczkę. Oczywiście na takim metrażu naszej trójce żyje się z pełnym komfortem. Czasem przyjeżdża do nas babcia, która pomaga nam w opiece nad dzieckiem. Mieszka wtedy u nas przez kilka dni i nawet przy czwórce osób zostaje nam jeszcze sporo miejsca. Moim ulubionym pomieszczeniem w naszym domu jest duży i przestronny salon. Najbardziej jestem zadowolona z oddzielenia sypialni małżeńskiej od pozostałych pokoi. Często w projektach jest tak, że cała strefa nocna jest usytuowana przy jednym korytarzu, jednak nie bardzo mi to odpowiada. Gdy nasza córka podrośnie, będzie mieszkała w innej części domu z osobną łazienką i każdy z nas będzie miał swoją prywatną przestrzeń. Architekt doskonale to przemyślał, a projekt domu parterowego Dom przy Hiacyntowej KRK1140 mogę śmiało polecić innym. Pozdrawiam.

ASYSTENT WYBORU PROJEKTU

Szukasz idealnego projektu? Znajdziemy go dla Ciebie!

Doradca na podstawie Twoich wskazówek przygotuje spersonalizowaną listę projektów

Graficzne opracowanie rzutów poglądowych widocznych na karcie projektu zostało wykonane przez Extradom.pl. Prezentowane przez Extradom.pl wizualizacje wykonane zostały przez autora projektu i należy poczytywać je jedynie za przykład i propozycję wykończenia, wizję architektoniczną autora projektu. Ostateczne wykończenie budynku może nastąpić na wiele sposobów. Szczegółowe rozwiązania zastosowane w oferowanej dokumentacji - w tym również ilość, lokalizacje i wygląd okien, drzwi, kominów - mogą w niewielkim stopniu różnić się od prezentowanej wizualizacji budynku.

REKLAMA
Zamknij