👉 Projekty w extracenach + karta allegro 200 zł! 🔥

Koniec oferty za:

00godz.

00min.

00sek.

Sprawdź

Projekt domu Dom przy Cyprysowej 24 KRK1254

Zapisz Dodano!
Porównaj Dodano!
ikona Pobierz i drukuj

Warstwy

Warstwy

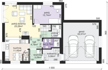
Rzut parteru

Powierzchnia (m²)
Tooltip
Powierzchnia pomieszczenia
to ta, z której faktycznie możesz korzystać – skosy i niskie części poddasza są liczone częściowo lub wcale.
  1. 100% dla wysokości powyżej 2,2 m,
  2. 50% dla wysokości 1,4–2,2 m,
  3. nie liczymy poniżej 1,4 m.

Powierzchnia podłogi
Liczymy po obrysie pomieszczenia, bez względu na jego wysokość/skosy. Jeśli nie ma skosów to powierzchnia podłogi i pomieszczenia jest taka sama.
pomieszczenia i podłogi
podłogi
1. Wiatrołap
3,29
2. Korytarz
4,78
3. Spiżarnia
1,13
4. Kuchnia
11,45
5. Pokój dzienny
23,28
6. Pokój
12,74
7. Pomieszczenie gospodarcze
2,19
8. Łazienka
3,73
9. Kotłownia
5,06
10. Garaż dwustanowiskowy
33,57
Razem
101,22
101,22
Powierzchnia (m²)
Tooltip
Powierzchnia pomieszczenia
to ta, z której faktycznie możesz korzystać – skosy i niskie części poddasza są liczone częściowo lub wcale.
  1. 100% dla wysokości powyżej 2,2 m,
  2. 50% dla wysokości 1,4–2,2 m,
  3. nie liczymy poniżej 1,4 m.

Powierzchnia podłogi
Liczymy po obrysie pomieszczenia, bez względu na jego wysokość/skosy. Jeśli nie ma skosów to powierzchnia podłogi i pomieszczenia jest taka sama.
pomieszczenia
podłogi
11. Korytarz
9,86
9,86
12. Pokój
16,42
26,09
13. Łazienka
3,39
4,15
14. Łazienka
8,39
12,29
15. Pokój
12,25
17,30
16. Pokój
13,44
17,29
17. Pokój
9,23
14,40
Razem
72,98
101,38

    Usytuowanie na działce

    Czy ten projekt pasuje na
    Twoją działkę?

    Chętnie to sprawdzimy!

    Dowiedz się:

    • czy zmieści się na niej wybrany przez Ciebie dom
    • jakie parametry musi spełniać dom według miejscowego planu zagospodarowania lub warunków zabudowy (np. kąt nachylenia i typ dachu, liczba kondygnacji itp.
    • jakie inne projekty pasują na Twoją działkę – znajdziemy je dla Ciebie!

Pow. użytkowa

134,13 m²

Pokoje

5

Łazienki i WC

3

Garaż

2

Min. szer. i dł. działki

23,55 x 17,60 m

Kąt dachu

40°

Konstrukcja

Murowana
więcej

Dom przy Cyprysowej 24 - KRK1254

ikona 134,13 m²
Powierzchnia użytkowa
ikona5
Pokoje (bez salonu)
ikona 3
Łazienki (z toaletami)
ikona 2
Liczba stanowisk garażowych
(z wiatą garażową)
ikona
Konstrukcja: Murowana

Projekt został
wycofany z oferty

W razie pytań prosimy o kontakt
z Centrum Obsługi Klienta
Konsultant
71 715 20 60

pon.-pt. 8-21, sob. 9-17

Parter - 101,22 m²

Parter projektu Dom przy Cyprysowej 24

Zapytaj, co możesz zmienić

Powierzchnia (m²)
Tooltip
Powierzchnia pomieszczenia
to ta, z której faktycznie możesz korzystać – skosy i niskie części poddasza są liczone częściowo lub wcale.
  1. 100% dla wysokości powyżej 2,2 m,
  2. 50% dla wysokości 1,4–2,2 m,
  3. nie liczymy poniżej 1,4 m.

Powierzchnia podłogi
Liczymy po obrysie pomieszczenia, bez względu na jego wysokość/skosy. Jeśli nie ma skosów to powierzchnia podłogi i pomieszczenia jest taka sama.
pomieszczenia i podłogi
podłogi
1. Wiatrołap
3,29
2. Korytarz
4,78
3. Spiżarnia
1,13
4. Kuchnia
11,45
5. Pokój dzienny
23,28
6. Pokój
12,74
7. Pomieszczenie gospodarcze
2,19
8. Łazienka
3,73
9. Kotłownia
5,06
10. Garaż dwustanowiskowy
33,57
Razem
101,22
101,22

Poddasze - 72,98 m²

Poddasze projektu Dom przy Cyprysowej 24

Zapytaj, co możesz zmienić

Powierzchnia (m²)
Tooltip
Powierzchnia pomieszczenia
to ta, z której faktycznie możesz korzystać – skosy i niskie części poddasza są liczone częściowo lub wcale.
  1. 100% dla wysokości powyżej 2,2 m,
  2. 50% dla wysokości 1,4–2,2 m,
  3. nie liczymy poniżej 1,4 m.

Powierzchnia podłogi
Liczymy po obrysie pomieszczenia, bez względu na jego wysokość/skosy. Jeśli nie ma skosów to powierzchnia podłogi i pomieszczenia jest taka sama.
pomieszczenia
podłogi
11. Korytarz
9,86
9,86
12. Pokój
16,42
26,09
13. Łazienka
3,39
4,15
14. Łazienka
8,39
12,29
15. Pokój
12,25
17,30
16. Pokój
13,44
17,29
17. Pokój
9,23
14,40
Razem
72,98
101,38

Podobne projekty (2091)

Zobacz wszystkie
NIŻSZA CENA 🔥
Zdjęcie 1 projektu BW-44 wariant 4 JGC1144
BW-44 wariant 4
Dodano!
Dodano!
121,10 m²
4
2
1

3 770 zł

3 870 zł

Tooltip

Cena regularna

3 770 zł najniższa cena
Tooltip

Najniższa cena z 30 dni
przed obniżką

NIŻSZA CENA 🔥
Zdjęcie 1 projektu Tobiasz (1616) KRD2764
Tobiasz (1616)
Dodano!
Dodano!
142,50 m²
5
3
2

4 740 zł

5 090 zł

Tooltip

Cena regularna

4 710 zł najniższa cena
Tooltip

Najniższa cena z 30 dni
przed obniżką

NIŻSZA CENA 🔥
Zdjęcie 1 projektu APS 229 LUA1562
APS 229
Dodano!
Dodano!
124 m²
4
2
1

3 949 zł

4 499 zł

Tooltip

Cena regularna

3 949 zł najniższa cena
Tooltip

Najniższa cena z 30 dni
przed obniżką

NIŻSZA CENA 🔥
Zdjęcie 1 projektu BW-46 wariant 1 JGC1255
BW-46 wariant 1
Dodano!
Dodano!
127,70 m²
4
2
1

3 980 zł

4 080 zł

Tooltip

Cena regularna

3 980 zł najniższa cena
Tooltip

Najniższa cena z 30 dni
przed obniżką

NIŻSZA CENA 🔥
Zdjęcie 1 projektu BW-44 JGC1055
BW-44
Dodano!
Dodano!
133,70 m²
4
2
1

3 980 zł

4 080 zł

Tooltip

Cena regularna

3 980 zł najniższa cena
Tooltip

Najniższa cena z 30 dni
przed obniżką

NIŻSZA CENA 🔥
Zdjęcie 1 projektu BW-51 JGC1156
BW-51
Dodano!
Dodano!
120,60 m²
4
2
0

3 770 zł

3 870 zł

Tooltip

Cena regularna

3 770 zł najniższa cena
Tooltip

Najniższa cena z 30 dni
przed obniżką

NIŻSZA CENA 🔥
Zdjęcie 1 projektu N8-G1 KKG1000
N8-G1
Dodano!
Dodano!
130,40 m²
4
3
1

5 300 zł

6 200 zł

Tooltip

Cena regularna

5 300 zł najniższa cena
Tooltip

Najniższa cena z 30 dni
przed obniżką

NIŻSZA CENA 🔥
Zdjęcie 1 projektu BW-17 - garaż 1st. JGC1033
BW-17 - garaż 1st.
Dodano!
Dodano!
123,20 m²
4
2
1

3 770 zł

3 870 zł

Tooltip

Cena regularna

3 770 zł najniższa cena
Tooltip

Najniższa cena z 30 dni
przed obniżką

Elewacje

Frontowa
Tylna
Lewa
Prawa

Przekroje

Przekrój pionowy

Usytuowanie na działce

Czy ten projekt pasuje na
Twoją działkę?

Chętnie to sprawdzimy!

Czy ten projekt pasuje na
Twoją działkę?

Chętnie to sprawdzimy!

Dowiedz się:

  • czy zmieści się na niej wybrany przez Ciebie dom
  • jakie parametry musi spełniać dom według miejscowego planu zagospodarowania lub warunków zabudowy (np. kąt nachylenia i typ dachu, liczba kondygnacji itp.
  • jakie inne projekty pasują na Twoją działkę – znajdziemy je dla Ciebie!
Autor: GALERIADOMOW.PL

Dane techniczne projektu

Powierzchnie i wymiary Powierzchnie i wymiary

Powierzchnia użytkowa
Tooltip
Suma powierzchni wszystkich pomieszczeń mieszkalnych, pomniejszona o pow. garażu, kotłowni, strychu, piwnicy. Jest liczona w 100% dla pomieszczeń o wysokości powyżej 2,2 m, w 50% dla pomieszczeń o wys. 2,2-1,4 m i niewliczana dla niższych niż 1,4 m.

134,13 m²

Powierzchnia zabudowy
Tooltip
Powierzchnia zajmowana przez część na- oraz nadziemną budynku liczona, jako rzut pionowy budynku na działkę.

133,67 m²

Kubatura brutto
Tooltip
Zazwyczaj jest to suma kubatur (objętości) wszystkich pomieszczeń budynku, liczonych po zewnętrznym obrysie murów (z ociepleniem).

735,30 m³

Powierzchnia dachu

233,03 m²

Kąt nachylenia dachu
Tooltip
Nachylenie połaci dachu głównego podawane w stopniach. Uwaga! W niektórych projektach występuje więcej niż jedno nachylenie dachu.

40°

Wysokość budynku
Tooltip
Wysokość liczona od części budynku położonej najniżej przy powierzchni terenu do najwyższego punktu dachu (kalenicy) z wyłączeniem kominów.

8,42 m

Min. szerokość działki
Tooltip
Najmniejsza możliwa szerokość działki niezbędna do wybudowania wybranego domu. Składa się z szerokości elewacji domu powiększonej z obu stron o 3 m dla ściany bez otworów drzwiowych/okiennych lub 4 m, dla ściany z otworami.

23,55 m

Min. długość działki
Tooltip
Najmniejsza możliwa długość działki niezbędna do wybudowania wybranego domu. Składa się z długości elewacji domu powiększonej z obu stron o 3 m dla ściany bez otworów drzwiowych/okiennych lub 4 m, dla ściany z otworami.

17,60 m

Energooszczędność Energooszczędność

Oze Czym jest OZE (Odnawialne Źródło Energii)?
Warunki techniczne

Projekt zgody z WT 2021

Technologia i konstrukcja Technologia i konstrukcja

Konstrukcja

Murowana

Opis szczegółowy

Ściany zewnętrzne: pustak 25 cm, styropian 20 cm. Ściany nośne: pustak 25 cm. Strop: monolityczny żelbetowy. Dach: kąt nachylenia 40°, pokrycie - blacha.

Strop

Żelbetowy

Reklama
Okna i drzwi tarasowe

Nowoczesne okna PVC i aluminiowe WIŚNIOWSKI – doskonała izolacja, elegancki design i niezrównana trwałość.

Wiśniowski
Sprawdź parametry!
Okna dachowe

Oferujemy bezpłatne konsultacje w zakresie wszystkich rozwiązań VELUX. Wyceny, porady dotyczące doboru okien i rolet zewnętrznych - sprawdź!

Velux
Sprawdź szczegóły
Pompa ciepła

Wybierz pompę ciepła, która pasuje do Twojego domu. Niezależnie od tego, czy ustawienie wewnątrz czy na zewnątrz, pompy ciepła STIEBEL ELTRON dopasują się do każdej przestrzeni.

Stiebel
Dobierz pompę ciepła
Płytki ceramiczne i gresy

Od małych formatów po wielkoformatowe gresy. Marmur, beton, drewno, kamień, lastryko czy cegiełki zamówisz wygodnie online z szybką dostawą.

Ceramzet
Sprawdź ofertę
Elewacja

Kup przez internet wszystkie materiały potrzebne do wykonania elewacji: styropian, płyty PIR, XPS, kleje, tynki. Najlepsze marki w super cenach z dostawą pod dom.

Hurtownia styropianu
Sprawdź ofertę!
Drzwi

Ciepłe drzwi WIŚNIOWSKI z kontrolą dostępu. Szeroka gama wzorów i kolorów.

Wiśniowski
Wybierz najlepsze
Bramy garażowe

Automatyczne bramy garażowe segmentowe i uchylne WIŚNIOWSKI na wymiar i z systemem smart home w standardzie.

Wiśniowski
Sprawdź ofertę!
Rekuperacja

Alnor - kompletny system rekuperacji. Dobierz idealne rozwiązanie dla Twojego domu!

Alnor
Dobierz rekuperator
Dach

Producent stalowych pokryć dachowych i systemów elewacyjnych. Precyzja wykonania, trwałość na lata i szybki montaż doceniany przez dekarzy. Postaw na solidny dach Budmat.

Budmat
Sprawdź ofertę
Ogrodzenie

Nowoczesne stalowe ogrodzenia Budmat - estetyka, bezpieczeństwo i trwałość na lata. Systemowe rozwiązania na wymiar, dopasowane do każdego domu.

Budmat
Sprawdź ofertę

Gotowe domy - najszybszy sposób na dom (115)

Zobacz wszystkie
  • Stan deweloperski nawet w 6 miesięcy
  • Gwarancja stałej ceny
Skonfiguruj dom
Zdjęcie 1 projektu Bergen 130 HUS1002
130,40 m²
4
Stan deweloperski brutto
499 000 zł 3 827 zł/m²
Zdjęcie 1 projektu Dom prefabrykowany DEX136 HDX1002
136 m²
4
Stan deweloperski brutto
895 700 zł 6 586 zł/m²
Zdjęcie 1 projektu Dom prefabrykowany Piętrowy 130C HFX1023
132 m²
4
Stan deweloperski brutto
575 000 zł 4 356 zł/m²
Zdjęcie 1 projektu Dom prefabrykowany Piętrowy 130B HFX1022
131,60 m²
5
Stan deweloperski brutto
575 000 zł 4 369 zł/m²
Zdjęcie 1 projektu Dom prefabrykowany Piętrowy 130A HFX1021
130,40 m²
4
Stan deweloperski brutto
575 000 zł 4 410 zł/m²
Zdjęcie 1 projektu Dom prefabrykowany P.5 HPK1004
138,67 m²
5
Stan deweloperski brutto
787 200 zł 5 677 zł/m²
Zdjęcie 1 projektu Dom prefabrykowany P.1 z okapem HPK1000
139,44 m²
3
Stan deweloperski brutto
734 000 zł 5 264 zł/m²
Zdjęcie 1 projektu Dom prefabrykowany P.1 bez okapu HPK1012
139,44 m²
3
Stan deweloperski brutto
712 400 zł 5 109 zł/m²

Opis projektu domu
Dom przy Cyprysowej 24

Dom Dom przy Cyprysowej 24 został stworzony na wzór cieszącego się popularnością projektu Dom przy Cyprysowej. W przeciwieństwie do podstawowej wersji projekt ma więcej pokoi, większą powierzchnię, garaż. Projekt domu Dom przy Cyprysowej 24 jest doskonałym rozwiązaniem dla osób posiadających średniej szerokości działkę. Dom posiada prostą bryłę, przez co jest tani w budowie. Projekt należy do kategorii domów z kalenicą usytuowaną równolegle do drogi, co jest bardzo istotne, gdy wymagają tego warunki zabudowy. Jest przeznaczony do zabudowy wolnostojącej. Autor projektu uwzględnił garaż jednostanowiskowy w linii budynku. Jest to również doskonała propozycja dla osób szukających domu z dachem dwuspadowym, dzięki któremu budynek posiada ponadczasowy wygląd. Projekt Dom przy Cyprysowej 24 to dom parterowy z poddaszem użytkowym, co sprawia, że jego powierzchnia jest wyraźnie podzielona na strefy: dzienną i nocną.Warto zwrócić uwagę na przestronną część dzienną. Otwarta na salon kuchnia sprzyja integracji rodziny. Kuchenny blat pomiędzy tymi pomieszczeniami sprawia, iż osoba przygotowująca posiłek może swobodnie rozmawiać z gośćmi i pozostałymi domownikami. W kuchni znajduje się stół, dzięki któremu zyskuje ona na funkcjonalności. W kuchni znajduje się okno od strony ogrodu, dzięki czemu pomieszczenie to będzie doskonale doświetlone każdego dnia. Uwzględniona w projekcie spiżarka znacznie ułatwi zachowanie porządku. Dodatkowo w salonie przewidziano kominek, nadający wnętrzu niepowtarzalny klimat. Projekt uwzględnia jedną łazienkę na parterze i dwie na poddaszu. Pięć komfortowych pokoi zaspokoi potrzeby 5-7 osobowej rodziny. Przestrzeń można wykorzystać także jako pokój dla gości lub gabinet. W projekcie nie mogło również zabraknąć miejsca na wyjątkowo przydatne pomieszczenie gospodarcze. Rodzinne spotkania w słonecznie dni uprzyjemni przewidziany przy domu taras. Projekt powstał z myślą o Inwestorach, którzy planują zbudować dom w technologii murowanej. Dom przy Cyprysowej 24 jest doskonałą propozycją dla Inwestorów szukających domu tradycyjnego, dlatego będzie prezentować się doskonale niezależnie od okolicy.
Czytaj więcej

Polecani producenci

Kompletne systemy rekuperacji

tło producenta

Alnor

Dowiedz się więcej

Dachy modułowe ze stali

tło producenta

Budmat

Poznaj szczegóły oferty

Prefabrykowane konstrukcje dachowe

tło producenta

WIĄZAR POLSKA

Zobacz więcej

Sprawdź nową generację okien GREENVIEW

tło producenta

FAKRO

Sprawdź nową generację okien GREENVIEW

Styropian, tynki, farby, kleje

tło producenta

Termo Organika

Poznaj super jakość

Okna, drzwi, osłony przeciwsłoneczne

tło producenta

Aluprof

Sprawdź ofertę
Zobacz więcej

Społeczność projektu domu
Dom przy Cyprysowej 24 w budowie

Dołącz do społeczności osób, które budują ten dom lub są zainteresowane jego budową.

  • Oglądaj zdjęcia z budowy
  • Zadawaj pytania
  • Wymieniaj się doświadczeniami

Opinie o projekcie domu Dom przy Cyprysowej 24

4

Na podstawie 2 recenzji

Wspaniały!
0%
Bardzo dobry
100%
Średni
0%
Słaby
0%
Bardzo słaby
0%

Wywiady mieszkańców domu Dom przy Cyprysowej 24

Zdjęcie profilowe użytkownika Zmiksowana.pl Zmiksowana.pl

Zdecydowaliśmy się na projekt domu parterowego z poddaszem użytkowym Dom przy Cyprysowej 24 KRK1254, ponieważ odpowiadał nam pod wieloma względami. Przewidziany w nim układ pomieszczeń wydał się funkcjonalny i dobrze przemyślany. Dodatkowo, uwzględniono w nim aż trzy łazienki, a na tym szczególnie nam zależało. Na nasz wybór miał również wpływ dwuspadowy dach oraz prosta konstrukcja bryły,dzięki czemu każdy metr kwadratowy domu jest mocno wykorzystany i nie ma w nim „strat” miejsca.Myślimy, że przy każdej tego typu inwestycji zdarzają się pewne trudności, ale na szczęście w naszym przypadku odbyła się ona bez żadnych drastycznych problemów. Do projektu nie mamy większych zastrzeżeń, aczkolwiek uważamy, że budynek mógłby być wyżej usytuowany względem powierzchni ziemi. Trudno nam ocenić jednoznacznie koszty całej realizacji, ponieważ w tej kwestii bardzo wiele zależy od rodzaju użytych materiałów. My postanowiliśmy wymurować ściany przy użyciu ceramicznych pustaków Porotherm, zaś dach pokryliśmy angobowaną ceramiczną dachówką angobowaną. Bryłę z zewnątrz ociepliliśmy grafitowym styropianem.Na całej powierzchni domu zastosowaliśmy system ogrzewania podłogowego. Z uwagi na brak możliwości doprowadzenia instalacji gazowej do naszej działki, zdecydowaliśmy się na ogrzewanie za pomocą gruntowej pompy ciepła. Musimy jednak przyznać, że koszt jej montażu był dosyć wysoki, jednak inwestycja taka zwróci się w przeciągu 8-10 lat.Główną zmianą, którą wprowadziliśmy do oryginalnego projektu Dom przy Cyprysowej 24 KRK1254, było zwiększenie jego powierzchni poprzez poszerzenie domu od strony kuchni i salonu oraz wydłużenie garażu w tyle bryły. Dodatkowo, postanowiliśmy dobudować w części dziennej prostokątny wykusz - w tym miejscu powstała jadalnia. Nad tym elementem wykonaliśmy również nieprzewidziany pierwotnie balkon. Ponadto, zwiększyliśmy wysokość ścianki kolankowej oraz zmieniliśmy nieco układ ścianek działowych i nieco zmieniliśmy ich układ, dzięki czemu pomieszczenia na górze stały się bardziej ustawne, a strych możliwy do zagospodarowania. Zarówno instalacje elektryczne, jak i wodno-kanalizacyjne zaprojektowaliśmy tak, aby w pełni odpowiadały naszym oczekiwaniom.Sądzę, że liczba pokoi uwzględniona w projekcie Dom przy Cyprysowej 24 KRK1254 będzie odpowiednia dla 4-6 osobowej rodziny. Zdecydowaliśmy się na niego głównie ze względu na funkcjonalność, ale po zastosowanych przez nas zmianach jest jeszcze bardziej praktyczny i komfortowy. Kuchnia oraz jadalnia są w naszym przypadku naprawdę spore, z czego jesteśmy szczególnie zadowoleni. Dodatkowo, cieszy nas fakt, iż dzięki zwiększeniu powierzchni strefy dziennej, mogliśmy umiejscowić kominek w jej centralnym punkcie.

Zdjęcie profilowe użytkownika szarik1 szarik1

Warunki zagospodarowania przestrzennego obowiązujące na naszym terenie wymogły na nas postawienie domu z dachem dwuspadowym. Spośród propozycji zwieńczonych taką konstrukcją, do gustu najbardziej przypadł nam projekt Dom przy Cyprysowej 24 KRK1254. Uwzględniony w nim układ pomieszczeń wydał się funkcjonalny i dopasowany do naszych preferencji. Od początku zależało nam na przestronnej strefie dziennej oraz kuchni usytuowanej od frontu. Ilość sypialni na poddaszu w pełni nam odpowiadała, a ponadto spodobały się nam duże przeszklenia gwarantujące optymalne nasłonecznienie wnętrza.Zdecydowaliśmy się na budowę systemem gospodarczym i na szczęście cała inwestycja przebiegła sprawnie i po naszej myśli. Realizacją zajmował się przede wszystkim mój mąż z drobną pomocą dwóch fachowców. Mimo iż nie zatrudnialiśmy profesjonalnej firmy, wszystko udało się wykonać w naprawdę krótkim czasie. Mąż doskonale poradził sobie z pracami budowlanymi i już po roku od ich rozpoczęcia mogliśmy wprowadzić się do nowego, wykończonego domu. Budynek został postawiony przy użyciu ceramicznych pustaków Porotherm, zaś dach pokryliśmy blachodachówką. Muszę jednak przyznać, że poniesione koszty realizacji były większe niż oszacowane w kosztorysie. Myślę więc, że decydując się na projekt domu Dom przy Cyprysowej 24 KRK1254 bezpieczniej będzie założyć większe wydatki w stosunku do sugerowanych.Projekt domu Dom przy Cyprysowej 24 KRK1254 od początku nam odpowiadał, jednak wiedzieliśmy, że wprowadzenie do niego kilku drobnych zmian w całości dostosuje go do naszych oczekiwań. Chcieliśmy uzyskać nieco więcej przestrzeni, dlatego całą bryłę od strony kuchni i salonu poszerzyliśmy o 1 m, a dodatkowo nieco powiększyliśmy garaż. Tym samym, sypialnie na poddaszu są obecnie naprawdę spore. Oprócz tego powierzchnię pierwotnego gabinetu przyłączyliśmy do salonu, zaś kosztem spiżarki powiększyliśmy kuchnię. Pralnia pod schodami ma na tyle duże wymiary, iż oprócz jej oryginalnej funkcji służy nam również do przechowywania przetworów. Łazienkę na parterze zmniejszyliśmy przekształcając ją w osobną toaletę. Uzyskaną w ten sposób powierzchnią powiększliśmy kotłownię. Zdecydowaliśmy się na zastosowanie paneli fotowoltaicznych, a aby móc zamontować je na frontowej stronie dachu (w naszym przypadku jest to najbardziej słoneczne południe) musieliśmy lekko zmodyfikować usytuowanie okien połaciowych. Przyszli Inwestorzy powinni zwrócić uwagę na przejście do garażu z kotłowni. Robiąc je zgodnie z dokumentacją, wchodząc zahaczałoby się głową o szyny od bramy garażowej. Na szczęście mąż w porę to zauważył i mogliśmy skorygować ww. element.Jestem zadowolona z realizacji projektu domu parterowego z poddaszem użytkowym Dom przy Cyprysowej 24 KRK1254. Kilka zmian pozwoliło w pełni dopasować go do potrzeb naszej rodziny i obecnie nowy dom w całości mnie satysfakcjonuje. Mieszkamy w nim w czwórkę i metraż jest dla nas jak najbardziej komfortowy. Każdy z nas ma swoją własną przestrzeń, a dodatkowo mamy jeszcze miejsce na przenocowanie gości. Myślę, że taka ilość sypialni byłaby równie wygodna także dla małżeństwa z trójką dzieci. Pozdrawiam.

Zdjęcie profilowe użytkownika Kamil234 Kamil234

Wybierając projekt domu istotne było dla mnie, aby jego realizacja nie pochłonęła wielu środków finansowych. Z tego względu skupiłem się na znalezieniu obiektu o prostej, nieskomplikowanej konstrukcji, pozwalającej na relatywnie tanią budowę. Spośród propozycji spełniających to wymaganie, najbardziej do gustu przypadł mi projekt Dom przy Cyprysowej 24 KRK1254. Uwzględniony w nim układ pomieszczeń wydał mi się wyjątkowo funkcjonalny i w całości spełniał oczekiwania naszej rodziny.Inwestycja przebiegła naprawdę sprawnie i wszystkie prace udało się zakończyć po naszej myśli. Dokumentacja techniczna była poprawnie sporządzona, aczkolwiek warto zwrócić w niej uwagę na jedną kwestię. Mianowicie, fachowcy zauważyli, iż robiąc wejście do pokoju nad garażem zgodnie z rysunkami, krokiew nachodziłaby na otwór drzwiowy. Na szczęście szybko to spostrzegli i z łatwością potrafili skorygować. Budowę rozpoczęliśmy na początku października 2015 r. i już w połowie listopada dom stanął w stanie surowym zamkniętym z pokryciem. Wykończenia nieco się przeciągnęły, aczkolwiek nie było to spowodowane projektem czy winą fachowców - w tym okresie często przebywałem w delegacji, a chciałem mieć kontrolę nad przebiegiem prac na miejscu. Obecnie (sierpień 2017 r.) do całkowitego zakończenia inwestycji zostały nam ostatnie, drobne prace.Do wymurowania ścian użyliśmy bloczków z betonu komórkowego tzw. „Suporex”. Strop został wykonany w monolitycznej żelbetowej konstrukcji, a dach pokryliśmy dachówką cementową. Przy zastosowaniu powyższych materiałów udało nam się obniżyć koszta budowy podane w Extra Indexie opiewające na kwotę ok. 176 tys. zł. W naszym przypadku dom w stanie surowym zamkniętym wiązał się z wydatkiem ok. 120 tys. zł i myślę, że inni Inwestorzy projektu domu Dom przy Cyprysowej 24 KRK1254 przy odpowiedniej organizacji również mogą liczyć się z mniejszymi kosztami w stosunku do oszacowanych.Projekt domu Dom przy Cyprysowej 24 KRK1254 od samego początku bardzo nam się spodobał, dlatego nie czuliśmy potrzeby wprowadzania do niego większych zmian. Postanowiliśmy jedynie poszerzyć garaż o 75 cm oraz zrezygnować ze ścianki działowej tworzącej pokój na parterze. Dzięki temu obecnie salon jest wyjątkowo duży i przestronny. Osobom chcącym zastosować tą modyfikację polecam jednak zwrócić uwagę na znajdujący się w tym miejscu słup konstrukcyjny (pierwotnie osadzony w ściance). Niestety, nie przewidziałem tego wcześniej i obecnie myślę nad rozwiązaniem pozwalającym na rezygnację z wolnostojącego filaru.Jestem zadowolony z decyzji o wyborze projektu domu parterowego z poddaszem użytkowym Dom przy Cyprysowej 24 KRK1254. Moim zdaniem jego metraż jest najbardziej optymalny dla większości rodzin w dzisiejszych czasach. Dzieci w przyszłości wyprowadzą się do własnych mieszkań, więc większy dom byłby zbędny. Jednocześnie powierzchnia jest w pełni komfortowa w codziennym użytkowaniu. Układ pomieszczeń został praktycznie przemyślany, a w nowym domu dostrzegam same plusy. Pozdrawiam.

ASYSTENT WYBORU PROJEKTU

Szukasz idealnego projektu? Znajdziemy go dla Ciebie!

Doradca na podstawie Twoich wskazówek przygotuje spersonalizowaną listę projektów

Graficzne opracowanie rzutów poglądowych widocznych na karcie projektu zostało wykonane przez Extradom.pl. Prezentowane przez Extradom.pl wizualizacje wykonane zostały przez autora projektu i należy poczytywać je jedynie za przykład i propozycję wykończenia, wizję architektoniczną autora projektu. Ostateczne wykończenie budynku może nastąpić na wiele sposobów. Szczegółowe rozwiązania zastosowane w oferowanej dokumentacji - w tym również ilość, lokalizacje i wygląd okien, drzwi, kominów - mogą w niewielkim stopniu różnić się od prezentowanej wizualizacji budynku.

REKLAMA
Zamknij