Projekty nawet 500 zł taniej ❄️

Koniec oferty za:

0dni

00godz.

00min.

00sek.

Sprawdź

Projekt domu Diana 3 dom jednorodzinny dwulokalowy WRR1139

Dodano!
Dodano!

Warstwy

Warstwy

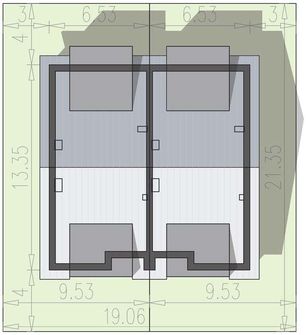
Rzut parteru

Powierzchnia (m²)
Tooltip
Powierzchnia pomieszczenia
to ta, z której faktycznie możesz korzystać – skosy i niskie części poddasza są liczone częściowo lub wcale.
  1. 100% dla wysokości powyżej 2,2 m,
  2. 50% dla wysokości 1,4–2,2 m,
  3. nie liczymy poniżej 1,4 m.

Powierzchnia podłogi
Liczymy po obrysie pomieszczenia, bez względu na jego wysokość/skosy. Jeśli nie ma skosów to powierzchnia podłogi i pomieszczenia jest taka sama.
pomieszczenia i podłogi
podłogi
1. Wiatrołap
5,27
2. Hall
5,33
3. Pokój dzienny + jadalnia + kuchnia
31,83
4. Łazienka
2,58
5. Pomieszczenie gospodarcze
2,59
6. Garaż jednostanowiskowy
17,94
7. Wiatrołap
5,27
8. Hall
5,33
9. Pokój dzienny + jadalnia + kuchnia
31,83
10. Łazienka
2,58
11. Pomieszczenie gospodarcze
2,59
12. Garaż jednostanowiskowy
17,94
Razem
131,08
131,08
Powierzchnia (m²)
Tooltip
Powierzchnia pomieszczenia
to ta, z której faktycznie możesz korzystać – skosy i niskie części poddasza są liczone częściowo lub wcale.
  1. 100% dla wysokości powyżej 2,2 m,
  2. 50% dla wysokości 1,4–2,2 m,
  3. nie liczymy poniżej 1,4 m.

Powierzchnia podłogi
Liczymy po obrysie pomieszczenia, bez względu na jego wysokość/skosy. Jeśli nie ma skosów to powierzchnia podłogi i pomieszczenia jest taka sama.
pomieszczenia
podłogi
1. Korytarz
6,43
6,43
2. Pokój
19,87
22,16
3. Łazienka
3,85
3,85
4. Łazienka
7,72
7,72
5. Pokój
10,61
11,75
6. Pokój
10,58
11,68
7. Korytarz
6,43
6,43
8. Pokój
19,87
22,16
9. Łazienka
3,85
3,85
10. Łazienka
7,72
7,72
11. Pokój
10,61
11,75
12. Pokój
10,58
11,68
Razem
118,12
127,18

    Usytuowanie na działce

    Czy ten projekt pasuje na
    Twoją działkę?

    Chętnie to sprawdzimy!

    Dowiedz się:

    • czy zmieści się na niej wybrany przez Ciebie dom
    • jakie parametry musi spełniać dom według miejscowego planu zagospodarowania lub warunków zabudowy (np. kąt nachylenia i typ dachu, liczba kondygnacji itp.
    • jakie inne projekty pasują na Twoją działkę – znajdziemy je dla Ciebie!

Pow. użytkowa

208,06 m²

Pokoje

6

Łazienki i WC

6

Garaż

2

Kąt dachu

30°

Konstrukcja

Murowana
więcej

Diana 3 dom jednorodzinny dwulokalowy - WRR1139

ikona 208,06 m²
Powierzchnia użytkowa
ikona6
Pokoje (bez salonu)
ikona 6
Łazienki (z toaletami)
ikona 2
Liczba stanowisk garażowych
(z wiatą garażową)
ikona
Konstrukcja: Murowana

Promocja od 18.12.2025, koniec za:

0 dni

00 00 00

6 630 zł

Tooltip

Cena regularna obowiązywała od 15.12.2025 do 17.12.2025

Cena regularna: 7 800 zł
Najniższa cena z 30 dni przed obniżką: 6 240 zł
Gwarancja najniższej ceny Gwarancja najniższej ceny Tooltip

Projekt jest dostępny Tooltip

GRATIS 10% rabatu do LEROY MERLIN

GRATIS Przydatne Extradodatki

GRATIS Poradnik Dach Solarny

100 dni na wymianę, 30 dni na zwrot

Darmowa dostawa - kurier, paczkomaty

Bezpłatne pozwolenie na zmiany

Dokumentacja zgodna z WT2021

Pokaż więcej (5)
Konsultant Masz pytania?
Zadzwoń
71 715 20 60

pon.-pt. 8-21, sob. 9-17

Szukasz wykonawcy godnego zaufania?
Zleć budowę w Extradom.pl!

  • Z góry znasz koszt budowy domu
  • Dom odbierasz zgodnie z ustalonym harmonogramem - nawet w 6 miesięcy
  • Zabezpiecza Cię jedna kompleksowa umowa z jednym wykonawcą
  • Otrzymujesz nawet 30-letnią gwarancję na konstrukcję domu
  • Oszczędzasz swój czas dzięki pewnej i kompletnej usłudze
Cena brutto stanu
deweloperskiego od
Tooltip
Cena brutto stanu deweloperskiego od 4 309 do 5 479 zł/m2.
Cena jest uzależniona m.in. od lokalizacji, wybranej technologii, kubatury budynku, skomplikowania projektu i ewentualnych zmian, na które zdecyduje się inwestor.
Cena za m2 powierzchni netto, czyli wszystkich pomieszczeń mierzonych na wysokości podłogi.
4 309 zł/m2
Dowiedz się więcej
Konsultant Masz pytania?
Zadzwoń
71 715 20 70

pon.-pt. 8-19

Parter - 131,08 m²

Parter projektu Diana 3 dom jednorodzinny dwulokalowy

Zapytaj, co możesz zmienić

Powierzchnia (m²)
Tooltip
Powierzchnia pomieszczenia
to ta, z której faktycznie możesz korzystać – skosy i niskie części poddasza są liczone częściowo lub wcale.
  1. 100% dla wysokości powyżej 2,2 m,
  2. 50% dla wysokości 1,4–2,2 m,
  3. nie liczymy poniżej 1,4 m.

Powierzchnia podłogi
Liczymy po obrysie pomieszczenia, bez względu na jego wysokość/skosy. Jeśli nie ma skosów to powierzchnia podłogi i pomieszczenia jest taka sama.
pomieszczenia i podłogi
podłogi
1. Wiatrołap
5,27
2. Hall
5,33
3. Pokój dzienny + jadalnia + kuchnia
31,83
4. Łazienka
2,58
5. Pomieszczenie gospodarcze
2,59
6. Garaż jednostanowiskowy
17,94
7. Wiatrołap
5,27
8. Hall
5,33
9. Pokój dzienny + jadalnia + kuchnia
31,83
10. Łazienka
2,58
11. Pomieszczenie gospodarcze
2,59
12. Garaż jednostanowiskowy
17,94
Razem
131,08
131,08

Natychmiast, otrzymasz PDF-y
z rzutami wszystkich kondygnacji

Poddasze - 118,12 m²

Poddasze projektu Diana 3 dom jednorodzinny dwulokalowy

Zapytaj, co możesz zmienić

Powierzchnia (m²)
Tooltip
Powierzchnia pomieszczenia
to ta, z której faktycznie możesz korzystać – skosy i niskie części poddasza są liczone częściowo lub wcale.
  1. 100% dla wysokości powyżej 2,2 m,
  2. 50% dla wysokości 1,4–2,2 m,
  3. nie liczymy poniżej 1,4 m.

Powierzchnia podłogi
Liczymy po obrysie pomieszczenia, bez względu na jego wysokość/skosy. Jeśli nie ma skosów to powierzchnia podłogi i pomieszczenia jest taka sama.
pomieszczenia
podłogi
1. Korytarz
6,43
6,43
2. Pokój
19,87
22,16
3. Łazienka
3,85
3,85
4. Łazienka
7,72
7,72
5. Pokój
10,61
11,75
6. Pokój
10,58
11,68
7. Korytarz
6,43
6,43
8. Pokój
19,87
22,16
9. Łazienka
3,85
3,85
10. Łazienka
7,72
7,72
11. Pokój
10,61
11,75
12. Pokój
10,58
11,68
Razem
118,12
127,18

Natychmiast, otrzymasz PDF-y
z rzutami wszystkich kondygnacji

Zamów rysunki szczegółowe

Zapoznaj się ze szczegółowymi rysunkami rzutów kondygnacji w PDF dla tego projektu.

Warianty projektu (2)

PROMOCJA
Projekt domu Diana 3 szeregówka
Diana 3 szeregówka
Dodano!
Dodano!
104,03 m²
3
3
1

3 400 zł

4 000 zł

Tooltip

Cena regularna

3 200 zł najniższa cena
Tooltip

Najniższa cena z 30 dni
przed obniżką

PROMOCJA
Projekt domu Diana 3 bliźniak
Diana 3 bliźniak
Dodano!
Dodano!
104,03 m²
3
2
1

6 630 zł

7 800 zł

Tooltip

Cena regularna

6 240 zł najniższa cena
Tooltip

Najniższa cena z 30 dni
przed obniżką

Podobne projekty (2297)

Zobacz wszystkie
Zdjęcie 1 projektu Senimona 6 KKF1030
Senimona 6
Dodano!
Dodano!
207 m²
6
3
2

6 250 zł

NIŻSZA CENA❄️
Nowość
Zdjęcie 1 projektu APS 107 dwulokalowy wariant 2 LUA1670
238 m²
6
4
2

6 209 zł

6 999 zł

Tooltip

Cena regularna

6 159 zł najniższa cena
Tooltip

Najniższa cena z 30 dni
przed obniżką

NIŻSZA CENA❄️
Zdjęcie 1 projektu Jagodowy 3 BSA2373
Jagodowy 3
Dodano!
Dodano!
213,31 m²
4
2
2

5 990 zł

6 490 zł

Tooltip

Cena regularna

5 990 zł najniższa cena
Tooltip

Najniższa cena z 30 dni
przed obniżką

NIŻSZA CENA❄️
Zdjęcie 1 projektu Willa Eska 3 WAH2024
Willa Eska 3
Dodano!
Dodano!
174,22 m²
4
2
2

5 752 zł

7 190 zł

Tooltip

Cena regularna

5 392 zł najniższa cena
Tooltip

Najniższa cena z 30 dni
przed obniżką

NIŻSZA CENA❄️
Zdjęcie 1 projektu Tosia Duolit (1719) KRD2871
Tosia Duolit (1719)
Dodano!
Dodano!
229,10 m²
10
6
2

7 623 zł

7 973 zł

Tooltip

Cena regularna

7 423 zł najniższa cena
Tooltip

Najniższa cena z 30 dni
przed obniżką

NIŻSZA CENA❄️
Zdjęcie 1 projektu Willa Eska WAH2019
Willa Eska
Dodano!
Dodano!
177,79 m²
4
3
2

5 752 zł

7 190 zł

Tooltip

Cena regularna

5 392 zł najniższa cena
Tooltip

Najniższa cena z 30 dni
przed obniżką

NIŻSZA CENA❄️
Zdjęcie 1 projektu APS 254 wariant 2 dwulokalowy LUA1545
214,60 m²
6
4
2

6 209 zł

6 999 zł

Tooltip

Cena regularna

6 159 zł najniższa cena
Tooltip

Najniższa cena z 30 dni
przed obniżką

NIŻSZA CENA❄️
Zdjęcie 1 projektu APS 254 wariant 3 dwulokalowy LUA1547
206,40 m²
6
4
2

6 409 zł

7 199 zł

Tooltip

Cena regularna

6 359 zł najniższa cena
Tooltip

Najniższa cena z 30 dni
przed obniżką

Projekt z budową

Budowa Projekt z budową

Zbuduj ten dom z naszym Partnerem - wygodnie, szybko i bezpiecznie

Projekt z budową to:

  • gwarancja niezmiennego kosztu budowy

  • krótki czas realizacji - dom gotowy nawet w 6 miesięcy

  • wieloletnia gwarancja na konstrukcję domu

Elewacje

Frontowa
Tylna
Lewa
Prawa

Przekroje

Przekrój pionowy

Usytuowanie na działce

Czy ten projekt pasuje na
Twoją działkę?

Chętnie to sprawdzimy!

Czy ten projekt pasuje na
Twoją działkę?

Chętnie to sprawdzimy!

Dowiedz się:

  • czy zmieści się na niej wybrany przez Ciebie dom
  • jakie parametry musi spełniać dom według miejscowego planu zagospodarowania lub warunków zabudowy (np. kąt nachylenia i typ dachu, liczba kondygnacji itp.
  • jakie inne projekty pasują na Twoją działkę – znajdziemy je dla Ciebie!
Autor: Alexanderstudio.pl

Dane techniczne projektu

Powierzchnie i wymiary Powierzchnie i wymiary

Powierzchnia użytkowa
Tooltip
Suma powierzchni wszystkich pomieszczeń mieszkalnych, pomniejszona o pow. garażu, kotłowni, strychu, piwnicy. Jest liczona w 100% dla pomieszczeń o wysokości powyżej 2,2 m, w 50% dla pomieszczeń o wys. 2,2-1,4 m i niewliczana dla niższych niż 1,4 m.

208,06 m²

Powierzchnia zabudowy
Tooltip
Powierzchnia zajmowana przez część na- oraz nadziemną budynku liczona, jako rzut pionowy budynku na działkę.

174,22 m²

Kubatura netto
Tooltip
Zazwyczaj jest to suma kubatur (objętości) pomieszczeń budynku, bez strychu, liczonych po zewnętrznym obrysie murów (z ociepleniem).

809,96 m³

Kąt nachylenia dachu
Tooltip
Nachylenie połaci dachu głównego podawane w stopniach. Uwaga! W niektórych projektach występuje więcej niż jedno nachylenie dachu.

30°

Wysokość budynku
Tooltip
Wysokość liczona od części budynku położonej najniżej przy powierzchni terenu do najwyższego punktu dachu (kalenicy) z wyłączeniem kominów.

8,60 m

Szerokość elewacji

13,06 m

Długość elewacji

13,35 m

Min. szerokość działki
Tooltip
Najmniejsza możliwa szerokość działki niezbędna do wybudowania wybranego domu. Składa się z szerokości elewacji domu powiększonej z obu stron o 3 m dla ściany bez otworów drzwiowych/okiennych lub 4 m, dla ściany z otworami.

9,53 m

Energooszczędność Energooszczędność

Oze Czym jest OZE (Odnawialne Źródło Energii)?
Ep
Tooltip
Energia pierwotna określa ilość energii nieodnawialnej potrzebnej w ciągu roku do ogrzewania czy też ogrzania wody użytkowej z uwzględnieniem kosztów produkcji i transportu surowców energetycznych.

61,80 kWh/(m²rok)

Euco
Tooltip
Energia użytkowa potrzebna do ogrzewania i wentylacji. Im parametr jest niższy tym budynek bardziej energooszczędny.

24,02 kWh/(m²rok)

Ogrzewanie główne

Gazowe - szczegóły

Interesuje Cię inne źródło ogrzewania? Wyślij zapytanie lub zadzwoń do doradcy

Wentylacja

Grawitacyjna - szczegóły

Warunki techniczne

Projekt zgody z WT 2021

Technologia i konstrukcja Technologia i konstrukcja

Konstrukcja

Murowana

PROJEKT Z BUDOWĄ Istnieje możliwość zaadaptowania tego projektu do technologii prefabrykowanej/modułowej i budowy nawet w 6 miesięcy ze stałym kosztem budowy

Dowiedz się więcej »
Opis szczegółowy

Ściany: bloczek z gazobetonu 24 cm, styropian Termo Organika 18 cm, tynk ściany pomiędzy segmentami: bloczek silikatowy 18cm, dylatacja – styropian 2cm, bloczek silikatowy 18cm. Strop: żelbetowy monolityczny. Dach: dwuspadowy, nachylenie 30°, więźba drewniana, dachówka ceramiczna. lukarna: konstrukcja drewniana, płyta OSB, styropian 8cm, pokrycie dachu płaskiego papa. Ocieplenie dachu: wełna mineralna ISOVER Uni Mata. Ogrzewanie: gazowe (pompa ciepła, paliwo stałe – płatne dodatki) wentylacja: grawitacyjna (rekuperacja – płatny dodatek).

Strop

Żelbetowy

Reklama
Okna i drzwi tarasowe

Nowoczesne okna PVC i aluminiowe WIŚNIOWSKI – doskonała izolacja, elegancki design i niezrównana trwałość.

Wiśniowski
Sprawdź parametry!
Okna dachowe

Oferujemy bezpłatne konsultacje w zakresie wszystkich rozwiązań VELUX. Wyceny, porady dotyczące doboru okien i rolet zewnętrznych - sprawdź!

Velux
Sprawdź szczegóły
Płytki ceramiczne i gresy

Od małych formatów po wielkoformatowe gresy. Marmur, beton, drewno, kamień, lastryko czy cegiełki zamówisz wygodnie online z szybką dostawą.

Ceramzet
Sprawdź ofertę
Drzwi

Ciepłe drzwi WIŚNIOWSKI z kontrolą dostępu. Szeroka gama wzorów i kolorów.

Wiśniowski
Wybierz najlepsze
Bramy garażowe

Automatyczne bramy garażowe segmentowe i uchylne WIŚNIOWSKI na wymiar i z systemem smart home w standardzie.

Wiśniowski
Sprawdź ofertę!
Armatura i ceramika łazienkowa

Topowi producenci. Baterie łazienkowe, zestawy natynkowe i podtynkowe, umywalki, wanny, miski WC oraz kabiny zamówisz kompleksowo online.

Ceramzet II
Dowiedz się więcej
Rekuperacja

Alnor - kompletny system rekuperacji. Dobierz idealne rozwiązanie dla Twojego domu!

Alnor
Dobierz rekuperator
Gruntowe pompy ciepła

Przeprowadzimy kompletną instalację najbardziej oszczędnego źródła ciepła w Twoim nowym domu - gruntowej pompy ciepła. Od dokumentacji, pozwoleń, po odwierty i instalację.

Geothermal Solutions
Dowiedz się więcej

Gotowe domy modułowe (114)

Zobacz wszystkie
Stan deweloperski nawet w 6 miesięcy Gwarancja stałej ceny
Zdjęcie 1 projektu Dom prefabrykowany P.12 z okapem HPK1021
Pow. użytkowa
190,98 m²
Pokoje
5
887 600 zł 4 648 zł/m²
Zdjęcie 1 projektu Dom prefabrykowany P.12 bez okapu HPK1020
Pow. użytkowa
190,98 m²
Pokoje
5
858 100 zł 4 493 zł/m²
Zdjęcie 1 projektu Dom prefabrykowany Stodoła 180C HFX1029
Pow. użytkowa
186,60 m²
Pokoje
5
659 000 zł 3 532 zł/m²
Zdjęcie 1 projektu Dom prefabrykowany Stodoła 180A HFX1027
Pow. użytkowa
186,60 m²
Pokoje
5
659 000 zł 3 532 zł/m²
Zdjęcie 1 projektu Dom prefabrykowany Stodoła 180B HFX1028
Pow. użytkowa
185,90 m²
Pokoje
5
659 000 zł 3 545 zł/m²
Zdjęcie 1 projektu Dom prefabrykowany P.6 HPK1005
Pow. użytkowa
176,69 m²
Pokoje
4
916 600 zł 5 188 zł/m²
Zdjęcie 1 projektu Dom prefabrykowany P.11 bliźniak HPK1016
Pow. użytkowa
245,76 m²
Pokoje
3
1 362 600 zł 5 544 zł/m²
Zdjęcie 1 projektu Dom szkieletowy Viking Smart 220 HHT1032
Pow. użytkowa
163,86 m²
Pokoje
4
1 095 606 zł 6 686 zł/m²

Dodatki do projektu

Dodatki możesz zamówić w koszyku lub telefonicznie u naszego Doradcy.

Ikona

Bestseller

Dodatkowy egzemplarz projektu

600 zł

Opis projektu domu
Diana 3 dom jednorodzinny dwulokalowy

Projekt domu z poddaszem z obszernym garażem, dachem dwuspadowym oraz tarasem.
Czytaj więcej

Polecani producenci

Prefabrykowane konstrukcje dachowe

tło producenta

WIĄZAR POLSKA

Zobacz więcej

Sprawdź nową generację okien GREENVIEW

tło producenta

FAKRO

Sprawdź nową generację okien GREENVIEW

Styropian, tynki, farby, kleje

tło producenta

Termo Organika

Poznaj super jakość

Okna, drzwi, osłony przeciwsłoneczne

tło producenta

Aluprof

Sprawdź ofertę

Kompletne systemy rekuperacji

tło producenta

Alnor

Dowiedz się więcej

Sprawdź nowy system DACHRYNNA

tło producenta

Galeco

Sprawdź ofertę
Zobacz więcej

Społeczność projektu domu
Diana 3 dom jednorodzinny dwulokalowy w budowie

Dołącz do społeczności osób, które budują ten dom lub są zainteresowane jego budową.

  • Oglądaj zdjęcia z budowy
  • Zadawaj pytania
  • Wymieniaj się doświadczeniami

Opinie o projekcie domu Diana 3 dom jednorodzinny dwulokalowy

Ocena

Ten projekt nie ma jeszcze opinii, bądź pierwszy!

Dodaj opinię

ASYSTENT WYBORU PROJEKTU

Szukasz idealnego projektu? Znajdziemy go dla Ciebie!

Doradca na podstawie Twoich wskazówek przygotuje spersonalizowaną listę projektów

Graficzne opracowanie rzutów poglądowych widocznych na karcie projektu zostało wykonane przez Extradom.pl. Prezentowane przez Extradom.pl wizualizacje wykonane zostały przez autora projektu i należy poczytywać je jedynie za przykład i propozycję wykończenia, wizję architektoniczną autora projektu. Ostateczne wykończenie budynku może nastąpić na wiele sposobów. Szczegółowe rozwiązania zastosowane w oferowanej dokumentacji - w tym również ilość, lokalizacje i wygląd okien, drzwi, kominów - mogą w niewielkim stopniu różnić się od prezentowanej wizualizacji budynku.

Extradom.pl Spółka z ograniczoną odpowiedzialnością z siedzibą przy ul. Jaworskiej 13, 53-612 Wrocław, wpisana do rejestru przedsiębiorców Krajowego Rejestru Sądowego przez Sąd Rejonowy dla Wrocławia-Fabrycznej we Wrocławiu, VI Wydział Gospodarczy Krajowego Rejestru Sądowego do pod numerem KRS 0000648746, numer NIP 895-17-18-333, o kapitale zakładowym 708 150,00 zł uprzejmie informuje, iż poprzez serwis Extradom.pl umożliwia m.in. zapoznanie się przez konsumentów z ofertą handlową Partnerów Extradom.pl, którzy stosują metody budowy domów przy wykorzystaniu różnego rodzaju technologie prefabrykacji bądź modułowe (tzw. „Gotowe domy”).

Extradom.pl nie prowadzi jednakże sprzedaży ani nie oferuje usług polegających na doradztwie finansowym, prawnym ani podatkowym w zakresie inwestycji realizowanych w technologiach tzw. „Gotowych domów”. Informacje prezentowane w serwisie Extradom.pl dotyczące Partnerów Extradom.pl oferujących realizację inwestycji w technologiach „Gotowych domów” lub podobnych mają charakter informacyjny i reklamowy.

Prezentowane w serwisie Extradom.pl informacje dotyczące stosowanych przez Partnerów metod budowy domów w technologii prefabrykacji bądź modułowej pochodzą od Partnerów Extradom.pl.

Extradom.pl sp. z o.o. jedynie umożliwia nawiązanie kontaktu przez Użytkownika z Partnerem Extradom.pl stosującym tego rodzaju technologie budowy domów i nie jest stroną umowy o roboty budowlane zawieranej przez Użytkownika Extradom.pl z Partnerem Extradom.pl.

REKLAMA
Zamknij