👉 Niższe ceny + karta allegro 200 zł! 🔥

Koniec oferty za:

00godz.

00min.

00sek.

Sprawdź

Projekt domu D337A WAI1522

Zapisz Dodano!
Porównaj Dodano!
ikona Pobierz i drukuj
Dodaj opinię

Warstwy

Warstwy

Rzut parteru

Powierzchnia (m²)
Tooltip
Powierzchnia pomieszczenia
to ta, z której faktycznie możesz korzystać – skosy i niskie części poddasza są liczone częściowo lub wcale.
  1. 100% dla wysokości powyżej 2,2 m,
  2. 50% dla wysokości 1,4–2,2 m,
  3. nie liczymy poniżej 1,4 m.

Powierzchnia podłogi
Liczymy po obrysie pomieszczenia, bez względu na jego wysokość/skosy. Jeśli nie ma skosów to powierzchnia podłogi i pomieszczenia jest taka sama.
pomieszczenia i podłogi
podłogi
1. Korytarz
6,19
2. Pokój dzienny
22,45
3. Kuchnia
7,54
4. Łazienka
4,37
5. Pokoj
10,52
6. Schody
2,22
7. Pomieszczenie gospodarcze
1,21
Razem
54,50
54,50
8. Taras
2,78
9. Taras
17,96
10. Taras
5,32
Powierzchnia (m²)
Tooltip
Powierzchnia pomieszczenia
to ta, z której faktycznie możesz korzystać – skosy i niskie części poddasza są liczone częściowo lub wcale.
  1. 100% dla wysokości powyżej 2,2 m,
  2. 50% dla wysokości 1,4–2,2 m,
  3. nie liczymy poniżej 1,4 m.

Powierzchnia podłogi
Liczymy po obrysie pomieszczenia, bez względu na jego wysokość/skosy. Jeśli nie ma skosów to powierzchnia podłogi i pomieszczenia jest taka sama.
pomieszczenia
podłogi
1. Korytarz
3,20
3,20
2. Pokój
15,42
19,73
3. Pokój
14,46
18,50
4. Schody
1,12
1,12
5. Łazienka
5
6,89
6. Pomieszczenie gospodarcze
1,82
1,87
Razem
41,02
51,31

    Usytuowanie na działce

    Czy ten projekt pasuje na
    Twoją działkę?

    Chętnie to sprawdzimy!

    Dowiedz się:

    • czy zmieści się na niej wybrany przez Ciebie dom
    • jakie parametry musi spełniać dom według miejscowego planu zagospodarowania lub warunków zabudowy (np. kąt nachylenia i typ dachu, liczba kondygnacji itp.
    • jakie inne projekty pasują na Twoją działkę – znajdziemy je dla Ciebie!

Pow. użytkowa

94,31 m²

Pokoje

2

Łazienki i WC

2

Garaż

0

Min. szer. i dł. działki

17,38 x 15,15 m

Kąt dachu

40°

Szacunkowy koszt SSZ

225 000 zł
Szacunkowy koszt budowy do stanu surowego zamkniętego (SSZ) metodą gospodarczą - większość prac wykonuje inwestor.

Konstrukcja

Murowana
więcej
Zapisz Dodano!
Porównaj Dodano!
ikona Pobierz i drukuj

D337A - WAI1522

ikona 94,31 m²
Powierzchnia użytkowa
ikona2
Pokoje (bez salonu)
ikona 2
Łazienki (z toaletami)
ikona 0
Liczba stanowisk garażowych
(z wiatą garażową)
ikona
Konstrukcja: Murowana

Promocja

od 28.04.2026 do 29.04.2026

0dni

00 00 00

4 049 zł

4 399 zł - cena regularna
Tooltip

Cena regularna obowiązywała od 28.04.2026 do 28.04.2026

4 049 zł - najniższa cena z 30 dni przed obniżką

Wydłużony czas realizacji

NOWOŚĆ! Projekt w opracowaniu.

Zadzwoń i zapytaj o termin realizacji - 71 715 20 60

Gwarancja najniższej ceny
ikona
Darmowa dostawa
Paczkomaty, kurier
ikona
100 dni na wymianę,
30 dni na zwrot
ikona Zyskaj najwięcej! Extradodatki GRATIS:

15% rabatu do LEROY MERLIN

10% rabatu w CASTORAMIE

16% rabatu w SELSEY

Pakiet Formalności 2026

Przydatne Extradodatki

Poradnik Dach Solarny

ikona Co zawiera projekt?
  • Projekt zgodny z WT2021
  • Bezpłatne pozwolenie na zmiany
  • Charakterystyka energetyczna
Konsultant
71 715 20 60

pon.-pt. 8-21, sob. 9-17

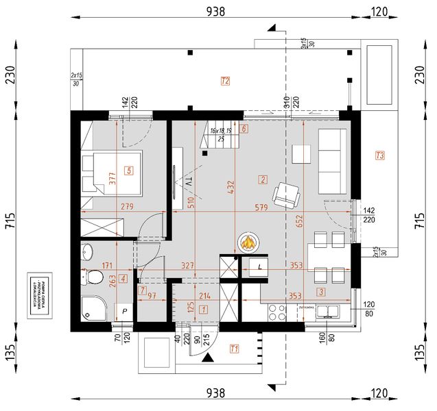
Parter - 54,50 m²

Parter projektu D337A

Zapytaj, co możesz zmienić

Powierzchnia (m²)
Tooltip
Powierzchnia pomieszczenia
to ta, z której faktycznie możesz korzystać – skosy i niskie części poddasza są liczone częściowo lub wcale.
  1. 100% dla wysokości powyżej 2,2 m,
  2. 50% dla wysokości 1,4–2,2 m,
  3. nie liczymy poniżej 1,4 m.

Powierzchnia podłogi
Liczymy po obrysie pomieszczenia, bez względu na jego wysokość/skosy. Jeśli nie ma skosów to powierzchnia podłogi i pomieszczenia jest taka sama.
pomieszczenia i podłogi
podłogi
1. Korytarz
6,19
2. Pokój dzienny
22,45
3. Kuchnia
7,54
4. Łazienka
4,37
5. Pokoj
10,52
6. Schody
2,22
7. Pomieszczenie gospodarcze
1,21
Razem
54,50
54,50
8. Taras
2,78
9. Taras
17,96
10. Taras
5,32

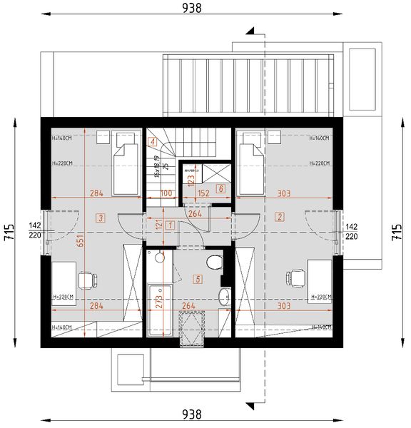
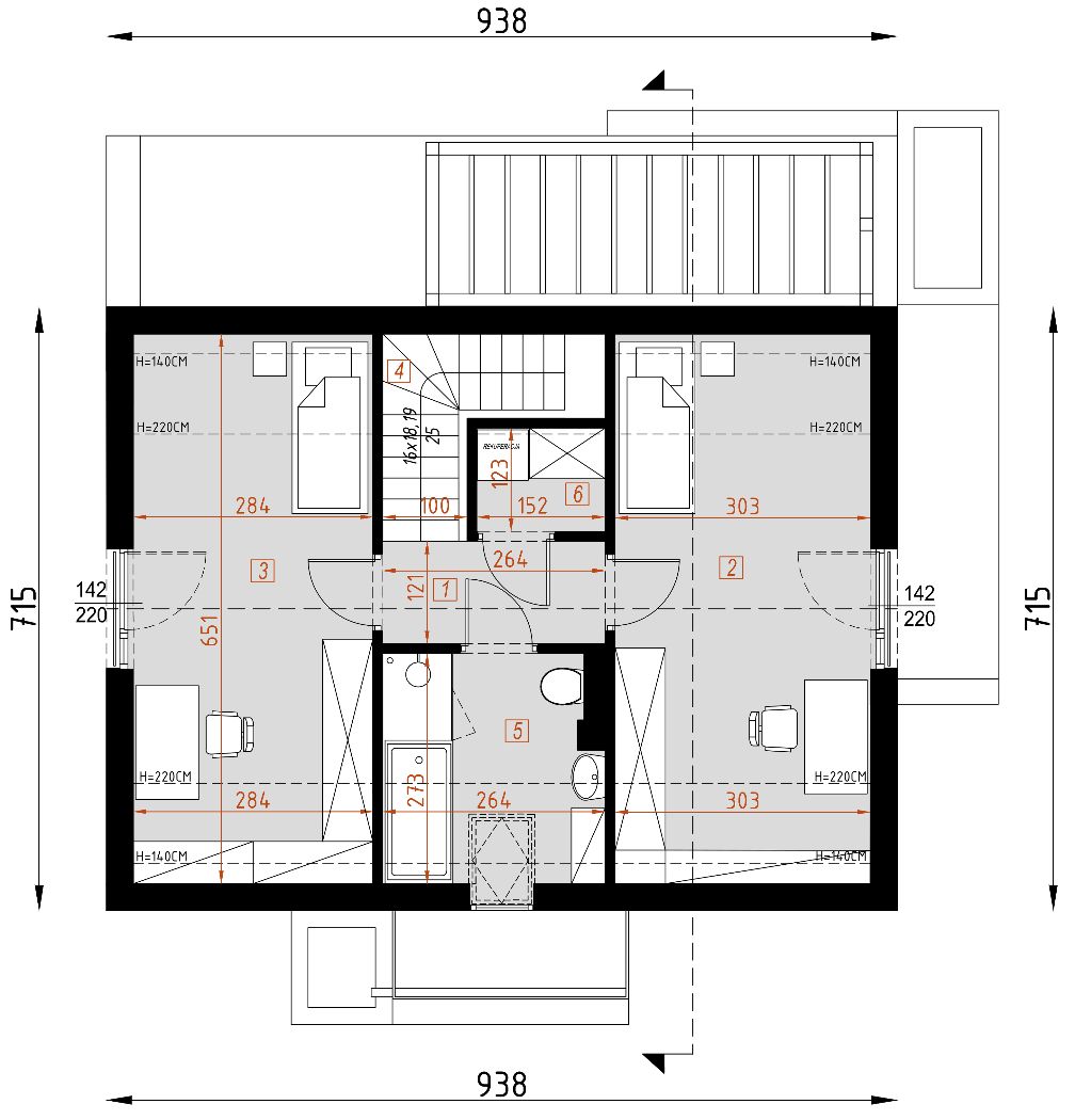
Poddasze - 41,02 m²

Poddasze projektu D337A

Zapytaj, co możesz zmienić

Powierzchnia (m²)
Tooltip
Powierzchnia pomieszczenia
to ta, z której faktycznie możesz korzystać – skosy i niskie części poddasza są liczone częściowo lub wcale.
  1. 100% dla wysokości powyżej 2,2 m,
  2. 50% dla wysokości 1,4–2,2 m,
  3. nie liczymy poniżej 1,4 m.

Powierzchnia podłogi
Liczymy po obrysie pomieszczenia, bez względu na jego wysokość/skosy. Jeśli nie ma skosów to powierzchnia podłogi i pomieszczenia jest taka sama.
pomieszczenia
podłogi
1. Korytarz
3,20
3,20
2. Pokój
15,42
19,73
3. Pokój
14,46
18,50
4. Schody
1,12
1,12
5. Łazienka
5
6,89
6. Pomieszczenie gospodarcze
1,82
1,87
Razem
41,02
51,31

Podobne projekty (266)

Zobacz wszystkie
NIŻSZA CENA 🔥
Zdjęcie 1 projektu Murań KNT1005
Murań
Dodano!
Dodano!
91,60 m²
4
2
0

4 750 zł

5 200 zł

Tooltip

Cena regularna

4 700 zł najniższa cena
Tooltip

Najniższa cena z 30 dni
przed obniżką

NIŻSZA CENA 🔥
Nowość
Zdjęcie 1 projektu MG 3 wariant 18 WAH2173
MG 3 wariant 18
Dodano!
Dodano!
89,72 m²
4
2
0

4 712 zł

5 890 zł

Tooltip

Cena regularna

4 712 zł najniższa cena
Tooltip

Najniższa cena z 30 dni
przed obniżką

NIŻSZA CENA 🔥
Nowość
Zdjęcie 1 projektu Small house KNT1014
Small house
Dodano!
Dodano!
85,80 m²
4
2
0

5 350 zł

5 800 zł

Tooltip

Cena regularna

5 350 zł najniższa cena
Tooltip

Najniższa cena z 30 dni
przed obniżką

NIŻSZA CENA 🔥
Zdjęcie 1 projektu Przyjemny 3 WAH2158
Przyjemny 3
Dodano!
Dodano!
88,96 m²
4
2
0

3 800 zł

4 750 zł

Tooltip

Cena regularna

3 800 zł najniższa cena
Tooltip

Najniższa cena z 30 dni
przed obniżką

NIŻSZA CENA 🔥
Zdjęcie 1 projektu Przyjemny 2 WAH2157
Przyjemny 2
Dodano!
Dodano!
88,96 m²
4
2
0

3 800 zł

4 750 zł

Tooltip

Cena regularna

3 800 zł najniższa cena
Tooltip

Najniższa cena z 30 dni
przed obniżką

NIŻSZA CENA 🔥
Zdjęcie 1 projektu L-302X murowany SLU1045
L-302X murowany
Dodano!
Dodano!
85,22 m²
4
2
0

3 000 zł

3 300 zł

Tooltip

Cena regularna

3 000 zł najniższa cena
Tooltip

Najniższa cena z 30 dni
przed obniżką

NIŻSZA CENA 🔥
Zdjęcie 1 projektu Dino Solo (1920) KRD3063
Dino Solo (1920)
Dodano!
Dodano!
78,80 m²
4
2
0

3 640 zł

3 990 zł

Tooltip

Cena regularna

3 640 zł najniższa cena
Tooltip

Najniższa cena z 30 dni
przed obniżką

NIŻSZA CENA 🔥
Zdjęcie 1 projektu PióroArchitekci – 30 KZN1018
PióroArchitekci – 30
Dodano!
Dodano!
89,30 m²
4
3
0

3 600 zł

3 900 zł

Tooltip

Cena regularna

3 600 zł najniższa cena
Tooltip

Najniższa cena z 30 dni
przed obniżką

Nowy aktualny

Szacunkowy koszt budowy

Stan surowy zamknięty

Koszt aktualny na I kwartał 2026

225 000 zł netto

Prace ziemne i fundamenty

27 000 zł

Kompletna konstrukcja,
strop oraz dach

165 000 zł

Stolarka okienna i drzwiowa

33 000 zł

Czy da się obniżyć koszty budowy?
Czy da się obniżyć koszty budowy?

Oczywiście. Wyceniaj materiały budowlane w kilku miejsach (skorzystaj z gotowego zestawienia materiałów), szukaj promocji, negocjuj. Zobacz nasz film jak obniżyć koszt budowy.

Elewacje

Frontowa
Tylna
Lewa
Prawa

Przekroje

Przekrój pionowy

Usytuowanie na działce

Czy ten projekt pasuje na
Twoją działkę?

Chętnie to sprawdzimy!

Czy ten projekt pasuje na
Twoją działkę?

Chętnie to sprawdzimy!

Dowiedz się:

  • czy zmieści się na niej wybrany przez Ciebie dom
  • jakie parametry musi spełniać dom według miejscowego planu zagospodarowania lub warunków zabudowy (np. kąt nachylenia i typ dachu, liczba kondygnacji itp.
  • jakie inne projekty pasują na Twoją działkę – znajdziemy je dla Ciebie!
Autor: Artinex

Dane techniczne projektu

Powierzchnie i wymiary Powierzchnie i wymiary

Powierzchnia użytkowa
Tooltip
Suma powierzchni wszystkich pomieszczeń mieszkalnych, pomniejszona o pow. garażu, kotłowni, strychu, piwnicy. Jest liczona w 100% dla pomieszczeń o wysokości powyżej 2,2 m, w 50% dla pomieszczeń o wys. 2,2-1,4 m i niewliczana dla niższych niż 1,4 m.

94,31 m²

Powierzchnia zabudowy
Tooltip
Powierzchnia zajmowana przez część na- oraz nadziemną budynku liczona, jako rzut pionowy budynku na działkę.

67,09 m²

Powierzchnia dachu

86 m²

Kąt nachylenia dachu
Tooltip
Nachylenie połaci dachu głównego podawane w stopniach. Uwaga! W niektórych projektach występuje więcej niż jedno nachylenie dachu.

40°

Wysokość budynku
Tooltip
Wysokość liczona od części budynku położonej najniżej przy powierzchni terenu do najwyższego punktu dachu (kalenicy) z wyłączeniem kominów.

7,71 m

Szerokość elewacji

9,38 m

Długość elewacji

7,15 m

Min. szerokość działki
Tooltip
Najmniejsza możliwa szerokość działki niezbędna do wybudowania wybranego domu. Składa się z szerokości elewacji domu powiększonej z obu stron o 3 m dla ściany bez otworów drzwiowych/okiennych lub 4 m, dla ściany z otworami.

17,38 m

Min. długość działki
Tooltip
Najmniejsza możliwa długość działki niezbędna do wybudowania wybranego domu. Składa się z długości elewacji domu powiększonej z obu stron o 3 m dla ściany bez otworów drzwiowych/okiennych lub 4 m, dla ściany z otworami.

15,15 m

Energooszczędność Energooszczędność

Oze Czym jest OZE (Odnawialne Źródło Energii)?
Ogrzewanie główne

Pompa ciepła (OZE) - szczegóły

Interesuje Cię inne źródło ogrzewania? Wyślij zapytanie lub zadzwoń do doradcy

Wentylacja

Mechaniczna nawiewno-wywiewna z rekuperacją - szczegóły

Warunki techniczne

Projekt zgody z WT 2021

Technologia i konstrukcja Technologia i konstrukcja

Konstrukcja

Murowana

Opis szczegółowy

Ściany zewnętrzne: drewniane z ociepleniem. Strop: drewniany - belki. Konstrukcja dachu: krokwiowo-jętkowy. Pokrycie dachu: blacha ocynkowana na rąbek. Elewacja: tynk cienkowarstwowy, drewno. Ogrzewanie: pompa ciepła+rekuperacja EP70 kWh/m2.rok Projekt zgodny z Wt2021.

Strop

Drewniany

Reklama
Okna i drzwi tarasowe

Nowoczesne okna PVC i aluminiowe WIŚNIOWSKI – doskonała izolacja, elegancki design i niezrównana trwałość.

Wiśniowski
Sprawdź parametry!
Okna dachowe

Oferujemy bezpłatne konsultacje w zakresie wszystkich rozwiązań VELUX. Wyceny, porady dotyczące doboru okien i rolet zewnętrznych - sprawdź!

Velux
Sprawdź szczegóły
Pompa ciepła

Wybierz pompę ciepła, która pasuje do Twojego domu. Niezależnie od tego, czy ustawienie wewnątrz czy na zewnątrz, pompy ciepła STIEBEL ELTRON dopasują się do każdej przestrzeni.

Stiebel
Dobierz pompę ciepła
Drzwi

Ciepłe drzwi WIŚNIOWSKI z kontrolą dostępu. Szeroka gama wzorów i kolorów.

Wiśniowski
Wybierz najlepsze
Bramy garażowe

Automatyczne bramy garażowe segmentowe i uchylne WIŚNIOWSKI na wymiar i z systemem smart home w standardzie.

Wiśniowski
Sprawdź ofertę!
Rekuperacja

Alnor - kompletny system rekuperacji. Dobierz idealne rozwiązanie dla Twojego domu!

Alnor
Dobierz rekuperator
Dach

Producent stalowych pokryć dachowych i systemów elewacyjnych. Precyzja wykonania, trwałość na lata i szybki montaż doceniany przez dekarzy. Postaw na solidny dach Budmat.

Budmat
Sprawdź ofertę
Ogrodzenie

Nowoczesne stalowe ogrodzenia Budmat - estetyka, bezpieczeństwo i trwałość na lata. Systemowe rozwiązania na wymiar, dopasowane do każdego domu.

Budmat
Sprawdź ofertę

Gotowe domy - najszybszy sposób na dom (115)

Zobacz wszystkie
  • Stan deweloperski nawet w 6 miesięcy
  • Gwarancja stałej ceny
Skonfiguruj dom
Zdjęcie 1 projektu Bergen 90 HUS1003
90,83 m²
3
Stan deweloperski brutto
409 000 zł 4 503 zł/m²
Zdjęcie 1 projektu Dom prefabrykowany DH110 biurowy HDH1011
94,18 m²
0
Stan deweloperski brutto
553 500 zł 5 877 zł/m²
Zdjęcie 1 projektu Dom prefabrykowany DH115 HDH1007
93,90 m²
2
Stan deweloperski brutto
564 678 zł 6 014 zł/m²
Zdjęcie 1 projektu Dom prefabrykowany DH70-7 HDH1014
95,07 m²
3
Stan deweloperski brutto
621 918 zł 6 542 zł/m²
Zdjęcie 1 projektu Dom szkieletowy Prime Smart 120 HHT1033
95,36 m²
3
Stan deweloperski brutto
507 946 zł 5 263 zł/m²
Zdjęcie 1 projektu Dom keramzytowy Essenzia 110G HRK1002
95,83 m²
2
Stan deweloperski brutto
495 720 zł 5 173 zł/m²
Zdjęcie 1 projektu Dom modułowy Flow HMD1002
92,67 m²
3
Stan deweloperski brutto
508 000 zł 5 482 zł/m²
Zdjęcie 1 projektu Dom prefabrykowany E.3 HPK1019
97,13 m²
3
Stan deweloperski brutto
496 033 zł 5 107 zł/m²

Opis projektu domu
D337A

Projekt domu z poddaszem D337A z dachem dwuspadowym i tarasem.
Czytaj więcej

Informacje dodatkowe

Przy zakupie projektu należy zapłacić 30% zadatku. Projekt stanowi aktualną i pełną dokumentację zawierającą część architektoniczno - budowlaną, konstrukcyjną wykonawczą, instalacji wewnętrznych, elektrycznych i teletechnicznych, charakterystykę energetyczną oraz uprawnienia projektantów. Dokumentacja zabezpieczona jest specjalną plombą, której usunięcie uniemożliwi jej zwrot oraz wymianę. Do zamówienia zostanie dołączony pakiet poglądowych rysunków szczegółowych, pozwalających zapoznać się z projektem bez konieczności zrywania plomby z właściwej dokumentacji projektowej.

Czytaj więcej

Polecani producenci

Kompletne systemy rekuperacji

tło producenta

Alnor

Dowiedz się więcej

Dachy modułowe ze stali

tło producenta

Budmat

Poznaj szczegóły oferty

Prefabrykowane konstrukcje dachowe

tło producenta

WIĄZAR POLSKA

Zobacz więcej

Sprawdź nową generację okien GREENVIEW

tło producenta

FAKRO

Sprawdź nową generację okien GREENVIEW

Styropian, tynki, farby, kleje

tło producenta

Termo Organika

Poznaj super jakość

Okna, drzwi, osłony przeciwsłoneczne

tło producenta

Aluprof

Sprawdź ofertę
Zobacz więcej

Społeczność projektu domu
D337A w budowie

Dołącz do społeczności osób, które budują ten dom lub są zainteresowane jego budową.

  • Oglądaj zdjęcia z budowy
  • Zadawaj pytania
  • Wymieniaj się doświadczeniami

Opinie o projekcie domu
D337A

Opinie niezweryfikowane

Bądź pierwszy!
Ten projekt nie ma jeszcze opinii, bądź pierwszy!

ikona Dodaj opinię o projekcie

ASYSTENT WYBORU PROJEKTU

Szukasz idealnego projektu? Znajdziemy go dla Ciebie!

Doradca na podstawie Twoich wskazówek przygotuje spersonalizowaną listę projektów

Graficzne opracowanie rzutów poglądowych widocznych na karcie projektu zostało wykonane przez Extradom.pl. Prezentowane przez Extradom.pl wizualizacje wykonane zostały przez autora projektu i należy poczytywać je jedynie za przykład i propozycję wykończenia, wizję architektoniczną autora projektu. Ostateczne wykończenie budynku może nastąpić na wiele sposobów. Szczegółowe rozwiązania zastosowane w oferowanej dokumentacji - w tym również ilość, lokalizacje i wygląd okien, drzwi, kominów - mogą w niewielkim stopniu różnić się od prezentowanej wizualizacji budynku.

REKLAMA
Zamknij