👉 Wiosenne okazje + karta allegro 200 zł! 🔥

Koniec oferty za:

00godz.

00min.

00sek.

Sprawdź

Projekt domu Chmielniki dw19 KRP1353

Zapisz Dodano!
Porównaj Dodano!
ikona Pobierz i drukuj

Warstwy

Warstwy

Warstwy

Rzut parteru

Powierzchnia (m²)
Tooltip
Powierzchnia pomieszczenia
to ta, z której faktycznie możesz korzystać – skosy i niskie części poddasza są liczone częściowo lub wcale.
  1. 100% dla wysokości powyżej 2,2 m,
  2. 50% dla wysokości 1,4–2,2 m,
  3. nie liczymy poniżej 1,4 m.

Powierzchnia podłogi
Liczymy po obrysie pomieszczenia, bez względu na jego wysokość/skosy. Jeśli nie ma skosów to powierzchnia podłogi i pomieszczenia jest taka sama.
pomieszczenia i podłogi
podłogi
1. Korytarz
12,11
2. Pomieszczenie gospodarcze
25,31
3. Korytarz
13,17
4. Piwnica
16,25
5. Piwnica
20,64
6. Kotłownia
33,48
7. Piwnica
11,32
8. Łazienka
6,65
9. Piwnica
18,20
Razem
157,13
157,13
Powierzchnia (m²)
Tooltip
Powierzchnia pomieszczenia
to ta, z której faktycznie możesz korzystać – skosy i niskie części poddasza są liczone częściowo lub wcale.
  1. 100% dla wysokości powyżej 2,2 m,
  2. 50% dla wysokości 1,4–2,2 m,
  3. nie liczymy poniżej 1,4 m.

Powierzchnia podłogi
Liczymy po obrysie pomieszczenia, bez względu na jego wysokość/skosy. Jeśli nie ma skosów to powierzchnia podłogi i pomieszczenia jest taka sama.
pomieszczenia i podłogi
podłogi
1. Wiatrołap
7,60
2. Garderoba
4,50
3. Kuchnia
22,01
4. Pokój dzienny + jadalnia
62,15
5. Korytarz
8,40
6. Łazienka
6,13
7. Pokój
18,47
8. Pokój
15,18
9. Garderoba
1,69
10. Łazienka
4,58
11. Wc
2,72
Razem
153,43
153,43
Powierzchnia (m²)
Tooltip
Powierzchnia pomieszczenia
to ta, z której faktycznie możesz korzystać – skosy i niskie części poddasza są liczone częściowo lub wcale.
  1. 100% dla wysokości powyżej 2,2 m,
  2. 50% dla wysokości 1,4–2,2 m,
  3. nie liczymy poniżej 1,4 m.

Powierzchnia podłogi
Liczymy po obrysie pomieszczenia, bez względu na jego wysokość/skosy. Jeśli nie ma skosów to powierzchnia podłogi i pomieszczenia jest taka sama.
pomieszczenia
podłogi
1. Korytarz
23,71
28,10
2. Pokój
11,75
21,89
3. Pokój dzienny
14,16
21,01
4. Pokój
12,13
22,47
5. Łazienka
5,56
8,11
6. Pokój
14,27
25,49
7. Pokój
18,14
24,24
8. Łazienka
10,21
19,84
Razem
109,93
171,15

    Usytuowanie na działce

    Czy ten projekt pasuje na
    Twoją działkę?

    Chętnie to sprawdzimy!

    Dowiedz się:

    • czy zmieści się na niej wybrany przez Ciebie dom
    • jakie parametry musi spełniać dom według miejscowego planu zagospodarowania lub warunków zabudowy (np. kąt nachylenia i typ dachu, liczba kondygnacji itp.
    • jakie inne projekty pasują na Twoją działkę – znajdziemy je dla Ciebie!

Pow. użytkowa

263,36 m²

Pokoje

6

Łazienki i WC

5

Garaż

0

Min. szer. i dł. działki

26 x 20,20 m

Kąt dachu

37°

Konstrukcja

Z bali
więcej

Chmielniki dw19 - KRP1353

ikona 263,36 m²
Powierzchnia użytkowa
ikona6
Pokoje (bez salonu)
ikona 5
Łazienki (z toaletami)
ikona 0
Liczba stanowisk garażowych
(z wiatą garażową)
ikona
Konstrukcja: Z bali

Projekt został
wycofany z oferty

W razie pytań prosimy o kontakt
z Centrum Obsługi Klienta
Konsultant
71 715 20 60

pon.-pt. 8-21, sob. 9-17

Piwnica - 157,13 m²

Piwnica projektu Chmielniki dw19

Zapytaj, co możesz zmienić

Powierzchnia (m²)
Tooltip
Powierzchnia pomieszczenia
to ta, z której faktycznie możesz korzystać – skosy i niskie części poddasza są liczone częściowo lub wcale.
  1. 100% dla wysokości powyżej 2,2 m,
  2. 50% dla wysokości 1,4–2,2 m,
  3. nie liczymy poniżej 1,4 m.

Powierzchnia podłogi
Liczymy po obrysie pomieszczenia, bez względu na jego wysokość/skosy. Jeśli nie ma skosów to powierzchnia podłogi i pomieszczenia jest taka sama.
pomieszczenia i podłogi
podłogi
1. Korytarz
12,11
2. Pomieszczenie gospodarcze
25,31
3. Korytarz
13,17
4. Piwnica
16,25
5. Piwnica
20,64
6. Kotłownia
33,48
7. Piwnica
11,32
8. Łazienka
6,65
9. Piwnica
18,20
Razem
157,13
157,13

Parter - 153,43 m²

Parter projektu Chmielniki dw19

Zapytaj, co możesz zmienić

Powierzchnia (m²)
Tooltip
Powierzchnia pomieszczenia
to ta, z której faktycznie możesz korzystać – skosy i niskie części poddasza są liczone częściowo lub wcale.
  1. 100% dla wysokości powyżej 2,2 m,
  2. 50% dla wysokości 1,4–2,2 m,
  3. nie liczymy poniżej 1,4 m.

Powierzchnia podłogi
Liczymy po obrysie pomieszczenia, bez względu na jego wysokość/skosy. Jeśli nie ma skosów to powierzchnia podłogi i pomieszczenia jest taka sama.
pomieszczenia i podłogi
podłogi
1. Wiatrołap
7,60
2. Garderoba
4,50
3. Kuchnia
22,01
4. Pokój dzienny + jadalnia
62,15
5. Korytarz
8,40
6. Łazienka
6,13
7. Pokój
18,47
8. Pokój
15,18
9. Garderoba
1,69
10. Łazienka
4,58
11. Wc
2,72
Razem
153,43
153,43

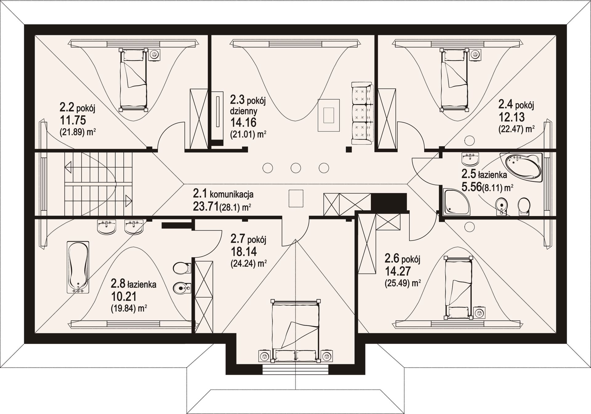
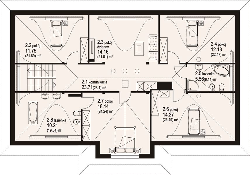
Poddasze - 109,93 m²

Poddasze projektu Chmielniki dw19

Zapytaj, co możesz zmienić

Powierzchnia (m²)
Tooltip
Powierzchnia pomieszczenia
to ta, z której faktycznie możesz korzystać – skosy i niskie części poddasza są liczone częściowo lub wcale.
  1. 100% dla wysokości powyżej 2,2 m,
  2. 50% dla wysokości 1,4–2,2 m,
  3. nie liczymy poniżej 1,4 m.

Powierzchnia podłogi
Liczymy po obrysie pomieszczenia, bez względu na jego wysokość/skosy. Jeśli nie ma skosów to powierzchnia podłogi i pomieszczenia jest taka sama.
pomieszczenia
podłogi
1. Korytarz
23,71
28,10
2. Pokój
11,75
21,89
3. Pokój dzienny
14,16
21,01
4. Pokój
12,13
22,47
5. Łazienka
5,56
8,11
6. Pokój
14,27
25,49
7. Pokój
18,14
24,24
8. Łazienka
10,21
19,84
Razem
109,93
171,15

Warianty projektu (33)

PROMOCJA
Projekt domu Chmielniki małe 33 dw
Chmielniki małe 33 dw
Dodano!
Dodano!
160,21 m²
4
2
1

7 280 zł

7 480 zł

Tooltip

Cena regularna

7 180 zł najniższa cena
Tooltip

Najniższa cena z 30 dni
przed obniżką

PROMOCJA
Projekt domu Chmielniki małe dw 65
Chmielniki małe dw 65
Dodano!
Dodano!
147,38 m²
4
4
1

7 280 zł

7 480 zł

Tooltip

Cena regularna

7 180 zł najniższa cena
Tooltip

Najniższa cena z 30 dni
przed obniżką

PROMOCJA
Projekt domu Chmielniki małe dw 71
Chmielniki małe dw 71
Dodano!
Dodano!
132,17 m²
5
2
0

7 080 zł

7 280 zł

Tooltip

Cena regularna

6 980 zł najniższa cena
Tooltip

Najniższa cena z 30 dni
przed obniżką

PROMOCJA
Projekt domu Chmielniki dw 43
Chmielniki dw 43
Dodano!
Dodano!
151,73 m²
4
2
0

7 080 zł

7 280 zł

Tooltip

Cena regularna

6 980 zł najniższa cena
Tooltip

Najniższa cena z 30 dni
przed obniżką

PROMOCJA
Projekt domu Chmielniki małe dw 9
Chmielniki małe dw 9
Dodano!
Dodano!
130,77 m²
6
2
0

7 180 zł

7 380 zł

Tooltip

Cena regularna

7 080 zł najniższa cena
Tooltip

Najniższa cena z 30 dni
przed obniżką

PROMOCJA
Projekt domu Chmielniki małe 7 dws
Chmielniki małe 7 dws
Dodano!
Dodano!
134,33 m²
5
2
1

6 280 zł

6 480 zł

Tooltip

Cena regularna

6 180 zł najniższa cena
Tooltip

Najniższa cena z 30 dni
przed obniżką

PROMOCJA
Projekt domu Chmielniki małe dw 17k
Chmielniki małe dw 17k
Dodano!
Dodano!
139,21 m²
4
2
1

7 280 zł

7 480 zł

Tooltip

Cena regularna

7 180 zł najniższa cena
Tooltip

Najniższa cena z 30 dni
przed obniżką

PROMOCJA
Projekt domu Chmielniki małe dw 57
Chmielniki małe dw 57
Dodano!
Dodano!
156,52 m²
5
2
1

7 380 zł

7 580 zł

Tooltip

Cena regularna

7 280 zł najniższa cena
Tooltip

Najniższa cena z 30 dni
przed obniżką

PROMOCJA
Projekt domu Chmielniki małe dw7k
Chmielniki małe dw7k
Dodano!
Dodano!
123,77 m²
5
2
0

7 080 zł

7 280 zł

Tooltip

Cena regularna

6 980 zł najniższa cena
Tooltip

Najniższa cena z 30 dni
przed obniżką

PROMOCJA
Projekt domu Chmielniki małe dw 47
Chmielniki małe dw 47
Dodano!
Dodano!
128,84 m²
5
2
0

6 880 zł

7 080 zł

Tooltip

Cena regularna

6 780 zł najniższa cena
Tooltip

Najniższa cena z 30 dni
przed obniżką

PROMOCJA
Projekt domu Chmielniki małe dw 97
Chmielniki małe dw 97
Dodano!
Dodano!
149,16 m²
6
2
1

7 280 zł

7 480 zł

Tooltip

Cena regularna

7 180 zł najniższa cena
Tooltip

Najniższa cena z 30 dni
przed obniżką

PROMOCJA
Projekt domu Chmielniki małe dw 77
Chmielniki małe dw 77
Dodano!
Dodano!
143,86 m²
4
3
1

7 280 zł

7 480 zł

Tooltip

Cena regularna

7 180 zł najniższa cena
Tooltip

Najniższa cena z 30 dni
przed obniżką

PROMOCJA
Projekt domu Chmielniki 87 dw
Chmielniki 87 dw
Dodano!
Dodano!
155,42 m²
5
2
1

7 080 zł

7 280 zł

Tooltip

Cena regularna

6 980 zł najniższa cena
Tooltip

Najniższa cena z 30 dni
przed obniżką

PROMOCJA
Projekt domu Chmielniki małe 59 dw
Chmielniki małe 59 dw
Dodano!
Dodano!
138,07 m²
4
3
2

6 980 zł

7 180 zł

Tooltip

Cena regularna

6 880 zł najniższa cena
Tooltip

Najniższa cena z 30 dni
przed obniżką

PROMOCJA
Projekt domu Chmielniki średnie dw 20
Chmielniki średnie dw 20
Dodano!
Dodano!
236,61 m²
4
3
0

7 480 zł

7 680 zł

Tooltip

Cena regularna

7 380 zł najniższa cena
Tooltip

Najniższa cena z 30 dni
przed obniżką

PROMOCJA
Projekt domu Chmielniki małe dw 72
Chmielniki małe dw 72
Dodano!
Dodano!
137,80 m²
5
2
0

6 780 zł

6 980 zł

Tooltip

Cena regularna

6 680 zł najniższa cena
Tooltip

Najniższa cena z 30 dni
przed obniżką

PROMOCJA
Projekt domu Chmielniki małe dw 67
Chmielniki małe dw 67
Dodano!
Dodano!
134,41 m²
5
2
1

7 080 zł

7 280 zł

Tooltip

Cena regularna

6 980 zł najniższa cena
Tooltip

Najniższa cena z 30 dni
przed obniżką

PROMOCJA
Projekt domu Chmielniki małe dw 11
Chmielniki małe dw 11
Dodano!
Dodano!
106,52 m²
3
2
0

7 280 zł

7 480 zł

Tooltip

Cena regularna

7 180 zł najniższa cena
Tooltip

Najniższa cena z 30 dni
przed obniżką

PROMOCJA
Projekt domu Chmielniki dw 55
Chmielniki dw 55
Dodano!
Dodano!
228,02 m²
5
2
2

7 480 zł

7 680 zł

Tooltip

Cena regularna

7 380 zł najniższa cena
Tooltip

Najniższa cena z 30 dni
przed obniżką

PROMOCJA
Projekt domu Chmielniki małe dw 21
Chmielniki małe dw 21
Dodano!
Dodano!
113,55 m²
2
2
0

7 180 zł

7 380 zł

Tooltip

Cena regularna

7 080 zł najniższa cena
Tooltip

Najniższa cena z 30 dni
przed obniżką

PROMOCJA
Projekt domu Chmielniki małe 16 dw
Chmielniki małe 16 dw
Dodano!
Dodano!
157,79 m²
4
2
0

7 080 zł

7 280 zł

Tooltip

Cena regularna

6 980 zł najniższa cena
Tooltip

Najniższa cena z 30 dni
przed obniżką

PROMOCJA
Projekt domu Chmielniki m1
Chmielniki m1
Dodano!
Dodano!
138,02 m²
4
2
1

5 780 zł

5 980 zł

Tooltip

Cena regularna

5 680 zł najniższa cena
Tooltip

Najniższa cena z 30 dni
przed obniżką

PROMOCJA
Projekt domu Chmielniki małe dw 37
Chmielniki małe dw 37
Dodano!
Dodano!
128,84 m²
5
2
0

6 880 zł

7 080 zł

Tooltip

Cena regularna

6 780 zł najniższa cena
Tooltip

Najniższa cena z 30 dni
przed obniżką

PROMOCJA
Projekt domu Chmielniki m8
Chmielniki m8
Dodano!
Dodano!
109,54 m²
3
2
0

5 580 zł

5 780 zł

Tooltip

Cena regularna

5 480 zł najniższa cena
Tooltip

Najniższa cena z 30 dni
przed obniżką

PROMOCJA
Projekt domu Chmielniki średnie dw 25
Chmielniki średnie dw 25
Dodano!
Dodano!
212 m²
6
2
0

7 480 zł

7 680 zł

Tooltip

Cena regularna

7 380 zł najniższa cena
Tooltip

Najniższa cena z 30 dni
przed obniżką

PROMOCJA
Projekt domu Chmielniki dws 39
Chmielniki dws 39
Dodano!
Dodano!
195,02 m²
5
3
2

7 480 zł

7 680 zł

Tooltip

Cena regularna

7 380 zł najniższa cena
Tooltip

Najniższa cena z 30 dni
przed obniżką

PROMOCJA
Projekt domu Chmielniki małe dw
Chmielniki małe dw
Dodano!
Dodano!
125,51 m²
4
2
0

7 180 zł

7 380 zł

Tooltip

Cena regularna

7 080 zł najniższa cena
Tooltip

Najniższa cena z 30 dni
przed obniżką

PROMOCJA
Projekt domu Chmielniki małe 39 dw
Chmielniki małe 39 dw
Dodano!
Dodano!
150,03 m²
4
2
0

7 380 zł

7 580 zł

Tooltip

Cena regularna

7 280 zł najniższa cena
Tooltip

Najniższa cena z 30 dni
przed obniżką

PROMOCJA
Projekt domu Chmielniki dw 49x
Chmielniki dw 49x
Dodano!
Dodano!
204,15 m²
6
2
0

7 480 zł

7 680 zł

Tooltip

Cena regularna

7 380 zł najniższa cena
Tooltip

Najniższa cena z 30 dni
przed obniżką

PROMOCJA
Projekt domu Chmielniki średnie 28
Chmielniki średnie 28
Dodano!
Dodano!
225,20 m²
6
2
2

7 480 zł

7 680 zł

Tooltip

Cena regularna

7 380 zł najniższa cena
Tooltip

Najniższa cena z 30 dni
przed obniżką

PROMOCJA
Projekt domu Chmielniki dw 66
Chmielniki dw 66
Dodano!
Dodano!
225,04 m²
5
2
2

7 480 zł

7 680 zł

Tooltip

Cena regularna

7 380 zł najniższa cena
Tooltip

Najniższa cena z 30 dni
przed obniżką

PROMOCJA
Projekt domu Chmielniki małe dw 19
Chmielniki małe dw 19
Dodano!
Dodano!
140,69 m²
5
2
0

7 380 zł

7 580 zł

Tooltip

Cena regularna

7 280 zł najniższa cena
Tooltip

Najniższa cena z 30 dni
przed obniżką

PROMOCJA
Projekt domu Chmielniki m11
Chmielniki m11
Dodano!
Dodano!
160,88 m²
5
2
1

5 980 zł

6 180 zł

Tooltip

Cena regularna

5 880 zł najniższa cena
Tooltip

Najniższa cena z 30 dni
przed obniżką

Podobne projekty (257)

Zobacz wszystkie
PROMOCJA
Zdjęcie 1 projektu Wyszukany D64 WWB1072
Wyszukany D64
Dodano!
Dodano!
250,56 m²
6
3
2

5 449 zł

5 949 zł

Tooltip

Cena regularna

5 599 zł najniższa cena
Tooltip

Najniższa cena z 30 dni
przed obniżką

PROMOCJA
Zdjęcie 1 projektu APS 107 wariant 2 dwulokalowy LUA1670
238 m²
6
4
2

6 409 zł

7 199 zł

Tooltip

Cena regularna

6 409 zł najniższa cena
Tooltip

Najniższa cena z 30 dni
przed obniżką

Zdjęcie 1 projektu Thor GDH1003
Thor
Dodano!
Dodano!
258,20 m²
5
2
2

6 200 zł

PROMOCJA
Zdjęcie 1 projektu APS 049 dwulokalowy LUA1669
APS 049 dwulokalowy
Dodano!
Dodano!
273,40 m²
8
4
4

6 309 zł

7 099 zł

Tooltip

Cena regularna

6 309 zł najniższa cena
Tooltip

Najniższa cena z 30 dni
przed obniżką

PROMOCJA
Zdjęcie 1 projektu Tosia Duolit (1719) KRD2871
Tosia Duolit (1719)
Dodano!
Dodano!
229,10 m²
10
6
2

7 623 zł

7 973 zł

Tooltip

Cena regularna

7 593 zł najniższa cena
Tooltip

Najniższa cena z 30 dni
przed obniżką

Zdjęcie 1 projektu NewHouse 728 KRZ1024
NewHouse 728
Dodano!
Dodano!
257,20 m²
6
3
2

7 990 zł

PROMOCJA
Zdjęcie 1 projektu Dom z widokiem 3 wariant H WAH1825
Dom z widokiem 3 wariant H
Dodano!
Dodano!
267,43 m²
4
3
2

8 264 zł

10 330 zł

Tooltip

Cena regularna

8 264 zł najniższa cena
Tooltip

Najniższa cena z 30 dni
przed obniżką

PROMOCJA
Zdjęcie 1 projektu APS 307 dwulokalowy LUA1628
APS 307 dwulokalowy
Dodano!
Dodano!
246,40 m²
8
4
2

6 709 zł

7 499 zł

Tooltip

Cena regularna

6 709 zł najniższa cena
Tooltip

Najniższa cena z 30 dni
przed obniżką

Elewacje

Frontowa
Tylna
Lewa
Prawa

Przekroje

Przekrój pionowy

Usytuowanie na działce

Czy ten projekt pasuje na
Twoją działkę?

Chętnie to sprawdzimy!

Czy ten projekt pasuje na
Twoją działkę?

Chętnie to sprawdzimy!

Dowiedz się:

  • czy zmieści się na niej wybrany przez Ciebie dom
  • jakie parametry musi spełniać dom według miejscowego planu zagospodarowania lub warunków zabudowy (np. kąt nachylenia i typ dachu, liczba kondygnacji itp.
  • jakie inne projekty pasują na Twoją działkę – znajdziemy je dla Ciebie!
Autor: Dom-Projekt

Dane techniczne projektu

Powierzchnie i wymiary Powierzchnie i wymiary

Powierzchnia użytkowa
Tooltip
Suma powierzchni wszystkich pomieszczeń mieszkalnych, pomniejszona o pow. garażu, kotłowni, strychu, piwnicy. Jest liczona w 100% dla pomieszczeń o wysokości powyżej 2,2 m, w 50% dla pomieszczeń o wys. 2,2-1,4 m i niewliczana dla niższych niż 1,4 m.

263,36 m²

Wysokość ściany kolankowej
Tooltip
Wysokość ściany podpierającej dach. Jej wysokość wpływa na powierzchnię użytkową kondygnacji, na której się znajduje.

0,63 m

Powierzchnia zabudowy
Tooltip
Powierzchnia zajmowana przez część na- oraz nadziemną budynku liczona, jako rzut pionowy budynku na działkę.

190,80 m²

Powierzchnia netto
Tooltip
Powierzchna wszystkich pomieszczeń w budynku mierzona na wysokości podłogi.

499,58 m²

Kubatura brutto
Tooltip
Zazwyczaj jest to suma kubatur (objętości) wszystkich pomieszczeń budynku, liczonych po zewnętrznym obrysie murów (z ociepleniem).

1 495,70 m³

Powierzchnia dachu

318,44 m²

Kąt nachylenia dachu
Tooltip
Nachylenie połaci dachu głównego podawane w stopniach. Uwaga! W niektórych projektach występuje więcej niż jedno nachylenie dachu.

37°

Wysokość budynku
Tooltip
Wysokość liczona od części budynku położonej najniżej przy powierzchni terenu do najwyższego punktu dachu (kalenicy) z wyłączeniem kominów.

8,41 m

Min. szerokość działki
Tooltip
Najmniejsza możliwa szerokość działki niezbędna do wybudowania wybranego domu. Składa się z szerokości elewacji domu powiększonej z obu stron o 3 m dla ściany bez otworów drzwiowych/okiennych lub 4 m, dla ściany z otworami.

26 m

Min. długość działki
Tooltip
Najmniejsza możliwa długość działki niezbędna do wybudowania wybranego domu. Składa się z długości elewacji domu powiększonej z obu stron o 3 m dla ściany bez otworów drzwiowych/okiennych lub 4 m, dla ściany z otworami.

20,20 m

Energooszczędność Energooszczędność

Oze Czym jest OZE (Odnawialne Źródło Energii)?
Warunki techniczne

Projekt zgody z WT 2021

Technologia i konstrukcja Technologia i konstrukcja

Konstrukcja

Z bali

Opis szczegółowy

Wysokość ścianki kolankowej: 0.63 m. Ilość drewna na więźbę: 20.7 m³. Strop: żelbet + drewniany. Pokrycie dachu: dachówka gontopodobna Gerard Corona. Ściany zewnętrzne: płazy drewniane + wełna mineralna + deska. Ściany wewnętrzne: płazy drewniane. Typ ogrzewania: kocioł gazowy lub kocioł na paliwo stałe.

Strop

Żelbetowy

Reklama
Okna i drzwi tarasowe

Nowoczesne okna PVC i aluminiowe WIŚNIOWSKI – doskonała izolacja, elegancki design i niezrównana trwałość.

Wiśniowski
Sprawdź parametry!
Okna dachowe

Oferujemy bezpłatne konsultacje w zakresie wszystkich rozwiązań VELUX. Wyceny, porady dotyczące doboru okien i rolet zewnętrznych - sprawdź!

Velux
Sprawdź szczegóły
Pompa ciepła

Wybierz pompę ciepła, która pasuje do Twojego domu. Niezależnie od tego, czy ustawienie wewnątrz czy na zewnątrz, pompy ciepła STIEBEL ELTRON dopasują się do każdej przestrzeni.

Stiebel
Dowiedz się więcej
Płytki ceramiczne i gresy

Od małych formatów po wielkoformatowe gresy. Marmur, beton, drewno, kamień, lastryko czy cegiełki zamówisz wygodnie online z szybką dostawą.

Ceramzet
Sprawdź ofertę
Drzwi

Ciepłe drzwi WIŚNIOWSKI z kontrolą dostępu. Szeroka gama wzorów i kolorów.

Wiśniowski
Wybierz najlepsze
Bramy garażowe

Automatyczne bramy garażowe segmentowe i uchylne WIŚNIOWSKI na wymiar i z systemem smart home w standardzie.

Wiśniowski
Sprawdź ofertę!
Rekuperacja

Alnor - kompletny system rekuperacji. Dobierz idealne rozwiązanie dla Twojego domu!

Alnor
Dobierz rekuperator
Dach

Producent stalowych pokryć dachowych i systemów elewacyjnych. Precyzja wykonania, trwałość na lata i szybki montaż doceniany przez dekarzy. Postaw na solidny dach Budmat.

Budmat
Sprawdź ofertę
Ogrodzenie

Nowoczesne stalowe ogrodzenia Budmat - estetyka, bezpieczeństwo i trwałość na lata. Systemowe rozwiązania na wymiar, dopasowane do każdego domu.

Budmat
Sprawdź ofertę

Gotowe domy - najszybszy sposób na dom (115)

Zobacz wszystkie
  • Stan deweloperski nawet w 6 miesięcy
  • Gwarancja stałej ceny
Skonfiguruj dom
Zdjęcie 1 projektu Bergen 130 HUS1002
130,40 m²
4
Stan deweloperski brutto
499 000 zł 3 827 zł/m²
Zdjęcie 1 projektu Dom prefabrykowany P.12 z okapem HPK1021
190,98 m²
5
Stan deweloperski brutto
916 500 zł 4 799 zł/m²
Zdjęcie 1 projektu Dom prefabrykowany P.12 bez okapu HPK1020
190,98 m²
5
Stan deweloperski brutto
886 500 zł 4 642 zł/m²
Zdjęcie 1 projektu Dom prefabrykowany P.6 HPK1005
176,69 m²
4
Stan deweloperski brutto
972 700 zł 5 505 zł/m²
Zdjęcie 1 projektu Dom szkieletowy Viking Smart 220 HHT1032
163,86 m²
4
Stan deweloperski brutto
1 095 606 zł 6 686 zł/m²
Zdjęcie 1 projektu Dom prefabrykowany DH174 HDH1009
162,97 m²
4
Stan deweloperski brutto
1 026 000 zł 6 296 zł/m²
Zdjęcie 1 projektu Dom prefabrykowany P.4 bez okapu HPK1003
162,18 m²
5
Stan deweloperski brutto
723 500 zł 4 461 zł/m²
Zdjęcie 1 projektu Dom prefabrykowany P.4 z okapem HPK1014
162,18 m²
5
Stan deweloperski brutto
739 600 zł 4 560 zł/m²

Opis projektu domu
Chmielniki dw19

Dom Chmielniki dw19 został stworzony na wzór popularnego projektu Chmielniki. W przeciwieństwie do podstawowej wersji projekt ma większą powierzchnię, piwnicę. Projekt domu Chmielniki dw19 odpowiedni do zrealizowania na średniej szerokości działkę. Dom posiada typową bryłę, przez co jest tani w budowie. W tym projekcie kalenica usytuowana jest równolegle do drogi, co jest istotne ze względu na wymagania określone w warunkach zabudowy. Jest przeznaczony do zabudowy wolnostojącej. Konstrukcja domu przykryta jest dachem kopertowym, który doskonale chroni budynek przed niekorzystną pogodą. Dodatkowo posiada wyróżniający go element w postaci tzw. wolego oka. Projekt Chmielniki dw19 to dom parterowy z poddaszem użytkowym, co sprawia, że jego powierzchnia jest wyraźnie podzielona na strefy: dzienną i nocną.Dom posiada podpiwniczenie, co z pewnością zadowoli osoby ceniące sobie funkcjonalne rozwiązania. Projekt domu charakteryzuje się przestronną strefą dzienną. Tworzy ją między innymi funkcjonalna kuchnia, która zachwyci każdego Inwestora. Projektant połączył salon i jadalnię w przestronną strefę dzienną, co jest nowoczesnym oraz bardzo funkcjonalnym rozwiązaniem. W projekcie przewidziano sześć sypialni, które będą odpowiednie dla 5-8 domowników. Przestrzeń można wykorzystać także jako pokój dla gości lub gabinet. Doskonałym miejscem do wypoczynku jest zaprojektowany przy domu taras. W jego bryle widoczne są rozwiązania nawiązujące do stylu dworkowego i idealnie wpisze się w wiejski krajobraz.
Czytaj więcej

Polecani producenci

Kompletne systemy rekuperacji

tło producenta

Alnor

Dowiedz się więcej

Prefabrykowane konstrukcje dachowe

tło producenta

WIĄZAR POLSKA

Zobacz więcej

Sprawdź nową generację okien GREENVIEW

tło producenta

FAKRO

Sprawdź nową generację okien GREENVIEW

Styropian, tynki, farby, kleje

tło producenta

Termo Organika

Poznaj super jakość

Okna, drzwi, osłony przeciwsłoneczne

tło producenta

Aluprof

Sprawdź ofertę
Zobacz więcej

Społeczność projektu domu
Chmielniki dw19 w budowie

Dołącz do społeczności osób, które budują ten dom lub są zainteresowane jego budową.

  • Oglądaj zdjęcia z budowy
  • Zadawaj pytania
  • Wymieniaj się doświadczeniami

Opinie o projekcie domu Chmielniki dw19

Ocena

Ten projekt nie ma jeszcze opinii, bądź pierwszy!

Dodaj opinię

ASYSTENT WYBORU PROJEKTU

Szukasz idealnego projektu? Znajdziemy go dla Ciebie!

Doradca na podstawie Twoich wskazówek przygotuje spersonalizowaną listę projektów

Graficzne opracowanie rzutów poglądowych widocznych na karcie projektu zostało wykonane przez Extradom.pl. Prezentowane przez Extradom.pl wizualizacje wykonane zostały przez autora projektu i należy poczytywać je jedynie za przykład i propozycję wykończenia, wizję architektoniczną autora projektu. Ostateczne wykończenie budynku może nastąpić na wiele sposobów. Szczegółowe rozwiązania zastosowane w oferowanej dokumentacji - w tym również ilość, lokalizacje i wygląd okien, drzwi, kominów - mogą w niewielkim stopniu różnić się od prezentowanej wizualizacji budynku.

REKLAMA
Zamknij