Od 4 do 6 kwietnia nasi konsultanci są niedostępni 🌷 Złóż zamówienie przez stronę!

Projekt domu BW-17 z garażem 2 stanowiskowym JGC1034

Zapisz Dodano!
Porównaj Dodano!
ikona Pobierz i drukuj

Warstwy

Warstwy

Rzut parteru

Powierzchnia (m²)
Tooltip
Powierzchnia pomieszczenia
to ta, z której faktycznie możesz korzystać – skosy i niskie części poddasza są liczone częściowo lub wcale.
  1. 100% dla wysokości powyżej 2,2 m,
  2. 50% dla wysokości 1,4–2,2 m,
  3. nie liczymy poniżej 1,4 m.

Powierzchnia podłogi
Liczymy po obrysie pomieszczenia, bez względu na jego wysokość/skosy. Jeśli nie ma skosów to powierzchnia podłogi i pomieszczenia jest taka sama.
pomieszczenia i podłogi
podłogi
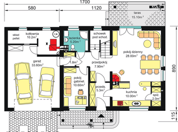
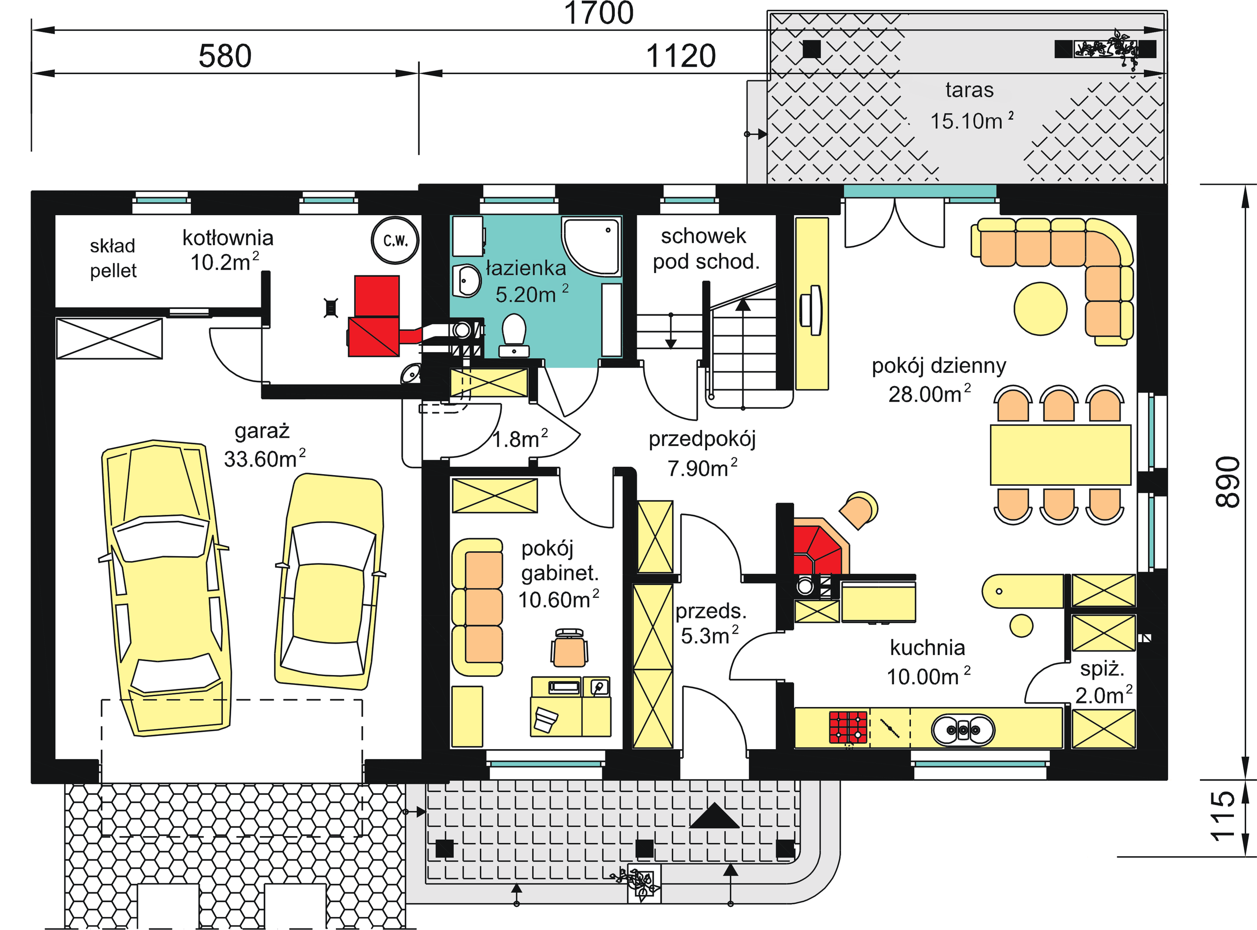
1. Wiatrołap
5,30
2. Hall
7,90
3. Kuchnia
10
4. Spiżarnia
2
5. Pokój dzienny + jadalnia
28
6. Korytarz
1,80
7. Pokój
10,60
8. Łazienka
5,20
9. Kotłownia
10,20
10. Garaż dwustanowiskowy
33,60
Razem
114,60
114,60
Powierzchnia (m²)
Tooltip
Powierzchnia pomieszczenia
to ta, z której faktycznie możesz korzystać – skosy i niskie części poddasza są liczone częściowo lub wcale.
  1. 100% dla wysokości powyżej 2,2 m,
  2. 50% dla wysokości 1,4–2,2 m,
  3. nie liczymy poniżej 1,4 m.

Powierzchnia podłogi
Liczymy po obrysie pomieszczenia, bez względu na jego wysokość/skosy. Jeśli nie ma skosów to powierzchnia podłogi i pomieszczenia jest taka sama.
pomieszczenia i podłogi
podłogi
1. Hall
7,10
2. Pokój
10,40
3. Pokój
14,60
4. Pokój
14,80
5. Łazienka
7,30
6. Strych
12,70
7. Pomieszczenie gospodarcze
8,30
8. Korytarz
4,10
Razem
79,30
79,30

    Usytuowanie na działce

    Czy ten projekt pasuje na
    Twoją działkę?

    Chętnie to sprawdzimy!

    Dowiedz się:

    • czy zmieści się na niej wybrany przez Ciebie dom
    • jakie parametry musi spełniać dom według miejscowego planu zagospodarowania lub warunków zabudowy (np. kąt nachylenia i typ dachu, liczba kondygnacji itp.
    • jakie inne projekty pasują na Twoją działkę – znajdziemy je dla Ciebie!

Pow. użytkowa

123,20 m²

Pokoje

4

Łazienki i WC

2

Garaż

2

Min. szer. i dł. działki

25 x 21 m

Kąt dachu

42°

Konstrukcja

Murowana
więcej

BW-17 z garażem 2 stanowiskowym - JGC1034

ikona 123,20 m²
Powierzchnia użytkowa
ikona4
Pokoje (bez salonu)
ikona 2
Łazienki (z toaletami)
ikona 2
Liczba stanowisk garażowych
(z wiatą garażową)
ikona
Konstrukcja: Murowana

Projekt został
wycofany z oferty

W razie pytań prosimy o kontakt
z Centrum Obsługi Klienta
Konsultant
71 715 20 60

pon.-pt. 8-21, sob. 9-17

Parter - 114,60 m²

Parter projektu BW-17 z garażem 2 stanowiskowym

Zapytaj, co możesz zmienić

Powierzchnia (m²)
Tooltip
Powierzchnia pomieszczenia
to ta, z której faktycznie możesz korzystać – skosy i niskie części poddasza są liczone częściowo lub wcale.
  1. 100% dla wysokości powyżej 2,2 m,
  2. 50% dla wysokości 1,4–2,2 m,
  3. nie liczymy poniżej 1,4 m.

Powierzchnia podłogi
Liczymy po obrysie pomieszczenia, bez względu na jego wysokość/skosy. Jeśli nie ma skosów to powierzchnia podłogi i pomieszczenia jest taka sama.
pomieszczenia i podłogi
podłogi
1. Wiatrołap
5,30
2. Hall
7,90
3. Kuchnia
10
4. Spiżarnia
2
5. Pokój dzienny + jadalnia
28
6. Korytarz
1,80
7. Pokój
10,60
8. Łazienka
5,20
9. Kotłownia
10,20
10. Garaż dwustanowiskowy
33,60
Razem
114,60
114,60

Poddasze - 79,30 m²

Poddasze projektu BW-17 z garażem 2 stanowiskowym

Zapytaj, co możesz zmienić

Powierzchnia (m²)
Tooltip
Powierzchnia pomieszczenia
to ta, z której faktycznie możesz korzystać – skosy i niskie części poddasza są liczone częściowo lub wcale.
  1. 100% dla wysokości powyżej 2,2 m,
  2. 50% dla wysokości 1,4–2,2 m,
  3. nie liczymy poniżej 1,4 m.

Powierzchnia podłogi
Liczymy po obrysie pomieszczenia, bez względu na jego wysokość/skosy. Jeśli nie ma skosów to powierzchnia podłogi i pomieszczenia jest taka sama.
pomieszczenia i podłogi
podłogi
1. Hall
7,10
2. Pokój
10,40
3. Pokój
14,60
4. Pokój
14,80
5. Łazienka
7,30
6. Strych
12,70
7. Pomieszczenie gospodarcze
8,30
8. Korytarz
4,10
Razem
79,30
79,30

Warianty projektu (4)

Projekt domu BW-17 wariant 4
BW-17 wariant 4
Dodano!
Dodano!
121,50 m²
4
2
1

4 080 zł

Projekt domu BW-17 - garaż 1st.
BW-17 - garaż 1st.
Dodano!
Dodano!
123,20 m²
4
2
1

3 870 zł

Projekt domu BW-17 wariant
BW-17 wariant
Dodano!
Dodano!
123 m²
4
2
1

3 870 zł

Projekt domu BW-17 wariant 3
BW-17 wariant 3
Dodano!
Dodano!
123,20 m²
4
2
2

4 080 zł

Podobne projekty (2169)

Zobacz wszystkie
PREZENT 🎁
Zdjęcie 1 projektu Fokstrot WAH1714
Fokstrot
Dodano!
Dodano!
130,25 m²
4
3
2

6 750 zł

PREZENT 🎁
Zdjęcie 1 projektu N41-G1 KKG1036
N41-G1
Dodano!
Dodano!
128,77 m²
4
2
1

6 200 zł

PREZENT 🎁
Zdjęcie 1 projektu BW-44 wariant 4 JGC1144
BW-44 wariant 4
Dodano!
Dodano!
121,10 m²
4
2
1

3 870 zł

PREZENT 🎁
Zdjęcie 1 projektu Samba WAH1727
Samba
Dodano!
Dodano!
125,67 m²
4
2
1

6 290 zł

PREZENT 🎁
Zdjęcie 1 projektu Party 2 WAH1719
Party 2
Dodano!
Dodano!
130,21 m²
4
3
2

6 550 zł

PREZENT 🎁
Zdjęcie 1 projektu Ajaks 6 B WOE1219
Ajaks 6 B
Dodano!
Dodano!
120 m²
4
2
1

4 499 zł

PREZENT 🎁
Zdjęcie 1 projektu Idealny M3 WAW1167
Idealny M3
Dodano!
Dodano!
132,90 m²
4
3
2

6 740 zł

PROMOCJA
Zdjęcie 1 projektu APS 289 + 2G ECO LUA1673
APS 289 + 2G ECO
Dodano!
Dodano!
124,10 m²
4
2
2

5 199 zł

5 799 zł

Tooltip

Cena regularna

5 199 zł najniższa cena
Tooltip

Najniższa cena z 30 dni
przed obniżką

Elewacje

Frontowa
Tylna
Lewa
Prawa

Przekroje

Przekrój pionowy

Usytuowanie na działce

Czy ten projekt pasuje na
Twoją działkę?

Chętnie to sprawdzimy!

Czy ten projekt pasuje na
Twoją działkę?

Chętnie to sprawdzimy!

Dowiedz się:

  • czy zmieści się na niej wybrany przez Ciebie dom
  • jakie parametry musi spełniać dom według miejscowego planu zagospodarowania lub warunków zabudowy (np. kąt nachylenia i typ dachu, liczba kondygnacji itp.
  • jakie inne projekty pasują na Twoją działkę – znajdziemy je dla Ciebie!
Autor: Postaw Dom

Dane techniczne projektu

Powierzchnie i wymiary Powierzchnie i wymiary

Powierzchnia użytkowa
Tooltip
Suma powierzchni wszystkich pomieszczeń mieszkalnych, pomniejszona o pow. garażu, kotłowni, strychu, piwnicy. Jest liczona w 100% dla pomieszczeń o wysokości powyżej 2,2 m, w 50% dla pomieszczeń o wys. 2,2-1,4 m i niewliczana dla niższych niż 1,4 m.

123,20 m²

Powierzchnia zabudowy
Tooltip
Powierzchnia zajmowana przez część na- oraz nadziemną budynku liczona, jako rzut pionowy budynku na działkę.

156,90 m²

Powierzchnia dachu

255,20 m²

Kąt nachylenia dachu
Tooltip
Nachylenie połaci dachu głównego podawane w stopniach. Uwaga! W niektórych projektach występuje więcej niż jedno nachylenie dachu.

42°

Wysokość budynku
Tooltip
Wysokość liczona od części budynku położonej najniżej przy powierzchni terenu do najwyższego punktu dachu (kalenicy) z wyłączeniem kominów.

8,55 m

Min. szerokość działki
Tooltip
Najmniejsza możliwa szerokość działki niezbędna do wybudowania wybranego domu. Składa się z szerokości elewacji domu powiększonej z obu stron o 3 m dla ściany bez otworów drzwiowych/okiennych lub 4 m, dla ściany z otworami.

25 m

Min. długość działki
Tooltip
Najmniejsza możliwa długość działki niezbędna do wybudowania wybranego domu. Składa się z długości elewacji domu powiększonej z obu stron o 3 m dla ściany bez otworów drzwiowych/okiennych lub 4 m, dla ściany z otworami.

21 m

Energooszczędność Energooszczędność

Oze Czym jest OZE (Odnawialne Źródło Energii)?
Warunki techniczne

Projekt zgody z WT 2021

Technologia i konstrukcja Technologia i konstrukcja

Konstrukcja

Murowana

Opis szczegółowy

Technologia tradycyjna murowana. Fundamenty murowane z bloczków betonowych, ławy żelbetowe wylewane. Ściany zewnętrzne nadziemia murowane z bloczków z betonu komórkowego z lekkim dociepleniem zewnętrznym. Strop prefabrykowany TERIVA I. Schody wewnętrzne żelbetowe wylewane, dwubiegowe. Pokrycie dachówką cementową lub ceramiczną.

Strop

Gęstożebrowy

Reklama
Okna i drzwi tarasowe

Nowoczesne okna PVC i aluminiowe WIŚNIOWSKI – doskonała izolacja, elegancki design i niezrównana trwałość.

Wiśniowski
Sprawdź parametry!
Okna dachowe

Oferujemy bezpłatne konsultacje w zakresie wszystkich rozwiązań VELUX. Wyceny, porady dotyczące doboru okien i rolet zewnętrznych - sprawdź!

Velux
Sprawdź szczegóły
Pompa ciepła

Wybierz pompę ciepła, która pasuje do Twojego domu. Niezależnie od tego, czy ustawienie wewnątrz czy na zewnątrz, pompy ciepła STIEBEL ELTRON dopasują się do każdej przestrzeni.

Stiebel
Dowiedz się więcej
Płytki ceramiczne i gresy

Od małych formatów po wielkoformatowe gresy. Marmur, beton, drewno, kamień, lastryko czy cegiełki zamówisz wygodnie online z szybką dostawą.

Ceramzet
Sprawdź ofertę
Elewacja

Kup przez internet wszystkie materiały potrzebne do wykonania elewacji: styropian, płyty PIR, XPS, kleje, tynki. Najlepsze marki w super cenach z dostawą pod dom.

Hurtownia styropianu
Sprawdź ofertę!
Drzwi

Ciepłe drzwi WIŚNIOWSKI z kontrolą dostępu. Szeroka gama wzorów i kolorów.

Wiśniowski
Wybierz najlepsze
Bramy garażowe

Automatyczne bramy garażowe segmentowe i uchylne WIŚNIOWSKI na wymiar i z systemem smart home w standardzie.

Wiśniowski
Sprawdź ofertę!
Rekuperacja

Alnor - kompletny system rekuperacji. Dobierz idealne rozwiązanie dla Twojego domu!

Alnor
Dobierz rekuperator
Dach

Producent stalowych pokryć dachowych i systemów elewacyjnych. Precyzja wykonania, trwałość na lata i szybki montaż doceniany przez dekarzy. Postaw na solidny dach Budmat.

Budmat
Sprawdź ofertę
Ogrodzenie

Nowoczesne stalowe ogrodzenia Budmat - estetyka, bezpieczeństwo i trwałość na lata. Systemowe rozwiązania na wymiar, dopasowane do każdego domu.

Budmat
Sprawdź ofertę

Gotowe domy - najszybszy sposób na dom (115)

Zobacz wszystkie
  • Stan deweloperski nawet w 6 miesięcy
  • Gwarancja stałej ceny
Skonfiguruj dom
Zdjęcie 1 projektu Bergen 130 HUS1002
130,40 m²
4
Stan deweloperski brutto
499 000 zł 3 827 zł/m²
Zdjęcie 1 projektu Dom prefabrykowany Parterowy 120B HFX1016
122,36 m²
3
Stan deweloperski brutto
515 000 zł 4 209 zł/m²
Zdjęcie 1 projektu Dom szkieletowy Twin Smart 170 HHT1031
121,95 m²
5
Stan deweloperski brutto
1 650 700 zł 13 536 zł/m²
Zdjęcie 1 projektu Dom prefabrykowany P.3 z okapem HPK1013
121,46 m²
5
Stan deweloperski brutto
630 000 zł 5 187 zł/m²
Zdjęcie 1 projektu Dom prefabrykowany P.3 bez okapu HPK1002
121,46 m²
5
Stan deweloperski brutto
617 300 zł 5 082 zł/m²
Zdjęcie 1 projektu Dom prefabrykowany Parterowy 120A HFX1015
121,44 m²
4
Stan deweloperski brutto
515 000 zł 4 241 zł/m²
Zdjęcie 1 projektu Dom prefabrykowany Parterowy 120C HFX1017
120,06 m²
4
Stan deweloperski brutto
515 000 zł 4 290 zł/m²
Zdjęcie 1 projektu Dom szkieletowy Emily Smart 120 HHT1026
120 m²
3
Stan deweloperski brutto
592 512 zł 4 938 zł/m²

Opis projektu domu
BW-17 z garażem 2 stanowiskowym

Dom BW-17 z garażem 2 stanowiskowym jest inną propozycją popularnego projektu BW-17 z garażem 1 stanowiskowym. W przeciwieństwie do bazowej wersji projekt ma więcej pokoi, więcej stanowisk garażowych. Projekt domu BW-17 z garażem 2 stanowiskowym to idealna propozycja dla osób posiadających średniej szerokości działkę. Dom cechuje się prostą bryłą, więc jego realizacja nie pochłonie zbyt wielu środków finansowych. Projekt należy do kategorii domów z kalenicą skierowaną równolegle do drogi, co często określane jest w planie zagospodarowania przestrzennego. Dom został zaprojektowany z myślą o zabudowie wolnostojącej. Posiada garaż dwustanowiskowy w linii budynku. Jest to również doskonała propozycja dla osób szukających domu z dachem dwuspadowym, dzięki któremu budynek posiada ponadczasowy wygląd. Projekt BW-17 z garażem 2 stanowiskowym to dom parterowy z poddaszem użytkowym, dzięki czemu możemy cieszyć się sporym metrażem nawet na stosunkowo niedużej działce. Warto zwrócić uwagę na przestronną część dzienną. Tworzy ją między innymi kuchnia, która będzie idealnym rozwiązaniem zarówno dla tradycyjnych, jak i nowoczesnych gospodyń domowych. Dodatkowo przydatnym pomieszczeniem jest pojemna spiżarka. W części dziennej uwzględniono salon oraz jadalnię, dzięki czemu wnętrze domu jest bardzo funkcjonalne. Praktycznym rozwiązaniem jest uwzględnienie w projekcie dwóch łazienek - zarówno na dole jak i na górze. Cztery komfortowe pokoje zaspokoją potrzeby 4-6 osobowej rodziny. Przestrzeń można wykorzystać także jako pokój dla gości lub gabinet. Rodzinne spotkania w słonecznie dni uprzyjemni przewidziany przy domu taras. Zalecana przez architekta technologia murowana zapewnia trwałość i solidność konstrukcji. BW-17 z garażem 2 stanowiskowym zadowoli Inwestorów ceniących cechy stylu tradycyjnego, dzięki czemu idealnie wpisze się w dowolny krajobraz.
Czytaj więcej

Polecani producenci

Kompletne systemy rekuperacji

tło producenta

Alnor

Dowiedz się więcej

Prefabrykowane konstrukcje dachowe

tło producenta

WIĄZAR POLSKA

Zobacz więcej

Sprawdź nową generację okien GREENVIEW

tło producenta

FAKRO

Sprawdź nową generację okien GREENVIEW

Styropian, tynki, farby, kleje

tło producenta

Termo Organika

Poznaj super jakość

Okna, drzwi, osłony przeciwsłoneczne

tło producenta

Aluprof

Sprawdź ofertę
Zobacz więcej

Społeczność projektu domu
BW-17 z garażem 2 stanowiskowym w budowie

Dołącz do społeczności osób, które budują ten dom lub są zainteresowane jego budową.

  • Oglądaj zdjęcia z budowy
  • Zadawaj pytania
  • Wymieniaj się doświadczeniami

Opinie o projekcie domu BW-17 z garażem 2 stanowiskowym

Ocena

Ten projekt nie ma jeszcze opinii, bądź pierwszy!

Dodaj opinię

ASYSTENT WYBORU PROJEKTU

Szukasz idealnego projektu? Znajdziemy go dla Ciebie!

Doradca na podstawie Twoich wskazówek przygotuje spersonalizowaną listę projektów

Graficzne opracowanie rzutów poglądowych widocznych na karcie projektu zostało wykonane przez Extradom.pl. Prezentowane przez Extradom.pl wizualizacje wykonane zostały przez autora projektu i należy poczytywać je jedynie za przykład i propozycję wykończenia, wizję architektoniczną autora projektu. Ostateczne wykończenie budynku może nastąpić na wiele sposobów. Szczegółowe rozwiązania zastosowane w oferowanej dokumentacji - w tym również ilość, lokalizacje i wygląd okien, drzwi, kominów - mogą w niewielkim stopniu różnić się od prezentowanej wizualizacji budynku.

REKLAMA
Zamknij