Projekty nawet 500 zł taniej ❄️

Koniec oferty za:

0dni

00godz.

00min.

00sek.

Sprawdź

Projekt domu Bil II (z wejściem od południa) WRC1995

Dodano!
Dodano!

Warstwy

Rzut parteru

Powierzchnia (m²)
Tooltip
Powierzchnia pomieszczenia
to ta, z której faktycznie możesz korzystać – skosy i niskie części poddasza są liczone częściowo lub wcale.
  1. 100% dla wysokości powyżej 2,2 m,
  2. 50% dla wysokości 1,4–2,2 m,
  3. nie liczymy poniżej 1,4 m.

Powierzchnia podłogi
Liczymy po obrysie pomieszczenia, bez względu na jego wysokość/skosy. Jeśli nie ma skosów to powierzchnia podłogi i pomieszczenia jest taka sama.
pomieszczenia i podłogi
podłogi
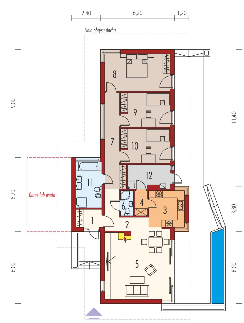
1. Wiatrołap
3,15
2. Hall
5,23
3. Kuchnia
9,04
4. Spiżarnia
2,07
5. Pokój dzienny + jadalnia
32,54
6. Łazienka
2,19
7. Korytarz
10,65
8. Pokój
16,83
9. Pokój
11,42
10. Pokój
11,41
11. Łazienka
8,15
12. Kotłownia
7,08
Razem
119,76
119,76

    Usytuowanie na działce

    Czy ten projekt pasuje na
    Twoją działkę?

    Chętnie to sprawdzimy!

    Dowiedz się:

    • czy zmieści się na niej wybrany przez Ciebie dom
    • jakie parametry musi spełniać dom według miejscowego planu zagospodarowania lub warunków zabudowy (np. kąt nachylenia i typ dachu, liczba kondygnacji itp.
    • jakie inne projekty pasują na Twoją działkę – znajdziemy je dla Ciebie!

Pow. użytkowa

112,68 m²

Pokoje

3

Łazienki i WC

2

Garaż

0

Min. szer. i dł. działki

16,8 x 29,20 m

Kąt dachu

20°

Konstrukcja

Murowana
więcej

Bil II (z wejściem od południa) - WRC1995

ikona 112,68 m²
Powierzchnia użytkowa
ikona3
Pokoje (bez salonu)
ikona 2
Łazienki (z toaletami)
ikona 0
Liczba stanowisk garażowych
(z wiatą garażową)
ikona
Konstrukcja: Murowana

Projekt został
wycofany z oferty

W razie pytań prosimy o kontakt
z Centrum Obsługi Klienta
Konsultant Masz pytania?
Zadzwoń
71 715 20 60

pon.-pt. 8-21, sob. 9-17

Parter - 119,76 m²

Parter projektu Bil II (z wejściem od południa)

Zapytaj, co możesz zmienić

Powierzchnia (m²)
Tooltip
Powierzchnia pomieszczenia
to ta, z której faktycznie możesz korzystać – skosy i niskie części poddasza są liczone częściowo lub wcale.
  1. 100% dla wysokości powyżej 2,2 m,
  2. 50% dla wysokości 1,4–2,2 m,
  3. nie liczymy poniżej 1,4 m.

Powierzchnia podłogi
Liczymy po obrysie pomieszczenia, bez względu na jego wysokość/skosy. Jeśli nie ma skosów to powierzchnia podłogi i pomieszczenia jest taka sama.
pomieszczenia i podłogi
podłogi
1. Wiatrołap
3,15
2. Hall
5,23
3. Kuchnia
9,04
4. Spiżarnia
2,07
5. Pokój dzienny + jadalnia
32,54
6. Łazienka
2,19
7. Korytarz
10,65
8. Pokój
16,83
9. Pokój
11,42
10. Pokój
11,41
11. Łazienka
8,15
12. Kotłownia
7,08
Razem
119,76
119,76

Podobne projekty (7132)

Zobacz wszystkie
NIŻSZA CENA❄️
Zdjęcie 1 projektu Kwadra Prima (1857) KRD3001
Kwadra Prima (1857)
Dodano!
Dodano!
119,90 m²
4
2
0

3 840 zł

4 190 zł

Tooltip

Cena regularna

3 640 zł najniższa cena
Tooltip

Najniższa cena z 30 dni
przed obniżką

NIŻSZA CENA❄️
Zdjęcie 1 projektu Mini 4 energo WRC2706
Mini 4 energo
Dodano!
Dodano!
109,88 m²
3
2
0

3 680 zł

4 600 zł

Tooltip

Cena regularna

3 680 zł najniższa cena
Tooltip

Najniższa cena z 30 dni
przed obniżką

NIŻSZA CENA❄️
Zdjęcie 1 projektu Blanka (1618) KRD2768
Blanka (1618)
Dodano!
Dodano!
99,50 m²
3
2
1

3 840 zł

4 190 zł

Tooltip

Cena regularna

3 640 zł najniższa cena
Tooltip

Najniższa cena z 30 dni
przed obniżką

NIŻSZA CENA❄️
Zdjęcie 1 projektu Koniczynka Nano (1874) KRD3014
Koniczynka Nano (1874)
Dodano!
Dodano!
109,50 m²
3
2
1

4 040 zł

4 390 zł

Tooltip

Cena regularna

3 840 zł najniższa cena
Tooltip

Najniższa cena z 30 dni
przed obniżką

Zdjęcie 1 projektu Domidea 1 w3 WAC1115
Domidea 1 w3
Dodano!
Dodano!
97,30 m²
3
2
0

5 904 zł

NIŻSZA CENA❄️
Zdjęcie 1 projektu Sej-pro 084 energo ELW1048
Sej-pro 084 energo
Dodano!
Dodano!
103,82 m²
3
2
0

4 797 zł

5 097 zł

Tooltip

Cena regularna

4 497 zł najniższa cena
Tooltip

Najniższa cena z 30 dni
przed obniżką

Nowość
Zdjęcie 1 projektu Krajobrazy 62 WRN1586
Krajobrazy 62
Dodano!
Dodano!
98,50 m²
3
1
0

4 095 zł

NIŻSZA CENA❄️
Zdjęcie 1 projektu Mini 4 w. II WRC2734
Mini 4 w. II
Dodano!
Dodano!
122,90 m²
3
2
0

3 920 zł

4 900 zł

Tooltip

Cena regularna

3 920 zł najniższa cena
Tooltip

Najniższa cena z 30 dni
przed obniżką

Elewacje

Frontowa
Tylna
Lewa
Prawa

Przekroje

Przekrój pionowy

Usytuowanie na działce

Czy ten projekt pasuje na
Twoją działkę?

Chętnie to sprawdzimy!

Czy ten projekt pasuje na
Twoją działkę?

Chętnie to sprawdzimy!

Dowiedz się:

  • czy zmieści się na niej wybrany przez Ciebie dom
  • jakie parametry musi spełniać dom według miejscowego planu zagospodarowania lub warunków zabudowy (np. kąt nachylenia i typ dachu, liczba kondygnacji itp.
  • jakie inne projekty pasują na Twoją działkę – znajdziemy je dla Ciebie!
Autor: Pracownia Projektowa ARCHIPELAG

Dane techniczne projektu

Powierzchnie i wymiary Powierzchnie i wymiary

Powierzchnia użytkowa
Tooltip
Suma powierzchni wszystkich pomieszczeń mieszkalnych, pomniejszona o pow. garażu, kotłowni, strychu, piwnicy. Jest liczona w 100% dla pomieszczeń o wysokości powyżej 2,2 m, w 50% dla pomieszczeń o wys. 2,2-1,4 m i niewliczana dla niższych niż 1,4 m.

112,68 m²

Powierzchnia zabudowy
Tooltip
Powierzchnia zajmowana przez część na- oraz nadziemną budynku liczona, jako rzut pionowy budynku na działkę.

151,19 m²

Powierzchnia netto
Tooltip
Powierzchna wszystkich pomieszczeń w budynku mierzona na wysokości podłogi.

125,22 m²

Kubatura netto
Tooltip
Zazwyczaj jest to suma kubatur (objętości) pomieszczeń budynku, bez strychu, liczonych po zewnętrznym obrysie murów (z ociepleniem).

338,10 m³

Powierzchnia dachu

245 m²

Kąt nachylenia dachu
Tooltip
Nachylenie połaci dachu głównego podawane w stopniach. Uwaga! W niektórych projektach występuje więcej niż jedno nachylenie dachu.

20°

Wysokość budynku
Tooltip
Wysokość liczona od części budynku położonej najniżej przy powierzchni terenu do najwyższego punktu dachu (kalenicy) z wyłączeniem kominów.

5 m

Szerokość elewacji

9,80 m

Długość elewacji

21,20 m

Min. szerokość działki
Tooltip
Najmniejsza możliwa szerokość działki niezbędna do wybudowania wybranego domu. Składa się z szerokości elewacji domu powiększonej z obu stron o 3 m dla ściany bez otworów drzwiowych/okiennych lub 4 m, dla ściany z otworami.

16,80 m

Min. długość działki
Tooltip
Najmniejsza możliwa długość działki niezbędna do wybudowania wybranego domu. Składa się z długości elewacji domu powiększonej z obu stron o 3 m dla ściany bez otworów drzwiowych/okiennych lub 4 m, dla ściany z otworami.

29,20 m

Energooszczędność Energooszczędność

Oze Czym jest OZE (Odnawialne Źródło Energii)?
Ep
Tooltip
Energia pierwotna określa ilość energii nieodnawialnej potrzebnej w ciągu roku do ogrzewania czy też ogrzania wody użytkowej z uwzględnieniem kosztów produkcji i transportu surowców energetycznych.

93,10 kWh/(m²rok)

Euco
Tooltip
Energia użytkowa potrzebna do ogrzewania i wentylacji. Im parametr jest niższy tym budynek bardziej energooszczędny.

80 kWh/(m²rok)

Warunki techniczne

Projekt zgody z WT 2021

Technologia i konstrukcja Technologia i konstrukcja

Konstrukcja

Murowana

Opis szczegółowy

Ściany zewnętrzne: murowane, dwuwarstwowe, beton komórkowy 24 cm, ocieplenie wełna mineralna 12 cm. Ściany wewnętrzne: nośne i działowe murowane, cegła wapienno-piaskowa 24 cm i 12 cm. Strop: drewniany, ocieplenie wełna mineralna 25 cm. Dach: konstrukcja drewniana, dachówka ceramiczna lub cementowa, więźba dachowa dostępna również w systemie prefabrykacji drewnianej. Ogrzewanie: kocioł gazowy kondensacyjny, rozprowadzenie ciepła: grzejniki. Wentylacja: grawitacyjna. Elewacje: tynk cienkowarstwowy mineralny, okładzina drewniana. Stolarka: drewniana, PVC lub aluminiowa.

Strop

Drewniany

Reklama
Okna i drzwi tarasowe

Nowoczesne okna PVC i aluminiowe WIŚNIOWSKI – doskonała izolacja, elegancki design i niezrównana trwałość.

Wiśniowski
Sprawdź parametry!
Okna dachowe

Oferujemy bezpłatne konsultacje w zakresie wszystkich rozwiązań VELUX. Wyceny, porady dotyczące doboru okien i rolet zewnętrznych - sprawdź!

Velux
Sprawdź szczegóły
Dach

Producent stalowych pokryć dachowych i elewacyjnych - 40 lat doświadczenia. Zbuduj solidny dach z nami!

Blachy Pruszyński
Sprawdź szczegóły
Płytki ceramiczne i gresy

Od małych formatów po wielkoformatowe gresy. Marmur, beton, drewno, kamień, lastryko czy cegiełki zamówisz wygodnie online z szybką dostawą.

Ceramzet
Sprawdź ofertę
Drzwi

Ciepłe drzwi WIŚNIOWSKI z kontrolą dostępu. Szeroka gama wzorów i kolorów.

Wiśniowski
Wybierz najlepsze
Bramy garażowe

Automatyczne bramy garażowe segmentowe i uchylne WIŚNIOWSKI na wymiar i z systemem smart home w standardzie.

Wiśniowski
Sprawdź ofertę!
Armatura i ceramika łazienkowa

Topowi producenci. Baterie łazienkowe, zestawy natynkowe i podtynkowe, umywalki, wanny, miski WC oraz kabiny zamówisz kompleksowo online.

Ceramzet II
Dowiedz się więcej
Rekuperacja

Alnor - kompletny system rekuperacji. Dobierz idealne rozwiązanie dla Twojego domu!

Alnor
Dobierz rekuperator
Gruntowe pompy ciepła

Przeprowadzimy kompletną instalację najbardziej oszczędnego źródła ciepła w Twoim nowym domu - gruntowej pompy ciepła. Od dokumentacji, pozwoleń, po odwierty i instalację.

Geothermal Solutions
Dowiedz się więcej

Gotowe domy modułowe (113)

Zobacz wszystkie
Stan deweloperski nawet w 6 miesięcy Gwarancja stałej ceny
Zdjęcie 1 projektu Dom szkieletowy Forest Smart 120 HHT1017
Pow. użytkowa
113,18 m²
Pokoje
4
535 459 zł 4 730 zł/m²
Zdjęcie 1 projektu Dom prefabrykowany Parterowy 110C HFX1014
Pow. użytkowa
112,16 m²
Pokoje
4
465 000 zł 4 146 zł/m²
Zdjęcie 1 projektu Dom szkieletowy Moly Smart 112 HHT1028
Pow. użytkowa
112 m²
Pokoje
3
553 375 zł 4 941 zł/m²
Zdjęcie 1 projektu Dom szkieletowy Family Smart 70 HHT1006
Pow. użytkowa
111,77 m²
Pokoje
5
534 125 zł 5 046 zł/m²
Zdjęcie 1 projektu Dom prefabrykowany Parterowy 110B HFX1013
Pow. użytkowa
111,33 m²
Pokoje
4
465 000 zł 4 177 zł/m²
Zdjęcie 1 projektu Dom prefabrykowany Parterowy 110A HFX1009
Pow. użytkowa
110,71 m²
Pokoje
3
465 000 zł 4 200 zł/m²
Zdjęcie 1 projektu Dom keramzytowy EP1 HAK1006
Gotowy dom keramzytowy EP1
Dodano!
Dodano!
Pow. użytkowa
110,58 m²
Pokoje
3
440 500 zł 3 984 zł/m²
Zdjęcie 1 projektu Dom modułowy Harmony HMD1000
Pow. użytkowa
114,80 m²
Pokoje
4
512 000 zł 3 853 zł/m²

Opis projektu domu
Bil II (z wejściem od południa)

Projekt domu Bil II (z wejściem od południa) jest doskonałym rozwiązaniem dla osób posiadających średniej szerokości działkę. Dom charakteryzuje się typową bryłą, co znacznie ułatwia późniejszą aranżację wnętrza. Projekt należy do kategorii domów z kalenicą skierowaną prostopadle do drogi, co jest bardzo istotne, gdy wymaga tego plan zagospodarowania przestrzennego. Dom został stworzony do zabudowy wolnostojącej. Konstrukcja budynku przykryta jest dachem czterospadowym, który należy do najsolidniejszych konstrukcji dachowych. Projekt Bil II (z wejściem od południa) to dom parterowy, co sprawia, że komunikacja między pomieszczeniami jest bardzo wygodna. Sercem domu jest przestronna strefa dzienna, która sprzyja spędzaniu wspólnego czasu w gronie najbliższych. Tworzy ją między innymi funkcjonalna kuchnia, która spełni marzenie każdej gospodyni. Dodatkowo przydatnym pomieszczeniem jest pojemna spiżarka. Uwzględniona w projekcie jadalnia połączona jest z pokojem dziennym, dzięki czemu wnętrze nabiera nowoczesnego charakteru. Dodatkowo w salonie przewidziano kominek, nadający wnętrzu niepowtarzalny klimat. Autor projektu przewidział w nim dwie łazienki o optymalnych wymiarach. Potrzeby 2-4 osobowej rodziny spełnią przewidziane w projekcie trzy przestronne sypialnie. Przestrzeń można wykorzystać także jako pokój dla gości lub gabinet. Wspólne grillowanie i rodzinne posiłki umili uwzględniony w projekcie taras. Projekt został wykonany w technologii murowanej, dzięki czemu podczas upałów dom utrzymuje przyjemny chłód. W jego bryle widoczne są rozwiązania nawiązujące do stylu nowoczesnego, co jest idealnym rozwiązaniem dla osób ceniących najnowsze rozwiązania.
Czytaj więcej

Polecani producenci

Prefabrykowane konstrukcje dachowe

tło producenta

WIĄZAR POLSKA

Zobacz więcej

Sprawdź nową generację okien GREENVIEW

tło producenta

FAKRO

Sprawdź nową generację okien GREENVIEW

Styropian, tynki, farby, kleje

tło producenta

Termo Organika

Poznaj super jakość

Okna, drzwi, osłony przeciwsłoneczne

tło producenta

Aluprof

Sprawdź ofertę

Kompletne systemy rekuperacji

tło producenta

Alnor

Dowiedz się więcej

Sprawdź nowy system DACHRYNNA

tło producenta

Galeco

Sprawdź ofertę
Zobacz więcej

Społeczność projektu domu
Bil II (z wejściem od południa) w budowie

Dołącz do społeczności osób, które budują ten dom lub są zainteresowane jego budową.

  • Oglądaj zdjęcia z budowy
  • Zadawaj pytania
  • Wymieniaj się doświadczeniami

Opinie o projekcie domu Bil II (z wejściem od południa)

Ocena

Ten projekt nie ma jeszcze opinii, bądź pierwszy!

Dodaj opinię

ASYSTENT WYBORU PROJEKTU

Szukasz idealnego projektu? Znajdziemy go dla Ciebie!

Doradca na podstawie Twoich wskazówek przygotuje spersonalizowaną listę projektów

Graficzne opracowanie rzutów poglądowych widocznych na karcie projektu zostało wykonane przez Extradom.pl. Prezentowane przez Extradom.pl wizualizacje wykonane zostały przez autora projektu i należy poczytywać je jedynie za przykład i propozycję wykończenia, wizję architektoniczną autora projektu. Ostateczne wykończenie budynku może nastąpić na wiele sposobów. Szczegółowe rozwiązania zastosowane w oferowanej dokumentacji - w tym również ilość, lokalizacje i wygląd okien, drzwi, kominów - mogą w niewielkim stopniu różnić się od prezentowanej wizualizacji budynku.

REKLAMA
Zamknij