👉 Projekty w extracenach! ✂️

Koniec oferty za:

00godz.

00min.

00sek.

Sprawdź

Projekt domu Bajkowy 3 WAH1589

Dodano!
Dodano!

Warstwy

Warstwy

Rzut parteru

Powierzchnia (m²)
Tooltip
Powierzchnia pomieszczenia
to ta, z której faktycznie możesz korzystać – skosy i niskie części poddasza są liczone częściowo lub wcale.
  1. 100% dla wysokości powyżej 2,2 m,
  2. 50% dla wysokości 1,4–2,2 m,
  3. nie liczymy poniżej 1,4 m.

Powierzchnia podłogi
Liczymy po obrysie pomieszczenia, bez względu na jego wysokość/skosy. Jeśli nie ma skosów to powierzchnia podłogi i pomieszczenia jest taka sama.
pomieszczenia i podłogi
podłogi
1. Wiatrołap
2,02
2. Hall
8,74
3. Pokój dzienny
34,77
4. Kuchnia
10,30
5. Łazienka
4,95
6. Pomieszczenie gospodarcze
3,23
7. Pomieszczenie gospodarcze
3,88
8. Garaż jednostanowiskowy
17,06
Razem
84,95
84,95
Powierzchnia (m²)
Tooltip
Powierzchnia pomieszczenia
to ta, z której faktycznie możesz korzystać – skosy i niskie części poddasza są liczone częściowo lub wcale.
  1. 100% dla wysokości powyżej 2,2 m,
  2. 50% dla wysokości 1,4–2,2 m,
  3. nie liczymy poniżej 1,4 m.

Powierzchnia podłogi
Liczymy po obrysie pomieszczenia, bez względu na jego wysokość/skosy. Jeśli nie ma skosów to powierzchnia podłogi i pomieszczenia jest taka sama.
pomieszczenia
podłogi
1. Hall
5,34
5,34
2. Pokój
11,88
16,14
3. Pokój
14,18
20,07
4. Pokój
7,19
11,80
5. Łazienka
6,87
8,45
Razem
45,46
61,80

    Usytuowanie na działce

    Czy ten projekt pasuje na
    Twoją działkę?

    Chętnie to sprawdzimy!

    Dowiedz się:

    • czy zmieści się na niej wybrany przez Ciebie dom
    • jakie parametry musi spełniać dom według miejscowego planu zagospodarowania lub warunków zabudowy (np. kąt nachylenia i typ dachu, liczba kondygnacji itp.
    • jakie inne projekty pasują na Twoją działkę – znajdziemy je dla Ciebie!

Pow. użytkowa

109,98 m²

Pokoje

3

Łazienki i WC

2

Garaż

1

Min. szer. i dł. działki

20,68 x 17,30 m

Kąt dachu

45°

Szacunkowy koszt SSZ

279 000 zł
Szacunkowy koszt budowy do stanu surowego zamkniętego (SSZ) metodą gospodarczą - większość prac wykonuje inwestor.

Konstrukcja

Murowana
więcej

Bajkowy 3 - WAH1589

ikona 109,98 m²
Powierzchnia użytkowa
ikona3
Pokoje (bez salonu)
ikona 2
Łazienki (z toaletami)
ikona 1
Liczba stanowisk garażowych
(z wiatą garażową)
ikona
Konstrukcja: Murowana

Promocja od 03.02.2026, koniec za:

0 dni

00 00 00

4 496 zł

Tooltip

Cena regularna obowiązywała od 01.02.2026 do 02.02.2026

Cena regularna: 5 620 zł
Najniższa cena z 30 dni przed obniżką: 4 256 zł
Gwarancja najniższej ceny Gwarancja najniższej ceny Tooltip

Projekt jest dostępny Tooltip

GRATIS 16% rabatu w SELSEY

GRATIS 10% rabatu do LEROY MERLIN

GRATIS Przydatne Extradodatki

GRATIS Poradnik Dach Solarny

100 dni na wymianę, 30 dni na zwrot

Darmowa dostawa - kurier, paczkomaty

Bezpłatne pozwolenie na zmiany

Dokumentacja zgodna z WT2021

Pokaż więcej (6)
Konsultant Masz pytania?
Zadzwoń
71 715 20 60

pon.-pt. 8-21, sob. 9-17

Szukasz wykonawcy godnego zaufania?
Zleć budowę w Extradom.pl!

  • Z góry znasz koszt budowy domu
  • Dom odbierasz zgodnie z ustalonym harmonogramem - nawet w 6 miesięcy
  • Zabezpiecza Cię jedna kompleksowa umowa z jednym wykonawcą
  • Otrzymujesz nawet 30-letnią gwarancję na konstrukcję domu
  • Oszczędzasz swój czas dzięki pewnej i kompletnej usłudze
Cena brutto stanu
deweloperskiego od
Tooltip
Cena brutto stanu deweloperskiego od 4 629 do 5 979 zł/m2.
Cena jest uzależniona m.in. od lokalizacji, wybranej technologii, kubatury budynku, skomplikowania projektu i ewentualnych zmian, na które zdecyduje się inwestor.
Cena za m2 powierzchni netto, czyli wszystkich pomieszczeń mierzonych na wysokości podłogi.
4 629 zł/m2
Dowiedz się więcej
Konsultant Masz pytania?
Zadzwoń
71 715 20 70

pon.-pt. 8-19

Parter - 84,95 m²

Parter projektu Bajkowy 3

Zapytaj, co możesz zmienić

Powierzchnia (m²)
Tooltip
Powierzchnia pomieszczenia
to ta, z której faktycznie możesz korzystać – skosy i niskie części poddasza są liczone częściowo lub wcale.
  1. 100% dla wysokości powyżej 2,2 m,
  2. 50% dla wysokości 1,4–2,2 m,
  3. nie liczymy poniżej 1,4 m.

Powierzchnia podłogi
Liczymy po obrysie pomieszczenia, bez względu na jego wysokość/skosy. Jeśli nie ma skosów to powierzchnia podłogi i pomieszczenia jest taka sama.
pomieszczenia i podłogi
podłogi
1. Wiatrołap
2,02
2. Hall
8,74
3. Pokój dzienny
34,77
4. Kuchnia
10,30
5. Łazienka
4,95
6. Pomieszczenie gospodarcze
3,23
7. Pomieszczenie gospodarcze
3,88
8. Garaż jednostanowiskowy
17,06
Razem
84,95
84,95

Natychmiast, otrzymasz PDF-y
z rzutami wszystkich kondygnacji

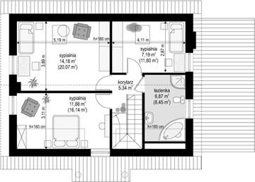
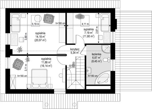
Poddasze - 45,46 m²

Poddasze projektu Bajkowy 3

Zapytaj, co możesz zmienić

Powierzchnia (m²)
Tooltip
Powierzchnia pomieszczenia
to ta, z której faktycznie możesz korzystać – skosy i niskie części poddasza są liczone częściowo lub wcale.
  1. 100% dla wysokości powyżej 2,2 m,
  2. 50% dla wysokości 1,4–2,2 m,
  3. nie liczymy poniżej 1,4 m.

Powierzchnia podłogi
Liczymy po obrysie pomieszczenia, bez względu na jego wysokość/skosy. Jeśli nie ma skosów to powierzchnia podłogi i pomieszczenia jest taka sama.
pomieszczenia
podłogi
1. Hall
5,34
5,34
2. Pokój
11,88
16,14
3. Pokój
14,18
20,07
4. Pokój
7,19
11,80
5. Łazienka
6,87
8,45
Razem
45,46
61,80

Natychmiast, otrzymasz PDF-y
z rzutami wszystkich kondygnacji

Zamów rysunki szczegółowe

Zapoznaj się ze szczegółowymi rysunkami rzutów kondygnacji w PDF dla tego projektu.

Warianty projektu (6)

PROMOCJA
Projekt domu Bajkowy wariant D
Bajkowy wariant D
Dodano!
Dodano!
104,05 m²
4
2
1

3 928 zł

4 910 zł

Tooltip

Cena regularna

3 728 zł najniższa cena
Tooltip

Najniższa cena z 30 dni
przed obniżką

PROMOCJA
Projekt domu Bajkowy wariant B
Bajkowy wariant B
Dodano!
Dodano!
104,05 m²
4
2
1

3 928 zł

4 910 zł

Tooltip

Cena regularna

3 728 zł najniższa cena
Tooltip

Najniższa cena z 30 dni
przed obniżką

PROMOCJA
Projekt domu Bajkowy wariant C
Bajkowy wariant C
Dodano!
Dodano!
104,05 m²
4
2
1

3 928 zł

4 910 zł

Tooltip

Cena regularna

3 728 zł najniższa cena
Tooltip

Najniższa cena z 30 dni
przed obniżką

PROMOCJA
Projekt domu Bajkowy 2
Bajkowy 2
Dodano!
Dodano!
113,02 m²
3
2
1

4 496 zł

5 620 zł

Tooltip

Cena regularna

4 256 zł najniższa cena
Tooltip

Najniższa cena z 30 dni
przed obniżką

PROMOCJA
Projekt domu Bajkowy
Bajkowy
Dodano!
Dodano!
104,05 m²
4
2
1

3 928 zł

4 910 zł

Tooltip

Cena regularna

3 728 zł najniższa cena
Tooltip

Najniższa cena z 30 dni
przed obniżką

PROMOCJA
Projekt domu Bajkowy wariant E
Bajkowy wariant E
105,74 m²

3 928 zł

4 910 zł

Tooltip

Cena regularna

3 728 zł najniższa cena
Tooltip

Najniższa cena z 30 dni
przed obniżką

Podobne projekty (772)

Zobacz wszystkie
EXTRACENA
Zdjęcie 1 projektu Bw-36 wariant 18 JGC1248
Bw-36 wariant 18
Dodano!
Dodano!
99 m²
4
2
1

3 630 zł

3 730 zł

Tooltip

Cena regularna

3 530 zł najniższa cena
Tooltip

Najniższa cena z 30 dni
przed obniżką

EXTRACENA
Zdjęcie 1 projektu BW-36 wariant 5 JGC1163
BW-36 wariant 5
Dodano!
Dodano!
99,10 m²
3
2
1

3 630 zł

3 730 zł

Tooltip

Cena regularna

3 530 zł najniższa cena
Tooltip

Najniższa cena z 30 dni
przed obniżką

EXTRACENA
Zdjęcie 1 projektu BW-49 wariant 8 JGC1158
BW-49 wariant 8
Dodano!
Dodano!
99,10 m²
3
2
1

3 630 zł

3 730 zł

Tooltip

Cena regularna

3 530 zł najniższa cena
Tooltip

Najniższa cena z 30 dni
przed obniżką

EXTRACENA
Zdjęcie 1 projektu BW-49 wariant 2 JGC1132
BW-49 wariant 2
Dodano!
Dodano!
99,10 m²
4
2
1

3 630 zł

3 730 zł

Tooltip

Cena regularna

3 530 zł najniższa cena
Tooltip

Najniższa cena z 30 dni
przed obniżką

EXTRACENA
Zdjęcie 1 projektu Jagoda 4 BSA2175
Jagoda 4
Dodano!
Dodano!
98,12 m²
3
2
1

4 749 zł

5 149 zł

Tooltip

Cena regularna

4 349 zł najniższa cena
Tooltip

Najniższa cena z 30 dni
przed obniżką

EXTRACENA
Zdjęcie 1 projektu Weranda 6 BSA2299
Weranda 6
Dodano!
Dodano!
110,58 m²
3
2
1

5 749 zł

6 149 zł

Tooltip

Cena regularna

5 349 zł najniższa cena
Tooltip

Najniższa cena z 30 dni
przed obniżką

EXTRACENA
Zdjęcie 1 projektu BW-36 wariant 18 z tarasem (niskoemisyjny) JGC1269
99,60 m²
4
2
1

3 990 zł

4 090 zł

Tooltip

Cena regularna

3 890 zł najniższa cena
Tooltip

Najniższa cena z 30 dni
przed obniżką

EXTRACENA
Zdjęcie 1 projektu BW-49 wariant 1 JGC1131
BW-49 wariant 1
Dodano!
Dodano!
99,10 m²
4
2
1

3 630 zł

3 730 zł

Tooltip

Cena regularna

3 530 zł najniższa cena
Tooltip

Najniższa cena z 30 dni
przed obniżką

Metody i koszt budowy

Ten dom możesz budować metodą gospodarczą, systemem zleconym lub skorzystać z naszej oferty Projekt z Budową. Przy porównaniu weź pod uwagę nie tylko koszt, ale też różny zakres prac i standard wykonania.

Metoda gospodarcza

Najtańsza metoda - większość prac
budowlanych wykonuje inwestor

Stan surowy zamknięty (SSZ)

279 000 zł netto

Szacunkowy koszt materiałów na IV kwartał 2025
  • Prace ziemne i fundamenty

    44 000 zł
  • Konstrukcja, strop oraz dach

    194 000 zł
  • Stolarka okienna i drzwiowa

    41 000 zł
  • Instalacje

    nie obejmuje
  • Prace wykończeniowe

    nie obejmuje
  • Możesz budować etapami, pamiętając jednak o zmianie kosztów w czasie
  • Możesz rozpocząć budowę z częścią niezbędnych środków
  • Sam ustalasz harmonogram, koordynujesz budowę i zapewniasz materiały
Czy da się obniżyć koszty budowy?
Zobacz nasz film jak obniżyć koszt budowy

Projekt z Budową

Najszybsza i najwygodniejsza metoda -
całą budowę domu realizuje jedna firma

Stan deweloperski
Gwarancja stałego kosztu budowy

Gwarancja stałego
kosztu budowy

  • Prace ziemne i fundamenty
  • Konstrukcja, strop oraz dach
  • Stolarka okienna i drzwiowa
  • Instalacje  
    Tooltip

    Obejmuje wykonanie instalacji:

    • wodno-kanalizacyjnej
    • centralnego ogrzewania
    • gazowej
    • elektrycznej
  • Prace wykończeniowe  
    Tooltip

    Prace wykończeniowe obejmują:

    • sufity i ściany wewnętrzne
    • tynki i okładziny ścian wewnętrznych
    • wylewki i posadzkę
    • ocieplenie ścian zewnętrznych i elewację

Budowa
nawet w
6mies.

  • Kompleksowa umowa i znany z góry koszt budowy
  • Logistyka, organizacja budowy i zakupy po stronie firmy budowlanej
  • Formalności i dokumentacje po stronie firmy budowlanej
  • Różne technologie budowy dopasowane do projektu i budżetu
Szczegóły i dostępne technologie
icon

Darmowe

Zestawienie materiałów budowlanych

icon

Polecamy

Kosztorys

Zawiera zestawienie wszystkich potrzebnych materiałów wraz z ich cenami, uwzględnia koszty sprzętu i transportu. Z kosztorysem:

  • poznasz całkowite koszty budowy
  • zaplanujesz prace na budowie
  • łatwiej ocenisz konkurencyjność ofert podwykonawców
  • otrzymasz dokument wymagany w procesie kredytowym

Elewacje

Frontowa
Tylna
Lewa
Prawa

Usytuowanie na działce

Czy ten projekt pasuje na
Twoją działkę?

Chętnie to sprawdzimy!

Czy ten projekt pasuje na
Twoją działkę?

Chętnie to sprawdzimy!

Dowiedz się:

  • czy zmieści się na niej wybrany przez Ciebie dom
  • jakie parametry musi spełniać dom według miejscowego planu zagospodarowania lub warunków zabudowy (np. kąt nachylenia i typ dachu, liczba kondygnacji itp.
  • jakie inne projekty pasują na Twoją działkę – znajdziemy je dla Ciebie!
Autor: MG Projekt

Dane techniczne projektu

Powierzchnie i wymiary Powierzchnie i wymiary

Powierzchnia użytkowa
Tooltip
Suma powierzchni wszystkich pomieszczeń mieszkalnych, pomniejszona o pow. garażu, kotłowni, strychu, piwnicy. Jest liczona w 100% dla pomieszczeń o wysokości powyżej 2,2 m, w 50% dla pomieszczeń o wys. 2,2-1,4 m i niewliczana dla niższych niż 1,4 m.

109,98 m²

Powierzchnia zabudowy
Tooltip
Powierzchnia zajmowana przez część na- oraz nadziemną budynku liczona, jako rzut pionowy budynku na działkę.

111,06 m²

Powierzchnia całkowita
Tooltip
Całkowita powierzchnia wszystkich kondygnacji budynku łącznie z elementami nośnymi, takimi jak ściany zewnętrzne (z ociepleniem), słupy, tarasy, itp.

157,25 m²

Kubatura brutto
Tooltip
Zazwyczaj jest to suma kubatur (objętości) wszystkich pomieszczeń budynku, liczonych po zewnętrznym obrysie murów (z ociepleniem).

457 m³

Powierzchnia dachu

178 m²

Kąt nachylenia dachu
Tooltip
Nachylenie połaci dachu głównego podawane w stopniach. Uwaga! W niektórych projektach występuje więcej niż jedno nachylenie dachu.

45°

Wysokość budynku
Tooltip
Wysokość liczona od części budynku położonej najniżej przy powierzchni terenu do najwyższego punktu dachu (kalenicy) z wyłączeniem kominów.

8,06 m

Szerokość elewacji

13,68 m

Długość elewacji

7,96 m

Min. szerokość działki
Tooltip
Najmniejsza możliwa szerokość działki niezbędna do wybudowania wybranego domu. Składa się z szerokości elewacji domu powiększonej z obu stron o 3 m dla ściany bez otworów drzwiowych/okiennych lub 4 m, dla ściany z otworami.

20,68 m

Min. długość działki
Tooltip
Najmniejsza możliwa długość działki niezbędna do wybudowania wybranego domu. Składa się z długości elewacji domu powiększonej z obu stron o 3 m dla ściany bez otworów drzwiowych/okiennych lub 4 m, dla ściany z otworami.

17,30 m

Energooszczędność Energooszczędność

Oze Czym jest OZE (Odnawialne Źródło Energii)?
Ep
Tooltip
Energia pierwotna określa ilość energii nieodnawialnej potrzebnej w ciągu roku do ogrzewania czy też ogrzania wody użytkowej z uwzględnieniem kosztów produkcji i transportu surowców energetycznych.

69,90 kWh/(m²rok)

Ek
Tooltip
Energia końcowa określa zapotrzebowanie budynku na energię niezbędną do uzyskania założonych parametrów, jak np. temperatura wewnątrz budynku.

65,60 kWh/(m²rok)

Euco
Tooltip
Energia użytkowa potrzebna do ogrzewania i wentylacji. Im parametr jest niższy tym budynek bardziej energooszczędny.

51,50 kWh/(m²rok)

Ogrzewanie główne

Gazowe - szczegóły

Dodatkowo istnieje możliwość zamówienia projektu z

Aneks na paliwo stałe

Gruntowa pompa ciepła

Powietrzna pompa ciepła

Interesuje Cię inne źródło ogrzewania? Wyślij zapytanie lub zadzwoń do doradcy

Wentylacja

Grawitacyjna - szczegóły

Warunki techniczne

Projekt zgody z WT 2021

Technologia i konstrukcja Technologia i konstrukcja

Konstrukcja

Murowana

PROJEKT Z BUDOWĄ Istnieje możliwość zaadaptowania tego projektu do technologii prefabrykowanej/modułowej i budowy nawet w 6 miesięcy ze stałym kosztem budowy

Dowiedz się więcej »
Opis szczegółowy

Fundamenty: betonowe ławy i ściany fundamentowe z bloczków betonowych. Ściany zewnętrzne: ściany murowane - bloczki gazobetonowe 24 cm + styropian + tynk cienkowarstwowy. Strop: Teriva. Elewacje: tynk cienkowarstwowy na styropianie. Pokrycie dachu: dachówka ceramiczna. Nachylenie dachu: 45 stopni.

Strop

Gęstożebrowy

Reklama
Okna i drzwi tarasowe

Nowoczesne okna PVC i aluminiowe WIŚNIOWSKI – doskonała izolacja, elegancki design i niezrównana trwałość.

Wiśniowski
Sprawdź parametry!
Okna dachowe

Oferujemy bezpłatne konsultacje w zakresie wszystkich rozwiązań VELUX. Wyceny, porady dotyczące doboru okien i rolet zewnętrznych - sprawdź!

Velux
Sprawdź szczegóły
Płytki ceramiczne i gresy

Od małych formatów po wielkoformatowe gresy. Marmur, beton, drewno, kamień, lastryko czy cegiełki zamówisz wygodnie online z szybką dostawą.

Ceramzet
Sprawdź ofertę
Drzwi

Ciepłe drzwi WIŚNIOWSKI z kontrolą dostępu. Szeroka gama wzorów i kolorów.

Wiśniowski
Wybierz najlepsze
Bramy garażowe

Automatyczne bramy garażowe segmentowe i uchylne WIŚNIOWSKI na wymiar i z systemem smart home w standardzie.

Wiśniowski
Sprawdź ofertę!
Armatura i ceramika łazienkowa

Topowi producenci. Baterie łazienkowe, zestawy natynkowe i podtynkowe, umywalki, wanny, miski WC oraz kabiny zamówisz kompleksowo online.

Ceramzet II
Dowiedz się więcej
Rekuperacja

Alnor - kompletny system rekuperacji. Dobierz idealne rozwiązanie dla Twojego domu!

Alnor
Dobierz rekuperator
Dach

Producent stalowych pokryć dachowych i systemów elewacyjnych. Precyzja wykonania, trwałość na lata i szybki montaż doceniany przez dekarzy. Postaw na solidny dach Budmat.

Budmat
Sprawdź ofertę
Ogrodzenie

Nowoczesne stalowe ogrodzenia Budmat - estetyka, bezpieczeństwo i trwałość na lata. Systemowe rozwiązania na wymiar, dopasowane do każdego domu.

Budmat
Sprawdź ofertę

Gotowe domy modułowe (118)

Zobacz wszystkie
Stan deweloperski nawet w 6 miesięcy Gwarancja stałej ceny
Zdjęcie 1 projektu Dom szkieletowy Functional Smart 110 HHT1018
Pow. użytkowa
110,12 m²
Pokoje
3
525 337 zł 4 771 zł/m²
Zdjęcie 1 projektu Dom keramzytowy Atrakcyjna Stodoła AS110 HAK1005
Pow. użytkowa
109,71 m²
Pokoje
4
532 520 zł 4 854 zł/m²
Zdjęcie 1 projektu Dom keramzytowy EP1 HAK1006
Gotowy dom keramzytowy EP1
Dodano!
Dodano!
Pow. użytkowa
110,58 m²
Pokoje
3
473 700 zł 4 284 zł/m²
Zdjęcie 1 projektu Dom prefabrykowany Parterowy 110A HFX1009
Pow. użytkowa
110,71 m²
Pokoje
3
465 000 zł 4 200 zł/m²
Zdjęcie 1 projektu Dom prefabrykowany Parterowy 110B HFX1013
Pow. użytkowa
111,33 m²
Pokoje
4
465 000 zł 4 177 zł/m²
Zdjęcie 1 projektu Dom szkieletowy Family Smart 70 HHT1006
Pow. użytkowa
111,77 m²
Pokoje
5
534 125 zł 5 046 zł/m²
Zdjęcie 1 projektu Dom keramzytowy Atrakcyjna Stodoła AS132G HAK1004
Pow. użytkowa
108,09 m²
Pokoje
3
635 500 zł 4 814 zł/m²
Zdjęcie 1 projektu Dom prefabrykowany P.8 HPK1007
Pow. użytkowa
108,05 m²
Pokoje
4
609 500 zł 5 641 zł/m²

Dodatki do projektu

Dodatki możesz zamówić w koszyku lub telefonicznie u naszego Doradcy.

Czym jest OZE (Odnawialne Źródło Energii)?

Ikona

Bestseller

Kosztorys

600 zł

Ikona

Bestseller

Dodatkowy egzemplarz projektu

650 zł

Ikona

Bestseller

Elektroniczna wersja projektu

600 zł

Ikona

Ogrzewanie podłogowe

550 zł

Ikona

Oze

Aneks na paliwo stałe

550 zł

Ikona

Oze

Gruntowa pompa ciepła

550 zł

Pokaż więcej (8)

Opis projektu domu
Bajkowy 3

Dom Bajkowy 3 został stworzony na wzór znanego projektu Bajkowy. W odróżnieniu od pierwotnej wersji projekt ma mniej pokoi, większą powierzchnię, garaż. Projekt domu Bajkowy 3 jest przeznaczony na średniej szerokości działkę. Dom posiada typową bryłę, przez co jest tani w budowie. Projekt należy do kategorii domów z kalenicą skierowaną równolegle do drogi, co jest istotne ze względu na wymagania określone w planie zagospodarowania przestrzennego. Jest przeznaczony do zabudowy wolnostojącej. W projekcie uwzględniono garaż jednostanowiskowy w linii budynku. Projekt jest idealną propozycją dla osób zainteresowanych domem z dachem dwuspadowym, dzięki czemu jest to tanie i proste rozwiązanie. Dom doskonale sprawdzi się w przypadku, gdy jego front znajduje się od strony południowej. Projekt Bajkowy 3 to dom parterowy z poddaszem użytkowym, dzięki czemu mamy możliwość zagospodarowania większej powierzchni. Uwzględniona w projekcie część dzienna z pewnością zadowoli osoby lubiące cieszyć się wspólnymi chwilami w rodzinnym gronie. Tworzy ją między innymi kuchnia, która będzie idealnym rozwiązaniem zarówno dla tradycyjnych, jak i nowoczesnych gospodyń domowych. Praktycznym rozwiązaniem jest uwzględnienie w projekcie dwóch łazienek - zarówno na dole jak i na górze. Trzy sypialnie doskonale sprawdzą się w przypadku 2-4 osobowej rodziny. Przestrzeń można wykorzystać także jako pokój dla gości lub gabinet. W utrzymaniu porządku z pewnością pomoże nam przewidziane w projekcie pomieszczenie gospodarcze. Efektowny taras pozwala na kontakt z naturą bez zbytniego oddalania się od domowego zacisza. Budynek został zaprojektowany w technologii murowanej. W jego bryle widoczne są rozwiązania nawiązujące do stylu tradycyjnego, dlatego będzie prezentować się doskonale niezależnie od okolicy.
Czytaj więcej

Polecani producenci

Kompletne systemy rekuperacji

tło producenta

Alnor

Dowiedz się więcej

Prefabrykowane konstrukcje dachowe

tło producenta

WIĄZAR POLSKA

Zobacz więcej

Sprawdź nową generację okien GREENVIEW

tło producenta

FAKRO

Sprawdź nową generację okien GREENVIEW

Styropian, tynki, farby, kleje

tło producenta

Termo Organika

Poznaj super jakość

Okna, drzwi, osłony przeciwsłoneczne

tło producenta

Aluprof

Sprawdź ofertę
Zobacz więcej

Społeczność projektu domu
Bajkowy 3 w budowie

Dołącz do społeczności osób, które budują ten dom lub są zainteresowane jego budową.

  • Oglądaj zdjęcia z budowy
  • Zadawaj pytania
  • Wymieniaj się doświadczeniami

Opinie o projekcie domu Bajkowy 3

Ocena

Ten projekt nie ma jeszcze opinii, bądź pierwszy!

Dodaj opinię

ASYSTENT WYBORU PROJEKTU

Szukasz idealnego projektu? Znajdziemy go dla Ciebie!

Doradca na podstawie Twoich wskazówek przygotuje spersonalizowaną listę projektów

Graficzne opracowanie rzutów poglądowych widocznych na karcie projektu zostało wykonane przez Extradom.pl. Prezentowane przez Extradom.pl wizualizacje wykonane zostały przez autora projektu i należy poczytywać je jedynie za przykład i propozycję wykończenia, wizję architektoniczną autora projektu. Ostateczne wykończenie budynku może nastąpić na wiele sposobów. Szczegółowe rozwiązania zastosowane w oferowanej dokumentacji - w tym również ilość, lokalizacje i wygląd okien, drzwi, kominów - mogą w niewielkim stopniu różnić się od prezentowanej wizualizacji budynku.

Extradom.pl Spółka z ograniczoną odpowiedzialnością z siedzibą przy ul. Jaworskiej 13, 53-612 Wrocław, wpisana do rejestru przedsiębiorców Krajowego Rejestru Sądowego przez Sąd Rejonowy dla Wrocławia-Fabrycznej we Wrocławiu, VI Wydział Gospodarczy Krajowego Rejestru Sądowego do pod numerem KRS 0000648746, numer NIP 895-17-18-333, o kapitale zakładowym 708 150,00 zł uprzejmie informuje, iż poprzez serwis Extradom.pl umożliwia m.in. zapoznanie się przez konsumentów z ofertą handlową Partnerów Extradom.pl, którzy stosują metody budowy domów przy wykorzystaniu różnego rodzaju technologie prefabrykacji bądź modułowe (tzw. „Gotowe domy”).

Extradom.pl nie prowadzi jednakże sprzedaży ani nie oferuje usług polegających na doradztwie finansowym, prawnym ani podatkowym w zakresie inwestycji realizowanych w technologiach tzw. „Gotowych domów”. Informacje prezentowane w serwisie Extradom.pl dotyczące Partnerów Extradom.pl oferujących realizację inwestycji w technologiach „Gotowych domów” lub podobnych mają charakter informacyjny i reklamowy.

Prezentowane w serwisie Extradom.pl informacje dotyczące stosowanych przez Partnerów metod budowy domów w technologii prefabrykacji bądź modułowej pochodzą od Partnerów Extradom.pl.

Extradom.pl sp. z o.o. jedynie umożliwia nawiązanie kontaktu przez Użytkownika z Partnerem Extradom.pl stosującym tego rodzaju technologie budowy domów i nie jest stroną umowy o roboty budowlane zawieranej przez Użytkownika Extradom.pl z Partnerem Extradom.pl.

REKLAMA
Zamknij