👉 Wiosenne okazje + karta allegro 200 zł! 🔥

Koniec oferty za:

00godz.

00min.

00sek.

Sprawdź

Projekt domu Ares BSE1027

Zapisz Dodano!
Porównaj Dodano!
ikona Pobierz i drukuj

Warstwy

Warstwy

Rzut parteru

Powierzchnia (m²)
Tooltip
Powierzchnia pomieszczenia
to ta, z której faktycznie możesz korzystać – skosy i niskie części poddasza są liczone częściowo lub wcale.
  1. 100% dla wysokości powyżej 2,2 m,
  2. 50% dla wysokości 1,4–2,2 m,
  3. nie liczymy poniżej 1,4 m.

Powierzchnia podłogi
Liczymy po obrysie pomieszczenia, bez względu na jego wysokość/skosy. Jeśli nie ma skosów to powierzchnia podłogi i pomieszczenia jest taka sama.
pomieszczenia i podłogi
podłogi
1. Wiatrołap
4,10
2. Hall
7,56
3. Kuchnia
8,94
4. Spiżarnia
1,50
5. Pokój dzienny
27,40
6. Korytarz
2,13
7. Łazienka
3,02
8. Kotłownia
8,22
9. Pokój
9,83
10. Schody
3,15
Razem
75,85
75,85
Powierzchnia (m²)
Tooltip
Powierzchnia pomieszczenia
to ta, z której faktycznie możesz korzystać – skosy i niskie części poddasza są liczone częściowo lub wcale.
  1. 100% dla wysokości powyżej 2,2 m,
  2. 50% dla wysokości 1,4–2,2 m,
  3. nie liczymy poniżej 1,4 m.

Powierzchnia podłogi
Liczymy po obrysie pomieszczenia, bez względu na jego wysokość/skosy. Jeśli nie ma skosów to powierzchnia podłogi i pomieszczenia jest taka sama.
pomieszczenia
podłogi
1. Schody
3,15
3,15
2. Hall
5,92
5,92
3. Pokój
13,42
16,31
4. Garderoba
3,63
5,04
5. Pokój
13,97
16,68
6. Łazienka
2,20
3,70
7. Pokój
12,48
15,98
8. Łazienka
8,33
10,13
Razem
63,10
76,91

    Usytuowanie na działce

    Czy ten projekt pasuje na
    Twoją działkę?

    Chętnie to sprawdzimy!

    Dowiedz się:

    • czy zmieści się na niej wybrany przez Ciebie dom
    • jakie parametry musi spełniać dom według miejscowego planu zagospodarowania lub warunków zabudowy (np. kąt nachylenia i typ dachu, liczba kondygnacji itp.
    • jakie inne projekty pasują na Twoją działkę – znajdziemy je dla Ciebie!

Pow. użytkowa

138,95 m²

Pokoje

4

Łazienki i WC

3

Garaż

0

Min. szer. i dł. działki

16 x 22,90 m

Kąt dachu

40°

Konstrukcja

Murowana
więcej

Ares - BSE1027

ikona 138,95 m²
Powierzchnia użytkowa
ikona4
Pokoje (bez salonu)
ikona 3
Łazienki (z toaletami)
ikona 0
Liczba stanowisk garażowych
(z wiatą garażową)
ikona
Konstrukcja: Murowana

Projekt został
wycofany z oferty

W razie pytań prosimy o kontakt
z Centrum Obsługi Klienta
Konsultant
71 715 20 60

pon.-pt. 8-21, sob. 9-17

Parter - 75,85 m²

Parter projektu Ares

Zapytaj, co możesz zmienić

Powierzchnia (m²)
Tooltip
Powierzchnia pomieszczenia
to ta, z której faktycznie możesz korzystać – skosy i niskie części poddasza są liczone częściowo lub wcale.
  1. 100% dla wysokości powyżej 2,2 m,
  2. 50% dla wysokości 1,4–2,2 m,
  3. nie liczymy poniżej 1,4 m.

Powierzchnia podłogi
Liczymy po obrysie pomieszczenia, bez względu na jego wysokość/skosy. Jeśli nie ma skosów to powierzchnia podłogi i pomieszczenia jest taka sama.
pomieszczenia i podłogi
podłogi
1. Wiatrołap
4,10
2. Hall
7,56
3. Kuchnia
8,94
4. Spiżarnia
1,50
5. Pokój dzienny
27,40
6. Korytarz
2,13
7. Łazienka
3,02
8. Kotłownia
8,22
9. Pokój
9,83
10. Schody
3,15
Razem
75,85
75,85

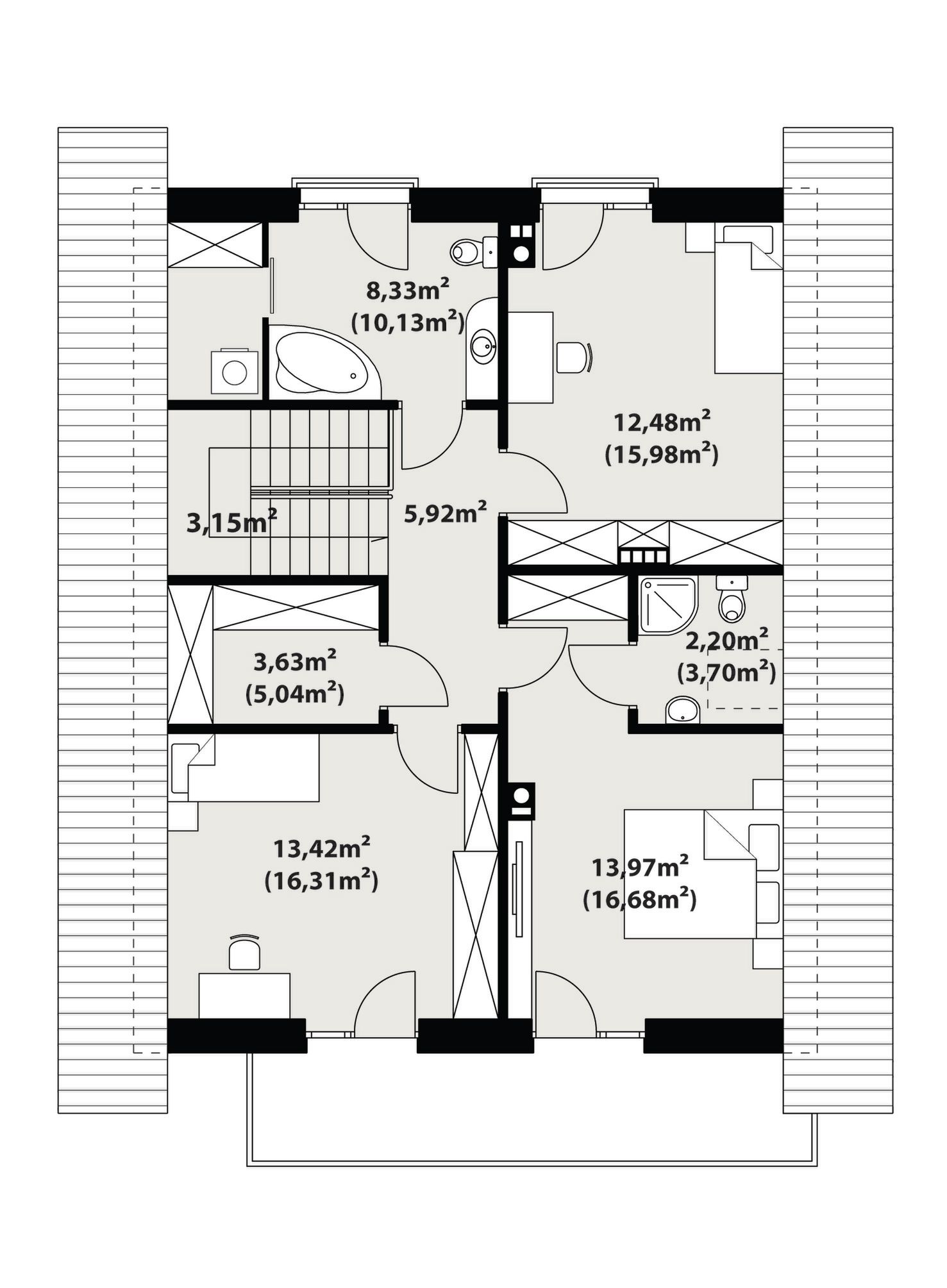
Poddasze - 63,10 m²

Poddasze projektu Ares

Zapytaj, co możesz zmienić

Powierzchnia (m²)
Tooltip
Powierzchnia pomieszczenia
to ta, z której faktycznie możesz korzystać – skosy i niskie części poddasza są liczone częściowo lub wcale.
  1. 100% dla wysokości powyżej 2,2 m,
  2. 50% dla wysokości 1,4–2,2 m,
  3. nie liczymy poniżej 1,4 m.

Powierzchnia podłogi
Liczymy po obrysie pomieszczenia, bez względu na jego wysokość/skosy. Jeśli nie ma skosów to powierzchnia podłogi i pomieszczenia jest taka sama.
pomieszczenia
podłogi
1. Schody
3,15
3,15
2. Hall
5,92
5,92
3. Pokój
13,42
16,31
4. Garderoba
3,63
5,04
5. Pokój
13,97
16,68
6. Łazienka
2,20
3,70
7. Pokój
12,48
15,98
8. Łazienka
8,33
10,13
Razem
63,10
76,91

Podobne projekty (1605)

Zobacz wszystkie
NIŻSZA CENA 🔥
Zdjęcie 1 projektu Zefir 2 WAH2160
Zefir 2
Dodano!
Dodano!
125,97 m²
4
3
0

5 112 zł

6 390 zł

Tooltip

Cena regularna

5 112 zł najniższa cena
Tooltip

Najniższa cena z 30 dni
przed obniżką

NIŻSZA CENA 🔥
Zdjęcie 1 projektu Dom na Jodłowej WBF1001
Dom na Jodłowej
Dodano!
Dodano!
133,55 m²
5
2
0

3 899 zł

4 399 zł

Tooltip

Cena regularna

3 899 zł najniższa cena
Tooltip

Najniższa cena z 30 dni
przed obniżką

NIŻSZA CENA 🔥
Zdjęcie 1 projektu Domidea 50 d40 w4 WAC1010
Domidea 50 d40 w4
Dodano!
Dodano!
126,70 m²
4
3
1

5 604 zł

5 904 zł

Tooltip

Cena regularna

5 604 zł najniższa cena
Tooltip

Najniższa cena z 30 dni
przed obniżką

NIŻSZA CENA 🔥
Zdjęcie 1 projektu Dom przy Modrzewiowej 18 KRK1635
Dom przy Modrzewiowej 18
Dodano!
Dodano!
126,99 m²
4
2
0

3 490 zł

3 990 zł

Tooltip

Cena regularna

3 490 zł najniższa cena
Tooltip

Najniższa cena z 30 dni
przed obniżką

NIŻSZA CENA 🔥
Zdjęcie 1 projektu Amelia BSA1575
Amelia
Dodano!
Dodano!
137,15 m²
4
3
0

5 449 zł

5 849 zł

Tooltip

Cena regularna

5 449 zł najniższa cena
Tooltip

Najniższa cena z 30 dni
przed obniżką

NIŻSZA CENA 🔥
Zdjęcie 1 projektu Jeżyna BSA1971
Jeżyna
Dodano!
Dodano!
137,85 m²
5
2
0

5 249 zł

5 649 zł

Tooltip

Cena regularna

5 249 zł najniższa cena
Tooltip

Najniższa cena z 30 dni
przed obniżką

NIŻSZA CENA 🔥
Zdjęcie 1 projektu Jadzia Atu (1875) KRD3021
Jadzia Atu (1875)
Dodano!
Dodano!
147,10 m²
5
3
0

4 540 zł

4 890 zł

Tooltip

Cena regularna

4 510 zł najniższa cena
Tooltip

Najniższa cena z 30 dni
przed obniżką

Zdjęcie 1 projektu Studio 33 WRN1542
Studio 33
Dodano!
Dodano!
139,80 m²
4
2
0

4 095 zł

Elewacje

Frontowa
Tylna
Lewa
Prawa

Usytuowanie na działce

Czy ten projekt pasuje na
Twoją działkę?

Chętnie to sprawdzimy!

Czy ten projekt pasuje na
Twoją działkę?

Chętnie to sprawdzimy!

Dowiedz się:

  • czy zmieści się na niej wybrany przez Ciebie dom
  • jakie parametry musi spełniać dom według miejscowego planu zagospodarowania lub warunków zabudowy (np. kąt nachylenia i typ dachu, liczba kondygnacji itp.
  • jakie inne projekty pasują na Twoją działkę – znajdziemy je dla Ciebie!
Autor: Archetyp

Dane techniczne projektu

Powierzchnie i wymiary Powierzchnie i wymiary

Powierzchnia użytkowa
Tooltip
Suma powierzchni wszystkich pomieszczeń mieszkalnych, pomniejszona o pow. garażu, kotłowni, strychu, piwnicy. Jest liczona w 100% dla pomieszczeń o wysokości powyżej 2,2 m, w 50% dla pomieszczeń o wys. 2,2-1,4 m i niewliczana dla niższych niż 1,4 m.

138,95 m²

Wysokość ściany kolankowej
Tooltip
Wysokość ściany podpierającej dach. Jej wysokość wpływa na powierzchnię użytkową kondygnacji, na której się znajduje.

1,14 m

Powierzchnia zabudowy
Tooltip
Powierzchnia zajmowana przez część na- oraz nadziemną budynku liczona, jako rzut pionowy budynku na działkę.

109,87 m²

Kubatura brutto
Tooltip
Zazwyczaj jest to suma kubatur (objętości) wszystkich pomieszczeń budynku, liczonych po zewnętrznym obrysie murów (z ociepleniem).

660 m³

Powierzchnia dachu

188 m²

Kąt nachylenia dachu
Tooltip
Nachylenie połaci dachu głównego podawane w stopniach. Uwaga! W niektórych projektach występuje więcej niż jedno nachylenie dachu.

40°

Wysokość budynku
Tooltip
Wysokość liczona od części budynku położonej najniżej przy powierzchni terenu do najwyższego punktu dachu (kalenicy) z wyłączeniem kominów.

8,59 m

Min. szerokość działki
Tooltip
Najmniejsza możliwa szerokość działki niezbędna do wybudowania wybranego domu. Składa się z szerokości elewacji domu powiększonej z obu stron o 3 m dla ściany bez otworów drzwiowych/okiennych lub 4 m, dla ściany z otworami.

16 m

Min. długość działki
Tooltip
Najmniejsza możliwa długość działki niezbędna do wybudowania wybranego domu. Składa się z długości elewacji domu powiększonej z obu stron o 3 m dla ściany bez otworów drzwiowych/okiennych lub 4 m, dla ściany z otworami.

22,90 m

Energooszczędność Energooszczędność

Oze Czym jest OZE (Odnawialne Źródło Energii)?
Warunki techniczne

Projekt zgody z WT 2021

Technologia i konstrukcja Technologia i konstrukcja

Konstrukcja

Murowana

Opis szczegółowy

Dach: dachówka lub blachodachówka. Elewacje: tynk, płytka elewacyjna, płyta HPL lub szalówka. Strop: żelbetowy. Ściany wewnętrzne: murowane. Ściany zewnętrzne: dwuwarstwowe, pustak ceramiczny, docieplony styropianem. Ogrzewanie: kocioł gazowy lub kocioł na paliwo stałe.

Strop

Żelbetowy

Reklama
Okna i drzwi tarasowe

Nowoczesne okna PVC i aluminiowe WIŚNIOWSKI – doskonała izolacja, elegancki design i niezrównana trwałość.

Wiśniowski
Sprawdź parametry!
Okna dachowe

Oferujemy bezpłatne konsultacje w zakresie wszystkich rozwiązań VELUX. Wyceny, porady dotyczące doboru okien i rolet zewnętrznych - sprawdź!

Velux
Sprawdź szczegóły
Płytki ceramiczne i gresy

Od małych formatów po wielkoformatowe gresy. Marmur, beton, drewno, kamień, lastryko czy cegiełki zamówisz wygodnie online z szybką dostawą.

Ceramzet
Sprawdź ofertę
Elewacja

Kup przez internet wszystkie materiały potrzebne do wykonania elewacji: styropian, płyty PIR, XPS, kleje, tynki. Najlepsze marki w super cenach z dostawą pod dom.

Hurtownia styropianu
Sprawdź ofertę!
Drzwi

Ciepłe drzwi WIŚNIOWSKI z kontrolą dostępu. Szeroka gama wzorów i kolorów.

Wiśniowski
Wybierz najlepsze
Bramy garażowe

Automatyczne bramy garażowe segmentowe i uchylne WIŚNIOWSKI na wymiar i z systemem smart home w standardzie.

Wiśniowski
Sprawdź ofertę!
Armatura i ceramika łazienkowa

Topowi producenci. Baterie łazienkowe, zestawy natynkowe i podtynkowe, umywalki, wanny, miski WC oraz kabiny zamówisz kompleksowo online.

Ceramzet II
Dowiedz się więcej
Rekuperacja

Alnor - kompletny system rekuperacji. Dobierz idealne rozwiązanie dla Twojego domu!

Alnor
Dobierz rekuperator
Dach

Producent stalowych pokryć dachowych i systemów elewacyjnych. Precyzja wykonania, trwałość na lata i szybki montaż doceniany przez dekarzy. Postaw na solidny dach Budmat.

Budmat
Sprawdź ofertę
Ogrodzenie

Nowoczesne stalowe ogrodzenia Budmat - estetyka, bezpieczeństwo i trwałość na lata. Systemowe rozwiązania na wymiar, dopasowane do każdego domu.

Budmat
Sprawdź ofertę

Gotowe domy - najszybszy sposób na dom (115)

Zobacz wszystkie
  • Stan deweloperski nawet w 6 miesięcy
  • Gwarancja stałej ceny
Skonfiguruj dom
Zdjęcie 1 projektu Bergen 130 HUS1002
130,40 m²
4
Stan deweloperski brutto
499 000 zł 3 827 zł/m²
Zdjęcie 1 projektu Dom prefabrykowany P.5 HPK1004
138,67 m²
5
Stan deweloperski brutto
787 200 zł 5 677 zł/m²
Zdjęcie 1 projektu Dom prefabrykowany P.1 z okapem HPK1000
139,44 m²
3
Stan deweloperski brutto
734 000 zł 5 264 zł/m²
Zdjęcie 1 projektu Dom prefabrykowany P.1 bez okapu HPK1012
139,44 m²
3
Stan deweloperski brutto
712 400 zł 5 109 zł/m²
Zdjęcie 1 projektu Dom prefabrykowany DEX136 HDX1002
136 m²
4
Stan deweloperski brutto
895 700 zł 6 586 zł/m²
Zdjęcie 1 projektu Dom szkieletowy Open Sky 195 HHT1029
145,04 m²
4
Stan deweloperski brutto
940 300 zł 6 483 zł/m²
Zdjęcie 1 projektu Dom prefabrykowany Piętrowy 130C HFX1023
132 m²
4
Stan deweloperski brutto
575 000 zł 4 356 zł/m²
Zdjęcie 1 projektu Dom prefabrykowany Piętrowy 130B HFX1022
131,60 m²
5
Stan deweloperski brutto
575 000 zł 4 369 zł/m²

Opis projektu domu
Ares

Projekt domu Ares zaprojektowany z myślą o inwestorach posiadających wąską działkę, gdyż wymiary budynku dają możliwość ciekawego zagospodarowania przestrzeni wokół domu. Dom charakteryzuje się prostą bryłą, więc będzie się dobrze prezentował niezależnie od otoczenia. W tym projekcie kalenica skierowana jest prostopadle do drogi, co często określane jest w warunkach zabudowy. Jest przeznaczony do zabudowy wolnostojącej. Konstrukcja domu przykryta jest dachem dwuspadowym, co pozwala na ograniczenie kosztów. Dom doskonale sprawdzi się w przypadku, gdy jego front znajduje się od strony południowej. Projekt Ares to dom parterowy z poddaszem użytkowym, co sprawia, że metraż powierzchni użytkowej nie jest ograniczony wielkością działki. Autor projektu przewidział w nim ciekawie prezentującą się strefę dzienną. Otwarta kuchnia dodaje wnętrzu przestrzeni oraz znacznie ułatwia komunikację między domownikami. Zwolenników praktycznych rozwiązań niewątpliwie ucieszy fakt, iż przewidziano także miejsce na spiżarkę. W salonie znajduje się nastrojowy kominek dający przyjemne ciepło i nadający wnętrzu przyjemnej atmosfery. Projekt uwzględnia jedną łazienkę na parterze i dwie na poddaszu. Część nocna składa się z czterech sypialni, dlatego też dom jest odpowiedni dla 4-6 osobowej rodziny. Przestrzeń można wykorzystać także jako pokój dla gości lub gabinet. Doskonałym miejscem do wypoczynku jest zaprojektowany przy domu taras. Zalecana przez architekta technologia murowana zapewnia trwałość i solidność konstrukcji. W jego bryle widoczne są rozwiązania nawiązujące do stylu tradycyjnego, dlatego będzie prezentować się doskonale niezależnie od okolicy.
Czytaj więcej

Polecani producenci

Kompletne systemy rekuperacji

tło producenta

Alnor

Dowiedz się więcej

Prefabrykowane konstrukcje dachowe

tło producenta

WIĄZAR POLSKA

Zobacz więcej

Sprawdź nową generację okien GREENVIEW

tło producenta

FAKRO

Sprawdź nową generację okien GREENVIEW

Styropian, tynki, farby, kleje

tło producenta

Termo Organika

Poznaj super jakość

Okna, drzwi, osłony przeciwsłoneczne

tło producenta

Aluprof

Sprawdź ofertę
Zobacz więcej

Społeczność projektu domu
Ares w budowie

Dołącz do społeczności osób, które budują ten dom lub są zainteresowane jego budową.

  • Oglądaj zdjęcia z budowy
  • Zadawaj pytania
  • Wymieniaj się doświadczeniami

Opinie o projekcie domu Ares

Ocena

Ten projekt nie ma jeszcze opinii, bądź pierwszy!

Dodaj opinię

ASYSTENT WYBORU PROJEKTU

Szukasz idealnego projektu? Znajdziemy go dla Ciebie!

Doradca na podstawie Twoich wskazówek przygotuje spersonalizowaną listę projektów

Graficzne opracowanie rzutów poglądowych widocznych na karcie projektu zostało wykonane przez Extradom.pl. Prezentowane przez Extradom.pl wizualizacje wykonane zostały przez autora projektu i należy poczytywać je jedynie za przykład i propozycję wykończenia, wizję architektoniczną autora projektu. Ostateczne wykończenie budynku może nastąpić na wiele sposobów. Szczegółowe rozwiązania zastosowane w oferowanej dokumentacji - w tym również ilość, lokalizacje i wygląd okien, drzwi, kominów - mogą w niewielkim stopniu różnić się od prezentowanej wizualizacji budynku.

REKLAMA
Zamknij