👉 Rozgrzewające rabaty! 🔥

Projekt domu Anzio Termo KRH1340

Dodano!
Dodano!

Warstwy

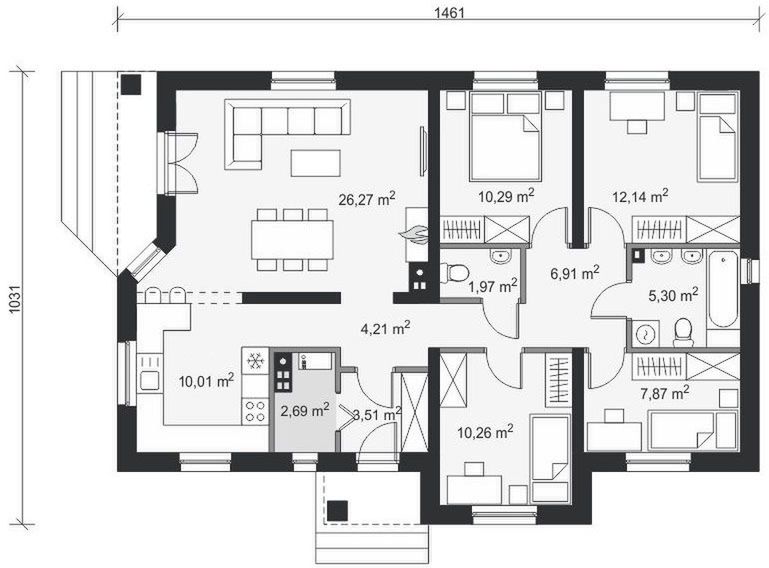
Rzut parteru

Powierzchnia (m²)
Tooltip
Powierzchnia pomieszczenia
to ta, z której faktycznie możesz korzystać – skosy i niskie części poddasza są liczone częściowo lub wcale.
  1. 100% dla wysokości powyżej 2,2 m,
  2. 50% dla wysokości 1,4–2,2 m,
  3. nie liczymy poniżej 1,4 m.

Powierzchnia podłogi (wartość w nawiasie)
Liczymy po całym obrysie pomieszczenia, bez względu na jego wysokość.
101,45
1. Wiatrołap
3,51
2. Kotłownia
2,69
3. Hall
4,21
4. Korytarz
6,91
5. Kuchnia
10,01
6. Pokój dzienny
26,27
7. Wc
1,97
8. Pokój
10,29
9. Pokój
12,14
10. Łazienka
5,30
11. Pokój
7,89
12. Pokój
10,26

    Usytuowanie na działce

    Czy ten projekt pasuje na
    Twoją działkę?

    Chętnie to sprawdzimy!

    Dowiedz się:

    • czy zmieści się na niej wybrany przez Ciebie dom
    • jakie parametry musi spełniać dom według miejscowego planu zagospodarowania lub warunków zabudowy (np. kąt nachylenia i typ dachu, liczba kondygnacji itp.
    • jakie inne projekty pasują na Twoją działkę – znajdziemy je dla Ciebie!

Pow. użytkowa

98,76 m²

Pokoje

4

Łazienki i WC

2

Garaż

0

Min. szer. i dł. działki

22,61 x 18,31 m

Kąt dachu

36°

Konstrukcja

Murowana
więcej

Anzio Termo - KRH1340

ikona 98,76 m²
Powierzchnia użytkowa
ikona4
Pokoje (bez salonu)
ikona 2
Łazienki (z toaletami)
ikona 0
Liczba stanowisk garażowych
(z wiatą garażową)
ikona
Konstrukcja: Murowana

Projekt został
wycofany z oferty

W razie pytań prosimy o kontakt
z Centrum Obsługi Klienta
Konsultant Masz pytania?
Zadzwoń
71 715 20 60

pon.-pt. 8-21, sob. 9-17

Szukasz wykonawcy godnego zaufania?
Zleć budowę w Extradom.pl!

  • Z góry znasz koszt budowy domu
  • Dom odbierasz zgodnie z ustalonym harmonogramem - nawet w 6 miesięcy
  • Zabezpiecza Cię jedna kompleksowa umowa z jednym wykonawcą
  • Otrzymujesz nawet 30-letnią gwarancję na konstrukcję domu
  • Oszczędzasz swój czas dzięki pewnej i kompletnej usłudze
Cena brutto stanu
deweloperskiego od
Tooltip
Cena brutto stanu deweloperskiego od 4 629 do 5 979 zł/m2.
Cena jest uzależniona m.in. od lokalizacji, wybranej technologii, kubatury budynku, skomplikowania projektu i ewentualnych zmian, na które zdecyduje się inwestor.
Cena za m2 powierzchni netto, czyli wszystkich pomieszczeń mierzonych na wysokości podłogi.
4 629 zł/m2
Dowiedz się więcej
Konsultant Masz pytania?
Zadzwoń
71 715 20 70

pon.-pt. 8-19

Parter - 101,45 m²

Parter projektu Anzio Termo

Zapytaj, co możesz zmienić

Powierzchnia (m²)
Tooltip
Powierzchnia pomieszczenia
to ta, z której faktycznie możesz korzystać – skosy i niskie części poddasza są liczone częściowo lub wcale.
  1. 100% dla wysokości powyżej 2,2 m,
  2. 50% dla wysokości 1,4–2,2 m,
  3. nie liczymy poniżej 1,4 m.

Powierzchnia podłogi (wartość w nawiasie)
Liczymy po całym obrysie pomieszczenia, bez względu na jego wysokość.
(101,45)
101,45
1. Wiatrołap
3,51
2. Kotłownia
2,69
3. Hall
4,21
4. Korytarz
6,91
5. Kuchnia
10,01
6. Pokój dzienny
26,27
7. Wc
1,97
8. Pokój
10,29
9. Pokój
12,14
10. Łazienka
5,30
11. Pokój
7,89
12. Pokój
10,26

Podobne projekty (6346)

Zobacz wszystkie
Zdjęcie 1 projektu House 30.1 - murowany WRG1104
House 30.1 - murowany
Dodano!
Dodano!
95,23 m²
3
1
0

5 190 zł

NIŻSZA CENA ✂️
Zdjęcie 1 projektu EG-107 WWB1139
EG-107
Dodano!
Dodano!
102,44 m²
4
2
0

4 150 zł

4 400 zł

Tooltip

Cena regularna

4 000 zł najniższa cena
Tooltip

Najniższa cena z 30 dni
przed obniżką

NIŻSZA CENA ✂️
Zdjęcie 1 projektu EG-109 WWB1151
EG-109
Dodano!
Dodano!
97,63 m²
3
2
0

3 950 zł

4 200 zł

Tooltip

Cena regularna

3 800 zł najniższa cena
Tooltip

Najniższa cena z 30 dni
przed obniżką

NIŻSZA CENA ✂️
Zdjęcie 1 projektu N45-G1 KKG1034
N45-G1
Dodano!
Dodano!
88,06 m²
3
2
1

3 700 zł

4 500 zł

Tooltip

Cena regularna

3 300 zł najniższa cena
Tooltip

Najniższa cena z 30 dni
przed obniżką

NIŻSZA CENA ✂️
Zdjęcie 1 projektu EG-108 wariant I WWB1150
EG-108 wariant I
Dodano!
Dodano!
103,28 m²
3
2
0

3 950 zł

4 200 zł

Tooltip

Cena regularna

3 800 zł najniższa cena
Tooltip

Najniższa cena z 30 dni
przed obniżką

NIŻSZA CENA ✂️
Zdjęcie 1 projektu N30-BG KKG1027
N30-BG
Dodano!
Dodano!
83,08 m²
2
2
0

3 700 zł

4 500 zł

Tooltip

Cena regularna

3 950 zł najniższa cena
Tooltip

Najniższa cena z 30 dni
przed obniżką

NIŻSZA CENA ✂️
Zdjęcie 1 projektu Doppio WOF1127
Doppio
Dodano!
Dodano!
80 m²
3
1
0

3 399 zł

3 599 zł

Tooltip

Cena regularna

3 299 zł najniższa cena
Tooltip

Najniższa cena z 30 dni
przed obniżką

NIŻSZA CENA ✂️
Zdjęcie 1 projektu Swen WRC2592
Swen
Dodano!
Dodano!
95,36 m²
3
2
0

3 600 zł

4 500 zł

Tooltip

Cena regularna

3 600 zł najniższa cena
Tooltip

Najniższa cena z 30 dni
przed obniżką

Projekt z budową

Budowa Projekt z budową

Zbuduj ten dom z naszym Partnerem - wygodnie, szybko i bezpiecznie

Projekt z budową to:

  • gwarancja niezmiennego kosztu budowy

  • krótki czas realizacji - dom gotowy nawet w 6 miesięcy

  • wieloletnia gwarancja na konstrukcję domu

Elewacje

Frontowa
Tylna
Lewa
Prawa

Przekroje

Przekrój pionowy

Usytuowanie na działce

Czy ten projekt pasuje na
Twoją działkę?

Chętnie to sprawdzimy!

Czy ten projekt pasuje na
Twoją działkę?

Chętnie to sprawdzimy!

Dowiedz się:

  • czy zmieści się na niej wybrany przez Ciebie dom
  • jakie parametry musi spełniać dom według miejscowego planu zagospodarowania lub warunków zabudowy (np. kąt nachylenia i typ dachu, liczba kondygnacji itp.
  • jakie inne projekty pasują na Twoją działkę – znajdziemy je dla Ciebie!
Autor: Archigraph

Dane techniczne projektu

Powierzchnie i wymiary Powierzchnie i wymiary

Powierzchnia użytkowa
Tooltip
Suma powierzchni wszystkich pomieszczeń mieszkalnych, pomniejszona o pow. garażu, kotłowni, strychu, piwnicy. Jest liczona w 100% dla pomieszczeń o wysokości powyżej 2,2 m, w 50% dla pomieszczeń o wys. 2,2-1,4 m i niewliczana dla niższych niż 1,4 m.

98,76 m²

Powierzchnia zabudowy
Tooltip
Powierzchnia zajmowana przez część na- oraz nadziemną budynku liczona, jako rzut pionowy budynku na działkę.

140,41 m²

Powierzchnia netto
Tooltip
Powierzchna wszystkich pomieszczeń w budynku mierzona na wysokości podłogi.

101,45 m²

Kubatura brutto
Tooltip
Zazwyczaj jest to suma kubatur (objętości) wszystkich pomieszczeń budynku, liczonych po zewnętrznym obrysie murów (z ociepleniem).

729,20 m³

Powierzchnia dachu

229 m²

Kąt nachylenia dachu
Tooltip
Nachylenie połaci dachu głównego podawane w stopniach. Uwaga! W niektórych projektach występuje więcej niż jedno nachylenie dachu.

36°

Wysokość budynku
Tooltip
Wysokość liczona od części budynku położonej najniżej przy powierzchni terenu do najwyższego punktu dachu (kalenicy) z wyłączeniem kominów.

7,46 m

Min. szerokość działki
Tooltip
Najmniejsza możliwa szerokość działki niezbędna do wybudowania wybranego domu. Składa się z szerokości elewacji domu powiększonej z obu stron o 3 m dla ściany bez otworów drzwiowych/okiennych lub 4 m, dla ściany z otworami.

22,61 m

Min. długość działki
Tooltip
Najmniejsza możliwa długość działki niezbędna do wybudowania wybranego domu. Składa się z długości elewacji domu powiększonej z obu stron o 3 m dla ściany bez otworów drzwiowych/okiennych lub 4 m, dla ściany z otworami.

18,31 m

Energooszczędność Energooszczędność

Oze Czym jest OZE (Odnawialne Źródło Energii)?
Warunki techniczne

Projekt zgody z WT 2021

Technologia i konstrukcja Technologia i konstrukcja

Konstrukcja

Murowana

PROJEKT Z BUDOWĄ Istnieje możliwość zaadaptowania tego projektu do technologii prefabrykowanej/modułowej i budowy nawet w 6 miesięcy ze stałym kosztem budowy

Dowiedz się więcej »
Opis szczegółowy

Ściany: zewnętrzne dwuwarstwowe z pustaków ceramicznych 25 cm + izolacja 18 cm. Strop: żelbetowy monolityczny. Więźba dachowa: tradycyjna drewniana. Pokrycie dachu: dachówka.

Strop

Żelbetowy

Reklama
Okna i drzwi tarasowe

Nowoczesne okna PVC i aluminiowe WIŚNIOWSKI – doskonała izolacja, elegancki design i niezrównana trwałość.

Wiśniowski
Sprawdź parametry!
Okna dachowe

Oferujemy bezpłatne konsultacje w zakresie wszystkich rozwiązań VELUX. Wyceny, porady dotyczące doboru okien i rolet zewnętrznych - sprawdź!

Velux
Sprawdź szczegóły
Dach

Producent stalowych pokryć dachowych i elewacyjnych - 40 lat doświadczenia. Zbuduj solidny dach z nami!

Blachy Pruszyński
Sprawdź szczegóły
Płytki ceramiczne i gresy

Od małych formatów po wielkoformatowe gresy. Marmur, beton, drewno, kamień, lastryko czy cegiełki zamówisz wygodnie online z szybką dostawą.

Ceramzet
Sprawdź ofertę
Drzwi

Ciepłe drzwi WIŚNIOWSKI z kontrolą dostępu. Szeroka gama wzorów i kolorów.

Wiśniowski
Wybierz najlepsze
Bramy garażowe

Automatyczne bramy garażowe segmentowe i uchylne WIŚNIOWSKI na wymiar i z systemem smart home w standardzie.

Wiśniowski
Sprawdź ofertę!
Armatura i ceramika łazienkowa

Topowi producenci. Baterie łazienkowe, zestawy natynkowe i podtynkowe, umywalki, wanny, miski WC oraz kabiny zamówisz kompleksowo online.

Ceramzet II
Dowiedz się więcej
Rekuperacja

Alnor - kompletny system rekuperacji. Dobierz idealne rozwiązanie dla Twojego domu!

Alnor
Dobierz rekuperator
Gruntowe pompy ciepła

Przeprowadzimy kompletną instalację najbardziej oszczędnego źródła ciepła w Twoim nowym domu - gruntowej pompy ciepła. Od dokumentacji, pozwoleń, po odwierty i instalację.

Geothermal Solutions
Dowiedz się więcej

Gotowe domy modułowe (113)

Zobacz wszystkie
Stan deweloperski nawet w 6 miesięcy Gwarancja stałej ceny
Zdjęcie 1 projektu Dom keramzytowy Atrakcyjna Stodoła wariant 2 HAK1000
Pow. użytkowa
98,47 m²
Pokoje
3
469 900 zł 4 772 zł/m²
Zdjęcie 1 projektu Dom prefabrykowany P.9 HPK1008
Pow. użytkowa
97,80 m²
Pokoje
4
545 800 zł 5 581 zł/m²
Zdjęcie 1 projektu Dom prefabrykowany Parterowy 100B HFX1010
Pow. użytkowa
100,01 m²
Pokoje
3
439 000 zł 4 390 zł/m²
Zdjęcie 1 projektu Dom prefabrykowany Parterowy 100E HFX1012
Pow. użytkowa
100,28 m²
Pokoje
4
439 000 zł 4 378 zł/m²
Zdjęcie 1 projektu ExtraBetonowy 3 HPK1019
Gotowy extraBetonowy 3
Dodano!
Dodano!
Pow. użytkowa
97,13 m²
Pokoje
3
491 826 zł 5 064 zł/m²
Zdjęcie 1 projektu Dom prefabrykowany Parterowy 100D HFX1011
Pow. użytkowa
100,44 m²
Pokoje
3
439 000 zł 4 371 zł/m²
Zdjęcie 1 projektu Dom prefabrykowany Piętrowy 95C HFX1020
Pow. użytkowa
96,20 m²
Pokoje
3
469 000 zł 4 875 zł/m²
Zdjęcie 1 projektu Dom prefabrykowany Piętrowy 95B HFX1019
Pow. użytkowa
96,20 m²
Pokoje
3
469 000 zł 4 875 zł/m²

Dodatki do projektu

Dodatki możesz zamówić w koszyku lub telefonicznie u naszego Doradcy.

Czym jest OZE (Odnawialne Źródło Energii)?

Ikona

Bestseller

Kosztorys

300 zł

Ikona

Bestseller

Dodatkowy egzemplarz projektu

500 zł

Ikona

Bestseller

Oze

Wentylacja mechaniczna z rekuperacją

500 zł

Ikona

Oze

Ogrzewanie kominkowe (DGP)

500 zł

Opis projektu domu
Anzio Termo

Budynek Anzio Termo jest wariantem popularnego projektu Anzio. W odróżnieniu od pierwotnej wersji projekt ma mniejszą powierzchnię. Projekt domu Anzio Termo to ciekawa propozycja dla osób posiadających średniej szerokości działkę. Dom charakteryzuje się prostą bryłą, więc będzie się dobrze prezentował niezależnie od otoczenia. Przeszklenia przewidziane w wykuszu nadadzą wnętrzu większej przestronności. W tym projekcie kalenica usytuowana jest równolegle do drogi, co jest istotne ze względu na wymagania określone w warunkach zabudowy. Dom został zaprojektowany do zabudowy wolnostojącej. Jest to również ciekawa propozycja dla osób szukających domu z dachem kopertowym, który należy do najsolidniejszych konstrukcji dachowych. Projekt Anzio Termo to dom parterowy, co jest z pewnością ogromnym plusem w przypadku osób starszych, niepełnosprawnych oraz małżeństw z małymi dziećmi. Warto zwrócić uwagę na przestronną część dzienną. W domu uwzględniono kuchnię otwartą, co jest nowoczesnym i praktycznym rozwiązaniem. Usytuowany w salonie kominek nie tylko świetnie się prezentuje, ale także zapewni przyjemne ciepło w chłodniejsze dni. W domu została uwzględniona wygodna łazienka oraz osobna ubikacja, co jest szczególnie przydatne przy większej liczbie domowników. Cztery komfortowe pokoje zaspokoją potrzeby 4-6 osobowej rodziny. Przestrzeń można wykorzystać także jako pokój dla gości lub gabinet. Doskonałym miejscem do wypoczynku jest zaprojektowany przy domu taras. Projekt został wykonany w technologii murowanej, dzięki czemu podczas upałów dom utrzymuje przyjemny chłód. W jego bryle widoczne są rozwiązania nawiązujące do stylu tradycyjnego, dzięki czemu idealnie wpisze się w dowolny krajobraz.
Czytaj więcej

Polecani producenci

Prefabrykowane konstrukcje dachowe

tło producenta

WIĄZAR POLSKA

Zobacz więcej

Sprawdź nową generację okien GREENVIEW

tło producenta

FAKRO

Sprawdź nową generację okien GREENVIEW

Styropian, tynki, farby, kleje

tło producenta

Termo Organika

Poznaj super jakość

Okna, drzwi, osłony przeciwsłoneczne

tło producenta

Aluprof

Sprawdź ofertę

Kompletne systemy rekuperacji

tło producenta

Alnor

Dowiedz się więcej

Sprawdź nowy system DACHRYNNA

tło producenta

Galeco

Sprawdź ofertę
Zobacz więcej

Społeczność projektu domu
Anzio Termo w budowie

Dołącz do społeczności osób, które budują ten dom lub są zainteresowane jego budową.

  • Oglądaj zdjęcia z budowy
  • Zadawaj pytania
  • Wymieniaj się doświadczeniami

Opinie o projekcie domu Anzio Termo

5

Na podstawie 1 recenzji

Wspaniały!
100%
Bardzo dobry
0%
Średni
0%
Słaby
0%
Bardzo słaby
0%

Wywiady mieszkańców domu Anzio Termo

Zdjęcie profilowe użytkownika szczurek800 szczurek800

Gdy zdecydowaliśmy się na budowę nowego domu chcieliśmy, aby wszystkie uwzględnione w nim pomieszczenia znajdowały się na jednej kondygnacji. Oprócz tego, od początku szukaliśmy budynku o niezbyt dużym metrażu do 100 m². Spośród propozycji domów parterowych jakie oglądaliśmy, finalnie wybraliśmy projekt domu Anzio Termo KRH1340. Nie dość, że spełniał powyższe wymagania, to dodatkowo jego wymiary idealnie pasowały do wielkości naszej działki.Jestem naprawdę zadowolona z przebiegu realizacji. Wszystko odbyło się płynnie i w naprawdę krótkim czasie. Postawienie budynku od podstaw do dachu zajęło fachowcom zaledwie 3 miesiące, zaś prace wykończeniowe trwały ok. 9 miesięcy. Tym samym do nowego domu mogliśmy wprowadzić się już po jednym roku od rozpoczęcia budowy, co uważam za duży sukces.Ściany wymurowaliśmy z gazobetonowych bloczków Solbet łączonych na klej. Strop wykonaliśmy w żelbetowej konstrukcji, zaś dach odeskowaliśmy, a następnie przykryliśmy blachodachówką. Uważam, że podany na stronie kosztorys dotyczący stanu surowego zamkniętego został dobrze oszacowany. Nam z łatwością udało się zmieścić w uwzględnionej kwocie. Uważam, że warto wziąć pod uwagę fakt, iż w różnych rejonach polski stawki za robociznę mogą być inne, ale myślę że mimo to można sugerować się kosztorysem. Obecnie jesteśmy w trakcie pierwszej zimy od zamieszkania, jednak już teraz mogę z całą pewnością stwierdzić że budynek jest bardzo ekonomiczny. Ogrzewamy w nim za pomocą pieca na paliwo stałe i od początku sezonu grzewczego (październik) do chwili obecnej (styczeń) zużyliśmy opał nabyty za kwotę 1000 zł, a w piecu palimy codziennie.Projekt domu Anzio Termo KRH1340 przewiduje sporych rozmiarów salon, jednak aby móc w pełni cieszyć się przestronnością wnętrza postanowiliśmy zrezygnować ze znajdującej się w nim ścianki. Dzięki temu zyskaliśmy dużą, otwartą przestrzeń części dziennej. Z racji zastosowanego przez nas systemu grzewczego potrzebowaliśmy zmienić funkcję niektórych pomieszczeń. Najmniejszą sypialnię przeznaczyliśmy na zrobienie łazienki, zaś jej pierwotny metraż zaadaptowaliśmy na kotłownię. Na oryginalnej powierzchni kotłowni mamy obecnie praktyczną spiżarkę i wejście na strych. Jeśli Inwestorzy projektu domu Anzio Termo KRH1340 również chcą ogrzewać dom paliwem stałym szczerze polecam powyższe modyfikacje. W takim przypadku świetnym pomysłem będzie także poszerzenie bryły domu od strony sypialni. Niestety dla nas było już na to za późno, jednak teraz z pewnością zdecydowałabym się na taką opcję. Dzięki temu łazienka, która teraz jest kotłownią zyskałaby na wymiarach, co o wiele lepiej sprawdzi się w przypadku dużego pieca węglowego.Wnętrze projektu domu parterowego Anzio Termo KRH1340 zostało funkcjonalnie przemyślane i tym samym w nowym domu dostrzegam same plusy. Mieszka się bardzo wygodnie i w całości spełnia on nasze oczekiwania. Jesteśmy 3-osobową rodziną, więc miejsca mamy naprawdę sporo. Po zmianach jakie wprowadziliśmy do projektu mamy obecnie trzy sypialnie i myślę, że nawet przy takiej liczbie pokoi, czwórce domowników będzie mieszkać się równie komfortowo. Pozdrawiam.

Zdjęcie profilowe użytkownika Tymbark12 Tymbark12

Wraz z żoną byliśmy zainteresowani budową niezbyt dużego domu o powierzchni użytkowej do 100 m². Dodatkowo nie chcieliśmy, aby w jego bryle znajdował się garaż i propozycje uwzględniające miejsce postojowe od razu odrzuciliśmy. Przy wyborze projektu istotna była również liczba pokoi. Jesteśmy 4-osobową rodziną i zależało nam, aby każde z dwójki naszych dzieci miało swój własny pokój. Projekt domu Anzio Termo KRH1340 spełniał wszystkie ustalone wcześniej kryteria i w całości bardzo nam się spodobał, dlatego ostatecznie zdecydowaliśmy się na jego realizację.Budowę zleciliśmy jednej, doświadczonej firmie, która kompleksowo zajęła się całą inwestycją. Wszystkie prace postępowały wyjątkowo sprawnie i finalnie udało się zakończyć je po naszej myśli. Pierwsze wykopy fundamentowe rozpoczęliśmy wiosną 2015 r., a na chwilę obecną (listopad 2017 r.) zostało nam jedynie kilka drobnych prac wykończeniowych. Nasza inwestycja trwała więc w sumie ok. 2,5 roku.Budynek został postawiony przy użyciu ceramicznych pustaków Porotherm. Zgodnie z zaleceniami zawartymi w projekcie Anzio Termo KRH1340 strop jest żelbetowy. Na dachu zastosowaliśmy blachodachówkę. Myślę, że architekt poprawnie oszacował koszty realizacji w stanie surowym zamkniętym - moim zdaniem, podana kwota jest realna i można się nią sugerować.Projekt domu Anzio Termo KRH1340 został przystosowany do ogrzewania gazowego, aczkolwiek my zdecydowaliśmy się na instalację pieca na paliwo stałe i tym samym musieliśmy wprowadzić w układzie pewne zmiany. Pierwotnie przewidziana kotłownia nie sprawdziłaby się przy dużym kotle na ekogroszek, dlatego postanowiliśmy wykonać ją kosztem najmniejszej sypialni. Oryginalny metraż pomieszczenia technicznego przeznaczyliśmy na zrobienie klatki schodowej. Był to dobry pomysł, a wymiary zrobionej z pokoju kotłowni są całkowicie wystarczające. Myślę jednak, że obecnie zdecydowałbym się na wykonanie osobnego, dodatkowego pomieszczenia gospodarczego obok domu lub w formie dobudówki, gdyż praca kotła słyszalna jest w pozostałych. Inne zmiany dotyczyły okien w salonie - narożne zlikwidowaliśmy, zaś tylne o standardowych wymiarach powiększyliśmy do długości tarasowego.Jestem zadowolony z wyboru projektu domu parterowego Anzio Termo KRH1340. Odpowiedniego dla nas projektu szukaliśmy naprawdę długo, więc decyzja o jego realizacji była bardzo dokładnie przemyślana. Układ pomieszczeń jest funkcjonalny i dostrzegam w nim same plusy. Dom jest dosyć niewielki i tym samym jego budowa nie pochłania wielu kosztów - jednocześnie metraż jest w pełni wystarczający dla naszej 4-osobowej rodziny. Wszystko jest dokładnie tak jak chcieliśmy od samego początku, a projekt Anzio Termo KRH1340 mogę szczerze polecić innym Inwestorom. Pozdrawiam.

ASYSTENT WYBORU PROJEKTU

Szukasz idealnego projektu? Znajdziemy go dla Ciebie!

Doradca na podstawie Twoich wskazówek przygotuje spersonalizowaną listę projektów

Graficzne opracowanie rzutów poglądowych widocznych na karcie projektu zostało wykonane przez Extradom.pl. Prezentowane przez Extradom.pl wizualizacje wykonane zostały przez autora projektu i należy poczytywać je jedynie za przykład i propozycję wykończenia, wizję architektoniczną autora projektu. Ostateczne wykończenie budynku może nastąpić na wiele sposobów. Szczegółowe rozwiązania zastosowane w oferowanej dokumentacji - w tym również ilość, lokalizacje i wygląd okien, drzwi, kominów - mogą w niewielkim stopniu różnić się od prezentowanej wizualizacji budynku.

Extradom.pl Spółka z ograniczoną odpowiedzialnością z siedzibą przy ul. Jaworskiej 13, 53-612 Wrocław, wpisana do rejestru przedsiębiorców Krajowego Rejestru Sądowego przez Sąd Rejonowy dla Wrocławia-Fabrycznej we Wrocławiu, VI Wydział Gospodarczy Krajowego Rejestru Sądowego do pod numerem KRS 0000648746, numer NIP 895-17-18-333, o kapitale zakładowym 708 150,00 zł uprzejmie informuje, iż poprzez serwis Extradom.pl umożliwia m.in. zapoznanie się przez konsumentów z ofertą handlową Partnerów Extradom.pl, którzy stosują metody budowy domów przy wykorzystaniu różnego rodzaju technologie prefabrykacji bądź modułowe (tzw. „Gotowe domy”).

Extradom.pl nie prowadzi jednakże sprzedaży ani nie oferuje usług polegających na doradztwie finansowym, prawnym ani podatkowym w zakresie inwestycji realizowanych w technologiach tzw. „Gotowych domów”. Informacje prezentowane w serwisie Extradom.pl dotyczące Partnerów Extradom.pl oferujących realizację inwestycji w technologiach „Gotowych domów” lub podobnych mają charakter informacyjny i reklamowy.

Prezentowane w serwisie Extradom.pl informacje dotyczące stosowanych przez Partnerów metod budowy domów w technologii prefabrykacji bądź modułowej pochodzą od Partnerów Extradom.pl.

Extradom.pl sp. z o.o. jedynie umożliwia nawiązanie kontaktu przez Użytkownika z Partnerem Extradom.pl stosującym tego rodzaju technologie budowy domów i nie jest stroną umowy o roboty budowlane zawieranej przez Użytkownika Extradom.pl z Partnerem Extradom.pl.

REKLAMA
Zamknij