Projekty nawet 500 zł taniej ❄️

Koniec oferty za:

00godz.

00min.

00sek.

Sprawdź

Projekt domu Anastazja WAL1017

Dodano!
Dodano!

Warstwy

Warstwy

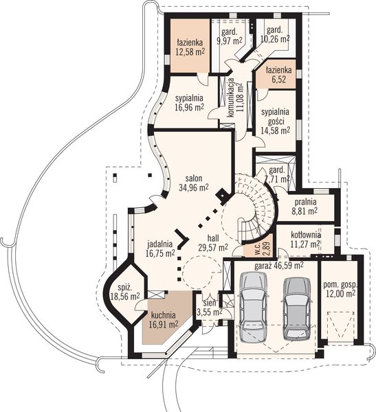
Rzut parteru

Powierzchnia (m²)
Tooltip
Powierzchnia pomieszczenia
to ta, z której faktycznie możesz korzystać – skosy i niskie części poddasza są liczone częściowo lub wcale.
  1. 100% dla wysokości powyżej 2,2 m,
  2. 50% dla wysokości 1,4–2,2 m,
  3. nie liczymy poniżej 1,4 m.

Powierzchnia podłogi
Liczymy po obrysie pomieszczenia, bez względu na jego wysokość/skosy. Jeśli nie ma skosów to powierzchnia podłogi i pomieszczenia jest taka sama.
pomieszczenia i podłogi
podłogi
1. Wiatrołap
3,55
2. Hall
29,57
3. Garaż dwustanowiskowy
46,59
4. Pomieszczenie gospodarcze
12
5. Kotłownia
11,27
6. Wc
2,89
7. Pomieszczenie gospodarcze
8,81
8. Garderoba
7,71
9. Pokój
14,58
10. Łazienka
6,52
11. Garderoba
10,26
12. Garderoba
9,97
13. Łazienka
12,58
14. Pokój
16,96
15. Korytarz
11,08
16. Pokój dzienny
34,96
17. Jadalnia
16,75
18. Spiżarnia
18,56
19. Kuchnia
16,91
Razem
291,52
291,52
Powierzchnia (m²)
Tooltip
Powierzchnia pomieszczenia
to ta, z której faktycznie możesz korzystać – skosy i niskie części poddasza są liczone częściowo lub wcale.
  1. 100% dla wysokości powyżej 2,2 m,
  2. 50% dla wysokości 1,4–2,2 m,
  3. nie liczymy poniżej 1,4 m.

Powierzchnia podłogi
Liczymy po obrysie pomieszczenia, bez względu na jego wysokość/skosy. Jeśli nie ma skosów to powierzchnia podłogi i pomieszczenia jest taka sama.
pomieszczenia i podłogi
podłogi
1. Korytarz
20,07
2. Łazienka
14,23
3. Sauna
3,40
4. Garderoba
5. Pokój
16,90
6. Pokój
21,58
7. Garderoba
9,99
8. Pokój
18,66
9. Pokój
15,78
10. Pokój
19,65
Razem
140,26
140,26

    Usytuowanie na działce

    Czy ten projekt pasuje na
    Twoją działkę?

    Chętnie to sprawdzimy!

    Dowiedz się:

    • czy zmieści się na niej wybrany przez Ciebie dom
    • jakie parametry musi spełniać dom według miejscowego planu zagospodarowania lub warunków zabudowy (np. kąt nachylenia i typ dachu, liczba kondygnacji itp.
    • jakie inne projekty pasują na Twoją działkę – znajdziemy je dla Ciebie!

Pow. użytkowa

351 m²

Pokoje

7

Łazienki i WC

4

Garaż

2

Min. szer. i dł. działki

28 x 34,50 m

Kąt dachu

30°

Konstrukcja

Murowana
więcej

Anastazja - WAL1017

ikona 351 m²
Powierzchnia użytkowa
ikona7
Pokoje (bez salonu)
ikona 4
Łazienki (z toaletami)
ikona 2
Liczba stanowisk garażowych
(z wiatą garażową)
ikona
Konstrukcja: Murowana

Projekt został
wycofany z oferty

W razie pytań prosimy o kontakt
z Centrum Obsługi Klienta
Konsultant Masz pytania?
Zadzwoń
71 715 20 60

pon.-pt. 8-21, sob. 9-17

Parter - 291,52 m²

Parter projektu Anastazja

Zapytaj, co możesz zmienić

Powierzchnia (m²)
Tooltip
Powierzchnia pomieszczenia
to ta, z której faktycznie możesz korzystać – skosy i niskie części poddasza są liczone częściowo lub wcale.
  1. 100% dla wysokości powyżej 2,2 m,
  2. 50% dla wysokości 1,4–2,2 m,
  3. nie liczymy poniżej 1,4 m.

Powierzchnia podłogi
Liczymy po obrysie pomieszczenia, bez względu na jego wysokość/skosy. Jeśli nie ma skosów to powierzchnia podłogi i pomieszczenia jest taka sama.
pomieszczenia i podłogi
podłogi
1. Wiatrołap
3,55
2. Hall
29,57
3. Garaż dwustanowiskowy
46,59
4. Pomieszczenie gospodarcze
12
5. Kotłownia
11,27
6. Wc
2,89
7. Pomieszczenie gospodarcze
8,81
8. Garderoba
7,71
9. Pokój
14,58
10. Łazienka
6,52
11. Garderoba
10,26
12. Garderoba
9,97
13. Łazienka
12,58
14. Pokój
16,96
15. Korytarz
11,08
16. Pokój dzienny
34,96
17. Jadalnia
16,75
18. Spiżarnia
18,56
19. Kuchnia
16,91
Razem
291,52
291,52

Poddasze - 140,26 m²

Poddasze projektu Anastazja

Zapytaj, co możesz zmienić

Powierzchnia (m²)
Tooltip
Powierzchnia pomieszczenia
to ta, z której faktycznie możesz korzystać – skosy i niskie części poddasza są liczone częściowo lub wcale.
  1. 100% dla wysokości powyżej 2,2 m,
  2. 50% dla wysokości 1,4–2,2 m,
  3. nie liczymy poniżej 1,4 m.

Powierzchnia podłogi
Liczymy po obrysie pomieszczenia, bez względu na jego wysokość/skosy. Jeśli nie ma skosów to powierzchnia podłogi i pomieszczenia jest taka sama.
pomieszczenia i podłogi
podłogi
1. Korytarz
20,07
2. Łazienka
14,23
3. Sauna
3,40
4. Garderoba
5. Pokój
16,90
6. Pokój
21,58
7. Garderoba
9,99
8. Pokój
18,66
9. Pokój
15,78
10. Pokój
19,65
Razem
140,26
140,26

Podobne projekty (720)

Zobacz wszystkie
NIŻSZA CENA❄️
Nowość
Zdjęcie 1 projektu N-243 PZB1097
N-243
Dodano!
Dodano!
388,30 m²
5
5
3

13 110 zł

13 800 zł

Tooltip

Cena regularna

13 800 zł najniższa cena
Tooltip

Najniższa cena z 30 dni
przed obniżką

Zdjęcie 1 projektu Dom Elara POZ1015
Dom Elara
Dodano!
Dodano!
246,87 m²
2
2
1

29 990 zł

Zdjęcie 1 projektu Dom Archis POZ1000
Dom Archis
Dodano!
Dodano!
390,80 m²
5
3
2

29 900 zł

Zdjęcie 1 projektu Dom Forma POZ1002
Dom Forma
Dodano!
Dodano!
282,63 m²
5
3
2

28 700 zł

Zdjęcie 1 projektu Dom Harmonia POZ1003
Dom Harmonia
Dodano!
Dodano!
321,17 m²
4
3
3

27 500 zł

NIŻSZA CENA❄️
Zdjęcie 1 projektu Willa moderna 2 WAH2026
Willa moderna 2
Dodano!
Dodano!
381,98 m²
5
4
2

13 560 zł

16 950 zł

Tooltip

Cena regularna

12 712 zł najniższa cena
Tooltip

Najniższa cena z 30 dni
przed obniżką

NIŻSZA CENA❄️
Zdjęcie 1 projektu Willa Floryda 5 WAH2000
Willa Floryda 5
Dodano!
Dodano!
347,89 m²
5
3
3

14 360 zł

17 950 zł

Tooltip

Cena regularna

13 462 zł najniższa cena
Tooltip

Najniższa cena z 30 dni
przed obniżką

NIŻSZA CENA❄️
Zdjęcie 1 projektu Villa Nova WAH1365
Villa Nova
Dodano!
Dodano!
374,23 m²
7
3
2

14 392 zł

17 990 zł

Tooltip

Cena regularna

13 493 zł najniższa cena
Tooltip

Najniższa cena z 30 dni
przed obniżką

Elewacje

Frontowa
Tylna
Lewa
Prawa

Usytuowanie na działce

Czy ten projekt pasuje na
Twoją działkę?

Chętnie to sprawdzimy!

Czy ten projekt pasuje na
Twoją działkę?

Chętnie to sprawdzimy!

Dowiedz się:

  • czy zmieści się na niej wybrany przez Ciebie dom
  • jakie parametry musi spełniać dom według miejscowego planu zagospodarowania lub warunków zabudowy (np. kąt nachylenia i typ dachu, liczba kondygnacji itp.
  • jakie inne projekty pasują na Twoją działkę – znajdziemy je dla Ciebie!
Autor: Villanette Autorska Pracownia Architektury Dagmary Obłuskiej

Dane techniczne projektu

Powierzchnie i wymiary Powierzchnie i wymiary

Powierzchnia użytkowa
Tooltip
Suma powierzchni wszystkich pomieszczeń mieszkalnych, pomniejszona o pow. garażu, kotłowni, strychu, piwnicy. Jest liczona w 100% dla pomieszczeń o wysokości powyżej 2,2 m, w 50% dla pomieszczeń o wys. 2,2-1,4 m i niewliczana dla niższych niż 1,4 m.

351 m²

Powierzchnia zabudowy
Tooltip
Powierzchnia zajmowana przez część na- oraz nadziemną budynku liczona, jako rzut pionowy budynku na działkę.

365,67 m²

Kąt nachylenia dachu
Tooltip
Nachylenie połaci dachu głównego podawane w stopniach. Uwaga! W niektórych projektach występuje więcej niż jedno nachylenie dachu.

30°

Wysokość budynku
Tooltip
Wysokość liczona od części budynku położonej najniżej przy powierzchni terenu do najwyższego punktu dachu (kalenicy) z wyłączeniem kominów.

8,48 m

Min. szerokość działki
Tooltip
Najmniejsza możliwa szerokość działki niezbędna do wybudowania wybranego domu. Składa się z szerokości elewacji domu powiększonej z obu stron o 3 m dla ściany bez otworów drzwiowych/okiennych lub 4 m, dla ściany z otworami.

28 m

Min. długość działki
Tooltip
Najmniejsza możliwa długość działki niezbędna do wybudowania wybranego domu. Składa się z długości elewacji domu powiększonej z obu stron o 3 m dla ściany bez otworów drzwiowych/okiennych lub 4 m, dla ściany z otworami.

34,50 m

Energooszczędność Energooszczędność

Oze Czym jest OZE (Odnawialne Źródło Energii)?
Warunki techniczne

Projekt zgody z WT 2021

Technologia i konstrukcja Technologia i konstrukcja

Konstrukcja

Murowana

Opis szczegółowy

Ściany: wewnętrzne: warstwowe, zewnętrzne: warstwowe. Strop: żelbetowy. Pokrycie dachu: dachówka ceramiczna. Elewacje: tynk + płytki klinkierowe lub klinkier.

Strop

Żelbetowy

Reklama
Okna i drzwi tarasowe

Nowoczesne okna PVC i aluminiowe WIŚNIOWSKI – doskonała izolacja, elegancki design i niezrównana trwałość.

Wiśniowski
Sprawdź parametry!
Okna dachowe

Oferujemy bezpłatne konsultacje w zakresie wszystkich rozwiązań VELUX. Wyceny, porady dotyczące doboru okien i rolet zewnętrznych - sprawdź!

Velux
Sprawdź szczegóły
Płytki ceramiczne i gresy

Od małych formatów po wielkoformatowe gresy. Marmur, beton, drewno, kamień, lastryko czy cegiełki zamówisz wygodnie online z szybką dostawą.

Ceramzet
Sprawdź ofertę
Drzwi

Ciepłe drzwi WIŚNIOWSKI z kontrolą dostępu. Szeroka gama wzorów i kolorów.

Wiśniowski
Wybierz najlepsze
Bramy garażowe

Automatyczne bramy garażowe segmentowe i uchylne WIŚNIOWSKI na wymiar i z systemem smart home w standardzie.

Wiśniowski
Sprawdź ofertę!
Armatura i ceramika łazienkowa

Topowi producenci. Baterie łazienkowe, zestawy natynkowe i podtynkowe, umywalki, wanny, miski WC oraz kabiny zamówisz kompleksowo online.

Ceramzet II
Dowiedz się więcej
Rekuperacja

Alnor - kompletny system rekuperacji. Dobierz idealne rozwiązanie dla Twojego domu!

Alnor
Dobierz rekuperator
Gruntowe pompy ciepła

Przeprowadzimy kompletną instalację najbardziej oszczędnego źródła ciepła w Twoim nowym domu - gruntowej pompy ciepła. Od dokumentacji, pozwoleń, po odwierty i instalację.

Geothermal Solutions
Dowiedz się więcej

Gotowe domy modułowe (114)

Zobacz wszystkie
Stan deweloperski nawet w 6 miesięcy Gwarancja stałej ceny
Zdjęcie 1 projektu Dom prefabrykowany P.11 bliźniak HPK1016
Pow. użytkowa
245,76 m²
Pokoje
3
1 362 600 zł 5 544 zł/m²
Zdjęcie 1 projektu Dom prefabrykowany P.12 z okapem HPK1021
Pow. użytkowa
190,98 m²
Pokoje
5
887 600 zł 4 648 zł/m²
Zdjęcie 1 projektu Dom prefabrykowany P.12 bez okapu HPK1020
Pow. użytkowa
190,98 m²
Pokoje
5
858 100 zł 4 493 zł/m²
Zdjęcie 1 projektu Dom prefabrykowany Stodoła 180C HFX1029
Pow. użytkowa
186,60 m²
Pokoje
5
659 000 zł 3 532 zł/m²
Zdjęcie 1 projektu Dom prefabrykowany Stodoła 180A HFX1027
Pow. użytkowa
186,60 m²
Pokoje
5
659 000 zł 3 532 zł/m²
Zdjęcie 1 projektu Dom prefabrykowany Stodoła 180B HFX1028
Pow. użytkowa
185,90 m²
Pokoje
5
659 000 zł 3 545 zł/m²
Zdjęcie 1 projektu Dom prefabrykowany P.6 HPK1005
Pow. użytkowa
176,69 m²
Pokoje
4
916 600 zł 5 188 zł/m²
Zdjęcie 1 projektu Dom szkieletowy Viking Smart 220 HHT1032
Pow. użytkowa
163,86 m²
Pokoje
4
1 095 606 zł 6 686 zł/m²

Opis projektu domu
Anastazja

Anastazja to wyjątkowy projekt oryginalnej i reprezentacyjnej willi. Dedykowany jest Inwestorom ceniących nieszablonowe i efektowne rozwiązania, zarówno w kwestii zewnętrznego wyglądu jak i wewnętrznej architektury. Projekt charakteryzuje się obszernym i niesamowicie przestronnym metrażem, w którym autor uwzględnił wiele ciekawych i jednocześnie funkcjonalnych rozwiązań. Budynek niewątpliwie wyróżnia się na tle innych. Wzrok przyciąga między innymi bryła o ciekawej formie czy okna o zróżnicowanych kształtach i wymiarach. Głównym elementem definiującym atrakcyjny wygląd domu jest niewątpliwie nietuzinkowy, artystyczny dach zachwycający różnorodnością skosów i spadów. Widowiskowy charakter nadają zadaszeniu ozdobne wole oka o nad wyraz dużych wymiarach, które doskonale oświetlają przynależące im pokoje. W bryle znajduje się dwustanowiskowy garaż, co jest wyjątkowo istotne dla zmotoryzowanych domowników. Reprezentacyjny charakter willi widoczny jest nie tylko na zewnątrz, ale również we wnętrzu. W centralnej części domu znajdują się efektowne, zakręcane schody typowe dla rezydencji. Parter obejmuje obszerną część dzienną z wieloma oknami, które integrują je z ogrodem. Oprócz tego, na dole znajdziemy część gospodarczą oraz strefę sypialnianą składającą się z dwóch pokoi, łazienek oraz garderób. Takie rozwiązanie doskonale sprawdzi się w przypadku rodzin wielopokoleniowych, chęci przenocowania gości oraz częstych przyjazdów rodzinnych. Jest to również świetne rozwiązanie, jeśli rodzice chcieliby część małżeńska oraz pokoje dzieci były podzielone poprzez rozdzielenie je na dwie kondygnacje. Na górze oprócz części prywatnej w postaci sypialni i garderób, znajdziemy strefę rekreacyjną W łazience przewidziano wykonanie sauny, będącej idealnym miejscem relaksu. Siłownia pomoże zadbać o formę w zaciszu własnego domu, zaś sferę intelektualną wesprze znajdująca się naprzeciwko biblioteka. Pokój telewizyjny z przeznaczeniem na wykonanie kina domowego sprzyja wspólnym chwilom przy seansach filmowych. W projekcie Anastazja nie zabrakło również typowo praktycznych pomieszczeń jak spiżarka, pralnia czy schowek na rowery i sprzęty ogrodowe. Budynek najlepiej sprawdzi się na działkach z wjazdem od południa oraz strony wschodniej.
Czytaj więcej

Polecani producenci

Prefabrykowane konstrukcje dachowe

tło producenta

WIĄZAR POLSKA

Zobacz więcej

Sprawdź nową generację okien GREENVIEW

tło producenta

FAKRO

Sprawdź nową generację okien GREENVIEW

Styropian, tynki, farby, kleje

tło producenta

Termo Organika

Poznaj super jakość

Okna, drzwi, osłony przeciwsłoneczne

tło producenta

Aluprof

Sprawdź ofertę

Kompletne systemy rekuperacji

tło producenta

Alnor

Dowiedz się więcej

Sprawdź nowy system DACHRYNNA

tło producenta

Galeco

Sprawdź ofertę
Zobacz więcej

Społeczność projektu domu
Anastazja w budowie

Dołącz do społeczności osób, które budują ten dom lub są zainteresowane jego budową.

  • Oglądaj zdjęcia z budowy
  • Zadawaj pytania
  • Wymieniaj się doświadczeniami

Opinie o projekcie domu Anastazja

Ocena

Ten projekt nie ma jeszcze opinii, bądź pierwszy!

Dodaj opinię

ASYSTENT WYBORU PROJEKTU

Szukasz idealnego projektu? Znajdziemy go dla Ciebie!

Doradca na podstawie Twoich wskazówek przygotuje spersonalizowaną listę projektów

Graficzne opracowanie rzutów poglądowych widocznych na karcie projektu zostało wykonane przez Extradom.pl. Prezentowane przez Extradom.pl wizualizacje wykonane zostały przez autora projektu i należy poczytywać je jedynie za przykład i propozycję wykończenia, wizję architektoniczną autora projektu. Ostateczne wykończenie budynku może nastąpić na wiele sposobów. Szczegółowe rozwiązania zastosowane w oferowanej dokumentacji - w tym również ilość, lokalizacje i wygląd okien, drzwi, kominów - mogą w niewielkim stopniu różnić się od prezentowanej wizualizacji budynku.

REKLAMA
Zamknij