👉 Projekty w extracenach! ✂️

Koniec oferty za:

00godz.

00min.

00sek.

Sprawdź

Projekt domu Amanda WAH1205

Dodano!
Dodano!

Warstwy

Warstwy

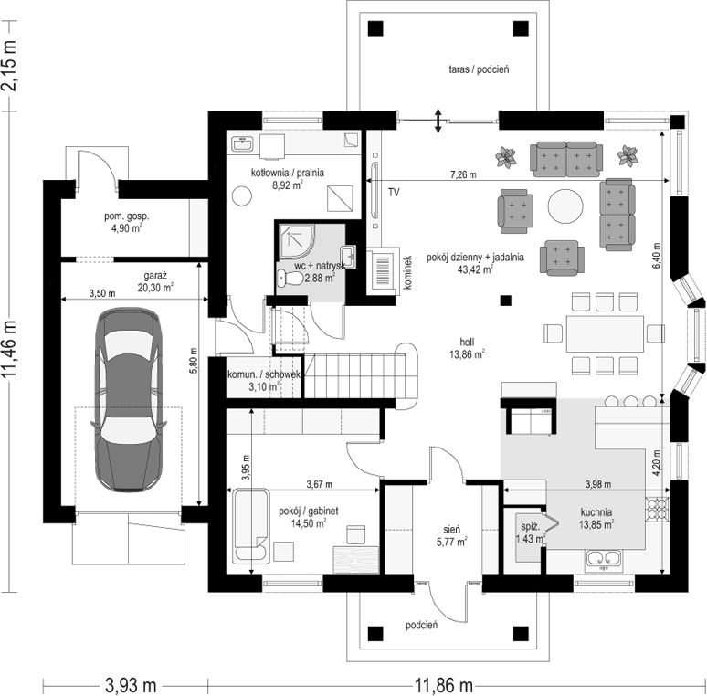
Rzut parteru

Powierzchnia (m²)
Tooltip
Powierzchnia pomieszczenia
to ta, z której faktycznie możesz korzystać – skosy i niskie części poddasza są liczone częściowo lub wcale.
  1. 100% dla wysokości powyżej 2,2 m,
  2. 50% dla wysokości 1,4–2,2 m,
  3. nie liczymy poniżej 1,4 m.

Powierzchnia podłogi
Liczymy po obrysie pomieszczenia, bez względu na jego wysokość/skosy. Jeśli nie ma skosów to powierzchnia podłogi i pomieszczenia jest taka sama.
pomieszczenia i podłogi
podłogi
1. Wiatrołap
5,77
2. Hall
13,86
3. Spiżarnia
1,43
4. Kuchnia
13,85
5. Pokój dzienny + jadalnia
43,42
6. Kotłownia
8,92
7. Łazienka
2,88
8. Korytarz
3,10
9. Pokój
14,50
10. Pomieszczenie gospodarcze
4,90
11. Garaż jednostanowiskowy
20,30
Razem
132,93
132,93
Powierzchnia (m²)
Tooltip
Powierzchnia pomieszczenia
to ta, z której faktycznie możesz korzystać – skosy i niskie części poddasza są liczone częściowo lub wcale.
  1. 100% dla wysokości powyżej 2,2 m,
  2. 50% dla wysokości 1,4–2,2 m,
  3. nie liczymy poniżej 1,4 m.

Powierzchnia podłogi
Liczymy po obrysie pomieszczenia, bez względu na jego wysokość/skosy. Jeśli nie ma skosów to powierzchnia podłogi i pomieszczenia jest taka sama.
pomieszczenia
podłogi
1. Łazienka
8,59
11,19
2. Pomieszczenie gospodarcze
0,88
0,88
3. Pokój
17,77
17,77
4. Garderoba
7,25
10,43
5. Łazienka
6,54
8,34
6. Hall
8,36
8,36
7. Pokój
17,49
20,66
8. Pokój
18
20,66
9. Strych
12,09
25,62
Razem
96,97
123,91

    Usytuowanie na działce

    Czy ten projekt pasuje na
    Twoją działkę?

    Chętnie to sprawdzimy!

    Dowiedz się:

    • czy zmieści się na niej wybrany przez Ciebie dom
    • jakie parametry musi spełniać dom według miejscowego planu zagospodarowania lub warunków zabudowy (np. kąt nachylenia i typ dachu, liczba kondygnacji itp.
    • jakie inne projekty pasują na Twoją działkę – znajdziemy je dla Ciebie!

Pow. użytkowa

176,42 m²

Pokoje

4

Łazienki i WC

3

Garaż

1

Min. szer. i dł. działki

22,79 x 20,76 m

Kąt dachu

38°

Szacunkowy koszt SSZ

442 000 zł
Szacunkowy koszt budowy do stanu surowego zamkniętego (SSZ) metodą gospodarczą - większość prac wykonuje inwestor.

Konstrukcja

Murowana
więcej

Amanda - WAH1205

ikona 176,42 m²
Powierzchnia użytkowa
ikona4
Pokoje (bez salonu)
ikona 3
Łazienki (z toaletami)
ikona 1
Liczba stanowisk garażowych
(z wiatą garażową)
ikona
Konstrukcja: Murowana

Promocja od 03.02.2026, koniec za:

0 dni

00 00 00

5 256 zł

Tooltip

Cena regularna obowiązywała od 01.02.2026 do 02.02.2026

Cena regularna: 6 570 zł
Najniższa cena z 30 dni przed obniżką: 5 016 zł
Gwarancja najniższej ceny Gwarancja najniższej ceny Tooltip

Projekt jest dostępny Tooltip

GRATIS 16% rabatu w SELSEY

GRATIS 10% rabatu do LEROY MERLIN

GRATIS Przydatne Extradodatki

GRATIS Poradnik Dach Solarny

100 dni na wymianę, 30 dni na zwrot

Darmowa dostawa - kurier, paczkomaty

Bezpłatne pozwolenie na zmiany

Dokumentacja zgodna z WT2021

Pokaż więcej (6)
Konsultant Masz pytania?
Zadzwoń
71 715 20 60

pon.-pt. 8-21, sob. 9-17

Szukasz wykonawcy godnego zaufania?
Zleć budowę w Extradom.pl!

  • Z góry znasz koszt budowy domu
  • Dom odbierasz zgodnie z ustalonym harmonogramem - nawet w 6 miesięcy
  • Zabezpiecza Cię jedna kompleksowa umowa z jednym wykonawcą
  • Otrzymujesz nawet 30-letnią gwarancję na konstrukcję domu
  • Oszczędzasz swój czas dzięki pewnej i kompletnej usłudze
Cena brutto stanu
deweloperskiego od
Tooltip
Cena brutto stanu deweloperskiego od 4 419 do 5 579 zł/m2.
Cena jest uzależniona m.in. od lokalizacji, wybranej technologii, kubatury budynku, skomplikowania projektu i ewentualnych zmian, na które zdecyduje się inwestor.
Cena za m2 powierzchni netto, czyli wszystkich pomieszczeń mierzonych na wysokości podłogi.
4 419 zł/m2
Dowiedz się więcej
Konsultant Masz pytania?
Zadzwoń
71 715 20 70

pon.-pt. 8-19

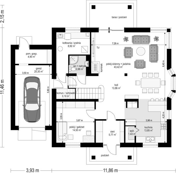
Parter - 132,93 m²

Parter projektu Amanda

Zapytaj, co możesz zmienić

Powierzchnia (m²)
Tooltip
Powierzchnia pomieszczenia
to ta, z której faktycznie możesz korzystać – skosy i niskie części poddasza są liczone częściowo lub wcale.
  1. 100% dla wysokości powyżej 2,2 m,
  2. 50% dla wysokości 1,4–2,2 m,
  3. nie liczymy poniżej 1,4 m.

Powierzchnia podłogi
Liczymy po obrysie pomieszczenia, bez względu na jego wysokość/skosy. Jeśli nie ma skosów to powierzchnia podłogi i pomieszczenia jest taka sama.
pomieszczenia i podłogi
podłogi
1. Wiatrołap
5,77
2. Hall
13,86
3. Spiżarnia
1,43
4. Kuchnia
13,85
5. Pokój dzienny + jadalnia
43,42
6. Kotłownia
8,92
7. Łazienka
2,88
8. Korytarz
3,10
9. Pokój
14,50
10. Pomieszczenie gospodarcze
4,90
11. Garaż jednostanowiskowy
20,30
Razem
132,93
132,93

Natychmiast, otrzymasz PDF-y
z rzutami wszystkich kondygnacji

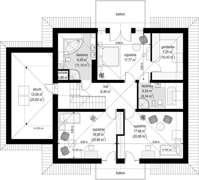
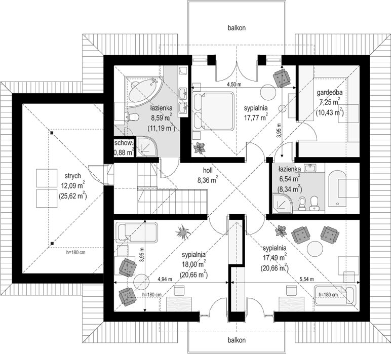
Poddasze - 96,97 m²

Poddasze projektu Amanda

Zapytaj, co możesz zmienić

Powierzchnia (m²)
Tooltip
Powierzchnia pomieszczenia
to ta, z której faktycznie możesz korzystać – skosy i niskie części poddasza są liczone częściowo lub wcale.
  1. 100% dla wysokości powyżej 2,2 m,
  2. 50% dla wysokości 1,4–2,2 m,
  3. nie liczymy poniżej 1,4 m.

Powierzchnia podłogi
Liczymy po obrysie pomieszczenia, bez względu na jego wysokość/skosy. Jeśli nie ma skosów to powierzchnia podłogi i pomieszczenia jest taka sama.
pomieszczenia
podłogi
1. Łazienka
8,59
11,19
2. Pomieszczenie gospodarcze
0,88
0,88
3. Pokój
17,77
17,77
4. Garderoba
7,25
10,43
5. Łazienka
6,54
8,34
6. Hall
8,36
8,36
7. Pokój
17,49
20,66
8. Pokój
18
20,66
9. Strych
12,09
25,62
Razem
96,97
123,91

Natychmiast, otrzymasz PDF-y
z rzutami wszystkich kondygnacji

Zamów rysunki szczegółowe

Zapoznaj się ze szczegółowymi rysunkami rzutów kondygnacji w PDF dla tego projektu.

Warianty projektu (2)

PROMOCJA
Projekt domu Amanda wariant B
Amanda wariant B
Dodano!
Dodano!
192,89 m²
4
3
2

5 472 zł

6 840 zł

Tooltip

Cena regularna

5 232 zł najniższa cena
Tooltip

Najniższa cena z 30 dni
przed obniżką

PROMOCJA
Projekt domu Amanda wariant C
Amanda wariant C
194,75 m²

5 472 zł

6 840 zł

Tooltip

Cena regularna

5 232 zł najniższa cena
Tooltip

Najniższa cena z 30 dni
przed obniżką

Podobne projekty (110)

Zobacz wszystkie
EXTRACENA
Zdjęcie 1 projektu Opałek X 2G BSB1143
Opałek X 2G
Dodano!
Dodano!
149,84 m²
4
3
2

5 320 zł

5 600 zł

Tooltip

Cena regularna

4 997 zł najniższa cena
Tooltip

Najniższa cena z 30 dni
przed obniżką

EXTRACENA
Zdjęcie 1 projektu APS 105 + P LUA1323
APS 105 + P
Dodano!
Dodano!
167,20 m²
4
3
1

5 149 zł

5 699 zł

Tooltip

Cena regularna

4 849 zł najniższa cena
Tooltip

Najniższa cena z 30 dni
przed obniżką

EXTRACENA
Zdjęcie 1 projektu Opałek X BSB1144
Opałek X
Dodano!
Dodano!
143,27 m²
4
3
1

5 035 zł

5 300 zł

Tooltip

Cena regularna

4 712 zł najniższa cena
Tooltip

Najniższa cena z 30 dni
przed obniżką

EXTRACENA
Zdjęcie 1 projektu BW-52 dwulokalowy JGC1176
BW-52 dwulokalowy
Dodano!
Dodano!
166,70 m²
4
3
0

4 730 zł

4 830 zł

Tooltip

Cena regularna

4 630 zł najniższa cena
Tooltip

Najniższa cena z 30 dni
przed obniżką

EXTRACENA
Zdjęcie 1 projektu APS 181 LUA1229
APS 181
Dodano!
Dodano!
161,90 m²
5
3
2

4 849 zł

5 399 zł

Tooltip

Cena regularna

4 549 zł najniższa cena
Tooltip

Najniższa cena z 30 dni
przed obniżką

EXTRACENA
Zdjęcie 1 projektu APS 179 LUA1220
APS 179
Dodano!
Dodano!
149,40 m²
4
2
1

4 649 zł

5 199 zł

Tooltip

Cena regularna

4 349 zł najniższa cena
Tooltip

Najniższa cena z 30 dni
przed obniżką

EXTRACENA
Zdjęcie 1 projektu Figa Lux (1796) KRD2914
Figa Lux (1796)
Dodano!
Dodano!
147,30 m²
5
3
1

4 740 zł

5 090 zł

Tooltip

Cena regularna

4 740 zł najniższa cena
Tooltip

Najniższa cena z 30 dni
przed obniżką

EXTRACENA
Zdjęcie 1 projektu APS 119 LUA1137
APS 119
Dodano!
Dodano!
161,40 m²
4
3
2

4 749 zł

5 299 zł

Tooltip

Cena regularna

4 449 zł najniższa cena
Tooltip

Najniższa cena z 30 dni
przed obniżką

Metody i koszt budowy

Ten dom możesz budować metodą gospodarczą, systemem zleconym lub skorzystać z naszej oferty Projekt z Budową. Przy porównaniu weź pod uwagę nie tylko koszt, ale też różny zakres prac i standard wykonania.

Metoda gospodarcza

Najtańsza metoda - większość prac
budowlanych wykonuje inwestor

Stan surowy zamknięty (SSZ)

442 000 zł netto

Szacunkowy koszt materiałów na IV kwartał 2025
  • Prace ziemne i fundamenty

    65 000 zł
  • Konstrukcja, strop oraz dach

    312 000 zł
  • Stolarka okienna i drzwiowa

    65 000 zł
  • Instalacje

    nie obejmuje
  • Prace wykończeniowe

    nie obejmuje
  • Możesz budować etapami, pamiętając jednak o zmianie kosztów w czasie
  • Możesz rozpocząć budowę z częścią niezbędnych środków
  • Sam ustalasz harmonogram, koordynujesz budowę i zapewniasz materiały
Czy da się obniżyć koszty budowy?
Zobacz nasz film jak obniżyć koszt budowy

Projekt z Budową

Najszybsza i najwygodniejsza metoda -
całą budowę domu realizuje jedna firma

Stan deweloperski
Gwarancja stałego kosztu budowy

Gwarancja stałego
kosztu budowy

  • Prace ziemne i fundamenty
  • Konstrukcja, strop oraz dach
  • Stolarka okienna i drzwiowa
  • Instalacje  
    Tooltip

    Obejmuje wykonanie instalacji:

    • wodno-kanalizacyjnej
    • centralnego ogrzewania
    • gazowej
    • elektrycznej
  • Prace wykończeniowe  
    Tooltip

    Prace wykończeniowe obejmują:

    • sufity i ściany wewnętrzne
    • tynki i okładziny ścian wewnętrznych
    • wylewki i posadzkę
    • ocieplenie ścian zewnętrznych i elewację

Budowa
nawet w
6mies.

  • Kompleksowa umowa i znany z góry koszt budowy
  • Logistyka, organizacja budowy i zakupy po stronie firmy budowlanej
  • Formalności i dokumentacje po stronie firmy budowlanej
  • Różne technologie budowy dopasowane do projektu i budżetu
Szczegóły i dostępne technologie
icon

Darmowe

Zestawienie materiałów budowlanych

icon

Polecamy

Kosztorys

Zawiera zestawienie wszystkich potrzebnych materiałów wraz z ich cenami, uwzględnia koszty sprzętu i transportu. Z kosztorysem:

  • poznasz całkowite koszty budowy
  • zaplanujesz prace na budowie
  • łatwiej ocenisz konkurencyjność ofert podwykonawców
  • otrzymasz dokument wymagany w procesie kredytowym

Elewacje

Frontowa
Tylna
Lewa
Prawa

Usytuowanie na działce

Czy ten projekt pasuje na
Twoją działkę?

Chętnie to sprawdzimy!

Czy ten projekt pasuje na
Twoją działkę?

Chętnie to sprawdzimy!

Dowiedz się:

  • czy zmieści się na niej wybrany przez Ciebie dom
  • jakie parametry musi spełniać dom według miejscowego planu zagospodarowania lub warunków zabudowy (np. kąt nachylenia i typ dachu, liczba kondygnacji itp.
  • jakie inne projekty pasują na Twoją działkę – znajdziemy je dla Ciebie!
Autor: MG Projekt

Dane techniczne projektu

Powierzchnie i wymiary Powierzchnie i wymiary

Powierzchnia użytkowa
Tooltip
Suma powierzchni wszystkich pomieszczeń mieszkalnych, pomniejszona o pow. garażu, kotłowni, strychu, piwnicy. Jest liczona w 100% dla pomieszczeń o wysokości powyżej 2,2 m, w 50% dla pomieszczeń o wys. 2,2-1,4 m i niewliczana dla niższych niż 1,4 m.

176,42 m²

Powierzchnia zabudowy
Tooltip
Powierzchnia zajmowana przez część na- oraz nadziemną budynku liczona, jako rzut pionowy budynku na działkę.

164,42 m²

Powierzchnia całkowita
Tooltip
Całkowita powierzchnia wszystkich kondygnacji budynku łącznie z elementami nośnymi, takimi jak ściany zewnętrzne (z ociepleniem), słupy, tarasy, itp.

283,37 m²

Kubatura brutto
Tooltip
Zazwyczaj jest to suma kubatur (objętości) wszystkich pomieszczeń budynku, liczonych po zewnętrznym obrysie murów (z ociepleniem).

938 m³

Powierzchnia dachu

261,70 m²

Kąt nachylenia dachu
Tooltip
Nachylenie połaci dachu głównego podawane w stopniach. Uwaga! W niektórych projektach występuje więcej niż jedno nachylenie dachu.

38°

Wysokość budynku
Tooltip
Wysokość liczona od części budynku położonej najniżej przy powierzchni terenu do najwyższego punktu dachu (kalenicy) z wyłączeniem kominów.

9,37 m

Szerokość elewacji

15,79 m

Długość elewacji

11,46 m

Min. szerokość działki
Tooltip
Najmniejsza możliwa szerokość działki niezbędna do wybudowania wybranego domu. Składa się z szerokości elewacji domu powiększonej z obu stron o 3 m dla ściany bez otworów drzwiowych/okiennych lub 4 m, dla ściany z otworami.

22,79 m

Min. długość działki
Tooltip
Najmniejsza możliwa długość działki niezbędna do wybudowania wybranego domu. Składa się z długości elewacji domu powiększonej z obu stron o 3 m dla ściany bez otworów drzwiowych/okiennych lub 4 m, dla ściany z otworami.

20,76 m

Energooszczędność Energooszczędność

Oze Czym jest OZE (Odnawialne Źródło Energii)?
Ep
Tooltip
Energia pierwotna określa ilość energii nieodnawialnej potrzebnej w ciągu roku do ogrzewania czy też ogrzania wody użytkowej z uwzględnieniem kosztów produkcji i transportu surowców energetycznych.

66,10 kWh/(m²rok)

Ek
Tooltip
Energia końcowa określa zapotrzebowanie budynku na energię niezbędną do uzyskania założonych parametrów, jak np. temperatura wewnątrz budynku.

25,20 kWh/(m²rok)

Euco
Tooltip
Energia użytkowa potrzebna do ogrzewania i wentylacji. Im parametr jest niższy tym budynek bardziej energooszczędny.

42,60 kWh/(m²rok)

Ogrzewanie główne

Gazowe - szczegóły

Dodatkowo istnieje możliwość zamówienia projektu z

Aneks na paliwo stałe

Powietrzna pompa ciepła

Gruntowa pompa ciepła

Interesuje Cię inne źródło ogrzewania? Wyślij zapytanie lub zadzwoń do doradcy

Wentylacja

Grawitacyjna - szczegóły

Warunki techniczne

Projekt zgody z WT 2021

Technologia i konstrukcja Technologia i konstrukcja

Konstrukcja

Murowana

PROJEKT Z BUDOWĄ Istnieje możliwość zaadaptowania tego projektu do technologii prefabrykowanej/modułowej i budowy nawet w 6 miesięcy ze stałym kosztem budowy

Dowiedz się więcej »
Opis szczegółowy

Fundamenty: betonowe ławy i ściany fundamentowe z bloczków betonowych lub płyta fundamentowa. Ściany zewnętrzne: ściany murowane - pustaki porotherm 25 + styropian + tynk. Strop: Teriva. Elewacje: tynk cienkowarstwowy na styropianie. Pokrycie dachu: dachówka. Nachylenie dachu: 38 stopni.

Strop

Gęstożebrowy

Reklama
Okna i drzwi tarasowe

Nowoczesne okna PVC i aluminiowe WIŚNIOWSKI – doskonała izolacja, elegancki design i niezrównana trwałość.

Wiśniowski
Sprawdź parametry!
Okna dachowe

Oferujemy bezpłatne konsultacje w zakresie wszystkich rozwiązań VELUX. Wyceny, porady dotyczące doboru okien i rolet zewnętrznych - sprawdź!

Velux
Sprawdź szczegóły
Płytki ceramiczne i gresy

Od małych formatów po wielkoformatowe gresy. Marmur, beton, drewno, kamień, lastryko czy cegiełki zamówisz wygodnie online z szybką dostawą.

Ceramzet
Sprawdź ofertę
Drzwi

Ciepłe drzwi WIŚNIOWSKI z kontrolą dostępu. Szeroka gama wzorów i kolorów.

Wiśniowski
Wybierz najlepsze
Bramy garażowe

Automatyczne bramy garażowe segmentowe i uchylne WIŚNIOWSKI na wymiar i z systemem smart home w standardzie.

Wiśniowski
Sprawdź ofertę!
Armatura i ceramika łazienkowa

Topowi producenci. Baterie łazienkowe, zestawy natynkowe i podtynkowe, umywalki, wanny, miski WC oraz kabiny zamówisz kompleksowo online.

Ceramzet II
Dowiedz się więcej
Rekuperacja

Alnor - kompletny system rekuperacji. Dobierz idealne rozwiązanie dla Twojego domu!

Alnor
Dobierz rekuperator
Dach

Producent stalowych pokryć dachowych i systemów elewacyjnych. Precyzja wykonania, trwałość na lata i szybki montaż doceniany przez dekarzy. Postaw na solidny dach Budmat.

Budmat
Sprawdź ofertę
Ogrodzenie

Nowoczesne stalowe ogrodzenia Budmat - estetyka, bezpieczeństwo i trwałość na lata. Systemowe rozwiązania na wymiar, dopasowane do każdego domu.

Budmat
Sprawdź ofertę

Gotowe domy modułowe (118)

Zobacz wszystkie
Stan deweloperski nawet w 6 miesięcy Gwarancja stałej ceny
Zdjęcie 1 projektu Dom prefabrykowany P.6 HPK1005
Pow. użytkowa
176,69 m²
Pokoje
4
916 600 zł 5 188 zł/m²
Zdjęcie 1 projektu Dom prefabrykowany Stodoła 180B HFX1028
Pow. użytkowa
185,90 m²
Pokoje
5
659 000 zł 3 545 zł/m²
Zdjęcie 1 projektu Dom prefabrykowany Stodoła 180C HFX1029
Pow. użytkowa
186,60 m²
Pokoje
5
659 000 zł 3 532 zł/m²
Zdjęcie 1 projektu Dom prefabrykowany Stodoła 180A HFX1027
Pow. użytkowa
186,60 m²
Pokoje
5
659 000 zł 3 532 zł/m²
Zdjęcie 1 projektu Dom szkieletowy Viking Smart 220 HHT1032
Pow. użytkowa
163,86 m²
Pokoje
4
1 095 606 zł 6 686 zł/m²
Zdjęcie 1 projektu Dom prefabrykowany DH174 HDH1009
Pow. użytkowa
162,97 m²
Pokoje
4
1 026 000 zł 5 796 zł/m²
Zdjęcie 1 projektu Dom prefabrykowany P.4 bez okapu HPK1003
Pow. użytkowa
162,18 m²
Pokoje
5
701 000 zł 4 322 zł/m²
Zdjęcie 1 projektu Dom prefabrykowany P.4 z okapem HPK1014
Pow. użytkowa
162,18 m²
Pokoje
5
710 500 zł 4 381 zł/m²

Dodatki do projektu

Dodatki możesz zamówić w koszyku lub telefonicznie u naszego Doradcy.

Czym jest OZE (Odnawialne Źródło Energii)?

Ikona

Bestseller

Kosztorys

600 zł

Ikona

Bestseller

Dodatkowy egzemplarz projektu

650 zł

Ikona

Bestseller

Elektroniczna wersja projektu

600 zł

Ikona

Ogrzewanie podłogowe

550 zł

Ikona

Oze

Aneks na paliwo stałe

550 zł

Ikona

Oze

Powietrzna pompa ciepła

550 zł

Pokaż więcej (8)

Opis projektu domu
Amanda

Projekt domu Amanda to ciekawa propozycja dla osób posiadających średniej szerokości działkę. Bryła budynku posiada formę prostą, co znacznie ułatwia późniejszą aranżację wnętrza. Przeszklenia przewidziane w wykuszu nadadzą wnętrzu większej przestronności. Dom został stworzony do zabudowy wolnostojącej. Posiada garaż jednostanowiskowy w linii budynku. Konstrukcja budynku zwieńczona jest dachem namiotowym, który charakteryzuje się dużą odpornością na działanie niesprzyjających warunków pogodowych. Projekt Amanda to dom parterowy z poddaszem użytkowym, co sprawia, że metraż powierzchni użytkowej nie jest ograniczony wielkością działki. Warto zwrócić uwagę na przestronną część dzienną. Otwarta kuchnia dodaje wnętrzu przestrzeni oraz znacznie ułatwia komunikację między domownikami. Dodatkowo przewidziano miejsce na wstawienie stołu, co sprzyja wspólnym rodzinnym posiłkom. Dodatkowo przydatnym pomieszczeniem jest pojemna spiżarka. Połączenie jadalni z salonem sprzyja integracji rodziny. Podczas odpoczynku, rodzice mogą zerkać na bawiące się lub odrabiające lekcje dzieci.Ciekawym elementem jest z pewnością usytuowany w salonie kominek, który nada wnętrzu niepowtarzalny klimat. Projekt uwzględnia jedną łazienkę na parterze i dwie na poddaszu. Strefa sypialniana składa się z czterech pokoi, co jest doskonałą opcją dla 4-6 osobowej rodziny. Przestrzeń można wykorzystać także jako pokój dla gości lub gabinet. W utrzymaniu porządku z pewnością pomoże nam przewidziane w projekcie pomieszczenie gospodarcze. Rodzinne spotkania w słonecznie dni uprzyjemni przewidziany przy domu taras. Budynek został zaprojektowany w technologii murowanej. Jego wygląd zewnętrzny uwydatnia cechy charakterystyczne dla stylu tradycyjnego, dzięki czemu idealnie wpisze się w dowolny krajobraz.
Czytaj więcej

Polecani producenci

Kompletne systemy rekuperacji

tło producenta

Alnor

Dowiedz się więcej

Prefabrykowane konstrukcje dachowe

tło producenta

WIĄZAR POLSKA

Zobacz więcej

Sprawdź nową generację okien GREENVIEW

tło producenta

FAKRO

Sprawdź nową generację okien GREENVIEW

Styropian, tynki, farby, kleje

tło producenta

Termo Organika

Poznaj super jakość

Okna, drzwi, osłony przeciwsłoneczne

tło producenta

Aluprof

Sprawdź ofertę
Zobacz więcej

Społeczność projektu domu
Amanda w budowie

Dołącz do społeczności osób, które budują ten dom lub są zainteresowane jego budową.

  • Oglądaj zdjęcia z budowy
  • Zadawaj pytania
  • Wymieniaj się doświadczeniami

Opinie o projekcie domu Amanda

5

Na podstawie 1 recenzji

Wspaniały!
100%
Bardzo dobry
0%
Średni
0%
Słaby
0%
Bardzo słaby
0%

Opinie niezweryfikowane zakupem

Dodaj opinię
Syl8316
05.01.2021 r.
Witam! Zaczynam budowę domu Amanda. Ile Was wyszedł koszt budowy w stanie surowym zamnkiętym. Z góry dzięki za odpowiedź

Wywiady mieszkańców domu Amanda

Zdjęcie profilowe użytkownika 005b000000335xC 005b000000335xC

Projekt domu Amanda WAH1205 w pełni odzwierciedlał nasze oczekiwania, jakie stawialiśmy innym projektom w trakcie poszukiwań. Przejrzeliśmy kilkadziesiąt pomysłów, każdy dokładnie analizując. Zdecydowaliśmy się na Amanda WAH1205 przede wszystkim z trzech powodów: odpowiedniej dla nas ilości pomieszczeń (i ich układu); ogromnej przestrzeni znajdującej się na parterze (kuchnia - zrezygnowaliśmy ze spiżarni, salon z jadalnią i hall - ich wspólna powierzchnia to aż 73m2) oraz wysokiej ścianki kolankowej, co przełożyło się na świetne zagospodarowanie poddasza. Mamy centralne gazowe ogrzewanie, które przekazuje ciepło, za pomocą podłogówki na dole i kaloryferów na poddaszu. Do tego dochodzi jeszcze zwykły kominek na drewno, z którego ciepło rozprowadzane jest grawitacyjnie w salonie oraz na poddaszu (co w zupełności wystarcza do ogrzania domu w okresach przejściowych). Koszty ogrzewania jak na taką kubaturę pozostają racjonalne (40% różnicy między kosztami zeszłej ostrej zimy, a kosztami łagodnej zimy tegorocznej). Moim zdaniem, nie potrzeba inwestować w rozwiązania typu pompa ciepła - wystarczy piec na ekogroszek czy gazówka, tak jak u nas. Jesteśmy czteroosobową rodziną. Uważam, że Amanda WAH1205 jako dom parterowy z użytkowym poddaszem jest świetnie przystosowany dla rodzin z małymi dziećmi. Duży wpływ na to ma bezbłędny układ pomieszczeń na poddaszu: trzy duże sypialnie zapewniają pełną swobodę nam i dzieciom, a bliskość ich położenia względem siebie daje możliwość szybkiej reakcji przy nocnych pobudkach maluchów (wprowadziliśmy tylko jedną zmianę - zrezygnowaliśmy z drugiej łazienki na rzecz garderoby dla dzieci). Co więcej, myślę, że nawet sześcioosobowa rodzina wciąż czułaby się w tym domu niezwykle swobodnie. Dzięki ogromnej przestrzeni na parterze, imprezy rodzinne (nawet 30-osobowe) nie stanowią problemu. Powiem nawet, że już zostało to przetestowane i każdy z gości nie czuł się ściśnięty ani pozbawiony swobody ruchów. Salon jest także miejscem wspólnego spędzania czasu. Natomiast osobiście cieszę się, że mam swój własny gabinet, gdzie mogę zaznać prywatności. Świetnym, bardzo przyszłościowym rozwiązaniem jest również pomieszczenie nad garażem - zawsze można je dostosować do aktualnych potrzeb. Nie mieliśmy też zastrzeżeń do wielkości i rozkładu okien zawartych w projekcie domu - zapewniają świetne doświetlenie, a dom staje się jasny i ciepły. Skróciliśmy nieco balkon na tylnej elewacji i zlikwidowaliśmy słupy balkonowe (uznaliśmy je za niepotrzebne), a także powiększyliśmy taras - dzięki temu zyskał on na funkcjonalności. Największy nasz, a właściwie żony, sukces przy realizacji projektu domu Amanda WAH1205 to aranżacja wnętrza (niezwykle miło czyta się wszelkie pozytywne komentarze innych użytkowników extradom.pl), za którą przyznano nam trzecią nagrodę w konkursie MG Projekt. Jesteśmy dumni także z tego, że dom powstał w nieco ponad rok (gdyby odliczyć przerwę zimową, to same prace - od wbicia pierwszej łopaty do przeprowadzki - trwały 10 miesięcy). Od przeprowadzki minął ponad rok - nadal zgodnie uważamy, że dom w tej postaci jest idealny i nic więcej byśmy nie poprawili. Projekt domu jest naprawdę dużym sukcesem pracowni, przede wszystkim wyjątkowo dobrze przemyślany. Życzę jedynie zapału i cierpliwości przy realizacji Amanda WAH1205.

Zdjęcie profilowe użytkownika Mirosław Ś. Mirosław Ś.

Na co dzień mieszkamy w Warszawie, jednak otrzymaliśmy po rodzicach duże gospodarstwo na wsi, więc postanowiliśmy wybudować na nowo nabytej działce drugi dom, w którym będziemy mogli spędzać wolny czas z dala od miejskiego zgiełku. Wyborem odpowiedniego projektu zajęła się moja żona. Duże znaczenie podczas poszukiwań miały dla niej duże wymiary wiatrołapu, który w wielu domach jest niestety bardzo mały. Małżonce od początku zależało, aby przestrzeń była odczuwalna od razu po wejściu do domu, a spośród propozycji spełniających te wymaganie, najbardziej do gustu przypadł jej projekt domu Amanda WAH1205. Budynek w całości spełniał oczekiwania mojej żony, a ja w pełni poparłem tą decyzję.Do technicznej strony projektu nie mam żadnych zastrzeżeń - dokumentacja nie zawierała błędów, a fachowcy nie zgłaszali trudności z jego realizacją. Wszystko udało się wykonać sprawnie i w naprawdę krótkim czasie. Pierwsze prace rozpoczęliśmy w czerwcu, a już w zimie zakończyliśmy etap tynkowania. W następnym roku ruszyliśmy z pozostałymi wykończeniami i już w wakacje dom był gotowy do użytku. Postawiliśmy go z ceramicznych pustaków Porotherm, a następnie ociepliliśmy 15 cm warstwą styropianu. Na dachu zastosowaliśmy glazurowaną dachówkę marki Creaton.Na etapie adaptacji wprowadziliśmy do projektu Amanda WAH1205 kilka zmian, które wynikały jedynie z naszych indywidualnych upodobań. Nad wykuszem doprojektowaliśmy ozdobną lukarnę z oknem, a cały budynek został postawiony na lekkim podwyższeniu. Do wejścia prowadzi więc teraz aż 6 schodków, dzięki czemu nabrał on bardziej dworkowego charakteru. Dodatkowo zmieniliśmy rodzaj zewnętrznych kolumn - zamiast kwadratowych postawiliśmy te w kształcie walca rozszerzającego się w dolnej części, co również nadało bryle niepowtarzalnego uroku. Pierwotny garaż poszerzyliśmy o 1 m, wstawiliśmy w nim okna i zrezygnowaliśmy z bramy wjazdowej. W tej sposób jego oryginalną powierzchnię mogliśmy przeznaczyć na zrobienie dodatkowego, dużego pokoju. Oprócz tego, nieco zmodyfikowaliśmy układ klatki schodowej, aby były łatwiejsze w wykonaniu i bardziej komfortowa w codziennym użytkowaniu. Początkowo myśleliśmy nad likwidacją znajdującego się w salonie, wolnostojącego słupa, jednak ostatecznie zrezygnowaliśmy z tego pomysłu. Jesteśmy z tego zadowoleni, ponieważ ozdobny filar w części dziennej wygląda naprawdę świetnie.W układzie pomieszczeń nie musieliśmy wprowadzać żadnych zmian. Ten zaproponowany w oryginalnym projekcie domu parterowego z poddaszem użytkowym Amanda WAH1205 w całości nam odpowiadał. Wnętrze domu jest funkcjonalne i nie mamy w tej kwestii żadnych zastrzeżeń. Duży, dobrze zaaranżowany wiatrołap to piękna wizytówka domu, a w dodatku bez problemu zmieściliśmy w nim sporych rozmiarów szafę wnękową. Muszę przyznać, że budynek doskonale się prezentuje i wywiera na wszystkich ogromne wrażenie. Zadbaliśmy o zewnętrzne detale domu takie jak fantazyjne gzymsy, klinkierowe parapety, liczne zdobienia i odpowiednią kolorystykę co w połączeniu z ciekawą bryłą sprawia, że dom wygląda bardzo okazale i mogę powiedzieć, że jesteśmy naprawdę dumni z osiągniętego efektu. Pozdrawiam.

ASYSTENT WYBORU PROJEKTU

Szukasz idealnego projektu? Znajdziemy go dla Ciebie!

Doradca na podstawie Twoich wskazówek przygotuje spersonalizowaną listę projektów

Graficzne opracowanie rzutów poglądowych widocznych na karcie projektu zostało wykonane przez Extradom.pl. Prezentowane przez Extradom.pl wizualizacje wykonane zostały przez autora projektu i należy poczytywać je jedynie za przykład i propozycję wykończenia, wizję architektoniczną autora projektu. Ostateczne wykończenie budynku może nastąpić na wiele sposobów. Szczegółowe rozwiązania zastosowane w oferowanej dokumentacji - w tym również ilość, lokalizacje i wygląd okien, drzwi, kominów - mogą w niewielkim stopniu różnić się od prezentowanej wizualizacji budynku.

Extradom.pl Spółka z ograniczoną odpowiedzialnością z siedzibą przy ul. Jaworskiej 13, 53-612 Wrocław, wpisana do rejestru przedsiębiorców Krajowego Rejestru Sądowego przez Sąd Rejonowy dla Wrocławia-Fabrycznej we Wrocławiu, VI Wydział Gospodarczy Krajowego Rejestru Sądowego do pod numerem KRS 0000648746, numer NIP 895-17-18-333, o kapitale zakładowym 708 150,00 zł uprzejmie informuje, iż poprzez serwis Extradom.pl umożliwia m.in. zapoznanie się przez konsumentów z ofertą handlową Partnerów Extradom.pl, którzy stosują metody budowy domów przy wykorzystaniu różnego rodzaju technologie prefabrykacji bądź modułowe (tzw. „Gotowe domy”).

Extradom.pl nie prowadzi jednakże sprzedaży ani nie oferuje usług polegających na doradztwie finansowym, prawnym ani podatkowym w zakresie inwestycji realizowanych w technologiach tzw. „Gotowych domów”. Informacje prezentowane w serwisie Extradom.pl dotyczące Partnerów Extradom.pl oferujących realizację inwestycji w technologiach „Gotowych domów” lub podobnych mają charakter informacyjny i reklamowy.

Prezentowane w serwisie Extradom.pl informacje dotyczące stosowanych przez Partnerów metod budowy domów w technologii prefabrykacji bądź modułowej pochodzą od Partnerów Extradom.pl.

Extradom.pl sp. z o.o. jedynie umożliwia nawiązanie kontaktu przez Użytkownika z Partnerem Extradom.pl stosującym tego rodzaju technologie budowy domów i nie jest stroną umowy o roboty budowlane zawieranej przez Użytkownika Extradom.pl z Partnerem Extradom.pl.

REKLAMA
Zamknij