👉 Odbierz prezent 🎁

Koniec oferty za:

0dni

00godz.

00min.

00sek.

Sprawdź

Projekt domu Adela Rex (1969) KRD3103

Zapisz Dodano!
Porównaj Dodano!
ikona Pobierz i drukuj

Warstwy

Rzut parteru

Powierzchnia (m²)
Tooltip
Powierzchnia pomieszczenia
to ta, z której faktycznie możesz korzystać – skosy i niskie części poddasza są liczone częściowo lub wcale.
  1. 100% dla wysokości powyżej 2,2 m,
  2. 50% dla wysokości 1,4–2,2 m,
  3. nie liczymy poniżej 1,4 m.

Powierzchnia podłogi
Liczymy po obrysie pomieszczenia, bez względu na jego wysokość/skosy. Jeśli nie ma skosów to powierzchnia podłogi i pomieszczenia jest taka sama.
pomieszczenia i podłogi
podłogi
1. Hall
4,42
2. Wiatrołap
4,04
3. Korytarz
13,16
4. Kuchnia
11,54
5. Spiżarnia
2,46
6. Garderoba
4,73
7. Pokój dzienny
36,61
8. Pokój
12,68
9. Pokój
14,44
10. Pokój
10,02
11. Pokój
8,07
12. Łazienka
2,62
13. Łazienka
6,08
14. Kotłownia
5,96
15. Garaż dwustanowiskowy
32,09
Razem
168,92
168,92

    Usytuowanie na działce

    Czy ten projekt pasuje na
    Twoją działkę?

    Chętnie to sprawdzimy!

    Dowiedz się:

    • czy zmieści się na niej wybrany przez Ciebie dom
    • jakie parametry musi spełniać dom według miejscowego planu zagospodarowania lub warunków zabudowy (np. kąt nachylenia i typ dachu, liczba kondygnacji itp.
    • jakie inne projekty pasują na Twoją działkę – znajdziemy je dla Ciebie!

Pow. użytkowa

130,90 m²

Pokoje

4

Łazienki i WC

2

Garaż

2

Min. szer. i dł. działki

22,2 x 23,70 m

Kąt dachu

30°

Szacunkowy koszt SSZ

392 000 zł
Szacunkowy koszt budowy do stanu surowego zamkniętego (SSZ) metodą gospodarczą - większość prac wykonuje inwestor.

Konstrukcja

Murowana
więcej

Adela Rex (1969) - KRD3103

ikona 130,90 m²
Powierzchnia użytkowa
ikona4
Pokoje (bez salonu)
ikona 2
Łazienki (z toaletami)
ikona 2
Liczba stanowisk garażowych
(z wiatą garażową)
ikona
Konstrukcja: Murowana

4 102 zł

Wydłużony czas realizacji

NOWOŚĆ! Projekt w opracowaniu.

Zadzwoń i zapytaj o termin realizacji - 71 715 20 60

Gwarancja najniższej ceny
ikona
Darmowa dostawa
Paczkomaty, kurier
ikona
100 dni na wymianę,
30 dni na zwrot
ikona Zyskaj najwięcej! Extradodatki GRATIS:

15% rabatu do LEROY MERLIN

16% rabatu w SELSEY

Pakiet Formalności 2026

Przydatne Extradodatki

Poradnik Dach Solarny

ikona Co zawiera projekt?
  • Projekt zgodny z WT2021, przygotowany przez architekta z uprawnieniami
  • Bezpłatne pozwolenie na zmiany
  • Charakterystyka energetyczna
Konsultant
71 715 20 60

pon.-pt. 8-21, sob. 9-17

Parter - 168,92 m²

Parter projektu Adela Rex (1969)

Zapytaj, co możesz zmienić

Powierzchnia (m²)
Tooltip
Powierzchnia pomieszczenia
to ta, z której faktycznie możesz korzystać – skosy i niskie części poddasza są liczone częściowo lub wcale.
  1. 100% dla wysokości powyżej 2,2 m,
  2. 50% dla wysokości 1,4–2,2 m,
  3. nie liczymy poniżej 1,4 m.

Powierzchnia podłogi
Liczymy po obrysie pomieszczenia, bez względu na jego wysokość/skosy. Jeśli nie ma skosów to powierzchnia podłogi i pomieszczenia jest taka sama.
pomieszczenia i podłogi
podłogi
1. Hall
4,42
2. Wiatrołap
4,04
3. Korytarz
13,16
4. Kuchnia
11,54
5. Spiżarnia
2,46
6. Garderoba
4,73
7. Pokój dzienny
36,61
8. Pokój
12,68
9. Pokój
14,44
10. Pokój
10,02
11. Pokój
8,07
12. Łazienka
2,62
13. Łazienka
6,08
14. Kotłownia
5,96
15. Garaż dwustanowiskowy
32,09
Razem
168,92
168,92

Warianty projektu (5)

Projekt domu Adela Nano (1938)
Adela Nano (1938)
Dodano!
Dodano!
109,50 m²
3
2
2

4 490 zł

Projekt domu Adela Prima (1944)
Adela Prima (1944)
Dodano!
Dodano!
121,50 m²
4
2
2

4 490 zł

Projekt domu Adela Sto (1954)
Adela Sto (1954)
Dodano!
Dodano!
99,90 m²
3
2
2

3 862 zł

Projekt domu Adela (1898)
Adela (1898)
Dodano!
Dodano!
120,60 m²
3
2
2

4 490 zł

Projekt domu Adela Astra (1957)
Adela Astra (1957)
Dodano!
Dodano!
109,70 m²
4
2
2

3 942 zł

Podobne projekty (203)

Zobacz wszystkie
PREZENT 🎁
Nowość
Zdjęcie 1 projektu NewHouse 771 w3 KRZ1156
NewHouse 771 w3
Dodano!
Dodano!
116,98 m²
3
2
2

5 690 zł

PREZENT 🎁
Zdjęcie 1 projektu NewHouse 771 KRZ1147
NewHouse 771
Dodano!
Dodano!
133,61 m²
4
2
2

5 690 zł

PREZENT 🎁
Zdjęcie 1 projektu Kordian Nano (1851) KRD2987
Kordian Nano (1851)
Dodano!
Dodano!
109,30 m²
4
2
2

4 490 zł

PREZENT 🎁
Nowość
Zdjęcie 1 projektu NewHouse 771 w1 KRZ1150
NewHouse 771 w1
Dodano!
Dodano!
133,61 m²
4
2
2

5 690 zł

PREZENT 🎁
Zdjęcie 1 projektu HomeKoncept 133 KRX1268
HomeKoncept 133
Dodano!
Dodano!
130,02 m²
4
2
2

6 690 zł

PREZENT 🎁
Zdjęcie 1 projektu APS 401 wariant 4 LUA1681
APS 401 wariant 4
Dodano!
Dodano!
140 m²
4
2
2

5 799 zł

PREZENT 🎁
Zdjęcie 1 projektu Przejrzysty D27 wariant I WWB1052
Przejrzysty D27 wariant I
Dodano!
Dodano!
129,99 m²
3
2
2

4 949 zł

PREZENT 🎁
Zdjęcie 1 projektu Kordian (1613) KRD2763
Kordian (1613)
Dodano!
Dodano!
133,30 m²
4
2
2

4 890 zł

Nowy aktualny

Szacunkowy koszt budowy

Stan surowy zamknięty

Koszt aktualny na I kwartał 2026

392 000 zł netto

Prace ziemne i fundamenty

83 000 zł

Kompletna konstrukcja,
strop oraz dach

229 000 zł

Stolarka okienna i drzwiowa

80 000 zł

Czy da się obniżyć koszty budowy?
Czy da się obniżyć koszty budowy?

Oczywiście. Wyceniaj materiały budowlane w kilku miejsach (skorzystaj z gotowego zestawienia materiałów), szukaj promocji, negocjuj. Zobacz nasz film jak obniżyć koszt budowy.

Przekroje

Przekrój pionowy

Usytuowanie na działce

Czy ten projekt pasuje na
Twoją działkę?

Chętnie to sprawdzimy!

Czy ten projekt pasuje na
Twoją działkę?

Chętnie to sprawdzimy!

Dowiedz się:

  • czy zmieści się na niej wybrany przez Ciebie dom
  • jakie parametry musi spełniać dom według miejscowego planu zagospodarowania lub warunków zabudowy (np. kąt nachylenia i typ dachu, liczba kondygnacji itp.
  • jakie inne projekty pasują na Twoją działkę – znajdziemy je dla Ciebie!
Autor: Archeton

Dane techniczne projektu

Powierzchnie i wymiary Powierzchnie i wymiary

Powierzchnia użytkowa
Tooltip
Suma powierzchni wszystkich pomieszczeń mieszkalnych, pomniejszona o pow. garażu, kotłowni, strychu, piwnicy. Jest liczona w 100% dla pomieszczeń o wysokości powyżej 2,2 m, w 50% dla pomieszczeń o wys. 2,2-1,4 m i niewliczana dla niższych niż 1,4 m.

130,90 m²

Powierzchnia zabudowy
Tooltip
Powierzchnia zajmowana przez część na- oraz nadziemną budynku liczona, jako rzut pionowy budynku na działkę.

206,90 m²

Powierzchnia całkowita
Tooltip
Całkowita powierzchnia wszystkich kondygnacji budynku łącznie z elementami nośnymi, takimi jak ściany zewnętrzne (z ociepleniem), słupy, tarasy, itp.

206,90 m²

Powierzchnia netto
Tooltip
Powierzchna wszystkich pomieszczeń w budynku mierzona na wysokości podłogi.

168,90 m²

Kubatura brutto
Tooltip
Zazwyczaj jest to suma kubatur (objętości) wszystkich pomieszczeń budynku, liczonych po zewnętrznym obrysie murów (z ociepleniem).

1 060,70 m³

Powierzchnia dachu

300 m²

Kąt nachylenia dachu
Tooltip
Nachylenie połaci dachu głównego podawane w stopniach. Uwaga! W niektórych projektach występuje więcej niż jedno nachylenie dachu.

30°

Wysokość budynku
Tooltip
Wysokość liczona od części budynku położonej najniżej przy powierzchni terenu do najwyższego punktu dachu (kalenicy) z wyłączeniem kominów.

7,92 m

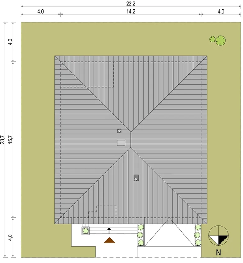
Szerokość elewacji

14,20 m

Długość elewacji

15,70 m

Min. szerokość działki
Tooltip
Najmniejsza możliwa szerokość działki niezbędna do wybudowania wybranego domu. Składa się z szerokości elewacji domu powiększonej z obu stron o 3 m dla ściany bez otworów drzwiowych/okiennych lub 4 m, dla ściany z otworami.

22,20 m

Min. długość działki
Tooltip
Najmniejsza możliwa długość działki niezbędna do wybudowania wybranego domu. Składa się z długości elewacji domu powiększonej z obu stron o 3 m dla ściany bez otworów drzwiowych/okiennych lub 4 m, dla ściany z otworami.

23,70 m

Energooszczędność Energooszczędność

Oze Czym jest OZE (Odnawialne Źródło Energii)?
Ogrzewanie główne

Gazowe - szczegóły

Interesuje Cię inne źródło ogrzewania? Wyślij zapytanie lub zadzwoń do doradcy

Wentylacja

Mechaniczna nawiewno-wywiewna z rekuperacją - szczegóły

Warunki techniczne

Projekt zgody z WT 2021

Technologia i konstrukcja Technologia i konstrukcja

Konstrukcja

Murowana

Opis szczegółowy

Wersja technologiczna: murowana - beton komórkowy. Konstrukcja dachu: prefabrykowane wiązary drewniane MITEK Industries Polska. Pokrycie dachowe: dachówka. Strop: dolny pas wiązarów MITEK. Typ schodów: brak. Typ ogrzewania: Kocioł na gaz KOCIOŁ gazowy VIESSMANN POMPA CIEPŁA VIESSMANN. Dostępna wersja z paliwem gazowym: Tak. Dostępna wersja z pompą ciepła: Tak. Dostępna wersja z fotowoltaiką: Tak. Wentylacja: mechaniczna. Izolacja termiczna ścian zewnętrznych: Termo Organika TERMONIUM FASADA. Ściany zewnętrzne: 24 cm beton komórkowy Solbet Optimal. Ściany wewnętrzne: 24 cm beton komórkowy Solbet Optimal. Ściany wewnętrzne działowe: 12 cm beton komórkowy Solbet One. Wentylacja: mechaniczna Heatpex Aria.

Strop

Wiązary

Reklama
Okna i drzwi tarasowe

Nowoczesne okna PVC i aluminiowe WIŚNIOWSKI – doskonała izolacja, elegancki design i niezrównana trwałość.

Wiśniowski
Sprawdź parametry!
Okna dachowe

Oferujemy bezpłatne konsultacje w zakresie wszystkich rozwiązań VELUX. Wyceny, porady dotyczące doboru okien i rolet zewnętrznych - sprawdź!

Velux
Sprawdź szczegóły
Pompa ciepła

Wybierz pompę ciepła, która pasuje do Twojego domu. Niezależnie od tego, czy ustawienie wewnątrz czy na zewnątrz, pompy ciepła STIEBEL ELTRON dopasują się do każdej przestrzeni.

Stiebel
Dobierz pompę ciepła
Drzwi

Ciepłe drzwi WIŚNIOWSKI z kontrolą dostępu. Szeroka gama wzorów i kolorów.

Wiśniowski
Wybierz najlepsze
Bramy garażowe

Automatyczne bramy garażowe segmentowe i uchylne WIŚNIOWSKI na wymiar i z systemem smart home w standardzie.

Wiśniowski
Sprawdź ofertę!
Rekuperacja

Alnor - kompletny system rekuperacji. Dobierz idealne rozwiązanie dla Twojego domu!

Alnor
Dobierz rekuperator
Dach

Producent stalowych pokryć dachowych i systemów elewacyjnych. Precyzja wykonania, trwałość na lata i szybki montaż doceniany przez dekarzy. Postaw na solidny dach Budmat.

Budmat
Sprawdź ofertę
Ogrodzenie

Nowoczesne stalowe ogrodzenia Budmat - estetyka, bezpieczeństwo i trwałość na lata. Systemowe rozwiązania na wymiar, dopasowane do każdego domu.

Budmat
Sprawdź ofertę

Gotowe domy - najszybszy sposób na dom (115)

Zobacz wszystkie
  • Stan deweloperski nawet w 6 miesięcy
  • Gwarancja stałej ceny
Skonfiguruj dom
Zdjęcie 1 projektu Bergen 130 HUS1002
130,40 m²
4
Stan deweloperski brutto
499 000 zł 3 827 zł/m²
Zdjęcie 1 projektu Dom prefabrykowany Piętrowy 130A HFX1021
130,40 m²
4
Stan deweloperski brutto
575 000 zł 4 410 zł/m²
Zdjęcie 1 projektu Dom prefabrykowany Piętrowy 130B HFX1022
131,60 m²
5
Stan deweloperski brutto
575 000 zł 4 369 zł/m²
Zdjęcie 1 projektu Dom prefabrykowany Piętrowy 130C HFX1023
132 m²
4
Stan deweloperski brutto
575 000 zł 4 356 zł/m²
Zdjęcie 1 projektu Dom prefabrykowany DEX136 HDX1002
136 m²
4
Stan deweloperski brutto
895 700 zł 6 586 zł/m²
Zdjęcie 1 projektu Dom prefabrykowany P.5 HPK1004
138,67 m²
5
Stan deweloperski brutto
787 200 zł 5 677 zł/m²
Zdjęcie 1 projektu Dom prefabrykowany Parterowy 120B HFX1016
122,36 m²
3
Stan deweloperski brutto
515 000 zł 4 209 zł/m²
Zdjęcie 1 projektu Dom prefabrykowany P.1 z okapem HPK1000
139,44 m²
3
Stan deweloperski brutto
734 000 zł 5 264 zł/m²

Opis projektu domu
Adela Rex (1969)

Projekt domu parterowego Adela Rex (1969) z obszernym garażem, z dachem kopertowym, z tarasem
Czytaj więcej

Polecani producenci

Kompletne systemy rekuperacji

tło producenta

Alnor

Dowiedz się więcej

Dachy modułowe ze stali

tło producenta

Budmat

Poznaj szczegóły oferty

Prefabrykowane konstrukcje dachowe

tło producenta

WIĄZAR POLSKA

Zobacz więcej

Sprawdź nową generację okien GREENVIEW

tło producenta

FAKRO

Sprawdź nową generację okien GREENVIEW

Styropian, tynki, farby, kleje

tło producenta

Termo Organika

Poznaj super jakość

Okna, drzwi, osłony przeciwsłoneczne

tło producenta

Aluprof

Sprawdź ofertę
Zobacz więcej

Społeczność projektu domu
Adela Rex (1969) w budowie

Dołącz do społeczności osób, które budują ten dom lub są zainteresowane jego budową.

  • Oglądaj zdjęcia z budowy
  • Zadawaj pytania
  • Wymieniaj się doświadczeniami

Opinie o projekcie domu Adela Rex (1969)

Ocena

Ten projekt nie ma jeszcze opinii, bądź pierwszy!

Dodaj opinię

ASYSTENT WYBORU PROJEKTU

Szukasz idealnego projektu? Znajdziemy go dla Ciebie!

Doradca na podstawie Twoich wskazówek przygotuje spersonalizowaną listę projektów

Graficzne opracowanie rzutów poglądowych widocznych na karcie projektu zostało wykonane przez Extradom.pl. Prezentowane przez Extradom.pl wizualizacje wykonane zostały przez autora projektu i należy poczytywać je jedynie za przykład i propozycję wykończenia, wizję architektoniczną autora projektu. Ostateczne wykończenie budynku może nastąpić na wiele sposobów. Szczegółowe rozwiązania zastosowane w oferowanej dokumentacji - w tym również ilość, lokalizacje i wygląd okien, drzwi, kominów - mogą w niewielkim stopniu różnić się od prezentowanej wizualizacji budynku.

REKLAMA
Zamknij