👉 200 zł na przyjemności 📖🎶

Koniec oferty za:

00godz.

00min.

00sek.

Sprawdź

Projekt domu A-28 PZB1006

Dodano!
Dodano!

Warstwy

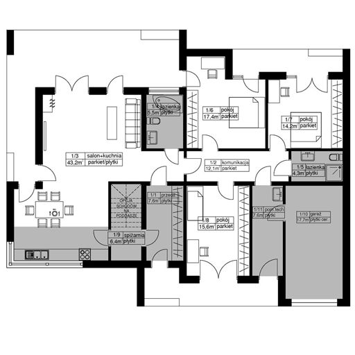
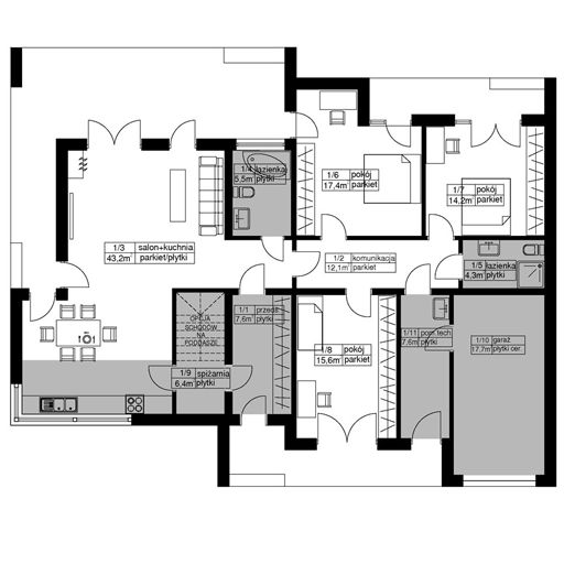
Rzut parteru

Powierzchnia (m²)
Tooltip
Powierzchnia pomieszczenia
to ta, z której faktycznie możesz korzystać – skosy i niskie części poddasza są liczone częściowo lub wcale.
  1. 100% dla wysokości powyżej 2,2 m,
  2. 50% dla wysokości 1,4–2,2 m,
  3. nie liczymy poniżej 1,4 m.

Powierzchnia podłogi
Liczymy po obrysie pomieszczenia, bez względu na jego wysokość/skosy. Jeśli nie ma skosów to powierzchnia podłogi i pomieszczenia jest taka sama.
pomieszczenia i podłogi
podłogi
1. Wiatrołap
7,60
2. Korytarz
12,10
3. Pokój dzienny + kuchnia + jadalnia
43,20
4. Łazienka
5,50
5. Łazienka
4,30
6. Pokój
17,40
7. Pokój
14,20
8. Pokój
15,60
9. Spiżarnia
6,40
10. Garaż jednostanowiskowy
17,70
11. Pomieszczenie gospodarcze
7,60
Razem
151,60
151,60

    Usytuowanie na działce

    Czy ten projekt pasuje na
    Twoją działkę?

    Chętnie to sprawdzimy!

    Dowiedz się:

    • czy zmieści się na niej wybrany przez Ciebie dom
    • jakie parametry musi spełniać dom według miejscowego planu zagospodarowania lub warunków zabudowy (np. kąt nachylenia i typ dachu, liczba kondygnacji itp.
    • jakie inne projekty pasują na Twoją działkę – znajdziemy je dla Ciebie!

Pow. użytkowa

151,70 m²

Pokoje

3

Łazienki i WC

2

Garaż

1

Min. szer. i dł. działki

25,9 x 20,40 m

Kąt dachu

30°
więcej

A-28 - PZB1006

ikona 151,70 m²
Powierzchnia użytkowa
ikona3
Pokoje (bez salonu)
ikona 2
Łazienki (z toaletami)
ikona 1
Liczba stanowisk garażowych
(z wiatą garażową)

Projekt został
wycofany z oferty

W razie pytań prosimy o kontakt
z Centrum Obsługi Klienta
Konsultant Masz pytania?
Zadzwoń
71 715 20 60

pon.-pt. 8-21, sob. 9-17

Parter - 151,60 m²

Parter projektu A-28

Zapytaj, co możesz zmienić

Powierzchnia (m²)
Tooltip
Powierzchnia pomieszczenia
to ta, z której faktycznie możesz korzystać – skosy i niskie części poddasza są liczone częściowo lub wcale.
  1. 100% dla wysokości powyżej 2,2 m,
  2. 50% dla wysokości 1,4–2,2 m,
  3. nie liczymy poniżej 1,4 m.

Powierzchnia podłogi
Liczymy po obrysie pomieszczenia, bez względu na jego wysokość/skosy. Jeśli nie ma skosów to powierzchnia podłogi i pomieszczenia jest taka sama.
pomieszczenia i podłogi
podłogi
1. Wiatrołap
7,60
2. Korytarz
12,10
3. Pokój dzienny + kuchnia + jadalnia
43,20
4. Łazienka
5,50
5. Łazienka
4,30
6. Pokój
17,40
7. Pokój
14,20
8. Pokój
15,60
9. Spiżarnia
6,40
10. Garaż jednostanowiskowy
17,70
11. Pomieszczenie gospodarcze
7,60
Razem
151,60
151,60

Podobne projekty (7405)

Zobacz wszystkie
PREZENT 📖🎶
Zdjęcie 1 projektu Tracja 6 WOE1143
Tracja 6
Dodano!
Dodano!
122,88 m²
4
2
0

4 099 zł

PROMOCJA
Nowość
Zdjęcie 1 projektu APS 269 ECO LUA1679
APS 269 ECO
Dodano!
Dodano!
124,10 m²
3
2
2

4 649 zł

5 199 zł

Tooltip

Cena regularna

4 649 zł najniższa cena
Tooltip

Najniższa cena z 30 dni
przed obniżką

PREZENT 📖🎶
Zdjęcie 1 projektu Koniczynka Rex G2 (1663) KRD2812
Koniczynka Rex G2 (1663)
Dodano!
Dodano!
125,20 m²
4
3
2

4 690 zł

PREZENT 📖🎶
Zdjęcie 1 projektu Domena 124 C1 WRW1349
Domena 124 C1
Dodano!
Dodano!
130,91 m²
4
2
0

4 950 zł

PROMOCJA
Zdjęcie 1 projektu Mini 4 w. II WRC2734
Mini 4 w. II
Dodano!
Dodano!
122,90 m²
3
2
0

3 920 zł

4 900 zł

Tooltip

Cena regularna

3 920 zł najniższa cena
Tooltip

Najniższa cena z 30 dni
przed obniżką

PREZENT 📖🎶
Zdjęcie 1 projektu Parterowy wąski wariant B WAH1990
Parterowy wąski wariant B
Dodano!
Dodano!
125,53 m²
3
2
1

6 490 zł

PREZENT 📖🎶
Zdjęcie 1 projektu Kordian (1749) KRD2997
Kordian (1749)
Dodano!
Dodano!
133,30 m²
4
2
2

4 890 zł

PREZENT 📖🎶
Nowość
Zdjęcie 1 projektu Kwadra Rex (1946) KRD3079
Kwadra Rex (1946)
Dodano!
Dodano!
129,20 m²
4
2
0

4 390 zł

Elewacje

Frontowa
Tylna
Lewa
Prawa

Usytuowanie na działce

Czy ten projekt pasuje na
Twoją działkę?

Chętnie to sprawdzimy!

Czy ten projekt pasuje na
Twoją działkę?

Chętnie to sprawdzimy!

Dowiedz się:

  • czy zmieści się na niej wybrany przez Ciebie dom
  • jakie parametry musi spełniać dom według miejscowego planu zagospodarowania lub warunków zabudowy (np. kąt nachylenia i typ dachu, liczba kondygnacji itp.
  • jakie inne projekty pasują na Twoją działkę – znajdziemy je dla Ciebie!
Autor: NANO

Dane techniczne projektu

Powierzchnie i wymiary Powierzchnie i wymiary

Powierzchnia użytkowa
Tooltip
Suma powierzchni wszystkich pomieszczeń mieszkalnych, pomniejszona o pow. garażu, kotłowni, strychu, piwnicy. Jest liczona w 100% dla pomieszczeń o wysokości powyżej 2,2 m, w 50% dla pomieszczeń o wys. 2,2-1,4 m i niewliczana dla niższych niż 1,4 m.

151,70 m²

Powierzchnia zabudowy
Tooltip
Powierzchnia zajmowana przez część na- oraz nadziemną budynku liczona, jako rzut pionowy budynku na działkę.

184,50 m²

Powierzchnia dachu

235,60 m²

Kąt nachylenia dachu
Tooltip
Nachylenie połaci dachu głównego podawane w stopniach. Uwaga! W niektórych projektach występuje więcej niż jedno nachylenie dachu.

30°

Wysokość budynku
Tooltip
Wysokość liczona od części budynku położonej najniżej przy powierzchni terenu do najwyższego punktu dachu (kalenicy) z wyłączeniem kominów.

7,90 m

Min. szerokość działki
Tooltip
Najmniejsza możliwa szerokość działki niezbędna do wybudowania wybranego domu. Składa się z szerokości elewacji domu powiększonej z obu stron o 3 m dla ściany bez otworów drzwiowych/okiennych lub 4 m, dla ściany z otworami.

25,90 m

Min. długość działki
Tooltip
Najmniejsza możliwa długość działki niezbędna do wybudowania wybranego domu. Składa się z długości elewacji domu powiększonej z obu stron o 3 m dla ściany bez otworów drzwiowych/okiennych lub 4 m, dla ściany z otworami.

20,40 m

Energooszczędność Energooszczędność

Oze Czym jest OZE (Odnawialne Źródło Energii)?
Warunki techniczne

Projekt zgody z WT 2021

Gotowe domy modułowe (113)

Zobacz wszystkie
Stan deweloperski nawet w 6 miesięcy Gwarancja stałej ceny
Zdjęcie 1 projektu Dom prefabrykowany Stodoła 150B HFX1025
Pow. użytkowa
151,30 m²
Pokoje
4
589 000 zł 3 893 zł/m²
Zdjęcie 1 projektu Dom prefabrykowany Stodoła 150A HFX1024
Pow. użytkowa
152,20 m²
Pokoje
5
589 000 zł 3 870 zł/m²
Zdjęcie 1 projektu Dom prefabrykowany Stodoła 150C HFX1026
Pow. użytkowa
152,90 m²
Pokoje
5
589 000 zł 3 852 zł/m²
Zdjęcie 1 projektu Dom szkieletowy Open Sky 195 HHT1029
Pow. użytkowa
145,04 m²
Pokoje
4
940 300 zł 6 483 zł/m²
Zdjęcie 1 projektu Dom prefabrykowany P.2 HPK1001
Pow. użytkowa
159,18 m²
Pokoje
5
832 200 zł 5 228 zł/m²
Zdjęcie 1 projektu Dom prefabrykowany P.4 bez okapu HPK1003
Pow. użytkowa
162,18 m²
Pokoje
4
701 000 zł 4 322 zł/m²
Zdjęcie 1 projektu Dom prefabrykowany P.4 z okapem HPK1014
Pow. użytkowa
162,18 m²
Pokoje
5
710 500 zł 4 381 zł/m²
Zdjęcie 1 projektu Dom szkieletowy Viking Smart 220 HHT1032
Pow. użytkowa
163,86 m²
Pokoje
4
1 095 606 zł 6 686 zł/m²

Opis projektu domu
A-28

Budynek A-28 jest to zwarta, modernistyczna bryła wyglądająca bardzo efektownie z każdej strony. Niepowtarzalność i efektowność jest osiągnięta przy zachowaniu stosunkowo niskich kosztów budowy. Dom sprawia wrażenie o wiele większego niż jest w rzeczywistości. Wszystkie elementy bryły budynku są przemyślane i składają się na bryłę w której dodanie bądź odjęcie czegokolwiek zaburzy harmonię obiektu. Jest to budynek parterowy z możliwością adaptacji przestronnego poddasza. Wnętrze budynku: Powierzchnia użytkowa budynku jest przemyślana i rozsądnie wykorzystana. Ilość ścian nośnych jest zredukowana do minimum zapewniając maksymalną elastyczność przestrzeni. Po przekroczeniu przedsionka wchodzimy do domu, który może mieć zarówno zachowaną płynność przestrzeni jak i można przestrzeń wewnętrzną bardziej pozamykać dodatkowymi ścianami i drzwiami (oddzielić kuchnię i pokój, przedzielić drzwiami strefę nocną i dzienną ). Na niewielkiej przestrzeni udało się wygospodarować kuchnię z przestronnym salonem, cztery pokoje, 2 łazienki, garaż, spiżarnie oraz pomieszczenie techniczne (opcjonalnie można powiększyć garaż o pomieszczenie techniczne a w spiżarni stworzyć pomieszczenie techniczne). W miejscu spiżarni można umieścić schody na poddasze. Zaadaptowanie poddasza może powiększyć powierzchnię użytkową nawet o dodatkowe 130m². Daje to wiele możliwości przekształcenia budynku – można na przykład stworzyć dwa oddzielne mieszkania ze wspólnym przedsionkiem. Podsumowanie: Dom w formie nawiązuję do najświeższych trendów w architekturze pozostając jednak w zasięgu finansowym każdej osoby myślącej o budowie nowego domu. Budynek jest kompromisem pomiędzy funkcjonalnością, elastycznością w kształtowaniu przestrzeni wewnętrznej oraz jej maksymalnym wykorzystaniem. Dochodzi do tego niewygórowany koszt realizacji, zwartość bryły oraz czystość formy architektonicznej - wszelkie te cechy jakie powinien posiadać nowoczesny dom. Wszystko to składa się na ten nietuzinkowy budynek który to z pewnością wzbudzi zachwyt niejednej osoby.
Czytaj więcej

Polecani producenci

Prefabrykowane konstrukcje dachowe

tło producenta

WIĄZAR POLSKA

Zobacz więcej

Sprawdź nową generację okien GREENVIEW

tło producenta

FAKRO

Sprawdź nową generację okien GREENVIEW

Styropian, tynki, farby, kleje

tło producenta

Termo Organika

Poznaj super jakość

Okna, drzwi, osłony przeciwsłoneczne

tło producenta

Aluprof

Sprawdź ofertę

Kompletne systemy rekuperacji

tło producenta

Alnor

Dowiedz się więcej

Sprawdź nowy system DACHRYNNA

tło producenta

Galeco

Sprawdź ofertę
Zobacz więcej

Społeczność projektu domu
A-28 w budowie

Dołącz do społeczności osób, które budują ten dom lub są zainteresowane jego budową.

  • Oglądaj zdjęcia z budowy
  • Zadawaj pytania
  • Wymieniaj się doświadczeniami

Opinie o projekcie domu A-28

Ocena

Ten projekt nie ma jeszcze opinii, bądź pierwszy!

Dodaj opinię

ASYSTENT WYBORU PROJEKTU

Szukasz idealnego projektu? Znajdziemy go dla Ciebie!

Doradca na podstawie Twoich wskazówek przygotuje spersonalizowaną listę projektów

Graficzne opracowanie rzutów poglądowych widocznych na karcie projektu zostało wykonane przez Extradom.pl. Prezentowane przez Extradom.pl wizualizacje wykonane zostały przez autora projektu i należy poczytywać je jedynie za przykład i propozycję wykończenia, wizję architektoniczną autora projektu. Ostateczne wykończenie budynku może nastąpić na wiele sposobów. Szczegółowe rozwiązania zastosowane w oferowanej dokumentacji - w tym również ilość, lokalizacje i wygląd okien, drzwi, kominów - mogą w niewielkim stopniu różnić się od prezentowanej wizualizacji budynku.

REKLAMA
Zamknij