👉 Niższe ceny + karta allegro 200 zł! 🔥

Koniec oferty za:

00godz.

00min.

00sek.

Sprawdź

Projekt budynku JB67 GDA1050

Zapisz Dodano!
Porównaj Dodano!
ikona Pobierz i drukuj

Warstwy

Warstwy

Warstwy

Rzut parteru

Powierzchnia (m²)
Tooltip
Powierzchnia pomieszczenia
to ta, z której faktycznie możesz korzystać – skosy i niskie części poddasza są liczone częściowo lub wcale.
  1. 100% dla wysokości powyżej 2,2 m,
  2. 50% dla wysokości 1,4–2,2 m,
  3. nie liczymy poniżej 1,4 m.

Powierzchnia podłogi
Liczymy po obrysie pomieszczenia, bez względu na jego wysokość/skosy. Jeśli nie ma skosów to powierzchnia podłogi i pomieszczenia jest taka sama.
pomieszczenia i podłogi
podłogi
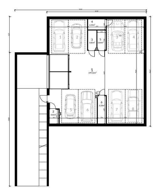
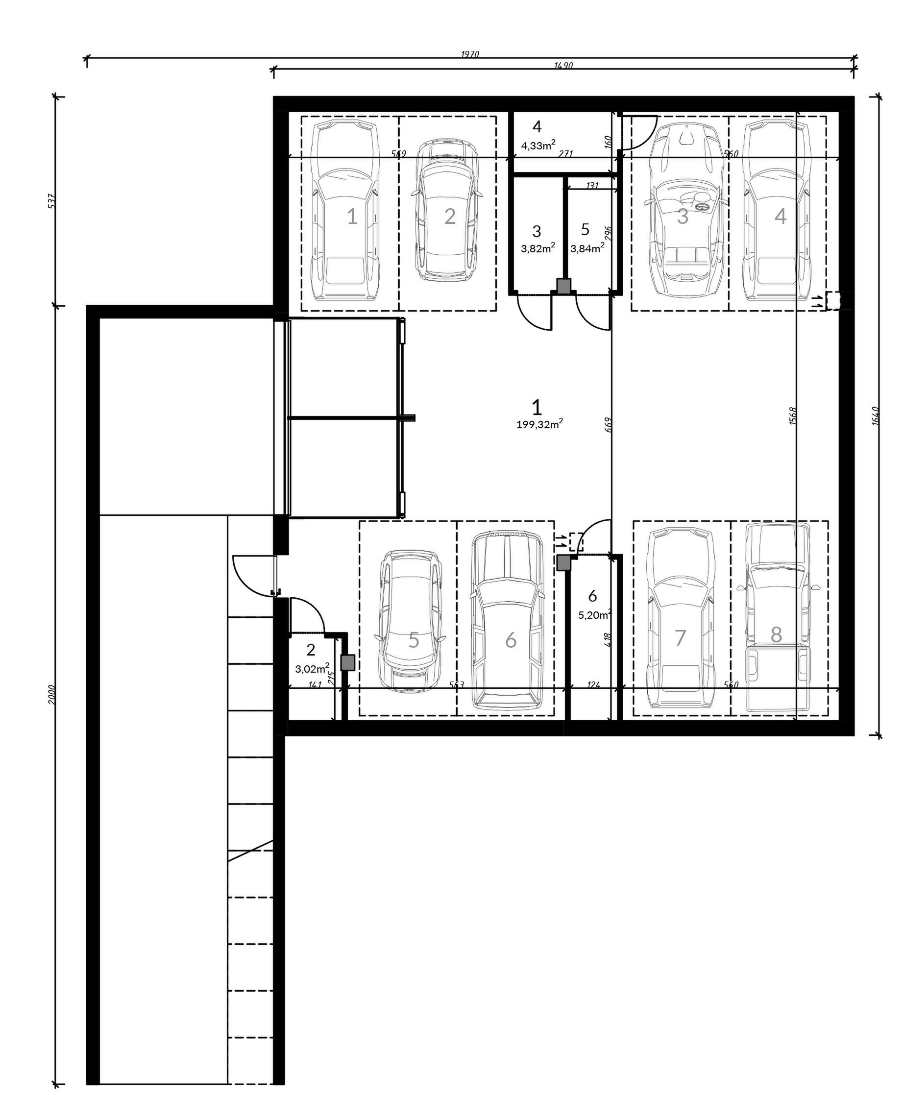
1. Garaż wielostanowiskowy
199,32
2. Pomieszczenie gospodarcze
3,02
3. Pomieszczenie gospodarcze
3,82
4. Pomieszczenie gospodarcze
4,33
5. Pomieszczenie gospodarcze
3,84
6. Pomieszczenie gospodarcze
5,20
Razem
219,53
219,53
Powierzchnia (m²)
Tooltip
Powierzchnia pomieszczenia
to ta, z której faktycznie możesz korzystać – skosy i niskie części poddasza są liczone częściowo lub wcale.
  1. 100% dla wysokości powyżej 2,2 m,
  2. 50% dla wysokości 1,4–2,2 m,
  3. nie liczymy poniżej 1,4 m.

Powierzchnia podłogi
Liczymy po obrysie pomieszczenia, bez względu na jego wysokość/skosy. Jeśli nie ma skosów to powierzchnia podłogi i pomieszczenia jest taka sama.
pomieszczenia
podłogi
1. Hall
3,77
3,84
2. Wc
3,19
3,19
3. Pokój dzienny + kuchnia + jadalnia
32,39
35,13
4. Hall
2,76
2,97
5. Wc
3,19
3,19
6. Pokój dzienny + kuchnia + jadalnia
30,77
33,21
7. Hall
2,76
2,76
8. Wc
2,43
2,82
9. Pokój dzienny + kuchnia + jadalnia
31,51
33,81
10. Hall
2,75
2,75
11. Wc
2,41
2,82
12. Pokój dzienny + kuchnia + jadalnia
30,08
32,38
Razem
148,01
158,87
Powierzchnia (m²)
Tooltip
Powierzchnia pomieszczenia
to ta, z której faktycznie możesz korzystać – skosy i niskie części poddasza są liczone częściowo lub wcale.
  1. 100% dla wysokości powyżej 2,2 m,
  2. 50% dla wysokości 1,4–2,2 m,
  3. nie liczymy poniżej 1,4 m.

Powierzchnia podłogi
Liczymy po obrysie pomieszczenia, bez względu na jego wysokość/skosy. Jeśli nie ma skosów to powierzchnia podłogi i pomieszczenia jest taka sama.
pomieszczenia
podłogi
1. Korytarz
4,07
4,07
2. Pokój
10,14
10,27
3. Pokój
12,37
12,46
4. Pokój
8,10
8,10
5. Łazienka
4,62
4,62
6. Schody
3,92
3,92
7. Korytarz
3,13
3,13
8. Pokój
10,69
10,69
9. Pokój
11,01
11,01
10. Pokój
7,56
7,56
11. Łazienka
4,40
4,40
12. Schody
3,92
3,92
13. Korytarz
5,02
5,02
14. Pokój
11,17
11,16
15. Pokój
13,70
13,70
16. Pokój
11,64
11,64
17. Łazienka
5,98
6,04
18. Schody
3,65
3,65
19. Korytarz
4,87
4,87
20. Pokój
10,75
10,89
21. Pokój
12,61
12,75
22. Pokój
10,72
10,71
23. Łazienka
6,26
6,31
24. Schody
3,65
3,65
Razem
183,95
184,54

    Usytuowanie na działce

    Czy ten projekt pasuje na
    Twoją działkę?

    Chętnie to sprawdzimy!

    Dowiedz się:

    • czy zmieści się na niej wybrany przez Ciebie dom
    • jakie parametry musi spełniać dom według miejscowego planu zagospodarowania lub warunków zabudowy (np. kąt nachylenia i typ dachu, liczba kondygnacji itp.
    • jakie inne projekty pasują na Twoją działkę – znajdziemy je dla Ciebie!

Pow. użytkowa

316,82 m²

Pokoje

12

Łazienki i WC

8

Garaż

3

Min. szer. i dł. działki

24,95 x 30,85 m

Kąt dachu

30°

Konstrukcja

Murowana
więcej

JB67 - GDA1050

ikona 316,82 m²
Powierzchnia użytkowa
ikona12
Pokoje (bez salonu)
ikona 8
Łazienki (z toaletami)
ikona 3
Liczba stanowisk garażowych
(z wiatą garażową)
ikona
Konstrukcja: Murowana

19 680 zł

Projekt jest dostępny

Gwarancja najniższej ceny
ikona
Darmowa dostawa
Paczkomaty, kurier
ikona
100 dni na wymianę,
30 dni na zwrot
ikona Co zawiera projekt?
  • Projekt zgodny z WT2021, przygotowany przez architekta z uprawnieniami
  • Bezpłatne pozwolenie na zmiany
  • Charakterystyka energetyczna
Konsultant
71 715 20 60

pon.-pt. 8-21, sob. 9-17

Piwnica - 219,53 m²

Piwnica projektu JB67

Zapytaj, co możesz zmienić

Powierzchnia (m²)
Tooltip
Powierzchnia pomieszczenia
to ta, z której faktycznie możesz korzystać – skosy i niskie części poddasza są liczone częściowo lub wcale.
  1. 100% dla wysokości powyżej 2,2 m,
  2. 50% dla wysokości 1,4–2,2 m,
  3. nie liczymy poniżej 1,4 m.

Powierzchnia podłogi
Liczymy po obrysie pomieszczenia, bez względu na jego wysokość/skosy. Jeśli nie ma skosów to powierzchnia podłogi i pomieszczenia jest taka sama.
pomieszczenia i podłogi
podłogi
1. Garaż wielostanowiskowy
199,32
2. Pomieszczenie gospodarcze
3,02
3. Pomieszczenie gospodarcze
3,82
4. Pomieszczenie gospodarcze
4,33
5. Pomieszczenie gospodarcze
3,84
6. Pomieszczenie gospodarcze
5,20
Razem
219,53
219,53

Otrzymasz PDF-y z rzutami wszystkich kondygnacji

Parter - 148,01 m²

Parter projektu JB67

Zapytaj, co możesz zmienić

Powierzchnia (m²)
Tooltip
Powierzchnia pomieszczenia
to ta, z której faktycznie możesz korzystać – skosy i niskie części poddasza są liczone częściowo lub wcale.
  1. 100% dla wysokości powyżej 2,2 m,
  2. 50% dla wysokości 1,4–2,2 m,
  3. nie liczymy poniżej 1,4 m.

Powierzchnia podłogi
Liczymy po obrysie pomieszczenia, bez względu na jego wysokość/skosy. Jeśli nie ma skosów to powierzchnia podłogi i pomieszczenia jest taka sama.
pomieszczenia
podłogi
1. Hall
3,77
3,84
2. Wc
3,19
3,19
3. Pokój dzienny + kuchnia + jadalnia
32,39
35,13
4. Hall
2,76
2,97
5. Wc
3,19
3,19
6. Pokój dzienny + kuchnia + jadalnia
30,77
33,21
7. Hall
2,76
2,76
8. Wc
2,43
2,82
9. Pokój dzienny + kuchnia + jadalnia
31,51
33,81
10. Hall
2,75
2,75
11. Wc
2,41
2,82
12. Pokój dzienny + kuchnia + jadalnia
30,08
32,38
Razem
148,01
158,87

Otrzymasz PDF-y z rzutami wszystkich kondygnacji

Piętro 1 - 183,95 m²

Piętro 1 projektu JB67

Zapytaj, co możesz zmienić

Powierzchnia (m²)
Tooltip
Powierzchnia pomieszczenia
to ta, z której faktycznie możesz korzystać – skosy i niskie części poddasza są liczone częściowo lub wcale.
  1. 100% dla wysokości powyżej 2,2 m,
  2. 50% dla wysokości 1,4–2,2 m,
  3. nie liczymy poniżej 1,4 m.

Powierzchnia podłogi
Liczymy po obrysie pomieszczenia, bez względu na jego wysokość/skosy. Jeśli nie ma skosów to powierzchnia podłogi i pomieszczenia jest taka sama.
pomieszczenia
podłogi
1. Korytarz
4,07
4,07
2. Pokój
10,14
10,27
3. Pokój
12,37
12,46
4. Pokój
8,10
8,10
5. Łazienka
4,62
4,62
6. Schody
3,92
3,92
7. Korytarz
3,13
3,13
8. Pokój
10,69
10,69
9. Pokój
11,01
11,01
10. Pokój
7,56
7,56
11. Łazienka
4,40
4,40
12. Schody
3,92
3,92
13. Korytarz
5,02
5,02
14. Pokój
11,17
11,16
15. Pokój
13,70
13,70
16. Pokój
11,64
11,64
17. Łazienka
5,98
6,04
18. Schody
3,65
3,65
19. Korytarz
4,87
4,87
20. Pokój
10,75
10,89
21. Pokój
12,61
12,75
22. Pokój
10,72
10,71
23. Łazienka
6,26
6,31
24. Schody
3,65
3,65
Razem
183,95
184,54

Otrzymasz PDF-y z rzutami wszystkich kondygnacji

Zamów rysunki szczegółowe

Zapoznaj się ze szczegółowymi rysunkami rzutów kondygnacji w PDF dla tego projektu.

Elewacje

Frontowa
Tylna
Lewa
Prawa

Przekroje

Przekrój pionowy

Usytuowanie na działce

Czy ten projekt pasuje na
Twoją działkę?

Chętnie to sprawdzimy!

Czy ten projekt pasuje na
Twoją działkę?

Chętnie to sprawdzimy!

Dowiedz się:

  • czy zmieści się na niej wybrany przez Ciebie dom
  • jakie parametry musi spełniać dom według miejscowego planu zagospodarowania lub warunków zabudowy (np. kąt nachylenia i typ dachu, liczba kondygnacji itp.
  • jakie inne projekty pasują na Twoją działkę – znajdziemy je dla Ciebie!
Autor: Jota

Dane techniczne projektu

Powierzchnie i wymiary Powierzchnie i wymiary

Powierzchnia użytkowa
Tooltip
Suma powierzchni wszystkich pomieszczeń mieszkalnych, pomniejszona o pow. garażu, kotłowni, strychu, piwnicy. Jest liczona w 100% dla pomieszczeń o wysokości powyżej 2,2 m, w 50% dla pomieszczeń o wys. 2,2-1,4 m i niewliczana dla niższych niż 1,4 m.

316,82 m²

Powierzchnia zabudowy
Tooltip
Powierzchnia zajmowana przez część na- oraz nadziemną budynku liczona, jako rzut pionowy budynku na działkę.

225,49 m²

Powierzchnia całkowita
Tooltip
Całkowita powierzchnia wszystkich kondygnacji budynku łącznie z elementami nośnymi, takimi jak ściany zewnętrzne (z ociepleniem), słupy, tarasy, itp.

663,82 m²

Powierzchnia netto
Tooltip
Powierzchna wszystkich pomieszczeń w budynku mierzona na wysokości podłogi.

562,71 m²

Kubatura brutto
Tooltip
Zazwyczaj jest to suma kubatur (objętości) wszystkich pomieszczeń budynku, liczonych po zewnętrznym obrysie murów (z ociepleniem).

2 090 m³

Powierzchnia dachu

228 m²

Kąt nachylenia dachu
Tooltip
Nachylenie połaci dachu głównego podawane w stopniach. Uwaga! W niektórych projektach występuje więcej niż jedno nachylenie dachu.

30°

Wysokość budynku
Tooltip
Wysokość liczona od części budynku położonej najniżej przy powierzchni terenu do najwyższego punktu dachu (kalenicy) z wyłączeniem kominów.

9,95 m

Szerokość elewacji

14,95 m

Długość elewacji

16,49 m

Min. szerokość działki
Tooltip
Najmniejsza możliwa szerokość działki niezbędna do wybudowania wybranego domu. Składa się z szerokości elewacji domu powiększonej z obu stron o 3 m dla ściany bez otworów drzwiowych/okiennych lub 4 m, dla ściany z otworami.

24,95 m

Min. długość działki
Tooltip
Najmniejsza możliwa długość działki niezbędna do wybudowania wybranego domu. Składa się z długości elewacji domu powiększonej z obu stron o 3 m dla ściany bez otworów drzwiowych/okiennych lub 4 m, dla ściany z otworami.

30,85 m

Energooszczędność Energooszczędność

Oze Czym jest OZE (Odnawialne Źródło Energii)?
Ep
Tooltip
Energia pierwotna określa ilość energii nieodnawialnej potrzebnej w ciągu roku do ogrzewania czy też ogrzania wody użytkowej z uwzględnieniem kosztów produkcji i transportu surowców energetycznych.

65 kWh/(m²rok)

Ogrzewanie główne

Gazowe - szczegóły

Interesuje Cię inne źródło ogrzewania? Wyślij zapytanie lub zadzwoń do doradcy

Wentylacja

Mechaniczna - szczegóły

Warunki techniczne

Projekt zgody z WT 2021

Technologia i konstrukcja Technologia i konstrukcja

Konstrukcja

Murowana

Opis szczegółowy

Posadowienie budynku: ławy fundamentowe; Ściany zewnętrzne: bl.silikatowe 18 cm + styropian 20 cm; Ściany wewnętrzne: żelbetowe 24 cm, bl. silikatowe 18/12/8 cm; Strop nad parterem: żelbetowy; Konstrukcja dachu: drewniana; Pokrycie dachu: dachówka betonowa; Elewacja: tynk, płytki klinkierowe; Wentylacja: mechaniczna wyciągowa; Ogrzewanie podstawowe: gaz;

Strop

Żelbetowy

Reklama
Okna i drzwi tarasowe

Nowoczesne okna PVC i aluminiowe WIŚNIOWSKI – doskonała izolacja, elegancki design i niezrównana trwałość.

Wiśniowski
Sprawdź parametry!
Okna dachowe

Oferujemy bezpłatne konsultacje w zakresie wszystkich rozwiązań VELUX. Wyceny, porady dotyczące doboru okien i rolet zewnętrznych - sprawdź!

Velux
Sprawdź szczegóły
Pompa ciepła

Wybierz pompę ciepła, która pasuje do Twojego domu. Niezależnie od tego, czy ustawienie wewnątrz czy na zewnątrz, pompy ciepła STIEBEL ELTRON dopasują się do każdej przestrzeni.

Stiebel
Dobierz pompę ciepła
Płytki ceramiczne i gresy

Od małych formatów po wielkoformatowe gresy. Marmur, beton, drewno, kamień, lastryko czy cegiełki zamówisz wygodnie online z szybką dostawą.

Ceramzet
Sprawdź ofertę
Elewacja

Kup przez internet wszystkie materiały potrzebne do wykonania elewacji: styropian, płyty PIR, XPS, kleje, tynki. Najlepsze marki w super cenach z dostawą pod dom.

Hurtownia styropianu
Sprawdź ofertę!
Drzwi

Ciepłe drzwi WIŚNIOWSKI z kontrolą dostępu. Szeroka gama wzorów i kolorów.

Wiśniowski
Wybierz najlepsze
Bramy garażowe

Automatyczne bramy garażowe segmentowe i uchylne WIŚNIOWSKI na wymiar i z systemem smart home w standardzie.

Wiśniowski
Sprawdź ofertę!
Rekuperacja

Alnor - kompletny system rekuperacji. Dobierz idealne rozwiązanie dla Twojego domu!

Alnor
Dobierz rekuperator
Dach

Producent stalowych pokryć dachowych i systemów elewacyjnych. Precyzja wykonania, trwałość na lata i szybki montaż doceniany przez dekarzy. Postaw na solidny dach Budmat.

Budmat
Sprawdź ofertę
Ogrodzenie

Nowoczesne stalowe ogrodzenia Budmat - estetyka, bezpieczeństwo i trwałość na lata. Systemowe rozwiązania na wymiar, dopasowane do każdego domu.

Budmat
Sprawdź ofertę

Opis projektu budynku
JB67

Ten nowoczesny budynek mieszkalny to połączenie minimalistycznej architektury i wyjątkowo funkcjonalnego układu wnętrz. Obiekt składa się z czterech lokali mieszkalnych, zorganizowanych w układzie dwukondygnacyjnym: wygodny parter z częścią dzienną oraz pełne zaplecze prywatne na piętrze. Prosty, klarowny rzut oraz czyste linie elewacji tworzą spójną, współczesną formę. Na parterze każdego lokalu znajduje się komfortowa i jasna strefa dzienna: hol, WC oraz przestronny salon połączony z aneksem kuchennym. To otwarte i łatwe w aranżacji wnętrze, idealne zarówno do codziennego funkcjonowania, jak i przyjmowania gości. Powierzchnie użytkowe części dziennej wynoszą od ok. 35 do 39 m², w zależności od lokalu. Piętro pełni funkcję strefy prywatnej. Znajdują się tu wygodne sypialnie, łazienka oraz komunikacja. Każdy lokal oferuje 3 pokoje na piętrze, co pozwala na dopasowanie układu do różnych potrzeb — domowych biur, pokoi dziecięcych, sypialni lub przestrzeni hobby. Powierzchnia użytkowa piętra to od 37 do 48 m². To idealne rozwiązanie dla osób ceniących nowoczesną estetykę, praktyczne rozkłady pomieszczeń i komfort codziennego życia.
Czytaj więcej

Polecani producenci

Kompletne systemy rekuperacji

tło producenta

Alnor

Dowiedz się więcej

Dachy modułowe ze stali

tło producenta

Budmat

Poznaj szczegóły oferty

Prefabrykowane konstrukcje dachowe

tło producenta

WIĄZAR POLSKA

Zobacz więcej

Sprawdź nową generację okien GREENVIEW

tło producenta

FAKRO

Sprawdź nową generację okien GREENVIEW

Styropian, tynki, farby, kleje

tło producenta

Termo Organika

Poznaj super jakość

Okna, drzwi, osłony przeciwsłoneczne

tło producenta

Aluprof

Sprawdź ofertę
Zobacz więcej

Społeczność projektu budynku
JB67 w budowie

Dołącz do społeczności osób, które budują ten dom lub są zainteresowane jego budową.

  • Oglądaj zdjęcia z budowy
  • Zadawaj pytania
  • Wymieniaj się doświadczeniami

Opinie o projekcie budynku JB67

Ocena

Ten projekt nie ma jeszcze opinii, bądź pierwszy!

Dodaj opinię

ASYSTENT WYBORU PROJEKTU

Szukasz idealnego projektu? Znajdziemy go dla Ciebie!

Doradca na podstawie Twoich wskazówek przygotuje spersonalizowaną listę projektów

Graficzne opracowanie rzutów poglądowych widocznych na karcie projektu zostało wykonane przez Extradom.pl. Prezentowane przez Extradom.pl wizualizacje wykonane zostały przez autora projektu i należy poczytywać je jedynie za przykład i propozycję wykończenia, wizję architektoniczną autora projektu. Ostateczne wykończenie budynku może nastąpić na wiele sposobów. Szczegółowe rozwiązania zastosowane w oferowanej dokumentacji - w tym również ilość, lokalizacje i wygląd okien, drzwi, kominów - mogą w niewielkim stopniu różnić się od prezentowanej wizualizacji budynku.

REKLAMA
Zamknij