Projekty nawet 500 zł taniej ❄️

Koniec oferty za:

0dni

00godz.

00min.

00sek.

Sprawdź

Projekt budynku Dante SLT1005

Dodano!
Dodano!

Warstwy

Warstwy

Warstwy

Rzut parteru

Powierzchnia (m²)
Tooltip
Powierzchnia pomieszczenia
to ta, z której faktycznie możesz korzystać – skosy i niskie części poddasza są liczone częściowo lub wcale.
  1. 100% dla wysokości powyżej 2,2 m,
  2. 50% dla wysokości 1,4–2,2 m,
  3. nie liczymy poniżej 1,4 m.

Powierzchnia podłogi
Liczymy po obrysie pomieszczenia, bez względu na jego wysokość/skosy. Jeśli nie ma skosów to powierzchnia podłogi i pomieszczenia jest taka sama.
pomieszczenia i podłogi
podłogi
1. Garaż wielostanowiskowy
99,82
2. Komórka lokatorska
2,96
3. Komórka lokatorska
2,96
4. Komórka lokatorska
2,96
5. Komórka lokatorska
2,96
6. Komórka lokatorska
2,96
7. Kotłownia
5
8. Śmietnik
9,14
9. Garaż wielostanowiskowy
143,90
10. Komórka lokatorska
4,22
11. Komórka lokatorska
4,22
12. Komórka lokatorska lokatorska
4,22
13. Komórka lokatorska
4,22
14. Komórka lokatorska
4,22
15. Pomieszczenie gospodarcze
5,32
16. Schody
8,03
17. Przedsionek ppoż.
7,94
18. Winda
7,94
Razem
322,99
322,99
Powierzchnia (m²)
Tooltip
Powierzchnia pomieszczenia
to ta, z której faktycznie możesz korzystać – skosy i niskie części poddasza są liczone częściowo lub wcale.
  1. 100% dla wysokości powyżej 2,2 m,
  2. 50% dla wysokości 1,4–2,2 m,
  3. nie liczymy poniżej 1,4 m.

Powierzchnia podłogi
Liczymy po obrysie pomieszczenia, bez względu na jego wysokość/skosy. Jeśli nie ma skosów to powierzchnia podłogi i pomieszczenia jest taka sama.
pomieszczenia i podłogi
podłogi
1. M1 korytarz
5,46
2. M1 garderoba
1,97
3. M1 pokój dzienny + kuchnia + jadalnia
20,51
4. M1 łazienka
5,34
5. M1 pokój
13,09
6. M2 korytarz
7,81
7. M2 pokój dzienny + kuchnia + jadalnia
23,95
8. M2 pokój
13,69
9. M2 łazienka
4,74
10. M3 korytarz
4,33
11. M3 pokój dzienny + kuchnia + jadalnia
27,78
12. M3 pokój
13,94
13. M3 łazienka
5,03
14. M4 korytarz
7,98
15. M4 pokój dzienny + kuchnia + jadalnia
28,61
16. M4 pokój
12,36
17. M4 pokój
11,81
18. M4 łazienka
4,66
19. M5 korytarz
5,13
20. M5 garderoba
1,87
21. M5 pokój dzienny + kuchnia + jadalnia
24,96
22. M5 pokój
9,50
23. M5 łazienka
4,99
24. Korytarz + schody
27,75
25. Winda
Razem
287,26
287,26
Powierzchnia (m²)
Tooltip
Powierzchnia pomieszczenia
to ta, z której faktycznie możesz korzystać – skosy i niskie części poddasza są liczone częściowo lub wcale.
  1. 100% dla wysokości powyżej 2,2 m,
  2. 50% dla wysokości 1,4–2,2 m,
  3. nie liczymy poniżej 1,4 m.

Powierzchnia podłogi
Liczymy po obrysie pomieszczenia, bez względu na jego wysokość/skosy. Jeśli nie ma skosów to powierzchnia podłogi i pomieszczenia jest taka sama.
pomieszczenia i podłogi
podłogi
1. M6 korytarz
5,46
2. M6 garderoba
1,97
3. M6 pokój dzienny + kuchnia + jadalnia
20,43
4. M6 łazienka
5,34
5. M6 pokój
13,09
6. M7 korytarz
7,82
7. M7 pokój dzienny + kuchnia + jadalnia
23,87
8. M7 pokój
13,69
9. M7 łazienka
4,74
10. M8 korytarz
4,33
11. M8 pokój dzienny + kuchnia + jadalnia
27,70
12. M8 pokój
13,94
13. M8 łazienka
5,03
14. M9 korytarz
7,98
15. M9 pokój dzienny + kuchnia + jadalnia
28,53
16. M9 pokój
12,36
17. M9 pokój
11,81
18. M9 łazienka
4,66
19. M10 korytarz
5,13
20. M10 garderoba
1,87
21. M10 pokój dzienny + kuchnia + jadalnia
24,87
22. M10 pokój
9,53
23. M10 łazienka
4,99
24. Korytarz + schody
21,35
25. Winda
Razem
280,49
280,49

    Usytuowanie na działce

    Czy ten projekt pasuje na
    Twoją działkę?

    Chętnie to sprawdzimy!

    Dowiedz się:

    • czy zmieści się na niej wybrany przez Ciebie dom
    • jakie parametry musi spełniać dom według miejscowego planu zagospodarowania lub warunków zabudowy (np. kąt nachylenia i typ dachu, liczba kondygnacji itp.
    • jakie inne projekty pasują na Twoją działkę – znajdziemy je dla Ciebie!

Pow. użytkowa

568,95 m²

Pokoje

0

Łazienki i WC

5

Garaż

6

Min. szer. i dł. działki

35 x 21,60 m

Kąt dachu

Konstrukcja

Murowana
więcej

Dante - SLT1005

ikona 568,95 m²
Powierzchnia użytkowa
ikona0
Pokoje (bez salonu)
ikona 5
Łazienki (z toaletami)
ikona 6
Liczba stanowisk garażowych
(z wiatą garażową)
ikona
Konstrukcja: Murowana

Cena projektu:

30 750 zł

Gwarancja najniższej ceny Gwarancja najniższej ceny Tooltip

Projekt jest dostępny Tooltip

100 dni na wymianę, 30 dni na zwrot

Darmowa dostawa - kurier, paczkomaty

Bezpłatne pozwolenie na zmiany

Dokumentacja zgodna z WT2021

Pokaż więcej (2)
Konsultant Masz pytania?
Zadzwoń
71 715 20 60

pon.-pt. 8-21, sob. 9-17

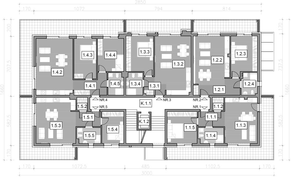
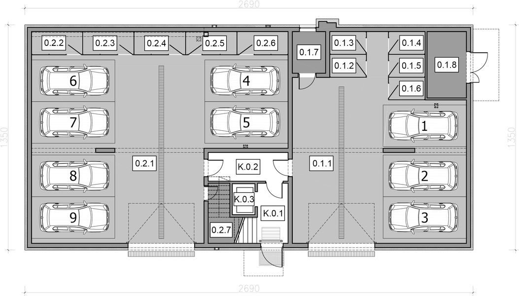
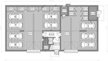
Parter - 322,99 m²

Parter projektu Dante

Zapytaj, co możesz zmienić

Powierzchnia (m²)
Tooltip
Powierzchnia pomieszczenia
to ta, z której faktycznie możesz korzystać – skosy i niskie części poddasza są liczone częściowo lub wcale.
  1. 100% dla wysokości powyżej 2,2 m,
  2. 50% dla wysokości 1,4–2,2 m,
  3. nie liczymy poniżej 1,4 m.

Powierzchnia podłogi
Liczymy po obrysie pomieszczenia, bez względu na jego wysokość/skosy. Jeśli nie ma skosów to powierzchnia podłogi i pomieszczenia jest taka sama.
pomieszczenia i podłogi
podłogi
1. Garaż wielostanowiskowy
99,82
2. Komórka lokatorska
2,96
3. Komórka lokatorska
2,96
4. Komórka lokatorska
2,96
5. Komórka lokatorska
2,96
6. Komórka lokatorska
2,96
7. Kotłownia
5
8. Śmietnik
9,14
9. Garaż wielostanowiskowy
143,90
10. Komórka lokatorska
4,22
11. Komórka lokatorska
4,22
12. Komórka lokatorska lokatorska
4,22
13. Komórka lokatorska
4,22
14. Komórka lokatorska
4,22
15. Pomieszczenie gospodarcze
5,32
16. Schody
8,03
17. Przedsionek ppoż.
7,94
18. Winda
7,94
Razem
322,99
322,99

Natychmiast, otrzymasz PDF-y
z rzutami wszystkich kondygnacji

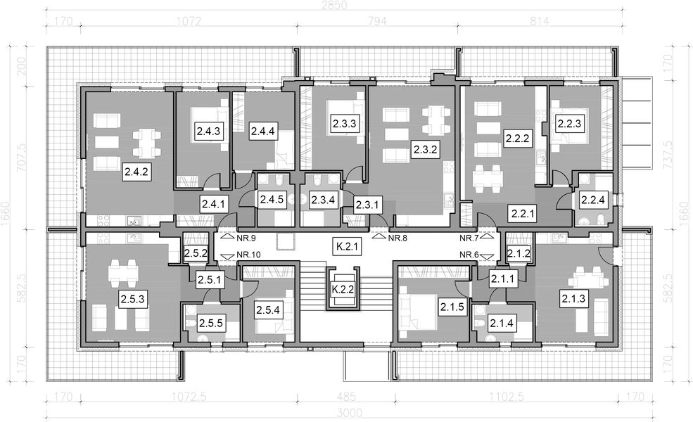
Piętro 1 - 287,26 m²

Piętro 1 projektu Dante

Zapytaj, co możesz zmienić

Powierzchnia (m²)
Tooltip
Powierzchnia pomieszczenia
to ta, z której faktycznie możesz korzystać – skosy i niskie części poddasza są liczone częściowo lub wcale.
  1. 100% dla wysokości powyżej 2,2 m,
  2. 50% dla wysokości 1,4–2,2 m,
  3. nie liczymy poniżej 1,4 m.

Powierzchnia podłogi
Liczymy po obrysie pomieszczenia, bez względu na jego wysokość/skosy. Jeśli nie ma skosów to powierzchnia podłogi i pomieszczenia jest taka sama.
pomieszczenia i podłogi
podłogi
1. M1 korytarz
5,46
2. M1 garderoba
1,97
3. M1 pokój dzienny + kuchnia + jadalnia
20,51
4. M1 łazienka
5,34
5. M1 pokój
13,09
6. M2 korytarz
7,81
7. M2 pokój dzienny + kuchnia + jadalnia
23,95
8. M2 pokój
13,69
9. M2 łazienka
4,74
10. M3 korytarz
4,33
11. M3 pokój dzienny + kuchnia + jadalnia
27,78
12. M3 pokój
13,94
13. M3 łazienka
5,03
14. M4 korytarz
7,98
15. M4 pokój dzienny + kuchnia + jadalnia
28,61
16. M4 pokój
12,36
17. M4 pokój
11,81
18. M4 łazienka
4,66
19. M5 korytarz
5,13
20. M5 garderoba
1,87
21. M5 pokój dzienny + kuchnia + jadalnia
24,96
22. M5 pokój
9,50
23. M5 łazienka
4,99
24. Korytarz + schody
27,75
25. Winda
Razem
287,26
287,26

Natychmiast, otrzymasz PDF-y
z rzutami wszystkich kondygnacji

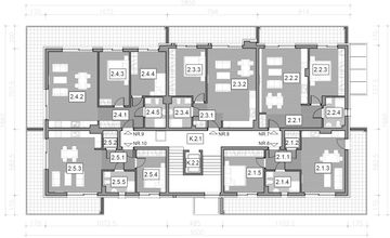
Piętro 2 - 280,49 m²

Piętro 2 projektu Dante

Zapytaj, co możesz zmienić

Powierzchnia (m²)
Tooltip
Powierzchnia pomieszczenia
to ta, z której faktycznie możesz korzystać – skosy i niskie części poddasza są liczone częściowo lub wcale.
  1. 100% dla wysokości powyżej 2,2 m,
  2. 50% dla wysokości 1,4–2,2 m,
  3. nie liczymy poniżej 1,4 m.

Powierzchnia podłogi
Liczymy po obrysie pomieszczenia, bez względu na jego wysokość/skosy. Jeśli nie ma skosów to powierzchnia podłogi i pomieszczenia jest taka sama.
pomieszczenia i podłogi
podłogi
1. M6 korytarz
5,46
2. M6 garderoba
1,97
3. M6 pokój dzienny + kuchnia + jadalnia
20,43
4. M6 łazienka
5,34
5. M6 pokój
13,09
6. M7 korytarz
7,82
7. M7 pokój dzienny + kuchnia + jadalnia
23,87
8. M7 pokój
13,69
9. M7 łazienka
4,74
10. M8 korytarz
4,33
11. M8 pokój dzienny + kuchnia + jadalnia
27,70
12. M8 pokój
13,94
13. M8 łazienka
5,03
14. M9 korytarz
7,98
15. M9 pokój dzienny + kuchnia + jadalnia
28,53
16. M9 pokój
12,36
17. M9 pokój
11,81
18. M9 łazienka
4,66
19. M10 korytarz
5,13
20. M10 garderoba
1,87
21. M10 pokój dzienny + kuchnia + jadalnia
24,87
22. M10 pokój
9,53
23. M10 łazienka
4,99
24. Korytarz + schody
21,35
25. Winda
Razem
280,49
280,49

Natychmiast, otrzymasz PDF-y
z rzutami wszystkich kondygnacji

Zamów rysunki szczegółowe

Zapoznaj się ze szczegółowymi rysunkami rzutów kondygnacji w PDF dla tego projektu.

Podobne projekty (4)

PROMOCJA
Zdjęcie 1 projektu San Pedro 2 - budynek wielorodzinny z balkonami SLN2691
629,84 m²
13
3
6

10 400 zł

10 700 zł

Tooltip

Cena regularna

10 200 zł najniższa cena
Tooltip

Najniższa cena z 30 dni
przed obniżką

PROMOCJA
Zdjęcie 1 projektu San Pedro - budynek wielorodzinny SLN2685
629,84 m²
14
3
6

9 900 zł

10 200 zł

Tooltip

Cena regularna

9 700 zł najniższa cena
Tooltip

Najniższa cena z 30 dni
przed obniżką

PROMOCJA
Zdjęcie 1 projektu San vito - budynek wielorodzinny SLN2549
460,34 m²
11
4
0

8 900 zł

9 200 zł

Tooltip

Cena regularna

8 700 zł najniższa cena
Tooltip

Najniższa cena z 30 dni
przed obniżką

Zdjęcie 1 projektu KA132 PKT1151
KA132
Dodano!
Dodano!
305,76 m²
0
2
4

11 299 zł

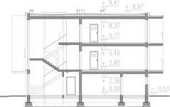
Przekroje

Przekrój pionowy
Przekrój pionowy 2

Usytuowanie na działce

Czy ten projekt pasuje na
Twoją działkę?

Chętnie to sprawdzimy!

Czy ten projekt pasuje na
Twoją działkę?

Chętnie to sprawdzimy!

Dowiedz się:

  • czy zmieści się na niej wybrany przez Ciebie dom
  • jakie parametry musi spełniać dom według miejscowego planu zagospodarowania lub warunków zabudowy (np. kąt nachylenia i typ dachu, liczba kondygnacji itp.
  • jakie inne projekty pasują na Twoją działkę – znajdziemy je dla Ciebie!
Autor: Attyka Piotr Kędzierski

Dane techniczne projektu

Powierzchnie i wymiary Powierzchnie i wymiary

Powierzchnia użytkowa
Tooltip
Suma powierzchni wszystkich pomieszczeń mieszkalnych, pomniejszona o pow. garażu, kotłowni, strychu, piwnicy. Jest liczona w 100% dla pomieszczeń o wysokości powyżej 2,2 m, w 50% dla pomieszczeń o wys. 2,2-1,4 m i niewliczana dla niższych niż 1,4 m.

568,95 m²

Powierzchnia zabudowy
Tooltip
Powierzchnia zajmowana przez część na- oraz nadziemną budynku liczona, jako rzut pionowy budynku na działkę.

364,50 m²

Powierzchnia całkowita
Tooltip
Całkowita powierzchnia wszystkich kondygnacji budynku łącznie z elementami nośnymi, takimi jak ściany zewnętrzne (z ociepleniem), słupy, tarasy, itp.

1 300,55 m²

Powierzchnia netto
Tooltip
Powierzchna wszystkich pomieszczeń w budynku mierzona na wysokości podłogi.

889,38 m²

Kubatura netto
Tooltip
Zazwyczaj jest to suma kubatur (objętości) pomieszczeń budynku, bez strychu, liczonych po zewnętrznym obrysie murów (z ociepleniem).

1 568,80 m³

Kubatura brutto
Tooltip
Zazwyczaj jest to suma kubatur (objętości) wszystkich pomieszczeń budynku, liczonych po zewnętrznym obrysie murów (z ociepleniem).

2 420,40 m³

Powierzchnia dachu

364,15 m²

Kąt nachylenia dachu
Tooltip
Nachylenie połaci dachu głównego podawane w stopniach. Uwaga! W niektórych projektach występuje więcej niż jedno nachylenie dachu.

Wysokość budynku
Tooltip
Wysokość liczona od części budynku położonej najniżej przy powierzchni terenu do najwyższego punktu dachu (kalenicy) z wyłączeniem kominów.

9 m

Szerokość elewacji

13,50 m

Długość elewacji

27 m

Min. szerokość działki
Tooltip
Najmniejsza możliwa szerokość działki niezbędna do wybudowania wybranego domu. Składa się z szerokości elewacji domu powiększonej z obu stron o 3 m dla ściany bez otworów drzwiowych/okiennych lub 4 m, dla ściany z otworami.

35 m

Min. długość działki
Tooltip
Najmniejsza możliwa długość działki niezbędna do wybudowania wybranego domu. Składa się z długości elewacji domu powiększonej z obu stron o 3 m dla ściany bez otworów drzwiowych/okiennych lub 4 m, dla ściany z otworami.

21,60 m

Energooszczędność Energooszczędność

Oze Czym jest OZE (Odnawialne Źródło Energii)?
Ep
Tooltip
Energia pierwotna określa ilość energii nieodnawialnej potrzebnej w ciągu roku do ogrzewania czy też ogrzania wody użytkowej z uwzględnieniem kosztów produkcji i transportu surowców energetycznych.

63,10 kWh/(m²rok)

Euco
Tooltip
Energia użytkowa potrzebna do ogrzewania i wentylacji. Im parametr jest niższy tym budynek bardziej energooszczędny.

41,83 kWh/(m²rok)

Warunki techniczne

Projekt zgody z WT 2021

Technologia i konstrukcja Technologia i konstrukcja

Konstrukcja

Murowana

Opis szczegółowy

Fundamenty: bezpośrednie, na płycie fundamentowej. Ściany zewnętrzne: Pustak ceramiczny Porotherm - 25 cm + styropian EPS 80 – 20 cm. Ściany wewnętrzne: Nośne - pustak ceramiczny Porotherm (25 cm). Działowe - pustak ceramiczny Porotherm (11,5 cm) lub cegła kratówka (12 cm). Strop: płyta żelbetowa. Elewacje: tynk silikonowy, okładzina z drewna. Pokrycie dachu: membrana pvc gr. 1.5 mm, blacha ocynkowana powlekana gr.0,5 5mm. Konstrukcja dachu: płyta żelbetowa. Schody wewnętrzne: żelbetowe monolityczne dwubiegowe płytowe

Strop

Żelbetowy

Reklama
Okna i drzwi tarasowe

Nowoczesne okna PVC i aluminiowe WIŚNIOWSKI – doskonała izolacja, elegancki design i niezrównana trwałość.

Wiśniowski
Sprawdź parametry!
Okna dachowe

Oferujemy bezpłatne konsultacje w zakresie wszystkich rozwiązań VELUX. Wyceny, porady dotyczące doboru okien i rolet zewnętrznych - sprawdź!

Velux
Sprawdź szczegóły
Płytki ceramiczne i gresy

Od małych formatów po wielkoformatowe gresy. Marmur, beton, drewno, kamień, lastryko czy cegiełki zamówisz wygodnie online z szybką dostawą.

Ceramzet
Sprawdź ofertę
Drzwi

Ciepłe drzwi WIŚNIOWSKI z kontrolą dostępu. Szeroka gama wzorów i kolorów.

Wiśniowski
Wybierz najlepsze
Bramy garażowe

Automatyczne bramy garażowe segmentowe i uchylne WIŚNIOWSKI na wymiar i z systemem smart home w standardzie.

Wiśniowski
Sprawdź ofertę!
Armatura i ceramika łazienkowa

Topowi producenci. Baterie łazienkowe, zestawy natynkowe i podtynkowe, umywalki, wanny, miski WC oraz kabiny zamówisz kompleksowo online.

Ceramzet II
Dowiedz się więcej
Rekuperacja

Alnor - kompletny system rekuperacji. Dobierz idealne rozwiązanie dla Twojego domu!

Alnor
Dobierz rekuperator
Gruntowe pompy ciepła

Przeprowadzimy kompletną instalację najbardziej oszczędnego źródła ciepła w Twoim nowym domu - gruntowej pompy ciepła. Od dokumentacji, pozwoleń, po odwierty i instalację.

Geothermal Solutions
Dowiedz się więcej

Opis projektu budynku
Dante

Projekt Dante to trzy-kondygnacyjny budynek wielorodzinny, w którym zaprojektowano 10 mieszkań, w tym dwa mieszkania 3-pokojowe, osiem mieszkań 2-pokojowych. Na parterze rozmieszczono garaż na 9 stanowisk oraz komórki lokatorskie. Każde z mieszkań posiada przestrzenny balkon, który jest dodatkowym atutem. Budynek wyróżnia się prostą bryłą przykrytą stropodachem oraz tradycyjnymi elementami wykończenia elewacji.
Czytaj więcej

Polecani producenci

Prefabrykowane konstrukcje dachowe

tło producenta

WIĄZAR POLSKA

Zobacz więcej

Sprawdź nową generację okien GREENVIEW

tło producenta

FAKRO

Sprawdź nową generację okien GREENVIEW

Styropian, tynki, farby, kleje

tło producenta

Termo Organika

Poznaj super jakość

Okna, drzwi, osłony przeciwsłoneczne

tło producenta

Aluprof

Sprawdź ofertę

Kompletne systemy rekuperacji

tło producenta

Alnor

Dowiedz się więcej

Sprawdź nowy system DACHRYNNA

tło producenta

Galeco

Sprawdź ofertę
Zobacz więcej

Społeczność projektu budynku
Dante w budowie

Dołącz do społeczności osób, które budują ten dom lub są zainteresowane jego budową.

  • Oglądaj zdjęcia z budowy
  • Zadawaj pytania
  • Wymieniaj się doświadczeniami

Opinie o projekcie budynku Dante

Ocena

Ten projekt nie ma jeszcze opinii, bądź pierwszy!

Dodaj opinię

ASYSTENT WYBORU PROJEKTU

Szukasz idealnego projektu? Znajdziemy go dla Ciebie!

Doradca na podstawie Twoich wskazówek przygotuje spersonalizowaną listę projektów

Graficzne opracowanie rzutów poglądowych widocznych na karcie projektu zostało wykonane przez Extradom.pl. Prezentowane przez Extradom.pl wizualizacje wykonane zostały przez autora projektu i należy poczytywać je jedynie za przykład i propozycję wykończenia, wizję architektoniczną autora projektu. Ostateczne wykończenie budynku może nastąpić na wiele sposobów. Szczegółowe rozwiązania zastosowane w oferowanej dokumentacji - w tym również ilość, lokalizacje i wygląd okien, drzwi, kominów - mogą w niewielkim stopniu różnić się od prezentowanej wizualizacji budynku.

REKLAMA
Zamknij