👉 Wiosenne rabaty + karta allegro 200 zł! 🔥

Koniec oferty za:

00godz.

00min.

00sek.

Sprawdź

Dom prefabrykowany P.11 bliźniak

HPK1016

Dodaj

Dodano!

Porównaj

Dodano!

Drukuj

Rzut parteru

Powierzchnia (m²)
Tooltip
Powierzchnia pomieszczenia
to ta, z której faktycznie możesz korzystać – skosy i niskie części poddasza są liczone częściowo lub wcale.
  1. 100% dla wysokości powyżej 2,2 m,
  2. 50% dla wysokości 1,4–2,2 m,
  3. nie liczymy poniżej 1,4 m.

Powierzchnia podłogi
Liczymy po obrysie pomieszczenia, bez względu na jego wysokość/skosy. Jeśli nie ma skosów to powierzchnia podłogi i pomieszczenia jest taka sama.
pomieszczenia i podłogi
podłogi
1. Wiatrołap
3,30
2. Wc
4,04
3. Korytarz
4,98
4. Pokój dzienny + jadalnia + kuchnia
36,22
5. Pomieszczenie gospodarcze
2,04
6. Garaż jednostanowiskowy
16,90
Razem
67,48
67,48
Powierzchnia (m²)
Tooltip
Powierzchnia pomieszczenia
to ta, z której faktycznie możesz korzystać – skosy i niskie części poddasza są liczone częściowo lub wcale.
  1. 100% dla wysokości powyżej 2,2 m,
  2. 50% dla wysokości 1,4–2,2 m,
  3. nie liczymy poniżej 1,4 m.

Powierzchnia podłogi
Liczymy po obrysie pomieszczenia, bez względu na jego wysokość/skosy. Jeśli nie ma skosów to powierzchnia podłogi i pomieszczenia jest taka sama.
pomieszczenia i podłogi
podłogi
1. Korytarz
4,46
2. Łazienka
4,83
3. Pokój
14,20
4. Pokój
16,70
5. Pokój
16,93
6. Łazienka
7,17
7. Garderoba
2,66
8. Pomieszczenie gospodarcze
2,35
Razem
69,30
69,30

Pow. użytkowa

245,76 m²

Pow. zabudowy

181,44 m²

Pokoje

3

Łazienki i WC

3

Garaż

1

Min. szer. i dł. działki:

20,82 m x 20 m

Technologia

Prefabrykat betonowy

więcej

Dom wycofany z oferty

W razie pytań prosimy o kontakt z doradcą. Polecamy zobaczyć podobne domy gotowe.

Wolne terminy!
Umów wizytę w
domu pokazowym
  • Jak wygląda proces budowy?
  • Ile trwa budowa i jakie terminy są dostępne?
  • Jak się mieszka w takim domu!

Zobacz podobne domy gotowe

1

/

3

Zdjęcie Bergen 130
Bergen 130
Dodano!
Dodano!
Pow. użytkowa
130,40 m²
Pow. zabudowy
156,42 m²
Pokoje
4
529 000 zł 4 057 zł/m²
Zdjęcie Dom prefabrykowany P.12 z okapem
Pow. użytkowa
190,98 m²
Pow. zabudowy
147,44 m²
Pokoje
5
916 500 zł 4 799 zł/m²
Zdjęcie Dom prefabrykowany P.12 bez okapu
Pow. użytkowa
190,98 m²
Pow. zabudowy
147,44 m²
Pokoje
5
886 500 zł 4 642 zł/m²
Zdjęcie Dom prefabrykowany P.6
Dom prefabrykowany P.6
Dodano!
Dodano!
Pow. użytkowa
176,69 m²
Pow. zabudowy
148,18 m²
Pokoje
4
972 700 zł 5 505 zł/m²
Zdjęcie Dom prefabrykowany Stodoła 170A
Pow. użytkowa
175,42 m²
Pow. zabudowy
92,09 m²
Pokoje
3
650 000 zł 3 705 zł/m²
Zdjęcie Dom prefabrykowany Stodoła 170B
Pow. użytkowa
175,12 m²
Pow. zabudowy
117,04 m²
Pokoje
4
650 000 zł 3 712 zł/m²
Zdjęcie Dom szkieletowy Viking Smart 220
Pow. użytkowa
163,86 m²
Pow. zabudowy
168,92 m²
Pokoje
4
1 095 606 zł 6 686 zł/m²
Zdjęcie Dom prefabrykowany DH174
Dom prefabrykowany DH174
Dodano!
Dodano!
Pow. użytkowa
162,97 m²
Pow. zabudowy
173,59 m²
Pokoje
4
1 026 000 zł 6 296 zł/m²
Zdjęcie Dom prefabrykowany P.4 bez okapu
Pow. użytkowa
162,18 m²
Pow. zabudowy
111,76 m²
Pokoje
5
723 500 zł 4 461 zł/m²
Zdjęcie Dom prefabrykowany P.4 z okapem
Pow. użytkowa
162,18 m²
Pow. zabudowy
111,76 m²
Pokoje
5
739 600 zł 4 560 zł/m²
Zdjęcie Dom prefabrykowany P.2
Dom prefabrykowany P.2
Dodano!
Dodano!
Pow. użytkowa
159,18 m²
Pow. zabudowy
249,56 m²
Pokoje
5
847 000 zł 5 321 zł/m²
Zdjęcie Dom prefabrykowany Parterowy 150A
Pow. użytkowa
150,51 m²
Pow. zabudowy
179,37 m²
Pokoje
4
590 000 zł 3 920 zł/m²
RZUTY

Rozmieszczenie
pomieszczeń

Parter - 67,48 m²

Wymiary wewnętrzne

Powierzchnie pomieszczeń

Oznaczenia na rzutach

Lodówka

Suszarka

Zmywarka

Suszarka nad pralką

Kuchenka

Pralka

Piekarnik

Szafa

Kocioł

Pompa ciepła

Kominek

Rekuperacja

Szerokość stolarki
Wysokość stolarki

Legenda Zobacz oznaczenia użyte na rzutach

Powierzchnia (m²)
Tooltip
Powierzchnia pomieszczenia
to ta, z której faktycznie możesz korzystać – skosy i niskie części poddasza są liczone częściowo lub wcale.
  1. 100% dla wysokości powyżej 2,2 m,
  2. 50% dla wysokości 1,4–2,2 m,
  3. nie liczymy poniżej 1,4 m.

Powierzchnia podłogi
Liczymy po obrysie pomieszczenia, bez względu na jego wysokość/skosy. Jeśli nie ma skosów to powierzchnia podłogi i pomieszczenia jest taka sama.
pomieszczenia i podłogi
podłogi
1. Wiatrołap
3,30
2. Wc
4,04
3. Korytarz
4,98
4. Pokój dzienny + jadalnia + kuchnia
36,22
5. Pomieszczenie gospodarcze
2,04
6. Garaż jednostanowiskowy
16,90
Razem
67,48
67,48

Oznaczenia na rzutach

Lodówka

Suszarka

Zmywarka

Suszarka nad pralką

Kuchenka

Pralka

Piekarnik

Szafa

Kocioł

Pompa ciepła

Kominek

Rekuperacja

Szerokość stolarki
Wysokość stolarki

Legenda Zobacz oznaczenia użyte na rzutach

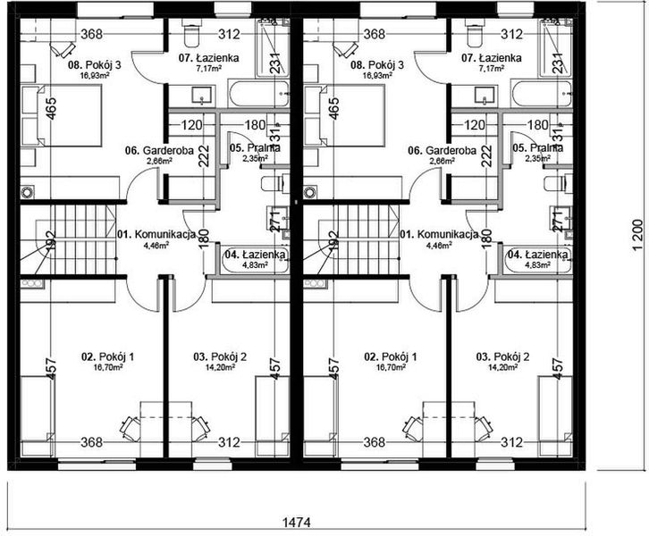
Piętro 1 - 69,30 m²

Wymiary wewnętrzne

Powierzchnie pomieszczeń

Oznaczenia na rzutach

Lodówka

Suszarka

Zmywarka

Suszarka nad pralką

Kuchenka

Pralka

Piekarnik

Szafa

Kocioł

Pompa ciepła

Kominek

Rekuperacja

Szerokość stolarki
Wysokość stolarki

Legenda Zobacz oznaczenia użyte na rzutach

Powierzchnia (m²)
Tooltip
Powierzchnia pomieszczenia
to ta, z której faktycznie możesz korzystać – skosy i niskie części poddasza są liczone częściowo lub wcale.
  1. 100% dla wysokości powyżej 2,2 m,
  2. 50% dla wysokości 1,4–2,2 m,
  3. nie liczymy poniżej 1,4 m.

Powierzchnia podłogi
Liczymy po obrysie pomieszczenia, bez względu na jego wysokość/skosy. Jeśli nie ma skosów to powierzchnia podłogi i pomieszczenia jest taka sama.
pomieszczenia i podłogi
podłogi
1. Korytarz
4,46
2. Łazienka
4,83
3. Pokój
14,20
4. Pokój
16,70
5. Pokój
16,93
6. Łazienka
7,17
7. Garderoba
2,66
8. Pomieszczenie gospodarcze
2,35
Razem
69,30
69,30

Oznaczenia na rzutach

Lodówka

Suszarka

Zmywarka

Suszarka nad pralką

Kuchenka

Pralka

Piekarnik

Szafa

Kocioł

Pompa ciepła

Kominek

Rekuperacja

Szerokość stolarki
Wysokość stolarki

Legenda Zobacz oznaczenia użyte na rzutach

Podoba Ci się dom, ale chciałbyś dokonać pewnych zmian?

  • Możesz zmienić kolor i materiał elewacji
  • Możesz zmienić funkcję i układ pomieszczeń
Konsultant

Skontaktuj się z nami - przygotujemy bezpłatną ofertę dla Ciebie

71 718 89 70

pon.-pt. 08:00 - 19:00

PODSTAWOWE INFORMACJE

Trwały i ekologiczny bliźniak w prefabrykacji betonowej

icon
Prefabrykat betonowy
icon
20 lat gwarancji
icon
Realizacja w 90 dni
icon
Bliźniak z garażem
DOM W ZABUDOWIE BLIŹNIACZEJ
Nie tylko dla deweloperów

Dom gotowy P.11 bliźniak to rozwiązanie dla 2 rodzin, które myślą o wspólnej inwestycji. Oba lokale posiadają identyczny układ funkcjonalny - nie w odbiciu lustrzanym. 

Każdy segment to ponad 120 m2 powierzchni na dwóch poziomach - idealne dla rodziny 2+1, a nawet 2+2. Do obu lokali przynależy jednostanowiskowy garaż.

Bliźniak urzeka swoją minimalistyczną bryłą z ciekawym, jednospadowym dachem. Sprawdź również wolnostojący dom P.11.

Dom prefabrykowany P.11 bliźniak - HPK1016
ZAKRES REALIZACJI
Co obejmuje cena?

Gotowy dom to opcja dla tych, którzy cenią sobie czas i wygodę. Otrzymujesz dom w stanie deweloperskim, aby szybciej zająć się wykończeniem i urządzeniem zgodnie z Twoimi potrzebami.

Zakres realizacji:

  • ściany zewnętrzne i wewnętrzne z prefabrykatów betonowych z ociepleniem, zgodnie z WT2021,
  • konstrukcja dachu - drewno C24 suszone komorowo, impregnowane zanurzeniowo,
  • pokrycie dachu papą,
  • strop żelbetowy,
  • orynnowanie,
  • okna 3-szybowe, 6-komorowe PVC,
  • drzwi wejściowe antywłamaniowe,
  • brama garażową segmentową z silnikiem elektrycznym,
  • rolety okienne elektryczne (poza oknami połaciowymi),
  • parapety zewnętrzne stalowe, ocynkowane, malowane proszkowo,
  • elewacja - tynk silikonowy,
  • posadzki z izolacją i wylewką cementową,
  • instalacja C.O. – ogrzewanie podłogowe,
  • instalacja wodno-kanalizacyjna,
  • instalacja elektryczna,
  • wentylacja mechaniczna z rekuperacją,
  • transport i montaż domu na działce.
Dom prefabrykowany P.11 bliźniak - HPK1016
ZAPYTAJ DORADCĘ
Dodatkowe możliwości

Sprawdź dodatkowe rozwiązania, usługi i zmiany, o które możesz poszerzyć zakres realizacji:

  • wykonanie fundamentów,
  • źródło ciepła,
  • instalacja fotowoltaiczna,
  • zmiana rodzaju dachu,
  • zmiana wykończenia elewacji.

Szczegóły oferty skonsultuj z doradcą.

Dom prefabrykowany P.11 bliźniak - HPK1016

Różne warianty elewacji i wykończenia

Dom prefabrykowany P.11 bliźniak - HPK1016

Malowana elewacja

Dom prefabrykowany P.11 bliźniak - HPK1016

Inny kolor stolarki

Dom prefabrykowany P.11 bliźniak - HPK1016

Detal na elewacji

PARTER
Strefa dzienna i garaż

Z przodu domu P.11, w obu segmentach, mamy jednostanowiskowy garaż oraz pomieszczenie gospodarcze i toaletę. Strefa dzienna położona jest z tyłu domu, gdzie panuje spokój i cisza. Tworzy ją przestronny salon z aneksem kuchennym w kształcie litery U.

W otwartej kuchni znajdzie się miejsce na duży stół, a wygodna strefa wypoczynkowa pozwoli zintegrować rodzinę. Przez wysokie okna tarasowe rozpościera się widok na ogród.

 

Dom prefabrykowany P.11 bliźniak - HPK1016
Dom prefabrykowany P.11 bliźniak - HPK1016

Garaż w bryle

Dom prefabrykowany P.11 bliźniak - HPK1016

Sypialnia z garderobą

Dom prefabrykowany P.11 bliźniak - HPK1016

2 łazienki i WC

PIĘTRO
3 sypialnie, garderoba i 2 łazienki

Strefa nocna na piętrze każdego segmentu została zaprojektowana z myślą o maksymalnej prywatności domowników. Główna sypialnia z własną łazienką i garderobą oddzielona jest od mniejszych pokoi. Druga łazienka połączona jest z pralnią.

Dzięki konstrukcji jednospadowego dachu, pomieszczenia na piętrze nie posaidają skosów i są w pełni ustawne. Pokoje doświetlają wysokie, balkonowe okna.

Dom prefabrykowany P.11 bliźniak - HPK1016
DOM Z PREFABRYKATÓW BETONOWYCH
Jaki będzie Twój nowy dom?

Dom P.11 bliźniak został zaprojektowany do wykonania w technologii prefabrykacji betonowej. Co ją charakteryzuje?

  • Jest jedną z najtrwalszych technologii budowlanych – wykorzystuje wysokowytrzymałościowy beton C40/50.
  • Eliminuje błędy popełniane w tradycyjnej technologii murowanej – mniejsza liczba spoin to mniej mostków cieplnych i akustycznych.
  • Prefabrykacja dużych elementów to ciągłość izolacji oraz gładkie ściany i sufity, które nie wymagają tynkowania.
  • To ekologiczne rozwiązanie ze względu na ograniczenie ilości użytych materiałów oraz brak odpadów na placu budowy.
  • Szybka realizacja domu – produkcja trwa ok. 3 miesiące, a jego montaż na przygotowanym fundamencie ok. 30 dni.

Więcej

Dom prefabrykowany P.11 bliźniak - HPK1016

Analiza działki

Czy ten dom pasuje na Twoją działkę? Chętnie to sprawdzimy!

  • Czy wybrany dom zmieści się na Twojej działce?
  • Czy spełnia parametry wg MPZT lub WZ?
ZOBACZ TECHNOLOGIĘ NA WŁASNE OCZY
Odwiedź dom pokazowy!

Odwiedź dom pokazowy i przekonaj się na własne oczy:

  • jak wygląda proces budowy takiego domu 
  • ile trwa budowa i jakie terminy są dostępne
  • jak mieszka się w takim domu! 

Zapisz się na DRZWI OTWARTE! Skontaktuj się z nami - podamy Ci najbliższy termin i wpiszemy Cię na listę uczestników. Napisz wiadomość na adres e-mail: domygotowe@extradom.pl lub zadzwoń: 71 715 20 69. Do zobaczenia!

Dom prefabrykowany P.11 bliźniak - HPK1016
TECHNOLOGIA I KONSTRUKCJA

Prefabrykat betonowy - solidny i trwały

Nowoczesna technologia prefabrykacji betonowej

Technologia znana od lat 70. XX wieku, w ostatnich dekadach przeszła ogromną transformację. Współczesne prefabrykaty betonowe wyróżniają się wytrzymałością, precyzją wykonania oraz doskonałymi parametrami izolacyjnymi i akustycznymi.

Do produkcji prefabrykatów wykorzystuje się beton klasy co najmniej C40/50. Proces wytwarzania żelbetowych ścian i elementów konstrukcyjnych trwa ok. 3 miesięcy. Ściany w fabryce uzyskują swoją pełną wytrzymałość i trafiają na plac budowy gotowe do montażu – gładkie, dobrze spasowane, z otworami na instalacje.

Dom prefabrykowany P.11 bliźniak - HPK1016
Błyskawiczna budowa domu na Twojej działce

Technologia prefabrykacji sprawia, że większość prac budowlanych zostaje wykonana jeszcze zanim konstrukcja przyjedzie na plac budowy. Po przewiezieniu części na działkę inwestora, ściany mocuje się do płyty fundamentowej i łączy za pomocą specjalnych elementów, tworząc stabilną konstrukcję. W zależności od projektu dach wykonuje się z wiązarów lub tradycyjnej więźby, a pokrycie stanowi blachodachówka.

Montaż ścian, dachu, ocieplenia, stolarki okiennej i drzwiowej oraz wykonanie elewacji trwa mniej niż 30 dni.

Dom prefabrykowany P.11 bliźniak - HPK1016
Najwyższa wytrzymałość i precyzja

Prefabrykaty nie tylko skracają czas budowy do kilku dni, ale także eliminują wady tradycyjnej budowy.  Monolityczne ściany zapewniają ciągłość izolacji i ograniczają występowanie mostków termicznych.

Ściany prefabrykowane są gładkie i nie wymagają nakładania tynków, a brak łączeń wyklucza występowanie spękań.

Technologia prefabrykacji betonowej znacząco przewyższa parametry nośne i wytrzymałościowe domów drewnianych, keramzytobetonowych i murowanych.

Dom prefabrykowany P.11 bliźniak - HPK1016
Komfort akustyczny

Dom prefabrykowany w technologii betonowej to cicha i komfortowa przestrzeń do życia. Beton, ze względu na dużą masę, posiada doskonałe parametry izolacji akustycznej. Skuteczniej izoluje od dźwięków powietrznych niż technologie murowane o podobnej grubości.

O komfort akustyczny domowników dbają dodatkowo wielokomorowe okna trzyszybowe oraz stropy wykonane w technologii zespolonej.

 

Dom prefabrykowany P.11 bliźniak - HPK1016
Energooszędność

Zmniejszenie zużycia energii to jedna z podstawowych cech nowoczesnego budownictwa, realizowanego zgodnie z wymogami WT 2021.

Ściany domu ocieplane są grubą warstwą styropianu i zabezpieczają go przed ubytkami cieplnymi. Izolacja termiczna przegród zewnętrznych to nawet do 28 cm styropianu lub wełny mineralnej o podwyższonych parametrach przewodności cieplnej.

Dom prefabrykowany P.11 bliźniak - HPK1016
Dane techniczne

Specyfikacja

Powierzchnie i wymiary Powierzchnie i wymiary

Powierzchnia użytkowa
Tooltip
Suma powierzchni wszystkich pomieszczeń mieszkalnych, pomniejszona o pow. garażu, kotłowni, strychu, piwnicy. Jest liczona w 100% dla pomieszczeń o wysokości powyżej 2,2 m, w 50% dla pomieszczeń o wys. 2,2-1,4 m i niewliczana dla niższych niż 1,4 m.

245,76 m²

Powierzchnia zabudowy
Tooltip
Powierzchnia zajmowana przez część na- oraz nadziemną budynku liczona, jako rzut pionowy budynku na działkę.

181,44 m²

Kubatura brutto
Tooltip
Zazwyczaj jest to suma kubatur (objętości) wszystkich pomieszczeń budynku, liczonych po zewnętrznym obrysie murów (z ociepleniem).

125,50 m³

Powierzchnia dachu

194,80 m²

Wysokość budynku
Tooltip
Wysokość liczona od części budynku położonej najniżej przy powierzchni terenu do najwyższego punktu dachu (kalenicy) z wyłączeniem kominów.

8,42 m

Szerokość elewacji

14,74 m

Długość elewacji

12 m

Min. szerokość działki
Tooltip
Najmniejsza możliwa szerokość działki niezbędna do wybudowania wybranego domu. Składa się z szerokości elewacji domu powiększonej z obu stron o 3 m dla ściany bez otworów drzwiowych/okiennych lub 4 m, dla ściany z otworami.

20,82 m

Min. długość działki
Tooltip
Najmniejsza możliwa długość działki niezbędna do wybudowania wybranego domu. Składa się z długości elewacji domu powiększonej z obu stron o 3 m dla ściany bez otworów drzwiowych/okiennych lub 4 m, dla ściany z otworami.

20 m

Energooszczędność Energooszczędność

Ep
Tooltip
Energia pierwotna określa ilość energii nieodnawialnej potrzebnej w ciągu roku do ogrzewania czy też ogrzania wody użytkowej z uwzględnieniem kosztów produkcji i transportu surowców energetycznych.

65,30 kWh/(m²rok)

Ogrzewanie

Gaz. Pompa ciepła - opcja dodatkowo płatna

Wentylacja

mechaniczna

Technologia i materiały Technologia i materiały

Posadowienie budynku

po stronie klienta lub opcja dodatkowo płatna: płyta lub ława fundamentowa

Ściany zewnętrzne

wysokowytrzymałościowa ściana żelbetowa prefabrykowana + styropian 20-28 cm

Ściany wewnętrzne

wysokowytrzymałościowa ściana żelbetowa/płyta GK

Strop nad parterem

żelbetowy

Konstrukcja dachu

drewniana

Pokrycie dachu

papa

Elewacja

tynk

Instalacje dodatkowe w
standardzie

ogrzewanie podłogowe

DOMY GOTOWE

Zbuduj swój dom w 3 prostych krokach

Wybierasz dom,
przygotowujemy ofertę

Konfigurujemy i tworzymy dla Ciebie bezpłatną ofertę. Pomagamy w weryfikacji działki.

Podpisujesz umowę, rusza produkcja

Podpisujesz umowę z naszym partnerem na produkcję i montaż Twojego domu. Nie martwisz się o terminy i znasz koszty budowy.

Ciesz się swoim domem

W zależności od wybranej technologii budowy, Producent albo przywiezie gotowe elementy na Twoją działkę, albo – w przypadku metody murowanej - rozpocznie proces budowy domu od podstaw. Tobie pozostaną już tylko wewnętrzne prace wykończeniowe.

Dom w 3 krokach

NIE CZEKAJ DŁUŻEJ!

Pomożemy Ci zrealizować marzenie o domu - nawet w 3 miesiące!

Ikona zadzwoń

Zadzwoń

71 71 88 970

pon.-pt. 8:00-19:00

Zadzwoń teraz
Ikona list

Napisz do nas:

domygotowe@extradom.pl
lub
Wolne terminy!

Zobacz na żywo nasz gotowy dom!

Zanim podejmiesz decyzję, spotkaj się z nami na budowie i zobacz, jak realizowana jest taka inwestycja. Dzięki temu:

  • Dowiesz się, jak wygląda budowa i efekt finalny.
  • Skonsultujesz swoje pomysły z naszym ekspertem

Zobacz podobne domy gotowe

1

/

3

Zdjęcie Bergen 130
Bergen 130
Dodano!
Dodano!
Pow. użytkowa
130,40 m²
Pow. zabudowy
156,42 m²
Pokoje
4
529 000 zł 4 057 zł/m²
Zdjęcie Dom prefabrykowany P.12 z okapem
Pow. użytkowa
190,98 m²
Pow. zabudowy
147,44 m²
Pokoje
5
916 500 zł 4 799 zł/m²
Zdjęcie Dom prefabrykowany P.12 bez okapu
Pow. użytkowa
190,98 m²
Pow. zabudowy
147,44 m²
Pokoje
5
886 500 zł 4 642 zł/m²
Zdjęcie Dom prefabrykowany P.6
Dom prefabrykowany P.6
Dodano!
Dodano!
Pow. użytkowa
176,69 m²
Pow. zabudowy
148,18 m²
Pokoje
4
972 700 zł 5 505 zł/m²
Zdjęcie Dom prefabrykowany Stodoła 170A
Pow. użytkowa
175,42 m²
Pow. zabudowy
92,09 m²
Pokoje
3
650 000 zł 3 705 zł/m²
Zdjęcie Dom prefabrykowany Stodoła 170B
Pow. użytkowa
175,12 m²
Pow. zabudowy
117,04 m²
Pokoje
4
650 000 zł 3 712 zł/m²
Zdjęcie Dom szkieletowy Viking Smart 220
Pow. użytkowa
163,86 m²
Pow. zabudowy
168,92 m²
Pokoje
4
1 095 606 zł 6 686 zł/m²
Zdjęcie Dom prefabrykowany DH174
Dom prefabrykowany DH174
Dodano!
Dodano!
Pow. użytkowa
162,97 m²
Pow. zabudowy
173,59 m²
Pokoje
4
1 026 000 zł 6 296 zł/m²
Zdjęcie Dom prefabrykowany P.4 bez okapu
Pow. użytkowa
162,18 m²
Pow. zabudowy
111,76 m²
Pokoje
5
723 500 zł 4 461 zł/m²
Zdjęcie Dom prefabrykowany P.4 z okapem
Pow. użytkowa
162,18 m²
Pow. zabudowy
111,76 m²
Pokoje
5
739 600 zł 4 560 zł/m²
Zdjęcie Dom prefabrykowany P.2
Dom prefabrykowany P.2
Dodano!
Dodano!
Pow. użytkowa
159,18 m²
Pow. zabudowy
249,56 m²
Pokoje
5
847 000 zł 5 321 zł/m²
Zdjęcie Dom prefabrykowany Parterowy 150A
Pow. użytkowa
150,51 m²
Pow. zabudowy
179,37 m²
Pokoje
4
590 000 zł 3 920 zł/m²

Graficzne opracowanie rzutów poglądowych widocznych na karcie projektu zostało wykonane przez Extradom.pl. Prezentowane przez Extradom.pl wizualizacje wykonane zostały przez autora projektu i należy poczytywać je jedynie za przykład i propozycję wykończenia, wizję architektoniczną autora projektu. Ostateczne wykończenie budynku może nastąpić na wiele sposobów. Szczegółowe rozwiązania zastosowane w oferowanej dokumentacji - w tym również ilość, lokalizacje i wygląd okien, drzwi, kominów - mogą w niewielkim stopniu różnić się od prezentowanej wizualizacji budynku.

Extradom.pl Spółka z ograniczoną odpowiedzialnością z siedzibą przy ul. Jaworskiej 13, 53-612 Wrocław, wpisana do rejestru przedsiębiorców Krajowego Rejestru Sądowego przez Sąd Rejonowy dla Wrocławia-Fabrycznej we Wrocławiu, VI Wydział Gospodarczy Krajowego Rejestru Sądowego do pod numerem KRS 0000648746, numer NIP 895-17-18-333, o kapitale zakładowym 708 150,00 zł uprzejmie informuje, iż poprzez serwis Extradom.pl umożliwia m.in. zapoznanie się przez konsumentów z ofertą handlową Partnerów Extradom.pl, którzy stosują metody budowy domów przy wykorzystaniu różnego rodzaju technologie prefabrykacji bądź modułowe (tzw. „Gotowe domy”).

Extradom.pl nie prowadzi jednakże sprzedaży ani nie oferuje usług polegających na doradztwie finansowym, prawnym ani podatkowym w zakresie inwestycji realizowanych w technologiach tzw. „Gotowych domów”. Informacje prezentowane w serwisie Extradom.pl dotyczące Partnerów Extradom.pl oferujących realizację inwestycji w technologiach „Gotowych domów” lub podobnych mają charakter informacyjny i reklamowy.

Prezentowane w serwisie Extradom.pl informacje dotyczące stosowanych przez Partnerów metod budowy domów w technologii prefabrykacji bądź modułowej pochodzą od Partnerów Extradom.pl.

Extradom.pl sp. z o.o. jedynie umożliwia nawiązanie kontaktu przez Użytkownika z Partnerem Extradom.pl stosującym tego rodzaju technologie budowy domów i nie jest stroną umowy o roboty budowlane zawieranej przez Użytkownika Extradom.pl z Partnerem Extradom.pl.

REKLAMA
Zamknij