👉 Niższe ceny + karta allegro 200 zł! 🔥

Koniec oferty za:

00godz.

00min.

00sek.

Sprawdź

Dom prefabrykowany DH70-7

HDH1014

Dodaj

Dodano!

Porównaj

Dodano!

Drukuj

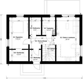
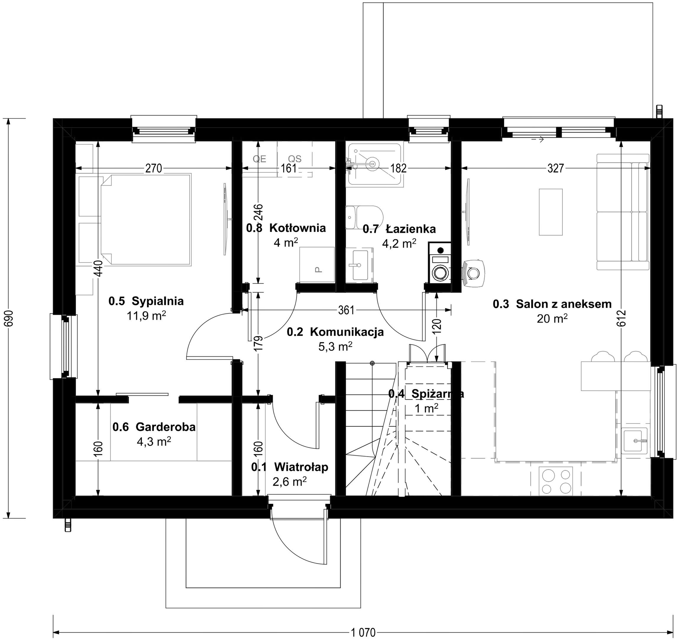
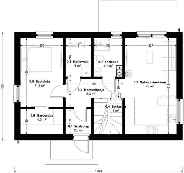
Rzut parteru

Powierzchnia (m²)
Tooltip
Powierzchnia pomieszczenia
to ta, z której faktycznie możesz korzystać – skosy i niskie części poddasza są liczone częściowo lub wcale.
  1. 100% dla wysokości powyżej 2,2 m,
  2. 50% dla wysokości 1,4–2,2 m,
  3. nie liczymy poniżej 1,4 m.

Powierzchnia podłogi
Liczymy po obrysie pomieszczenia, bez względu na jego wysokość/skosy. Jeśli nie ma skosów to powierzchnia podłogi i pomieszczenia jest taka sama.
pomieszczenia i podłogi
podłogi
1. Wiatrołap
2,60
2. Korytarz
5,30
3. Garderoba
4,30
4. Pokój
11,90
5. Łazienka
4,20
6. Pokój dzienny + kuchnia + jadalnia
20
7. Spiżarnia
1
8. Kotłownia
4
Razem
53,30
53,30
Powierzchnia (m²)
Tooltip
Powierzchnia pomieszczenia
to ta, z której faktycznie możesz korzystać – skosy i niskie części poddasza są liczone częściowo lub wcale.
  1. 100% dla wysokości powyżej 2,2 m,
  2. 50% dla wysokości 1,4–2,2 m,
  3. nie liczymy poniżej 1,4 m.

Powierzchnia podłogi
Liczymy po obrysie pomieszczenia, bez względu na jego wysokość/skosy. Jeśli nie ma skosów to powierzchnia podłogi i pomieszczenia jest taka sama.
pomieszczenia i podłogi
podłogi
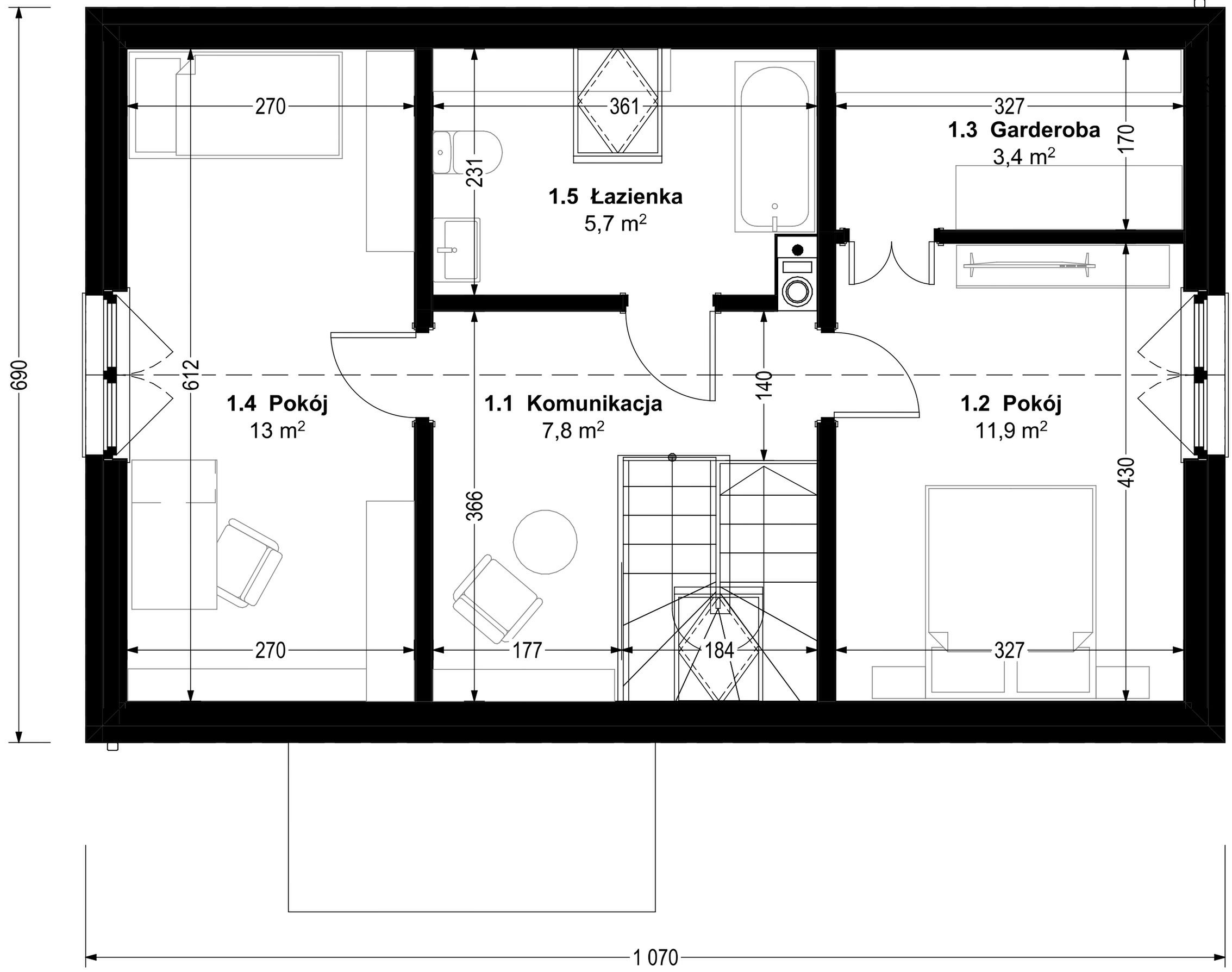
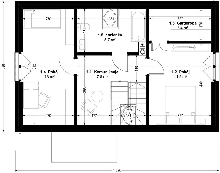
1. Korytarz
7,80
2. Pokój
13
3. Łazienka
5,70
4. Garderoba
3,40
5. Pokój
11,90
Razem
41,80
41,80

Pow. użytkowa

95,07 m²

Pow. zabudowy

73,83 m²

Pokoje

3

Łazienki i WC

2

Garaż

0

Kąt dachu

40°

Min. szer. i dł. działki:

14,90 m x 18,70 m

Technologia

Prefabrykat drewniany

więcej

Cena
Tooltip

8% VAT dla klienta
indywidualnego, 23% VAT dla
firmy. Cena za metr wyliczana
na podstawie powierzchni netto
lub powierzchni użytkowej.

Brutto
Netto
Cena
Tooltip

8% VAT dla klienta
indywidualnego, 23% VAT dla
firmy. Cena za metr wyliczana
na podstawie powierzchni netto
lub powierzchni użytkowej.

Brutto
Netto
Stan deweloperski
Tooltip

Szczegóły zakresu podstawowego znajdziesz
w opisie.

621 918 zł

6 542 zł/m²

Skonfiguruj dom

Skonfiguruj dom

Fundamenty

od 47 844 zł

Źródło ciepła

od 15 120 zł

Wolne terminy!
Umów wizytę w
domu pokazowym
  • Jak wygląda proces budowy?
  • Ile trwa budowa i jakie terminy są dostępne?
  • Jak się mieszka w takim domu!
RZUTY

Rozmieszczenie
pomieszczeń

Parter - 53,30 m²

Wymiary wewnętrzne

Powierzchnie pomieszczeń

Oznaczenia na rzutach

Lodówka

Suszarka

Zmywarka

Suszarka nad pralką

Kuchenka

Pralka

Piekarnik

Szafa

Kocioł

Pompa ciepła

Kominek

Rekuperacja

Szerokość stolarki
Wysokość stolarki

Legenda Zobacz oznaczenia użyte na rzutach

Powierzchnia (m²)
Tooltip
Powierzchnia pomieszczenia
to ta, z której faktycznie możesz korzystać – skosy i niskie części poddasza są liczone częściowo lub wcale.
  1. 100% dla wysokości powyżej 2,2 m,
  2. 50% dla wysokości 1,4–2,2 m,
  3. nie liczymy poniżej 1,4 m.

Powierzchnia podłogi
Liczymy po obrysie pomieszczenia, bez względu na jego wysokość/skosy. Jeśli nie ma skosów to powierzchnia podłogi i pomieszczenia jest taka sama.
pomieszczenia i podłogi
podłogi
1. Wiatrołap
2,60
2. Korytarz
5,30
3. Garderoba
4,30
4. Pokój
11,90
5. Łazienka
4,20
6. Pokój dzienny + kuchnia + jadalnia
20
7. Spiżarnia
1
8. Kotłownia
4
Razem
53,30
53,30

Oznaczenia na rzutach

Lodówka

Suszarka

Zmywarka

Suszarka nad pralką

Kuchenka

Pralka

Piekarnik

Szafa

Kocioł

Pompa ciepła

Kominek

Rekuperacja

Szerokość stolarki
Wysokość stolarki

Legenda Zobacz oznaczenia użyte na rzutach

Poddasze - 41,80 m²

Wymiary wewnętrzne

Powierzchnie pomieszczeń

Oznaczenia na rzutach

Lodówka

Suszarka

Zmywarka

Suszarka nad pralką

Kuchenka

Pralka

Piekarnik

Szafa

Kocioł

Pompa ciepła

Kominek

Rekuperacja

Szerokość stolarki
Wysokość stolarki

Legenda Zobacz oznaczenia użyte na rzutach

Powierzchnia (m²)
Tooltip
Powierzchnia pomieszczenia
to ta, z której faktycznie możesz korzystać – skosy i niskie części poddasza są liczone częściowo lub wcale.
  1. 100% dla wysokości powyżej 2,2 m,
  2. 50% dla wysokości 1,4–2,2 m,
  3. nie liczymy poniżej 1,4 m.

Powierzchnia podłogi
Liczymy po obrysie pomieszczenia, bez względu na jego wysokość/skosy. Jeśli nie ma skosów to powierzchnia podłogi i pomieszczenia jest taka sama.
pomieszczenia i podłogi
podłogi
1. Korytarz
7,80
2. Pokój
13
3. Łazienka
5,70
4. Garderoba
3,40
5. Pokój
11,90
Razem
41,80
41,80

Oznaczenia na rzutach

Lodówka

Suszarka

Zmywarka

Suszarka nad pralką

Kuchenka

Pralka

Piekarnik

Szafa

Kocioł

Pompa ciepła

Kominek

Rekuperacja

Szerokość stolarki
Wysokość stolarki

Legenda Zobacz oznaczenia użyte na rzutach

Podoba Ci się dom, ale chciałbyś dokonać pewnych zmian?

  • Możesz zmienić kolor i materiał elewacji
  • Możesz zmienić funkcję i układ pomieszczeń
Konsultant

Skontaktuj się z nami - przygotujemy bezpłatną ofertę dla Ciebie

71 718 89 70

pon.-pt. 08:00 - 19:00

Analiza działki

Czy ten dom pasuje na Twoją działkę? Chętnie to sprawdzimy!

  • Czy wybrany dom zmieści się na Twojej działce?
  • Czy spełnia parametry wg MPZT lub WZ?
TECHNOLOGIA I KONSTRUKCJA

Prefabrykat drewniany - ekspresowa realizacja

Nowoczesny dom drewniany

Technologia prefabrykacji to jeden z najszybszych sposobów, aby zamieszkać we własnym domu. Budynek powstaje z elementów przygotowanych wcześniej w zakładzie produkcyjnym pod ścisłą kontrolą jakości, co przekłada się na jego dłuższą żywotność.

Poszczególne części domu przewozi są na działkę inwestora i składa na miejscu w kilkanaście dni.

Domy z prefabrykowanych modułów wykonane na konstrukcji drewnianej to nowoczesne, energooszczędne i ekologiczne obiekty, które nadają się do całorocznego zamieszkania.

Dom prefabrykowany DH70-7 - HDH1014
Trwała konstrukcja, ciepły i cichy dom

Konstrukcja domów z prefabrykatów drewnianych bazuje na prefabrykowanym szkielecie, wykonanym z certyfikowanego drewna klasy C24, 4-stronnie struganego, o wilgotności poniżej 18%, które jest niepalne, a jedynie zwęgla się na powierzchni. Powstały z niego obiekt charakteryzuje się wysoką trwałością.  

Do wykonania ścian i pozostałych przegród domu stosuje się wysokiej jakości materiały: wytrzymałe płyty Fermacell oraz niepalną wełnę skalną RockWool o wysokich parametrach izolacji termicznej i akustycznej, aby dom był ciepły i komfortowy.

Do domu wstawia się energooszczędne 3-szybowe, 6-komorowe okna.

Dom prefabrykowany DH70-7 - HDH1014
Budowa w 3 tygodnie

Przeniesieniu procesu „budowy” do fabryki i prefabrykacja poszczególnych elementów domu znacznie skraca czas jego realizacji. Jego produkcja trwa zaledwie 3 miesiące.

Prefabrykowane elementy konstrukcji domu, gotowe ściany, strop czy elementy dachu montuje się na działce inwestora, na wcześniej przygotowanej płycie fundamentowej. Montaż konstrukcji trwa od 2 do 3 dni, a jego wykończeniem możesz zająć się już po 3 tygodniach od rozpoczęcia prac.

Dom taki można wznieść o każdej porze roku bez względu na temperaturę.

Dom prefabrykowany DH70-7 - HDH1014
Ściany w drewnianym domu prefabrykowanym

Prefabrykowane ściany mają warstwową budowę, na którą składają się (od wewnątrz):

  1. Płyta Fermacell 12,5 mm / płyta G-K 12,5 mm / boazeria
  2. Ruszt instalacyjny 40x60 mm ocieplony wełną skalną RockWool 50 mm
  3. Folia paroizolacyjna
  4. Konstrukcja drewniana 45x145 mm, ocieplona wełną skalną Rockwool 140(145) mm
  5. Płyta Fermacell 12,5 mm
  6. Wełna fasadowa 100 mm
  7. Membrana fasadowa wiatroizolacyjna
  8. Elewacja

Ściany od zewnątrz mogą być wykończone drewnianymi lamelami, blachą na rąbek, boazerią lub tynkiem, zależnie od projektu i preferencji inwestora.

Dom prefabrykowany DH70-7 - HDH1014
Dach w drewnianym domu prefabrykowanym

Prefabrykowany dach składa się z kolejno ułożonych warstw (od wewnątrz):

  1. Płyta Fermacell 12,5 mm / płyta G-K 12,5 mm / boazeria
  2. Ruszt instalacyjny 40x60 mm ocieplony wełną skalną RockWool 50mm
  3. Folia paroizolacyjna
  4. Krokwie 40x195 mm, ocieplenie wełną skalną RockWool 180 mm
  5. Płyta Fermacell 12,5 mm
  6. Membrana dachowa
  7. Łaty i kontrłaty impregnowane
  8. Pokrycie dachowe blachą na rąbek
Dom prefabrykowany DH70-7 - HDH1014
Zrównoważone budownictwo

Produkcja prefabrykatów drewnianych i stawianie nowoczesnych domów w tej technologii doskonale wpisują się w nurt zrównoważonego budownictwa.

Wykorzystanie ekologicznych materiałów, które emitują mniej szkodliwych substancji, minimalizuje wpływ budowy na środowisko oraz ryzyko wystąpienia alergii u mieszkańców. Do tego drewno jest materiałem przyjaznym i estetycznym. 

Energooszczędne, drewniane domy prefabrykowane pozostawiają mniejszy ślad węglowy. Dzięki efektywnej izolacji i zastosowaniu odpowiedniej stolarki można skutecznie zmniejszyć zużycie energii i obniżyć koszty eksploatacji domu.

Dom prefabrykowany DH70-7 - HDH1014
Dane techniczne

Specyfikacja

Powierzchnie i wymiary Powierzchnie i wymiary

Powierzchnia użytkowa
Tooltip
Suma powierzchni wszystkich pomieszczeń mieszkalnych, pomniejszona o pow. garażu, kotłowni, strychu, piwnicy. Jest liczona w 100% dla pomieszczeń o wysokości powyżej 2,2 m, w 50% dla pomieszczeń o wys. 2,2-1,4 m i niewliczana dla niższych niż 1,4 m.

95,07 m²

Wysokość ściany kolankowej
Tooltip
Wysokość ściany podpierającej dach. Jej wysokość wpływa na powierzchnię użytkową kondygnacji, na której się znajduje.

1,20 m

Powierzchnia zabudowy
Tooltip
Powierzchnia zajmowana przez część na- oraz nadziemną budynku liczona, jako rzut pionowy budynku na działkę.

73,83 m²

Kubatura brutto
Tooltip
Zazwyczaj jest to suma kubatur (objętości) wszystkich pomieszczeń budynku, liczonych po zewnętrznym obrysie murów (z ociepleniem).

471,18 m³

Powierzchnia dachu

95,04 m²

Kąt nachylenia dachu
Tooltip
Nachylenie połaci dachu głównego podawane w stopniach. Uwaga! W niektórych projektach występuje więcej niż jedno nachylenie dachu.

40°

Wysokość budynku
Tooltip
Wysokość liczona od części budynku położonej najniżej przy powierzchni terenu do najwyższego punktu dachu (kalenicy) z wyłączeniem kominów.

7,74 m

Szerokość elewacji

6,90 m

Długość elewacji

10,70 m

Min. szerokość działki
Tooltip
Najmniejsza możliwa szerokość działki niezbędna do wybudowania wybranego domu. Składa się z szerokości elewacji domu powiększonej z obu stron o 3 m dla ściany bez otworów drzwiowych/okiennych lub 4 m, dla ściany z otworami.

14,90 m

Min. długość działki
Tooltip
Najmniejsza możliwa długość działki niezbędna do wybudowania wybranego domu. Składa się z długości elewacji domu powiększonej z obu stron o 3 m dla ściany bez otworów drzwiowych/okiennych lub 4 m, dla ściany z otworami.

18,70 m

Energooszczędność Energooszczędność

Wentylacja

grawitacyjna

Technologia i materiały Technologia i materiały

Posadowienie budynku

płyta fundamentowa

Ściany zewnętrzne

szkielet drewniany (wypełniony wełną skalną 14 cm) + płyta Fermacell + wełna fasadowa 10 cm

Ściany wewnętrzne

szkielet drewniany (wypełniony wełną skalną 10 cm) + płyta g-k

Strop nad parterem

drewniany

Konstrukcja dachu

drewniana

Pokrycie dachu

blacha na rąbek

Elewacja

tynk

DOMY GOTOWE

Zbuduj swój dom w 3 prostych krokach

Wybierasz dom,
przygotowujemy ofertę

Konfigurujemy i tworzymy dla Ciebie bezpłatną ofertę. Pomagamy w weryfikacji działki.

Podpisujesz umowę, rusza produkcja

Podpisujesz umowę z naszym partnerem na produkcję i montaż Twojego domu. Nie martwisz się o terminy i znasz koszty budowy.

Ciesz się swoim domem

W zależności od wybranej technologii budowy, Producent albo przywiezie gotowe elementy na Twoją działkę, albo – w przypadku metody murowanej - rozpocznie proces budowy domu od podstaw. Tobie pozostaną już tylko wewnętrzne prace wykończeniowe.

Dom w 3 krokach

NIE CZEKAJ DŁUŻEJ!

Pomożemy Ci zrealizować marzenie o domu - nawet w 3 miesiące!

Ikona zadzwoń

Zadzwoń

71 71 88 970

pon.-pt. 8:00-19:00

Zadzwoń teraz
Ikona list

Napisz do nas:

domygotowe@extradom.pl
lub
Wolne terminy!

Zobacz na żywo nasz gotowy dom!

Zanim podejmiesz decyzję, spotkaj się z nami na budowie i zobacz, jak realizowana jest taka inwestycja. Dzięki temu:

  • Dowiesz się, jak wygląda budowa i efekt finalny.
  • Skonsultujesz swoje pomysły z naszym ekspertem

Zobacz podobne domy gotowe

1

/

3

Zdjęcie Bergen 90
Bergen 90
Dodano!
Dodano!
Pow. użytkowa
90,83 m²
Pow. zabudowy
112,47 m²
Pokoje
3
409 000 zł 4 503 zł/m²
Zdjęcie Dom szkieletowy Prime Smart 120
Pow. użytkowa
95,36 m²
Pow. zabudowy
124 m²
Pokoje
3
507 946 zł 5 263 zł/m²
Zdjęcie Dom keramzytowy Essenzia 110G
Pow. użytkowa
95,83 m²
Pow. zabudowy
141,68 m²
Pokoje
2
495 720 zł 5 173 zł/m²
Zdjęcie Dom prefabrykowany DH110 biurowy
Pow. użytkowa
94,18 m²
Pow. zabudowy
111,60 m²
Pokoje
0
553 500 zł 5 877 zł/m²
Zdjęcie Dom prefabrykowany DH115
Dom prefabrykowany DH115
Dodano!
Dodano!
Pow. użytkowa
93,90 m²
Pow. zabudowy
114,80 m²
Pokoje
2
564 678 zł 6 014 zł/m²
Zdjęcie Dom prefabrykowany E.3
Dom prefabrykowany E.3
Dodano!
Dodano!
Pow. użytkowa
97,13 m²
Pow. zabudowy
117 m²
Pokoje
3
496 033 zł 5 107 zł/m²
Zdjęcie Dom modułowy Flow
Dom modułowy Flow
Dodano!
Dodano!
Pow. użytkowa
92,67 m²
Pow. zabudowy
108,50 m²
Pokoje
3
508 000 zł 5 482 zł/m²
Zdjęcie Dom prefabrykowany P.9
Dom prefabrykowany P.9
Dodano!
Dodano!
Pow. użytkowa
97,80 m²
Pow. zabudowy
72,25 m²
Pokoje
4
555 900 zł 5 684 zł/m²
Zdjęcie Dom prefabrykowany Parterowy 90D
Pow. użytkowa
91,35 m²
Pow. zabudowy
110,66 m²
Pokoje
3
425 000 zł 4 652 zł/m²
Zdjęcie Dom prefabrykowany DH110
Dom prefabrykowany DH110
Dodano!
Dodano!
Pow. użytkowa
91,17 m²
Pow. zabudowy
111,60 m²
Pokoje
3
553 500 zł 6 071 zł/m²
Zdjęcie Dom keramzytowy Atrakcyjna Stodoła wariant 2
Pow. użytkowa
99,22 m²
Pow. zabudowy
119,97 m²
Pokoje
3
494 900 zł 4 988 zł/m²
Zdjęcie Dom keramzytowy Bella 90
Dom keramzytowy Bella 90
Dodano!
Dodano!
Pow. użytkowa
90,52 m²
Pow. zabudowy
108,24 m²
Pokoje
3
398 520 zł 4 403 zł/m²

Graficzne opracowanie rzutów poglądowych widocznych na karcie projektu zostało wykonane przez Extradom.pl. Prezentowane przez Extradom.pl wizualizacje wykonane zostały przez autora projektu i należy poczytywać je jedynie za przykład i propozycję wykończenia, wizję architektoniczną autora projektu. Ostateczne wykończenie budynku może nastąpić na wiele sposobów. Szczegółowe rozwiązania zastosowane w oferowanej dokumentacji - w tym również ilość, lokalizacje i wygląd okien, drzwi, kominów - mogą w niewielkim stopniu różnić się od prezentowanej wizualizacji budynku.

Extradom.pl Spółka z ograniczoną odpowiedzialnością z siedzibą przy ul. Jaworskiej 13, 53-612 Wrocław, wpisana do rejestru przedsiębiorców Krajowego Rejestru Sądowego przez Sąd Rejonowy dla Wrocławia-Fabrycznej we Wrocławiu, VI Wydział Gospodarczy Krajowego Rejestru Sądowego do pod numerem KRS 0000648746, numer NIP 895-17-18-333, o kapitale zakładowym 708 150,00 zł uprzejmie informuje, iż poprzez serwis Extradom.pl umożliwia m.in. zapoznanie się przez konsumentów z ofertą handlową Partnerów Extradom.pl, którzy stosują metody budowy domów przy wykorzystaniu różnego rodzaju technologie prefabrykacji bądź modułowe (tzw. „Gotowe domy”).

Extradom.pl nie prowadzi jednakże sprzedaży ani nie oferuje usług polegających na doradztwie finansowym, prawnym ani podatkowym w zakresie inwestycji realizowanych w technologiach tzw. „Gotowych domów”. Informacje prezentowane w serwisie Extradom.pl dotyczące Partnerów Extradom.pl oferujących realizację inwestycji w technologiach „Gotowych domów” lub podobnych mają charakter informacyjny i reklamowy.

Prezentowane w serwisie Extradom.pl informacje dotyczące stosowanych przez Partnerów metod budowy domów w technologii prefabrykacji bądź modułowej pochodzą od Partnerów Extradom.pl.

Extradom.pl sp. z o.o. jedynie umożliwia nawiązanie kontaktu przez Użytkownika z Partnerem Extradom.pl stosującym tego rodzaju technologie budowy domów i nie jest stroną umowy o roboty budowlane zawieranej przez Użytkownika Extradom.pl z Partnerem Extradom.pl.

Zadzwoń i poproś
o bezpłatną wycenę

71 718 89 70
REKLAMA
Zamknij