Projekty nawet 500 zł taniej ❄️

Koniec oferty za:

0dni

00godz.

00min.

00sek.

Sprawdź

Dom prefabrykowany całoroczny Sensation II

HFS1002

Dodaj

Dodano!

Porównaj

Dodano!

Drukuj

Rzut parteru

Powierzchnia (m²)
Tooltip
Powierzchnia pomieszczenia
to ta, z której faktycznie możesz korzystać – skosy i niskie części poddasza są liczone częściowo lub wcale.
  1. 100% dla wysokości powyżej 2,2 m,
  2. 50% dla wysokości 1,4–2,2 m,
  3. nie liczymy poniżej 1,4 m.

Powierzchnia podłogi
Liczymy po obrysie pomieszczenia, bez względu na jego wysokość/skosy. Jeśli nie ma skosów to powierzchnia podłogi i pomieszczenia jest taka sama.
pomieszczenia i podłogi
podłogi
1. Wiatrołap
4,35
2. Pomieszczenie gospodarcze
6,29
3. Pokój
9,10
4. Korytarz
5,85
5. Pokój dzienny + jadalnia + kuchnia
27,51
6. Schody
4,69
7. Łazienka
4,67
8. Garaż jednostanowiskowy
21,09
Razem
83,55
83,55
Powierzchnia (m²)
Tooltip
Powierzchnia pomieszczenia
to ta, z której faktycznie możesz korzystać – skosy i niskie części poddasza są liczone częściowo lub wcale.
  1. 100% dla wysokości powyżej 2,2 m,
  2. 50% dla wysokości 1,4–2,2 m,
  3. nie liczymy poniżej 1,4 m.

Powierzchnia podłogi
Liczymy po obrysie pomieszczenia, bez względu na jego wysokość/skosy. Jeśli nie ma skosów to powierzchnia podłogi i pomieszczenia jest taka sama.
pomieszczenia i podłogi
podłogi
1. Korytarz
4,87
2. Łazienka
9,16
3. Pokój
10,53
4. Pokój
13,18
5. Garderoba
5,39
6. Pokój
11,32
Razem
54,45
54,45

Pow. użytkowa

116,90 m²

Pow. zabudowy

103,35 m²

Pokoje

4

Łazienki i WC

2

Garaż

1

Kąt dachu

22°

Min. szer. i dł. działki:

20,41 m x 19,56 m

Technologia

Modułowa, Prefabrykat drewniany

więcej

Dom wycofany z oferty

W razie pytań prosimy o kontakt z doradcą. Polecamy zobaczyć podobne domy gotowe.

Wolne terminy!
Umów wizytę w
domu pokazowym
  • Jak wygląda proces budowy?
  • Ile trwa budowa i jakie terminy są dostępne?
  • Jak się mieszka w takim domu!

Zobacz podobne domy gotowe

1

/

3

Zdjęcie Dom szkieletowy Creative Smart 160
Pow. użytkowa
118,35 m²
Pow. zabudowy
112 m²
Pokoje
4
780 019 zł 6 591 zł/m²
Zdjęcie Dom prefabrykowany P.13 z dachem płaskim bez garażu
Pow. użytkowa
115,39 m²
Pow. zabudowy
139,50 m²
Pokoje
3
616 100 zł 5 339 zł/m²
Zdjęcie Dom prefabrykowany P.13 z dachem kopertowym bez garażu
Pow. użytkowa
115,39 m²
Pow. zabudowy
139,50 m²
Pokoje
3
616 100 zł 5 339 zł/m²
Zdjęcie Dom prefabrykowany P.13 z dachem płaskim z garażem
Pow. użytkowa
115,39 m²
Pow. zabudowy
180,75 m²
Pokoje
3
730 400 zł 6 330 zł/m²
Zdjęcie Dom prefabrykowany P.13 z dachem kopertowym z garażem
Pow. użytkowa
115,39 m²
Pow. zabudowy
180,75 m²
Pokoje
3
730 400 zł 6 330 zł/m²
Zdjęcie Dom prefabrykowany P.14
Dom prefabrykowany P.14
Dodano!
Dodano!
Pow. użytkowa
118,94 m²
Pow. zabudowy
147 m²
Pokoje
3
694 700 zł 5 829 zł/m²
Zdjęcie Dom modułowy Soul
Dom modułowy Soul
Dodano!
Dodano!
Pow. użytkowa
118,94 m²
Pow. zabudowy
85,28 m²
Pokoje
4
518 000 zł 3 654 zł/m²
Zdjęcie Dom modułowy Harmony
Dom modułowy Harmony
Dodano!
Dodano!
Pow. użytkowa
114,80 m²
Pow. zabudowy
85,28 m²
Pokoje
4
512 000 zł 3 853 zł/m²
Zdjęcie Dom szkieletowy Scandinavian Smart 120
Pow. użytkowa
119,43 m²
Pow. zabudowy
148,50 m²
Pokoje
3
571 271 zł 4 761 zł/m²
Zdjęcie Dom szkieletowy Emily Smart 120
Pow. użytkowa
120 m²
Pow. zabudowy
151 m²
Pokoje
3
592 512 zł 4 938 zł/m²
Zdjęcie Dom prefabrykowany Parterowy 120C
Pow. użytkowa
120,06 m²
Pow. zabudowy
144,66 m²
Pokoje
4
489 000 zł 4 073 zł/m²
Zdjęcie Dom szkieletowy Forest Smart 120
Pow. użytkowa
113,18 m²
Pow. zabudowy
157,50 m²
Pokoje
4
535 459 zł 4 730 zł/m²
RZUTY

Rozmieszczenie
pomieszczeń

Parter - 83,55 m²

Parter projektu Dom prefabrykowany całoroczny Sensation II
Powierzchnia (m²)
Tooltip
Powierzchnia pomieszczenia
to ta, z której faktycznie możesz korzystać – skosy i niskie części poddasza są liczone częściowo lub wcale.
  1. 100% dla wysokości powyżej 2,2 m,
  2. 50% dla wysokości 1,4–2,2 m,
  3. nie liczymy poniżej 1,4 m.

Powierzchnia podłogi
Liczymy po obrysie pomieszczenia, bez względu na jego wysokość/skosy. Jeśli nie ma skosów to powierzchnia podłogi i pomieszczenia jest taka sama.
pomieszczenia i podłogi
podłogi
1. Wiatrołap
4,35
2. Pomieszczenie gospodarcze
6,29
3. Pokój
9,10
4. Korytarz
5,85
5. Pokój dzienny + jadalnia + kuchnia
27,51
6. Schody
4,69
7. Łazienka
4,67
8. Garaż jednostanowiskowy
21,09
Razem
83,55
83,55

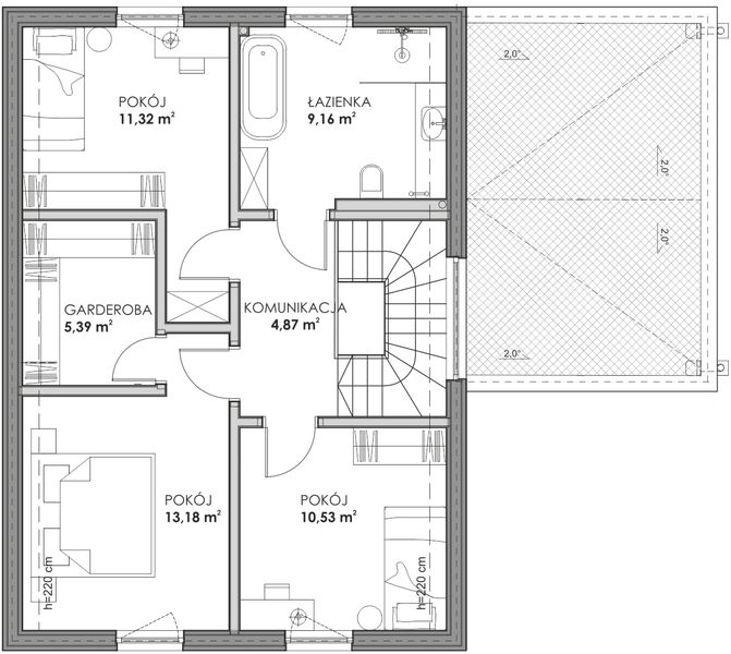
Poddasze - 54,45 m²

Poddasze projektu Dom prefabrykowany całoroczny Sensation II
Powierzchnia (m²)
Tooltip
Powierzchnia pomieszczenia
to ta, z której faktycznie możesz korzystać – skosy i niskie części poddasza są liczone częściowo lub wcale.
  1. 100% dla wysokości powyżej 2,2 m,
  2. 50% dla wysokości 1,4–2,2 m,
  3. nie liczymy poniżej 1,4 m.

Powierzchnia podłogi
Liczymy po obrysie pomieszczenia, bez względu na jego wysokość/skosy. Jeśli nie ma skosów to powierzchnia podłogi i pomieszczenia jest taka sama.
pomieszczenia i podłogi
podłogi
1. Korytarz
4,87
2. Łazienka
9,16
3. Pokój
10,53
4. Pokój
13,18
5. Garderoba
5,39
6. Pokój
11,32
Razem
54,45
54,45

Podoba Ci się dom, ale chciałbyś dokonać pewnych zmian?

  • Możesz zmienić kolor i materiał elewacji
  • Możesz zmienić funkcję i układ pomieszczeń
Konsultant

Skontaktuj się z nami - przygotujemy bezpłatną ofertę dla Ciebie

71 718 89 70

pon.-pt. 08:00 - 19:00

WYGODNY DOM CAŁOROCZNY

Podstawowe informacje

icon
Całoroczny dom drewniany
icon
30 lat gwarancji
icon
Czas realizacji 90 dni
icon
Stan deweloperski
KLASYCZNA NOWOCZESNOŚĆ
Nowoczesna bryła

To, że klasyczna architektura nie wychodzi z mody, z powodzeniem udowadnia gotowy dom piętrowy Sensation II. Powierzchnia użytkowa domu to 116,90 m². Na planie prostokąta architekci osadzili przytulną dla oka konstrukcję z dwuspadowym dachem, która dzięki wysokim oknom nabiera lekkości. Dom wpasuje się idealnie w podmiejską zieleń jak i odnajdzie się w ruchliwym centrum.  

Dom prefabrykowany całoroczny Sensation II - HFS1002
PRZEJRZYSTA OFERTA CENOWA
Niezmienna cena domu w stanie deweloperskim

Dokładny koszt domu w stanie deweloperskim znasz jeszcze przed podpisaniem umowy! 

Stan deweloperski obejmuje:

  • ściany zewnętrzne i wewnętrzne
  • konstrukcję dachu (więźba)
  • peszle pod instalację elektryczną
  • okna PCV, drzwi wejściowe i bramę garażową 
  • parapety zewnętrzne aluminiowe i wewnętrzne z kamienia sztucznego
  • tynk akrylowy wraz z barankiem 2 mm na elewacji
  • montaż orynnowania i obróbki blacharskie
  • montaż schodów strychowych rozkładanych
  • dach płaski wykończony membraną PVC
  • ścianę attyki z obróbką blacharską
  • strop międzykondygnacyjny
  • izolację dachu i stropu wełną mineralną o grubości 320 mm
  • wykończenie ścian, stropu i dachu płytami G-K
  • pokrycie dachu dachówką cementową Brass Celtycka Lumino
  • podbitkę drewnianą / nadbitkę okapu dachu.

Więcej

Dom prefabrykowany całoroczny Sensation II - HFS1002
IDEALNE DOPASOWANIE
Wielozadaniowa przestrzeń

Na piętrze domu Sensation II architekci przewidzieli 3 sypialnie -  w tym jedną, która posiada własną garderobę. Na tej kondygnacji mieści się również przestronna łazienka. Parter to funkcjonalna, przemyślana przestrzeń. Znajdziemy tam ustawny pokój, który może pełnić funkcję biura lub gabinetu, łazienkę, a także pomieszczenie gospodarcze. Przestronny, jasny salon oraz jadalnia zostały częściowo połączone z otwartą kuchnią, a wszystko to dla wygody przyszłych lokatorów. 

Dom prefabrykowany całoroczny Sensation II - HFS1002
Dom prefabrykowany całoroczny Sensation II - HFS1002

Garaż 

Dom prefabrykowany całoroczny Sensation II - HFS1002

Garderoba

Dom prefabrykowany całoroczny Sensation II - HFS1002

Przestronna łazienka

Analiza działki

Czy ten dom pasuje na Twoją działkę? Chętnie to sprawdzimy!

  • Czy wybrany dom zmieści się na Twojej działce?
  • Czy spełnia parametry wg MPZT lub WZ?
KONSTRUKCJA

Ciężki prefabrykat drewniany

Całoroczne domy drewniane

Konstrukcja domów to ciężki prefabrykat drewniany - podstawą są solidne belki z drewna KVH (drewno konstrukcyjne klejone na długości) oraz BSH (drewno konstrukcyjne klejone warstwowo). Dzięki zastosowanym parametrom na stropie może być zastosowana wylewka betonowa, a na dachu ciężka cementowa dachówka. 

Domy w technologii ciężkiego prefabrykatu drewnianego są stabilne, trwałe i energooszczędne. 

Wszystkie nowe konstrukcje domów energooszczędnych objęte są 30-letnią ochroną o charakterze gwarancyjnym, która rozpoczyna się w dniu odbioru domu. 

Dom prefabrykowany całoroczny Sensation II - HFS1002
Zakład produkcyjny

Poszczególne elementy domu powstają w wysoce zaawansowanym technologicznie parku maszynowym w Siemianowicach Śląskich. Gotowe ściany zewnętrzne są dobrze zabezpieczone przed działaniem czynników atmosferycznych. Na etapie produkcji montowane są drzwi wejściowe i okna. 

Dom prefabrykowany całoroczny Sensation II - HFS1002
Dom energooszczędny

Największe straty energii cieplnej występują w przegrodach ściennych, dachowych oraz stropodachowych. Dlatego przegrody budowlane oraz materiały, z których zostały wykonane, mają decydujący wpływ na energooszczędność domu prefabrykowanego. 

Starannie dobrana stolarka okienna i drzwiowa, a także poszczególne materiały izolacyjne, jak wełna, styropian, folie paroizolacyjne oraz taśmy izolacyjne czy montażowe, pochodzą wyłącznie od najlepszych producentów. System rekuperacji oferowany jest w standardzie. Wentylacja mechaniczna z odzyskiem ciepła dostarcza świeże filtrowane powietrze z zewnątrz, dzięki czemu maleją opłaty związane z ogrzewaniem domu. 

Dom prefabrykowany całoroczny Sensation II - HFS1002
Zdrowy klimat

Bardzo dobra szczelność budynku i zdrowy, przyjazny dla domowników klimat wnętrz to efekt właściwe zaprojektowanego obiektu, wyboru sprawdzonych rozwiązań i materiałów oraz staranne wykonawstwo. Aby mieć pewność, że dom jest szczelny, już na etapie budowy przeprowadzana jest próba ciśnieniowa - BlowerDoor Test. To nieinwazyjny i krótkotrwały pomiar szczelności powietrznej budynku. Na czas testu w drzwiach zewnętrznych umieszczany jest wentylator, który zwiększa ciśnienie w domu. Komputer, za pomocą rozmieszczonych czujników, weryfikuje szczelność domu. Wyniki pomiaru poddawane są później dalszej obróbce w specjalnym programie. Badanie potwierdza jakość wykonania domu i jego właściwości energooszczędne. 

Dom prefabrykowany całoroczny Sensation II - HFS1002
Trwałe, solidne ściany

Prefabrykowane ściany stanowią pionierski i trwały system. Idealnie dobrana grubość i wykonane z materiałów najwyższej jakości warstwy chronią przed upałem, mrozem i hałasem. Ekologiczne i ciepłe materiały gwarantują zdrowe, przyjemne mieszkanie przy minimalnym zużyciu energii na ogrzewanie. 

Zalety prefabrykowanych ścian WOLF: 

  • bezpieczne i trwałe 
  • ciepłe i wygłuszone
  • wysoce ognioodporne 
  • zapewniają idealny mikroklimat 
  • stabilne i odporne na ruchy tektoniczne i górnicze 
  • zapewniają dobrą izolację 

Wykorzystane w budowie drewno jest suszone komorowo, czterostronnie strugane i fazowane. Jego wilgotność nie przekracza 18%. Drewno jest importowane z największych fabryk w Niemczech, gdzie otrzymuje certyfikat jakości.

Dom prefabrykowany całoroczny Sensation II - HFS1002
Dane techniczne

Specyfikacja

Powierzchnie i wymiary Powierzchnie i wymiary

Powierzchnia użytkowa
Tooltip
Suma powierzchni wszystkich pomieszczeń mieszkalnych, pomniejszona o pow. garażu, kotłowni, strychu, piwnicy. Jest liczona w 100% dla pomieszczeń o wysokości powyżej 2,2 m, w 50% dla pomieszczeń o wys. 2,2-1,4 m i niewliczana dla niższych niż 1,4 m.

116,90 m²

Wysokość ściany kolankowej
Tooltip
Wysokość ściany podpierającej dach. Jej wysokość wpływa na powierzchnię użytkową kondygnacji, na której się znajduje.

1,64 m

Powierzchnia zabudowy
Tooltip
Powierzchnia zajmowana przez część na- oraz nadziemną budynku liczona, jako rzut pionowy budynku na działkę.

103,35 m²

Powierzchnia całkowita
Tooltip
Całkowita powierzchnia wszystkich kondygnacji budynku łącznie z elementami nośnymi, takimi jak ściany zewnętrzne (z ociepleniem), słupy, tarasy, itp.

181,44 m²

Powierzchnia netto
Tooltip
Powierzchna wszystkich pomieszczeń w budynku mierzona na wysokości podłogi.

140,06 m²

Kubatura brutto
Tooltip
Zazwyczaj jest to suma kubatur (objętości) wszystkich pomieszczeń budynku, liczonych po zewnętrznym obrysie murów (z ociepleniem).

565,50 m³

Powierzchnia dachu

106,04 m²

Kąt nachylenia dachu
Tooltip
Nachylenie połaci dachu głównego podawane w stopniach. Uwaga! W niektórych projektach występuje więcej niż jedno nachylenie dachu.

22°

Wysokość budynku
Tooltip
Wysokość liczona od części budynku położonej najniżej przy powierzchni terenu do najwyższego punktu dachu (kalenicy) z wyłączeniem kominów.

6,88 m

Szerokość elewacji

10,41 m

Długość elewacji

11,56 m

Min. szerokość działki
Tooltip
Najmniejsza możliwa szerokość działki niezbędna do wybudowania wybranego domu. Składa się z szerokości elewacji domu powiększonej z obu stron o 3 m dla ściany bez otworów drzwiowych/okiennych lub 4 m, dla ściany z otworami.

20,41 m

Min. długość działki
Tooltip
Najmniejsza możliwa długość działki niezbędna do wybudowania wybranego domu. Składa się z długości elewacji domu powiększonej z obu stron o 3 m dla ściany bez otworów drzwiowych/okiennych lub 4 m, dla ściany z otworami.

19,56 m

Energooszczędność Energooszczędność

Ep
Tooltip
Energia pierwotna określa ilość energii nieodnawialnej potrzebnej w ciągu roku do ogrzewania czy też ogrzania wody użytkowej z uwzględnieniem kosztów produkcji i transportu surowców energetycznych.

58,70 kWh/(m²rok)

Ogrzewanie

po stronie klienta lub opcja dodatkowo płatna: pompa ciepła + ogrzewanie podłogowe

Wentylacja

po stronie klienta lub opcja dodatkowo płatna: mechaniczna

Technologia i materiały Technologia i materiały

Posadowienie budynku

po stronie klienta lub opcja dodatkowo płatna: płyta fundamentowa

Ściany zewnętrzne

drewniany rygiel konstrukcyjny 160mm

Ściany wewnętrzne

drewniany rygiel konstrukcyjny 120mm

Strop nad parterem

drewniany

Konstrukcja dachu

drewniany

Pokrycie dachu

dachówka cementowa

Elewacja

tynk akrylowy STO baranek 2mm

DOMY GOTOWE

Zbuduj swój dom w 3 prostych krokach

Wybierasz dom,
przygotowujemy ofertę

Konfigurujemy i tworzymy dla Ciebie bezpłatną ofertę. Pomagamy w weryfikacji działki.

Podpisujesz umowę, rusza produkcja

Podpisujesz umowę z naszym partnerem na produkcję i montaż Twojego domu. Nie martwisz się o terminy i znasz koszty budowy.

Ciesz się swoim domem

W zależności od wybranej technologii budowy, Producent albo przywiezie gotowe elementy na Twoją działkę, albo – w przypadku metody murowanej - rozpocznie proces budowy domu od podstaw. Tobie pozostaną już tylko wewnętrzne prace wykończeniowe.

Dom w 3 krokach

NIE CZEKAJ DŁUŻEJ!

Pomożemy Ci zrealizować marzenie o domu - nawet w 3 miesiące!

Ikona zadzwoń

Zadzwoń

71 71 88 970

pon.-pt. 8:00-19:00

Zadzwoń teraz
Ikona list

Napisz do nas:

domygotowe@extradom.pl
lub
Wolne terminy!

Zobacz na żywo nasz gotowy dom!

Zanim podejmiesz decyzję, spotkaj się z nami na budowie i zobacz, jak realizowana jest taka inwestycja. Dzięki temu:

  • Dowiesz się, jak wygląda budowa i efekt finalny.
  • Skonsultujesz swoje pomysły z naszym ekspertem

Zobacz podobne domy gotowe

1

/

3

Zdjęcie Dom szkieletowy Creative Smart 160
Pow. użytkowa
118,35 m²
Pow. zabudowy
112 m²
Pokoje
4
780 019 zł 6 591 zł/m²
Zdjęcie Dom prefabrykowany P.13 z dachem płaskim bez garażu
Pow. użytkowa
115,39 m²
Pow. zabudowy
139,50 m²
Pokoje
3
616 100 zł 5 339 zł/m²
Zdjęcie Dom prefabrykowany P.13 z dachem kopertowym bez garażu
Pow. użytkowa
115,39 m²
Pow. zabudowy
139,50 m²
Pokoje
3
616 100 zł 5 339 zł/m²
Zdjęcie Dom prefabrykowany P.13 z dachem płaskim z garażem
Pow. użytkowa
115,39 m²
Pow. zabudowy
180,75 m²
Pokoje
3
730 400 zł 6 330 zł/m²
Zdjęcie Dom prefabrykowany P.13 z dachem kopertowym z garażem
Pow. użytkowa
115,39 m²
Pow. zabudowy
180,75 m²
Pokoje
3
730 400 zł 6 330 zł/m²
Zdjęcie Dom prefabrykowany P.14
Dom prefabrykowany P.14
Dodano!
Dodano!
Pow. użytkowa
118,94 m²
Pow. zabudowy
147 m²
Pokoje
3
694 700 zł 5 829 zł/m²
Zdjęcie Dom modułowy Soul
Dom modułowy Soul
Dodano!
Dodano!
Pow. użytkowa
118,94 m²
Pow. zabudowy
85,28 m²
Pokoje
4
518 000 zł 3 654 zł/m²
Zdjęcie Dom modułowy Harmony
Dom modułowy Harmony
Dodano!
Dodano!
Pow. użytkowa
114,80 m²
Pow. zabudowy
85,28 m²
Pokoje
4
512 000 zł 3 853 zł/m²
Zdjęcie Dom szkieletowy Scandinavian Smart 120
Pow. użytkowa
119,43 m²
Pow. zabudowy
148,50 m²
Pokoje
3
571 271 zł 4 761 zł/m²
Zdjęcie Dom szkieletowy Emily Smart 120
Pow. użytkowa
120 m²
Pow. zabudowy
151 m²
Pokoje
3
592 512 zł 4 938 zł/m²
Zdjęcie Dom prefabrykowany Parterowy 120C
Pow. użytkowa
120,06 m²
Pow. zabudowy
144,66 m²
Pokoje
4
489 000 zł 4 073 zł/m²
Zdjęcie Dom szkieletowy Forest Smart 120
Pow. użytkowa
113,18 m²
Pow. zabudowy
157,50 m²
Pokoje
4
535 459 zł 4 730 zł/m²

Graficzne opracowanie rzutów poglądowych widocznych na karcie projektu zostało wykonane przez Extradom.pl. Prezentowane przez Extradom.pl wizualizacje wykonane zostały przez autora projektu i należy poczytywać je jedynie za przykład i propozycję wykończenia, wizję architektoniczną autora projektu. Ostateczne wykończenie budynku może nastąpić na wiele sposobów. Szczegółowe rozwiązania zastosowane w oferowanej dokumentacji - w tym również ilość, lokalizacje i wygląd okien, drzwi, kominów - mogą w niewielkim stopniu różnić się od prezentowanej wizualizacji budynku.

Extradom.pl Spółka z ograniczoną odpowiedzialnością z siedzibą przy ul. Jaworskiej 13, 53-612 Wrocław, wpisana do rejestru przedsiębiorców Krajowego Rejestru Sądowego przez Sąd Rejonowy dla Wrocławia-Fabrycznej we Wrocławiu, VI Wydział Gospodarczy Krajowego Rejestru Sądowego do pod numerem KRS 0000648746, numer NIP 895-17-18-333, o kapitale zakładowym 708 150,00 zł uprzejmie informuje, iż poprzez serwis Extradom.pl umożliwia m.in. zapoznanie się przez konsumentów z ofertą handlową Partnerów Extradom.pl, którzy stosują metody budowy domów przy wykorzystaniu różnego rodzaju technologie prefabrykacji bądź modułowe (tzw. „Gotowe domy”).

Extradom.pl nie prowadzi jednakże sprzedaży ani nie oferuje usług polegających na doradztwie finansowym, prawnym ani podatkowym w zakresie inwestycji realizowanych w technologiach tzw. „Gotowych domów”. Informacje prezentowane w serwisie Extradom.pl dotyczące Partnerów Extradom.pl oferujących realizację inwestycji w technologiach „Gotowych domów” lub podobnych mają charakter informacyjny i reklamowy.

Prezentowane w serwisie Extradom.pl informacje dotyczące stosowanych przez Partnerów metod budowy domów w technologii prefabrykacji bądź modułowej pochodzą od Partnerów Extradom.pl.

Extradom.pl sp. z o.o. jedynie umożliwia nawiązanie kontaktu przez Użytkownika z Partnerem Extradom.pl stosującym tego rodzaju technologie budowy domów i nie jest stroną umowy o roboty budowlane zawieranej przez Użytkownika Extradom.pl z Partnerem Extradom.pl.

REKLAMA
Zamknij