👉 Wiosenne rabaty + karta allegro 200 zł! 🔥

Koniec oferty za:

00godz.

00min.

00sek.

Sprawdź

Dom prefabrykowany P.13 z dachem kopertowym z garażem

HPK1025

Dodaj

Dodano!

Porównaj

Dodano!

Drukuj

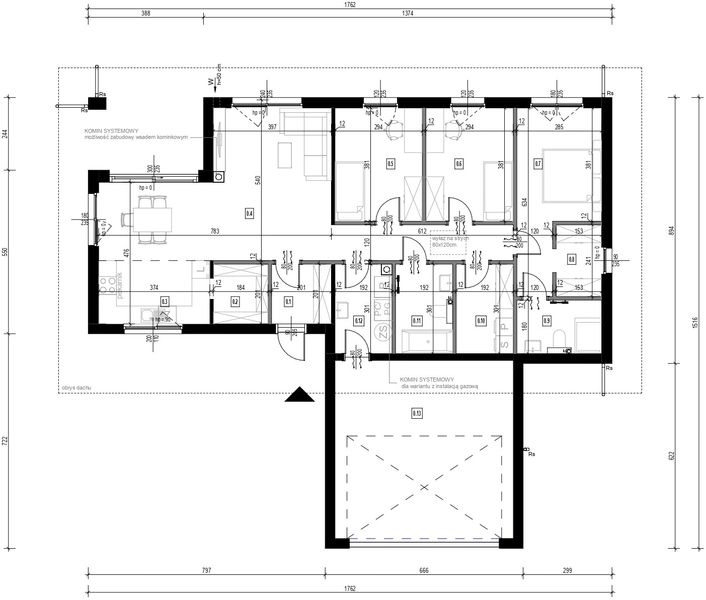
Rzut parteru

Powierzchnia (m²)
Tooltip
Powierzchnia pomieszczenia
to ta, z której faktycznie możesz korzystać – skosy i niskie części poddasza są liczone częściowo lub wcale.
  1. 100% dla wysokości powyżej 2,2 m,
  2. 50% dla wysokości 1,4–2,2 m,
  3. nie liczymy poniżej 1,4 m.

Powierzchnia podłogi
Liczymy po obrysie pomieszczenia, bez względu na jego wysokość/skosy. Jeśli nie ma skosów to powierzchnia podłogi i pomieszczenia jest taka sama.
pomieszczenia i podłogi
podłogi
1. Wiatrołap
4,04
2. Spiżarnia
3,71
3. Kuchnia
7,98
4. Pokój dzienny + jadalnia
30,40
5. Pokój
11,20
6. Pokój
11,22
7. Pokój
13,86
8. Garderoba
3,69
9. Łazienka
5,14
10. Łazienka
5,77
11. Pomieszczenie gospodarcze
5,80
12. Pomieszczenie gospodarcze
5,68
13. Garaż dwustanowiskowy
36
Razem
144,49
144,49

Pow. użytkowa

115,39 m²

Pow. zabudowy

180,75 m²

Pokoje

3

Łazienki i WC

2

Garaż

2

Kąt dachu

20°

Min. szer. i dł. działki:

25,58 m x 23,14 m

Technologia

Prefabrykat betonowy

więcej

Cena
Tooltip

8% VAT dla klienta
indywidualnego, 23% VAT dla
firmy. Cena za metr wyliczana
na podstawie powierzchni netto
lub powierzchni użytkowej.

Brutto
Netto
Cena
Tooltip

8% VAT dla klienta
indywidualnego, 23% VAT dla
firmy. Cena za metr wyliczana
na podstawie powierzchni netto
lub powierzchni użytkowej.

Brutto
Netto
Stan deweloperski
Tooltip

Szczegóły zakresu podstawowego znajdziesz
w opisie.

743 500 zł

6 443 zł/m²

ikona
Odbiór techniczny GRATIS
Gwarantujemy najwyższą jakość

Skonfiguruj dom

Skonfiguruj dom

Fundamenty

od 91 200 zł

Źródło ciepła

od 13 000 zł

Fotowoltaika

od 43 300 zł

Wolne terminy!
Umów wizytę w
domu pokazowym
  • Jak wygląda proces budowy?
  • Ile trwa budowa i jakie terminy są dostępne?
  • Jak się mieszka w takim domu!
RZUTY

Rozmieszczenie
pomieszczeń

Parter - 144,49 m²

Wymiary wewnętrzne

Powierzchnie pomieszczeń

Oznaczenia na rzutach

Lodówka

Suszarka

Zmywarka

Suszarka nad pralką

Kuchenka

Pralka

Piekarnik

Szafa

Kocioł

Pompa ciepła

Kominek

Rekuperacja

Szerokość stolarki
Wysokość stolarki

Legenda Zobacz oznaczenia użyte na rzutach

Powierzchnia (m²)
Tooltip
Powierzchnia pomieszczenia
to ta, z której faktycznie możesz korzystać – skosy i niskie części poddasza są liczone częściowo lub wcale.
  1. 100% dla wysokości powyżej 2,2 m,
  2. 50% dla wysokości 1,4–2,2 m,
  3. nie liczymy poniżej 1,4 m.

Powierzchnia podłogi
Liczymy po obrysie pomieszczenia, bez względu na jego wysokość/skosy. Jeśli nie ma skosów to powierzchnia podłogi i pomieszczenia jest taka sama.
pomieszczenia i podłogi
podłogi
1. Wiatrołap
4,04
2. Spiżarnia
3,71
3. Kuchnia
7,98
4. Pokój dzienny + jadalnia
30,40
5. Pokój
11,20
6. Pokój
11,22
7. Pokój
13,86
8. Garderoba
3,69
9. Łazienka
5,14
10. Łazienka
5,77
11. Pomieszczenie gospodarcze
5,80
12. Pomieszczenie gospodarcze
5,68
13. Garaż dwustanowiskowy
36
Razem
144,49
144,49

Oznaczenia na rzutach

Lodówka

Suszarka

Zmywarka

Suszarka nad pralką

Kuchenka

Pralka

Piekarnik

Szafa

Kocioł

Pompa ciepła

Kominek

Rekuperacja

Szerokość stolarki
Wysokość stolarki

Legenda Zobacz oznaczenia użyte na rzutach

Podoba Ci się dom, ale chciałbyś dokonać pewnych zmian?

  • Możesz zmienić kolor i materiał elewacji
  • Możesz zmienić funkcję i układ pomieszczeń
Konsultant

Skontaktuj się z nami - przygotujemy bezpłatną ofertę dla Ciebie

71 718 89 70

pon.-pt. 08:00 - 19:00

PODSTAWOWE INFORMACJE

Trwały i ekologiczny dom w prefabrykacji betonowej

icon
Prefabrykat betonowy
icon
20 lat gwarancji
icon
Realizacja w 90 dni
icon
Parterowy z garażem
DOM Z GARAŻEM
Rozwiązanie dla wymagających

Parterowy dom P.13 z garażem zaspokoi w pełni potrzeby rodziny 2+2, dzięki 3 sypialniom i kilku dodatkowym pomieszczeniom. 

Dom ma nieregularny kształt przez "wcięty" taras i wysunięty na froncie 2-stanowiskowy garaż. Świetnie prezentuje się zarówno z dachem spadzistym, jak i płaskim. Porównaj: Dom P.13 z dachem płaskim

Wybór sposobu wykończenia elewacji pozwala nadać budynkowi indywidualnego charakteru.

Sprawdź również dom P.13 bez garażu

Dom prefabrykowany P.13 z dachem kopertowym z garażem - HPK1025
ZAKRES REALIZACJI
Co obejmuje cena?

Gotowy dom to opcja dla tych, którzy cenią sobie czas i wygodę. Otrzymujesz dom w stanie deweloperskim, aby szybciej zająć się wykończeniem i urządzeniem zgodnie z Twoimi potrzebami.

Zakres realizacji:

  • ściany zewnętrzne i wewnętrzne z prefabrykatów betonowych z ociepleniem, zgodnie z WT2021,
  • konstrukcja dachu - drewno C24 suszone komorowo, impregnowane zanurzeniowo,
  • pokrycie dachu blachodachówką,
  • strop - drewniany,
  • rynny stalowe, ocynkowane,
  • okna 3-szybowe, 6-komorowe PVC,
  • drzwi wejściowe antywłamaniowe,
  • brama garażową segmentową z silnikiem elektrycznym,
  • rolety okienne elektryczne (poza oknami połaciowymi),
  • parapety zewnętrzne stalowe, ocynkowane, malowane proszkowo,
  • elewacja - tynk silikonowy,
  • posadzki z izolacją i wylewką cementową,
  • instalacja C.O. – ogrzewanie podłogowe,
  • instalacja wodno-kanalizacyjna,
  • instalacja elektryczna,
  • wentylacja mechaniczna z rekuperacją,
  • transport i montaż domu na działce.
Dom prefabrykowany P.13 z dachem kopertowym z garażem - HPK1025
ZAPYTAJ DORADCĘ
Dodatkowe możliwości

Sprawdź dodatkowe rozwiązania, usługi i zmiany, o które możesz poszerzyć zakres realizacji:

  • wykonanie fundamentów,
  • źródło ciepła,
  • instalacja fotowoltaiczna,
  • zmiana rodzaju dachu,
  • zmiana wykończenia elewacji.

Szczegóły oferty skonsultuj z doradcą.

Dom prefabrykowany P.13 z dachem kopertowym z garażem - HPK1025

Różne warianty dachu i elewacji

Dom prefabrykowany P.13 z dachem kopertowym z garażem - HPK1025

Tynk

Dom prefabrykowany P.13 z dachem kopertowym z garażem - HPK1025

Płytka klinkierowa

Dom prefabrykowany P.13 z dachem kopertowym z garażem - HPK1025

Dach płaski

STREFA DZIENNA
Komfort rodziny na co dzień

Po wejściu do domu P.13 i przejściu przez mały przedpokój otwiera się słoneczna strefa dzienna podzielona na 2 części: wypoczynkową i kuchenno-jadalnianą. Na ogród i zadaszony taras prowadzą aż 3 wyjścia, a położony między nimi przeszklony kąt to idealne miejsce na rodzinny stół.

Aneks w kształcie litery „L” pomieści wszystkie potrzebne funkcje. Tuż obok znajduje się nieduża spiżarnia na zapasy i dodatkowy sprzęt kuchenny – idealna opcja dla tych, którzy lubią gotować i robić przetwory.

Dom prefabrykowany P.13 z dachem kopertowym z garażem - HPK1025
Dom prefabrykowany P.13 z dachem kopertowym z garażem - HPK1025

2-stanowiskowy garaż

Dom prefabrykowany P.13 z dachem kopertowym z garażem - HPK1025

Spiżarnia przy kuchni

Dom prefabrykowany P.13 z dachem kopertowym z garażem - HPK1025

Sypialnia z garderobą

STREFA PRYWATNA
Wygoda i prywatność

Na najdalszym końcu domu znajduje się spełnienie marzeń - sypialnia gospodarzy z prywatną łazienką i garderobą, która gwarantuje wysoki poziom intymności.

Zaraz obok zlokalizowane są pozostałe dwie sypialnie z widokiem na ogród. Po przeciwnej stronie znajduje się druga łazienka z miejscem na wannę oraz 2 dodatkowe pomieszczenia gospodarcze. Jedno z nich ma bezpośrednie przejście do garażu.

Dom prefabrykowany P.13 z dachem kopertowym z garażem - HPK1025
DOM Z PREFABRYKATÓW BETONOWYCH
Jaki będzie Twój nowy dom?

Dom P.13 został zaprojektowany do wykonania w technologii prefabrykacji betonowej. Co ją charakteryzuje?

  • Jest jedną z najtrwalszych technologii budowlanych – wykorzystuje wysokowytrzymałościowy beton C40/50.
  • Eliminuje błędy popełniane w tradycyjnej technologii murowanej – mniejsza liczba spoin to mniej mostków cieplnych i akustycznych.
  • Prefabrykacja dużych elementów to ciągłość izolacji oraz gładkie ściany i sufity, które nie wymagają tynkowania.
  • To ekologiczne rozwiązanie ze względu na ograniczenie ilości użytych materiałów oraz brak odpadów na placu budowy.
  • Szybka realizacja domu – produkcja trwa ok. 3 miesiące, a jego montaż na przygotowanym fundamencie ok. 30 dni.

Więcej

Dom prefabrykowany P.13 z dachem kopertowym z garażem - HPK1025

Analiza działki

Czy ten dom pasuje na Twoją działkę? Chętnie to sprawdzimy!

  • Czy wybrany dom zmieści się na Twojej działce?
  • Czy spełnia parametry wg MPZT lub WZ?
ZOBACZ TECHNOLOGIĘ NA WŁASNE OCZY
Odwiedź dom pokazowy!

Odwiedź dom pokazowy i przekonaj się na własne oczy:

  • jak wygląda proces budowy takiego domu 
  • ile trwa budowa i jakie terminy są dostępne
  • jak mieszka się w takim domu! 

Zapisz się na DRZWI OTWARTE! Skontaktuj się z nami - podamy Ci najbliższy termin i wpiszemy Cię na listę uczestników. Napisz wiadomość na adres e-mail: domygotowe@extradom.pl lub zadzwoń: 71 715 20 69. Do zobaczenia!

Dom prefabrykowany P.13 z dachem kopertowym z garażem - HPK1025
TECHNOLOGIA I KONSTRUKCJA

Prefabrykat betonowy - solidny i trwały

Nowoczesna technologia prefabrykacji betonowej

Technologia znana od lat 70. XX wieku, w ostatnich dekadach przeszła ogromną transformację. Współczesne prefabrykaty betonowe wyróżniają się wytrzymałością, precyzją wykonania oraz doskonałymi parametrami izolacyjnymi i akustycznymi.

Do produkcji prefabrykatów wykorzystuje się beton klasy co najmniej C40/50. Proces wytwarzania żelbetowych ścian i elementów konstrukcyjnych trwa ok. 3 miesięcy. Ściany w fabryce uzyskują swoją pełną wytrzymałość i trafiają na plac budowy gotowe do montażu – gładkie, dobrze spasowane, z otworami na instalacje.

Dom prefabrykowany P.13 z dachem kopertowym z garażem - HPK1025
Błyskawiczna budowa domu na Twojej działce

Technologia prefabrykacji sprawia, że większość prac budowlanych zostaje wykonana jeszcze zanim konstrukcja przyjedzie na plac budowy. Po przewiezieniu części na działkę inwestora, ściany mocuje się do płyty fundamentowej i łączy za pomocą specjalnych elementów, tworząc stabilną konstrukcję. W zależności od projektu dach wykonuje się z wiązarów lub tradycyjnej więźby, a pokrycie stanowi blachodachówka.

Montaż ścian, dachu, ocieplenia, stolarki okiennej i drzwiowej oraz wykonanie elewacji trwa mniej niż 30 dni.

Dom prefabrykowany P.13 z dachem kopertowym z garażem - HPK1025
Najwyższa wytrzymałość i precyzja

Prefabrykaty nie tylko skracają czas budowy do kilku dni, ale także eliminują wady tradycyjnej budowy.  Monolityczne ściany zapewniają ciągłość izolacji i ograniczają występowanie mostków termicznych.

Ściany prefabrykowane są gładkie i nie wymagają nakładania tynków, a brak łączeń wyklucza występowanie spękań.

Technologia prefabrykacji betonowej znacząco przewyższa parametry nośne i wytrzymałościowe domów drewnianych, keramzytobetonowych i murowanych.

Dom prefabrykowany P.13 z dachem kopertowym z garażem - HPK1025
Komfort akustyczny

Dom prefabrykowany w technologii betonowej to cicha i komfortowa przestrzeń do życia. Beton, ze względu na dużą masę, posiada doskonałe parametry izolacji akustycznej. Skuteczniej izoluje od dźwięków powietrznych niż technologie murowane o podobnej grubości.

O komfort akustyczny domowników dbają dodatkowo wielokomorowe okna trzyszybowe oraz stropy wykonane w technologii zespolonej.

 

Dom prefabrykowany P.13 z dachem kopertowym z garażem - HPK1025
Energooszędność

Zmniejszenie zużycia energii to jedna z podstawowych cech nowoczesnego budownictwa, realizowanego zgodnie z wymogami WT 2021.

Ściany domu ocieplane są grubą warstwą styropianu i zabezpieczają go przed ubytkami cieplnymi. Izolacja termiczna przegród zewnętrznych to nawet do 28 cm styropianu lub wełny mineralnej o podwyższonych parametrach przewodności cieplnej.

Dom prefabrykowany P.13 z dachem kopertowym z garażem - HPK1025
Dane techniczne

Specyfikacja

Powierzchnie i wymiary Powierzchnie i wymiary

Powierzchnia użytkowa
Tooltip
Suma powierzchni wszystkich pomieszczeń mieszkalnych, pomniejszona o pow. garażu, kotłowni, strychu, piwnicy. Jest liczona w 100% dla pomieszczeń o wysokości powyżej 2,2 m, w 50% dla pomieszczeń o wys. 2,2-1,4 m i niewliczana dla niższych niż 1,4 m.

115,39 m²

Powierzchnia zabudowy
Tooltip
Powierzchnia zajmowana przez część na- oraz nadziemną budynku liczona, jako rzut pionowy budynku na działkę.

180,75 m²

Kubatura netto
Tooltip
Zazwyczaj jest to suma kubatur (objętości) pomieszczeń budynku, bez strychu, liczonych po zewnętrznym obrysie murów (z ociepleniem).

562,64 m³

Kubatura brutto
Tooltip
Zazwyczaj jest to suma kubatur (objętości) wszystkich pomieszczeń budynku, liczonych po zewnętrznym obrysie murów (z ociepleniem).

592,91 m³

Powierzchnia dachu

261,83 m²

Kąt nachylenia dachu
Tooltip
Nachylenie połaci dachu głównego podawane w stopniach. Uwaga! W niektórych projektach występuje więcej niż jedno nachylenie dachu.

20°

Wysokość budynku
Tooltip
Wysokość liczona od części budynku położonej najniżej przy powierzchni terenu do najwyższego punktu dachu (kalenicy) z wyłączeniem kominów.

5,41 m

Szerokość elewacji

17,58 m

Długość elewacji

15,14 m

Min. szerokość działki
Tooltip
Najmniejsza możliwa szerokość działki niezbędna do wybudowania wybranego domu. Składa się z szerokości elewacji domu powiększonej z obu stron o 3 m dla ściany bez otworów drzwiowych/okiennych lub 4 m, dla ściany z otworami.

25,58 m

Min. długość działki
Tooltip
Najmniejsza możliwa długość działki niezbędna do wybudowania wybranego domu. Składa się z długości elewacji domu powiększonej z obu stron o 3 m dla ściany bez otworów drzwiowych/okiennych lub 4 m, dla ściany z otworami.

23,14 m

Energooszczędność Energooszczędność

Ep
Tooltip
Energia pierwotna określa ilość energii nieodnawialnej potrzebnej w ciągu roku do ogrzewania czy też ogrzania wody użytkowej z uwzględnieniem kosztów produkcji i transportu surowców energetycznych.

65,30 kWh/(m²rok)

Wentylacja

mechaniczna

Technologia i materiały Technologia i materiały

Ściany zewnętrzne

wysokowytrzymałościowa ściana żelbetowa prefabrykowana + styropian 20-28 cm

Ściany wewnętrzne

wysokowytrzymałościowa ściana żelbetowa/płyta GK

Strop nad parterem

drewniany

Konstrukcja dachu

drewniany

Pokrycie dachu

dachówka

Elewacja

tynk

DOMY GOTOWE

Zbuduj swój dom w 3 prostych krokach

Wybierasz dom,
przygotowujemy ofertę

Konfigurujemy i tworzymy dla Ciebie bezpłatną ofertę. Pomagamy w weryfikacji działki.

Podpisujesz umowę, rusza produkcja

Podpisujesz umowę z naszym partnerem na produkcję i montaż Twojego domu. Nie martwisz się o terminy i znasz koszty budowy.

Ciesz się swoim domem

W zależności od wybranej technologii budowy, Producent albo przywiezie gotowe elementy na Twoją działkę, albo – w przypadku metody murowanej - rozpocznie proces budowy domu od podstaw. Tobie pozostaną już tylko wewnętrzne prace wykończeniowe.

Dom w 3 krokach

NIE CZEKAJ DŁUŻEJ!

Pomożemy Ci zrealizować marzenie o domu - nawet w 3 miesiące!

Ikona zadzwoń

Zadzwoń

71 71 88 970

pon.-pt. 8:00-19:00

Zadzwoń teraz
Ikona list

Napisz do nas:

domygotowe@extradom.pl
lub
Wolne terminy!

Zobacz na żywo nasz gotowy dom!

Zanim podejmiesz decyzję, spotkaj się z nami na budowie i zobacz, jak realizowana jest taka inwestycja. Dzięki temu:

  • Dowiesz się, jak wygląda budowa i efekt finalny.
  • Skonsultujesz swoje pomysły z naszym ekspertem

Zobacz podobne domy gotowe

1

/

3

Zdjęcie Bergen 110
Bergen 110
Dodano!
Dodano!
Pow. użytkowa
110,80 m²
Pow. zabudowy
134,75 m²
Pokoje
3
469 000 zł 4 233 zł/m²
Zdjęcie Dom prefabrykowany P.13 z dachem płaskim bez garażu
Pow. użytkowa
115,39 m²
Pow. zabudowy
139,50 m²
Pokoje
3
627 300 zł 5 436 zł/m²
Zdjęcie Dom prefabrykowany P.13 z dachem kopertowym bez garażu
Pow. użytkowa
115,39 m²
Pow. zabudowy
139,50 m²
Pokoje
3
627 300 zł 5 436 zł/m²
Zdjęcie Dom prefabrykowany P.13 z dachem płaskim z garażem
Pow. użytkowa
115,39 m²
Pow. zabudowy
180,75 m²
Pokoje
3
743 500 zł 6 443 zł/m²
Zdjęcie Dom modułowy Harmony
Dom modułowy Harmony
Dodano!
Dodano!
Pow. użytkowa
114,80 m²
Pow. zabudowy
85,28 m²
Pokoje
4
512 000 zł 3 853 zł/m²
Zdjęcie Dom szkieletowy Forest Smart 120
Pow. użytkowa
113,18 m²
Pow. zabudowy
157,50 m²
Pokoje
4
535 459 zł 4 730 zł/m²
Zdjęcie Dom prefabrykowany DH127U z garażem
Pow. użytkowa
113,05 m²
Pow. zabudowy
181,43 m²
Pokoje
3
874 908 zł 7 739 zł/m²
Zdjęcie Dom szkieletowy Creative Smart 160
Pow. użytkowa
118,35 m²
Pow. zabudowy
112 m²
Pokoje
4
780 019 zł 6 591 zł/m²
Zdjęcie Dom szkieletowy Moly Smart 112
Pow. użytkowa
112 m²
Pow. zabudowy
136 m²
Pokoje
3
553 375 zł 4 941 zł/m²
Zdjęcie Dom prefabrykowany P.14
Dom prefabrykowany P.14
Dodano!
Dodano!
Pow. użytkowa
118,94 m²
Pow. zabudowy
147 m²
Pokoje
3
707 200 zł 5 933 zł/m²
Zdjęcie Dom modułowy Soul
Dom modułowy Soul
Dodano!
Dodano!
Pow. użytkowa
118,94 m²
Pow. zabudowy
85,28 m²
Pokoje
4
518 000 zł 3 654 zł/m²
Bez pozwolenia
Zdjęcie Dom szkieletowy Family Smart 70
Pow. użytkowa
111,77 m²
Pow. zabudowy
70 m²
Pokoje
5
534 125 zł 5 046 zł/m²

Graficzne opracowanie rzutów poglądowych widocznych na karcie projektu zostało wykonane przez Extradom.pl. Prezentowane przez Extradom.pl wizualizacje wykonane zostały przez autora projektu i należy poczytywać je jedynie za przykład i propozycję wykończenia, wizję architektoniczną autora projektu. Ostateczne wykończenie budynku może nastąpić na wiele sposobów. Szczegółowe rozwiązania zastosowane w oferowanej dokumentacji - w tym również ilość, lokalizacje i wygląd okien, drzwi, kominów - mogą w niewielkim stopniu różnić się od prezentowanej wizualizacji budynku.

Extradom.pl Spółka z ograniczoną odpowiedzialnością z siedzibą przy ul. Jaworskiej 13, 53-612 Wrocław, wpisana do rejestru przedsiębiorców Krajowego Rejestru Sądowego przez Sąd Rejonowy dla Wrocławia-Fabrycznej we Wrocławiu, VI Wydział Gospodarczy Krajowego Rejestru Sądowego do pod numerem KRS 0000648746, numer NIP 895-17-18-333, o kapitale zakładowym 708 150,00 zł uprzejmie informuje, iż poprzez serwis Extradom.pl umożliwia m.in. zapoznanie się przez konsumentów z ofertą handlową Partnerów Extradom.pl, którzy stosują metody budowy domów przy wykorzystaniu różnego rodzaju technologie prefabrykacji bądź modułowe (tzw. „Gotowe domy”).

Extradom.pl nie prowadzi jednakże sprzedaży ani nie oferuje usług polegających na doradztwie finansowym, prawnym ani podatkowym w zakresie inwestycji realizowanych w technologiach tzw. „Gotowych domów”. Informacje prezentowane w serwisie Extradom.pl dotyczące Partnerów Extradom.pl oferujących realizację inwestycji w technologiach „Gotowych domów” lub podobnych mają charakter informacyjny i reklamowy.

Prezentowane w serwisie Extradom.pl informacje dotyczące stosowanych przez Partnerów metod budowy domów w technologii prefabrykacji bądź modułowej pochodzą od Partnerów Extradom.pl.

Extradom.pl sp. z o.o. jedynie umożliwia nawiązanie kontaktu przez Użytkownika z Partnerem Extradom.pl stosującym tego rodzaju technologie budowy domów i nie jest stroną umowy o roboty budowlane zawieranej przez Użytkownika Extradom.pl z Partnerem Extradom.pl.

Zadzwoń i poproś
o bezpłatną wycenę

71 718 89 70
REKLAMA
Zamknij