👉 Rozgrzewające rabaty! 🔥

Dom prefabrykowany całoroczny Combino C

HFS1003

Dodaj

Dodano!

Porównaj

Dodano!

Drukuj

Rzut parteru

Powierzchnia (m²)
Tooltip
Powierzchnia pomieszczenia
to ta, z której faktycznie możesz korzystać – skosy i niskie części poddasza są liczone częściowo lub wcale.
  1. 100% dla wysokości powyżej 2,2 m,
  2. 50% dla wysokości 1,4–2,2 m,
  3. nie liczymy poniżej 1,4 m.

Powierzchnia podłogi (wartość w nawiasie)
Liczymy po całym obrysie pomieszczenia, bez względu na jego wysokość.
81,50
1. Wiatrołap
2,81
2. Korytarz
3,33
3. Pokój dzienny + jadalnia + kuchnia
42,61
4. Korytarz
1,96
5. Pokój
15,69
6. Schody
5,05
7. Garderoba
2,27
8. Łazienka
2,75
9. Pomieszczenie gospodarcze
5,03
Powierzchnia (m²)
Tooltip
Powierzchnia pomieszczenia
to ta, z której faktycznie możesz korzystać – skosy i niskie części poddasza są liczone częściowo lub wcale.
  1. 100% dla wysokości powyżej 2,2 m,
  2. 50% dla wysokości 1,4–2,2 m,
  3. nie liczymy poniżej 1,4 m.

Powierzchnia podłogi (wartość w nawiasie)
Liczymy po całym obrysie pomieszczenia, bez względu na jego wysokość.
57
1. Korytarz
4,84
2. Pokój
11,45
3. Pokój
15,22
4. Pokój
15,22
5. Łazienka
5,13
6. Łazienka
5,14

Pow. użytkowa

138,49 m²

Pow. zabudowy

100,02 m²

Pokoje

4

Łazienki i WC

3

Garaż

0

Kąt dachu

38°

Min. szer. i dł. działki:

19 m x 19,10 m

Technologia

Modułowa, Prefabrykat drewniany

więcej

Dom wycofany z oferty

W razie pytań prosimy o kontakt z doradcą. Polecamy zobaczyć podobne domy gotowe.

Wolne terminy!
Umów wizytę w
domu pokazowym
  • Jak wygląda proces budowy?
  • Ile trwa budowa i jakie terminy są dostępne?
  • Jak się mieszka w takim domu!

Zobacz podobne domy gotowe

1

/

3

Zdjęcie Dom prefabrykowany P.5
Dom prefabrykowany P.5
Dodano!
Dodano!
Pow. użytkowa
138,67 m²
Pow. zabudowy
125,20 m²
Pokoje
5
772 700 zł 5 572 zł/m²
Zdjęcie Dom prefabrykowany P.1 z okapem
Pow. użytkowa
139,44 m²
Pow. zabudowy
202,71 m²
Pokoje
3
721 000 zł 5 171 zł/m²
Zdjęcie Dom prefabrykowany P.1 bez okapu
Pow. użytkowa
139,44 m²
Pow. zabudowy
202,71 m²
Pokoje
3
699 800 zł 5 019 zł/m²
Zdjęcie Dom prefabrykowany DEX136
Dom prefabrykowany DEX136
Dodano!
Dodano!
Pow. użytkowa
136 m²
Pow. zabudowy
166,50 m²
Pokoje
4
845 000 zł 6 213 zł/m²
Zdjęcie Dom prefabrykowany Piętrowy 130C
Pow. użytkowa
132 m²
Pow. zabudowy
88,61 m²
Pokoje
4
539 000 zł 4 083 zł/m²
Zdjęcie Dom szkieletowy Open Sky 195
Pow. użytkowa
145,04 m²
Pow. zabudowy
172 m²
Pokoje
4
940 300 zł 6 483 zł/m²
Zdjęcie Dom prefabrykowany Piętrowy 130B
Pow. użytkowa
131,60 m²
Pow. zabudowy
88,61 m²
Pokoje
5
539 000 zł 4 096 zł/m²
Zdjęcie Dom prefabrykowany Piętrowy 130A
Pow. użytkowa
130,40 m²
Pow. zabudowy
88,61 m²
Pokoje
4
539 000 zł 4 133 zł/m²
Zdjęcie Dom prefabrykowany Stodoła 150B
Pow. użytkowa
151,30 m²
Pow. zabudowy
97,44 m²
Pokoje
4
589 000 zł 3 893 zł/m²
Zdjęcie Dom prefabrykowany Stodoła 150A
Pow. użytkowa
152,20 m²
Pow. zabudowy
97,44 m²
Pokoje
5
589 000 zł 3 870 zł/m²
Zdjęcie Dom prefabrykowany Stodoła 150C
Pow. użytkowa
152,90 m²
Pow. zabudowy
97,44 m²
Pokoje
5
589 000 zł 3 852 zł/m²
Zdjęcie Dom prefabrykowany P.11
Dom prefabrykowany P.11
Dodano!
Dodano!
Pow. użytkowa
122,88 m²
Pow. zabudowy
90,72 m²
Pokoje
3
681 300 zł 5 544 zł/m²
RZUTY

Rozmieszczenie
pomieszczeń

Parter - 81,50 m²

Parter projektu Dom prefabrykowany całoroczny Combino C
Powierzchnia (m²)
Tooltip
Powierzchnia pomieszczenia
to ta, z której faktycznie możesz korzystać – skosy i niskie części poddasza są liczone częściowo lub wcale.
  1. 100% dla wysokości powyżej 2,2 m,
  2. 50% dla wysokości 1,4–2,2 m,
  3. nie liczymy poniżej 1,4 m.

Powierzchnia podłogi (wartość w nawiasie)
Liczymy po całym obrysie pomieszczenia, bez względu na jego wysokość.
(81,50)
81,50
1. Wiatrołap
2,81
2. Korytarz
3,33
3. Pokój dzienny + jadalnia + kuchnia
42,61
4. Korytarz
1,96
5. Pokój
15,69
6. Schody
5,05
7. Garderoba
2,27
8. Łazienka
2,75
9. Pomieszczenie gospodarcze
5,03

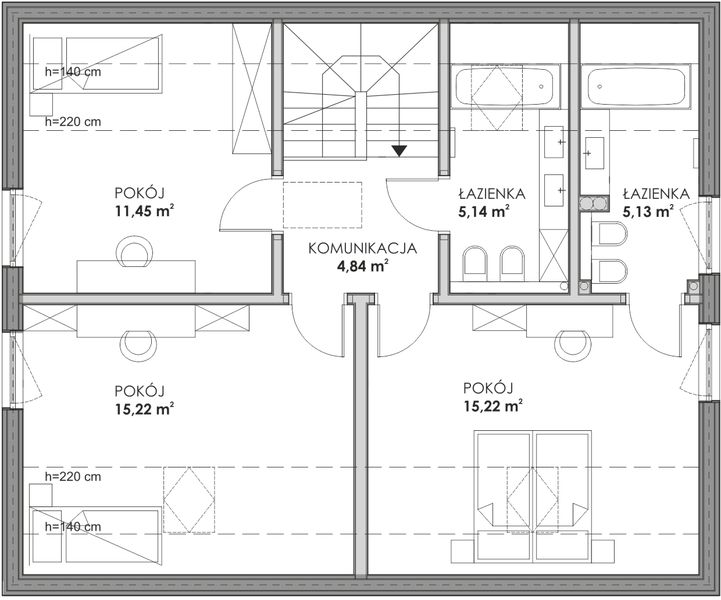
Poddasze - 57 m²

Poddasze projektu Dom prefabrykowany całoroczny Combino C
Powierzchnia (m²)
Tooltip
Powierzchnia pomieszczenia
to ta, z której faktycznie możesz korzystać – skosy i niskie części poddasza są liczone częściowo lub wcale.
  1. 100% dla wysokości powyżej 2,2 m,
  2. 50% dla wysokości 1,4–2,2 m,
  3. nie liczymy poniżej 1,4 m.

Powierzchnia podłogi (wartość w nawiasie)
Liczymy po całym obrysie pomieszczenia, bez względu na jego wysokość.
(57)
57
1. Korytarz
4,84
2. Pokój
11,45
3. Pokój
15,22
4. Pokój
15,22
5. Łazienka
5,13
6. Łazienka
5,14

Podoba Ci się dom, ale chciałbyś dokonać pewnych zmian?

  • Możesz zmienić kolor i materiał elewacji
  • Możesz zmienić funkcję i układ pomieszczeń
Konsultant

Skontaktuj się z nami - przygotujemy bezpłatną ofertę dla Ciebie

71 718 89 70

pon.-pt. 08:00 - 19:00

Analiza działki

Czy ten dom pasuje na Twoją działkę? Chętnie to sprawdzimy!

  • Czy wybrany dom zmieści się na Twojej działce?
  • Czy spełnia parametry wg MPZT lub WZ?
KONSTRUKCJA

Ciężki prefabrykat drewniany

Całoroczne domy drewniane

Konstrukcja domów to ciężki prefabrykat drewniany - podstawą są solidne belki z drewna KVH (drewno konstrukcyjne klejone na długości) oraz BSH (drewno konstrukcyjne klejone warstwowo). Dzięki zastosowanym parametrom na stropie może być zastosowana wylewka betonowa, a na dachu ciężka cementowa dachówka. 

Domy w technologii ciężkiego prefabrykatu drewnianego są stabilne, trwałe i energooszczędne. 

Wszystkie nowe konstrukcje domów energooszczędnych objęte są 30-letnią ochroną o charakterze gwarancyjnym, która rozpoczyna się w dniu odbioru domu. 

Dom prefabrykowany całoroczny Combino C - HFS1003
Zakład produkcyjny

Poszczególne elementy domu powstają w wysoce zaawansowanym technologicznie parku maszynowym w Siemianowicach Śląskich. Gotowe ściany zewnętrzne są dobrze zabezpieczone przed działaniem czynników atmosferycznych. Na etapie produkcji montowane są drzwi wejściowe i okna. 

Dom prefabrykowany całoroczny Combino C - HFS1003
Dom energooszczędny

Największe straty energii cieplnej występują w przegrodach ściennych, dachowych oraz stropodachowych. Dlatego przegrody budowlane oraz materiały, z których zostały wykonane, mają decydujący wpływ na energooszczędność domu prefabrykowanego. 

Starannie dobrana stolarka okienna i drzwiowa, a także poszczególne materiały izolacyjne, jak wełna, styropian, folie paroizolacyjne oraz taśmy izolacyjne czy montażowe, pochodzą wyłącznie od najlepszych producentów. System rekuperacji oferowany jest w standardzie. Wentylacja mechaniczna z odzyskiem ciepła dostarcza świeże filtrowane powietrze z zewnątrz, dzięki czemu maleją opłaty związane z ogrzewaniem domu. 

Dom prefabrykowany całoroczny Combino C - HFS1003
Zdrowy klimat

Bardzo dobra szczelność budynku i zdrowy, przyjazny dla domowników klimat wnętrz to efekt właściwe zaprojektowanego obiektu, wyboru sprawdzonych rozwiązań i materiałów oraz staranne wykonawstwo. Aby mieć pewność, że dom jest szczelny, już na etapie budowy przeprowadzana jest próba ciśnieniowa - BlowerDoor Test. To nieinwazyjny i krótkotrwały pomiar szczelności powietrznej budynku. Na czas testu w drzwiach zewnętrznych umieszczany jest wentylator, który zwiększa ciśnienie w domu. Komputer, za pomocą rozmieszczonych czujników, weryfikuje szczelność domu. Wyniki pomiaru poddawane są później dalszej obróbce w specjalnym programie. Badanie potwierdza jakość wykonania domu i jego właściwości energooszczędne. 

Dom prefabrykowany całoroczny Combino C - HFS1003
Trwałe, solidne ściany

Prefabrykowane ściany stanowią pionierski i trwały system. Idealnie dobrana grubość i wykonane z materiałów najwyższej jakości warstwy chronią przed upałem, mrozem i hałasem. Ekologiczne i ciepłe materiały gwarantują zdrowe, przyjemne mieszkanie przy minimalnym zużyciu energii na ogrzewanie. 

Zalety prefabrykowanych ścian WOLF: 

  • bezpieczne i trwałe 
  • ciepłe i wygłuszone
  • wysoce ognioodporne 
  • zapewniają idealny mikroklimat 
  • stabilne i odporne na ruchy tektoniczne i górnicze 
  • zapewniają dobrą izolację 

Wykorzystane w budowie drewno jest suszone komorowo, czterostronnie strugane i fazowane. Jego wilgotność nie przekracza 18%. Drewno jest importowane z największych fabryk w Niemczech, gdzie otrzymuje certyfikat jakości.

Dom prefabrykowany całoroczny Combino C - HFS1003
Dane techniczne

Specyfikacja

Powierzchnie i wymiary Powierzchnie i wymiary

Powierzchnia użytkowa
Tooltip
Suma powierzchni wszystkich pomieszczeń mieszkalnych, pomniejszona o pow. garażu, kotłowni, strychu, piwnicy. Jest liczona w 100% dla pomieszczeń o wysokości powyżej 2,2 m, w 50% dla pomieszczeń o wys. 2,2-1,4 m i niewliczana dla niższych niż 1,4 m.

138,49 m²

Wysokość ściany kolankowej
Tooltip
Wysokość ściany podpierającej dach. Jej wysokość wpływa na powierzchnię użytkową kondygnacji, na której się znajduje.

0,76 m

Powierzchnia zabudowy
Tooltip
Powierzchnia zajmowana przez część na- oraz nadziemną budynku liczona, jako rzut pionowy budynku na działkę.

100,02 m²

Powierzchnia całkowita
Tooltip
Całkowita powierzchnia wszystkich kondygnacji budynku łącznie z elementami nośnymi, takimi jak ściany zewnętrzne (z ociepleniem), słupy, tarasy, itp.

200,04 m²

Powierzchnia netto
Tooltip
Powierzchna wszystkich pomieszczeń w budynku mierzona na wysokości podłogi.

158,42 m²

Kubatura brutto
Tooltip
Zazwyczaj jest to suma kubatur (objętości) wszystkich pomieszczeń budynku, liczonych po zewnętrznym obrysie murów (z ociepleniem).

627 m³

Powierzchnia dachu

129,08 m²

Kąt nachylenia dachu
Tooltip
Nachylenie połaci dachu głównego podawane w stopniach. Uwaga! W niektórych projektach występuje więcej niż jedno nachylenie dachu.

38°

Wysokość budynku
Tooltip
Wysokość liczona od części budynku położonej najniżej przy powierzchni terenu do najwyższego punktu dachu (kalenicy) z wyłączeniem kominów.

8,05 m

Szerokość elewacji

11 m

Długość elewacji

9,10 m

Min. szerokość działki
Tooltip
Najmniejsza możliwa szerokość działki niezbędna do wybudowania wybranego domu. Składa się z szerokości elewacji domu powiększonej z obu stron o 3 m dla ściany bez otworów drzwiowych/okiennych lub 4 m, dla ściany z otworami.

19 m

Min. długość działki
Tooltip
Najmniejsza możliwa długość działki niezbędna do wybudowania wybranego domu. Składa się z długości elewacji domu powiększonej z obu stron o 3 m dla ściany bez otworów drzwiowych/okiennych lub 4 m, dla ściany z otworami.

19,10 m

Energooszczędność Energooszczędność

Ep
Tooltip
Energia pierwotna określa ilość energii nieodnawialnej potrzebnej w ciągu roku do ogrzewania czy też ogrzania wody użytkowej z uwzględnieniem kosztów produkcji i transportu surowców energetycznych.

60,80 kWh/(m²rok)

Ogrzewanie

po stronie klienta lub opcja dodatkowo płatna: pompa ciepła + ogrzewanie podłogowe

Wentylacja

po stronie klienta lub opcja dodatkowo płatna: mechaniczna

Technologia i materiały Technologia i materiały

Posadowienie budynku

po stronie klienta lub opcja dodatkowo płatna: płyta fundamentowa.

Ściany zewnętrzne

drewniany rygiel konstrukcyjny 160mm

Ściany wewnętrzne

drewniany rygiel konstrukcyjny 120mm

Strop nad parterem

drewniany

Konstrukcja dachu

drewniany

Pokrycie dachu

dachówka cementowa

Elewacja

tynk akrylowy STO baranek 2mm

DOMY GOTOWE

Zbuduj swój dom w 3 prostych krokach

Wybierasz dom,
przygotowujemy ofertę

Konfigurujemy i tworzymy dla Ciebie bezpłatną ofertę. Pomagamy w weryfikacji działki.

Podpisujesz umowę, rusza produkcja

Podpisujesz umowę z naszym partnerem na produkcję i montaż Twojego domu. Nie martwisz się o terminy i znasz koszty budowy.

Ciesz się swoim domem

W zależności od wybranej technologii budowy, Producent albo przywiezie gotowe elementy na Twoją działkę, albo – w przypadku metody murowanej - rozpocznie proces budowy domu od podstaw. Tobie pozostaną już tylko wewnętrzne prace wykończeniowe.

Dom w 3 krokach

NIE CZEKAJ DŁUŻEJ!

Pomożemy Ci zrealizować marzenie o domu - nawet w 3 miesiące!

Ikona zadzwoń

Zadzwoń

71 71 88 970

pon.-pt. 8:00-19:00

Zadzwoń teraz
Ikona list

Napisz do nas:

domygotowe@extradom.pl
lub
Wolne terminy!

Zobacz na żywo nasz gotowy dom!

Zanim podejmiesz decyzję, spotkaj się z nami na budowie i zobacz, jak realizowana jest taka inwestycja. Dzięki temu:

  • Dowiesz się, jak wygląda budowa i efekt finalny.
  • Skonsultujesz swoje pomysły z naszym ekspertem

Zobacz podobne domy gotowe

1

/

3

Zdjęcie Dom prefabrykowany P.5
Dom prefabrykowany P.5
Dodano!
Dodano!
Pow. użytkowa
138,67 m²
Pow. zabudowy
125,20 m²
Pokoje
5
772 700 zł 5 572 zł/m²
Zdjęcie Dom prefabrykowany P.1 z okapem
Pow. użytkowa
139,44 m²
Pow. zabudowy
202,71 m²
Pokoje
3
721 000 zł 5 171 zł/m²
Zdjęcie Dom prefabrykowany P.1 bez okapu
Pow. użytkowa
139,44 m²
Pow. zabudowy
202,71 m²
Pokoje
3
699 800 zł 5 019 zł/m²
Zdjęcie Dom prefabrykowany DEX136
Dom prefabrykowany DEX136
Dodano!
Dodano!
Pow. użytkowa
136 m²
Pow. zabudowy
166,50 m²
Pokoje
4
845 000 zł 6 213 zł/m²
Zdjęcie Dom prefabrykowany Piętrowy 130C
Pow. użytkowa
132 m²
Pow. zabudowy
88,61 m²
Pokoje
4
539 000 zł 4 083 zł/m²
Zdjęcie Dom szkieletowy Open Sky 195
Pow. użytkowa
145,04 m²
Pow. zabudowy
172 m²
Pokoje
4
940 300 zł 6 483 zł/m²
Zdjęcie Dom prefabrykowany Piętrowy 130B
Pow. użytkowa
131,60 m²
Pow. zabudowy
88,61 m²
Pokoje
5
539 000 zł 4 096 zł/m²
Zdjęcie Dom prefabrykowany Piętrowy 130A
Pow. użytkowa
130,40 m²
Pow. zabudowy
88,61 m²
Pokoje
4
539 000 zł 4 133 zł/m²
Zdjęcie Dom prefabrykowany Stodoła 150B
Pow. użytkowa
151,30 m²
Pow. zabudowy
97,44 m²
Pokoje
4
589 000 zł 3 893 zł/m²
Zdjęcie Dom prefabrykowany Stodoła 150A
Pow. użytkowa
152,20 m²
Pow. zabudowy
97,44 m²
Pokoje
5
589 000 zł 3 870 zł/m²
Zdjęcie Dom prefabrykowany Stodoła 150C
Pow. użytkowa
152,90 m²
Pow. zabudowy
97,44 m²
Pokoje
5
589 000 zł 3 852 zł/m²
Zdjęcie Dom prefabrykowany P.11
Dom prefabrykowany P.11
Dodano!
Dodano!
Pow. użytkowa
122,88 m²
Pow. zabudowy
90,72 m²
Pokoje
3
681 300 zł 5 544 zł/m²

Graficzne opracowanie rzutów poglądowych widocznych na karcie projektu zostało wykonane przez Extradom.pl. Prezentowane przez Extradom.pl wizualizacje wykonane zostały przez autora projektu i należy poczytywać je jedynie za przykład i propozycję wykończenia, wizję architektoniczną autora projektu. Ostateczne wykończenie budynku może nastąpić na wiele sposobów. Szczegółowe rozwiązania zastosowane w oferowanej dokumentacji - w tym również ilość, lokalizacje i wygląd okien, drzwi, kominów - mogą w niewielkim stopniu różnić się od prezentowanej wizualizacji budynku.

Extradom.pl Spółka z ograniczoną odpowiedzialnością z siedzibą przy ul. Jaworskiej 13, 53-612 Wrocław, wpisana do rejestru przedsiębiorców Krajowego Rejestru Sądowego przez Sąd Rejonowy dla Wrocławia-Fabrycznej we Wrocławiu, VI Wydział Gospodarczy Krajowego Rejestru Sądowego do pod numerem KRS 0000648746, numer NIP 895-17-18-333, o kapitale zakładowym 708 150,00 zł uprzejmie informuje, iż poprzez serwis Extradom.pl umożliwia m.in. zapoznanie się przez konsumentów z ofertą handlową Partnerów Extradom.pl, którzy stosują metody budowy domów przy wykorzystaniu różnego rodzaju technologie prefabrykacji bądź modułowe (tzw. „Gotowe domy”).

Extradom.pl nie prowadzi jednakże sprzedaży ani nie oferuje usług polegających na doradztwie finansowym, prawnym ani podatkowym w zakresie inwestycji realizowanych w technologiach tzw. „Gotowych domów”. Informacje prezentowane w serwisie Extradom.pl dotyczące Partnerów Extradom.pl oferujących realizację inwestycji w technologiach „Gotowych domów” lub podobnych mają charakter informacyjny i reklamowy.

Prezentowane w serwisie Extradom.pl informacje dotyczące stosowanych przez Partnerów metod budowy domów w technologii prefabrykacji bądź modułowej pochodzą od Partnerów Extradom.pl.

Extradom.pl sp. z o.o. jedynie umożliwia nawiązanie kontaktu przez Użytkownika z Partnerem Extradom.pl stosującym tego rodzaju technologie budowy domów i nie jest stroną umowy o roboty budowlane zawieranej przez Użytkownika Extradom.pl z Partnerem Extradom.pl.

REKLAMA
Zamknij